
´°À®Í½ÁÛ¿Þ[½Ðŵ¡§Àîºê»Ô]
¡¡ÅиͱØÄ¾·ë¥¿¥ï¥Þ¥ó¡Ö(²¾¾Î)ÅиͱØÁ°Ã϶èÂè°ì¼ï»Ô³¹ÃϺƳ«È¯»ö¶È¡×(ÃϾå38³¬¡¢¹â¤µÌó140m)¤Î¾òÎã´Ä¶±Æ¶Áɾ²Á½ñ¤¬Àîºê»Ô¤è¤ê4·î12Æü¤Ë¸ø³«¤µ¤ì¤Þ¤·¤¿¡£Æ±ºÆ³«È¯¤ÏÅìµÞ¤ä¾®Åĵޤˤè¤ë¥¿¥ï¡¼¥Þ¥ó¥·¥ç¥ó¤Ç¡¢ÄãÁØÉô¤Ë¤ÏÌó1Ëü1000֤ξ¦¶È»ÜÀߤâÆþ¤ê¤Þ¤¹¡£¤³¤Îµ»ö¤Ç¤ÏƱ¥¿¥ï¥Þ¥ó¤Î³µÍפ丽¶·¡Ê2024ǯ4·î20Æü»þÅÀ¡Ë¡¢ÃÏ¿ÞÅù¤òºÜ¤»¤Æ¤¤¤Þ¤¹¡£
(²¾¾Î)ÅиͱØÁ°Ã϶èÂè°ì¼ï»Ô³¹ÃϺƳ«È¯»ö¶È¤Ë¤Ä¤¤¤Æ

ÅÚÃÏÍøÍѷײè¿Þ[½Ðŵ¡§Àîºê»Ô]
¡¡¡Ö(²¾¾Î)ÅиͱØÁ°Ã϶èÂè°ì¼ï»Ô³¹ÃϺƳ«È¯»ö¶È¡×¤ÏJRÆîÉðÀþ¡¦¾®Åĵ޾®Åĸ¶Àþ¡ÖÅи͡ױؤ˥ڥǥ¹¥È¥ê¥¢¥ó¥Ç¥Ã¥¤Çľ·ë¤¹¤ë¥¿¥ï¡¼¥Þ¥ó¥·¥ç¥ó¤Ç¡¢µ¬ÌϤÏÃϾå38³¬¡¢Åã²°2³¬¡¢Ãϲ¼2³¬¡¢¹â¤µÌó140m¡¢ºÇ¹â¹â¤µÌó146m¡¢ÉßÃÏÌÌÀÑÌó5,950Ö¡¢·úÃÛÌÌÀÑÌó4,160Ö¡¢±ä¾²ÌÌÀÑÌó6Ëü3500Ö¡¢Áí¸Í¿ôÌó450¸Í¤È¤Ê¤Ã¤Æ¤¤¤Þ¤¹¡£
¡¡·úÃÛ¼ç¤ÏÅиͱØÁ°Ã϶è»Ô³¹ÃϺƳ«È¯½àÈ÷Áȹ硢»ö¶È¶¨ÎϼԤÏÅìµÞÉÔÆ°»º¡¢ÅìµÞ¡¢¾®ÅĵÞÉÔÆ°»º¡¢¾®ÅĵÞÅÅÅ´¡¢Àß·×¼Ô¤ÏÅìµÞÀß·×¥³¥ó¥µ¥ë¥¿¥ó¥È¤Ç¡¢¹©´ü¤Ï2025ǯ4·îÃ幩¡Á2028ǯ9·î½×¹©Í½Äê¤È¤Ê¤Ã¤Æ¤¤¤Þ¤¹¡£

ÃÇÌÌ¿Þ(A-A¡ÇÃÇÌÌ)[½Ðŵ¡§Àîºê»Ô]
¡¡¥Õ¥í¥¢¹½À®¤ÏÃϲ¼¤¬Ãó¼Ö¾ì¡¢1³¬¡Á4³¬¤¬¾¦¶È»ÜÀß¡¢4³¬¤¬½»Âð¤ÎÃóÎØ¾ì¡¢5³¬¤¬½»Âð¤Î¶¦ÍÑ¥Õ¥í¥¢¡¢6³¬¡Á37³¬¤¬½»Âð¥Õ¥í¥¢¡¢¤½¤·¤ÆºÇ¾å³¬¤È¤Ê¤ë38³¬¤Ï½»Âð¶¦ÍѤȤʤê¤Þ¤¹¡£

ÃÇÌÌ¿Þ(B-B¡ÇÃÇÌÌ)[½Ðŵ¡§Àîºê»Ô]
¡¡¥¿¥ï¡¼¥Ñ¡¼¥¥ó¥°¤ÏÃϲ¼1³¬¡ÁÃϾå25³¬¤Î¹â¤µ¤È¤Ê¤Ã¤Æ¤¤¤Þ¤¹¡£

ΩÌÌ¿Þ(ËÌΩÌÌ¡¦ÆîΩÌÌ)[½Ðŵ¡§Àîºê»Ô]
¡¡ºÇ¾å³¬¤È¤Ê¤ë38³¬¤Ë¤Ï½»Âð¤Ï¤Ê¤¯¡¢¶¦ÍÑ»ÜÀߤ¬ÇÛÃÖ¤µ¤ì¤ë¥Õ¥í¥¢¤È¤Ê¤ê¤Þ¤¹¡£

ΩÌÌ¿Þ(ÅìΩÌÌ¡¦À¾Î©ÌÌ)[½Ðŵ¡§Àîºê»Ô]
¡¡¤¿¤À¡¢¶¦ÍÑ»ÜÀߤÏ38³¬Á´ÂΤǤϤʤ¯Å즤À¤±¤È¤Ê¤Ã¤Æ¤¤¤Þ¤¹¡£

ÅиͱØÁ°¥Ç¥Ã¥[½Ðŵ¡§Àîºê»Ô]
¡¡ÅиͱØÁ°¤Î¥Ç¥Ã¥¤«¤é¸«¤¿ÄãÁØÉô¤Î´°À®Í½ÁۿޤǤ¹¡£²°º¬ÉÕ¤¤Î¥Ú¥Ç¥¹¥È¥ê¥¢¥ó¥Ç¥Ã¥¤ÇÅиͱؤËľ·ë¤·¤Þ¤¹¡£

·×²èÃÏÆîÅì¦[½Ðŵ¡§Àîºê»Ô]
¡¡ÆîÅ즤«¤é¸«¤¿´°À®Í½ÁۿޤǤ¹¡£ÅиͱØÁ°¤Ç¤Ï°µÅÝŪ¹â¤µ¤Ç¡¢¥¿¥ï¥Þ¥ó¤¬¤¢¤ë¸þ¥öµÖÍ·±à±Ø¥¨¥ê¥¢¤ò´Þ¤á¤Æ¤â°µÅÝŪ¹â¤µ¤È¤Ê¤ê¤Þ¤¹¡£

¿Ëà¿åÆ»¶¶[½Ðŵ¡§Àîºê»Ô]
¡¡Â¿ËàÀî¤Ë²Í¤«¤ë¡Ö¿ËàÀî¿åÆ»¶¶¡×¤«¤é¸«¤¿´°À®Í½ÁۿޤǤ¹¡£Â¿ËàÀî¤ËÌ̤·¤¿ÉßÃϤǤϤ¢¤ê¤Þ¤»¤ó¤¬¡¢Ä㤤¥Õ¥í¥¢¤Ç¤â¥ê¥Ð¡¼¥Ó¥å¡¼¤¬³Ú¤·¤á¤½¤¦¤ÊΩÃϤȤʤäƤ¤¤Þ¤¹¡£
³Æ³¬Ê¿ÌÌ¿Þ

³Æ³¬Ê¿ÌÌ¿Þ(Ãϲ¼2³¬)[½Ðŵ¡§Àîºê»Ô]
¡¡Ãϲ¼2³¬¤Ï±«¿åÃùαÁå¤äËɲпåÁå¡¢¾Ã²Ð¿åÁå¤Ê¤É¤Î»ÜÀߤ¬ÇÛÃÖ¤µ¤ì¤Þ¤¹¡£

³Æ³¬Ê¿ÌÌ¿Þ(Ãϲ¼1³¬)[½Ðŵ¡§Àîºê»Ô]
¡¡Ãϲ¼1³¬¤Ë¤Ï½»ÂðÍÑÌó190Âæ¤Î¥¿¥ï¡¼¥Ñ¡¼¥¥ó¥°¡ÊÃϲ¼1³¬¡ÁÃϾå25³¬¡Ë¤ä¾¦¶ÈÍÑÌó60Âæ¤ÎÃó¼Ö¾ì¤¬ÇÛÃÖ¤µ¤ì¤Þ¤¹¡£

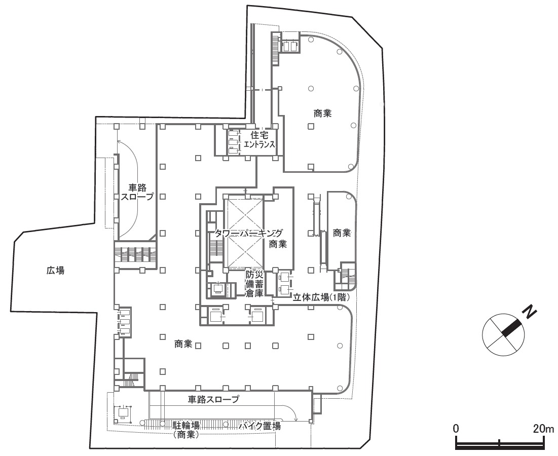
³Æ³¬Ê¿ÌÌ¿Þ(1³¬)[½Ðŵ¡§Àîºê»Ô]
¡¡1³¬¤Ï¼ç¤Ë¾¦¶È»ÜÀߤÇÀ¾Â¦¤Ë¤Ï¹¾ì¤¬À°È÷¤µ¤ì¤Þ¤¹¡£

³Æ³¬Ê¿ÌÌ¿Þ(2³¬)[½Ðŵ¡§Àîºê»Ô]
¡¡2³¬¤â¼ç¤Ë¾¦¶È»ÜÀߤÇÊâ¹Ô¼Ô¥Ç¥Ã¥¤Ë¤è¤Ã¤ÆÅиͱؤËÀܳ¤·¤Þ¤¹¡£¤½¤ÎÊâ¹Ô¼Ô¥Ç¥Ã¥¤È¤ÎÀܳÉô¶á¤¯¤Ë¤Ï¥¨¥ì¥Ù¡¼¥¿¡¼¤¬3´ð¤¢¤ë½»Â𥨥ó¥È¥é¥ó¥¹¤¬ÇÛÃÖ¤µ¤ì¤Þ¤¹¡£

³Æ³¬Ê¿ÌÌ¿Þ(3³¬)[½Ðŵ¡§Àîºê»Ô]
¡¡3³¬¤â¾¦¶È»ÜÀߤˤʤê¤Þ¤¹¡£

³Æ³¬Ê¿ÌÌ¿Þ(4³¬)[½Ðŵ¡§Àîºê»Ô]
¡¡4³¬¤Ï¼ç¤Ë½»ÂðÍѤÎÃóÎØ¾ì¤Ç¡¢°ìÉô¤Ï²°¾å¥Æ¥é¥¹¤Î¤¢¤ë¾¦¶È»ÜÀߤˤʤê¤Þ¤¹¡£

³Æ³¬Ê¿ÌÌ¿Þ(5³¬)[½Ðŵ¡§Àîºê»Ô]
¡¡½»Â𥨥ó¥È¥é¥ó¥¹¤Î3´ð¤Î¥¨¥ì¥Ù¡¼¥¿¡¼¤Î¹ÔÀè¤È¤Ê¤ë5³¬¤Ï½»Âð¤Î¶¦ÍÑ¥Õ¥í¥¢¤È¤Ê¤ê¡¢¤³¤Î¥Õ¥í¥¢¤ò·Ðͳ¤·¤Æ6³¬°Ê¾å¤ËÇÛÃÖ¤µ¤ì¤ë½»Âð¥Õ¥í¥¢¤Ë¹Ô¤¯¤³¤È¤Ë¤Ê¤ê¤Þ¤¹¡£¤É¤¦¤¤¤Ã¤¿¶¦ÍÑ»ÜÀߤ¬ÍѰդµ¤ì¤ë¤Î¤«¤ÏÉÔÌÀ¤Ç¤¹¤¬¡¢¥í¥Ó¡¼¤ä¥é¥¦¥ó¥¸¡¢¥³¥ó¥·¥§¥ë¥¸¥å¥«¥¦¥ó¥¿¡¼¤¬¤³¤Î5³¬¤ËÇÛÃÖ¤µ¤ì¤ë¤³¤È¤Ë¤Ê¤ë¤«¤È»×¤¤¤Þ¤¹¡£

³Æ³¬Ê¿ÌÌ¿Þ(6³¬)[½Ðŵ¡§Àîºê»Ô]
¡¡6³¬¤«¤é¤¬½»Âð¥Õ¥í¥¢¤Ë¤Ê¤ê¤Þ¤¹¡£½»Âð¤ÎÀìÍÌÌÀѤÏÌó40Ö¡Á140֤Ƿײ褵¤ì¤Æ¤¤¤Þ¤¹¡£

³Æ³¬Ê¿ÌÌ¿Þ(7¡Á37³¬)[½Ðŵ¡§Àîºê»Ô]
¡¡37³¬¤Þ¤Ç¤¬½»Âð¥Õ¥í¥¢¤Ç³Æ³¬¤Ë¥´¥ßÃÖ¾ì¤ÈËɺÒÈ÷ÃßÁҸˤ¬ÀßÃÖ¤µ¤ì¤Þ¤¹¡£

³Æ³¬Ê¿ÌÌ¿Þ(38³¬)[½Ðŵ¡§Àîºê»Ô]
¡¡ºÇ¾å³¬¤Î38³¬¤Ï½»Âð¤Î¶¦ÍÑ»ÜÀߤǡ¢ÆîÅ즤ËÇÛÃÖ¤µ¤ì¤Æ¤¤¤ë¤¿¤áÅìµþÅÔ¿´ÊýÌ̤âį¤á¤é¤ì¤ë¥¹¥«¥¤¥é¥¦¥ó¥¸¤Ë¤Ê¤ë¤â¤Î¤È»×¤ï¤ì¤Þ¤¹¡£

³Æ³¬Ê¿ÌÌ¿Þ(PH1³¬)[½Ðŵ¡§Àîºê»Ô]
¡¡Åã²°¤Î1³¬Éôʬ¤Ç¤¹¡£

³Æ³¬Ê¿ÌÌ¿Þ(PH2³¬)[½Ðŵ¡§Àîºê»Ô]
¡¡Åã²°¤Î2³¬Éôʬ¤Ç¤¹¡£

³Æ³¬Ê¿ÌÌ¿Þ(PHR³¬)[½Ðŵ¡§Àîºê»Ô]
¡¡²°¾å¤Ë¤Ï¥Ø¥ê¥Ý¡¼¥È¤¬ÇÛÃÖ¤µ¤ì¤Þ¤¹¡£¤³¤ÎH¥Þ¡¼¥¯(Heliport)¤Ï¥Ø¥ê¤¬ÃåΦ¤Ç¤¤ë¥Ø¥ê¥Ý¡¼¥È¤È¤Ê¤ê¤Þ¤¹¤¬¡¢¤â¤·R¥Þ¡¼¥¯¡ÊRescue¡Ë¤À¤ÈÃåΦ¤Ç¤¤Ê¤¤¥Û¥Ð¥ê¥ó¥°¥¹¥Ú¡¼¥¹¤È¤Ê¤ê¤Þ¤¹¡£
°ÌÃÖ¿Þ

°ÌÃÖ¿Þ[½Ðŵ¡§ÅìµÞ]
¡¡·×²èÃϤϾ®Åĵ޾®Åĸ¶Àþ¡¦JRÆîÉðÀþ¡ÖÅÐ¸Í¡×±Ø¤ÎÆî¦¤Ç¥Ú¥Ç¥¹¥È¥ê¥¢¥ó¥Ç¥Ã¥¤Ç±ØÄ¾·ë¤È¤Ê¤ê¡¢Ë̦¤Ë¾¯¤·¹Ô¤¯¤È¿ËàÀ¤¢¤ëΩÃϤȤʤäƤ¤¤Þ¤¹¡£
¸½¶·

¡¡2024ǯ4·î20Æü¤ËÅиͱؤΥڥǥ¹¥È¥ê¥¢¥ó¥Ç¥Ã¥¤«¤é»£±Æ¤·¤¿¡Ö(²¾¾Î)ÅиͱØÁ°Ã϶èÂè°ì¼ï»Ô³¹ÃϺƳ«È¯»ö¶È¡×(ÃϾå38³¬¡¢¹â¤µÌó140m)¤Î·×²èÃϤǤ¹¡£

¡¡´û¸·úʪ¤Î²òÂι©»ö¤Ï½ª¤ï¤Ã¤Æ¤ª¤ê¹Âç¤Ê¹¹ÃϤȤʤäƤ¤¤Þ¤¹¡£

¡¡ËÌÅ즤«¤é»£±Æ¡£º£¤¹¤°¤Ë¤Ç¤âÃ幩¤Ç¤¤½¤¦¤Ê¾õÂ֤Ǥ¹¤¬¡¢Ã幩ͽÄê¤Ï2025ǯ4·î¤È¤Ê¤Ã¤Æ¤¤¤Þ¤¹¡£

¡¡ÆîÅ즤«¤é»£±Æ¡£±ü¤Ë¸«¤¨¤ë¤Î¤¬ÅиͱؤΥڥǥ¹¥È¥ê¥¢¥ó¥Ç¥Ã¥¤Ç¡¢Æ±ºÆ³«È¯¥¿¥ï¥Þ¥ó¤Ï¤½¤Î¥Ú¥Ç¥¹¥È¥ê¥¢¥ó¥Ç¥Ã¥¤ËÀܳ¤·¤Þ¤¹¡£

¡¡À¾Â¦¤«¤é»£±Æ¡£2Ï©Àþ¤¬»È¤¨¤ë±ØÄ¾·ë¥¿¥ï¥Þ¥ó¡£·×²è¤µ¤ì¤Æ¤¤¤ë½»Âð¸Í¿ô¤ÏÌó450¸Í¤ÇÀìÍÌÌÀѤÏÌó40Ö¡Á140Ö¡£Ê¬¾ù¤Ë¤Ê¤ë¤«¤È»×¤¤¤Þ¤¹¤¬¤É¤¦¤¤¤Ã¤¿²Á³ÊÂӤˤʤë¤ó¤Ç¤·¤ç¤¦¤Í¡£ÎٱؤǷúÀßÃæ¤Î¡Ö¥Ñ¡¼¥¯¥¿¥ï¡¼¸þ¥öµÖÍ·±à¡×¤Ï1²¯Á°¸å¤ÎÉô²°¤¬Â¿¿ô¤¢¤Ã¤¿¤è¤¦¤Ê¤Î¤Ç¡¢¤³¤Á¤é¤Ï¤½¤³¤è¤ê¤âΩÃϤ¬Îɤ¤¤³¤È¤«¤é¤µ¤é¤Ë¹â³Û¤Ë¤Ê¤ë¤Î¤Ï³Î¼Â¤Ç¤¹¡£
ÃÏ¿Þ
ʪ·ï³µÍ×

¡¡·úÃ۷ײè¤Î¤ªÃΤ餻¤Ç¤¹¡£

¹©»ö¹©ÄøÉ½[½Ðŵ¡§Àîºê»Ô]
¡¡¹©´ü¤ÏÁ´ÂΤÇÌó42¥õ·î¤òͽÄꤷ¤Æ¤¤¤Þ¤¹¡£
¢£Êª·ï³µÍ×¢£
»ö¶È̾¡§(²¾¾Î)ÅиͱØÁ°Ã϶èÂè°ì¼ï»Ô³¹ÃϺƳ«È¯»ö¶È
½êºßÃÏ¡§¿ÀÆàÀÀîºê»Ô¿Ëà¶èÅиÍ90¡¢93¡¢94³¹¶è¤Î°ìÉô
¸òÄÌ¡§JRÆîÉðÀþ¡ÖÅÐ¸Í¡×±Ø Ä¾·ë
¡¡¡¡¡¡¾®Åĵ޾®Åĸ¶Àþ¡ÖÅÐ¸Í¡×±Ø Ä¾·ë
ÍÑÅÓ¡§¶¦Æ±½»Âð¡¢¾¦¶È»ÜÀß
Áí¸Í¿ô¡§Ìó450¸Í
³¬¿ô¡§ÃϾå38³¬¡¢Åã²°2³¬¡¢Ãϲ¼2³¬
¹â¤µ¡§Ìó140m(ºÇ¹â¹â¤µÌó146m)
¹½Â¤¡§Å´¶Ú¥³¥ó¥¯¥ê¡¼¥È¤
ÉßÃÏÌÌÀÑ¡§Ìó5,950Ö
·úÃÛÌÌÀÑ¡§Ìó4,160Ö
±ä¾²ÌÌÀÑ¡§Ìó63,500֡ʽ»Âð¡§Ìó44,000Ö¡¢¾¦¶È¡§Ìó11,000Ö¡¢Ãó¼Ö¾ì¡§Ìó6,500Ö¡¢ÃóÎØ¾ì¡§Ìó2,000Ö¡Ë
·úÃۼ硧ÅиͱØÁ°Ã϶è»Ô³¹ÃϺƳ«È¯½àÈ÷Áȹç
»ö¶È¶¨Îϼԡ§ÅìµÞÉÔÆ°»º¡¢ÅìµÞ¡¢¾®ÅĵÞÉÔÆ°»º¡¢¾®ÅĵÞÅÅÅ´
Àß·×¼Ô¡§ÅìµÞÀß·×¥³¥ó¥µ¥ë¥¿¥ó¥È
»Ü¹©¼Ô¡§¡Ý
¹©´ü¡§2025ǯ4·îÃ幩¡Á2028ǯ9·î½×¹©Í½Äê
½Ðŵ
¢§Àîºê»Ô¡§´Ä¶¥¢¥»¥¹¥á¥ó¥È¡Ê2024ǯ4·î12Æü¡Ë
¡Ê²¾¾Î¡ËÅиͱØÁ°Ã϶è»Ô³¹ÃϺƳ«È¯»ö¶È¤Ë·¸¤ë¾òÎã´Ä¶±Æ¶Áɾ²Á½ñ
¢¨ ½ÄÍ÷´ü´Ö¡§ÎáÏÂ6ǯ4·î12Æü¡ÁÎáÏÂ6ǯ5·î13Æü
¢§ÅìµÞ¡§¥Ë¥å¡¼¥¹¥ê¥ê¡¼¥¹¡Ê2023ǯ11·î28Æü¡Ë
¡Ö¡Ê²¾¾Î¡ËÅиͱØÁ°Ã϶èÂè°ì¼ï»Ô³¹ÃϺƳ«È¯»ö¶È¡×ÅԻԷײè·èÄê¤Î¤ªÃΤ餻
- ¥«¥Æ¥´¥ê
- Àîºê»Ô







