
Æî³¹¶è ³°´Ñ¥¤¥á¡¼¥¸¥Ñ¡¼¥¹[½Ðŵ¡§¹Á¶è]
¡¡JRÉÊÀî±ØÀ¾Â¦ÎÙÀÜÃϤÎÂ絬ÌϺƳ«È¯¡ÖÉÊÀî±Ø³¹¶èÃ϶è¡×¤Î´Ä¶±Æ¶ÁÄ´ºº½ñ°Æ¤Î½ÄÍ÷¤¬¹Á¶è¤Ç³«»Ï¤µ¤ì¤Þ¤·¤¿¡£µþµÞÉÊÀî±Ø¤äJR¤ÎÀþϩľ¾å¤â´Þ¤àºÆ³«È¯¤Ç¡¢ÃϾå28³¬¡¢¹â¤µ150m¤ÎµðÂç¤ÊÁ¥¤Î·Á¤ò¤·¤¿Ä¶¹âÁØ¥Ó¥ë¤Ê¤É¤¬·úÀߤµ¤ì¤Þ¤¹¡£Ã幩ͽÄê¤Ï2025ǯÅ٤ǡ¢ºÇ½ªÅª¤Ê½×¹©Í½Äê¤Ï2036ǯÅ٤ȤʤäƤ¤¤Þ¤¹¡£¤³¤Îµ»ö¤Ç¤ÏƱºÆ³«È¯¤Î³µÍפ丽¶·¡¢ÃÏ¿ÞÅù¤òºÜ¤»¤Æ¤¤¤Þ¤¹¡£
ÉÊÀî±Ø³¹¶èÃ϶è¤Ë¤Ä¤¤¤Æ

³°´Ñ¥¤¥á¡¼¥¸¥Ñ¡¼¥¹[½Ðŵ¡§¹Á¶è]
¡¡¡ÖÉÊÀî±Ø³¹¶èÃ϶è¡×¤ÏÅìÆüËÜιµÒÅ´Æ»¡ÊJRÅìÆüËܡˤ¬»ö¶È¼Ô¤È¤Ê¤ëË̳¹¶è¤È¡¢µþÉ͵޹ÔÅÅÅ´¤¬»ö¶È¼Ô¤È¤Ê¤ëÆî³¹¶è¤Ëʬ¤«¤ì¤¿Â絬ÌϺƳ«È¯¤È¤Ê¤Ã¤Æ¤ª¤ê¡¢µðÂç¤ÊÁ¥¤Î·Á¤ò¤·¤¿Ä¶¹âÁإӥ뤬Æî³¹¶è¤Ç¡¢¤³¤Î´°À®Í½ÁۿޤκǸåÈø¤ÎÈÁ¤ÎÉôʬ¤¬Ë̳¹¶è¤Ë¤Ê¤ê¤Þ¤¹¡£

Æî³¹¶è ·×²è·úÃÛʪÇÛÃÖ¿Þ[½Ðŵ¡§¹Á¶è]
¡¡Æî³¹¶è¤Ï¸½ºß¤ÎµþµÞÉÊÀî±Ø¤äµþµÞËÜÀþ¤¬¤¢¤ë¾ì½ê¤Ç¡¢·úʪ¤ÎÂçÉôʬ¤¬Æî-a¤È¤Ê¤Ã¤Æ¤ª¤êÆî-b¤Ï¾®µ¬ÌϤʥӥë¤Ë¤Ê¤ê¤Þ¤¹¡£
¡¡Æî-a¤Îµ¬ÌϤÏÃϾå28³¬¡¢Ãϲ¼2³¬¡¢¹â¤µÌó150m¡¢ÉßÃÏÌÌÀÑÌó1Ëü7300Ö¡¢±ä¾²ÌÌÀÑÌó20Ëü1000Ö¡¢»ö¶È¼çÂΤϵþÉ͵޹ÔÅÅÅ´¡¢´ðËÜÀß·×¤ÏÆü·úÀ߷פÇ2025ǯÅÙÃ幩¡¢2036ǯÅÙ½×¹©Í½Äê¤È¤Ê¤Ã¤Æ¤ª¤ê¡¢Æî-b¤Îµ¬ÌϤÏÃϾå9³¬¡¢Ãϲ¼1³¬¡¢¹â¤µÌó47m¡¢ÉßÃÏÌÌÀÑÌó1,500Ö¡¢±ä¾²ÌÌÀÑÌó8,300Ö¡¢»ö¶È¼çÂΤϵþÉ͵޹ÔÅÅÅ´¡¢´ðËÜÀß·×¤ÏÆü·úÀ߷פÇ2030ǯÅÙÃ幩¡¢2032ǯÅÙ½×¹©Í½Äê¤È¤Ê¤Ã¤Æ¤¤¤Þ¤¹¡£

Ë̳¹¶è ·×²è·úÃÛʪÇÛÃÖ¿Þ[½Ðŵ¡§¹Á¶è]
¡¡Ë̳¹¶è¤ÏJRÉÊÀî±ØÁ°¤Ë°ÌÃÖ¤·¤Æ¤ª¤ê¡¢µ¬ÌϤÏÃϾå28³¬¡¢Ãϲ¼3³¬¡¢¹â¤µÌó150m¡¢ÉßÃÏÌÌÀÑÌó1Ëü4700Ö¡¢±ä¾²ÌÌÀÑÌó16Ëü5000֤ȤʤäƤ¤¤Þ¤¹¡£»ö¶È¼çÂΤÏÅìÆüËÜιµÒÅ´Æ»¡¢´ðËÜÀ߷פÏJRÅìÆüËÜ·úÃÛÀ߷ס¦ÆüËÜÀ߷ס¦Æü·úÀß·×JV¤Ç2025ǯÅÙÃ幩¡¢2030ǯÅ٤ν׹©Í½Äê¤Ç¤¹¡£Æ±»þ¤ËÀ°È÷¤µ¤ì¤ëË̸ýÊâ¹Ô¼Ô¹¾ì¤ÏJR¤ÎÀþϩľ¾å¤Ë°ÌÃÖ¤·¤Æ¤¤¤Þ¤¹¡£

Æî-aÃÇÌ̿ޡÊA-A¡¡Ë[½Ðŵ¡§¹Á¶è]
¡¡Æî³¹¶è¤ÎÆî-a¤ÎË̦ÄãÁØÉô¤ÏŹÊÞ¡¢±Ø»ÜÀß¡¢Ãæ¹âÁØÉô¤Ï»ö̳½ê¤È¤Ê¤ê¡¢Æî¦¤ÎÄãÁØÉô¤Ï½¸²ñ¾ì¡¢¹âÁØÉô¤Ï½ÉÇñ»ÜÀߤˤʤê¤Þ¤¹¡£

Æî-aÃÇÌ̿ޡÊB-B¡¡Ë[½Ðŵ¡§¹Á¶è]
¡¡Æî-a¤ÎÄãÁØÉô¤Ë¤ÏΩÂβóÍ·¶õ´Ö¤âÀ°È÷¤µ¤ì¤Þ¤¹¡£

Æî-aÃÇÌ̿ޡÊC-C¡¡Ë[½Ðŵ¡§¹Á¶è]
¡¡Á¥¤Î·Á¤ò¤·¤¿Á¥¼óÉôʬ¤Î1³¬¿¿¤óÃæ¤òµþµÞËÜÀþ¤¬Ä̤ê¤Þ¤¹¡£

Æî-bÃÇÌ̿ޡÊA-A¡¡Ë[½Ðŵ¡§¹Á¶è]
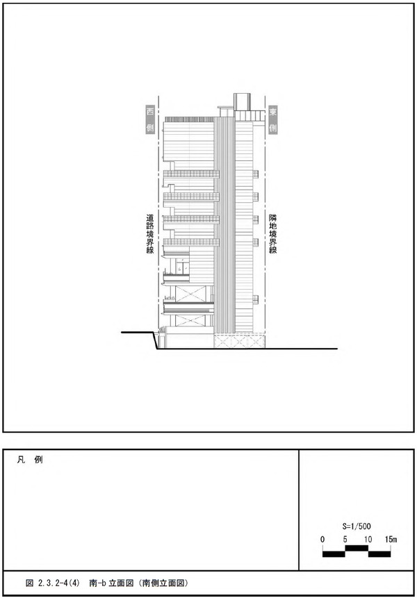
¡¡¾®µ¬ÌÏ¤ÊÆî-b¤ÎÃÇÌ̿ޤǤ¹¡£¾®µ¬ÌϤȸÀ¤Ã¤Æ¤âÆî-a¤ÈÈæ¤Ù¤ë¤È¾®µ¬ÌϤʤÀ¤±¤ÇÌó8,300Öµ¬ÌϤΥӥë¤È¤Ê¤ê¤Þ¤¹¡£

Æî-bÃÇÌ̿ޡÊB-B¡¡Ë[½Ðŵ¡§¹Á¶è]
¡¡ÄãÁØÉô¤Ë¾¦¶È»ÜÀߤ¬Æþ¤ëÈľõ¤Î¥ª¥Õ¥£¥¹¥Ó¥ë¤Ë¤Ê¤ê¤Þ¤¹¡£

Ë̳¹¶è ·×²è·úÃÛʪÃÇÌÌ¿Þ¡ÊÆîËÌ¡Ë[½Ðŵ¡§¹Á¶è]
¡¡Ë̳¹¶è¤Ï1¡Á2³¬¤¬±Ø»ÜÀß¡¢3¡Á5³¬¤¬Å¹ÊÞ¡¢2¡Á6³¬¤Ë¾ðÊóȯ¿®»ÜÀߤ¬ÇÛÃÖ¤µ¤ì¡¢9¡Á28³¬¤¬»ö̳½ê¤Ë¤Ê¤ê¤Þ¤¹¡£

Ë̳¹¶è ·×²è·úÃÛʪÃÇÌ̿ޡÊÅìÀ¾¡Ë[½Ðŵ¡§¹Á¶è]
¡¡Æî³¹¶è¤È¤ÏÊÌ»ö¶È¤Ë¤Ê¤ê¤Þ¤¹¤¬¡¢Á¥Èø¤Ë¤¢¤¿¤ëÉôʬ¤Ë°ÌÃÖ¤·¤Æ¤¤¤Þ¤¹¡£

Ë̸ýÊâ¹Ô¼Ô¹¾ì¤Î¥¤¥á¡¼¥¸[½Ðŵ¡§Æâ³ÕÉÜ]
¡¡ÊÌ»ñÎÁ¤Ç¸ø³«¤µ¤ì¤Æ¤¤¤ë´°À®Í½ÁۿޤǤ¹¡£¤³¤Á¤é¤ÏJRÉÊÀî±Ø¤ÎË̦¤ÎË̳¹¶è¤ËÀ°È÷¤µ¤ì¤ëË̸ýÊâ¹Ô¼Ô¹¾ì¤Ç¡¢¤³¤Î²¼¤Ë¤ÏJR¤ÎÀþÏ©¤¬¤¢¤ê¤Þ¤¹¡£

Ë̸ýÊâ¹Ô¼Ô¹¾ì¤Î¥¤¥á¡¼¥¸[½Ðŵ¡§Æâ³ÕÉÜ]
¡¡Ë̸ýÊâ¹Ô¼Ô¹¾ì¤«¤é¸«¤¿Ë̳¹¶è¤Ç¤¹¡£ÄãÁØÉô¤Î²°³°¤Ë¿Í¤¬¤¤¤ë¾ì½ê¤Ë¤ÏË̸ý¥Æ¥é¥¹¤¬À°È÷¤µ¤ì¤Þ¤¹¡£

Ë̸ý¥Æ¥é¥¹¤Î¥¤¥á¡¼¥¸[½Ðŵ¡§Æâ³ÕÉÜ]
¡¡Ë̸ý¥Æ¥é¥¹¤Ï¹ÁÆî¤Î͹âÁإӥ뷲¤òį¤á¤é¤ì¤ë¾ì½ê¤Ë¤Ê¤ê¤Þ¤¹¡£

Ë̦ͳÄÌÏ©¼þÊդΥ¤¥á¡¼¥¸[½Ðŵ¡§Æâ³ÕÉÜ]
¡¡Ë̸ý¥Æ¥é¥¹¤Î²¼¤Ë¤ÏÅìÀ¾Êý¸þ¤ËÄ̤êÈ´¤±¤é¤ì¤ëË̦ͳÄÌÏ©¤¬À°È÷¤µ¤ì¤Þ¤¹¡£

Ãæ±û²°¾å¹¾ì¤Î¥¤¥á¡¼¥¸[½Ðŵ¡§Æâ³ÕÉÜ]
¡¡Æî³¹¶è¤ÎÃæ±û¤ËÀ°È÷¤µ¤ì¤ëÃæ±û²°¾å¹¾ì¤Î´°À®Í½ÁۿޤǤ¹¡£

Ãæ±û²°¾å¹¾ì¤Î¥¤¥á¡¼¥¸[½Ðŵ¡§Æâ³ÕÉÜ]
¡¡Ãæ±û²°¾å¹¾ì¤Ë¤ÏÎФ¢¤Õ¤ì¤ë¶õ´Ö¤âÀ°È÷¤µ¤ì¤Þ¤¹¡£

Æî²°¾å¹¾ì¤Î¥¤¥á¡¼¥¸[½Ðŵ¡§Æâ³ÕÉÜ]
¡¡Æîü¤ËÀ°È÷¤µ¤ì¤ëÆî²°¾å¹¾ì¤«¤é¤ÏÉÊÀî±ØÆî¦¤Î·Ê¿§¤ò˾¤á¤ë¤è¤¦¤Ë¤Ê¤ê¤Þ¤¹¡£

¹ñÆ»¾å¶õ¥Ç¥Ã¥¡ÊË̦¡Ë¤Î¥¤¥á¡¼¥¸[½Ðŵ¡§Æâ³ÕÉÜ]
¡¡Æ±ºÆ³«È¯¤ÏÂè°ìµþÉ;å¶õ¤ËÀ°È÷¤µ¤ì¤ë¹ñÆ»¾å¶õ¥Ç¥Ã¥¤Ë·Ò¤¬¤ê¤Þ¤¹¡£

¥Ç¥Ã¥¥ì¥Ù¥ë¤È¥À¥¤¥Ð¡¼¥·¥Æ¥£¥×¥é¥Ã¥È¥Õ¥©¡¼¥à¤ò¤Ä¤Ê¤°Î©ÂβóÍ·¶õ´Ö¤Î¥¤¥á¡¼¥¸[½Ðŵ¡§Æâ³ÕÉÜ]
¡¡Æî³¹¶è(Æî-a)¤ËÀ°È÷¤µ¤ì¤ëΩÂβóÍ·¶õ´Ö¤Î´°À®Í½ÁۿޤǤ¹¡£

¥¤¥á¡¼¥¸¥Ñ¡¼¥¹[½Ðŵ¡§Æâ³ÕÉÜ]
¡¡À¾Â¦¤«¤é¸«¤¿Ä¶¹âÁØ¥Ó¥ëÉô¤Î´°À®Í½ÁۿޤǤ¹¡£º¸¤¬Ë̳¹¶è¤Ç±¦¤¬Æî³¹¶è¤Ç¤¹¡£

¥¤¥á¡¼¥¸¥Ñ¡¼¥¹[½Ðŵ¡§¹Á¶èµÄ²ñ]
¡¡ÆîÅ즤«¤é¸«¤ë¤È´°Á´¤ËÁ¥¤Î·Á¤È¤Ê¤Ã¤Æ¤¤¤ë¤³¤È¤¬¤ï¤«¤ê¤Þ¤¹¡£Á¥¼óÉôʬ¤Î¥Ó¥ë¤Ï¥Û¥Æ¥ë¤Ë¤Ê¤ê¤Þ¤¹¡£

¥¤¥á¡¼¥¸¥Ñ¡¼¥¹[½Ðŵ¡§¹Á¶èµÄ²ñ]
¡¡Æî¦¤ÎÁ¥¼óÉôʬ¤«¤éÅż֤¬½ÐÆþ¤ê¤·¤Þ¤¹¡£
ΩÌÌ¿Þ

Æî-aΩÌ̿ޡÊÀ¾Â¦Î©Ì̿ޡË[½Ðŵ¡§¹Á¶è]

Æî-aΩÌ̿ޡÊÅì¦ΩÌ̿ޡË[½Ðŵ¡§¹Á¶è]

Æî-aΩÌ̿ޡÊË̦ΩÌ̿ޡË[½Ðŵ¡§¹Á¶è]

Æî-aΩÌÌ¿Þ¡ÊÆî¦ΩÌ̿ޡË[½Ðŵ¡§¹Á¶è]

Æî-bΩÌ̿ޡÊÀ¾Â¦Î©Ì̿ޡË[½Ðŵ¡§¹Á¶è]

Æî-bΩÌ̿ޡÊÅì¦ΩÌ̿ޡË[½Ðŵ¡§¹Á¶è]

Æî-bΩÌ̿ޡÊË̦ΩÌ̿ޡË[½Ðŵ¡§¹Á¶è]

Æî-bΩÌÌ¿Þ¡ÊÆî¦ΩÌ̿ޡË[½Ðŵ¡§¹Á¶è]

Ë̳¹¶è ·×²è·úÃÛʪΩÌ̿ޡÊÀ¾Â¦¡Ë[½Ðŵ¡§¹Á¶è]

Ë̳¹¶è ·×²è·úÃÛʪΩÌ̿ޡÊÅ즡Ë[½Ðŵ¡§¹Á¶è]

Ë̳¹¶è ·×²è·úÃÛʪΩÌ̿ޡÊË̦¡Ë[½Ðŵ¡§¹Á¶è]

Ë̳¹¶è ·×²è·úÃÛʪΩÌÌ¿Þ¡ÊÆî¦¡Ë[½Ðŵ¡§¹Á¶è]
°ÌÃÖ¿Þ

Æî³¹¶è ·×²èÃϰÌÃֿޡʾܺ١Ë[½Ðŵ¡§¹Á¶è]
¡¡Æî³¹¶è¤ÏµþµÞÉÊÀî±Ø¤ÈµþµÞËÜÀþ¤ÎÀþÏ©¤Îľ¾å¤Ç±ØÄ¾·ë¤È¤Ê¤ê¡¢JRÉÊÀî±Ø¤ä¤³¤ì¤«¤é·úÀߤµ¤ì¤ëÅìµþ¥á¥È¥íÆîËÌÀþ¤Î¿·±Ø¤Ë¤âľ·ë¤·¤Þ¤¹¡£

Ë̳¹¶è ·×²èÃϰÌÃֿޡʾܺ١Ë[½Ðŵ¡§¹Á¶è]
¡¡Ë̳¹¶è¤ÏJRÉÊÀî±Ø¤Î¹âÎØ¸ý(À¾¸ý)Á°¤Î¥í¡¼¥¿¥ê¡¼¤¬¤¢¤Ã¤¿¾ì½ê¤È¤½¤ÎË̦¡¢¤½¤·¤ÆÀþÏ©¤Îľ¾å¤Ë°ÌÃÖ¤·¤Æ¤ª¤ê¡¢¤³¤Á¤é¤â±ØÄ¾·ë¤È¤Ê¤ê¤Þ¤¹¡£¤Þ¤¿¡¢Âè°ìµþÉͤÎľ¾å¤ËÀ°È÷¤µ¤ì¤ëÂ絬ÌϤʹñÆ»¾å¶õ¥Ç¥Ã¥¤Ë¤âÀܳ¤·¤Þ¤¹¡£

Æî³¹¶è Êâ¹Ô¼Ô¤Î¼ç¤ÊÄ̹ԥ롼¥È¿Þ[½Ðŵ¡§¹Á¶è]
¡¡¥Ó¥ëÆâ¤Ë¤Ï´ÓÄÌÄÌÏ©¤ä¼«Í³ÄÌÏ©¤¬À°È÷¤µ¤ì¤Þ¤¹¡£

Ë̳¹¶è Êâ¹Ô¼Ô¤Î¼ç¤ÊÄ̹ԥ롼¥È¿Þ[½Ðŵ¡§¹Á¶è]
¡¡Æ±ºÆ³«È¯¤Ç¤ÏµþµÞ¤ÈJR¤Î²þ»¥¤¬¤¤¤¯¤Ä¤«¿·Àߤµ¤ì¤Þ¤¹¡£ÊØÍø¤Ë¤Ê¤ëÈ¿ÌÌ¡¢´·¤ì¤Æ¤¤¤Ê¤¤¿Í¤Ë¤È¤Ã¤Æ¤Ï½Ð¤ë²þ»¥¤Ë¤è¤Ã¤ÆÌ¤äƤ·¤Þ¤¦±Ø¤Ë¤Ê¤ê¤½¤¦¤Ç¤¹¡£

ÇÛÃÖ¥¤¥á¡¼¥¸[½Ðŵ¡§GoogleMap¤Ë²ÃÉ®]
¡¡ÀÖ¤¤Ìֳݤ±¤ò¤·¤¿¡ÖÉÊÀî±Ø³¹¶èÃ϶è¡×¤Î¤À¤¤¤¿¤¤¤Î°ÌÃ֤Ǥ¹¡£¸½ºß¤ÎÉÊÀî±Ø¼þÊÕ¤ÏÅ즤ËÂ絬ÌϤÊ͹âÁإӥ뷲¤¬¹¤¬¤Ã¤Æ¤¤¤Þ¤¹¤¬¡¢Æ±ºÆ³«È¯¤ò´Þ¤á¤Æ¤³¤ì¤«¤é¤ÏÀ¾Â¦¤ÎºÆ³«È¯¤¬³èȯ¤Ë¤Ê¤ê¤Þ¤¹¡£¤½¤·¤ÆË̦¤Ë¤Ï¹âÎØ¥²¡¼¥È¥¦¥§¥¤±Ø¥¨¥ê¥¢¤Þ¤Ç͹âÁإӥ뤬Ϣ¤Ê¤ë·×²è¤È¤Ê¤Ã¤Æ¤¤¤Þ¤¹¡£
¸½¶·

¡¡2023ǯ11·î3Æü¤Ë»£±Æ¤·¤¿¡Ö(²¾¾Î)ÉÊÀî±Ø³¹¶èÃ϶èË̳¹¶è¿·Ã۷ײè¡×(ÃϾå28³¬¡¢¹â¤µÌó150m)¤Î·×²èÃÏÊýÌ̤Ǥ¹¡£¤³¤Á¤é¤Î»ö¶È¼Ô¤ÏJRÅìÆüËܤȤʤäƤª¤ê¡¢ÀþÏ©¾å¶õ¤Ç¤Ï¿Í¹©ÃÏÈפηúÀß¹©»ö¤¬¿Ê¤ó¤Ç¤¤¤Þ¤¹¡£

¡¡2024ǯ3·î2Æü¤ËÂè°ìµþÉͤ˲ͤ«¤ëÊâÆ»¶¶¤«¤é»£±Æ¤·¤¿JRÉÊÀî±ØÊýÌ̤Ǥ¹¡£±Ø¼Ë¤Î²òÂι©»ö¤¬¿Ê¤ó¤ÇµþµÞËÜÀþ¤¬¸«¤¨¤ë¤è¤¦¤Ë¤Ê¤Ã¤Æ¤¤¤Þ¤¹¡£¤³¤ÎÊÕ¤ê¤Þ¤Ç¤¬Ë̳¹¶è¤Ç¡¢±¦Â¦¤¬Æî³¹¶è¤Ë¤Ê¤ê¤Þ¤¹¡£
¡¡¤Á¤Ê¤ß¤ËJRÉÊÀî±Ø¤Ï¡ÖÉÊÀî±ØË̸ý²þÎÉ¡¦±Ø¥Ó¥ëÀ°È÷¡×¤È¤·¤ÆÃϾå10³¬¡¢Ãϲ¼1³¬¡¢ºÇ¹â¹â¤µ58.21Ö¡¢±ä¾²ÌÌÀÑ5Ëü780.24֤αإӥ뤬·úÀߤµ¤ì¤Þ¤¹¡£

¡¡2023ǯ11·î3Æü¤ËÊâÆ»¶¶¤«¤é»£±Æ¤·¤¿¡Ö(²¾¾Î)ÉÊÀî±Ø³¹¶èÃ϶èÆî³¹¶è¿·Ã۷ײè¡×(ÃϾå28³¬¡¢¹â¤µÌó150m)ÊýÌ̤Ǥ¹¡£¤³¤³¤«¤éÀ褬Æî³¹¶è¤Ë¤Ê¤ê¤Þ¤¹¡£

¡¡°ÊÁ°»£±Æ¤·¤¿Æî³¹¶è¤ÎÆîü¤¢¤¿¤ê¤Ç¤¹¡£¤³¤Á¤é¦¤¬µðÂç¤ÊÁ¥¤Î·Á¤ò¤·¤¿¥Ç¥¶¥¤¥ó¤ÎÁ¥¼óÉôʬ¤È¤Ê¤ê¤Þ¤¹¡£
ÃÏ¿Þ
ʪ·ï³µÍסÊË̳¹¶è¡Ë

Ë̳¹¶è ¹©»ö¹©Äø[½Ðŵ¡§¹Á¶è]
¢£Êª·ï³µÍסÊË̳¹¶è¡Ë¢£
»ö¶È̾¡§(²¾¾Î)ÉÊÀî±Ø³¹¶èÃ϶è Ë̳¹¶è¿·ÃÛ¹©»ö
½êºßÃÏ¡§ÅìµþÅÔ¹Á¶è¹âÎØ£³ÃúÌÜ¡¦¹ÁÆî£²ÃúÌܤΰìÉô
¸òÄÌ¡§JR³ÆÀþ¡ÖÉÊÀî¡×±Ø
¡¡¡¡¡¡µþµÞËÜÀþ¡ÖÉÊÀî¡×±Ø
ÍÑÅÓ¡§»ö̳½ê¡¢Å¹ÊÞ¡¢±Ø»ÜÀß¡¢Ãó¼Ö¾ìÅù
³¬¿ô¡§ÃϾå28³¬¡¢Ãϲ¼3³¬
¹â¤µ¡§Ìó150m
ÉßÃÏÌÌÀÑ¡§Ìó14,700Ö
·úÃÛÌÌÀÑ¡§¡Ý
±ä¾²ÌÌÀÑ¡§Ìó165,000Ö
»ö¶È¼çÂΡ§ÅìÆüËÜιµÒÅ´Æ»
´ðËÜÀ߷ס§JRÅìÆüËÜ·úÃÛÀ߷ס¦ÆüËÜÀ߷ס¦Æü·úÀß·×JV
¹©´ü¡§2025ǯÅÙÃ幩¡Á2030ǯÅÙ½×¹©Í½Äê
ʪ·ï³µÍ×¡ÊÆî³¹¶è¡Ë

Æî³¹¶è ¹©»ö¹©Äø[½Ðŵ¡§¹Á¶è]
¡¡ºÇ½é¤Î4ǯȾ¤¬ÃϾå¶íÂι©»ö¤È¤Ê¤Ã¤Æ¤¤¤Þ¤¹¤¬¡¢¤³¤Î´ü´Ö¤Ï¼ç¤Ë±Øµ¡Ç½¤ò°Ý»ý¤¹¤ë¤¿¤á¤Î¹©»ö¤Ë¤Ê¤ë¤«¤È»×¤¤¤Þ¤¹¡£
¢£Êª·ï³µÍ×¡ÊÆî³¹¶è¡Ë¢£
»ö¶È̾¡§(²¾¾Î)ÉÊÀî±Ø³¹¶èÃÏ¶è Æî³¹¶è¿·ÃÛ¹©»ö
½êºßÃÏ¡§ÅìµþÅÔ¹Á¶è¹âÎØ£³ÃúÌÜ¡¦¹ÁÆî£²ÃúÌܤΰìÉô
¸òÄÌ¡§JR³ÆÀþ¡ÖÉÊÀî¡×±Ø
¡¡¡¡¡¡µþµÞËÜÀþ¡ÖÉÊÀî¡×±Ø
ÍÑÅÓ¡§»ö̳½ê¡¢Å¹ÊÞ¡¢½ÉÇñ»ÜÀß¡¢½¸²ñ¾ì¡¢±Ø»ÜÀß¡¢Ãó¼Ö¾ì¡¢ÃóÎØ¾ìÅù¡ÊÆî-a¡Ë
¡¡¡¡¡¡»ö̳½ê¡¢Å¹ÊÞ¡¢Ãó¼Ö¾ì¡¢ÃóÎØ¾ìÅù¡ÊÆî-b¡Ë
³¬¿ô¡§ÃϾå28³¬¡¢Ãϲ¼2³¬¡ÊÆî-a¡Ë
¡¡¡¡¡¡ÃϾå9³¬¡¢Ãϲ¼1³¬¡ÊÆî-b¡Ë
¹â¤µ¡§Ìó150m¡ÊÆî-a¡Ë
¡¡¡¡¡¡Ìó47m¡ÊÆî-b¡Ë
ÉßÃÏÌÌÀÑ¡§Ìó17,300Ö¡ÊÆî-a¡Ë
¡¡¡¡¡¡¡¡¡¡Ìó1,500Ö¡ÊÆî-b¡Ë
·úÃÛÌÌÀÑ¡§¡Ý
±ä¾²ÌÌÀÑ¡§Ìó201,000Ö¡ÊÆî-a¡Ë
¡¡¡¡¡¡¡¡¡¡Ìó8,300Ö¡ÊÆî-b¡Ë
»ö¶È¼çÂΡ§µþÉ͵޹ÔÅÅÅ´
´ðËÜÀ߷ס§Æü·úÀß·×
¹©´ü¡§2025ǯÅÙÃ幩¡Á2036ǯÅÙ½×¹©Í½Äê¡ÊÆî-a¡Ë
¡¡¡¡¡¡2030ǯÅÙÃ幩¡Á2032ǯÅÙ½×¹©Í½Äê¡ÊÆî-b¡Ë
½Ðŵ
¢§´Ä¶¥¢¥»¥¹¥á¥ó¥È¡§¹Á¶è¡Ê2023ǯ3·î15Æü¡Ë
¡¦¹Á¶è´Ä¶±Æ¶ÁÄ´ºº¼Â»ÜÍ׹ˤ˴ð¤Å¤¯´Ä¶±Æ¶ÁÄ´ºº½ñ°Æ¤Î½ÄÍ÷¡Ú(²¾¾Î)ÉÊÀî±Ø³¹¶èÃ϶èÆî³¹¶è¿·Ã۷ײè¡Û
¡¦¹Á¶è´Ä¶±Æ¶ÁÄ´ºº¼Â»ÜÍ׹ˤ˴ð¤Å¤¯´Ä¶±Æ¶ÁÄ´ºº½ñ°Æ¤Î½ÄÍ÷¡Ú(²¾¾Î)ÉÊÀî±Ø³¹¶èÃ϶èË̳¹¶è¿·Ã۷ײè¡Û
¢¨½ÄÍ÷´ü´Ö¡§2024ǯ3·î11Æü¡Á2024ǯ4·î11Æü¤Þ¤Ç
¢§¹Á¶èµÄ²ñ¡§·úÀß¾ïǤ°Ñ°÷²ñ¡Ê2023ǯ11·î6Æü¡Ë
»ñÎÁ7_ÉÊÀî±Ø¼þÊÕÃ϶èÃ϶è·×²è¤ÎÊѹ¹¡Ê°Æ¡Ë¤Ë¤Ä¤¤¤Æ (PDF 2,624KB)
¢§ÅìÆüËÜιµÒÅ´Æ»¡§¥Ë¥å¡¼¥¹¥ê¥ê¡¼¥¹¡Ê2023ǯ8·î29Æü¡Ë
ÉÊÀî±Ø³¹¶èÃ϶è¤Ë¤ª¤±¤ë³«È¯·×²è¤Ë¤Ä¤¤¤Æ
¢§Æâ³ÕÉÜ¡§Âè26²ó¡¡ÅìµþÅÔÅÔ»ÔºÆÀ¸Ê¬²Ê²ñ¡¡ÇÛÉÛ»ñÎÁ¡Ê2023ǯ8·î25Æü¡Ë
»ñÎÁ£± ÅÔ»ÔºÆÀ¸ÆÃÊÌÃ϶è¡ÊÉÊÀî±Ø³¹¶èÃ϶è¡ËÅԻԷײè¡ÊÁǰơˤγµÍ×
- ¥«¥Æ¥´¥ê
- ¹Á¶è







