
´°À®Í½ÁÛ¿Þ[½Ðŵ¡§»°É©ÃϽê¥ê¥¢¥ë¥¨¥¹¥Æ¡¼¥È¥µ¡¼¥Ó¥¹]
¡¡ÃÓÂޤǷúÀßÃæ¤Î¡ÖIT TOWER TOKYO¡×(ÃϾå27³¬¡¢¹â¤µ140.124m)¤Î´°À®Í½ÁۿޤǤ¹¡£·úÀßÃϤÏÃÓÂޥޥ륤¤ÎÀ×ÃϤÇÄãÁØÉô¤Ë¾¦¶È»ÜÀߤ¬Æþ¤ë¥ª¥Õ¥£¥¹¥Ó¥ë¤È¤Ê¤ê¡¢¥¨¥Á¥«ÃÓÂÞ¤Ëľ·ë¤¹¤ë¤³¤È¤ÇÃÓÂޤγƱؤˤâ·Ò¤¬¤ê¤Þ¤¹¡£¤³¤Îµ»ö¤Ç¤ÏƱ¥Ó¥ë¤Î³µÍפä·úÀß¾õ¶·¡Ê2024ǯ2·î17Æü»þÅÀ¡Ë¡¢ÃÏ¿ÞÅù¤òºÜ¤»¤Æ¤¤¤Þ¤¹¡£
IT TOWER TOKYO¤Ë¤Ä¤¤¤Æ

¥Õ¥í¥¢¹½À®[½Ðŵ¡§TOKYO BEST OFFICE]
¡¡¡ÖIT TOWER TOKYO¡×¤ÏÃÓÂÞ±ØÀ¾¸ý¤Ë¤¢¤Ã¤¿¡ÖÃÓÂޥޥ륤¡×À×ÃϤΥª¥Õ¥£¥¹¥Ó¥ë¤Ç¡¢µ¬ÌϤÏÃϾå27³¬¡¢Ãϲ¼4³¬¡¢¹â¤µ140.124m¡¢ÉßÃÏÌÌÀÑ3,348.29Ö¡¢·úÃÛÌÌÀÑ1,944.68Ö¡¢±ä¾²ÌÌÀÑ4Ëü1639.19֤ȤʤäƤ¤¤Þ¤¹¡£·úÃÛ¼ç¤Ï¥¦¥¨¥¹¥È¥²¡¼¥È¡¢À߷׼ԤȻܹ©¼Ô¤ÏÀ¶¿å·úÀߤÇ2025ǯ12·î²¼½Ü¤Î½×¹©Í½Äê¤Ç¤¹¡£
¡¡¥Õ¥í¥¢¹½À®¤ÏÃϲ¼1³¬¤«¤é4³¬¤¬¾¦¶È»ÜÀß¡¢5³¬¤¬¥«¥Õ¥§¥Æ¥ê¥¢¡¢¤½¤·¤Æ6³¬¡Á25³¬¤¬¥ª¥Õ¥£¥¹¥Õ¥í¥¢¤Ç¡¢15³¬¤Ï¥·¥§¥¢¥ª¥Õ¥£¥¹¤Ë¤Ê¤ê¤Þ¤¹¡£

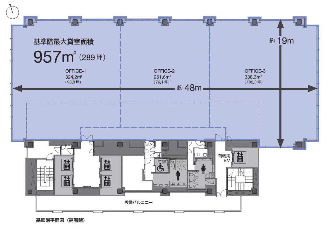
´ð½à³¬Ê¿ÌÌ¿Þ[½Ðŵ¡§»°É©ÃϽê¥ê¥¢¥ë¥¨¥¹¥Æ¡¼¥È¥µ¡¼¥Ó¥¹]
¡¡´ð½à³¬ºÇÂçÂß¼¼ÌÌÀѤÏ957Ö¡Ê289ÄڡˤÇÉý48m¡¢±ü¹Ô¤19m¤Î̵Ãì¶õ´Ö¤È¤Ê¤ê¡¢´´Àþƻϩ¤ËÌ̤·¤¿Ë̦¤¬¥á¥¤¥ó¤Î¥ª¥Õ¥£¥¹¶õ´Ö¤Ë¤Ê¤ê¤Þ¤¹¡£
°ÌÃÖ¿Þ

¡¡¸øÄ°²ñ³«ºÅ¤Î¤ªÃΤ餻¤Ë·ÇºÜ¤µ¤ì¤Æ¤¤¤¿°ÌÃֿޤǤ¹¡£·úÀßÃϤÏJR¡ÖÃÓÂޡױؤÎÀ¾Â¦¤Ç¡¢±Ø¥Á¥«¾¦¶È»ÜÀߤΥ¨¥Á¥«ÃÓÂÞ¤Ëľ·ë¤¹¤ë¤³¤È¤Ç³Æ±Ø¤Ë·Ò¤¬¤ê¤Þ¤¹¡£¤½¤ÎÃæ¤Ç¤âÅìµþ¥á¥È¥íÉûÅÔ¿´Àþ¤ÈÅìµþ¥á¥È¥íͳÚÄ®Àþ¤Î¡ÖÃÓÂޡױؤÏÌܤÎÁ°¤Ë°ÌÃÖ¤·¤Æ¤¤¤Þ¤¹¡£
·úÀß¾õ¶·

¡¡2024ǯ2·î17Æü¤ËÃÓÂÞ±ØÂ¦¤È¤Ê¤ëËÌÅ즤«¤é»£±Æ¤·¤¿¡ÖIT TOWER TOKYO¡×(ÃϾå27³¬¡¢¹â¤µ140.124m)¤Î·úÀßÃϤǤ¹¡£

¡¡1³¬¾²Éôʬ¤Î·úÀߤ¬»Ï¤Þ¤Ã¤Æ¤¤¤¿¤Î¤Ç¡¢¤½¤í¤½¤íÃϾåÉô¤Î·úÀߤâ»Ï¤Þ¤ë¤Î¤«¤â¤·¤ì¤Þ¤»¤ó¡£

¡¡Ë̦¤«¤é»£±Æ¡£¤³¤Á¤é¤ÎË̦¤¬¥ª¥Õ¥£¥¹¥Õ¥í¥¢¤Î¥á¥¤¥ó¤È¤Ê¤ê¤Þ¤¹¡£

¡¡ËÌÀ¾Â¦¤«¤é»£±Æ¡£º¸¤ÎÊý¤¬ÃÓÂÞ±ØÂ¦¤È¤Ê¤ê¤Þ¤¹¤¬¡¢ÃÓÂÞ±ØÁ°¤Î¡ÖÃÓÂÞ±ØÀ¾¸ýÃ϶è¡×¤Ç¤ÏĶÂ絬ÌϺƳ«È¯¤¬·×²è¤µ¤ì¤Æ¤ª¤ê¡¢ÃϾå50³¬¡¦¹â¤µÌó270m¡¢ÃϾå41³¬¡¦¹â¤µÌó220m¡¢ÃϾå33³¬¡¦¹â¤µÌó185m¤Î¥ª¥Õ¥£¥¹¤ä¥Û¥Æ¥ë¡¢¾¦¶È»ÜÀß¡¢¶¦Æ±½»ÂðÅù¤¬·úÀßͽÄê¤È¤Ê¤Ã¤Æ¤¤¤Þ¤¹¡£
¡¡¤½¤Î¤¿¤á¡ÖIT TOWER TOKYO¡×¤â´Þ¤á¤ÆÃÓÂÞ¤ÎÀ¾¸ý¦¤Ë¿·¤¿¤Ê͹âÁإӥ뷲¤¬½Ð¸½¤¹¤ë¤³¤È¤Ë¤Ê¤ê¤Þ¤¹¡£

¡¡ÆîÀ¾Â¦¤«¤é»£±Æ¡£·úÀßÃϤÏÃÓÂޥޥ륤¤ÎÀ×ÃϤǻö¶È̾¤Ï¡Ö(²¾¾Î)ÃÓÂÞÀ¾¸ý¥×¥í¥¸¥§¥¯¥È¡×¤È¤Ê¤Ã¤Æ¤¤¤Þ¤¹¡£

¡¡¥²¡¼¥È¤¬³«¤¤¤Æ¤¤¤Þ¤·¤¿¤¬Ãæ¤Ï¤Û¤È¤ó¤É¸«¤¨¤Þ¤»¤ó¤Ç¤·¤¿¡£

¡¡ÆîÅ즤«¤é»£±Æ¡£¤¢¤Þ¤êÃíÌܤµ¤ì¤Æ¤¤¤Ê¤¤¥ª¥Õ¥£¥¹¥Ó¥ë¤Ç¤¹¤¬¡¢¹â¤µ140m¤Ï¥¿¥ï¥Þ¥ó¤À¤È40³¬·ú¤ÆÁêÅö¤Î¹â¤µ¤Ç¡¢ÃÓÂÞ¥¨¥ê¥¢¤Ç¤â¥È¥Ã¥×10¤ËÆþ¤ë¹â¤µ¤Î·úʪ¤È¤Ê¤ê¤Þ¤¹¡£
ÃÏ¿Þ
ʪ·ï³µÍ×

¡¡·úÃ۷ײè¤Î¤ªÃΤ餻¤Ç¤¹¡£
¢£Êª·ï³µÍ×¢£
̾¾Î¡§IT TOWER TOKYO
»ö¶È̾¡§(²¾¾Î)ÃÓÂÞÀ¾¸ý¥×¥í¥¸¥§¥¯¥È
½êºßÃÏ¡§ÅìµþÅÔËÅç¶èÀ¾ÃÓÂÞ»°ÃúÌÜ28-4,5,6,9,10
¸òÄÌ¡§JR¡¦ÅìÉðÅ´Æ»¡¦À¾ÉðÅ´Æ»¡¦Åìµþ¥á¥È¥í¡ÖÃÓÂÞ¡×±Ø
ÍÑÅÓ¡§»ö̳½ê¡¢Å¹ÊÞ¡¢¼«Æ°¼Ö¼Ö¸Ë
³¬¿ô¡§ÃϾå27³¬¡¢Ãϲ¼4³¬
¹â¤µ¡§140.124m
¹½Â¤¡§Å´¹ü¤ °ìÉôÅ´¹üÅ´¶Ú¥³¥ó¥¯¥ê¡¼¥È¤¡¢À©¿Ì¹½Â¤
´ðÁù©Ë¡¡§¹ºÊ»ÍÑľÀÜ´ðÁÃ
ÉßÃÏÌÌÀÑ¡§3,348.29Ö
·úÃÛÌÌÀÑ¡§1,944.68Ö
±ä¾²ÌÌÀÑ¡§41,639.19Ö
·úÃۼ硧¥¦¥¨¥¹¥È¥²¡¼¥È
Àß·×¼Ô¡§À¶¿å·úÀß
»Ü¹©¼Ô¡§À¶¿å·úÀß
¹©´ü¡§2023ǯ1·î¾å½ÜÃ幩¡Á2025ǯ12·î²¼½Ü½×¹©Í½Äê
½Ðŵ
¢§»°É©ÃϽê¥ê¥¢¥ë¥¨¥¹¥Æ¡¼¥È¥µ¡¼¥Ó¥¹
£É£Ô £Ô£Ï£×£Å£Ò £Ô£Ï£Ë£Ù£Ï
¢§TOKYO BEST OFFICE
IT TOWER TOKYO¡Êµì¡§(²¾¾Î)ÃÓÂÞÀ¾¸ý¥×¥í¥¸¥§¥¯¥È¡¦ÃÓÂޥޥ륤À×ÃÏ¡Ë
- ¥«¥Æ¥´¥ê
- ËÅç¶è







