
¡¡JR´ØÆâ±ØÁ°¤Î¡Ö²£ÉͻԵì»ÔÄ£¼Ë³¹¶è³èÍÑ»ö¶È¡×(ÃϾå33³¬¡¢¹â¤µ169m)¤Î·úÀßÃϤǤ¹¡£»£±Æ¤·¤¿2024ǯ1·î13Æü¤Ë¤Ï¥¿¥ï¡¼¥¯¥ì¡¼¥ó¤¬1´ðÀßÃÖ¤µ¤ì¤Þ¤·¤¿¡£¤³¤³¤Ï°Üž¤·¤¿¡Ö²£ÉͻԻÔÄ£¼Ë¡×À×ÃϤκƳ«È¯¤Ç¡¢¥ª¥Õ¥£¥¹¤ä¾¦¶È»ÜÀß¡¢¥é¥¤¥Ö¥Ó¥å¡¼¥¤¥ó¥°¥¢¥ê¡¼¥Ê¡¢¥Û¥Æ¥ë¤Ê¤É¤Ç¹½À®¤µ¤ì¤ëÊ£¹ç»ÜÀߤˤʤê¤Þ¤¹¡£¤³¤Îµ»ö¤Ç¤ÏƱºÆ³«È¯¤Î³µÍפä·úÀß¾õ¶·¡¢ÃÏ¿ÞÅù¤òºÜ¤»¤Æ¤¤¤Þ¤¹¡£
²£ÉͻԵì»ÔÄ£¼Ë³¹¶è³èÍÑ»ö¶È¤Ë¤Ä¤¤¤Æ

³¹¶èÁ´ÂÎ¥¤¥á¡¼¥¸[½Ðŵ¡§¼¯Åç·úÀß]
¡¡¡Ö²£ÉͻԵì»ÔÄ£¼Ë³¹¶è³èÍÑ»ö¶È¡×¤ÏÇÏ¼ÖÆ»±ØÁ°¤Ë°Üž¤·¤¿²£ÉÍ»ÔÄ£¼ËÀ×ÃϤκƳ«È¯¤Ç¡¢µ¬ÌϤÏÃϾå33³¬¡¢Ãϲ¼1³¬¡¢¹â¤µ169m¡¢ÉßÃÏÌÌÀÑ1Ëü6522.02Ö¡¢·úÃÛÌÌÀÑ1Ëü439Ö¡¢±ä¾²ÌÌÀÑ12Ëü8567֤ȤʤäƤ¤¤Þ¤¹¡£
¡¡·úÃÛ¼ç¤Ï»°°æÉÔÆ°»º¤òÂåɽ¼Ô¤È¤¹¤ë¥°¥ë¡¼¥×¤Ç¹½À®°÷¤Ï¼¯Åç·úÀß¡¢µþÉ͵޹ÔÅÅÅ´¡¢Âè°ìÀ¸Ì¿Êݸ±¡¢ÃÝÃæ¹©Ì³Å¹¡¢¥Ç¥£¡¼¡¦¥¨¥Ì¡¦¥¨¡¼¡¢ÅìµÞ¡¢À߷׼ԤȻܹ©¼Ô¤Ï¼¯Åç·úÀߤÈÃÝÃæ¹©Ì³Å¹¤Ç2022ǯ7·îÃ幩¡¢2025ǯ12·î31Æü½×¹©Í½¡¢2026ǯ½Õ¤Î¥°¥é¥ó¥É¥ª¡¼¥×¥óͽÄê¤È¤Ê¤Ã¤Æ¤¤¤Þ¤¹¡£¥¿¥ï¡¼Åï¤Î±¦Â¦¤ÎÄãÁØ¥Ó¥ë¤Ï¼ÌîÆ£¸ãºîÉʤǤ¢¤ë¹ÔÀ¯Åï¤Ç²òÂΤϤ»¤º¤Ë¡¢À±Ìî¥ê¥¾¡¼¥È¤¬±¿±Ä¤¹¤ë¥Û¥Æ¥ë¡ÖOMO7²£É͡פȤ·¤ÆÊݸ³èÍѤµ¤ì¤Þ¤¹¡£

³µÍ×[½Ðŵ¡§¼¯Åç·úÀß]
¡¡¥¿¥ï¡¼Åï¤Î¥Õ¥í¥¢¹½À®¤Ï3¡Á5³¬¤¬¥¨¥Ç¥å¥Æ¥¤¥á¥ó¥È»ÜÀß¡¢6¡Á8³¬¤¬¿·»º¶ÈÁϤ»ÜÀß¡¦¥¦¥§¥ë¥Í¥¹¥»¥ó¥¿¡¼¡¢11¡Á33³¬¤¬¥ª¥Õ¥£¥¹¡¦Âç³Ø¤Ç11³¬¤Ë¥¹¥«¥¤¥í¥Ó¡¼¤¬ÇÛÃÖ¤µ¤ì¤Þ¤¹¡£¥¨¥Ç¥å¥Æ¥¤¥ó¥á¥ó¥È»ÜÀߤÏÌó6,800Öµ¬ÌϤÇÍ·¤Ó¤È¥Æ¥¯¥Î¥í¥¸¡¼¤òÍ»¹ç¤·¡¢³Ú¤·¤ß¤Ê¤¬¤é¿´¤È¿ÈÂΤÎÀ®Ä¹¤ò¥µ¥Ý¡¼¥È¤¹¤ë¿·¤·¤¤Âθ³·¿»ÜÀߤȤʤꡢ¿·»º¶ÈÁϤ»ÜÀߤϲ£ÉͻԺÇÂçµé¤Î¥Ó¥¸¥Í¥¹¥¤¥Î¥Ù¡¼¥·¥ç¥ó¤Î¾ì¤Ç¡¢´ë¶È¤¬ÃíÌܤ¹¤ë¥¢¥¤¥Ç¥¢¤ò¤è¤ê¶ñÂ⽤¹¤ë¤¿¤á¤Î¥³¥ï¡¼¥¥ó¥°¥ë¡¼¥à¡¢¥¤¥Ù¥ó¥È¥¹¥Ú¡¼¥¹¡¢¥ß¡¼¥Æ¥£¥ó¥°¥ë¡¼¥à¡¢¾®µ¬ÌÏ¥ª¥Õ¥£¥¹¤¬À°È÷¤µ¤ì¤Þ¤¹¡£
¡¡¥¿¥ï¡¼ÅïÁ°¤Ë¤Ï¥é¥¤¥Ö¥Ó¥å¡¼¥¤¥ó¥°¥¢¥ê¡¼¥Ê¤ä¾¦¶ÈŹÊޤȤʤ뤯¤¹¤Î¤¥Æ¥é¥¹¤¬ÇÛÃÖ¤µ¤ì¡¢ÄãÁؤεì»ÔÄ£¼Ë¹ÔÀ¯Åï¤ÏÀ±Ìî¥ê¥¾¡¼¥È¤¬±¿±Ä¤¹¤ë¥Û¥Æ¥ë¡ÖOMO7²£É͡פȤʤꡢ¾¦¶ÈŹÊޤΤߤʤȥƥ饹¤âÊ»Àߤµ¤ì¤Þ¤¹¡£

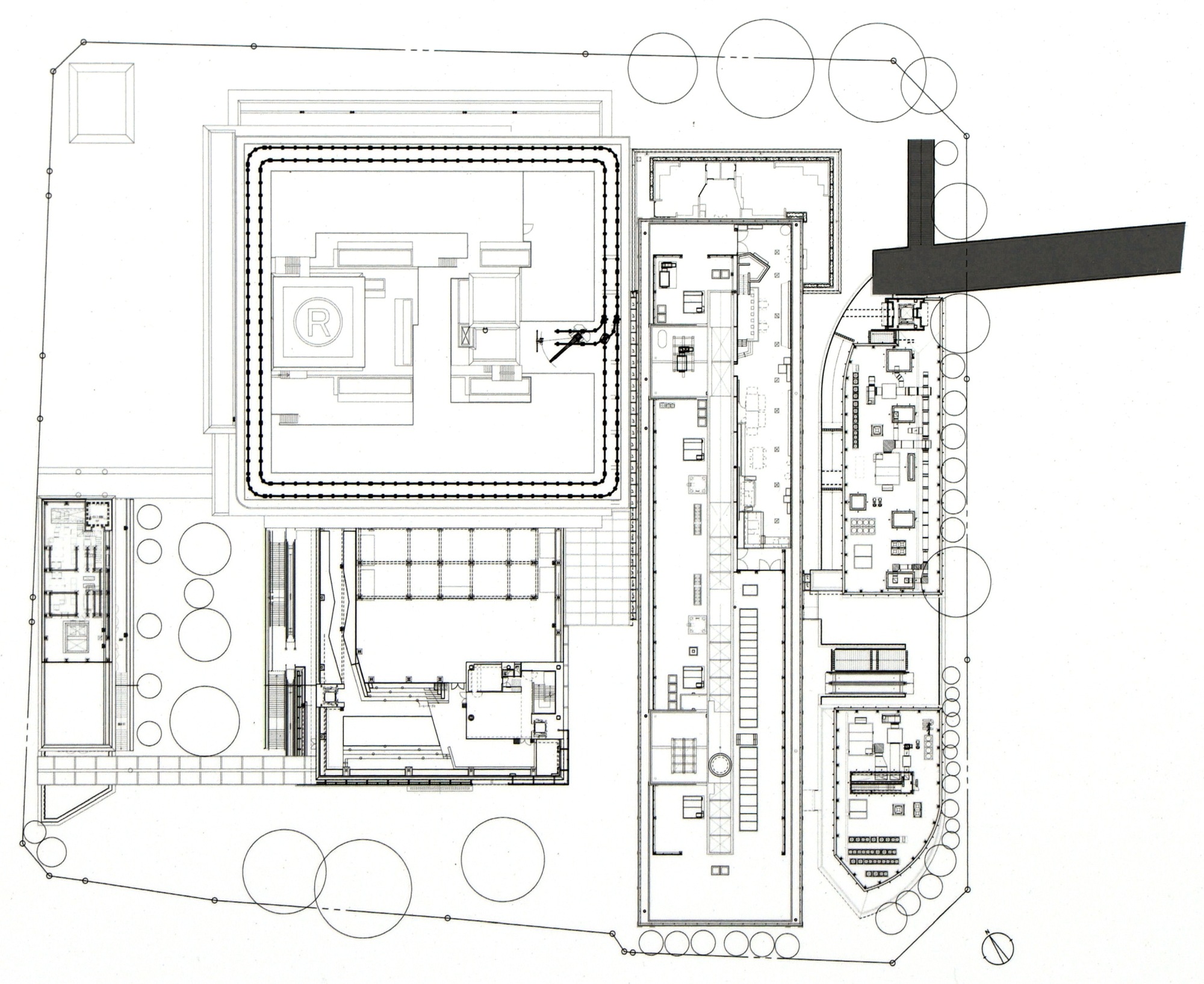
³¹¶èÇÛÃÖ¿Þ[½Ðŵ¡§¼¯Åç·úÀß]
¡¡ÉßÃÏÆâ¤Ë¤Ï±ØÁ°¹¾ì¤È¤Ê¤ë¡Ö´ØÆâ¥Õ¥í¥ó¥È¡×¤¬À°È÷¤µ¤ì¡¢²£ÉÍ¥¹¥¿¥¸¥¢¥à¦¤Î¤ß¤Ê¤ÈÂçÄ̤ê±è¤¤¤ËÀ°È÷¤µ¤ì¤ë¡Ö¤ß¤Ê¤È¥Æ¥é¥¹¡×¤«¤é¤Ï²£ÉÍ¥¹¥¿¥¸¥¢¥à¡¦²£É͸ø±àÊýÌ̤ȷҤ¬¤ë¥Ç¥Ã¥¤¬¿·Àߤµ¤ì¤Þ¤¹¡£
¡¡¤Þ¤¿¡¢À¾Â¦(º¸Â¦)¤Ç·×²è¤µ¤ì¤Æ¤¤¤ë¡Ö(²¾¾Î)´ØÆâ±ØÁ°¹ÁÄ®Ã϶èÂè°ì¼ï»Ô³¹ÃϺƳ«È¯»ö¶È¡×(ÃϾå30³¬¡¢¹â¤µÌó170m)¤ËÀܳ¤¹¤ë¥Ç¥Ã¥¤â·×²è¤µ¤ì¤Æ¤¤¤Þ¤¹¡£

»ÜÀß´°À®¥¤¥á¡¼¥¸[½Ðŵ¡§²£ÉÍ»Ô]
¡¡¤½¤Î¡Ö(²¾¾Î)´ØÆâ±ØÁ°¹ÁÄ®Ã϶èÂè°ì¼ï»Ô³¹ÃϺƳ«È¯»ö¶È¡×(ÃϾå32³¬¡¢ºÇ¹â¹â¤µÌó170m)¤Î´°À®Í½ÁÛ¿Þ(Ãæ±û)¤Ç¤¹¡£º¸¤Ç¤Ï¡Ö(²¾¾Î)´ØÆâ±ØÁ°Ë̸ýÃ϶èÂè°ì¼ï»Ô³¹ÃϺƳ«È¯»ö¶È¡×(ÃϾå24³¬¡¢ºÇ¹â¹â¤µÌó120m)¤â·×²è¤µ¤ì¤Æ¤ª¤ê¡¢¾ÍèŪ¤Ë¤Ï´ØÆâ±ØÁ°¤Ë3Åï¤Î͹âÁإӥ뤬·ú¤ÁʤӤޤ¹¡£

³¹¶èÁ´ÂÎÌë·Ê¥¤¥á¡¼¥¸[½Ðŵ¡§µþÉ͵޹ÔÅÅÅ´]
¡¡ÄãÁØÉô¤ÎÌë·Ê¥¤¥á¡¼¥¸¤Ç¤¹¡£±¦Â¦¤Ç²Ö²Ð¤¬ÂǤÁ¾å¤¬¤Ã¤Æ¤¤¤ë¾ì½ê¤Ï²£ÉÍ¥¹¥¿¥¸¥¢¥à¤Ç¤¹¡£

µì»ÔÄ£¼Ë¹ÔÀ¯Åï ³°´Ñ¥¤¥á¡¼¥¸[½Ðŵ¡§µþÉ͵޹ÔÅÅÅ´]
¡¡²òÂΤ»¤º¤ËÊݸ³èÍѤµ¤ì¤ë¼ÌîÆ£¸ãºîÉʤεì»ÔÄ£¼Ë¹ÔÀ¯Åï¤Ç¤¹¡£¤³¤³¤ÏÀ±Ìî¥ê¥¾¡¼¥È¤Ë¤è¤ëµÒ¼¼¿ôÌó280¼¼¤Î¥Û¥Æ¥ë¡ÖOMO7²£É͡פȤʤê¤Þ¤¹¡£
¡¡OMO¥Ö¥é¥ó¥É¤È¤·¤Æ¤Ï½é¤Î²£ÉͿʽФǡ¢OMO¤Î¸å¤í¤Î¿ô»ú¤Ï¥µ¡¼¥Ó¥¹¤ÎÉý¤òɽ¤·¤Æ¤ª¤ê¡ÖOMO7¡Ê¤ª¤â¤»¤Ö¤ó¡Ë¡×¤Ï¥«¥Õ¥§¡¦¥ì¥¹¥È¥é¥óÅù¤òÈ÷¤¨¤¿ÅԻԤΥé¥ó¥É¥Þ¡¼¥¯¤È¤Ê¤ë¥Õ¥ë¥µ¡¼¥Ó¥¹¥Û¥Æ¥ë¤¬Í½Äꤵ¤ì¤Æ¤¤¤Þ¤¹¡£

¥é¥¤¥Ö¥Ó¥å¡¼¥¤¥ó¥°¥¢¥ê¡¼¥Ê³°´Ñ[½Ðŵ¡§µþÉ͵޹ÔÅÅÅ´]
¡¡±ØÁ°¹¾ì¤È¥é¥¤¥Ö¥Ó¥å¡¼¥¤¥ó¥°¥¢¥ê¡¼¥Ê¤Î´°À®Í½ÁۿޤǤ¹¡£

¥é¥¤¥Ö¥Ó¥å¡¼¥¤¥ó¥°¥¢¥ê¡¼¥Ê³°´Ñ[½Ðŵ¡§¼¯Åç·úÀß]
¡¡Ìó3,000Öµ¬ÌϤȤʤë¥é¥¤¥Ö¥Ó¥å¡¼¥¤¥ó¥°¥¢¥ê¡¼¥Ê¤ÏÆüËܽé¤Î¾ïÀß·¿¤È¤Ê¤ê¡¢¥¹¥Ý¡¼¥Ä¡¦°û¿©¡¦Âç·¿¥¹¥¯¥ê¡¼¥ó¤Ë¤è¤ë¥é¥¤¥ÖÇÛ¿®¤ò³Ú¤·¤à¤³¤È¤¬¤Ç¤¤Þ¤¹¡£

¥¹¥«¥¤¥í¥Ó¡¼¥¤¥á¡¼¥¸[½Ðŵ¡§¼¯Åç·úÀß]
¡¡11¡Á33³¬¤Ï¥ª¥Õ¥£¥¹¥Õ¥í¥¢¤È¤Ê¤ê¡¢11³¬¤Ë¤Ï¥¹¥«¥¤¥í¥Ó¡¼¤¬ÀßÃÖ¤µ¤ì¤Þ¤¹¡£

¥ª¥Õ¥£¥¹¹âÁإХó¥¯Ê¿ÌÌ¿Þ[½Ðŵ¡§¼¯Åç·úÀß]
¡¡¥ª¥Õ¥£¥¹´ð½à³¬¤Ï1¥Õ¥í¥¢2,000ÖĶ¡¢Å·°æ¹â2,800mm¡¢±ü¹Ô¤ºÇÂçÌó18m¤ÎÀ°·Á̵Ãì¶õ´Ö¤È¤Ê¤ê¤Þ¤¹¡£

¥¿¥ï¡¼ÅïÃÇÌÌ¿Þ[½Ðŵ¡§»°°æÉÔÆ°»º]
¡¡¥ª¥Õ¥£¥¹¥Õ¥í¥¢¤ÏÁ´¤Æ11³¬¤Î¥¹¥«¥¤¥í¥Ó¡¼·Ðͳ¤È¤Ê¤ë·×²è¤Ç¡¢°ÊÁ°¤Î¾ðÊ󤫤éÊѤï¤ê¤Ê¤±¤ì¤Ð12¡Á15³¬¤Ë¤ÏÂç³Ø¤¬Æþ¤ê¤Þ¤¹¡£

¡¡¸½ÃϤËÀßÃÖ¤µ¤ì¤¿ÅÔ»Ô·Ê´Ñ·ÁÀ®¹Ô°Ù¤Î¤ªÃΤ餻¤Ë·ÇºÜ¤µ¤ì¤Æ¤¤¤ëÆî¦¤ÎΩÌ̿ޤǤ¹¡£

¡¡Ë̦¤ÎΩÌ̿ޤǤ¹¡£ÄãÁØÉô¤Î¾¯¤·Èô¤Ó½Ð¤¿Éôʬ¤¬11³¬¤Î¥¹¥«¥¤¥í¥Ó¡¼¤Ç¤¹¡£

¡¡ÇÛÃֿޤǤ¹¡£±¦¾å¤Î¹õ¤¤Éôʬ¤¬²£ÉÍ¥¹¥¿¥¸¥¢¥àÊýÌ̤طҤ¬¤ë¥Ç¥Ã¥¤Ç¤¹¡£
°ÌÃÖ¿Þ

°ÌÃÖ¿Þ[½Ðŵ¡§¼¯Åç·úÀß]
¡¡·úÀßÃϤÏJR¡Ö´ØÆâ¡×±Ø¤ÎÌܤÎÁ°¤Ç¡¢²£ÉͻԱÄÃϲ¼Å´¥Ö¥ë¡¼¥é¥¤¡Ö´ØÆâ¡×±Ø¤â¤¹¤°¶á¤¯¤Ë¤¢¤ê¤Þ¤¹¡£¾¯¡¹µ÷Î¥¤Ï¤¢¤ê¤Þ¤¹¤¬¡¢¤ß¤Ê¤Ê¤È¤ß¤é¤¤Àþ¡ÖÆüËÜÂçÄ̤ê¡×±Ø¤âÅÌÊâ·÷¤Ç¤¹¡£
·úÀß¾õ¶·

¡¡2024ǯ1·î13Æü¤ËËÌÅ즤«¤é»£±Æ¤·¤¿¡Ö²£ÉͻԵì»ÔÄ£¼Ë³¹¶è³èÍÑ»ö¶È¡×(ÃϾå33³¬¡¢¹â¤µ169m)¤Î·úÀßÃϤǤ¹¡£¥¿¥ï¡¼Åï¤Î·úÀßÃϤˤϥ¿¥ï¡¼¥¯¥ì¡¼¥ó¤¬1´ðÀßÃÖ¤µ¤ì¤Æ¤¤¤Þ¤·¤¿¡£

¡¡ËÌÀ¾Â¦¤«¤é»£±Æ¡£¤³¤Á¤é¦¤¬¥¿¥ï¡¼Åï¤È¤Ê¤ê¡¢±¦±ü¤ÎJR´ØÆâ±Ø¤Ë¶á¤¤Â¦¤Ë¥é¥¤¥Ö¥Ó¥å¡¼¥¤¥ó¥°¥¢¥ê¡¼¥Ê¤ä¹¾ì¤¬·úÀߤµ¤ì¤Þ¤¹¡£

¡¡JR´ØÆâ±ØÂ¦¤È¤Ê¤ëÆîÀ¾Â¦¤«¤é»£±Æ¡£

¡¡ÆîÅ즤ȤʤëJR´ØÆâ±Ø¤ÎÆî¸ýÁ°¤«¤é»£±Æ¡£

¡¡Å즤μÌîÆ£¸ãºîÉʤǤ¢¤ë¹ÔÀ¯Åï¤Ç¤¹¡£

¡¡¹ÔÀ¯Åï¤Ï²òÂΤϤ»¤º¤ËÀ±Ìî¥ê¥¾¡¼¥È¤¬±¿±Ä¤¹¤ë¥Û¥Æ¥ë¡ÖOMO7²£É͡פȤ·¤ÆÊݸ³èÍѤµ¤ì¤Þ¤¹¡£

¡¡Æ±¤¸Æü¤Ë»£±Æ¤·¤¿²£ÉÍ¥é¥ó¥É¥Þ¡¼¥¯¥¿¥ï¡¼¤ÎŸ˾¼¼¤«¤é¤Îį¤á¤Ç¤¹¡£Ãæ±û¤ÎÇò¤¤¥Ó¥ë¤¬´ØÆâ±ØÁ°¤«¤é°Üž¤·¤¿¿·¤·¤¤¡Ö²£ÉͻԻÔÄ£¼Ë¡×(ÃϾå32³¬¡¢¹â¤µ155.4m)¤Ç¤¹¡£

¡¡¤½¤Î²°¾å¤ÎÇØ¸å¤Ë¸«¤¨¤ë¥¿¥ï¡¼¥¯¥ì¡¼¥ó¤¬¤¢¤ë¾ì½ê¤¬¡Ö²£ÉͻԵì»ÔÄ£¼Ë³¹¶è³èÍÑ»ö¶È¡×¤Î·úÀßÃϤǤ¹¡£

¡¡·úÀßÃϤ˥º¡¼¥à¤Ç¤¹¡£¸½ÃϺî¶ÈͽÄê¤Ç¤ÏÃϲ¼¶íÂι©»ö¡¢¥³¥ó¥¯¥ê¡¼¥ÈÂÇÀߤȤʤäƤ¤¤Þ¤·¤¿¡£

¡¡¡Ö¥¶¡¦¥¿¥ï¡¼ ²£ÉÍËÌÃç¡×(ÃϾå58³¬¡¢¹â¤µ199.95m)¤Î46³¬¡Á51³¬¤ËÆþ¤ë¡Ö¥ª¡¼¥¯¥¦¥Ã¥É¥¹¥¤¡¼¥Ä²£É͡פÎ46³¬ÌµÎÁŸ˾¥Õ¥í¥¢¤«¤é»£±Æ¡£

¡¡¤³¤³¤¬´ØÆâ¥¨¥ê¥¢¤Ç¤ÏºÇ¤â¹â¤¤·úʪ¤È¤Ê¤ê¤Þ¤¹¡£
ÃÏ¿Þ
ʪ·ï³µÍ×

¡¡ÅÔ»Ô·Ê´Ñ·ÁÀ®¹Ô°Ù¤Î¤ªÃΤ餻¤Ç¤¹¡£

¡¡·úÃ۷ײè¤Î¤ªÃΤ餻¤Ç¤¹¡£³ÆÌÌÀѤˤϹÔÀ¯Åï¤â´Þ¤Þ¤ì¤Æ¤¤¤ë¤È»×¤ï¤ì¤Þ¤¹¡£
¢£Êª·ï³µÍ×¢£
»ö¶È̾¡§²£ÉͻԵì»ÔÄ£¼Ë³¹¶è³èÍÑ»ö¶È
½êºßÃÏ¡§¿ÀÆàÀ²£ÉÍ»ÔÃæ¶è¹ÁÄ®°ìÃúÌܰìÈÖÃϾ
¸òÄÌ¡§JRº¬´ßÀþ¡¦²£ÉͻԱÄÃϲ¼Å´¥Ö¥ë¡¼¥é¥¤¥ó¡Ö´ØÆâ¡×±Ø ÅÌÊâ1ʬ
¡¡¡¡¡¡¤ß¤Ê¤È¤ß¤é¤¤Àþ¡ÖÆüËÜÂçÄÌ¡×±Ø ÅÌÊâ7ʬ
ÍÑÅÓ¡§¥ª¥Õ¥£¥¹¡¦Âç³Ø¡¢¿·»º¶ÈÁϤµòÅÀ¡¢¥¨¥Ç¥å¥Æ¥¤¥ó¥á¥ó¥È»ÜÀß¡¢¾¦¶È¡Ê¥¿¥ï¡¼Åï¡Ë
¡¡¡¡¡¡¥Û¥Æ¥ë¡¢¾¦¶È¡Êµì»ÔÄ£¼Ë¹ÔÀ¯Åï¡Ë
¡¡¡¡¡¡¥é¥¤¥Ö¥Ó¥å¡¼¥¤¥ó¥°»ÜÀß¡¢¾¦¶È¡Ê¥é¥¤¥Ö¥Ó¥å¡¼¥¤¥ó¥°¥¢¥ê¡¼¥Ê¡Ë
¡¡¡¡¡¡¾¦¶È¡Ê¤¯¤¹¤Î¤¥Æ¥é¥¹¡Ë
¡¡¡¡¡¡¾¦¶È¡Ê¤ß¤Ê¤È¥Æ¥é¥¹¡Ë
¡¡¡¡¡¡´Ñ¸÷°ÆÆâ½ê¡Ê¥Ó¥¸¥¿¡¼¥Õ¥í¥ó¥È¡Ë
³¬¿ô¡§ÃϾå33³¬¡¢Ãϲ¼1³¬
¹â¤µ¡§169m
¹½Â¤¡§S¤¡¦°ìÉôSRC¤
ÉßÃÏÌÌÀÑ¡§16,522.02Ö
·úÃÛÌÌÀÑ¡§10,439Ö
±ä¾²ÌÌÀÑ¡§128,567Ö
·úÃۼ硧»°°æÉÔÆ°»º¡ÊÂåɽ¼Ô¡Ë¡¢¼¯Åç·úÀß¡¢µþÉ͵޹ÔÅÅÅ´¡¢Âè°ìÀ¸Ì¿Êݸ±¡¢ÃÝÃæ¹©Ì³Å¹¡¢¥Ç¥£¡¼¡¦¥¨¥Ì¡¦¥¨¡¼¡¢ÅìµÞ¡¢À±Ìî¥ê¥¾¡¼¥È
Àß·×¼Ô¡§¼¯Åç·úÀß¡¢ÃÝÃæ¹©Ì³Å¹
»Ü¹©¼Ô¡§¼¯Åç·úÀß¡¢ÃÝÃæ¹©Ì³Å¹
¹©´ü¡§2022ǯ7·î1ÆüÃ幩¡Á2025ǯ12·î31Æüǯ½×¹©Í½Äê
¥°¥é¥ó¥É¥ª¡¼¥×¥ó¡§2026ǯ½ÕͽÄê
½Ðŵ
¢§»°°æÉÔÆ°»º¡§¥Ë¥å¡¼¥¹¥ê¥ê¡¼¥¹¡Ê2022ǯ7·î12Æü¡Ë
JR¡Ö´ØÆâ¡×±ØÁ°¤Ë¡Ö²£ÉͻԵì»ÔÄ£¼Ë³¹¶è³èÍÑ»ö¶È¡×Ã幩
¢¨Âåɽ¤·¤Æ»°°æÉÔÆ°»º¤Î¥Ë¥å¡¼¥¹¥ê¥ê¡¼¥¹¤Î¥ê¥ó¥¯¤ò·ÇºÜ¤·¤Æ¤¤¤Þ¤¹¤¬¡¢´°À®Í½ÁÛ¿ÞÅù¤Ï²è¼Á¤¬Îɤ«¤Ã¤¿Â¾¼Ò¤«¤é°úÍѤ·¤Æ¤¤¤Þ¤¹¡£
¢§À±Ìî¥ê¥¾¡¼¥È¡§¥Ë¥å¡¼¥¹¥ê¥ê¡¼¥¹¡Ê2022ǯ7·î12Æü¡Ë
¡ÚOMO¡Û¿ÀÆàÀ²£ÉͻԤˡÖOMO¡Ê¤ª¤â¡Ëby À±Ìî¥ê¥¾¡¼¥È¡×¤¬½é¿Ê½Ð¡Á¡ÖOMO7²£É͡ʤª¤â¤»¤Ö¤ó¡Ë by À±Ìî¥ê¥¾¡¼¥È¡Ê²¾¾Î¡Ë¡×2026ǯ½Õ³«¶ÈͽÄê¡Á
- ¥«¥Æ¥´¥ê
- ²£ÉÍ»Ô







