
¡¡JRÊ¿°æ±ØÁ°¤Ç·úÀßÃæ¤Î¡Ö¥×¥é¥¦¥É¥¿¥ï¡¼Ê¿°æ¡×(ÃϾå29³¬¡¢ºÇ¹â¹â¤µ114.45m)¤Ç¤¹¡£2024ǯ1·î6Æü¤Ë»£±Æ¤·¤Þ¤·¤¿¡£Ìî¼ÉÔÆ°»º¤ÈºåµÞºå¿ÀÉÔÆ°»º¤Ë¤è¤ëʬ¾ù¥¿¥ï¥Þ¥ó¤Ç¡¢ÄãÁØÉô¤Ë¤Ï¾¦¶È»ÜÀߤ¬Æþ¤ê¤Þ¤¹¡£¤³¤Îµ»ö¤Ç¤ÏƱ¥¿¥ï¥Þ¥ó¤Î³µÍפä·úÀß¾õ¶·¡¢ÃÏ¿ÞÅù¤òºÜ¤»¤Æ¤¤¤Þ¤¹¡£
¥×¥é¥¦¥É¥¿¥ï¡¼Ê¿°æ¤Ë¤Ä¤¤¤Æ

³°´Ñ´°À®Í½ÁÛCG[½Ðŵ¡§¸ø¼°HP]
¡¡¡Ö¥×¥é¥¦¥É¥¿¥ï¡¼Ê¿°æ¡×¤ÏJRÁíÉðÀþ¡ÖÊ¿°æ¡×±ØÁ°¤Î¥¿¥ï¡¼¥Þ¥ó¥·¥ç¥ó¤Ç¡¢µ¬ÌϤÏÃϾå29³¬¡¢Ãϲ¼1³¬¡¢¹â¤µ109.49m¡¢ºÇ¹â¹â¤µ114.45m¡¢ÉßÃÏÌÌÀÑ3,725.46Ö¡¢·úÃÛÌÌÀÑ2,206.31Ö¡¢±ä¾²ÌÌÀÑ4Ëü4155.99Ö¡¢Áí¸Í¿ô374¸Í(Èóʬ¾ù½»¸Í106¸Í´Þ¤à)¤È¤Ê¤Ã¤Æ¤¤¤Þ¤¹¡£·úÃÛ¼ç¤ÏÊ¿°æ¸ÞÃúÌܱØÁ°Ã϶è»Ô³¹ÃϺƳ«È¯Áȹç¡Ê»²²ÃÁȹç°÷¡¦Çä¼ç¡§Ìî¼ÉÔÆ°»º¡¢ºåµÞºå¿ÀÉÔÆ°»º¡Ë¡¢À߷׼ԤϺ´Æ£Áí¹ç·×²è¡¦Á°ÅÄ·úÀß¹©¶È¶¦Æ±´ë¶ÈÂΡ¢»Ü¹©¼Ô¤ÏÁ°ÅÄ·úÀß¹©¶È¤Ç2024ǯ11·î²¼½Ü½×¹©¡¢2025ǯ4·î¾å½Ü¤ÎÆþµï³«»ÏͽÄê¤Ç¤¹¡£
¡¡¸½ºß¤Ï11¸Í¤¬ÀèÃå½çÈÎÇäÃæ¤Ç¡¢ÈÎÇä´Ö¼è¤ê¤Ï3LDK¡Á4LDK¡¢ÀìÍÌÌÀѤÏ72.08Ö¡Á120.92Ö¡¢ÈÎÇä²Á³Ê¤Ï8928Ëü±ß¡Á2²¯4988Ëü±ß¤È¤Ê¤Ã¤Æ¤¤¤Þ¤¹¡£¤Þ¤¿¡¢2024ǯ2·îÃæ½Ü¤«¤é¤ÏÂè5´ü¤ÎÈÎÇ䳫»ÏͽÄê¤Ç¤¹¡£

±ØÁ°¥¨¥ê¥¢³µÇ°¿Þ[½Ðŵ¡§¸ø¼°HP]
¡¡·úÀßÃϤÏJRÁíÉðÀþ¡ÖÊ¿°æ¡×±Ø¤ÎË̸ýÁ°¤Ë¤¢¤ë¡ÖÊ¿°æ±ØË̸ý¹¾ì¡×¤È¢Á°¶¶Ä̤ê¤Ë¶´¤Þ¤ì¤¿»ÍÊý¤¬Æ»Ï©¤Ë°Ï¤Þ¤ì¤¿¾ì½ê¤È¤Ê¤Ã¤Æ¤¤¤Þ¤¹¡£

³°´Ñ´°À®Í½ÁÛCG[½Ðŵ¡§¸ø¼°HP]
¡¡Æ±¥¿¥ï¥Þ¥ó¤Î1¡Á2³¬¤Ë¤Ï¾¦¶È»ÜÀß¡¢2³¬¤Ë¤ÏÃϰè¹×¸¥Íѽ¸²ñ¼¼¡¢3³¬¤Ë¤Ïǧ²ÄÊݰé½ê¤¬Æþ¤ë½»Â𡦾¦¶È¡¦»Ò°é¤ÆÊ£¹çºÆ³«È¯¥¿¥ï¡¼¤È¤Ê¤ê¤Þ¤¹¡£
¡¡¥Þ¥ó¥·¥ç¥ó¤Î»ÜÀߤȤ·¤Æ¤Ï2³¬¤Ë¥¨¥ó¥È¥é¥ó¥¹¤È¥é¥¦¥ó¥¸¡¢3³¬¤Ë¥³¥ß¥å¥Ë¥Æ¥£¥é¥¦¥ó¥¸¡Ê¥é¥¦¥ó¥¸¡¢¥Æ¥é¥¹¡¢¥¹¥¿¥Ç¥£¥ë¡¼¥à¡¢¥é¥¤¥Ö¥é¥ê¡¼¥é¥¦¥ó¥¸¡¢¥×¥ì¥¤¥¨¥ê¥¢¡¢¥¥Ã¥º¥ë¡¼¥à¡Ë¡¢4³¬¤Ë½»ÂðÍѼ«Å¾¼ÖÃ־졢¤½¤·¤Æ25³¬¤Ë¥¹¥«¥¤¥é¥¦¥ó¥¸¤È¥²¥¹¥È¥ë¡¼¥à¤¬ÇÛÃÖ¤µ¤ì¤Þ¤¹¡£½»Âð¥Õ¥í¥¢¤Ï5³¬¡Á29³¬¤È¤Ê¤Ã¤Æ¤¤¤Þ¤¹¡£

³°´Ñ´°À®Í½ÁÛCG[½Ðŵ¡§¸ø¼°HP]
¡¡Â¢Á°¶¶Ä̤ê¤ËÌ̤·¤¿ÉßÃÏÀ¾Â¦¤Ë¤Ï¡¢¥¹¥¥Ã¥×¥Æ¥é¥¹¤Î¤¢¤ë¹¾ì¤äÃó¼Ö¾ì¤Î½ÐÆþ¸ý¤¬ÇÛÃÖ¤µ¤ì¤Þ¤¹¡£

¥¨¥ó¥È¥é¥ó¥¹´°À®Í½ÁÛCG[½Ðŵ¡§¸ø¼°HP]
¡¡2³¬¤ËÇÛÃÖ¤µ¤ì¤ë¥¨¥ó¥È¥é¥ó¥¹¤ÏÆâ¤È³°¤ò°ìľÀþ¤Ë¤Ä¤Ê¤°±ü¹Ô¤¤Î¤¢¤ë¶õ´Ö¤Ë¤Ê¤ê¤Þ¤¹¡£

¥³¥ß¥å¥Ë¥Æ¥£¥é¥¦¥ó¥¸´°À®Í½ÁÛCG[½Ðŵ¡§¸ø¼°HP]
¡¡3³¬¤Î¥³¥ß¥å¥Ë¥Æ¥£¥é¥¦¥ó¥¸¤Ï¾®¤µ¤Êµ¡Ç½¤òÅÀºß¤µ¤»¤¿¶¦ÍÑÉô¤È¤Ê¤ê¡¢¥¹¥¿¥Ç¥£¥ë¡¼¥à¤ä¥³¥ß¥å¥Ë¥Æ¥£¥é¥¦¥ó¥¸¡¢¥×¥ì¥¤¥¨¥ê¥¢¤È¤¤¤Ã¤¿µ¡Ç½¤¬ÇÛÃÖ¤µ¤ì¤Þ¤¹¡£

¥¹¥«¥¤¥é¥¦¥ó¥¸´°À®Í½ÁÛCG[½Ðŵ¡§¸ø¼°HP]
¡¡25³¬¤Î¥¹¥«¥¤¥é¥¦¥ó¥¸¤«¤é¤ÏÅìµþ¥¹¥«¥¤¥Ä¥ê¡¼¤ò˾¤à¤³¤È¤¬¤Ç¤¤Þ¤¹¡£

¥²¥¹¥È¥ë¡¼¥à´°À®Í½ÁÛCG[½Ðŵ¡§¸ø¼°HP]
¡¡25³¬¤Ë¤Ï¥²¥¹¥È¥ë¡¼¥à¤âÀßÃÖ¤µ¤ì¤Þ¤¹¡£ºÇ¶á¤Î¥¿¥ï¡¼¥Þ¥ó¥·¥ç¥ó¤Î¶¦ÍÑ»ÜÀߤǤϡ¢ÄãÁØÉô¤Ë¥²¥¹¥È¥ë¡¼¥à¤¬ÇÛÃÖ¤µ¤ì¤Æ¤¤¤ë½ê¤â¿¡¹¸«¤«¤±¤Þ¤¹¤¬¡¢¤³¤³¤Ï¹âÁس¬¤ËÇÛÃÖ¤µ¤ì¤Þ¤¹¡£
´Ö¼è¤ê¿Þ

LLC¥¿¥¤¥×[½Ðŵ¡§¸ø¼°HP]
¡¡LLC¥¿¥¤¥×¤Î´Ö¼è¤ê¿Þ¤Ç¤¹¡£´Ö¼è¤ê¤Ï2LDK+WIC+SIC¡¢ÀìÍÌÌÀѤÏ52.96Ö¡¢¥Ð¥ë¥³¥Ë¡¼ÌÌÀѤÏ14.27Ö¤ÇÂè5´ü¤ÇÈÎÇäͽÄê¤È¤Ê¤Ã¤Æ¤¤¤Þ¤¹¡£

MM¥¿¥¤¥×[½Ðŵ¡§¸ø¼°HP]
¡¡MM¥¿¥¤¥×¤Î´Ö¼è¤ê¿Þ¤Ç¤¹¡£´Ö¼è¤ê¤Ï3LDK+N+WIC+SIC¡¢ÀìÍÌÌÀѤÏ77.48Ö¡¢¥È¥é¥ó¥¯¥ë¡¼¥àÌÌÀѤÏ0.61Ö¡¢¥Ð¥ë¥³¥Ë¡¼ÌÌÀѤÏ19.37Ö¤ÇÆ±¥¿¥¤¥×¤Î10³¬¤ÎÉô²°¤¬8928Ëü±ß¤ÇÀèÃå½çÈÎÇäÃæ¤Ç¤¹¡£

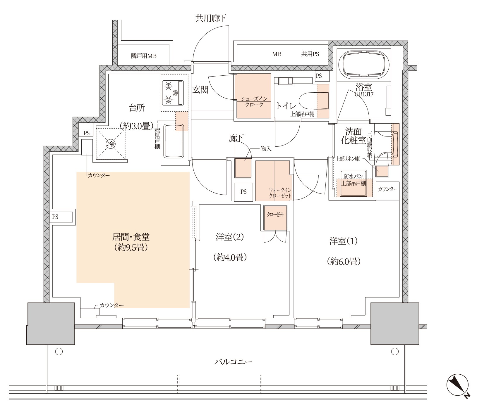
HH¥¿¥¤¥×[½Ðŵ¡§¸ø¼°HP]
¡¡¥×¥ì¥ß¥¢¥à¥Õ¥í¥¢¤È¤Ê¤ëHH¥¿¥¤¥×¤Î´Ö¼è¤ê¿Þ¤Ç¤¹¡£´Ö¼è¤ê¤Ï4LDK¡ÜN¡ÜWIC¡ÜSIC¡¢ÀìÍÌÌÀѤÏ92.95Ö¡¢¥È¥é¥ó¥¯¥ë¡¼¥àÌÌÀѤÏ0.60Ö¡¢¥Ð¥ë¥³¥Ë¡¼ÌÌÀѤÏ24.48Ö¤ÇÆ±¥¿¥¤¥×¤Î28³¬¤ÎÉô²°¤¬1²¯3488Ëü±ß¤ÇÀèÃå½çÈÎÇäÃæ¤È¤Ê¤Ã¤Æ¤¤¤Þ¤¹¡£

HI¥¿¥¤¥×[½Ðŵ¡§¸ø¼°HP]
¡¡¥×¥ì¥ß¥¢¥à¥Õ¥í¥¢¤È¤Ê¤ëHI¥¿¥¤¥×¤Î´Ö¼è¤ê¿Þ¤Ç¤¹¡£´Ö¼è¤ê¤Ï4LDK+N+WIC+SIC¡¢ÀìÍÌÌÀѤÏ93.00Ö¡¢¥È¥é¥ó¥¯¥ë¡¼¥àÌÌÀѤÏ1.00Ö¡¢¥Ð¥ë¥³¥Ë¡¼ÌÌÀѤÏ25.74Ö¤ÇÆ±¥¿¥¤¥×¤Î29³¬¤ÎÉô²°¤¬1²¯4988Ëü±ß¤ÇÀèÃå½çÈÎÇäÃæ¤È¤Ê¤Ã¤Æ¤¤¤Þ¤¹¡£

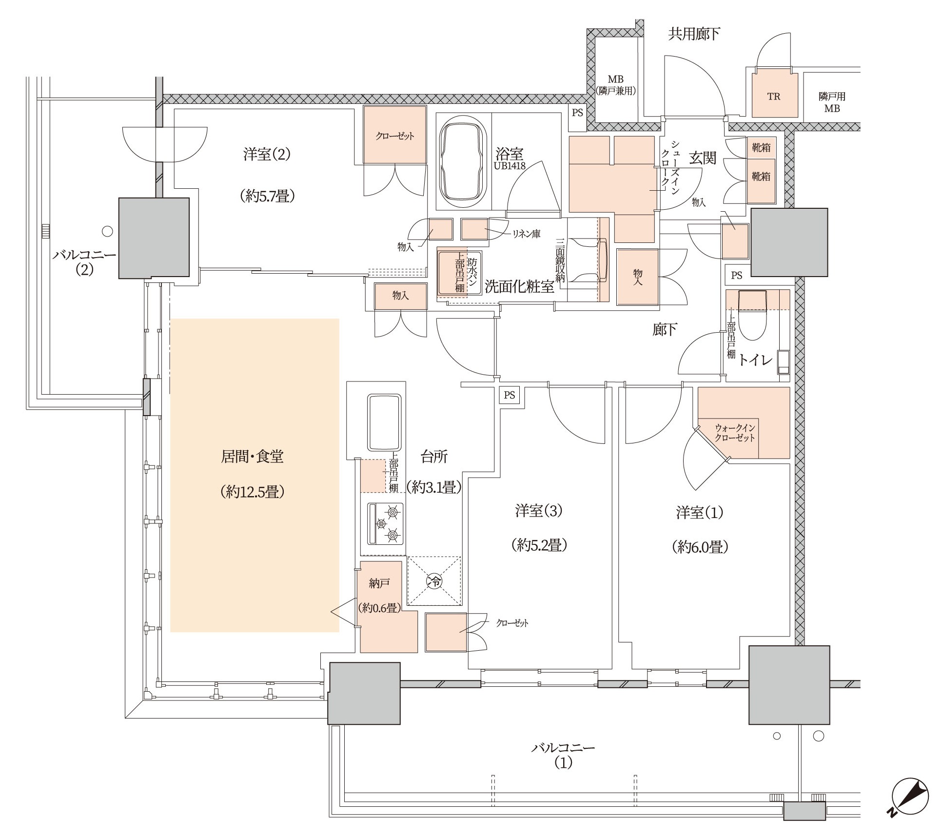
HJ¥¿¥¤¥×[½Ðŵ¡§¸ø¼°HP]
¡¡¥×¥ì¥ß¥¢¥à¥Õ¥í¥¢¤È¤Ê¤ëHJ¥¿¥¤¥×¤Î´Ö¼è¤ê¿Þ¤Ç¤¹¡£´Ö¼è¤ê¤Ï3LDK+N+2WIC+SIC¡¢ÀìÍÌÌÀѤÏ101.18Ö¡¢¥È¥é¥ó¥¯¥ë¡¼¥àÌÌÀѤÏ0.74Ö¡¢¥Ð¥ë¥³¥Ë¡¼ÌÌÀѤÏ19.35Ö¤ÇÆ±¥¿¥¤¥×¤Î28³¬¤ÎÉô²°¤¬1²¯5988Ëü±ß¤ÇÀèÃå½çÈÎÇäÃæ¤È¤Ê¤Ã¤Æ¤¤¤Þ¤¹¡£

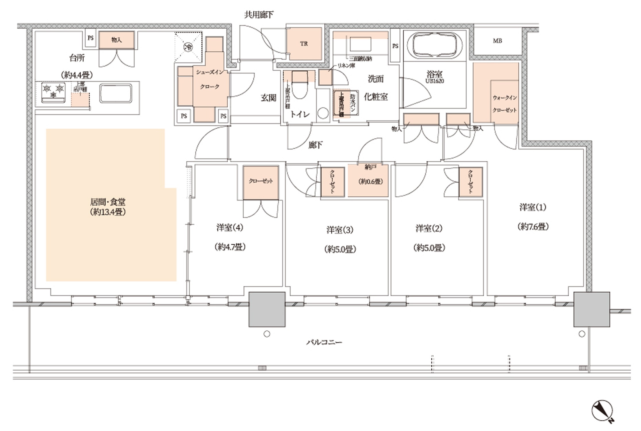
HF¥¿¥¤¥×[½Ðŵ¡§¸ø¼°HP]
¡¡¥×¥ì¥ß¥¢¥à¥Õ¥í¥¢¤È¤Ê¤ëHF¥¿¥¤¥×¤Î´Ö¼è¤ê¿Þ¤Ç¤¹¡£´Ö¼è¤ê¤Ï3LDK+4N+WIC+SIC¡¢ÀìÍÌÌÀѤÏ119.57Ö¡¢¥È¥é¥ó¥¯¥ë¡¼¥àÌÌÀѤÏ1.02Ö¡¢¥Ð¥ë¥³¥Ë¡¼ÌÌÀѤÏ26.89Ö¤ÇÆ±¥¿¥¤¥×¤Î29³¬¤ÎÉô²°¤¬2²¯4988Ëü±ß¤ÇÀèÃå½çÈÎÇäÃæ¤È¤Ê¤Ã¤Æ¤¤¤Þ¤¹¡£

HJ¥¿¥¤¥×´°À®Í½ÁÛCG[½Ðŵ¡§¸ø¼°HP]
¡¡¥×¥ì¥ß¥¢¥à¥Õ¥í¥¢¤ÎHJ¥¿¥¤¥×¤Î´°À®Í½ÁۿޤǤ¹¡£¥×¥ì¥ß¥¢¥à¥Õ¥í¥¢¡Ê28³¬¡¢29³¬¡Ë¤Ï¡¢¥ê¥Ó¥ó¥°¡¦¥À¥¤¥Ë¥ó¥°¤ÎÅ·°æ¹â¤È¥µ¥Ã¥·¹â¤òÄɵᤷ¤Æ¤ª¤ê¡¢28³¬¤ÎÅ·°æ¹â¤ÏÌó2.7m¡¢29³¬¤ÎÅ·°æ¹â¤ÏÌó2.8m¡¢¥µ¥Ã¥·¹â¤ÏÌó2.2m¤È¤Ê¤Ã¤Æ¤¤¤Þ¤¹¡£¤Þ¤¿¡¢Ãó¼Ö¾ìÍ¥À踢¤âÉÕÍ¿¤µ¤ì¤Þ¤¹¡£
°ÌÃÖ¿Þ

¸½ÃÏ°ÆÆâ¿Þ[½Ðŵ¡§¸ø¼°HP]
¡¡¡Ö¥×¥é¥¦¥É¥¿¥ï¡¼Ê¿°æ¡×¤Î·úÀßÃϤÏJRÁíÉðÀþ¡ÖÊ¿°æ¡×±Ø¤ÎË̸ý¤«¤éÅÌÊâ2ʬ¡£±ØÁ°¤Ë¤¢¤ëÊ¿°æ±ØË̸ý¹¾ì¤È¢Á°¶¶Ä̤ê¤Ë¶´¤Þ¤ì¤¿¾ì½ê¤È¤Ê¤Ã¤Æ¤¤¤Þ¤¹¡£
¡¡Ê¿°æ±Ø¤ÏÅìµþ23¶èÆâ¤Ç¤âÃÎ̾ÅÙ¤ÎÄ㤤±Ø¤«¤È»×¤¤¤Þ¤¹¤¬¡¢Æ±±Ø¤Ïµµ¸Í±Ø¤È¿·¾®´ä±Ø¤Î´Ö¤Ë¤¢¤ë±Ø¤Ç¡¢¹ÓÀî¤òÅÔ¿´Â¦¤ØÅϤ俤Ȥ³¤í¤Ë°ÌÃÖ¤·¤Æ¤¤¤Þ¤¹¡£¹ÓÀ¹¾¸ÍÀî¶è¤Î¶³¦Àþ¤À¤È»×¤Ã¤Æ¤¤¤ë¿Í¤â¤¤¤ë¤è¤¦¤Ç¤¹¤¬¡¢µìÃæÀî¤Ë°Ï¤Þ¤ì¤¿¤³¤³Ê¿°æ¤â¹¾¸ÍÀî¶è¤È¤Ê¤Ã¤Æ¤¤¤Þ¤¹¡£
·úÀß¾õ¶·

¡¡2024ǯ1·î6Æü¤ËJRÊ¿°æ±ØÂ¦¤È¤Ê¤ëÆîÅ즤«¤é»£±Æ¤·¤¿¡Ö¥×¥é¥¦¥É¥¿¥ï¡¼Ê¿°æ¡×(ÃϾå29³¬¡¢ºÇ¹â¹â¤µ114.45m)¤Ç¤¹¡£

¡¡Â¢Á°¶¶Ä̤ꦤȤʤëË̦¤«¤é»£±Æ¡£¥Í¥Ã¥È¤Çʤ¤ï¤ì¤Æ¤¤¤ëÉôʬ¤¬¾¦¶È»ÜÀßÅù¤Î¥Õ¥í¥¢¤Ç¡¢³°´Ñ¤¬¸«¤¨¤Æ¤¤¤ë5³¬¤«¤é¤¬½»Âð¥Õ¥í¥¢¤È¤Ê¤ê¤Þ¤¹¡£

¡¡»£±Æ»þ¤Ë¤Ï17³¬¤Þ¤Ç·úÀߤ¬¿Ê¤ó¤Ç¤¤¤Þ¤·¤¿¡£

¡¡À¾Â¦¤«¤é»£±Æ¡£¤³¤Á¤é¤Î³ÑÃϤ˥¹¥¥Ã¥×¥Æ¥é¥¹¤Î¤¢¤ë¹¾ì¤¬ÇÛÃÖ¤µ¤ì¤Þ¤¹¡£

¡¡Æî¦¤«¤é»£±Æ¡£»ÍÊý¤¬Æ»Ï©¤Ë°Ï¤Þ¤ì¤¿ÆÈΩ¤·¤¿Î©ÃϤȤʤäƤ¤¤Þ¤¹¡£

¡¡JRÊ¿°æ±ØÁ°¤«¤é»£±Æ¡£¡Ö¥×¥é¥¦¥É¥¿¥ï¡¼Ê¿°æ¡×¤È¤Î´Ö¤Ë¤ÏÊ¿°æ±ØË̸ý¹¾ì¤ò¶´¤ß¤Þ¤¹¡£

¡¡JRÊ¿°æ±Ø¤Î¥Û¡¼¥à¤«¤é»£±Æ¡£Ê¿°æ±ØË̸ý¹¾ì¤ò¶´¤à¤¿¤á±Ø¤«¤é¤Ï¾¯¤·¤À¤±Î¥¤ì¤Þ¤¹¤¬¡¢¤½¤Îʬ¡¢±Ø¶á²á¤®¤Æ¥Û¡¼¥à¤«¤éÉô²°¤¬´Ý¸«¤¨ÌäÂê¤ò²óÈò¤Ç¤¤Þ¤¹¡£

¡¡2024ǯ1·î14Æü¤Ë¼«Âð¥Þ¥ó¥·¥ç¥ó¤«¤é»£±Æ¤·¤¿¡Ö¥×¥é¥¦¥É¥¿¥ï¡¼Ê¿°æ¡×¤Ç¤¹¡£¥¿¥¤¥È¥ë¤Ï17³¬Åþã¤È¤·¤Þ¤·¤¿¤¬¡¢º£Ä«¸«¤ë¤È19³¬¤Þ¤Ç·úÀߤ¬¿Ê¤ó¤Ç¤¤¤Þ¤·¤¿¡£¼êÁ°¤Ï¡Ö¥Ó¥å¡¼¥Í¥¿¥ï¡¼Ê¿°æ¡×(ÃϾå21³¬¡¢¹â¤µ70.8m)¤Ç¤¹¡£

¡¡¾¯¤·¹³Ñ¤Ç»£±Æ¡£º£¤Ï¡Ö¥Ó¥å¡¼¥Í¥¿¥ï¡¼Ê¿°æ¡×¤Ë¤Û¤È¤ó¤É±£¤ì¤Æ¤¤¤Þ¤¹¤¬¡¢¤Þ¤À¤³¤³¤«¤é10³¬¤Û¤É¹â¤¯¤Ê¤ë¤Î¤Ç¤·¤Ã¤«¤ê¤È¸«¤¨¤ë¤è¤¦¤Ë¤Ê¤ê¤Þ¤¹¡£
ÃÏ¿Þ
ʪ·ï³µÍ×

¡¡·úÃ۷ײè¤Î¤ªÃΤ餻¤Ç¤¹¡£
¢£Êª·ï³µÍ×¢£
̾¾Î¡§¥×¥é¥¦¥É¥¿¥ï¡¼Ê¿°æ
»ö¶È̾¡§Ê¿°æ¸ÞÃúÌܱØÁ°Ã϶èÂè°ì¼ï»Ô³¹ÃϺƳ«È¯»ö¶È
½êºßÃÏ¡§ÅìµþÅÔ¹¾¸ÍÀî¶èÊ¿°æ¸ÞÃúÌÜ65ÈÖ¡ÊÃÏÈÖ¡Ë
¸òÄÌ¡§JRÁíÉðÀþ¡ÖÊ¿°æ¡×±Ø ÅÌÊâ2ʬ
ÍÑÅÓ¡§¶¦Æ±½»Âð¡¢Å¹ÊÞ¡¢Êݰé½ê¡¢»ö̳½ê¡¢Ãó¼Ö¾ì¡¢ÃóÎØ¾ì
Áí¸Í¿ô¡§374¸Í¡ÊÈóʬ¾ù½»¸Í106¸Í´Þ¤à¡Ë
³¬¿ô¡§ÃϾå29³¬¡¢Ãϲ¼1³¬
¹â¤µ¡§109.49m¡ÊºÇ¹â¹â¤µ114.45m¡Ë
¹½Â¤¡§Å´¶Ú¥³¥ó¥¯¥ê¡¼¥È¤ °ìÉôÅ´¹ü¤¡¢Ìȿ̹½Â¤
´ðÁù©Ë¡¡§¹º´ðÁÃ
ÉßÃÏÌÌÀÑ¡§3,725.46Ö
·úÃÛÌÌÀÑ¡§2,206.31Ö
±ä¾²ÌÌÀÑ¡§44,155.99Ö
·úÃۼ硧ʿ°æ¸ÞÃúÌܱØÁ°Ã϶è»Ô³¹ÃϺƳ«È¯Áȹç
»²²ÃÁȹç°÷¡§Ìî¼ÉÔÆ°»º¡¢ºåµÞºå¿ÀÉÔÆ°»º
Çä¼ç¡§Ìî¼ÉÔÆ°»º¡¢ºåµÞºå¿ÀÉÔÆ°»º
Àß·×¼Ô¡§º´Æ£Áí¹ç·×²è¡¦Á°ÅÄ·úÀß¹©¶È¶¦Æ±´ë¶ÈÂÎ
»Ü¹©¼Ô¡§Á°ÅÄ·úÀß¹©¶È
¹©´ü¡§2021ǯ3·î23ÆüÃ幩¡Á2024ǯ11·î²¼½Ü½×¹©Í½Äê
Æþµï¡§2025ǯ2·î²¼½ÜͽÄê
½Ðŵ
¢§¸ø¼°HP¡§¥×¥é¥¦¥É¥¿¥ï¡¼Ê¿°æ
https://www.proud-web.jp/mansion/b115580/
- ¥«¥Æ¥´¥ê
- ¹¾¸ÍÀî¶è







