
¡¡Âçºå¤ÎËÜÄ®±Ø¤È¿´ºØ¶¶±Ø¤ÎÃæ´Ö¤¢¤¿¤ê¤Î¥¿¥ï¡¼¥Þ¥ó¥·¥ç¥ó¡Ö(²¾¾Î)Âçºå»ÔÃæ±û¶èÇîϫĮ£³ÃúÌܷײè¡×(ÃϾå35³¬¡¢¹â¤µ125.50m)¤Î·úÀßÃϤǤ¹¡£2023ǯ10·î22Æü¤Ë»£±Æ¤·¤Þ¤·¤¿¡£»°É©ÃϽê¥ì¥¸¥Ç¥ó¥¹¤Ë¤è¤ëÁí¸Í¿ôÌó200¸Í¤Îʬ¾ù¤Î¥¿¥ï¡¼¥Þ¥ó¥·¥ç¥ó¤Ë¤Ê¤ê¤Þ¤¹¡£¤³¤Îµ»ö¤Ç¤ÏƱ¥¿¥ï¥Þ¥ó¤Î³µÍפä·úÀß¾õ¶·¡¢ÃÏ¿ÞÅù¤òºÜ¤»¤Æ¤¤¤Þ¤¹¡£
(²¾¾Î)Âçºå»ÔÃæ±û¶èÇîϫĮ£³ÃúÌܷײè¤Ë¤Ä¤¤¤Æ

ÆîΩÌÌ¿Þ[½Ðŵ¡§·úÃ۷ײè¤Î³µÍ×]
¡¡¡Ö(²¾¾Î)Âçºå»ÔÃæ±û¶èÇîϫĮ£³ÃúÌܷײè¡×¤ÏËÜÄ®±Ø¤È¿´ºØ¶¶±Ø¤ÎÃæ´Ö¤¢¤¿¤ê¤Ë°ÌÃÖ¤¹¤ëʬ¾ù¤Î¥¿¥ï¡¼¥Þ¥ó¥·¥ç¥ó¤Ç¡¢µ¬ÌϤÏÃϾå35³¬¡¢¹â¤µ125.50m¡¢ÉßÃÏÌÌÀÑ1,810.44Ö¡¢·úÃÛÌÌÀÑ1,006.37Ö¡¢±ä¾²ÌÌÀÑ2Ëü4859.35Ö¡¢Áí¸Í¿ôÌó200¸Í¤È¤Ê¤Ã¤Æ¤¤¤Þ¤¹¡£·úÃÛ¼ç¤Ï»°É©ÃϽê¥ì¥¸¥Ç¥ó¥¹¡¢Àß·×¼Ô¤ÏÆü´ëÀ߷פȹãÃÓÁÈ¡¢»Ü¹©¼Ô¤Ï¹ãÃÓÁȤÇ2026ǯ12·î²¼½Ü¤Î½×¹©Í½Äê¤Ç¤¹¡£

ÇÛÃÖ¿Þ[½Ðŵ¡§·úÃ۷ײè¤Î³µÍ×]
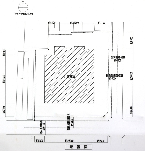
¡¡·úÀßÃÏ¤ÏÆî¦¤ÈÅ즤¬ÀÜÆ»¤¹¤ë³ÑÃϤȤʤäƤ¤¤Þ¤¹¤¬¡¢¸æÆ²¶Ú¤«¤é¤ÏÃæ¤ËÆþ¤Ã¤¿¾ì½ê¤Ç¹¤¤Æ»Ï©¤Ë¤ÏÌ̤·¤Æ¤¤¤Þ¤»¤ó¡£
·úÀß¾õ¶·

¡¡2023ǯ10·î22Æü¤ËÆîÀ¾Â¦¤«¤é»£±Æ¤·¤¿¡Ö(²¾¾Î)Âçºå»ÔÃæ±û¶èÇîϫĮ£³ÃúÌܷײè¡×(ÃϾå35³¬¡¢¹â¤µ125.50m)¤Î·úÀßÃϤǤ¹¡£

¡¡ËÌÅ즤«¤é»£±Æ¡£¸æÆ²¶Ú¤«¤é¾¯¤·Ãæ¤ËÆþ¤Ã¤¿¿ÍÄ̤ê¤Ï¤½¤ì¤Ê¤ê¤Ë¤¢¤ë¾ì½ê¤È¤Ê¤Ã¤Æ¤¤¤Þ¤¹¡£
ÃÏ¿Þ
ʪ·ï³µÍ×

¡¡·úÃ۷ײè¤Î³µÍפǤ¹¡£
¢£Êª·ï³µÍ×¢£
»ö¶È̾¡§(²¾¾Î)Âçºå»ÔÃæ±û¶èÇîϫĮ£³ÃúÌܷײè
½êºßÃÏ¡§ÂçºåÉÜÂçºå»ÔÃæ±û¶èÇîϫĮ£³ÃúÌÜ1ÈÖ¡¢Æîµ×Êõ»ûÄ®£³ÃúÌÜ53ÈÖ5¡ÊÃÏÈÖ¡Ë
¸òÄÌ¡§Âçºå¥á¥È¥í¸æÆ²¶ÚÀþ¡¦Ä¹ËÙÄḫÎÐÃÏÀþ¡Ö¿´ºØ¶¶¡×±Ø
¡¡¡¡¡¡Âçºå¥á¥È¥í¸æÆ²¶ÚÀþ¡¦»Í¤Ä¶¶Àþ¡¦Ãæ±ûÀþ¡Ö¿´ºØ¶¶¡×±Ø
¡¡¡¡¡¡Âçºå¥á¥È¥íĹËÙÄḫÎÐÃÏÀþ¡¦ºæ¶ÚÀþ¡ÖĹËÙ¶¶¡×±Ø
¡¡¡¡¡¡Âçºå¥á¥È¥íºæ¶ÚÀþ¡¦Ãæ±ûÀþ¡Öºæ¶ÚËÜÄ®¡×±Ø
ÍÑÅÓ¡§¶¦Æ±½»Âð
Áí¸Í¿ô¡§Ìó200¸Í
³¬¿ô¡§ÃϾå35³¬
¹â¤µ¡§125.50m
¹½Â¤¡§Å´¶Ú¥³¥ó¥¯¥ê¡¼¥È¤¡¢°ìÉôÅ´¹ü¤
ÉßÃÏÌÌÀÑ¡§1,810.44Ö
·úÃÛÌÌÀÑ¡§1,006.37Ö
±ä¾²ÌÌÀÑ¡§24,859.35Ö
·úÃۼ硧»°É©ÃϽê¥ì¥¸¥Ç¥ó¥¹
Àß·×¼Ô¡§Æü´ëÀ߷ס¢¹ãÃÓÁÈ
»Ü¹©¼Ô¡§¹ãÃÓÁÈ
¹©´ü¡§2023ǯ9·î¾å½ÜÃ幩¡Á2026ǯ12·î²¼½Ü½×¹©Í½Äê
- ¥«¥Æ¥´¥ê
- Âçºå»Ô







