
¡¡¶ùÅÄÀî¶á¤¯¤Ç²òÂÎÃæ¤Î¡Öµì¥é¥¤¥ª¥óËܼҥӥë¡×¤Ç¤¹¡£2023ǯ11·î25Æü¤Ë»£±Æ¤·¤Þ¤·¤¿¡£¤³¤ÎÀ×ÃϤǷײ褵¤ì¤Æ¤¤¤ëµþÉ͵޹ÔÅÅÅ´¤Ë¤è¤ë¥¿¥ï¡¼¥Þ¥ó¥·¥ç¥ó¡Ö(²¾¾Î)¶ùÅÄÀî±èÀî±¹¶¶¼þÊÕÃ϶è¡×¤ÎÃ϶è·×²è¤Î¸¶°Æ¤¬ËÏÅĶè¤è¤ê¸ø³«¤µ¤ì¤Þ¤·¤¿¡£·×²èµ¬ÌϤÏÃϾå26³¬¡¢¹â¤µÌó92.9m¡¢±ä¾²ÌÌÀÑÌó4Ëü7400Ö¡¢Áí¸Í¿ô480¸Í¤Ç¡¢¶ùÅÄÀî¤ÎÄéËɤ˷Ҥ¬¤ë¥Ç¥Ã¥¤âÀ°È÷¤µ¤ì¤Þ¤¹¡£¤³¤Îµ»ö¤Ç¤ÏƱÃ϶è¤Î³µÍפä´û¸·úʪ²òÂξõ¶·¡¢ÃÏ¿ÞÅù¤òºÜ¤»¤Æ¤¤¤Þ¤¹¡£
¶ùÅÄÀî±èÀî±¹¶¶¼þÊÕÃ϶è¤Ë¤Ä¤¤¤Æ

ÃÇÌÌ¿Þ[½Ðŵ¡§ËÏÅĶè]
¡¡¡Ö(²¾¾Î)¶ùÅÄÀî±èÀî±¹¶¶¼þÊÕÃ϶è¡×¤Ï¶ùÅÄÀî¤Î¤¹¤°¶á¤¯¤¢¤Ã¤¿¡Öµì¥é¥¤¥ª¥óËܼҥӥë¡×À×ÃϤκƳ«È¯¤Ç¡¢µ¬ÌϤÏÃϾå26³¬¡¢¹â¤µÌó92.9m¡¢ÉßÃÏÌÌÀÑÌó6,500Ö¡¢·úÃÛÌÌÀÑÌó2,270Ö¡¢±ä¾²ÌÌÀÑÌó4Ëü7400֤Ƿײ褵¤ì¤Æ¤¤¤Þ¤¹¡£»ö¶È¼Ô¤ÏµþÉ͵޹ÔÅÅÅ´¤Ç¡¢¸½ºß¤ÏĹ빩¥³¡¼¥Ý¥ì¡¼¥·¥ç¥ó¤ò»Ü¹©¼Ô¤È¤·¤Æ2025ǯ1·î20Æü¤Þ¤Ç¤Î¹©´ü¤Ç²òÂι©»ö¤¬¹Ô¤Ê¤ï¤ì¤Æ¤¤¤Þ¤¹¡£¿·ÃÛ¹©»ö¤Ï2025ǯ2·îÃ幩¡¢2028ǯ3·î¤Î½×¹©Í½Äê¤Ç¤¹¡£
¡¡Æ±Ã϶è¤Ë·úÀߤµ¤ì¤ë¥¿¥ï¡¼¥Þ¥ó¥·¥ç¥ó¤ÎÄãÁØÉô¤Ë¤ÏŹÊÞ¤¬ÇÛÃÖ¤µ¤ì¡¢¶ùÅÄÀî¤ËÀ°È÷ͽÄê¤Î¥¹¡¼¥Ñ¡¼ÄéËɤ˷Ҥ¬¤ë¥Ç¥Ã¥¤âÀ°È÷¤¹¤ë·×²è¤È¤Ê¤Ã¤Æ¤¤¤Þ¤¹¡£Áí¸Í¿ô480¸Í¤È¤Ê¤ë½»Âð¥Õ¥í¥¢¤Ï4¡Á26³¬¤ËÇÛÃÖ¤µ¤ì¤Þ¤¹¡£

ÄéËɤȥǥå¤ÎÃÇÌÌ¥¤¥á¡¼¥¸[½Ðŵ¡§ËÏÅĶè]
¡¡¥Ç¥Ã¥¤Ïƻϩ¾å¶õ¤òÄ̤äƶùÅÄÀî¤Ë·Ò¤¬¤ë·×²è¤È¤Ê¤Ã¤Æ¤ª¤ê¡¢¤³¤Î¿Þ¤ò¸«¤ë¸Â¤ê¤Ç¤Ï½»Âð¥Õ¥í¥¢¤Î°ìÈÖ²¼¤È¤Ê¤ë4³¬¤À¤È¼óÅÔ¹â¤È¤Û¤ÜƱ¤¸¹â¤µ¤Ë¤Ê¤ë¤è¤¦¤Ç¤¹¡£

ÇÛÃÖ¿Þ[½Ðŵ¡§ËÏÅĶè]
¡¡ÉßÃϤÎË̦¤ÈÆî¦¤Ë¹¾ì¤¬ÇÛÃÖ¤µ¤ì¡¢Æî¦¤Î3³¬¥ì¥Ù¥ë¤Ë¥Ç¥Ã¥¤¬À°È÷¤µ¤ì¤Þ¤¹¡£

ÇÛÃÖ¿Þ[½Ðŵ¡§ËÏÅĶè]
¡¡ÉßÃϤÎÅìÀ¾Æî¤Ë¤ÏÊâÆ»¾õ¶õÃϤâÀ°È÷¤µ¤ì¡¢ËÌÀ¾Â¦¤ÈÆîÅ즤«¤é¥Ç¥Ã¥¤Ë¹Ô¤±¤ë¤è¤¦¤Ë¤Ê¤ê¤Þ¤¹¡£

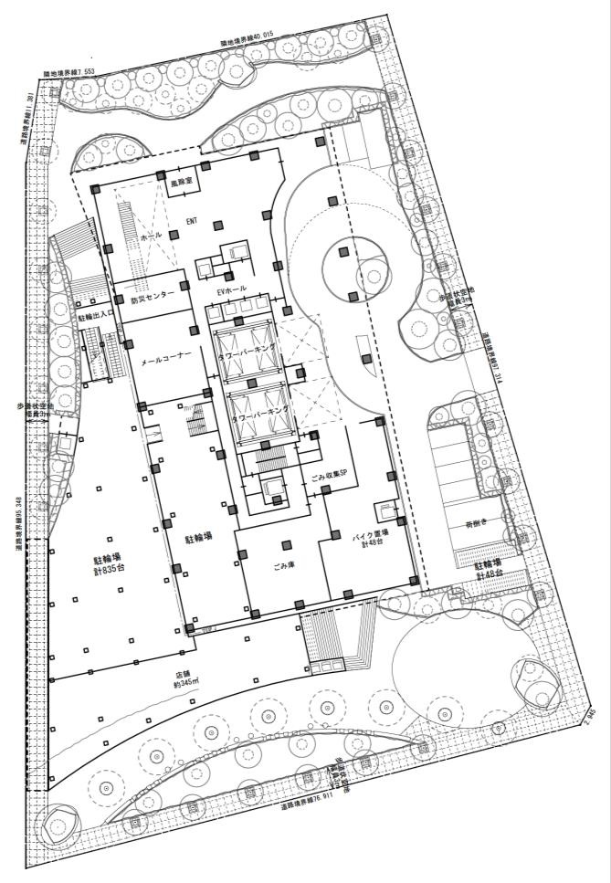
1³¬Ê¿ÌÌ¿Þ[½Ðŵ¡§ËÏÅĶè]
¡¡1³¬¤Ë¤ÎÆî¦¤Ë¤Ï¹¾ì¤ËÌ̤·¤¿Å¹ÊÞ¥¹¥Ú¡¼¥¹¤¬Àߤ±¤é¤ì¡¢¥¨¥ó¥È¥é¥ó¥¹¤ÏºÇ´ó±Ø¤È¤Ê¤ëÅÔ±ÄÃϲ¼Å´¡Ö¢Á°¡×±Ø¤Ë¶á¤¤ËÌÀ¾Â¦¤ËÇÛÃÖ¤µ¤ì¤Þ¤¹¡£
¡¡¤Þ¤¿¡¢·úʪÃϲ¼¥Ô¥Ã¥È¤Ë¤ÏËɲпåÁå¡¢±«¿åÃù¿åÁå¡¢±«¿åºÆÍøÍÑ»ÜÀß¡ÊÈó¾ï»þ¤Î°ûÍÑ¿å¤È¤·¤Æ¤âÍøÍѲÄǽ¤Ê»ÜÀߡˤ¬ÀßÃÖͽÄê¤È¤Ê¤Ã¤Æ¤¤¤Þ¤¹¡£

2³¬Ê¿ÌÌ¿Þ[½Ðŵ¡§ËÏÅĶè]
¡¡2³¬¤Ë¤ÏÃóÎØ¾ì¤Ê¤É¤¬Àߤ±¤é¤ì¤Þ¤¹¡£

3³¬Ê¿ÌÌ¿Þ[½Ðŵ¡§ËÏÅĶè]
¡¡3³¬¤Ë¤ÏÀ°È÷ͽÄê¤Î¥¹¡¼¥Ñ¡¼ÄéËɤ˷Ҥ¬¤ë¥Ç¥Ã¥¤¬À°È÷¤µ¤ì¡¢¤½¤Î¥Ç¥Ã¥¤ËÌ̤·¤¿Æî¦¤ËŹÊÞ¡¢À¾Â¦¤ËÃϰè¤Ë¤â³«Êü¤¹¤ë½¸²ñ¼¼¤¬ÇÛÃÖ¤µ¤ì¤Þ¤¹¡£¤Þ¤¿¡¢Ë̦¤Ë¤¢¤ëËɺÒÈ÷Ã߸ˤÏËÏÅÄ¶è¤¬ÍøÍÑͽÄê¤È¤Ê¤Ã¤Æ¤¤¤Þ¤¹¡£

4¡Á15³¬¡¢16³¬Ê¿ÌÌ¿Þ[½Ðŵ¡§ËÏÅĶè]
¡¡4³¬¤«¤é¤¬½»Âð¥Õ¥í¥¢¤È¤Ê¤ê¡¢16³¬¤Ë¶¦ÍÑ»ÜÀߤ¬ÇÛÃÖ¤µ¤ì¤Þ¤¹¡£ËÌÅ즤Τ¿¤áÅìµþ¥¹¥«¥¤¥Ä¥ê¡¼¥Ó¥å¡¼¤Î¶¦ÍÑ»ÜÀߤȤʤꡢÅìµþÅÔ¿´¤Ï¸«¤¨¤Ê¤¤Êý³Ñ¤È¤Ê¤ê¤Þ¤¹¡£
¡¡¤Þ¤¿¡¢¶ùÅÄÀî¤Î²Ö²ÐÂç²ñ¤¬¸«¤¨¤ëÉô²°¤ÏË̸þ¤¤ÎÉô²°¤Î¤ß¤È¤Ê¤ê¤½¤¦¤Ç¤¹¡£ËÌÀ¾³ÑÉô²°¤À¤ÈÅìµþ¥¹¥«¥¤¥Ä¥ê¡¼¤â¶ùÅÄÀî²Ö²ÐÂç²ñ¤âÅìµþÅÔ¿´¤Îį˾¤â³Ú¤·¤á¤ë¤³¤È¤Ë¤Ê¤ê¤Þ¤¹¡£

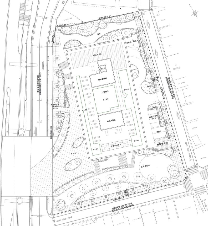
17¡Á26³¬¡¢²°¾åÊ¿ÌÌ¿Þ[½Ðŵ¡§ËÏÅĶè]
¡¡²°¾åÊ¿ÌÌ¿ÞÆâ¤Îɽµ¤¬24³¬¤È¤Ê¤Ã¤Æ¤¤¤ë¤Î¤Ï¸Å¤¤¾ðÊ󤫲¿¤«¤È»×¤ï¤ì¤Þ¤¹¤¬¡¢Ë̦¤Ë¤Ï²°¾å¥Æ¥é¥¹¤òÇÛÃÖ¤¹¤ë·×²è¤È¤Ê¤Ã¤Æ¤¤¤Þ¤¹¡£

¥Ç¥Ã¥À°È÷¥¤¥á¡¼¥¸[½Ðŵ¡§ËÏÅĶè]
¡¡Æî¦¤ËÀ°È÷¤µ¤ì¤ë¥Ç¥Ã¥Éôʬ¤Î´°À®Í½ÁۿޤǤ¹¡£

Æî¦Ļâ×¥¤¥á¡¼¥¸[½Ðŵ¡§ËÏÅĶè]
¡¡¥Ç¥Ã¥¤ÏÀ°È÷ͽÄê¤Î¥¹¡¼¥Ñ¡¼ÄéËÉ¤ÈÆ±¤¸¹â¤µ¤È¤·¤Æ²ÏÀî¤È»Ô³¹ÃϤò·Ò¤²¤Þ¤¹¡£¤½¤Î¥Ç¥Ã¥¤Î¹â¤µ¤Ï¿å³²È¯À¸»þ¤Î¿»¿åÁÛÄê¥ì¥Ù¥ë°Ê¾å¤È¤Ê¤Ã¤Æ¤ª¤ê¡¢Ãϰè¤Ë³«Êü¤¹¤ë¤³¤È¤Ç¿å³²»þÅù¤Î°ì»þÈòÆñÀè¤Îµ¡Ç½¤â»ý¤Ä¤³¤È¤Ë¤Ê¤ê¤Þ¤¹¡£

Æî¦¹¾ìÀ°È÷¥¤¥á¡¼¥¸[½Ðŵ¡§ËÏÅĶè]
¡¡Æî¦¤Î¹¾ì¤ÏÌó1000֤餵¤È¤Ê¤êŹÊÞ¤âÇÛÃÖ¤µ¤ì¤Þ¤¹¡£

Ë̦¹¾ìÀ°È÷¥¤¥á¡¼¥¸[½Ðŵ¡§ËÏÅĶè]
¡¡Ë̦¤Î¹¾ì¤ÏÎÐÆ»¤È¤Ê¤ê¤Þ¤¹¡£
°ÌÃÖ¿Þ

°ÌÃÖ¿Þ[½Ðŵ¡§ËÏÅĶè]
¡¡¡Ö(²¾¾Î)¶ùÅÄÀî±èÀî±¹¶¶¼þÊÕÃ϶è¡×¤Ï¶ùÅÄÀî¤Î¤¹¤°¶á¤¯¤Ç¡¢ºÇ´ó±Ø¤ÏÅÔ±ÄÂç¹¾¸ÍÀþ¡¦ÀõÁðÀþ¡Ö¢Á°¡×±Ø¤ÎÅ즤DZ¹¶¶¡Ê¤¦¤Þ¤ä¤Ð¤·¡Ë¤òÅϤ俤Ȥ³¤í¤Ë°ÌÃÖ¤·¤Æ¤¤¤Þ¤¹¡£¾¯¡¹µ÷Î¥¤Ï¤¢¤ê¤Þ¤¹¤¬Æî¦¤Ë¹Ô¤¯¤ÈJRÁíÉðÀþ¡Öξ¹ñ¡×±Ø¤â¤¢¤ê¤Þ¤¹¡£

°ÌÃÖ¿Þ[½Ðŵ¡§ËÏÅĶè]
¡¡·×²èÃϤÎÀ¾Â¦¤Ï¶ùÅÄÀî¤È¤Ê¤Ã¤Æ¤¤¤Þ¤¹¤¬¡¢·×²èÃϤȤδ֤ˤϼóÅÔ¹â¸þÅçÀþ¤Î¹â²Í¤¬¤¢¤ê¤Þ¤¹¡£¤Þ¤¿¡¢½ÕÆüÄ̤ꡢÀ¶À¡Ä̤ê¤È¤¤¤Ã¤¿´´Àþƻϩ¤Ë¤ÏÌ̤·¤Æ¤¤¤Ê¤¤¤¿¤á¸òÄÌÎ̤Ͼ¯¤Ê¤¤¾ì½ê¤È¤Ê¤Ã¤Æ¤¤¤Þ¤¹¡£
´û¸·úʪ²òÂξõ¶·

¡¡2023ǯ11·î25Æü¤ËËÌÀ¾Â¦¤«¤é»£±Æ¤·¤¿²òÂÎÃæ¤Î¡Öµì¥é¥¤¥ª¥óËܼҥӥë¡×¤Ç¤¹¡£¤³¤Î²òÂθå¤ÎÀ×ÃϤ˵þÉ͵޹ÔÅÅÅ´¤Ë¤è¤ëÃϾå26³¬¡¢¹â¤µÌó92.9m¡¢±ä¾²ÌÌÀÑÌó4Ëü7400Ö¡¢Áí¸Í¿ô480¸Íµ¬ÌϤȤʤ륿¥ï¡¼¥Þ¥ó¥·¥ç¥ó¡Ö(²¾¾Î)¶ùÅÄÀî±èÀî±¹¶¶¼þÊÕÃ϶è¡×¤¬·úÀßͽÄê¤È¤Ê¤Ã¤Æ¤¤¤Þ¤¹¡£

¡¡¶ùÅÄÀî¤ÎÄéËɱ褤¤Ë¤¢¤ëÄÌÏ©¤«¤é»£±Æ¡£¤³¤ÎÊÕ¤ê¤ËÀ°È÷ͽÄê¤Î¥¹¡¼¥Ñ¡¼ÄéËɤȷҤ¬¤ë¥Ç¥Ã¥¤¬·úÀߤµ¤ì¤Þ¤¹¡£

¡¡ÆîÀ¾Â¦¤«¤é»£±Æ¡£²òÂι©»ö¤Î»Ü¹©¼Ô¤ÏĹ빩¥³¡¼¥Ý¥ì¡¼¥·¥ç¥ó¤Ç¡¢²òÂι©´ü¤Ï2025ǯ1·î20Æü¤Þ¤Ç¤È¤Ê¤Ã¤Æ¤¤¤Þ¤¹¡£

¡¡ÆîÅ즤«¤é»£±Æ¡£ºî¶ÈͽÄê¤ÏÆâÁõ²òÂΡ¢ÀßÈ÷űµî¡¢Â¾ìÁÈΩ¡¢¥¢¥¹¥Ù¥¹¥È½üµî¡¢²òÂκàȽФȤʤäƤ¤¤Þ¤·¤¿¡£

¡¡Å즤«¤é¸«¾å¤²¤¿ÍͻҤǤ¹¡£¸½ÃϤ˹Ԥ¯¤È¤ï¤«¤ê¤Þ¤¹¤¬¡¢¤½¤ì¤Ê¤ê¤Ë¹¤¤ÉßÃϤȤʤäƤ¤¤Þ¤¹¡£

¡¡ËÌÅ즤«¤é»£±Æ¡£¤³¤Á¤é¦¤ËÁ뤬¤¢¤ì¤Ð¶ùÅÄÀî¤Î²Ö²ÐÂç²ñ¤ò´Ö¶á¤Ë˾¤á¤ë¥Ó¥ë¤Ë¤Ê¤Ã¤Æ¤¤¤Þ¤·¤¿¡£

¡¡Ë̦¤Ë¤¢¤ë¾®¤µ¤á¤Ê¥Ó¥ë¤â¡Ö(²¾¾Î)¶ùÅÄÀî±èÀî±¹¶¶¼þÊÕÃ϶è¡×¤â´Þ¤Þ¤ì¤Æ¤¤¤Þ¤¹¡£²òÂι©»ö¤Î¤ªÃΤ餻¤Ç¤Ï6³¬·ú¤Æ¤ÎµìËܼҥӥë¤â²òÂÎÂоݤȤʤäƤ¤¤¿¤Î¤Ç¡¢¤³¤ì¤¬µìËܼҥӥ뤫¤È»×¤ï¤ì¤Þ¤¹¡£

¡¡¶ùÅÄÀˤ¢¤ë4³¬·ú¤Æ¤Î¥Ó¥ë¤â¡Ö(²¾¾Î)¶ùÅÄÀî±èÀî±¹¶¶¼þÊÕÃ϶è¡×¤â´Þ¤Þ¤ì¤Æ¤¤¤Þ¤¹¡£²òÂι©»ö¤Î¤ªÃΤ餻¤Ç¤Ï4³¬·ú¤Æ¤Î¸¦µæÅï¤â²òÂÎÂоݤȤʤäƤ¤¤¿¤Î¤Ç¡¢¤³¤ì¤¬¸¦µæÅ狼¤È»×¤ï¤ì¤Þ¤¹¡£

¡¡¶ùÅÄÀî±Û¤·¤ËÀ¾Â¦¤«¤é»£±Æ¤·¤¿¡Öµì¥é¥¤¥ª¥óËܼҥӥë¡×¤Ç¤¹¡£ÌܤÎÁ°¤Ë¼óÅÔ¹â¸þÅçÀþ¤Î¹â²Í¤¬¤¢¤ë¤¿¤á¡¢¤³¤ì¤è¤ê¹â¤¤¥Õ¥í¥¢¤À¤È³«¤±¤¿Ä¯Ë¾¤¬³Ú¤·¤á¤Þ¤¹¡£

¡¡ËÌÅ즤ˤÏÅìµþ¥¹¥«¥¤¥Ä¥ê¡¼¤¬¤¢¤ê¤Þ¤¹¡£1.5¥¥íÄøÅÙ¤·¤«Î¥¤ì¤Æ¤¤¤Ê¤¤¤¿¤á·ë¹½Â礤¯¸«¤¨¤Þ¤¹¡£

¡¡¶ùÅÄÀî¤È¸À¤¨¤Ð¶ùÅÄÀî²Ö²ÐÂç²ñ¤Ç¤¹¤¬¡¢¤³¤Î±ü¤ÎÊý¤¬ÂǤÁ¾å¤²¾ì½ê¤È¤Ê¤Ã¤Æ¤¤¤Þ¤¹¡£¤«¤Ê¤ê´Ö¶á¤Ë˾¤á¤ëΩÃϤȤʤäƤ¤¤Þ¤¹¤¬¡¢Ê¿Ì̿ޤò¸«¤ë¸Â¤ê¤Ç¤ÏË̸þ¤¤ÎÉô²°¤«¤é¤·¤«²Ö²Ð¤Ï¸«¤¨¤Ê¤µ¤½¤¦¤Ç¤·¤¿¡£¤¿¤À¡¢²°¾å¥Æ¥é¥¹¤¬Àߤ±¤é¤ì¤ë¤è¤¦¤Ê¤Î¤Ç¡¢ÃêÁª¤Ë¤Ê¤ë¤È»×¤¤¤Þ¤¹¤¬½»Ì±¤Ê¤é¤Ð¤½¤³¤«¤é²Ö²Ð¤ò³Ú¤·¤à¤³¤È¤¬¤Ç¤¤½¤¦¤Ç¤¹¡£

¡¡2023ǯ4·î27Æü¤ËÅìµþ¥¹¥«¥¤¥Ä¥ê¡¼¤«¤é»£±Æ¤·¤¿¡Öµì¥é¥¤¥ª¥óËܼҥӥë¡×¤Ç¤¹¡£¼Ì¿¿Ãæ±û¾å¤Ë¸«¤¨¤Æ¤¤¤ë¥¿¥ï¡¼¥Þ¥ó¥·¥ç¥ó¤Î¼êÁ°¤Î¥Ó¥ë¤¬¡¢¥é¥¤¥ª¥óËܼҤ¬°Üž¤·¤¿¡ÖJP¥é¥¤¥ª¥ó¥Ó¥ë¥Ç¥£¥ó¥°¡×¤Ç¤¹¡£

¡¡¹³Ñ¤Ç»£±Æ¡£À¾Â¦½»¸Í¤ÏÅìµþÅÔ¿´¥Ó¥å¡¼¡¢Å즽»¸Í¤ÏÅìµþ¥¹¥«¥¤¥Ä¥ê¡¼¥Ó¥å¡¼¤È¤Ê¤ëΩÃϤˤʤäƤ¤¤Þ¤¹¡£¶ùÅÄÀî¤È¤Î´Ö¤Ë¤Ïƻϩ¤È¼óÅԹ⤷¤«¤Ê¤¤¤Î¤Ç¡¢À¾Â¦¤Î¼óÅÔ¹â¤òͤ¨¤ë¹â¤µ¤ÎÉô²°¤Ï±Êµ×į˾¤È¤Ê¤ê¤Þ¤¹¡£

¡¡²òÂι©»ö¤Î¤ªÃΤ餻¤Ç¤¹¡£

¡¡²òÂι©»ö¤Î̾¾Î¤Ï¡Ö(²¾¾Î)ËÏÅĶèËܽ꣱ÃúÌܷײè²òÂι©»ö¡×¤È¤Ê¤Ã¤Æ¤¤¤Þ¤·¤¿¡£
ÃÏ¿Þ
ʪ·ï³µÍ×
Ã϶è̾¡§(²¾¾Î)¶ùÅÄÀî±èÀî±¹¶¶¼þÊÕÃ϶è
½êºßÃÏ¡§ÅìµþÅÔËÏÅĶèËܽ꣱ÃúÌÜ3
¸òÄÌ¡§ÅÔ±ÄÂç¹¾¸ÍÀþ¡¦ÀõÁðÀþ¡Ö¢Á°¡×±Ø
¡¡¡¡¡¡JRÁíÉðÀþ¡Öξ¹ñ¡×±Ø
ÍÑÅÓ¡§¶¦Æ±½»Âð¡¢Å¹ÊÞ
Áí¸Í¿ô¡§480¸Í
³¬¿ô¡§ÃϾå26³¬
¹â¤µ¡§Ìó92.9m
ÉßÃÏÌÌÀÑ¡§Ìó6,500Ö
·úÃÛÌÌÀÑ¡§Ìó2,270Ö
±ä¾²ÌÌÀÑ¡§Ìó47,400Ö
»ö¶È¼Ô¡§µþÉ͵޹ÔÅÅÅ´
Àß·×¼Ô¡§¡Ý
»Ü¹©¼Ô¡§¡Ý
¹©´ü¡§2025ǯ2·îÃ幩¡Á2028ǯ3·î½×¹©Í½Äê
½Ðŵ
¢§ËÏÅĶ衧¶ùÅÄÀî±èÀîÃ϶è¤Þ¤Á¤Å¤¯¤ê¡Ê2023ǯ11·î21Æü¡Ë
¡Ê²¾¾Î¡Ë¶ùÅÄÀî±èÀî±¹¶¶¼þÊÕÃ϶èÃ϶è·×²è¡Ê¸¶°Æ¡Ë¤Ë¤Ä¤¤¤Æ
¢§·úÀßÄÌ¿®¿·Ê¹¡Ê2023ǯ11·î24Æü¡Ë
¥é¥¤¥ª¥óËܼÒÀפË4.7ËüÖ¶¦½»/¥¹¡¼¥Ñ¡¼ÄéËɤȰìÂΥǥå¤â/µþÉ͵޹ÔÅÅÅ´
- ¥«¥Æ¥´¥ê
- ËÏÅĶè







