
¡¡JR¡ÖÊ¿°æ¡×±ØÁ°¤Ç·úÀßÃæ¤Î¡Ö¥×¥é¥¦¥É¥¿¥ï¡¼Ê¿°æ¡×(ÃϾå29³¬¡¢ºÇ¹â¹â¤µ114.45m)¤Ç¤¹¡£2023ǯ11·î16Æü¤Ë»£±Æ¤·¤Þ¤·¤¿¡£±Ø¤«¤éÅÌÊâ2ʬ¡¢ÄãÁØÉô¤Ë¾¦¶È»ÜÀߤ¬Æþ¤ëÌî¼ÉÔÆ°»º¤ÈºåµÞºå¿ÀÉÔÆ°»º¤Ë¤è¤ë½»¡¦¾¦Ê£¹çʬ¾ù¥¿¥ï¥Þ¥ó¤Ç¤¹¡£¤³¤Îµ»ö¤Ç¤ÏƱ¥¿¥ï¥Þ¥ó¤Î³µÍפä·úÀß¾õ¶·¡¢ÃÏ¿ÞÅù¤òºÜ¤»¤Æ¤¤¤Þ¤¹¡£
¥×¥é¥¦¥É¥¿¥ï¡¼Ê¿°æ¤Ë¤Ä¤¤¤Æ

³°´Ñ´°À®Í½ÁÛCG[½Ðŵ¡§¸ø¼°HP]
¡¡¡Ö¥×¥é¥¦¥É¥¿¥ï¡¼Ê¿°æ¡×¤ÏJRÁíÉðÀþ¡ÖÊ¿°æ¡×±ØÁ°¤Î¥¿¥ï¡¼¥Þ¥ó¥·¥ç¥ó¤Ç¡¢µ¬ÌϤÏÃϾå29³¬¡¢Ãϲ¼1³¬¡¢¹â¤µ109.49m¡¢ºÇ¹â¹â¤µ114.45m¡¢ÉßÃÏÌÌÀÑ3,725.46Ö¡¢·úÃÛÌÌÀÑ2,206.31Ö¡¢±ä¾²ÌÌÀÑ4Ëü4155.99Ö¡¢Áí¸Í¿ô374¸Í(Èóʬ¾ù½»¸Í106¸Í´Þ¤à)¤È¤Ê¤Ã¤Æ¤¤¤Þ¤¹¡£
¡¡·úÃÛ¼ç¤ÏÊ¿°æ¸ÞÃúÌܱØÁ°Ã϶è»Ô³¹ÃϺƳ«È¯Áȹç¡Ê»²²ÃÁȹç°÷¡¦Çä¼ç¡§Ìî¼ÉÔÆ°»º¡¢ºåµÞºå¿ÀÉÔÆ°»º¡Ë¡¢À߷׼ԤϺ´Æ£Áí¹ç·×²è¡¦Á°ÅÄ·úÀß¹©¶È¶¦Æ±´ë¶ÈÂΡ¢»Ü¹©¼Ô¤ÏÁ°ÅÄ·úÀß¹©¶È¤Ç2024ǯ11·î²¼½Ü½×¹©¡¢2025ǯ4·î¾å½Ü¤ÎÆþµï³«»ÏͽÄê¤È¤Ê¤Ã¤Æ¤¤¤Þ¤¹¡£

³°´Ñ´°À®Í½ÁÛCG[½Ðŵ¡§¸ø¼°HP]
¡¡¸½ºß¤Ï7¸Í¤¬ÀèÃå½çÈÎÇäÃæ¤È¤Ê¤Ã¤Æ¤ª¤ê¡¢ÈÎÇä´Ö¼è¤ê¤Ï3LDK¡Á4LDK¡¢ÀìÍÌÌÀѤÏ72.08Ö¡Á94.00Ö¤ÇÈÎÇä²Á³Ê¤Ï7888Ëü±ß¡Á1²¯4988Ëü±ß¤È¤Ê¤Ã¤Æ¤¤¤Þ¤¹¡£¤Þ¤¿¡¢2023ǯ12·î¾å½Ü¤«¤é¤ÏÂè4´ü¤ÎÈÎÇ䳫»ÏͽÄê¤Ç¤¹¡£

±ØÁ°¥¨¥ê¥¢³µÇ°¿Þ[½Ðŵ¡§¸ø¼°HP]
¡¡·úÀßÃϤÏJRÁíÉðÀþ¡ÖÊ¿°æ¡×±Ø¤ÎË̸ýÁ°¤Ë¤¢¤ë¡ÖÊ¿°æ±ØË̸ý¹¾ì¡×¤È¢Á°¶¶Ä̤ê¤Ë¶´¤Þ¤ì¤¿»ÍÊý¤¬Æ»Ï©¤Ë°Ï¤Þ¤ì¤¿ÉßÃϤǡ¢¹¾ì¦¤È¢Á°¶¶Ä̤ꦤˤϹ¾ì¤¬ÇÛÃÖ¤µ¤ì¤Þ¤¹¡£

¥Õ¥í¥¢³µÇ°¿Þ[½Ðŵ¡§¸ø¼°HP]
¡¡Æ±¥¿¥ï¥Þ¥ó¤Î1¡Á2³¬¤Ë¤Ï¾¦¶È»ÜÀß¡¢2³¬¤Ë¤ÏÃϰè¹×¸¥Íѽ¸²ñ¼¼¡¢3³¬¤Ë¤Ïǧ²ÄÊݰé½ê¤¬Æþ¤ë½»Â𡦾¦¶È¡¦»Ò°é¤ÆÊ£¹çºÆ³«È¯¥¿¥ï¡¼¤È¤Ê¤ê¤Þ¤¹¡£
¡¢¥Þ¥ó¥·¥ç¥ó¤Î»ÜÀߤȤ·¤Æ¤Ï2³¬¤Ë¥¨¥ó¥È¥é¥ó¥¹¤È¥é¥¦¥ó¥¸¡¢3³¬¤Ë¥³¥ß¥å¥Ë¥Æ¥£¥é¥¦¥ó¥¸¡Ê¥é¥¦¥ó¥¸¡¢¥Æ¥é¥¹¡¢¥¹¥¿¥Ç¥£¥ë¡¼¥à¡¢¥é¥¤¥Ö¥é¥ê¡¼¥é¥¦¥ó¥¸¡¢¥×¥ì¥¤¥¨¥ê¥¢¡¢¥¥Ã¥º¥ë¡¼¥à¡Ë¡¢4³¬¤Ë½»ÂðÍѼ«Å¾¼ÖÃ־졢¤½¤·¤Æ25³¬¤Ë¥¹¥«¥¤¥é¥¦¥ó¥¸¤È¥²¥¹¥È¥ë¡¼¥à¤¬ÇÛÃÖ¤µ¤ì¤Þ¤¹¡£½»Âð¥Õ¥í¥¢¤Ï5³¬¡Á29³¬¤È¤Ê¤Ã¤Æ¤¤¤Þ¤¹¡£

³°´Ñ´°À®Í½ÁÛCG[½Ðŵ¡§¸ø¼°HP]
¡¡Â¢Á°¶¶Ä̤ê¤ËÌ̤·¤¿ÉßÃÏÀ¾Â¦¤Ë¤Ï¡¢¤¤¤³¤¤¤Î¹¾ì¡¢¥¹¥¥Ã¥×¥Æ¥é¥¹¡¢Ãó¼Ö¾ì¤Î½ÐÆþ¸ý¤¬ÇÛÃÖ¤µ¤ì¤Þ¤¹¡£

¥¨¥ó¥È¥é¥ó¥¹´°À®Í½ÁÛCG[½Ðŵ¡§¸ø¼°HP]
¡¡2³¬¤ËÇÛÃÖ¤µ¤ì¤ë¥¨¥ó¥È¥é¥ó¥¹¤ÏÆâ¤È³°¤ò°ìľÀþ¤Ë¤Ä¤Ê¤°±ü¹Ô¤¤Î¤¢¤ë¶õ´Ö¤Ë¤Ê¤ê¤Þ¤¹¡£

¥³¥ß¥å¥Ë¥Æ¥£¥é¥¦¥ó¥¸´°À®Í½ÁÛCG[½Ðŵ¡§¸ø¼°HP]
¡¡3³¬¤Î¥³¥ß¥å¥Ë¥Æ¥£¥é¥¦¥ó¥¸¤Ï¾®¤µ¤Êµ¡Ç½¤òÅÀºß¤µ¤»¤¿¶¦ÍÑÉô¤È¤Ê¤ê¡¢¥¹¥¿¥Ç¥£¥ë¡¼¥à¤ä¥³¥ß¥å¥Ë¥Æ¥£¥é¥¦¥ó¥¸¡¢¥×¥ì¥¤¥¨¥ê¥¢¤È¤¤¤Ã¤¿µ¡Ç½¤¬ÇÛÃÖ¤µ¤ì¤Þ¤¹¡£

¥¹¥«¥¤¥é¥¦¥ó¥¸´°À®Í½ÁÛCG[½Ðŵ¡§¸ø¼°HP]
¡¡25³¬¥¹¥«¥¤¥é¥¦¥ó¥¸¤«¤é¤ÏÅìµþ¥¹¥«¥¤¥Ä¥ê¡¼¤ò˾¤à¤³¤È¤¬¤Ç¤¤Þ¤¹¡£

¥²¥¹¥È¥ë¡¼¥à´°À®Í½ÁÛCG[½Ðŵ¡§¸ø¼°HP]
¡¡25³¬¤Ë¤Ï¥²¥¹¥È¥ë¡¼¥à¤âÀßÃÖ¤µ¤ì¤Þ¤¹¡£
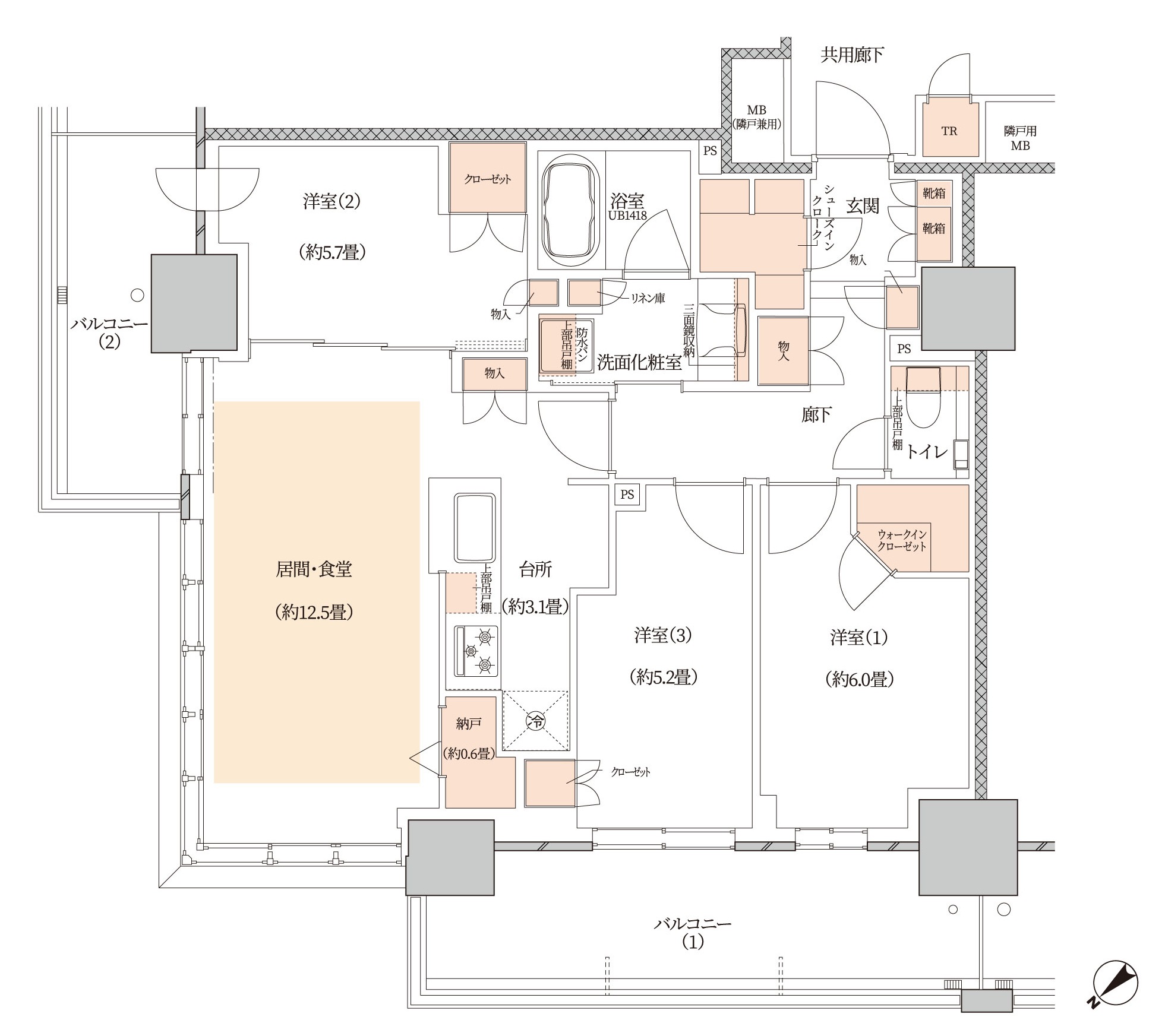
´Ö¼è¤ê¿Þ

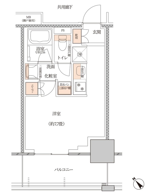
LG¥¿¥¤¥×[½Ðŵ¡§¸ø¼°HP]
¡¡LG¥¿¥¤¥×¤Î´Ö¼è¤ê¿Þ¤Ç¤¹¡£´Ö¼è¤ê¤Ï1R¡¢ÀìÍÌÌÀѤÏ25.93Ö¡¢¥Ð¥ë¥³¥Ë¡¼ÌÌÀѤÏ6.84֤ȤʤäƤ¤¤Þ¤¹¡£

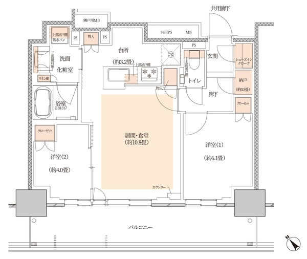
LLA¥¿¥¤¥×[½Ðŵ¡§¸ø¼°HP]
¡¡LLA¥¿¥¤¥×¤Î´Ö¼è¤ê¿Þ¤Ç¤¹¡£´Ö¼è¤ê¤Ï2LDK+N¡ÜSIC¡¢ÀìÍÌÌÀѤÏ55.81Ö¡¢¥Ð¥ë¥³¥Ë¡¼ÌÌÀѤÏ14.19֤ȤʤäƤ¤¤Þ¤¹¡£

MM¥¿¥¤¥×[½Ðŵ¡§¸ø¼°HP]
¡¡MM¥¿¥¤¥×¤Î´Ö¼è¤ê¿Þ¤Ç¤¹¡£´Ö¼è¤ê¤Ï3LDK+N+WIC¡ÜSIC¡¢ÀìÍÌÌÀѤÏ77.48Ö¡¢¥È¥é¥ó¥¯¥ë¡¼¥àÌÌÀÑ0.61Ö¡¢¥Ð¥ë¥³¥Ë¡¼ÌÌÀѤÏ19.37Ö¤ÇÆ±¥¿¥¤¥×¤Î11³¬¤ÎÉô²°¤¬8948Ëü±ß¤ÇÀèÃå½çÈÎÇäÃæ¤È¤Ê¤Ã¤Æ¤¤¤Þ¤¹¡£

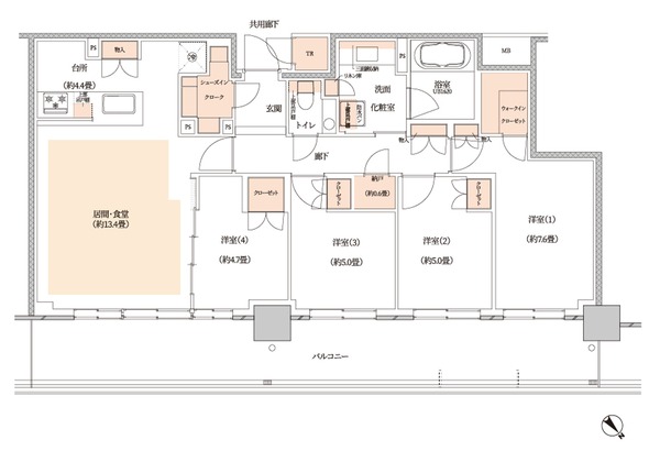
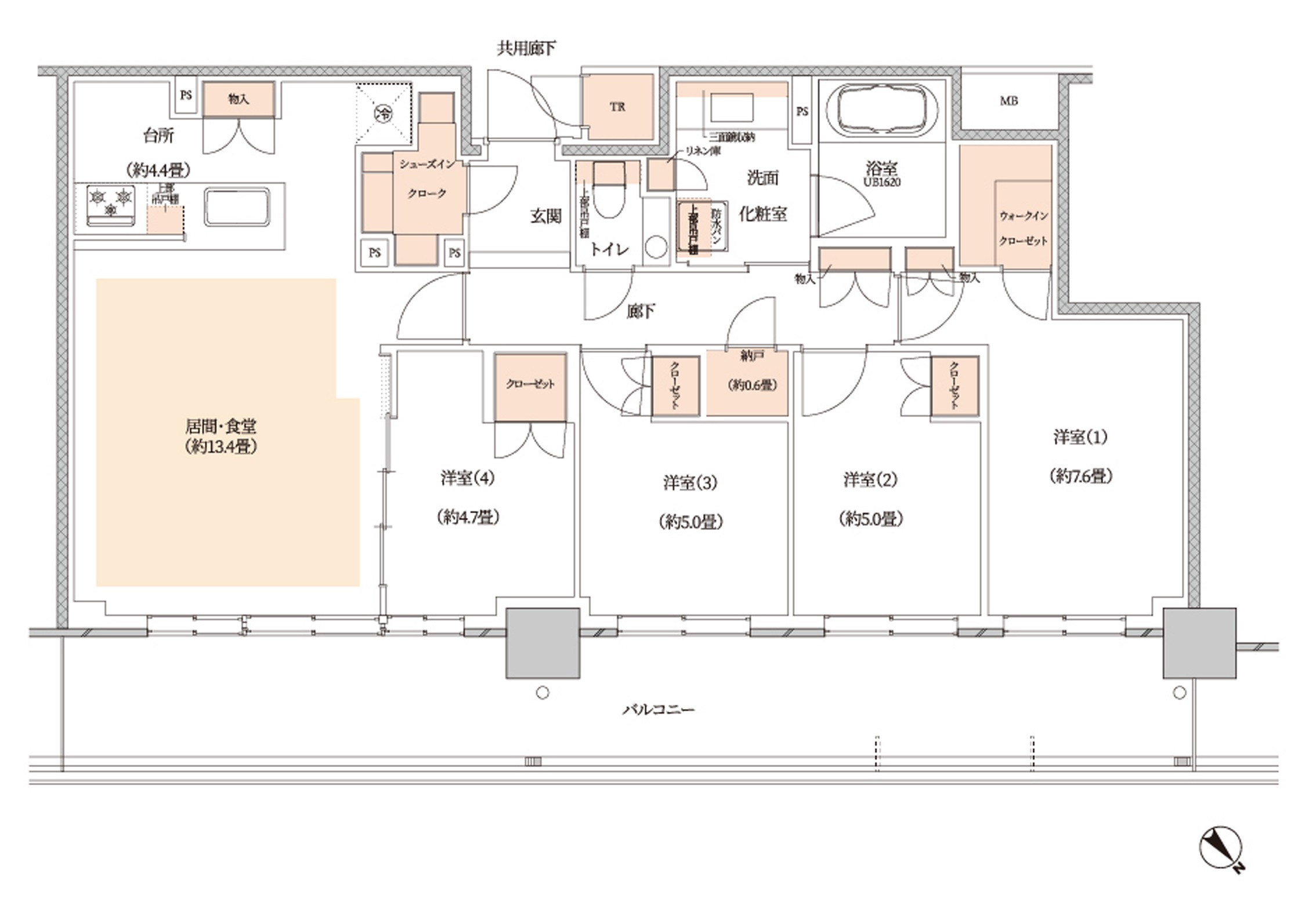
HI¥¿¥¤¥×[½Ðŵ¡§¸ø¼°HP]
¡¡¥×¥ì¥ß¥¢¥à¥Õ¥í¥¢¤È¤Ê¤ëHI¥¿¥¤¥×¤Î´Ö¼è¤ê¿Þ¤Ç¤¹¡£´Ö¼è¤ê¤Ï4LDK+N+WIC+SIC¡¢ÀìÍÌÌÀѤÏ93.00Ö¡¢¥È¥é¥ó¥¯¥ë¡¼¥àÌÌÀѤÏ1.00Ö¡¢¥Ð¥ë¥³¥Ë¡¼ÌÌÀѤÏ25.74Ö¤ÇÆ±¥¿¥¤¥×¤Î29³¬¤ÎÉô²°¤¬1²¯4988Ëü±ß¤ÇÀèÃå½çÈÎÇäÃæ¤È¤Ê¤Ã¤Æ¤¤¤Þ¤¹¡£

´°À®Í½ÁÛCG[½Ðŵ¡§¸ø¼°HP]
¡¡ÊÌ¥¿¥¤¥×¤ÎÉô²°¤Ç¤¹¤¬¡¢¥×¥ì¥ß¥¢¥à¥Õ¥í¥¢(28³¬¡¢29³¬)¤Î´°À®Í½ÁۿޤǤ¹¡£Åìµþ¥¹¥«¥¤¥Ä¥ê¡¼¤ò¸µ¤«¤é¸«¤ë¤³¤È¤¬¤Ç¤¤Þ¤¹¡£28³¬¤ÏÅ·°æ¹â2.7m¡¢29³¬¤ÏÅ·°æ¹â2.8m¤Ç¡¢ÀìÍѥȥé¥ó¥¯¥ë¡¼¥à¤äÃó¼Ö¾ìÍ¥À踢¤¬ÉÕ¤¤¤Æ¤¤¤Þ¤¹¡£
°ÌÃÖ¿Þ

¸½ÃÏ°ÆÆâ¿Þ[½Ðŵ¡§¸ø¼°HP]
¡¡¡Ö¥×¥é¥¦¥É¥¿¥ï¡¼Ê¿°æ¡×¤Î·úÀßÃϤÏJRÁíÉðÀþ¡ÖÊ¿°æ¡×±Ø¤ÎË̸ý¤«¤éÅÌÊâ2ʬ¤Ç¢Á°¶¶Ä̤ê¤ËÌ̤·¤¿¾ì½ê¤È¤Ê¤Ã¤Æ¤¤¤Þ¤¹¡£Æ±¥¿¥ï¥Þ¥ó¤È±Ø¤Î´Ö¤Ë¤Ï¡ÖÊ¿°æ±ØË̸ý±ØÁ°¸ø±à¡×¤¬¤¢¤ë¤¿¤á¿®¹æ¤ò2¤ÄÅϤëɬÍפ¬¤¢¤ê¤Þ¤¹¡£
¡¡Ê¿°æ±Ø¤Ïµµ¸Í±Ø¤È¿·¾®´ä±Ø¤Î´Ö¤Ë¤¢¤ë±Ø¤Ç¡¢¹ÓÀî¤òÅÔ¿´Â¦¤ØÅϤ俤Ȥ³¤í¤Ë°ÌÃÖ¤·¤Æ¤¤¤Þ¤¹¡£¹ÓÀ¹¾¸ÍÀî¶è¤Î¶³¦Àþ¤À¤È»×¤ï¤ì¤¬¤Á¤Ç¤¹¤¬¡¢¤³¤³Ê¿°æ¤â¹¾¸ÍÀî¶è¤È¤Ê¤Ã¤Æ¤¤¤Þ¤¹¡£
·úÀß¾õ¶·

¡¡2023ǯ11·î16Æü¤ËJRÁíÉðÀþ¡ÖÊ¿°æ¡×±Ø¤Î¥Û¡¼¥à¤«¤é»£±Æ¤·¤¿¡Ö¥×¥é¥¦¥É¥¿¥ï¡¼Ê¿°æ¡×(ÃϾå29³¬¡¢ºÇ¹â¹â¤µ114.45m)¤Î·úÀßÃϤǤ¹¡£±ØÁ°Î©ÃϤȤ¤¤¦¤³¤È¤¬¤ï¤«¤ê¤Þ¤¹¡£

¡¡JRÊ¿°æ±ØÂ¦¤È¤Ê¤ëÅ즤«¤é»£±Æ¡£11³¬¤Þ¤Ç·úÀߤ¬¿Ê¤ó¤Ç¤¤¤Þ¤·¤¿¡£

¡¡Æî¦¤«¤é»£±Æ¡£±ØÂ¦¤Î1¡¢2³¬¤¬¾¦¶È»ÜÀß¡¢3³¬¤¬Ç§²ÄÊݰé½ê¤Ë¤Ê¤ê¤Þ¤¹¡£

¡¡Â¢Á°¶¶Ä̤ê±è¤¤¤ËÀ¾Â¦¤«¤é»£±Æ¡£¤³¤Á¤é¤Î³ÑÃϤ˥¹¥¥Ã¥×¥Æ¥é¥¹¤â¤¢¤ë¹¾ì¤¬ÇÛÃÖ¤µ¤ì¤Þ¤¹¡£

¡¡Ë̦¤«¤é»£±Æ¡£ÄãÁس¬¤Ç¤âÀ¾Â¦¤ËÅìµþ¥¹¥«¥¤¥Ä¥ê¡¼¤¬¥¥ì¥¤¤Ë¸«¤¨¤ë¥¿¥ï¡¼¥Þ¥ó¥·¥ç¥ó¤Ë¤Ê¤ê¤Þ¤¹¡£
ÃÏ¿Þ
ʪ·ï³µÍ×

¡¡·úÃ۷ײè¤Î¤ªÃΤ餻¤Ç¤¹¡£
¢£Êª·ï³µÍ×¢£
̾¾Î¡§¥×¥é¥¦¥É¥¿¥ï¡¼Ê¿°æ
»ö¶È̾¡§Ê¿°æ¸ÞÃúÌܱØÁ°Ã϶èÂè°ì¼ï»Ô³¹ÃϺƳ«È¯»ö¶È
½êºßÃÏ¡§ÅìµþÅÔ¹¾¸ÍÀî¶èÊ¿°æ¸ÞÃúÌÜ65ÈÖ¡ÊÃÏÈÖ¡Ë
¸òÄÌ¡§JRÁíÉðÀþ¡ÖÊ¿°æ¡×±Ø ÅÌÊâ2ʬ
ÍÑÅÓ¡§¶¦Æ±½»Âð¡¢Å¹ÊÞ¡¢Êݰé½ê¡¢»ö̳½ê¡¢Ãó¼Ö¾ì¡¢ÃóÎØ¾ì
Áí¸Í¿ô¡§374¸Í¡ÊÈóʬ¾ù½»¸Í106¸Í´Þ¤à¡Ë
³¬¿ô¡§ÃϾå29³¬¡¢Ãϲ¼1³¬
¹â¤µ¡§109.49m¡ÊºÇ¹â¹â¤µ114.45m¡Ë
¹½Â¤¡§Å´¶Ú¥³¥ó¥¯¥ê¡¼¥È¤ °ìÉôÅ´¹ü¤¡¢Ìȿ̹½Â¤
´ðÁù©Ë¡¡§¹º´ðÁÃ
ÉßÃÏÌÌÀÑ¡§3,725.46Ö
·úÃÛÌÌÀÑ¡§2,206.31Ö
±ä¾²ÌÌÀÑ¡§44,155.99Ö
·úÃۼ硧ʿ°æ¸ÞÃúÌܱØÁ°Ã϶è»Ô³¹ÃϺƳ«È¯Áȹç
»²²ÃÁȹç°÷¡§Ìî¼ÉÔÆ°»º¡¢ºåµÞºå¿ÀÉÔÆ°»º
Çä¼ç¡§Ìî¼ÉÔÆ°»º¡¢ºåµÞºå¿ÀÉÔÆ°»º
Àß·×¼Ô¡§º´Æ£Áí¹ç·×²è¡¦Á°ÅÄ·úÀß¹©¶È¶¦Æ±´ë¶ÈÂÎ
»Ü¹©¼Ô¡§Á°ÅÄ·úÀß¹©¶È
¹©´ü¡§2021ǯ3·î23ÆüÃ幩¡Á2024ǯ11·î²¼½Ü½×¹©Í½Äê
Æþµï¡§2025ǯ2·î²¼½ÜͽÄê
½Ðŵ
¢§¸ø¼°HP¡§¥×¥é¥¦¥É¥¿¥ï¡¼Ê¿°æ
https://www.proud-web.jp/mansion/b115580/
- ¥«¥Æ¥´¥ê
- ¹¾¸ÍÀî¶è







