
¡¡¶áÅ´¡ÖÂçºå¾åËÜÄ®¡×±ØÁ°¤Ç·úÀßÃæ¤Î¥¿¥ï¡¼¥Þ¥ó¥·¥ç¥ó¡Ö¥á¥È¥é¥¤¥º¥¿¥ï¡¼Âçºå¾åËÜÄ®¡×(ÃϾå29³¬¡¢¹â¤µ99.98m)¤Ç¤¹¡£2023ǯ10·î22Æü¤Ë»£±Æ¤·¤Þ¤·¤¿¡£2097ǯ6·î30Æü¤Þ¤Ç¤Î°ìÈÌÄê´ü¼ÚÃϸ¢ÉÕ¤¤Îʬ¾ù¥¿¥ï¥Þ¥ó¤Ç¡¢Âçºå¥á¥È¥í¤¬Çä¼ç¤È¤Ê¤ë½é¤Î¥Þ¥ó¥·¥ç¥ó¤È¤Ê¤Ã¤Æ¤¤¤Þ¤¹¡£¤³¤Îµ»ö¤Ç¤ÏƱ¥¿¥ï¥Þ¥ó¤Î³µÍפä·úÀß¾õ¶·¡¢ÃÏ¿ÞÅù¤òºÜ¤»¤Æ¤¤¤Þ¤¹¡£
¥á¥È¥é¥¤¥º¥¿¥ï¡¼Âçºå¾åËÜÄ®¤Ë¤Ä¤¤¤Æ

³°´Ñ´°À®Í½ÁÛ¿Þ[½Ðŵ¡§¸ø¼°HP]
¡¡¡Ö¥á¥È¥é¥¤¥º¥¿¥ï¡¼Âçºå¾åËÜÄ®¡×¤Ï¶áÅ´¡ÖÂçºå¾åËÜÄ®¡×±ØÁ°¤Î¥¿¥ï¡¼¥Þ¥ó¥·¥ç¥ó¤Ç¡¢µ¬ÌϤÏÃϾå29³¬¡¢Ãϲ¼1³¬¡¢¹â¤µ99.98m¡¢ÉßÃÏÌÌÀÑ1,483.79Ö¡¢·úÃÛÌÌÀÑ890.19Ö¡¢±ä¾²ÌÌÀÑ1Ëü6861.07Ö¡¢Áí¸Í¿ô135¸Í¤È¤Ê¤Ã¤Æ¤¤¤Þ¤¹¡£
¡¡·úÃÛ¼ç¤ÈÇä¼ç¤ÏÂçºå»Ô¹â®Åŵ¤µ°Æ»(Âçºå¥á¥È¥í)¤È´ØÅÅÉÔÆ°»º³«È¯¡¢Àß·×¼Ô¤ÏIAOÃÝÅÄÀ߷ס¢»Ü¹©¼Ô¤Ï¹ãÃÓÁȤÇ2024ǯ4·î²¼½Ü½×¹©¡¢2024ǯ7·î¤Î¾å½ÜÆþµï³«»ÏͽÄê¤Ç¤¹¡£2097ǯ6·î30Æü¤Þ¤Ç¡Ê²òÂι©»ö´ü´Ö´Þ¤à¡Ë¤ÎÄê´ü¼ÚÃϸ¢ÉÕ¤¤È¤Ê¤Ã¤Æ¤¤¤Þ¤¹¡£

³°´Ñ´°À®Í½ÁÛ¿Þ[½Ðŵ¡§¸ø¼°HP]
¡¡¸½ºß¤Ï12¸Í¤¬ÀèÃå½çÈÎÇäÃæ¤Ç¡¢ÈÎÇä´Ö¼è¤ê¤Ï1K¡Á3LDK¡¢ÀìÍÌÌÀѤÏ33.59Ö¡Á101.91Ö¡¢¥Ð¥ë¥³¥Ë¡¼ÌÌÀѤÏ8.80Ö¡Á22.64Ö¡¢ÈÎÇä²Á³Ê¤Ï3340Ëü±ß¡Á1²¯7500Ëü±ß¡ÊÁ°Ê§ÃÏÂå¡§325Ëü,800±ß¡Á986Ëü760±ß¤ò´Þ¤à¡Ë¤È¤Ê¤Ã¤Æ¤¤¤Þ¤¹¡£

¥Õ¥í¥¢³µÇ°¿Þ[½Ðŵ¡§¸ø¼°HP]
¡¡1¡Á3³¬¤Ï¾¦¶È»ÜÀß¥Õ¥í¥¢¡¢4¡Á6³¬¤¬½»ÂðÍѶ¦ÍÑ»ÜÀß¥Õ¥í¥¢¤È¤Ê¤ê¡¢7³¬¤«¤é½»Âð¥Õ¥í¥¢¤È¤Ê¤ê¤Þ¤¹¡£¶¦ÍÑ»ÜÀߤȤ·¤Æ5³¬¤Ë¥é¥¦¥ó¥¸¡¢6³¬¤Ë¥²¥¹¥È¥ë¡¼¥à¡¢¥ï¡¼¥¥ó¥°¥¹¥¿¥¸¥ªÅù¤¬ÇÛÃÖ¤µ¤ì¤Þ¤¹¡£

³°´Ñ´°À®Í½ÁÛ¿Þ[½Ðŵ¡§¸ø¼°HP]
¡¡ÄãÁØÉô¤Î1³¬¡Á3³¬¤Ï¤Ë¤®¤ï¤¤¥Æ¥é¥¹¤â¤¢¤ë¾¦¶È»ÜÀߤȤʤꡢ¡ÖÂçºå¾åËÜÄ®¡×±ØÁ°¤Ç¤Ï½é¤Î¾¦¶È°ìÂη¿Ê£¹ç¥¿¥ï¡¼¥ì¥¸¥Ç¥ó¥¹¤È¤Ê¤ê¤Þ¤¹¡£

¥¦¥§¥ë¥«¥à¥Û¡¼¥ë´°À®Í½ÁÛ¿Þ[½Ðŵ¡§¸ø¼°HP]
¡¡5³¬¤ËÇÛÃÖ¤µ¤ì¤ë2ÁØ¿á¤È´¤±¤Î¥¦¥§¥ë¥«¥à¥Û¡¼¥ë¤Î´°À®Í½ÁۿޤǤ¹¡£

¥³¥ó¥Õ¥©¡¼¥È¥é¥¦¥ó¥¸´°À®Í½ÁÛ¿Þ[½Ðŵ¡§¸ø¼°HP]
¡¡5³¬¤ËÇÛÃÖ¤µ¤ì¤ë2ÁØ¿á¤È´¤±¤Î¥³¥ó¥Õ¥©¡¼¥È¥é¥¦¥ó¥¸¤Î´°À®Í½ÁۿޤǤ¹¡£

¥³¥ß¥å¥Ë¥Æ¥£¥é¥¦¥ó¥¸´°À®Í½ÁÛ¿Þ[½Ðŵ¡§¸ø¼°HP]
¡¡5³¬¤ËÇÛÃÖ¤µ¤ì¤ë2ÁØ¿á¤È´¤±¤Î¥³¥ß¥å¥Ë¥Æ¥£¥é¥¦¥ó¥¸¤Î´°À®Í½ÁۿޤǤ¹¡£3¤Ä¤Î¥é¥¦¥ó¥¸¤¬Ê¤Ӥޤ¹¡£
´Ö¼è¤ê¿Þ

J¥¿¥¤¥×[½Ðŵ¡§¸ø¼°HP]
¡¡J¥¿¥¤¥×¤Î´Ö¼è¤ê¿Þ¤Ç¤¹¡£´Ö¼è¤ê¤Ï1K¡¢ÀìÍÌÌÀѤÏ33.59Ö¡¢¥Ð¥ë¥³¥Ë¡¼ÌÌÀѤÏ8.80֤ȤʤäƤ¤¤Þ¤¹¡£10³¬¤ÎƱ¥¿¥¤¥×¤ÎÉô²°¤¬3340Ëü±ß¤ÇÀèÃå½çÈÎÇäÃæ¤È¤Ê¤Ã¤Æ¤¤¤Þ¤¹¡£

K¥¿¥¤¥×[½Ðŵ¡§¸ø¼°HP]
¡¡K¥¿¥¤¥×¤Î´Ö¼è¤ê¿Þ¤Ç¤¹¡£´Ö¼è¤ê¤Ï1LDK¡¢ÀìÍÌÌÀѤÏ43.02Ö¡¢¥Ð¥ë¥³¥Ë¡¼ÌÌÀѤÏ11.44֤ȤʤäƤ¤¤Þ¤¹¡£13³¬¤ÎƱ¥¿¥¤¥×¤ÎÉô²°¤¬4170Ëü±ß¤ÇÀèÃå½çÈÎÇäÃæ¤È¤Ê¤Ã¤Æ¤¤¤Þ¤¹¡£

G¥¿¥¤¥×[½Ðŵ¡§¸ø¼°HP]
¡¡G¥¿¥¤¥×¤Î´Ö¼è¤ê¿Þ¤Ç¤¹¡£´Ö¼è¤ê¤Ï2LDK¡¢ÀìÍÌÌÀѤÏ64.45Ö¡¢¥Ð¥ë¥³¥Ë¡¼ÌÌÀѤÏ11.63֤ȤʤäƤ¤¤Þ¤¹¡£Æ±¥¿¥¤¥×¤ÎÉô²°¤¬6380Ëü±ß¤ÇÀèÃå½çÈÎÇäÃæ¤È¤Ê¤Ã¤Æ¤¤¤Þ¤¹¡£

H¥¿¥¤¥×[½Ðŵ¡§¸ø¼°HP]
¡¡G¥¿¥¤¥×¤Î´Ö¼è¤ê¿Þ¤Ç¤¹¡£´Ö¼è¤ê¤Ï3LDK+N+2WIC+SIC¡¢ÀìÍÌÌÀѤÏ90.20Ö¡¢¥Ð¥ë¥³¥Ë¡¼ÌÌÀѤÏ22.64֤ȤʤäƤ¤¤Þ¤¹¡£Æ±¥¿¥¤¥×¤ÎÉô²°¤¬1²¯3000Ëü±ß¤ÇÀèÃå½çÈÎÇäÃæ¤È¤Ê¤Ã¤Æ¤¤¤Þ¤¹¡£

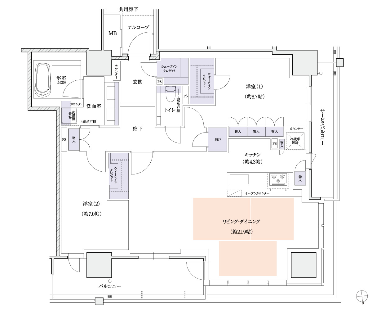
T¥¿¥¤¥×[½Ðŵ¡§¸ø¼°HP]
¡¡T¥¿¥¤¥×¤Î´Ö¼è¤ê¿Þ¤Ç¤¹¡£´Ö¼è¤ê¤Ï2LDK+N+2WIC+SIC¡¢ÀìÍÌÌÀѤÏ101.91Ö¡¢¥Ð¥ë¥³¥Ë¡¼ÌÌÀѤÏ11.57Ö¡¢¥µ¡¼¥Ó¥¹¥Ð¥ë¥³¥Ë¡¼ÌÌÀѤÏ6.90֤ȤʤäƤ¤¤Þ¤¹¡£
°ÌÃÖ¿Þ

°ÌÃÖ¿Þ[½Ðŵ¡§¸ø¼°HP]
¡¡·úÀßÃϤÏÀéÆüÁ°Ä̤ËÌ̤·¤¿¶áÅ´ÆñÇÈÀþ¡¦ÆàÎÉÀþ¡¦ÂçºåÀþ¡ÖÂçºå¾åËÜÄ®¡×±Ø¤ÎË̦¤ÇÅÌÊâ2ʬ¡¢Âçºå¥á¥È¥íëĮÀþ¡¦ÀéÆüÁ°Àþ¡ÖëĮ¶åÃúÌܡױؤ«¤é¤ÏÅ즤ØÅÌÊâ3ʬ¤Î¾ì½ê¤Ë°ÌÃÖ¤·¤Æ¤¤¤Þ¤¹¡£
·úÀß¾õ¶·

¡¡2023ǯ10·î22Æü¤ËÀ¾Â¦¤«¤é¸«¤¿¡Ö¥á¥È¥é¥¤¥º¥¿¥ï¡¼Âçºå¾åËÜÄ®¡×(ÃϾå29³¬¡¢¹â¤µ99.98m)¤Ç¤¹¡£ÀéÆüÁ°Ä̤ȾåÄ®¶Ú¤¬¸òº¹¤¹¤ë¾åËÜÄ®£¶¸òº¹ÅÀ¤¬»£±Æ¾ì½ê¤Ç¤¹¡£

¡¡¶áÉÕ¤¤¤ÆÀéÆüÁ°Ä̱褤¤ÎÆîÀ¾Â¦¤«¤é»£±Æ¡£Çò¤¤¥é¥¤¥ó¤¬ÆÃħŪ¤Ê¥Ç¥¶¥¤¥ó¤È¤Ê¤Ã¤Æ¤¤¤Þ¤¹¡£

¡¡ÆîÅ즤«¤é»£±Æ¡£ÄãÁØÉô¤Î¸«¤¨¤Ê¤¯¤Ê¤Ã¤Æ¤¤¤ë¾ì½ê¤¬¾¦¶È»ÜÀߤä¥Þ¥ó¥·¥ç¥ó¤Î¶¦ÍÑÉô¤Ë¤Ê¤ê¤Þ¤¹¡£

¡¡Ï©ÃϤòÆþ¤Ã¤¿ËÌÅ즤«¤é¸«¾å¤²¤¿ÍͻҤǤ¹¡£

¡¡10·î24Æü¤Ë¡Ö¤¢¤Ù¤Î¥Ï¥ë¥«¥¹¡×¤«¤é»£±Æ¡£¼êÁ°¤ÎÇò¤¤·úʪ¤Ï¡Ö¥·¥§¥é¥È¥óÅԥۥƥëÂçºå¡×¤Ç¡¢¤½¤ÎÇØ¸å¤Ë¸«¤¨¤Æ¤¤¤ë¤Î¤¬¡Ö¥á¥È¥é¥¤¥º¥¿¥ï¡¼Âçºå¾åËÜÄ®¡×¤Ç¤¹¡£

¡¡¾¯¤·¹³Ñ¤Ç»£±Æ¡£¼êÁ°¤ÎÂ礤ʥ¿¥ï¡¼¥Þ¥ó¥·¥ç¥ó¤Ï¡Ö¥¦¥§¥ê¥¹¾åËÜÄ®¥í¡¼¥ì¥ë¥¿¥ï¡¼¡×(ÃϾå41³¬¡¢ºÇ¹â¹â¤µ145.55m)¤Ç¤¹¡£

¡¡¤µ¤é¤Ë¹³Ñ¤Ç»£±Æ¡£¼þÊդˤϳä¤È¿¤¯¤Î¥¿¥ï¡¼¥Þ¥ó¥·¥ç¥ó¤¬·ú¤Áʤó¤Ç¤¤¤ë¾ì½ê¤È¤Ê¤Ã¤Æ¤¤¤Þ¤¹¡£
ÃÏ¿Þ
ʪ·ï³µÍ×

¡¡·úÃ۷ײè¤Î¤ªÃΤ餻¤Ç¤¹¡£
¢£Êª·ï³µÍ×¢£
̾¾Î¡§¥á¥È¥é¥¤¥º¥¿¥ï¡¼Âçºå¾åËÜÄ®
²¾¾Î¡§(²¾¾Î)¾åËÜÄ® ±ØÁ°¥¿¥ï¡¼
»ö¶È̾¡§(²¾¾Î)OM¥¿¥ï¡¼¾åËÜÄ® ¿·ÃÛ¹©»ö
½êºßÃÏ¡§ÂçºåÉÜÂçºå»ÔÅ·²¦»û¶è¾åËÜĮϻÃúÌÜ3ÈÖ42¾¡ÊÃÏÈÖ¡Ë
¸òÄÌ¡§¶áÅ´ÆñÇÈÀþ¡¢ÆàÎÉÀþ¡¢ÂçºåÀþ¡ÖÂçºå¾åËÜÄ®¡×±Ø ÅÌÊâ2ʬ¡¢
¡¡¡¡¡¡Âçºå¥á¥È¥íëĮÀþ¡¢ÀéÆüÁ°Àþ¡ÖëĮ¶åÃúÌÜ¡×±Ø ÅÌÊâ3ʬ
ÍÑÅÓ¡§¶¦Æ±½»Â𤪤è¤ÓŹÊÞ
Áí¸Í¿ô¡§135¸Í¡Ê¾ŹÊÞ5¶è²è¡Ë
³¬¿ô¡§ÃϾå29³¬¡¢Ãϲ¼1³¬
¹â¤µ¡§99.98m
¹½Â¤¡§Å´¶Ú¥³¥ó¥¯¥ê¡¼¥È¤
ÉßÃÏÌÌÀÑ¡§1,483.79Ö
·úÃÛÌÌÀÑ¡§890.19Ö
±ä¾²ÌÌÀÑ¡§16,861.07Ö
·úÃۼ硧Âçºå»Ô¹â®Åŵ¤µ°Æ»(Âçºå¥á¥È¥í)¡¢´ØÅÅÉÔÆ°»º³«È¯
Àß·×¼Ô¡§IAOÃÝÅÄÀß·×
»Ü¹©¼Ô¡§¹ãÃÓÁÈ
¹©´ü¡§2021ǯ12·î¾å½ÜÃ幩¡Á2024ǯ4·î²¼½Ü½×¹©Í½Äê
Æþµï¡§2024ǯ7·î¾å½ÜͽÄê
¼ÚÃÏ´ü´Ö¡§°úÅÏÆü¤è¤ê2097ǯ6·î30Æü¤Þ¤Ç¡Ê²òÂι©»ö´ü´Ö´Þ¤à¡Ë
½Ðŵ
¢§¸ø¼°HP¡§¥á¥È¥é¥¤¥º¥¿¥ï¡¼Âçºå¾åËÜÄ®
https://www.om-r.jp/uehommachi135/
- ¥«¥Æ¥´¥ê
- Âçºå»Ô







