
³°´Ñ´°À®Í½ÁÛCG[½Ðŵ¡§¸ø¼°HP]
¡¡Âçºå¤ÎƲÅçÀî¤ËÌ̤·¤¿¥¿¥ï¡¼¥Þ¥ó¥·¥ç¥ó¡Ö¥·¥¨¥ê¥¢¥¿¥ï¡¼ÃæÇ·Åç¡×(ÃϾå46³¬¡¢¹â¤µ168m)¤Î´°À®Í½ÁۿޤǤ¹¡£ÌܤÎÁ°¤ÎƲÅçÀî¤òÅϤä¿Àè¤¬ÃæÇ·Åç¤È¤¤¤¦Î©ÃϤǡ¢2098ǯ¤Þ¤Ç¤ÎÄê´ü¼ÚÃϸ¢Éդʬ¾ù¥¿¥ï¥Þ¥ó¤È¤Ê¤ê¤Þ¤¹¡£¤³¤Îµ»ö¤Ç¤ÏƱ¥¿¥ï¥Þ¥ó¤Î³µÍפä·úÀß¾õ¶·¡Ê2023ǯ10·î23Æü»þÅÀ¡Ë¡¢ÃÏ¿ÞÅù¤òºÜ¤»¤Æ¤¤¤Þ¤¹¡£
¥·¥¨¥ê¥¢¥¿¥ï¡¼ÃæÇ·Åç¤Ë¤Ä¤¤¤Æ

³°´Ñ´°À®Í½ÁÛCG[½Ðŵ¡§¸ø¼°HP]
¡¡¡Ö¥·¥¨¥ê¥¢¥¿¥ï¡¼ÃæÇ·Åç¡×¤ÏÌܤÎÁ°¤¬ÃæÇ·Åç¤È¤¤¤¦Ê¬¾ù¤Î¥¿¥ï¡¼¥Þ¥ó¥·¥ç¥ó¤Ç¡¢µ¬ÌϤÏÃϾå46³¬¡¢¹â¤µ168.00m¡¢ÉßÃÏÌÌÀÑ2,972.83Ö¡¢·úÃÛÌÌÀÑ1,462.23Ö¡¢±ä¾²ÌÌÀÑ4Ëü6721.95֤ȤʤäƤ¤¤Þ¤¹¡£
¡¡Çä¼ç¤Ï´ØÅÅÉÔÆ°»º³«È¯¡¢Àß·×¼Ô¤ÏIAOÃÝÅÄÀ߷פÈÂçÎÓÁÈ¡¢»Ü¹©¼Ô¤ÏÂçÎÓÁȤÇ2025ǯ12·î½×¹©¡¢2026ǯ3·î¤ÎÆþµï³«»ÏͽÄê¤Ç¤¹¡£¤Þ¤¿¡¢2098ǯ2·î28Æü¤Þ¤Ç(²òÂι©»ö´ü´Ö´Þ¤à) ¤ÎÄê´ü¼ÚÃϸ¢¤¬ÉÕ¤¤¤Æ¤¤¤Þ¤¹¡£

³°´Ñ´°À®Í½ÁÛCG[½Ðŵ¡§¸ø¼°HP]
¡¡Áí¸Í¿ô¤Ï364¸Í¤ÇÂè1´ü¤ËÈÎÇ䤷¤¿176¸Í¤Ï¡¢ÀìÍÌÌÀÑ55Ö¡Á168.43Ö¡¢ÈÎÇä²Á³Ê¤Ï5199Ëü±ß¡Á4²¯3999Ëü±ß¡¢ºÇ¹âÇÜΨ¤Ï11ÇÜ¡¢Ê¿¶ÑÈÎÇä²Á³Ê¤Ï1²¯1287Ëü±ß¤Ç¤·¤¿¡£ºÇ¹â²Á³Ê¤Î4²¯3999Ëü±ß¤Ï´ØÀ¾·÷¤Çʬ¾ù¤µ¤ì¤¿Äê´ü¼ÚÃϸ¢ÉÕʬ¾ù¥Þ¥ó¥·¥ç¥ó¤Ç¤Ï²áµîºÇ¹â²Á³Ê¤È¤Î¤³¤È¤Ç¤¹¡£

¥¢¥¯¥¢¥¨¥ó¥È¥é¥ó¥¹´°À®Í½ÁÛ¿Þ[½Ðŵ¡§¸ø¼°HP]
¡¡¥¨¥ó¥È¥é¥ó¥¹¤ÏÃæÇ·Åç¤Î¸¶É÷·Ê¤ò¥â¥Á¡¼¥Õ¤È¤·¤Æ¤¤¤Þ¤¹¡£

¥°¥é¥ó¥É¥¨¥ó¥È¥é¥ó¥¹´°À®Í½ÁÛ¿Þ[½Ðŵ¡§¸ø¼°HP]
¡¡¥°¥é¥ó¥É¥¨¥ó¥È¥é¥ó¥¹¤ÏÌó9m¤Î¿áÈ´¤±¤òÀߤ¨¤¿¶õ´Ö¤Ë¤Ê¤ê¤Þ¤¹¡£

¥ê¥Ð¡¼¥µ¥¤¥É¥é¥¦¥ó¥¸´°À®Í½ÁÛ¿Þ[½Ðŵ¡§¸ø¼°HP]
¡¡3³¬¤Ë¤Ï¿åÅÔ¤ò´¶¤¸¤ë¤³¤È¤¬½ÐÍè¤ë2ÁØ¿á¤È´¤±¤Î¥ê¥Ð¡¼¥µ¥¤¥É¥é¥¦¥ó¥¸¤¬ÀßÃÖ¤µ¤ì¤Þ¤¹¡£

¥ê¥Ð¡¼¥µ¥¤¥É¥é¥¦¥ó¥¸´°À®Í½ÁÛ¿Þ[½Ðŵ¡§¸ø¼°HP]
¡¡¡Ö¥·¥¨¥ê¥¢¥¿¥ï¡¼ÃæÇ·Åç¡×¤ÈƲÅçÀî¤Î´Ö¤Ë¤Ïƻϩ¤¬¤¢¤ê¤Þ¤¹¤¬¡¢¤½¤Îƻϩ¤ò´¶¤¸¤µ¤»¤º¤Ë¥ê¥Ð¡¼¥µ¥¤¥É¤Î·Ê¿§¤ò³Ú¤·¤à¤³¤È¤¬¤Ç¤¤Þ¤¹¡£

¥Õ¥£¥Ã¥È¥Í¥¹¥¹¥¿¥¸¥ª´°À®Í½ÁÛ¿Þ[½Ðŵ¡§¸ø¼°HP]
¡¡¶¦ÍÑ»ÜÀߤȤ·¤Æ3³¬¤Ë¤Ï¥Õ¥£¥Ã¥È¥Í¥¹¥¹¥¿¥¸¥ª¤¬ÀßÃÖ¤µ¤ì¤Þ¤¹¡£

¥³¥ï¡¼¥¥ó¥°¥ë¡¼¥à´°À®Í½ÁÛ¿Þ[½Ðŵ¡§¸ø¼°HP]
¡¡3³¬¤Ë¤Ï¥³¥ï¡¼¥¥ó¥°¥ë¡¼¥à¤âÀßÃÖ¤µ¤ì¤Þ¤¹¡£

¥²¥¹¥È¥ë¡¼¥à¡Á¥ê¥å¥¯¥¹¡Á´°À®Í½ÁÛ¿Þ[½Ðŵ¡§¸ø¼°HP]
¡¡3³¬¤Ë¤Ï¥²¥¹¥È¥ë¡¼¥à¤¬2Éô²°ÍѰդµ¤ì¤Þ¤¹¡£

¥²¥¹¥È¥ë¡¼¥à¡Á¥â¥À¥ó¡Á´°À®Í½ÁÛ¿Þ[½Ðŵ¡§¸ø¼°HP]
¡¡Áí¸Í¿ô364¸Í¤Î¥Þ¥ó¥·¥ç¥ó¤È¤·¤Æ¤Ï¶¦ÍÑ»ÜÀߤ¬½¼¼Â¤·¤Æ¤¤¤ë¤«¤È»×¤¤¤Þ¤¹¡£

¥«¡¼¥²¡¼¥È´°À®Í½ÁÛ¿Þ[½Ðŵ¡§¸ø¼°HP]
¡¡¼Ö´ó¤»¤Î¤¢¤ë¥«¡¼¥²¡¼¥È¤âÇÛÃÖ¤µ¤ì¤Þ¤¹¡£

¥Ñ¡¼¥Æ¥£¥µ¥í¥ó´°À®Í½ÁÛ¿Þ[½Ðŵ¡§¸ø¼°HP]
¡¡38³¬¤ÎË̦¤Ë¤Ï¥Ñ¡¼¥Æ¥£¥ë¡¼¥à¤¬ÇÛÃÖ¤µ¤ì¤Þ¤¹¡£

¥¹¥«¥¤¥é¥¦¥ó¥¸´°À®Í½ÁÛ¿Þ[½Ðŵ¡§¸ø¼°HP]
¡¡Æ±¤¸38¡Á39³¬¤ÎËÌÅ즤ˤϥ¹¥«¥¤¥é¥¦¥ó¥¸¤¬ÇÛÃÖ¤µ¤ì¤Þ¤¹¡£

¥¹¥«¥¤¥é¥¦¥ó¥¸´°À®Í½ÁÛ¿Þ[½Ðŵ¡§¸ø¼°HP]
¡¡¥°¥é¥ó¥°¥ê¡¼¥óÂçºå¤â¸«ÅϤ»¤ëÊý³Ñ¤Ç¡¢ÍäÀî¤Î²Ö²Ð¤â³Ú¤·¤á¤ë¾ì½ê¤È¤Ê¤ê¤Þ¤¹¡£

³°´Ñ´°À®Í½ÁÛCG[½Ðŵ¡§¸ø¼°HP]
¡¡²°¾å¤Ë¤Ï¥Ø¥ê¥Ý¡¼¥È¤¬ÀßÃÖ¤µ¤ì¤Þ¤¹¡£H¥Þ¡¼¥¯¤Ï¥Ø¥ê¤ÎÃåΦ¤¬²Äǽ¤Ç¡¢R¥Þ¡¼¥¯¤Ï¥Û¥Ð¥ê¥ó¥°¥¹¥Ú¡¼¥¹¤ÇÃåΦ¤Ç¤¤ë¶¯ÅÙ¤¬¤¢¤ê¤Þ¤»¤ó¡£
´Ö¼è¤ê¿Þ

P¥¿¥¤¥×[½Ðŵ¡§¸ø¼°HP]
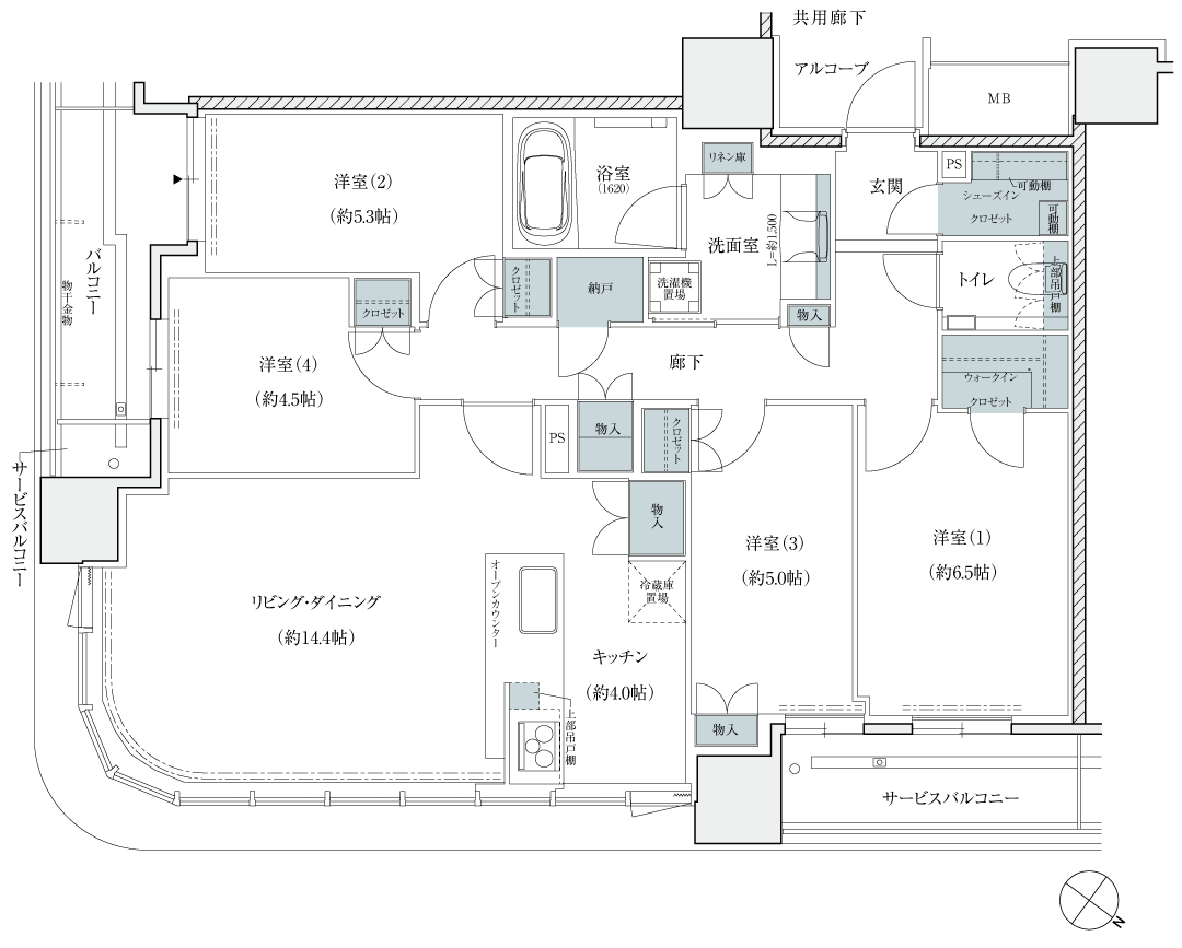
¡¡P¥¿¥¤¥×¤Î´Ö¼è¤ê¿Þ¤Ç¤¹¡£´Ö¼è¤ê¤Ï2LDK¡¢ÀìÍÌÌÀѤÏ65.01Ö¡¢¥Ð¥ë¥³¥Ë¡¼ÌÌÀѤÏ10.67Ö¡¢¥µ¡¼¥Ó¥¹¥Ð¥ë¥³¥Ë¡¼ÌÌÀѤÏ2.92Ö¡¢¥¢¥ë¥³¡¼¥×ÌÌÀѤÏ2.10֤ȤʤäƤ¤¤Þ¤¹¡£

L¥¿¥¤¥×[½Ðŵ¡§¸ø¼°HP]
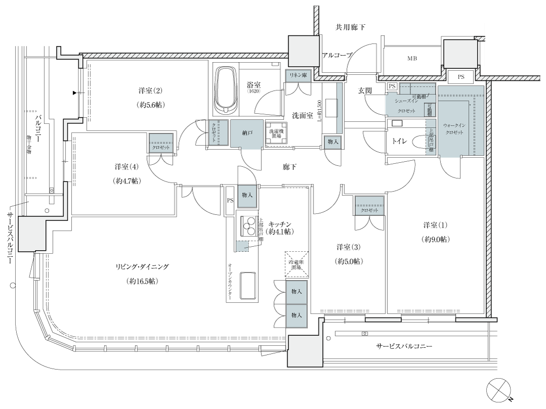
¡¡L¥¿¥¤¥×¤Î´Ö¼è¤ê¿Þ¤Ç¤¹¡£´Ö¼è¤ê¤Ï4LDK¡¢ÀìÍÌÌÀѤÏ93.40Ö¡¢¥Ð¥ë¥³¥Ë¡¼ÌÌÀѤÏ5.58Ö¡¢¥µ¡¼¥Ó¥¹¥Ð¥ë¥³¥Ë¡¼ÌÌÀѤÏ5.48Ö¡¢¥¢¥ë¥³¡¼¥×ÌÌÀѤÏ2.29֤ȤʤäƤ¤¤Þ¤¹¡£

T¥¿¥¤¥×[½Ðŵ¡§¸ø¼°HP]
¡¡L¥¿¥¤¥×¤Î´Ö¼è¤ê¿Þ¤Ç¤¹¡£´Ö¼è¤ê¤Ï4LDK¡¢ÀìÍÌÌÀѤÏ105.17Ö¡¢¥Ð¥ë¥³¥Ë¡¼ÌÌÀѤÏ5.93Ö¡¢¥µ¡¼¥Ó¥¹¥Ð¥ë¥³¥Ë¡¼ÌÌÀѤÏ7.08Ö¡¢¥¢¥ë¥³¡¼¥×ÌÌÀѤÏ2.29֤ȤʤäƤ¤¤Þ¤¹¡£

R¥¿¥¤¥×[½Ðŵ¡§¸ø¼°HP]
¡¡R¥¿¥¤¥×¤Î´Ö¼è¤ê¿Þ¤Ç¤¹¡£´Ö¼è¤ê¤Ï4LDK¡¢ÀìÍÌÌÀѤÏ115.91Ö¡¢¥Ð¥ë¥³¥Ë¡¼ÌÌÀѤÏ7.31Ö¡¢¥µ¡¼¥Ó¥¹¥Ð¥ë¥³¥Ë¡¼ÌÌÀѤÏ10.27Ö¡¢¥¢¥ë¥³¡¼¥×ÌÌÀѤÏ4.59֤ȤʤäƤ¤¤Þ¤¹¡£
°ÌÃÖ¿Þ

¸½ÃÏ°ÆÆâ¿Þ[½Ðŵ¡§¸ø¼°HP]
¡¡·úÀßÃÏ¤ÏÆ²ÅçÀî¤ËÌ̤·¤¿Ê¡Åç¶èÊ¡Åç2ÃúÌܤǡ¢µþºåÅżÖÃæÇ·ÅçÀþ¡ÖÃæÇ·Åç¡×±Ø¤ÎË̦¡¢ºå¿ÀËÜÀþ¡ÖÊ¡Åç¡×±Ø¡¢JRÅìÀ¾Àþ¡Ö¿·Ê¡Åç¡×±Ø¤ÎÆî¦¤Ë°ÌÃÖ¤·¤Æ¤¤¤Þ¤¹¡£¤Þ¤¿¡¢2031ǯ½Õ¤Ë³«¶ÈͽÄê¤Î¤Ê¤Ë¤ï¶ÚÀþ¡ÖÃæÇ·Åç¡×±Ø¤Ë¤â¶á¤¤¾ì½ê¤È¤Ê¤Ã¤Æ¤¤¤Þ¤¹¡£
·úÀß¾õ¶·

¡¡2023ǯ10·î23Æü¤ËƲÅçÀî±Û¤·¤Ë»£±Æ¤·¤¿¡Ö¥·¥¨¥ê¥¢¥¿¥ï¡¼ÃæÇ·Åç¡×(ÃϾå46³¬¡¢¹â¤µ168m)¤Î·úÀßÃϤǤ¹¡£¥¿¥ï¡¼¥¯¥ì¡¼¥ó¤¬2´ðÀßÃÖ¤µ¤ìÃϾåÉô¤Î·úÀߤ¬»Ï¤Þ¤Ã¤Æ¤¤¤Þ¤·¤¿¡£
¡¡º¸¤Î¥¿¥ï¡¼¥Þ¥ó¥·¥ç¥ó¤Ï¡Ö¥¯¥ì¥ô¥£¥¢¥¿¥ï¡¼ÃæÇ·Åç¡×(ÃϾå36³¬¡¢¹â¤µ127.24m)¤Ç¡¢¤½¤ì¤è¤ê¤âÌó40m¹â¤¤¥¿¥ï¡¼¥Þ¥ó¥·¥ç¥ó¤Ë¤Ê¤ê¤Þ¤¹¡£

¡¡¡Ö¥·¥¨¥ê¥¢¥¿¥ï¡¼ÃæÇ·Åç¡×¤Î·úÀßÃϤ˥º¡¼¥à¤Ç¤¹¡£¥¿¥ï¡¼¥¯¥ì¡¼¥ó¤ÎÇØ¸å¤Ë¸«¤¨¤Æ¤¤¤ë¥¿¥ï¡¼¥Þ¥ó¥·¥ç¥ó¤Ï¡ÖÂçºåÊ¡Å祿¥ï¡¼¡×(ÃϾå45³¬¡¢¹â¤µ160.46m)¤Ç¤¹¡£

¡¡Æ²ÅçÀî¤ÎÄéËɤˤ¢¤ëÊ¡ÅçÉÍÎÐÆ»¤«¤é»£±Æ¡£1³¬Éôʬ¤Î·úÀߤ¬»Ï¤Þ¤Ã¤Æ¤¤¤Þ¤·¤¿¡£

¡¡¤³¤Á¤é¤ÎƲÅçÀî¤ËÌ̤·¤¿3³¬¤Ë¥ê¥Ð¡¼¥µ¥¤¥É¥é¥¦¥ó¥¸¤¬Àߤ±¤é¤ì¤Þ¤¹¡£

¡¡Æ²ÅçÀî±Û¤·¤Ë»£±Æ¡£¤³¤ÎÆü¤ÏÀî¤Îή¤ì¤¬¤Ê¤¯¥¥ì¥¤¤ËÈ¿¼Í¤·¤Æ¤¤¤Þ¤·¤¿¡£

¡¡Æî¦¤«¤é»£±Æ¡£

¡¡¶á¤¯¤«¤é¸«¤¿Æ±¤¸Êý¸þ¤Ç¤¹¡£46³¬·ú¤Æ¤Î¥¿¥ï¡¼¥Þ¥ó¥·¥ç¥ó¤Î·úÀßÃϤȤ·¤Æ¤Ï¶¹¤¤ÉßÃϤȤʤäƤ¤¤Þ¤¹¡£

¡¡Æî¦¤Ë¤¢¤ëƲÅçÂç¶¶¤«¤é»£±Æ¡£ÃæÇ·Åç¼þÊÕ¤Î͹âÁز½¤¬¤É¤ó¤É¤ó¿Ê¤ó¤Ç¤¤¤Þ¤¹¡£¤Á¤Ê¤ß¤Ë±¦Â¦¤¬ÃæÇ·Åç¤ÇƲÅçÀî¤ÈÅÚº´ËÙÀî¤Ë¶´¤Þ¤ì¤¿¾ì½ê¤È¤Ê¤Ã¤Æ¤¤¤Þ¤¹¡£

¡¡Å즤«¤é¸«¤¿¡Ö¥·¥¨¥ê¥¢¥¿¥ï¡¼ÃæÇ·Åç¡×¤Î·úÀßÃϤǤ¹¡£

¡¡Ë̦¤«¤é»£±Æ¡£Çظå¤Î¡Ö¥¯¥ì¥ô¥£¥¢¥¿¥ï¡¼ÃæÇ·Åç¡×¤ÏÇßÅÄÊýÌ̤λ볦¤ò¼×¤é¤ì¤Æ¤·¤Þ¤¤¤Þ¤¹¡£
ÃÏ¿Þ
ʪ·ï³µÍ×

¢£Êª·ï³µÍ×¢£
̾¾Î¡§¥·¥¨¥ê¥¢¥¿¥ï¡¼ÃæÇ·Åç
»ö¶È̾¡§(²¾¾Î)Âçºå»ÔÊ¡Åç¶èÊ¡Åç2ÃúÌÜ¥×¥í¥¸¥§¥¯¥È
½êºßÃÏ¡§ÂçºåÉÜÂçºå»ÔÊ¡Åç¶èÊ¡ÅçÆóÃúÌÜ3ÈÖ2(ÃÏÈÖ)
¸òÄÌ¡§µþºåÅżÖÃæÇ·ÅçÀþ¡ÖÃæÇ·Åç¡×±Ø ÅÌÊâ5ʬ
¡¡¡¡¡¡ºå¿ÀËÜÀþ¡ÖÊ¡Åç¡×±Ø ÅÌÊâ5ʬ
¡¡¡¡¡¡JRÅìÀ¾Àþ¡Ö¿·Ê¡Åç¡×±Ø ÅÌÊâ4ʬ
¡¡¡¡¡¡JRÂçºå´Ä¾õÀþ¡ÖÊ¡Åç¡×±Ø ÅÌÊâ7ʬ
ÍÑÅÓ¡§¶¦Æ±½»Âð
Áí¸Í¿ô¡§364¸Í
³¬¿ô¡§ÃϾå46³¬
¹â¤µ¡§168.00m
¹½Â¤¡§Å´¶Ú¥³¥ó¥¯¥ê¡¼¥È¤(°ìÉôÅ´¹ü¤)
ÉßÃÏÌÌÀÑ¡§2,972.83Ö
·úÃÛÌÌÀÑ¡§1,462.23Ö
±ä¾²ÌÌÀÑ¡§46,721.95Ö
»ö¶È¼ç(Çä¼ç)¡§´ØÅÅÉÔÆ°»º³«È¯
Àß·×¼Ô¡§IAOÃÝÅÄÀ߷ס¢ÂçÎÓÁÈ
»Ü¹©¼Ô¡§ÂçÎÓÁÈ
¹©´ü¡§2023ǯ2·î1ÆüÃ幩¡Á2025ǯ12·î½×¹©Í½Äê
Æþµï¡§2026ǯ3·îͽÄê
¼ÚÃÏ´ü´Ö¡§2098ǯ2·î28Æü¤Þ¤Ç(²òÂι©»ö´ü´Ö´Þ¤à)
½Ðŵ
¢§¸ø¼°HP¡§¥·¥¨¥ê¥¢¥¿¥ï¡¼ÃæÇ·Åç
https://www.cielia.com/m/nakanoshima364/
¢§´ØÅÅÉÔÆ°»º³«È¯¡§¥Ë¥å¡¼¥¹¥ê¥ê¡¼¥¹¡Ê2023ǯ9·î25Æü¡Ë
ƲÅçÀî¤òÆî¤Ë˾¤à¡¢ÃϾå46³¬Ä¶¹âÁØ¥¿¥ï¡¼¡Ö¥·¥¨¥ê¥¢¥¿¥ï¡¼ÃæÇ·Åç¡×Âè1´üÈÎÇä157¸Í¿½¹þ¡£ºÇ¹â²Á³Ê4²¯3,999Ëü±ß¡£Ê¿¶Ñ²Á³Ê1²¯±ßĶ¡¢ºÇ¹âÇÜΨ11ÇÜ
- ¥«¥Æ¥´¥ê
- Âçºå»Ô







