
³°´Ñ´°À®Í½ÁÛCG[½Ðŵ¡§¸ø¼°HP]
¡¡¾®Åĵ޾®Åĸ¶Àþ¡Ö¸þ¥öµÖÍ·±à¡×±Ø¤ÎË̸ý¦¤Ç·úÀßÃæ¤Î¥¿¥ï¡¼¥Þ¥ó¥·¥ç¥ó¡Ö¥Ñ¡¼¥¯¥¿¥ï¡¼¸þ¥öµÖÍ·±à¡×(ÃϾå25³¬¡¢¹â¤µ79.98m)¤Î´°À®Í½ÁۿޤǤ¹¡£»°°æÉÔÆ°»º¥ì¥¸¥Ç¥ó¥·¥ã¥ë¤È¾®ÅĵÞÉÔÆ°»º¤Ë¤è¤ëʬ¾ù¥¿¥ï¥Þ¥ó¤Ç¡¢2024ǯ1·îÃæ½Ü¤«¤éÂè1´ü¤ÎÈÎÇ䳫»ÏͽÄê¤È¤Ê¤Ã¤Æ¤¤¤Þ¤¹¡£¤³¤Îµ»ö¤Ç¤ÏƱ¥¿¥ï¥Þ¥ó¤Î³µÍפä·úÀß¾õ¶·¡Ê2023ǯ10·î13Æü»þÅÀ¡Ë¡¢ÃÏ¿ÞÅù¤òºÜ¤»¤Æ¤¤¤Þ¤¹¡£
¥Ñ¡¼¥¯¥¿¥ï¡¼¸þ¥öµÖÍ·±à¤Ë¤Ä¤¤¤Æ

³°´Ñ¡¦±ØÁ°¹¾ì´°À®Í½ÁÛCG[½Ðŵ¡§¸ø¼°HP]
¡¡¡Ö¥Ñ¡¼¥¯¥¿¥ï¡¼¸þ¥öµÖÍ·±à¡×¤Ï¾®Åĵ޾®Åĸ¶Àþ¡Ö¸þ¥öµÖÍ·±à¡×±Ø¤«¤éÅÌÊâ2ʬ¤Î¥¿¥ï¡¼¥Þ¥ó¥·¥ç¥ó¤Ç¡¢µ¬ÌϤÏÃϾå25³¬¡¢¹â¤µ79.98m¡¢ºÇ¹â¹â¤µ89.98m¡¢Ìȿ̹½Â¤¡¢ÉßÃÏÌÌÀÑ3,450.00Ö¡¢·úÃÛÌÌÀÑ1,551.57Ö¡¢±ä¾²ÌÌÀÑ2Ëü5577.97Ö¡¢Áí¸Í¿ô241¸Í¡Ê°ìÈÌÈÎÇäÂоݸͿô186¸Í¡Ë¤È¤Ê¤Ã¤Æ¤¤¤Þ¤¹¡£·úÃۼ硦Çä¼ç¤Ï»°°æÉÔÆ°»º¥ì¥¸¥Ç¥ó¥·¥ã¥ë¡¢¾®ÅĵÞÉÔÆ°»º¡¢À߷׼ԤȻܹ©¼Ô¤Ï»°°æ½»Í§·úÀߤÇ2025ǯ11·î²¼½Ü½×¹©¡¢2026ǯ1·î²¼½Ü¤ÎÆþµï³«»ÏͽÄê¤Ç¤¹¡£
¡¡2024ǯ1·îÃæ½Ü¤«¤éÂè1´ü¤ÎÈÎÇ䳫»ÏͽÄê¤Ç¡¢Âè1´ü¤â´Þ¤á¤¿°ìÈÌÈÎÇäÂоݸͿô186¸Í¤Î´Ö¼è¤ê¤Ï1LDK¡Á4LDK¡¢ÀìÍÌÌÀѤÏ37.16Ö¡Á84.19֡ʰìÉô½»¸Í¤Ï¥È¥é¥ó¥¯¥ë¡¼¥àÌÌÀÑ1.05Ö¡Á1.27Ö¤ò´Þ¤à¡Ë¡¢¥Ð¥ë¥³¥Ë¡¼ÌÌÀѤÏ10.13Ö¡Á37.92֤ȤʤäƤ¤¤Þ¤¹¡£

ÉßÃÏÇÛÃÖ¡¦1³¬´°À®Í½ÁÛ¥¤¥é¥¹¥È[½Ðŵ¡§¸ø¼°HP]
¡¡»ÍÊý¤¬Á´¤ÆÆ»Ï©¤ËÀܤ¹¤ëÉßÃϤȤʤäƤª¤ê¡¢ËÌÅ즤ˤϸø³«¶õÃϤ¬ÀßÃÖ¤µ¤ì¤Þ¤¹¡£

³Æ³¬³µÇ°¥¤¥é¥¹¥È[½Ðŵ¡§¸ø¼°HP]
¡¡Æ±¥¿¥ï¥Þ¥ó¤Î1¡¦2³¬¤Ë¤ÏŹÊÞ¥¹¥Ú¡¼¥¹¤¬³ÎÊݤµ¤ì2³¬¤Ë¤Ï¥Ç¥Ã¥¤âÇÛÃÖ¤µ¤ì¤Þ¤¹¡£¶¦ÍÑ»ÜÀߤȤ·¤Æ¤Ï3³¬¤Ë¥ï¡¼¥¥ó¥°¥¹¥Ú¡¼¥¹¡¢È¾²°³°¤Î¥¥Ã¥º¥¹¥Ú¡¼¥¹¡¢BBQ¤¬¤Ç¤¤ëÅŵ¤¥°¥ê¥ë¤ò¾ïÈ÷¤·¤¿¥°¥é¥ó¥Ô¥ó¥°¥ë¡¼¥à¡¢ºÇ¾å³¬¤Î25³¬¤Ë¥¹¥«¥¤¥é¥¦¥ó¥¸¡¢¤½¤·¤Æ²°¾å¥Æ¥é¥¹¤âÀßÃÖ¤µ¤ì¤Þ¤¹¡£

¥¨¥ó¥È¥é¥ó¥¹´°À®Í½ÁÛCG[½Ðŵ¡§¸ø¼°HP]
¡¡¥¨¥ó¥È¥é¥ó¥¹¤Ë¤ÏÌç·¿¤Î¥²¡¼¥È¤¬ÀßÃÖ¤µ¤ì¡¢¥²¡¼¥È¤Î¾åÉô¤Ë¤ÏÅ·Á³ÀФò±úÆÌ¤Ëʤ١¢Ìë¤Ë¤Ê¤ë¤È´ÖÀܾÈÌÀ¤ò¤¢¤Æ¤ë¤³¤È¤Ç±¢±Æ¤¬ºÝΩ¤Ä±é½Ð¤¬»Ü¤µ¤ì¤Æ¤¤¤Þ¤¹¡£

¸ø³«¶õÃÏ´°À®Í½ÁÛ¥¤¥é¥¹¥È[½Ðŵ¡§¸ø¼°HP]
¡¡ÉßÃÏËÌÅ즤ˤÏÌó590֤θø³«¶õÃϤ¬À°È÷¤µ¤ì¤Þ¤¹¡£¥Ù¥ó¥Á¤Ê¤É¤È¤·¤Æ¤â»È¤¨¤ëËíÌÚ¡¢Í·¤Ó¾ì¤È¤·¤ÆÍøÍѤǤ¤ë¿Í¹©¼Ç¥¹¥Ú¡¼¥¹¤Ê¤É¤¬¤¢¤ë¹¾ì¤Ë¤Ê¤ê¤Þ¤¹¡£

¥ï¡¼¥¥ó¥°¥¹¥Ú¡¼¥¹´°À®Í½ÁÛCG[½Ðŵ¡§¸ø¼°HP]
¡¡3³¬¤ËÀßÃÖ¤µ¤ì¤ë¥ï¡¼¥¥ó¥°¥¹¥Ú¡¼¥¹¤«¤é¤Ï¥¥Ã¥º¥¹¥Ú¡¼¥¹¤¬¸«¤¨¤ë¤è¤¦¤Ë¤Ê¤Ã¤Æ¤ª¤ê¡¢»Ò¶¡¤ò¸«¼é¤ê¤Ê¤¬¤é»Å»ö¤ò¤¹¤ë¤³¤È¤â¤Ç¤¤Þ¤¹¡£¤Þ¤¿¡¢ÍÎÁ¤Î¸Ä¼¼¥Ö¡¼¥¹¤âÈ÷¤¨¤é¤ì¤Æ¤¤¤Þ¤¹¡£

¥¥Ã¥º¥¹¥Ú¡¼¥¹´°À®Í½ÁÛCG[½Ðŵ¡§¸ø¼°HP]
¡¡¥¥Ã¥º¥¹¥Ú¡¼¥¹¤ÏȾ²°³°¤È¤Ê¤ê¡¢¿Í¹©¼Ç¤ä³ê¤êÂæ¡¢Íî½ñ¤¤¬¤Ç¤¤ëÊÉÌ̤ʤɤ¬Àߤ¨¤é¤ì¤Æ¤¤¤Þ¤¹¡£
´Ö¼è¤ê¿Þ

K¥¿¥¤¥×[½Ðŵ¡§¸ø¼°HP]
¡¡K¥¿¥¤¥×¤Î´Ö¼è¤ê¿Þ¤Ç¤¹¡£´Ö¼è¤ê¤Ï1LDK+WIC¡¢ÀìÍÌÌÀÑ37.16Ö¡¢¥Ð¥ë¥³¥Ë¡¼ÌÌÀÑ23.27Ö¤ÇË̸þ¤¤Î³ÑÉô²°¤È¤Ê¤Ã¤Æ¤¤¤Þ¤¹¡£

I1¥¿¥¤¥×[½Ðŵ¡§¸ø¼°HP]
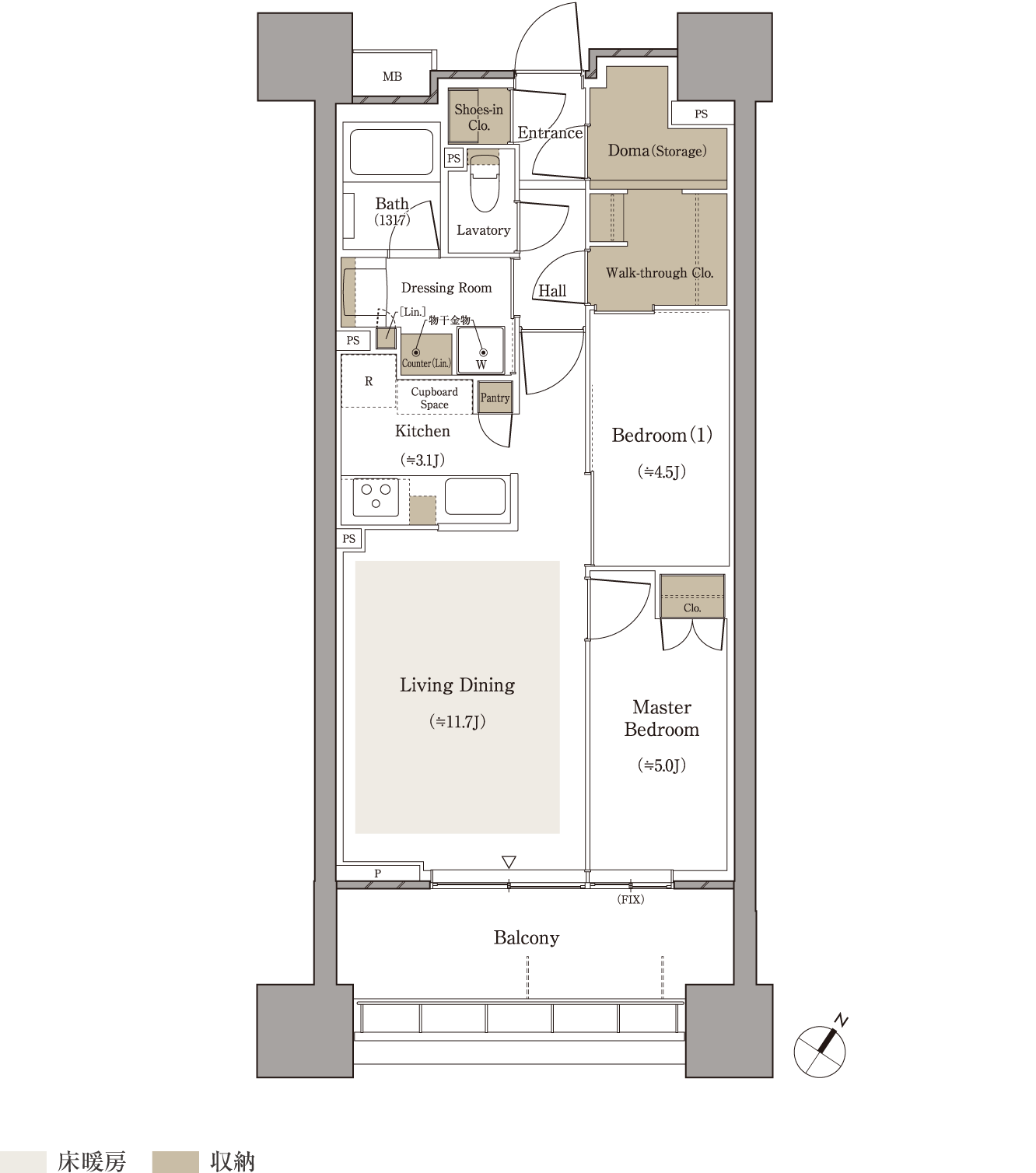
¡¡I1¥¿¥¤¥×¤Î´Ö¼è¤ê¿Þ¤Ç¤¹¡£´Ö¼è¤ê¤Ï2LDK+WTC+SIC+DOMA¡¢ÀìÍÌÌÀÑ60.63Ö¡¢¥Ð¥ë¥³¥Ë¡¼ÌÌÀÑ11.20֤ǡ¢¸¼´ØÏƤËÅÚ´Ö¼ýǼ¤¬¤¢¤ëÆîÅì¸þ¤¤ÎÉô²°¤È¤Ê¤Ã¤Æ¤¤¤Þ¤¹¡£

C¥¿¥¤¥×[½Ðŵ¡§¸ø¼°HP]
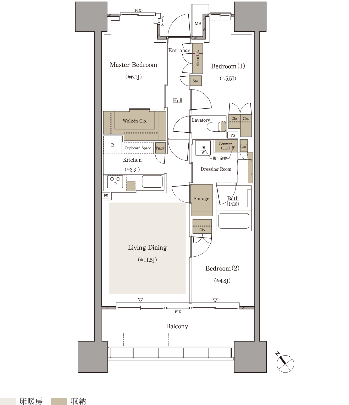
¡¡C¥¿¥¤¥×¤Î´Ö¼è¤ê¿Þ¤Ç¤¹¡£´Ö¼è¤ê¤Ï3LDK+WIC+N¡¢ÀìÍÌÌÀÑ71.46Ö¡¢¥Ð¥ë¥³¥Ë¡¼ÌÌÀÑ12.60Ö¤ÇÆîÀ¾¸þ¤¤ÎÉô²°¤È¤Ê¤Ã¤Æ¤¤¤Þ¤¹¡£

B¥¿¥¤¥×[½Ðŵ¡§¸ø¼°HP]
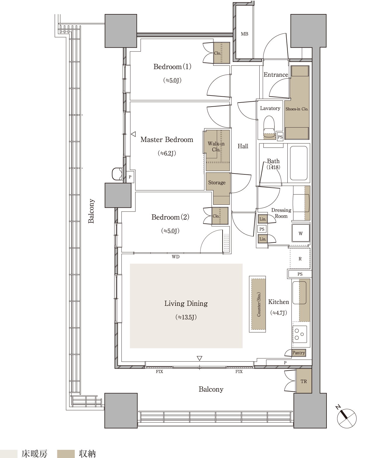
¡¡B¥¿¥¤¥×¤Î´Ö¼è¤ê¿Þ¤Ç¤¹¡£´Ö¼è¤ê¤Ï3LDK+WIC+SIC+N+TR¡¢ÀìÍÌÌÀÑ80.51֡ʥȥé¥ó¥¯¥ë¡¼¥àÌÌÀÑ1.05Ö´Þ¤à¡Ë¡¢¥Ð¥ë¥³¥Ë¡¼ÌÌÀÑ37.92Ö¤ÇÀ¾¸þ¤¤Î³ÑÉô²°¤È¤Ê¤Ã¤Æ¤¤¤Þ¤¹¡£

F¥¿¥¤¥×[½Ðŵ¡§¸ø¼°HP]
¡¡F¥¿¥¤¥×¤Î´Ö¼è¤ê¿Þ¤Ç¤¹¡£´Ö¼è¤ê¤Ï4LDK+WIC+N+TR¡¢ÀìÍÌÌÀÑ84.19֡ʥȥé¥ó¥¯¥ë¡¼¥àÌÌÀÑ1.27Ö´Þ¤à¡Ë¡¢¥Ð¥ë¥³¥Ë¡¼ÌÌÀÑ10.13Ö¡¢¥µ¡¼¥Ó¥¹¥¹¥Ú¡¼¥¹ÌÌÀÑ3.84Ö¤ÇÆî¸þ¤¤Î³ÑÉô²°¤È¤Ê¤Ã¤Æ¤¤¤Þ¤¹¡£
°ÌÃÖ¿Þ

°ÌÃÖ¿Þ[½Ðŵ¡§¸ø¼°HP]
¡¡·úÀßÃϤϾ®ÅĵÞÅÅÅ´¾®Åĸ¶Àþ¡Ö¸þ¥öµÖÍ·±à¡×±Ø¤ÎË̸ý¤«¤éÅÌÊâ2ʬ¤È¤Ê¤Ã¤Æ¤ª¤ê¡¢ËÌÅ즤ˤ¢¤ëJRÆîÉðÀþ¡¦¾®ÅĵÞÅÅÅ´¾®Åĸ¶Àþ¡ÖÅи͡ױؤÏÅÌÊâ7¡Á8ʬ¤È¤Ê¤Ã¤Æ¤¤¤Þ¤¹¡£

°ÌÃÖ¿Þ[½Ðŵ¡§¸ø¼°HP]
¡¡¡Ö¸þ¥öµÖÍ·±à¡×±Ø¤«¤é¤ÏÌܤÎÁ°¤ËÀ°È÷¤µ¤ì¤ë¥Ð¥¹¥¿¡¼¥ß¥Ê¥ë¤Î²£¤òÄ̤ë¥ë¡¼¥È¤ÇÅÌÊâ2ʬ¤È¤Ê¤Ã¤Æ¤¤¤Þ¤¹¡£
·úÀß¾õ¶·

¡¡2023ǯ10·î13Æü¤ËÆî¦¤«¤é»£±Æ¤·¤¿¡Ö¥Ñ¡¼¥¯¥¿¥ï¡¼¸þ¥öµÖÍ·±à¡×(ÃϾå25³¬¡¢¹â¤µ79.98m)¤Î·úÀßÃϤǤ¹¡£

¡¡À¾Â¦¤«¤é»£±Æ¡£±¦¸å¤í¤Î¥¿¥ï¡¼¥Þ¥ó¥·¥ç¥ó¤Ï¡Ö¥¢¥È¥é¥¹¥¿¥ï¡¼¸þ¥öµÖÍ·±à¡×(ÃϾå23³¬¡¢¹â¤µ78.94m)¤Ç¡¢¡Ö¥Ñ¡¼¥¯¥¿¥ï¡¼¸þ¥öµÖÍ·±à¡×(ÃϾå25³¬¡¢¹â¤µ79.98m)¤Ï¤³¤ì¤È¤Û¤ÜƱ¤¸¹â¤µ¤Î¥¿¥ï¡¼¥Þ¥ó¥·¥ç¥ó¤Ë¤Ê¤ê¤Þ¤¹¡£

¡¡ÆîÀ¾Â¦¤«¤é»£±Æ¤·¤¿ÉßÃÏÆâ¤Ç¤¹¡£

¡¡Ë̦¤«¤é»£±Æ¡£»ÍÊý¤¬Æ»Ï©¤ËÀܤ¹¤ëÉßÃϤȤʤäƤ¤¤Þ¤¹¡£

¡¡ËÌÅ즤«¤éÉßÃÏÆâ¤ò»£±Æ¡£

¡¡Å즤«¤é»£±Æ¡£

¡¡ÆîÅ즤«¤é»£±Æ¡£¤³¤ÎÊÕ¤ê¤Ç¤ÏÅÚÃ϶è²èÀ°Íý»ö¶È¤¬¹Ô¤ï¤ì¤Æ¤ª¤ê¡¢³¹Ê¤ߤ¬À¸¤Þ¤ìÊѤï¤Ã¤Æ¤¤¤ë¿¿¤ÃºÇÃæ¤È¤Ê¤Ã¤Æ¤¤¤Þ¤¹¡£
ÃÏ¿Þ
ʪ·ï³µÍ×

¡¡»ö¶È·×²è¤Î¤ªÃΤ餻¤Ç¤¹¡£
¢£Êª·ï³µÍ×¢£
̾¾Î¡§¥Ñ¡¼¥¯¥¿¥ï¡¼¸þ¥öµÖÍ·±à
»ö¶È̾¡§(²¾¾Î)¿ÀÆàÀÀîºê»Ô¿Ëà¶èÅиÍ51³¹¶è·×²è
½êºßÃÏ¡§¿ÀÆàÀÀîºê»Ô¿Ëà¶èÅиÍ51³¹¶è
¸òÄÌ¡§¾®ÅĵÞÅÅÅ´¾®Åĸ¶Àþ¡Ö¸þ¥öµÖÍ·±à¡×±Ø ÅÌÊâ2ʬ
¡¡¡¡¡¡¾®ÅĵÞÅÅÅ´¾®Åĸ¶Àþ¡ÖÅÐ¸Í¡×±Ø ÅÌÊâ7ʬ
¡¡¡¡¡¡JRÆîÉðÀþ¡ÖÅÐ¸Í¡×±Ø ÅÌÊâ8ʬ
ÍÑÅÓ¡§¶¦Æ±½»Âð¡¢Å¹ÊÞ
Áí¸Í¿ô¡§241¸Í¡Ê°ìÈÌÈÎÇäÂоݸͿô186¸Í¡Ë¾¤ËŹÊÞ5¸Í
»ÜÀß¡¦ÀßÈ÷¡§¥ï¡¼¥¥ó¥°¥¹¥Ú¡¼¥¹¡¢¥¥Ã¥º¥¹¥Ú¡¼¥¹¡¢¥°¥é¥ó¥Ô¥ó¥°¥ë¡¼¥à¡Ê¥²¥¹¥È¥ë¡¼¥à¡Ë¡¢¥¹¥«¥¤¥é¥¦¥ó¥¸¡¢²°¾å¥Æ¥é¥¹Åù
³¬¿ô¡§ÃϾå25³¬
¹â¤µ¡§79.98m(ºÇ¹â¹â¤µ89.98m)
¹½Â¤¡§Å´¶Ú¥³¥ó¥¯¥ê¡¼¥È¤¡¢°ìÉôÅ´¹ü¤¡¢Ìȿ̹½Â¤
´ðÁù©Ë¡¡§¾ì½êÂǤÁ¥³¥ó¥¯¥ê¡¼¥È¹º
ÉßÃÏÌÌÀÑ¡§3,450.00Ö
·úÃÛÌÌÀÑ¡§1,551.57Ö
±ä¾²ÌÌÀÑ¡§25,577.97Ö
·úÃۼ硧»°°æÉÔÆ°»º¥ì¥¸¥Ç¥ó¥·¥ã¥ë¡¢¾®ÅĵÞÉÔÆ°»º
Àß·×¼Ô¡§»°°æ½»Í§·úÀß
»Ü¹©¼Ô¡§»°°æ½»Í§·úÀß
¹©´ü¡§2023ǯ1·îÃæ½ÜÃ幩¡Á2025ǯ11·î²¼½Ü½×¹©Í½Äê
Æþµï¡§2026ǯ1·î²¼½ÜÆþµïͽÄê
½Ðŵ
¢§¸ø¼°HP¡§¥Ñ¡¼¥¯¥¿¥ï¡¼¸þ¥öµÖÍ·±à
https://www.31sumai.com/mfr/F2005/
- ¥«¥Æ¥´¥ê
- Àîºê»Ô







