
¡¡¾¡¤É¤¤Ë´°À®¤·¤¿¡Ö¥Ñ¡¼¥¯¥¿¥ï¡¼¾¡¤É¤¡×¤Ç¤¹¡£2023ǯ9·î2Æü¤Ë¡Ö¥«¥ì¥Ã¥¿¼®Î±¡×¤Î̵ÎÁŸ˾¥¹¥Ú¡¼¥¹¤«¤é»£±Æ¤·¤Þ¤·¤¿¡£º¸¤¬¡Ö¥Ñ¡¼¥¯¥¿¥ï¡¼¾¡¤É¤¥ß¥Ã¥É¡×(ÃϾå45³¬¡¢ºÇ¹â¹â¤µ164.60m)¤Ç¡¢±¦¤¬¡Ö¥Ñ¡¼¥¯¥¿¥ï¡¼¾¡¤É¤¥µ¥¦¥¹¡×(ÃϾå58³¬¡¢ºÇ¹â¹â¤µ194.53m)¤Ç¤¹¡£¤³¤Îµ»ö¤Ç¤ÏƱ¥¿¥ï¥Þ¥ó¤Î³µÍפ䴰À®¸å¤ÎÍͻҡ¢ÃÏ¿ÞÅù¤òºÜ¤»¤Æ¤¤¤Þ¤¹¡£
¥Ñ¡¼¥¯¥¿¥ï¡¼¾¡¤É¤¤Ë¤Ä¤¤¤Æ

´°À®Í½ÁÛ¿Þ[½Ðŵ¡§ÅìµþÅԴͶÉ]
¡¡¡Ö¥Ñ¡¼¥¯¥¿¥ï¡¼¾¡¤É¤¡×¤ÏÅÔ±ÄÂç¹¾¸ÍÀþ¡Ö¾¡¤É¤¡×±Ø¤ÈÃϲ¼ÄÌÏ©¤Çľ·ë¤¹¤ëÂ絬ÌÏ¥¿¥ï¡¼¥Þ¥ó¥·¥ç¥ó¤Ç¡¢A1Å郎ÃϾå58³¬¡¢ºÇ¹â¹â¤µ194.53m¤Î¥µ¥¦¥¹¡¢A2Å郎ÃϾå45³¬¡¢ºÇ¹â¹â¤µ164.60m¤Î¥ß¥Ã¥É¤ÇξÅï¤Ï´û¤Ë´°À®¤·¤Æ¤ª¤ê¡¢º¸Ã¼¤¬¤³¤ì¤«¤é·úÀßͽÄê¤ÎBÅï¡Ê¥Î¡¼¥¹¡©¡Ë¤ÇÃϾå29³¬¡¢¹â¤µÌó106m¤Ç·×²è¤µ¤ì¤Æ¤¤¤Þ¤¹¡£
¡¡¥µ¥¦¥¹¤È¥ß¥Ã¥É¤Ï2023ǯ8·î²¼½Ü½×¹©¡¢2024ǯ4·î²¼½ÜÆþµï³«»ÏͽÄê¤È¤Ê¤Ã¤Æ¤¤¤Þ¤¹¤¬¡¢¤³¤ì¤Ï¹ØÆþ¼Ô¤ÎÆþµï»þ´ü¤ÇÃϸ¢¼Ô½»Âð¤Ç¤Ï´û¤ËÆþµï¤¬»Ï¤Þ¤Ã¤Æ¤¤¤Þ¤¹¡£

´°À®Í½ÁÛ¿Þ[½Ðŵ¡§ÅìµþÅÔÅÔ»ÔÀ°È÷¶É]
¡¡¥µ¥¦¥¹¤Îµ¬ÌϤÏÃϾå58³¬¡¢Ãϲ¼3³¬¡¢¹â¤µ188.80m¡¢ºÇ¹â¹â¤µ194.53m¡¢ÉßÃÏÌÌÀÑ1Ëü2015.18Ö¡¢·úÃÛÌÌÀÑ4,300.00Ö¡¢±ä¾²ÌÌÀÑ18Ëü827.74Ö¡¢Áí¸Í¿ô1665¸Í¡ÊÈÎÇäÁí¸Í¿ô1145¸Í¡¢»ö¶È¶¨ÎϼԽ»¸Í520¸Í¡Ë¡¢Çä¼ç¤Ï»°°æÉÔÆ°»º¥ì¥¸¥Ç¥ó¥·¥ã¥ë¤È¼¯Åç·úÀß¡¢À߷׼ԤȻܹ©¼Ô¤Ï¼¯Åç·úÀߤȤʤäƤª¤ê¡¢2023ǯ12·î¾å½Ü¤«¤é¤ÏÂè4´ü4¼¡¤ÎÈÎÇ䳫»ÏͽÄê¤È¤Ê¤Ã¤Æ¤¤¤Þ¤¹¡£
¡¡¥ß¥Ã¥É¤Îµ¬ÌϤÏÃϾå45³¬¡¢Ãϲ¼2³¬¡¢¹â¤µ158.85m¡¢ºÇ¹â¹â¤µ164.60m¡¢ÉßÃÏÌÌÀÑ1Ëü712.20Ö¡¢·úÃÛÌÌÀÑ4,745.85Ö¡¢±ä¾²ÌÌÀÑ13Ëü8312.00Ö¡¢Áí¸Í¿ô1121¸Í¡ÊÈÎÇäÁí¸Í¿ô570¸Í¡¢»ö¶È¶¨ÎϼԽ»¸Í551¸Í¡Ë¡¢Çä¼ç¤Ï»°°æÉÔÆ°»º¥ì¥¸¥Ç¥ó¥·¥ã¥ë¤ÈÀ¶¿å·úÀß¡¢À߷׼ԤȻܹ©¼Ô¤ÏÀ¶¿å·úÀߤȤʤäƤª¤ê¡¢2023ǯ12·î¾å½Ü¤«¤é¤ÏºÇ½ª´ü4¼¡¤ÎÈÎÇ䳫»ÏͽÄê¤È¤Ê¤Ã¤Æ¤¤¤Þ¤¹¡£
¡¡BÅï(¥Î¡¼¥¹¡©)¤Îµ¬ÌϤÏÃϾå29³¬¡¢Ãϲ¼1³¬¡¢¹â¤µÌó106m¡¢ÉßÃÏÌÌÀÑÌó3,780Ö¡¢·úÃÛÌÌÀÑÌó2,112Ö¡¢±ä¾²ÌÌÀÑÌó5Ëü2130Ö¡¢Áí¸Í¿ô464¸Í¡¢2027ǯÅ٤ν׹©Í½Äê¤È¤Ê¤Ã¤Æ¤¤¤Þ¤¹¡£

ÇÛÃַײè¿Þ[½Ðŵ¡§ÅìµþÅԴͶÉ]
¡¡¡Ö¥Ñ¡¼¥¯¥¿¥ï¡¼¾¡¤É¤¡×¤ÏīĬ±¿²Ï±è¤¤¤ÎÀ²³¤Ä̤ê¤È¿··îÅ籿²Ï¤Ë¶´¤Þ¤ì¤¿¾ì½ê¤È¤Ê¤Ã¤Æ¤ª¤ê¡¢A1Å郎¥µ¥¦¥¹¡¢A2Å郎¥ß¥Ã¥É¤È¤Ê¤Ã¤Æ¤¤¤Þ¤¹¡£¤½¤Î¤¿¤áBÅï¤Ï¡Ö¥Ñ¡¼¥¯¥¿¥ï¡¼¾¡¤É¤¥Î¡¼¥¹¡×¤È¤¤¤Ã¤¿Ì¾¾Î¤Ë¤Ê¤ë¤³¤È¤¬Í½ÁÛ¤µ¤ì¤Æ¤¤¤Þ¤¹¡£

ÃÇÌÌ¿Þ[½Ðŵ¡§ÅìµþÅԴͶÉ]
¡¡¥µ¥¦¥¹¤È¥ß¥Ã¥É¤ÎÃÇÌ̿ޤǤ¹¡£¥ß¥Ã¥É¤Ï1¡Á3³¬¤¬¾¦¶È»ÜÀß¡¢4¡Á7³¬¤¬¥ª¥Õ¥£¥¹¥Õ¥í¥¢¡¢8³¬¤¬¶¦ÍÑ»ÜÀß¥Õ¥í¥¢¤È¤Ê¤Ã¤Æ¤¤¤Þ¤¹¡£¥µ¥¦¥¹¤Ï¥È¥é¥¤¥¹¥¿¡¼·¿¤È¤Ê¤Ã¤Æ¤ª¤ê¡¢Ë̦¹âÁØÉô¤Ï¥»¥Ã¥È¥Ð¥Ã¥¯¤·¤Æ¤ª¤ê¡¢¤½¤³¤Ë¥¹¥«¥¤¥Ç¥Ã¥¤ä¥ë¡¼¥Õ¥È¥Ã¥×¥é¥¦¥ó¥¸¤È¤¤¤Ã¤¿¶¦ÍÑ»ÜÀߤ¬ÇÛÃÖ¤µ¤ì¤Þ¤¹¡£

ÃÇÌÌ¿Þ[½Ðŵ¡§ÅìµþÅԴͶÉ]
¡¡¤³¤ì¤«¤é·úÀߤµ¤ì¤ëBÅï¤ÏÄãÁØÉô¤Ë¾¦¶È»ÜÀߤ¬Æþ¤ê¡¢¹âÁØÉô¤Ë¶¦ÍÑ»ÜÀß¥Õ¥í¥¢¤¬ÍѰդµ¤ì¤ë¤³¤È¤¬¤ï¤«¤ê¤Þ¤¹¡£

Á´ÂÎÉßÃÏÇÛÃÖ¿Þ[½Ðŵ¡§¸ø¼°HP]
¡¡Àè¤Ë´°À®¤¿¥µ¥¦¥¹¤È¥ß¥Ã¥É¤ÎÇÛÃֿޤǤ¹¡£¥Þ¥ó¥·¥ç¥ó¤Î¼þ°Ï¤Ë¤Ï¼ÇÀ¸¹¾ì¤äBBG¥¬¡¼¥Ç¥ó¤Ê¤É¤¬ÇÛÃÖ¤µ¤ì¡¢Î¾Åï¤Î´Ö¤Ë¤ÏÊ®¿å¤Î¤¢¤ë¥»¥ó¥È¥é¥ë¥é¥°¡¼¥ó¤¬ÇÛÃÖ¤µ¤ì¤Æ¤¤¤Þ¤¹¡£¤Þ¤¿¡¢¥ß¥Ã¥É¦¤Ë¤Ï¿ÍÆ»¶¶¤¬Ä«Ä¬±¿²Ï¤Ë²Í¤±¤é¤ì¤Þ¤¹¡£
¡¡¤Þ¤¿¡¢¿Þ¤Î±¦¾å¤Ë¤¢¤ë¥á¥È¥í¥Ñ¥Ó¥ê¥ª¥ó¤ÏÅÔ±ÄÂç¹¾¸ÍÀþ¡Ö¾¡¤É¤¡×±Ø¤Ëľ·ë¤¹¤ëÃϲ¼ÄÌÏ©¤Ç´û¤Ë³«Ä̤·¤Æ¤¤¤Þ¤¹¡£¤³¤³¤¬¡Ö¾¡¤É¤¡×±Ø¤Î½ÐÆþ¸ý°·¤¤¤È¤Ê¤ë¤¿¤á¥ß¥Ã¥É¤Ï¾¡¤É¤±Ø¤Þ¤ÇÅÌÊâ1ʬɽµ¡¢¥µ¥¦¥¹¤Ï2ʬɽµ¤È¤Ê¤ê¤Þ¤¹¡£

³°´Ñ´°À®Í½ÁÛCG
¡¡¥ß¥Ã¥É¤Î8³¬¤Ë¤Ï¶¦ÍÑ»ÜÀߤ¬½¸Ì󤵤졢¥Õ¥£¥Ã¥È¥Í¥¹¥ë¡¼¥à¤ä¥Ñ¡¼¥Æ¥£¥é¥¦¥ó¥¸¡¢¥²¥¹¥È¥ë¡¼¥à¤Ê¤É¤¬ÇÛÃÖ¤µ¤ì¤Þ¤¹¡£

¥¹¥«¥¤¥Ç¥Ã¥´°À®Í½ÁÛCG[½Ðŵ¡§»°°æÉÔÆ°»º¥ì¥¸¥Ç¥ó¥·¥ã¥ë]
¡¡¥µ¥¦¥¹¤Î53³¬¤Ë¤Ï¶¦ÍÑ»ÜÀߤȤ·¤Æ¥¹¥«¥¤¥Ç¥Ã¥¤ä¥ë¡¼¥Õ¥È¥Ã¥×¥é¥¦¥ó¥¸¤¬ÀßÃÖ¤µ¤ì¤Þ¤¹¡£¡Ö¥Ñ¡¼¥¯¥¿¥ï¡¼¾¡¤É¤¡×¤Î¶¦ÍÑ»ÜÀߤϥµ¥¦¥¹¤È¥ß¥Ã¥É¤ÇÁê¸ßÍøÍѲÄǽ¤Ë¤Ê¤ê¤Þ¤¹¡£

¥ë¡¼¥Õ¥È¥Ã¥×¥é¥¦¥ó¥¸´°À®Í½ÁÛCG[½Ðŵ¡§¸ø¼°HP]
¡¡¥¹¥«¥¤¥Ç¥Ã¥¤Ë·Ò¤¬¤ë53³¬¤Î¥ë¡¼¥Õ¥È¥Ã¥×¥é¥¦¥ó¥¸¤ÏÆóÁØ¿á¤È´¤±¤Î¶õ´Ö¤È¤Ê¤ê¤Þ¤¹¡£¥µ¥¦¥¹¤Î¶¦ÍÑ»ÜÀߤȤ·¤Æ¤Ï1¡¢2³¬¤Ë¥²¥¹¥È¥ë¡¼¥à¤ä¥Õ¥£¥Ã¥È¥Í¥¹¡¢¥´¥ë¥Õ¥ì¥ó¥¸¤Ê¤É¤âÇÛÃÖ¤µ¤ì¤Þ¤¹¡£
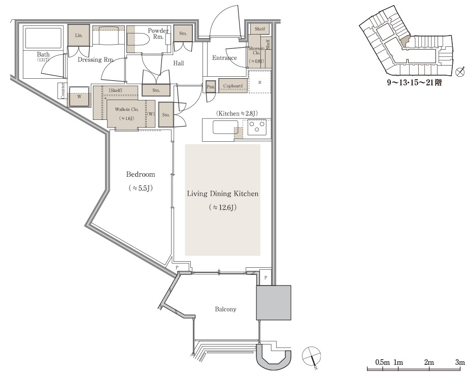
´Ö¼è¤ê¿Þ(¥µ¥¦¥¹)

SW-61Anw¥¿¥¤¥×[½Ðŵ¡§¸ø¼°HP]
¡¡SW-61Anw¥¿¥¤¥×¤Î´Ö¼è¤ê¿Þ¤Ç¤¹¡£´Ö¼è¤ê¤Ï1LDK+WTC+SIC¡¢ÀìÍÌÌÀѤÏ61.38Ö¡¢¥Ð¥ë¥³¥Ë¡¼ÌÌÀѤÏ14.77֤ȤʤäƤ¤¤Þ¤¹¡£
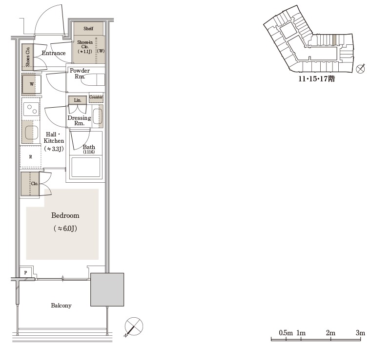
´Ö¼è¤ê¿Þ(¥ß¥Ã¥É)

M-25Jnw¥¿¥¤¥×[½Ðŵ¡§¸ø¼°HP]
¡¡M-25Jnw¥¿¥¤¥×¤Î´Ö¼è¤ê¿Þ¤Ç¤¹¡£´Ö¼è¤ê¤Ï1K+SIC+TR¡¢ÀìÍÌÌÀѤÏ25.05Ö¡¢¥Ð¥ë¥³¥Ë¡¼ÌÌÀѤÏ6.00Ö¡¢¥È¥é¥ó¥¯¥ë¡¼¥àÌÌÀÑ1.40֤ȤʤäƤ¤¤Þ¤¹¡£

M-50An¥¿¥¤¥×[½Ðŵ¡§¸ø¼°HP]
¡¡M-50An¥¿¥¤¥×¤Î´Ö¼è¤ê¿Þ¤Ç¤¹¡£´Ö¼è¤ê¤Ï1LDK+WIC+SIC+TR¡¢ÀìÍÌÌÀѤÏ50.01Ö¡¢¥Ð¥ë¥³¥Ë¡¼ÌÌÀѤÏ6.11Ö¡¢¥È¥é¥ó¥¯¥ë¡¼¥àÌÌÀÑ1.40֤ȤʤäƤ¤¤Þ¤¹¡£
°ÌÃÖ¿Þ

·×²èÃϰÌÃÖ¿Þ[½Ðŵ¡§ÅìµþÅԴͶÉ]
¡¡¾ì½ê¤ÏÅÔ±ÄÂç¹¾¸ÍÀþ¡Ö¾¡¤É¤¡×±Ø¤ÎÆî¦¤Ç¥ß¥Ã¥É¤ÏÃϲ¼ÄÌÏ©¤Ë¤è¤Ã¤Æ±Ø¤Ëľ·ë¤·¤Þ¤¹¡£¥µ¥¦¥¹¤Ï±ØÄ¾·ë¤Ç¤Ï¤¢¤ê¤Þ¤»¤ó¤¬¡¢²°º¬ÉÕ¤¤Î´ÓÄÌÄÌÏ©¤Ç¥ß¥Ã¥É¤Ë·Ò¤¬¤Ã¤Æ¤¤¤ë¤¿¤á±«¤ÎÆü¤Ç¤â»±¤Ê¤·¤Ç±ØÁ°¹Ô¤¯¤³¤È¤¬²Äǽ¤Ç¤¹¡£
¡¡BÅï¡Ê¥Î¡¼¥¹¡©¡Ë¤ÏÇÛÃֿޤ䴰À®Í½ÁÛ¿Þ¤ò¸«¤ë¸Â¤ê¤Ç¤Ï¥ß¥Ã¥É¤ÈÀܳ¤·¤Æ¤¤¤Ê¤¤¤¿¤á¡¢±«¤ÎÆü¤Ï»±¤¬É¬Íפˤʤꤽ¤¦¤Ç¤¹¡£
´°À®¸å¤ÎÍÍ»Ò

¡¡2023ǯ9·î10Æü¤ËīĬ±¿²Ï¤Ë²Í¤«¤ë¡ÖóÕÌÀÂç¶¶¡Ê´Ä¾õ2¹æÀþ¡Ë¡×¤«¤é»£±Æ¤·¤¿¡Ö¥Ñ¡¼¥¯¥¿¥ï¡¼¾¡¤É¤¡×¤Ç¤¹¡£º¸¤¬¡Ö¥Ñ¡¼¥¯¥¿¥ï¡¼¾¡¤É¤¥µ¥¦¥¹¡×(ÃϾå58³¬¡¢ºÇ¹â¹â¤µ194.53m)¤Ç¡¢±¦¤¬¡Ö¥Ñ¡¼¥¯¥¿¥ï¡¼¾¡¤É¤¥ß¥Ã¥É¡×(ÃϾå45³¬¡¢ºÇ¹â¹â¤µ164.60m)¤Ç¤¹¡£
¡¡±¦Ã¼¤ÎÇò¤¤¥Þ¥ó¥·¥ç¥ó¤¬¡ÖóÕÌÀ¥¹¥«¥¤¥ì¥¸¥Æ¥ë¡×¤ÇBÅï(¥Î¡¼¥¹¡©)¤È¤·¤ÆÃϾå29³¬¡¢¹â¤µÌó106m¤Î¥¿¥ï¡¼¥Þ¥ó¥·¥ç¥ó¤Ø·ú¤ÆÂؤ¨¤é¤ì¤Þ¤¹¡£

¡¡Ä«Ä¬±¿²Ï¤Îξ´ß¤Ë¤Ï¥¿¥ï¡¼¥Þ¥ó¥·¥ç¥ó¤¬·ú¤Áʤó¤Ç¤¤¤Þ¤¹¡£

¡¡¤½¤Î¤¿¤á¤³¤ÎÊÕ¤ê¤ÏÇ÷ÎϤ¢¤ë¸÷·Ê¤È¤Ê¤Ã¤Æ¤¤¤Þ¤¹¡£³¤³°¤Ë¹Ô¤¯¤È¤³¤¦¤¤¤Ã¤¿¸÷·Ê¤Ï´Ñ¸÷»ñ¸»¤È¤·¤Æ¥é¥¤¥È¥¢¥Ã¥×¤·¡¢¤½¤·¤ÆÍ·Í÷Á¥¤¬¥Ð¥ó¥Ð¥ó±¿¹Ò¤·¤Æ¤¤¤ë¤È¤³¤í¤â¤¢¤ê¤Þ¤¹¤¬¡¢ÆüËܤϤޤÀ¤½¤ÎÎΰè¤Ë¤Ï»ê¤Ã¤Æ¤¤¤Þ¤»¤ó¡£

¡¡À²³¤Â¦¤«¤é¸«¤¿¥µ¥¦¥¹¤Ç¤¹¡£º¸¤Ï¡ÖTHE TOKYO TOWERS¡×(ÃϾå58³¬¡¢ºÇ¹â¹â¤µ193.5m)¤È¡Ö¾¡¤É¤ ¥¶¡¦¥¿¥ï¡¼¡×(ÃϾå53³¬¡¢ºÇ¹â¹â¤µ178.78m)¤Ç¤¹¡£

¡¡¥µ¥¦¥¹¤Î¹âÁØÉô¤ÎË̦¤Ï¥»¥Ã¥È¥Ð¥Ã¥¯¤·¤Æ¤ª¤ê¡¢¤½¤Î¥»¥Ã¥È¥Ð¥Ã¥¯¤·¤¿Éôʬ¤Ë¥¹¥«¥¤¥Ç¥Ã¥¤¬ÀßÃÖ¤µ¤ì¤Æ¤¤¤Þ¤¹¡£

¡¡Ä«Ä¬±¿²Ï±è¤¤¤ÎÀ²³¤Â¦¤«¤é¸«¤¿¥ß¥Ã¥É¤Ç¤¹¡£

¡¡¥ß¥Ã¥É¤ÎÄãÁØÉô¤ÏŹÊÞ¥¹¥Ú¡¼¥¹¤È¤Ê¤Ã¤Æ¤ª¤ê¥¹¥¿¡¼¥Ð¥Ã¥¯¥¹¤Ê¤É¤âÆþ¤Ã¤Æ¤¤¤Þ¤¹¡£

¡¡¤½¤Î¥ß¥Ã¥É¤ÎÁ°¤Ç¤ÏīĬ±¿²Ï¤Ë²Í¤«¤ë¿ÍÆ»¶¶¤¬·úÀßÃæ¤Ç¤¹¡£

¡¡¶¶¤Î³°Â¦¤¬¥¦¥Í¥¦¥Í¤·¤¿¥Ç¥¶¥¤¥ó¤È¤Ê¤Ã¤Æ¤ª¤ê¡¢Ìë¤Ë¤Ï¥é¥¤¥È¥¢¥Ã¥×¤µ¤ì¤ë·×²è¤È¤Ê¤Ã¤Æ¤¤¤Þ¤¹¡£

¡¡¿ÍÆ»¶¶¤Ï¤Þ¤À·úÀßÃæ¤Ç2024ǯ5·î¤Î³«ÄÌͽÄê¤È¤Ê¤Ã¤Æ¤¤¤Þ¤¹¡£

¡¡¥ß¥Ã¥É¤Î3³¬¤«¤é¸«¤¿¿ÍÆ»¶¶¤Ç¤¹¡£¤³¤Î¶¶¤ò»È¤¦¤Î¤ÏÀ²³¤Â¦¤Î½»Ì±¤¬Â¿¤¤¤«¤È»×¤¤¤Þ¤¹¤¬¡¢¥ß¥Ã¥É¤Î¾¦¶È»ÜÀߤ˿ͤò¸Æ¤Ó¹þ¤à¶¶¤Ë¤â¤Ê¤ê¤Þ¤¹¡£

¡¡¿ÍÆ»¶¶¤È¡ÖóÕÌÀ¥¹¥«¥¤¥ì¥¸¥Æ¥ë¡×¤Ç¤¹¡£¤³¤Î¥Þ¥ó¥·¥ç¥ó¤Ï¤½¤í¤½¤íBÅï(¥Î¡¼¥¹¡©)¤Ø¤Î·úÂØ¤¨¤¬»Ï¤Þ¤ëº¢¤Ç¡¢Àè·î¸ø³«¤µ¤ì¤¿¾¡¤É¤ÅìÃ϶è¤Î»ö¶È·×²è¤ÎÊѹ¹ÆÏ¤Ç¤Ï2023ǯ9·î¤«¤é½àÈ÷¹©»ö¤È¤Ê¤Ã¤Æ¤¤¤Þ¤·¤¿¤¬¡¢¤Þ¤ÀÆþµï¤·¤Æ¤¤¤ë¤è¤¦¤Ç¤·¤¿¡£

¡¡À²³¤Ä̤ê¤Ë²Í¤«¤ëÊâÆ»¶¶¤«¤é¸«¤¿¡Ö¥Ñ¡¼¥¯¥¿¥ï¡¼¾¡¤É¤¡×¤Ç¤¹¡£¼êÁ°¤ÏóÕÌÀ¶¶¸ø±à¤Ç¤¹¡£

¡¡À²³¤Ä̤ê¤Ë²Í¤«¤ëóÕÌÀ¶¶¤«¤é»£±Æ¡£¤³¤ÎÊÕ¤ê¤ÏµðÂç¤Ê¥¿¥ï¡¼¥Þ¥ó¥·¥ç¥ó¤¬Ê£¿ô·ú¤Áʤ֥¨¥ê¥¢¤È¤Ê¤Ã¤Æ¤¤¤Þ¤¹¡£

¡¡¡ÖóÕÌÀ¥¹¥«¥¤¥ì¥¸¥Æ¥ë¡×¤Î²£¤«¤é¸«¤¿¥ß¥Ã¥É¤Ç¤¹¡£

¡¡¾¡¤É¤±Ø¤Ë°ìÈֶᤤ¦¤«¤é»£±Æ¡£

¡¡¤³¤³¤¬¾¡¤É¤±Ø¤ËÃϲ¼ÄÌÏ©¤Çľ·ë¤¹¤ë¥á¥È¥í¥Ñ¥Ó¥ê¥ª¥ó¤È¤Ê¤Ã¤Æ¤¤¤Þ¤¹¡£

¡¡Ë̦¤«¤é¸«¤¿¡Ö¥Ñ¡¼¥¯¥¿¥ï¡¼¾¡¤É¤¥ß¥Ã¥É¡×¤Ç¤¹¡£

¡¡¥ß¥Ã¥É¤ÎÁ°¤Ë¤Ï¹¾ì¤¬¤¢¤ê¤Þ¤¹¡£

¡¡Ìë¤Ë¤Ï¥é¥¤¥È¥¢¥Ã¥×¤µ¤ì¤¿¹¾ì¤Ë¤Ê¤ê¤Þ¤¹¡£

¡¡¥ß¥Ã¥É¤Ï¤Ø¤Î»ú·¿¤È¤Ê¤Ã¤Æ¤¤¤ë¤¿¤á¡¢¸«¤ë³ÑÅ٤ˤè¤Ã¤Æ¤Ï²ÁÃͤ¬¿ïʬ¤ÈÊѤï¤Ã¤Æ¸«¤¨¤Þ¤¹¡£¼êÁ°¤Î·úʪ¤Ï¾¡¤É¤ÅìÃ϶è¤ÎA3Ã϶è¤Ë·úÀߤµ¤ì¤¿¡ÖÎ×¹Á¾ÃËɽð·îÅç¾ÃËɽÐÄ¥½ê¡×¤Ç¤¹¡£

¡¡Ë̦¤«¤é¸«¤¿¡Ö¥Ñ¡¼¥¯¥¿¥ï¡¼¾¡¤É¤¥µ¥¦¥¹¡×¤Ç¤¹¡£

¡¡¥µ¥¦¥¹¤ÎÃó¼Ö¾ì¤Î½ÐÆþ¸ý¤È¤Ê¤ë¥³¡¼¥Á¥¨¥ó¥È¥é¥ó¥¹Éô¤Ç¤¹¡£3¼¡¶ÊÀþ¤Î¥Ç¥¶¥¤¥ó¤¬ÁÇŨ¤Ç¤¹¡£

¡¡Ìë¤Ë¤Ï¥é¥¤¥È¥¢¥Ã¥×¤µ¤ì¤Þ¤¹¡£

¡¡ËÌÀ¾Â¦¤«¤é¸«¾å¤²¤¿ÍͻҤǤ¹¡£±¦¤Ë¸«¤¨¤Æ¤¤¤ë¤Î¤Ï¥Ä¥¤¥ó¥¿¥ï¥Þ¥ó¤Î¡ÖDEUX TOURS (¥É¥¥¡¦¥È¥¥¡¼¥ë) ¡×(ÃϾå52³¬¡¢¹â¤µ177.3m)¤Ç¤¹¡£

¡¡¡ÖóÕÌÀÂç¶¶¡Ê´Ä¾õ2¹æÀþ¡Ë¡×¤«¤é¸«¤¿¥µ¥¦¥¹¤Ç¤¹¡£¼êÁ°¤ÎÎÐÃϤʤɤâ´û¤ËÄ̤ì¤ë¤è¤¦¤Ë¤Ê¤Ã¤Æ¤¤¤Þ¤¹¡£

¡¡¤½¤Î¥µ¥¦¥¹Á°¤ÎÎÐÆ»¤Ç¤¹¡£

¡¡½»Ì±¤Ç¤Ï¤Ê¤¤¤Î¤Ç¼þÊÕ¤ò»¶Ê⤹¤ë¤³¤È¤·¤«¤Ç¤¤Þ¤»¤ó¤¬¡¢»¶Ê⤹¤ë¤À¤±¤Ç¤â¤Ê¤«¤Ê¤«Îɤ¤¾ì½ê¤Ç¤·¤¿¡£

¡¡¹¾ì¤«¤é¸«¾å¤²¤¿ÍͻҤǤ¹¡£

¡¡Ìë·Ê¥Ð¡¼¥¸¥ç¥ó¤Ç¤¹¡£¤Þ¤ÀÆþµï¤·¤Æ¤¤¤ë²È¤Ï¾¯¤Ê¤¤¤Ç¤¹¤¬¡¢¥µ¥¦¥¹¤È¥ß¥Ã¥É¤ò¹ç¤ï¤»¤¿Áí¸Í¿ô2786¸Í¤Î¤¦¤Á»ö¶È¶¨ÎϼԸͿô¤¬1071¸Í¤â¤¢¤ë¤Î¤Çº£¸åÁëÌÀ¤«¤ê¤¬Áý¤¨¤Æ¹Ô¤¯¤³¤È¤Ë¤Ê¤ê¤Þ¤¹¡£

¡¡¥µ¥¦¥¹¤È¥ß¥Ã¥É¤ÎÃæ´ÖÃÏÅÀ¤Ë¤¢¤ë¥»¥ó¥È¥é¥ë¥é¥°¡¼¥ó¤Ç¤¹¡£

¡¡ÊâÆ»¤Ë¿å¤¬°î¤ì½Ð¤Æ¤¤¤Þ¤·¤¿¡£

¡¡Ë̦¤«¤é¥»¥ó¥È¥é¥ë¥é¥°¡¼¥ó¤ò¸«¤ë¤ÈÀ²³¤¤Î¥¿¥ï¥Þ¥ó·²¤¬ÀµÌ̤˸«¤¨¤Þ¤¹¡£

¡¡Ìë¤Î¥»¥ó¥È¥é¥ë¥é¥°¡¼¥ó¤Ï¥é¥¤¥È¥¢¥Ã¥×¤µ¤ì¤Þ¤¹¡£

¡¡¿§¤¬¼¡¡¹¤ËÊѤï¤ë¥é¥¤¥È¥¢¥Ã¥×¤È¤Ê¤Ã¤Æ¤¤¤Þ¤·¤¿¡£

¡¡¥»¥ó¥È¥é¥ë¥é¥°¡¼¥ó¤ÎÎ٤ˤϵٷƤǤ¤ë¥¹¥Ú¡¼¥¹¤¬¤¢¤ê¤Þ¤·¤¿¡£

¡¡¤³¤¦¤¤¤Ã¤¿¥Æ¡¼¥Ö¥ë¤âÌë¤Ë¤Ï¥é¥¤¥È¥¢¥Ã¥×¤µ¤ì¤Æ¤¤¤Þ¤·¤¿¡£

¡¡¾¡¤É¤±Ø¤Î¿·¤¿¤Ê½ÐÆþ¸ý¤È¤Ê¤Ã¤¿¥á¥È¥í¥Ñ¥Ó¥ê¥ª¥ó¤Ç¤¹¡£

¡¡¤³¤³¤«¤é²þ»¥¤Þ¤ÇÃϲ¼ÄÌÏ©¤Ç·Ò¤¬¤Ã¤Æ¤¤¤Þ¤¹¡£

¡¡·ë¹½Ä¹¤¤Ãϲ¼ÄÌÏ©¤Î¤¿¤á±Ø¤Î½ÐÆþ¸ý¤ËÆþ¤Ã¤Æ¤«¤é¿ôʬ¤ÏÊ⤯¤³¤È¤Ë¤Ê¤ê¤Þ¤¹¡£

¡¡¥°¥é¥ó¥É¥Þ¥ê¡¼¥ÊÅìµþÊýÌ̲þ»¥¤¬¡Ö¥Ñ¡¼¥¯¥¿¥ï¡¼¾¡¤É¤¡×¤Ë·Ò¤¬¤Ã¤Æ¤¤¤Þ¤¹¡£¤³¤Î¡Ö¥°¥é¥ó¥É¥Þ¥ê¡¼¥ÊÅìµþ¡×¤¬¾¦¶È»ÜÀߤʤɤâ´Þ¤àÁ´ÂΤÎ̾¾Î¤È¤Ê¤Ã¤Æ¤¤¤ë¤è¤¦¤Ç¤¹¡£
ÃÏ¿Þ(¥µ¥¦¥¹)
ÃÏ¿Þ(¥ß¥Ã¥É)
ʪ·ï³µÍ×(¥µ¥¦¥¹)

¡¡¥µ¥¦¥¹¤Î·úÃ۷ײè¤Î¤ªÃΤ餻¤Ç¤¹¡£
¢£Êª·ï³µÍ×¢£
̾¾Î¡§¥Ñ¡¼¥¯¥¿¥ï¡¼¾¡¤É¤¥µ¥¦¥¹
·×²è̾¡§¾¡¤É¤ÅìÃ϶èÂè°ì¼ï»Ô³¹ÃϺƳ«È¯»ö¶È»ÜÀß·úÃÛʪ A1Åï
½êºßÃÏ¡§ÅìµþÅÔÃæ±û¶è¾¡¤É¤»ÍÃúÌÜ1500ÈÖ
¸òÄÌ¡§ÅÔ±ÄÂç¹¾¸ÍÀþ¡Ö¾¡¤É¤¡×±ØÅÌÊâ2ʬ
ÍÑÅÓ¡§¶¦Æ±½»Âð¡¢Å¹ÊÞ
Áí¸Í¿ô¡§1665¸Í¡ÊÈÎÇäÁí¸Í¿ô1145¸Í¡¢»ö¶È¶¨ÎϼԽ»¸Í520¸Í¡Ë
³¬¿ô¡§ÃϾå58³¬¡¢Ãϲ¼3³¬
¹â¤µ¡§188.80m(ºÇ¹â¹â¤µ194.53m)
¹½Â¤¡§Å´¶Ú¥³¥ó¥¯¥ê¡¼¥È¤ °ìÉôÅ´¹ü¤
´ðÁù©Ë¡¡§Ä¾ÀÜ´ðÁÃ
ÉßÃÏÌÌÀÑ¡§12,015.18Ö
·úÃÛÌÌÀÑ¡§4,300.00Ö
±ä¾²ÌÌÀÑ¡§180,827.74Ö
Çä¼ç¡§»°°æÉÔÆ°»º¥ì¥¸¥Ç¥ó¥·¥ã¥ë¡¢¼¯Åç·úÀß
·úÃۼ硧¾¡¤É¤ÅìÃ϶è»Ô³¹ÃϺƳ«È¯Áȹç
»²²ÃÁȹç°÷¡§»°°æÉÔÆ°»º¥ì¥¸¥Ç¥ó¥·¥ã¥ë
Çä¼ç¡§»°°æÉÔÆ°»º¥ì¥¸¥Ç¥ó¥·¥ã¥ë¡¢¼¯Åç·úÀß
Àß·×¼Ô¡§¼¯Åç·úÀß
»Ü¹©¼Ô¡§¼¯Åç·úÀß
¹©´ü¡§2019ǯ3·î1ÆüÃ幩¡Á2023ǯ8·î31Æü½×¹©Í½Äê
Æþµï¡§2024ǯ4·î²¼½ÜͽÄê
ʪ·ï³µÍ×(¥ß¥Ã¥É)

¡¡¥ß¥Ã¥É¤Î·úÃ۷ײè¤Î¤ªÃΤ餻¤Ç¤¹¡£
¢£Êª·ï³µÍ×¢£
̾¾Î¡§¥Ñ¡¼¥¯¥¿¥ï¡¼¾¡¤É¤¥ß¥Ã¥É
·×²è̾¡§¾¡¤É¤ÅìÃ϶èÂè°ì¼ï»Ô³¹ÃϺƳ«È¯»ö¶È»ÜÀß·úÃÛʪ A2Åï
½êºßÃÏ¡§ÅìµþÅÔÃæ±û¶è¾¡¤É¤»ÍÃúÌÜ501ÈÖ Â¾
¸òÄÌ¡§ÅÔ±ÄÂç¹¾¸ÍÀþ¡Ö¾¡¤É¤¡×±ØÅÌÊâ1ʬ
ÍÑÅÓ¡§¶¦Æ±½»Âð¡¢»ö̳½ê¡¢Å¹ÊÞ¡¢Êݰé½ê
Áí¸Í¿ô¡§1121¸Í¡ÊÈÎÇäÁí¸Í¿ô570¸Í¡¢»ö¶È¶¨ÎϼԽ»¸Í551¸Í¡Ë
³¬¿ô¡§ÃϾå45³¬¡¢Ãϲ¼2³¬
¹â¤µ¡§158.85m(ºÇ¹â164.60m)
¹½Â¤¡§Å´¶Ú¥³¥ó¥¯¥ê¡¼¥È¤
´ðÁù©Ë¡¡§¹º´ðÁá¢Ä¾ÀÜ´ðÁáʾì½êÂǤÁ¹Ý´É¥³¥ó¥¯¥ê¡¼¥È¹º¡Ë
ÉßÃÏÌÌÀÑ¡§10,712.20Ö
·úÃÛÌÌÀÑ¡§4,745.85Ö
±ä¾²ÌÌÀÑ¡§138,312.00Ö
·úÃۼ硧¾¡¤É¤ÅìÃ϶è»Ô³¹ÃϺƳ«È¯Áȹç
»²²ÃÁȹç°÷¡§»°°æÉÔÆ°»º¥ì¥¸¥Ç¥ó¥·¥ã¥ë
Çä¼ç¡§»°°æÉÔÆ°»º¥ì¥¸¥Ç¥ó¥·¥ã¥ë¡¢À¶¿å·úÀß
Àß·×¼Ô¡§À¶¿å·úÀß
»Ü¹©¼Ô¡§À¶¿å·úÀß
¹©´ü¡§2019ǯ1·îÃæ½ÜÃ幩¡Á2023ǯ8·î²¼½Ü½×¹©Í½Äê
Æþµï¡§2024ǯ4·î²¼½ÜͽÄê
ʪ·ï³µÍ×(B³¹¶è)

BÃÏ¶è ¹©»ö¹©Äø[½Ðŵ¡§ÅìµþÅԴͶÉ]
¡¡2023ǯ9·î¤«¤é¤ÎÃ幩ͽÄê¤È¤Ê¤Ã¤Æ¤¤¤Þ¤¹¤¬¡¢¤Þ¤ÀÆþµï¤·¤Æ¤¤¤¿¤Î¤Ç¹©´ü¤Ï¾¯¤·¤º¤ì¤ë¤«¤â¤·¤ì¤Þ¤»¤ó¡£
¢£Êª·ï³µÍ×¢£
·×²è̾¡§¾¡¤É¤ÅìÃ϶èÂè°ì¼ï»Ô³¹ÃϺƳ«È¯»ö¶È»ÜÀß·úÃÛʪ BÅï
½êºßÃÏ¡§ÅìµþÅÔÃæ±û¶è¾¡¤É¤»ÍÃúÌÜ
¸òÄÌ¡§ÅÔ±ÄÂç¹¾¸ÍÀþ¡Ö¾¡¤É¤¡×±Ø
ÍÑÅÓ¡§¶¦Æ±½»Âð¡¢¾¦¶È»ÜÀß
Áí¸Í¿ô¡§464¸Í
³¬¿ô¡§ÃϾå29³¬¡¢Ãϲ¼1³¬
¹â¤µ¡§Ìó106m
¹½Â¤¡§Å´¶Ú¥³¥ó¥¯¥ê¡¼¥È¤
ÉßÃÏÌÌÀÑ¡§3,780Ö
·úÃÛÌÌÀÑ¡§2,112Ö
±ä¾²ÌÌÀÑ¡§52,130Ö
·úÃۼ硧¾¡¤É¤ÅìÃ϶è»Ô³¹ÃϺƳ«È¯Áȹç
»²²ÃÁȹç°÷¡§»°°æÉÔÆ°»º¥ì¥¸¥Ç¥ó¥·¥ã¥ë
Àß·×¼Ô¡§¡Ý
»Ü¹©¼Ô¡§¡Ý
¹©´ü¡§2023ǯÅÙÃ幩¡Á2027ǯÅÙ½×¹©Í½Äê
½Ðŵ
¢§¸ø¼°HP
https://www.31sumai.com/mfr/X1972/
¢§ÅìµþÅԴͶɡ§´Ä¶±Æ¶Áɾ²Á¿Þ½ñ¡Ê2023ǯ8·î26Æü¡Ë
¡Ö¾¡¤É¤ÅìÃ϶èÂè°ì¼ï»Ô³¹ÃϺƳ«È¯»ö¶È¡× Êѹ¹ÆÏ
¢§ÅìµþÅÔÅÔ»ÔÀ°È÷¶É
»Ô³¹ÃϺƳ«È¯»ö¶È¤Ë¤Ä¤¤¤Æ¡Ê¾¡¤É¤Åì¡Ë
¢§»°°æÉÔÆ°»º¥ì¥¸¥Ç¥ó¥·¥ã¥ë¡§¥Ë¥å¡¼¥¹¥ê¥ê¡¼¥¹¡Ê2021ǯ6·î2Æü¡Ë
GRAND MARINA TOKYO¡Ö¥Ñ¡¼¥¯¥¿¥ï¡¼¾¡¤É¤¥ß¥Ã¥É/¥µ¥¦¥¹¡× ¥µ¥¦¥¹Åï/7·î¾å½Ü »öÁ°°ÆÆâ²ñ³«ºÅͽÄê ¡Á¥Ë¥å¡¼¥Î¡¼¥Þ¥ë»þÂå¤Î¿Íͤʥ饤¥Õ¥¹¥¿¥¤¥ë¤Î¼Â¸½¤Ø¡Á
- ¥«¥Æ¥´¥ê
- Ãæ±û¶è







