
¡¡Á¥Ë٤ǷúÀßÃæ¤Î¥¿¥ï¡¼¥Þ¥ó¥·¥ç¥ó¡Ö¥ë¥Õ¥©¥óÁ¥ËÙ¥¶¡¦¥¿¥ï¡¼¥ì¥¸¥Ç¥ó¥¹¡×(ÃϾå20³¬¡¢ºÇ¹â¹â¤µ61.74m)¤Î·úÀßÃϤǤ¹¡£2023ǯ8·î31Æü¤Ë»£±Æ¤·¤Þ¤·¤¿¡£ÅԱĿ·½ÉÀþ¡ÖÁ¥Ë١ױؤ«¤éÅÌÊâ3ʬ¤Ç¡ÖÁ¥ËÙ±ØÁ°¥È¥¥¿¥ï¡¼¡Ê¥È¥¥Ó¥ë¡Ë¡×(ÃϾå27³¬¡¢¹â¤µ91m)¤ÎÆî¦¤Ë°ÌÃÖ¤·¤Æ¤¤¤Þ¤¹¡£¤³¤Îµ»ö¤Ç¤ÏƱ¥¿¥ï¥Þ¥ó¤Î³µÍפä·úÀß¾õ¶·¡¢ÃÏ¿ÞÅù¤òºÜ¤»¤Æ¤¤¤Þ¤¹¡£
¥ë¥Õ¥©¥óÁ¥ËÙ¥¶¡¦¥¿¥ï¡¼¥ì¥¸¥Ç¥ó¥¹¤Ë¤Ä¤¤¤Æ

³°´Ñ´°À®Í½ÁÛ¿Þ[½Ðŵ¡§¸ø¼°HP]
¡¡¡Ö¥ë¥Õ¥©¥óÁ¥ËÙ¥¶¡¦¥¿¥ï¡¼¥ì¥¸¥Ç¥ó¥¹¡×¤ÏÅԱĿ·½ÉÀþ¡ÖÁ¥Ë١ױؤ«¤éÆî¦¤ØÅÌÊâ3ʬ¤Î¥¿¥ï¡¼¥Þ¥ó¥·¥ç¥ó¤Ç¡¢µ¬ÌϤÏÃϾå20³¬¡¢¹â¤µ59.99m¡¢ºÇ¹â¹â¤µ61.74m¡¢ÉßÃÏÌÌÀÑ2,074.08Ö¡¢·úÃÛÌÌÀÑ1,029.03Ö¡¢±ä¾²ÌÌÀÑ1Ëü3192.59Ö¡¢Áí¸Í¿ô133¸Í¤È¤Ê¤Ã¤Æ¤¤¤Þ¤¹¡£·úÃۼ硦Çä¼ç¤Ï¥µ¥ó¥±¥¤¥Ó¥ë¡¢À߷׼ԤȻܹ©¼Ô¤ÏĹ빩¥³¡¼¥Ý¥ì¡¼¥·¥ç¥ó¤Ç2025ǯ5·î31Æü½×¹©¡¢2025ǯ6·î²¼½Ü¤ÎÆþµï³«»ÏͽÄê¤Ç¤¹¡£

³°´Ñ´°À®Í½ÁÛ¿Þ[½Ðŵ¡§¸ø¼°HP]
¡¡2024ǯ2·î²¼½Ü¤«¤é¤ÎÈÎÇ䳫»ÏͽÄê¤Ç¡¢ÈÎÇä´Ö¼è¤ê¤Ï3LDK¡Á4LDK¡¢ÀìÍÌÌÀѤÏ65.96Ö¡Á86.62Ö¡¢¥Ð¥ë¥³¥Ë¡¼ÌÌÀÑ7.60Ö¡Á12.80Ö¡¢¥µ¡¼¥Ó¥¹¥Ð¥ë¥³¥Ë¡¼ÌÌÀÑ2.04Ö¡Á2.60֤ȤʤäƤ¤¤Þ¤¹¡£Á´¸ÍÆîÀ¾¸þ¤¤Ç3LDK¤Ï70ÖÄ¶Ãæ¿´¡¢4LDK¤Ï86֤γѽ»¸Í¤È¤Ê¤ê¤Þ¤¹¡£

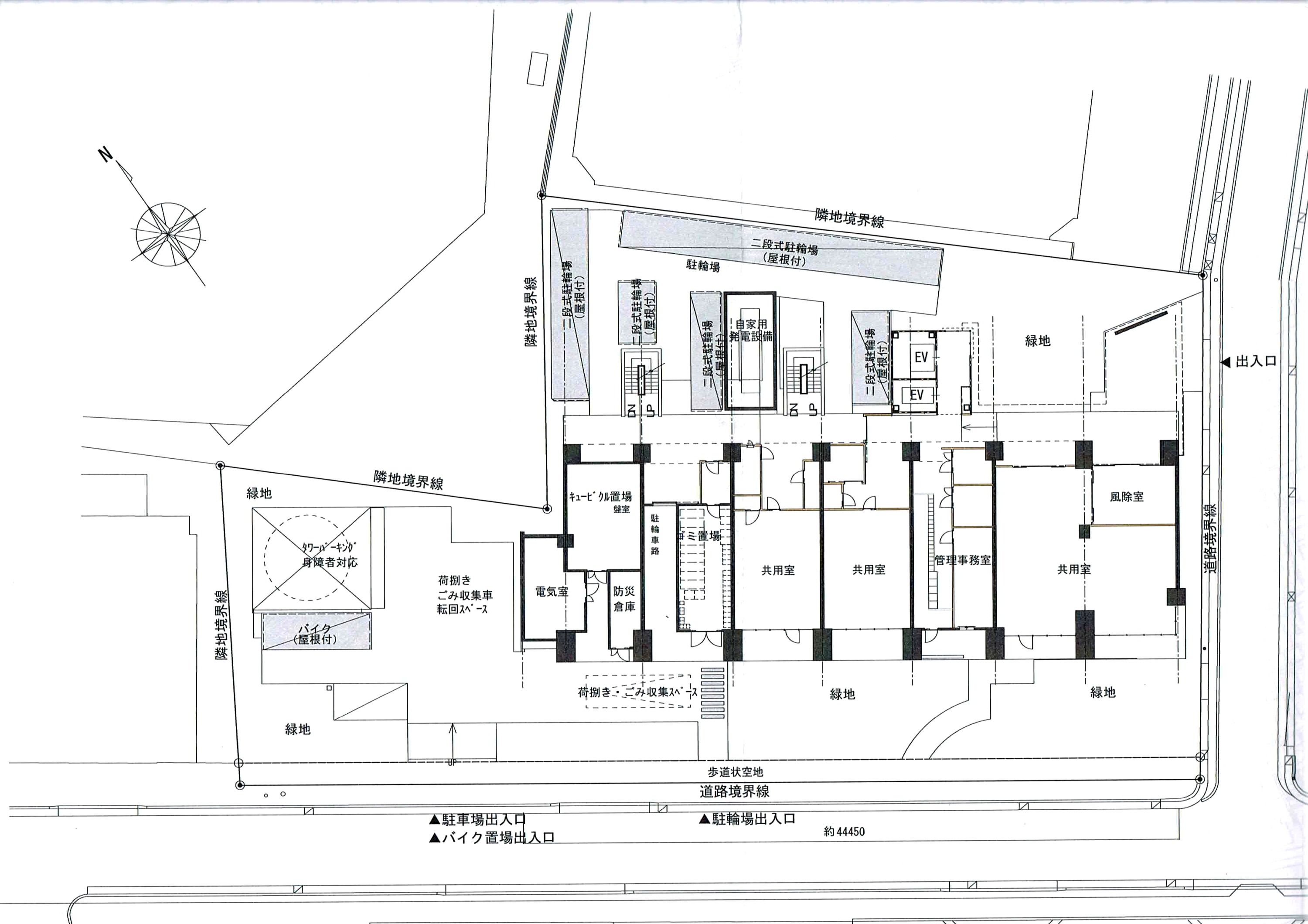
¡¡¶áÎÙ½»Ì±¤ËÇÛ¤é¤ì¤¿»ñÎÁ¤Ë·ÇºÜ¤µ¤ì¤Æ¤¤¤¿ÇÛÃÖ¸¬1³¬Ê¿Ì̿ޤǤ¹¡£³ÑÃϦ¤Ë¥Þ¥ó¥·¥ç¥óËÜÂΤ¬ÇÛÃÖ¤µ¤ì¡ÖÁ¥ËÙ±ØÁ°¥È¥¥¿¥ï¡¼¡Ê¥È¥¥Ó¥ë¡Ë¡×¤Ë¶á¤¤Â¦¤Ë¹â¤µ50m¤Î¥¿¥ï¡¼¥Ñ¡¼¥¥ó¥°¤¬ÇÛÃÖ¤µ¤ì¤Þ¤¹¡£

¡¡Æî¦ΩÌ̿ޤǤ¹¡£²°¾å¤Ëºô¤¬¸«¤¨¤Þ¤¹¤¬¶¦ÍÑ»ÜÀߤʤΤ«¤É¤¦¤«¤ÏÉÔÌÀ¤Ç¤¹¡£

¡¡Ë̦ΩÌ̿ޤǤ¹¡£

¡¡Åì¦ΩÌ̿ޤǤ¹¡£

¡¡À¾Â¦Î©Ì̿ޤǤ¹¡£
´Ö¼è¤ê¿Þ

B¥¿¥¤¥×[½Ðŵ¡§¸ø¼°HP]
¡¡B¥¿¥¤¥×¤Î´Ö¼è¤ê¿Þ¤Ç¤¹¡£´Ö¼è¤ê¤Ï3LDK+2WIC+¿¼·¿CL¡¢ÀìÍÌÌÀѤÏ70.74Ö¡¢¥Ð¥ë¥³¥Ë¡¼ÌÌÀѤÏ12.80֤ȤʤäƤ¤¤Þ¤¹¡£

G¥¿¥¤¥×[½Ðŵ¡§¸ø¼°HP]
¡¡G¥¿¥¤¥×¤Î´Ö¼è¤ê¿Þ¤Ç¤¹¡£´Ö¼è¤ê¤Ï4LDK+2WIC¡¢ÀìÍÌÌÀѤÏ86.62Ö¡¢¥Ð¥ë¥³¥Ë¡¼ÌÌÀѤÏ7.60֤ȤʤäƤ¤¤Þ¤¹¡£
°ÌÃÖ¿Þ

°ÌÃÖ¿Þ[½Ðŵ¡§¸ø¼°HP]
¡¡·úÀßÃϤÏÅԱĿ·½ÉÀþ¡ÖÁ¥ËÙ¡×±Ø¤ÎÆî¦¤ÇÅÌÊâ3ʬ¡¢¡ÖÁ¥ËÙ±ØÁ°¥È¥¥¿¥ï¡¼¡Ê¥È¥¥Ó¥ë¡Ë¡×¤ÎÆî¦¤Ë°ÌÃÖ¤·¤Æ¤ª¤ê¡¢±Ø¤«¤é¶á¤¤¤³¤È¤«¤é¿ÍÄ̤ê¤Ï¿¤¤¤Ç¤¹¤¬¡¢Á¥ËÙ³¹Æ»¤«¤éÃæ¤ËÆþ¤Ã¤¿¾ì½ê¤Î¤¿¤áÀŤ«¤Ê´Ä¶¤È¤Ê¤Ã¤Æ¤¤¤Þ¤¹¡£
¡¡Á¥ËٱؤÎË̦¤Ë¤Ï¡Ö¥¿¥ï¡¼¥Û¡¼¥ëÁ¥Ë١פ¬¤¢¤ê¡¢¤µ¤é¤ËË̦¤Ç¤Ï¡Ö¹¾¸ÍÀî¶èÌò½ê ¿·Ä£¼Ë¡×(ÃϾå21³¬ÄøÅÙ¡¢¹â¤µÌó99m)¤¬°Üž¤·¤Æ¤¯¤ë·×²è¤È¤Ê¤Ã¤Æ¤ª¤ê¡¢Æ±»þ¤Ë¾¦¶È»ÜÀߤâÆþ¤ë¥¿¥ï¡¼¥Þ¥ó¥·¥ç¥ó¤â·úÀßͽÄê¤È¤Ê¤Ã¤Æ¤¤¤Þ¤¹¡£
·úÀß¾õ¶·

¡¡2023ǯ8·î31Æü¤ËÀ¾Â¦¤«¤é»£±Æ¤·¤¿¡Ö¥ë¥Õ¥©¥óÁ¥ËÙ¥¶¡¦¥¿¥ï¡¼¥ì¥¸¥Ç¥ó¥¹¡×(ÃϾå20³¬¡¢ºÇ¹â¹â¤µ61.74m)¤Î·úÀßÃϤǤ¹¡£¸½ÃϤˤϥ¿¥ï¡¼¥¯¥ì¡¼¥ó¤¬1´ðÀßÃÖ¤µ¤ì¤Æ¤¤¤Þ¤¹¡£

¡¡Á´¸Í¤³¤Îƻϩ¤ËÌ̤·¤¿ÆîÀ¾¸þ¤¤È¤Ê¤ê¤Þ¤¹¡£¤³¤ÎÊý¸þ¤Ë¤Ï»ë³¦¤ò¼×¤ëÂ礤ʷúʪ¤Ï¤Ê¤¤¤¿¤á¡¢5³¬ÄøÅ٤ǤⳫ¤±¤¿»ë³¦¤¬¹¤¬¤ê¤Þ¤¹¡£

¡¡ÆîÅ즤«¤é»£±Æ¡£Çظå¤ÏÄÂÂߥ¿¥ï¥Þ¥ó¤Î¡ÖÁ¥ËÙ±ØÁ°¥È¥¥¿¥ï¡¼¡Ê¥È¥¥Ó¥ë¡Ë¡×(ÃϾå27³¬¡¢¹â¤µ91m)¤Ç¤¹¡£

¡¡¥È¥¥¿¥ï¡¼¤ÎÆî¦½»¸Í¤Î»ë³¦¤òÂ礤¯¼×¤ë¥¿¥ï¡¼¥Þ¥ó¥·¥ç¥ó¤Ë¤Ê¤ê¤Þ¤¹¡£¤Á¤Ê¤ß¤Ë¥Þ¥ó¥·¥ç¥ó̾¤Ï¡Ö¥Õ¥©¥ó¥¶¡¦¥¿¥ï¡¼Á¥Ë١פÈͽÁÛ¤·¤Æ¤¤¤Þ¤·¤¿¤¬¡¢Àµ²ò¤Ï¡Ö¥ë¥Õ¥©¥óÁ¥ËÙ¥¶¡¦¥¿¥ï¡¼¥ì¥¸¥Ç¥ó¥¹¡×¤Ç¤·¤¿¡£

¡¡ËÌÅ즤«¤é»£±Æ¡£·úÀßÃϤϡÖÄ«Æü¿®ÍѶâ¸ËÁ¥ËÙ¥Ó¥ë¡×¤ÎÀ×ÃϤǤ¹¡£½¤Á¶¹©»ö¤ò¹Ô¤Ã¤Æ¤¹¤°¤Ë²òÂΤµ¤ì¤Æ¤·¤Þ¤¤¤Þ¤·¤¿¡£
ÃÏ¿Þ
ʪ·ï³µÍ×

¡¡·úÃ۷ײè¤Î¤ªÃΤ餻¤Ç¤¹¡£¿ôÃͤϸø¼°HP¤ÎÃͤòÍ¥À褷¤Æ·ÇºÜ¤·¤Æ¤¤¤Þ¤¹¡£
¢£Êª·ï³µÍ×¢£
̾¾Î¡§¥ë¥Õ¥©¥óÁ¥ËÙ¥¶¡¦¥¿¥ï¡¼¥ì¥¸¥Ç¥ó¥¹
»ö¶È̾¡§(²¾¾Î)¹¾¸ÍÀî¶èÁ¥ËÙ3ÃúÌÜ·×²è ¿·ÃÛ¹©»ö
½êºßÃÏ¡§ÅìµþÅÔ¹¾¸ÍÀî¶èÁ¥ËÙ»°ÃúÌÜ603ÈÖ¡¢604ÈÖ¡¢605ÈÖ1¡Á4¡¢606ÈÖ1¡Á2
¸òÄÌ¡§ÅÔ±ÄÃϲ¼Å´¿·½ÉÀþ¡ÖÁ¥ËÙ¡×±Ø ÅÌÊâ3ʬ
ÍÑÅÓ¡§¶¦Æ±½»Âð
Áí¸Í¿ô¡§133¸Í
³¬¿ô¡§ÃϾå20³¬
¹â¤µ¡§59.99m¡ÊºÇ¹â¹â¤µ61.74m¡Ë
¹½Â¤¡§Å´¶Ú¥³¥ó¥¯¥ê¡¼¥È¤ °ìÉô Å´¹ü¤
´ðÁù©Ë¡¡§¹º´ðÁÃ
ÉßÃÏÌÌÀÑ¡§2,074.08Ö
·úÃÛÌÌÀÑ¡§1,029.03Ö
±ä¾²ÌÌÀÑ¡§13,192.59Ö
·úÃۼ硧¥µ¥ó¥±¥¤¥Ó¥ë
Àß·×¼Ô¡§Ä¹Ã«¹©¥³¡¼¥Ý¥ì¡¼¥·¥ç¥ó
»Ü¹©¼Ô¡§Ä¹Ã«¹©¥³¡¼¥Ý¥ì¡¼¥·¥ç¥ó
¹©´ü¡§2023ǯ2·î1ÆüÃ幩¡Á2025ǯ5·î31Æü½×¹©Í½Äê
Æþµï¡§2025ǯ6·î²¼½ÜͽÄê
½Ðŵ
¢§¸ø¼°HP¡§¥ë¥Õ¥©¥óÁ¥ËÙ¥¶¡¦¥¿¥ï¡¼¥ì¥¸¥Ç¥ó¥¹
https://www.lefond.jp/funabori-tower/
- ¥«¥Æ¥´¥ê
- ¹¾¸ÍÀî¶è







