
¥¤¥á¡¼¥¸¥Ñ¡¼¥¹[½Ðŵ¡§ÃÏÊýÁÏÀ¸]
¡¡Ê¡°æ±Ø¤ÎÆîÀ¾Â¦¤Ç·×²è¤µ¤ì¤Æ¤¤¤ë¡ÖÊ¡°æ±ØÁ°ÆîÄ̤êÃ϶èÂè°ì¼ï»Ô³¹ÃϺƳ«È¯»ö¶È¡×¤Î´°À®Í½ÁۿޤǤ¹¡£4³¬·ú¤Æ¤Î¾¦¶È¡¦¶È̳»ÜÀߤȤʤ뵥֥í¥Ã¥¯¡¢13³¬·ú¤Æ¤Î¥Û¥Æ¥ë¤È¤Ê¤ë¶¥Ö¥í¥Ã¥¯¡¢18³¬·ú¤Æ¤Î¶¦Æ±½»Âð¤È¤Ê¤ë·¥Ö¥í¥Ã¥¯¤Ç¹½À®¤µ¤ì¤Þ¤¹¡£¤³¤Îµ»ö¤Ç¤ÏƱºÆ³«È¯¤Î³µÍפ丽¶·¡¢ÃÏ¿ÞÅù¤òºÜ¤»¤Æ¤¤¤Þ¤¹¡£
Ê¡°æ±ØÁ°ÆîÄ̤êÃ϶è¤Ë¤Ä¤¤¤Æ

ÆîËÌÃÇÌÌ¿Þ[½Ðŵ¡§Ê¡°æ»Ô]
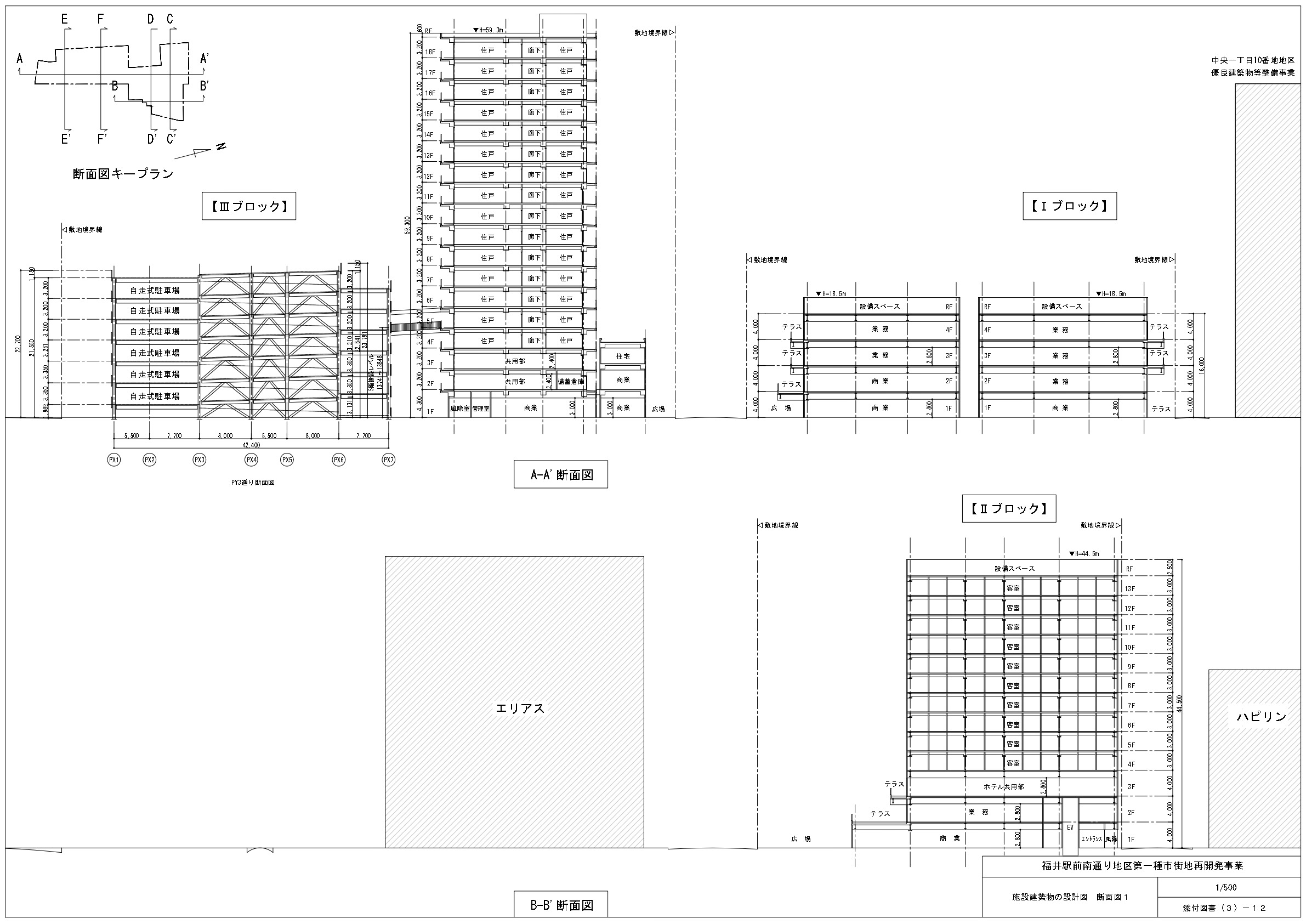
¡¡¡ÖÊ¡°æ±ØÁ°ÆîÄ̤êÃ϶èÂè°ì¼ï»Ô³¹ÃϺƳ«È¯»ö¶È¡×¤ÏÊ¡°æ±Ø¤ÎÆîÀ¾Â¦¤Î3¤Ä¤Î¥Ö¥í¥Ã¥¯¤Ëʬ¤«¤ì¤¿ºÆ³«È¯¤Ç¡¢µ¥Ö¥í¥Ã¥¯¤Ï¾¦¶È¡¦¶È̳»ÜÀß¡¢¶¥Ö¥í¥Ã¥¯¤Ï¥Û¥Æ¥ë¡¢·¥Ö¥í¥Ã¥¯¤Ï¥Þ¥ó¥·¥ç¥ó¤È¤Ê¤ê¤Þ¤¹¡£
¡¡µ¥Ö¥í¥Ã¥¯¤Îµ¬ÌϤÏÃϾå4³¬¡¢¹â¤µÌó19m¡¢ÉßÃÏÌÌÀÑÌó1,495Ö¡¢·úÃÛÌÌÀÑÌó1,130Ö¡¢±ä¾²ÌÌÀÑÌó4,250Ö¡¢¶¥Ö¥í¥Ã¥¯¤Îµ¬ÌϤÏÃϾå13³¬¡¢¹â¤µÌó45m¡¢ÉßÃÏÌÌÀÑÌó1,360Ö¡¢·úÃÛÌÌÀÑÌó830Ö¡¢±ä¾²ÌÌÀÑÌóÌó7,090Ö¡¢·¥Ö¥í¥Ã¥¯¤Îµ¬ÌϤÏÃϾå18³¬¡¢Åã²°1³¬¡¢¹â¤µÌó59m¡¢ÉßÃÏÌÌÀÑÌó2,775Ö¡¢·úÃÛÌÌÀÑÌó1,980Ö¡¢±ä¾²ÌÌÀÑÌó1Ëü7540֤ȤʤäƤ¤¤Þ¤¹¡£

ÅìÀ¾ÃÇÌÌ¿Þ[½Ðŵ¡§Ê¡°æ»Ô]
¡¡¥Û¥Æ¥ë¤ÏÌó170¼¼¡¢¶¦Æ±½»Âð¤ÏÌó92¼¼¤Ç1LDK(45¡Á55Ö)¤¬19¸Í¡¢2LDK(55¡Á65Ö)¤¬14¸Í¡¢3LDK(65¡Á90Ö)¤¬41¸Í¡¢4LDK(90¡Á100Ö)¤¬18¸Í¤Ç·×²è¤µ¤ì¤Æ¤¤¤Þ¤¹¡£

»Ü¹©Ã϶è¤Î¶è°è¿Þ[½Ðŵ¡§Ê¡°æ»Ô]
¡¡·×²èÃϤˤÏÊ£¿ô¤Î´û¸·úʪ¤¬¤¢¤ê¡¢¤É¤Î¥Ö¥í¥Ã¥¯¤â¤É¤³¤«·ç¤±¤ë¥¬¥¿¥¬¥¿¤ÎÉßÃÏÃϤȤʤäƤ¤¤Þ¤¹¡£
Ê¿ÌÌ¿Þ

1³¬Ê¿ÌÌ¿Þ[½Ðŵ¡§Ê¡°æ»Ô]
¡¡³Æ¥Ö¥í¥Ã¥¯¤Î1³¬Ê¿Ì̿ޤǤ¹¡£¿Þ¤Î±¦²¼¤¬Ê¡°æ±ØÊýÌ̤Ȥʤê¤Þ¤¹¡£

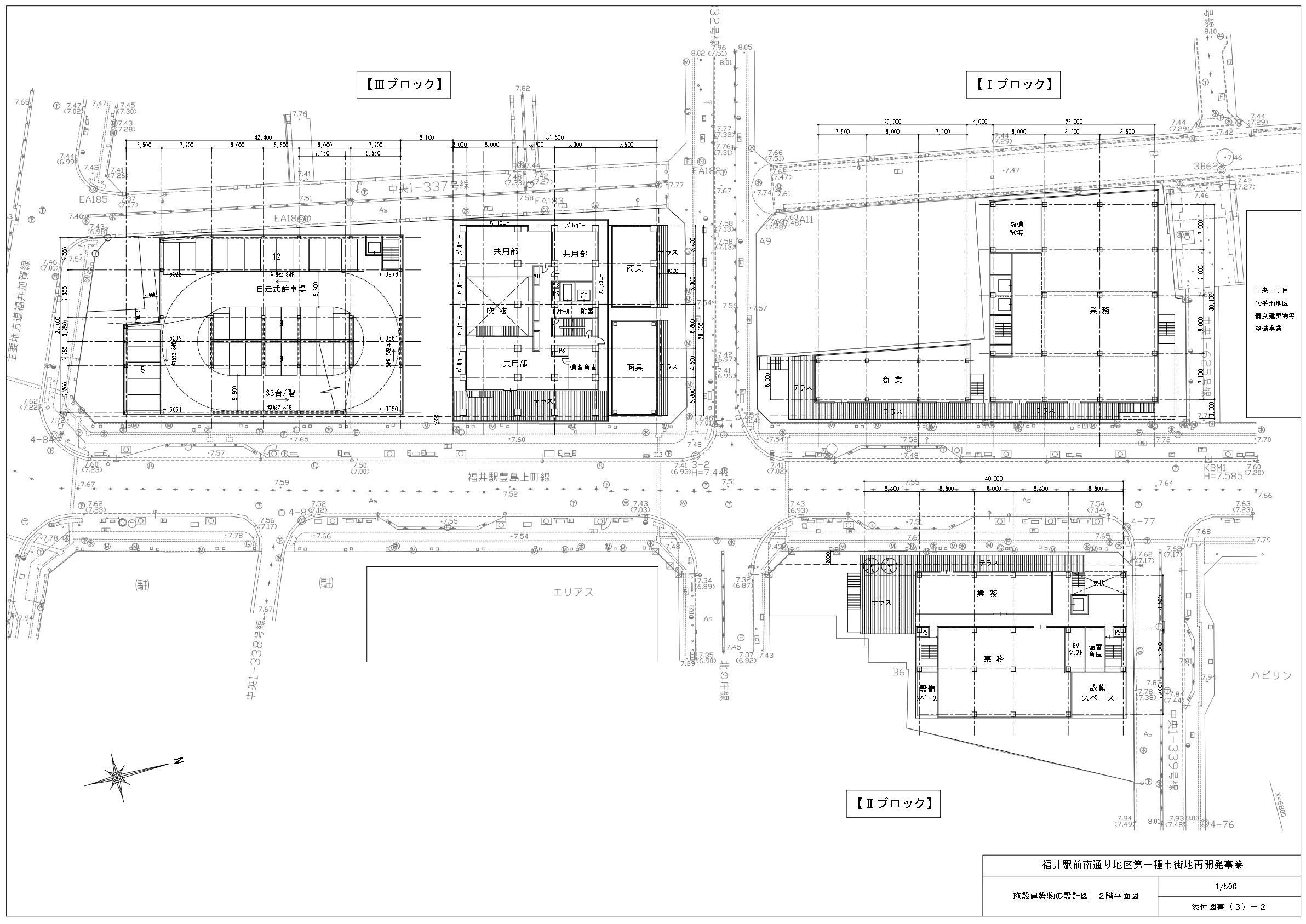
2³¬Ê¿ÌÌ¿Þ[½Ðŵ¡§Ê¡°æ»Ô]
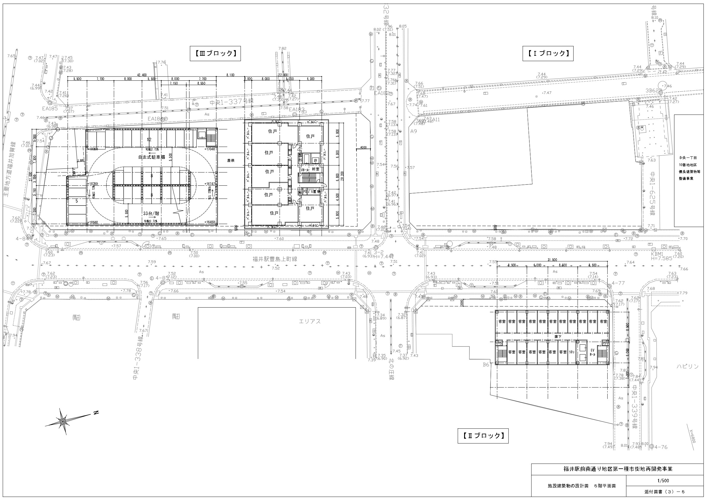
¡¡2³¬¤Ë¤Ï³Æ¥Ö¥í¥Ã¥¯¤È¤â¥Æ¥é¥¹¤¬ÀßÃÖ¤µ¤ì¤Þ¤¹¡£

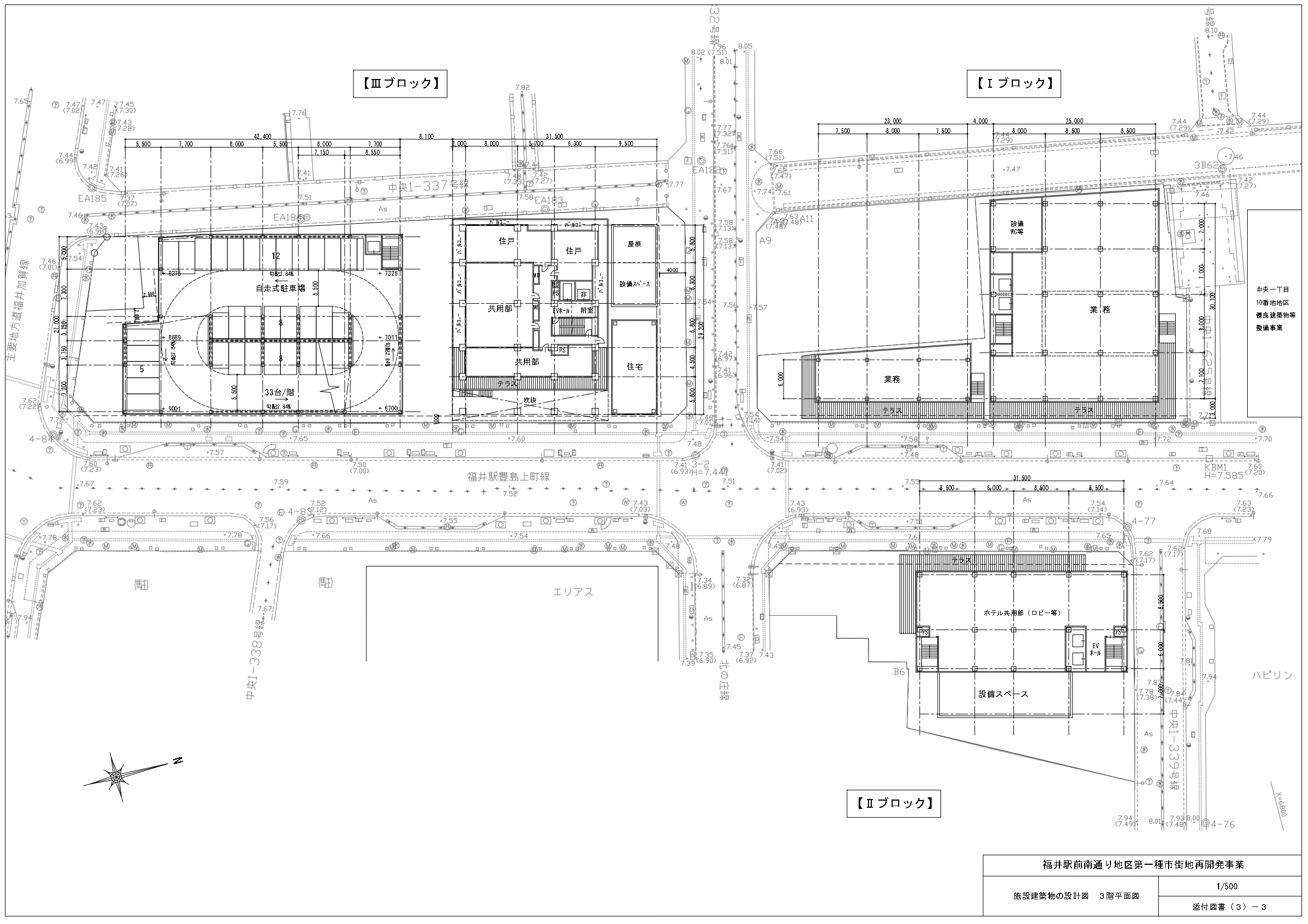
3³¬Ê¿ÌÌ¿Þ[½Ðŵ¡§Ê¡°æ»Ô]
¡¡³Æ¥Ö¥í¥Ã¥¯¤Î3³¬¤Ë¤â¥Æ¥é¥¹¤¬ÀßÃÖ¤µ¤ì¡¢¶¥Ö¥í¥Ã¥¯¤Î3³¬¤Ï¥Û¥Æ¥ë¤Î¥í¥Ó¡¼¤È¤Ê¤ê¡¢·¥Ö¥í¥Ã¥¯¤Ï3³¬¤«¤é½»Âð¤¬ÇÛÃÖ¤µ¤ì¤Þ¤¹¡£

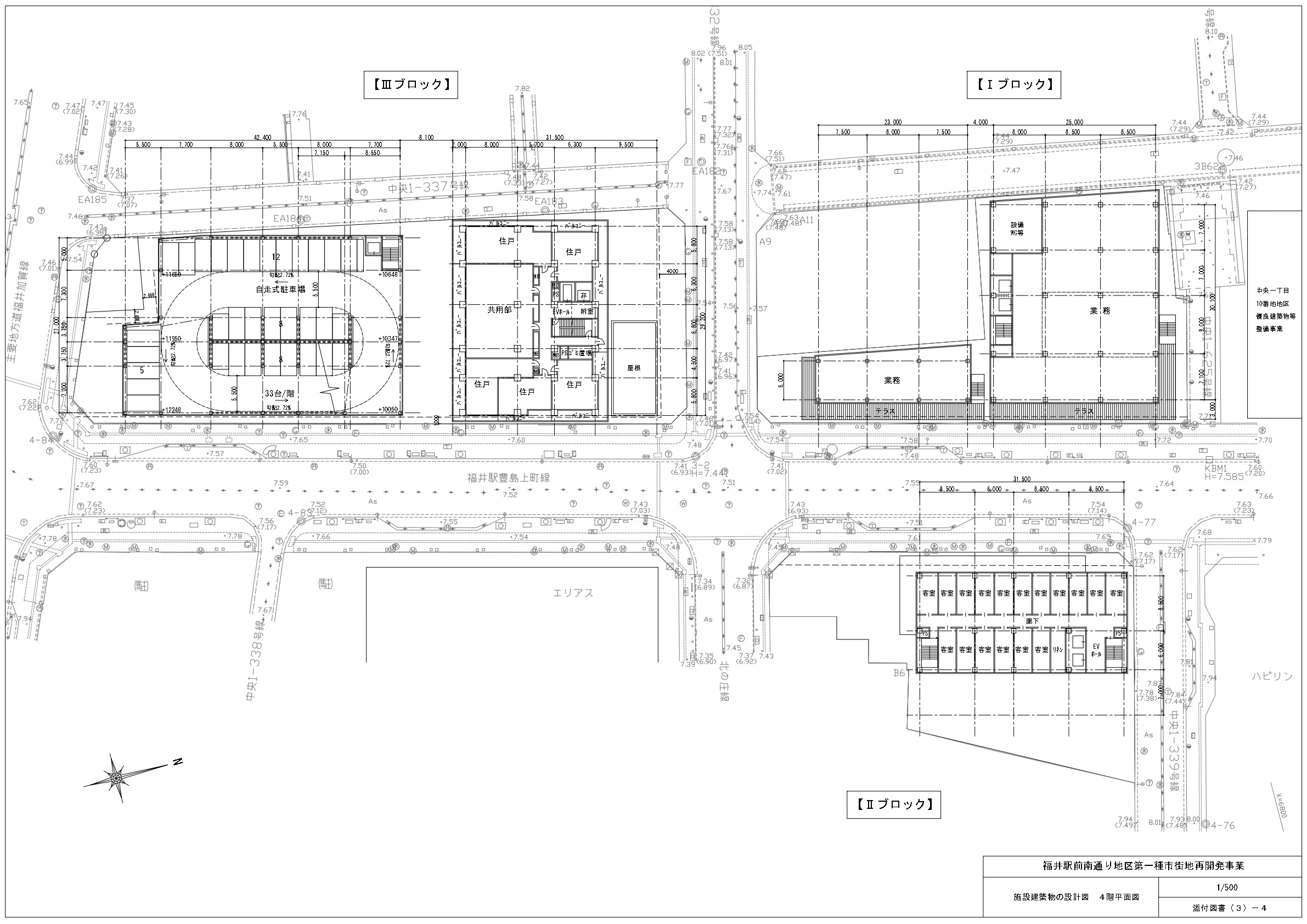
4³¬Ê¿ÌÌ¿Þ[½Ðŵ¡§Ê¡°æ»Ô]
¡¡¶¥Ö¥í¥Ã¥¯¤Î4³¬¤«¤é¤¬¥Û¥Æ¥ë¤ÎµÒ¼¼¤È¤Ê¤ê¤Þ¤¹¡£¤Þ¤¿¡¢µ¥Ö¥í¥Ã¥¯¤Î4³¬¤Ë¤â¥Æ¥é¥¹¤¬ÀßÃÖ¤µ¤ì¤Þ¤¹¡£

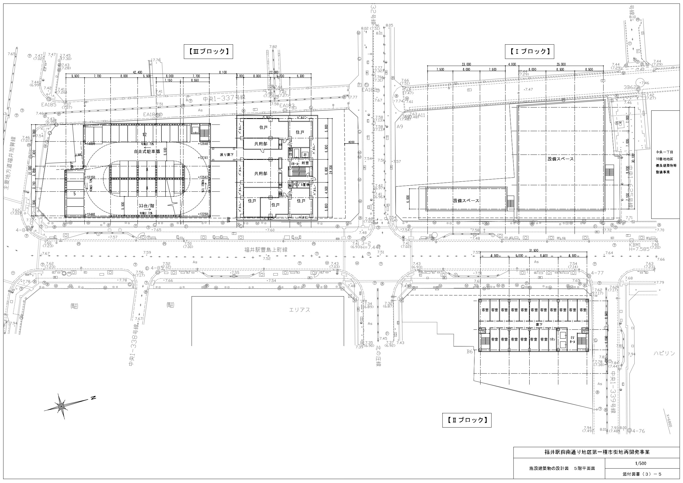
5³¬Ê¿ÌÌ¿Þ[½Ðŵ¡§Ê¡°æ»Ô]
¡¡·¥Ö¥í¥Ã¥¯¤Î5³¬¤«¤é¤ÏÆî¦¤Ë¤¢¤ë¼«Áö¼°Ãó¼Ö¾ì¤Ë·Ò¤¬¤ê¤Þ¤¹¡£

6³¬Ê¿ÌÌ¿Þ[½Ðŵ¡§Ê¡°æ»Ô]

7³¬Ê¿ÌÌ¿Þ[½Ðŵ¡§Ê¡°æ»Ô]

8¡Á11³¬Ê¿ÌÌ¿Þ[½Ðŵ¡§Ê¡°æ»Ô]

12¡Á14³¬Ê¿ÌÌ¿Þ[½Ðŵ¡§Ê¡°æ»Ô]
¡¡·¥Ö¥í¥Ã¥¯¤Î12³¬¤«¤éÉô²°¤¬¾¯¤·¹¤¯¤Ê¤ê¤Þ¤¹¡£

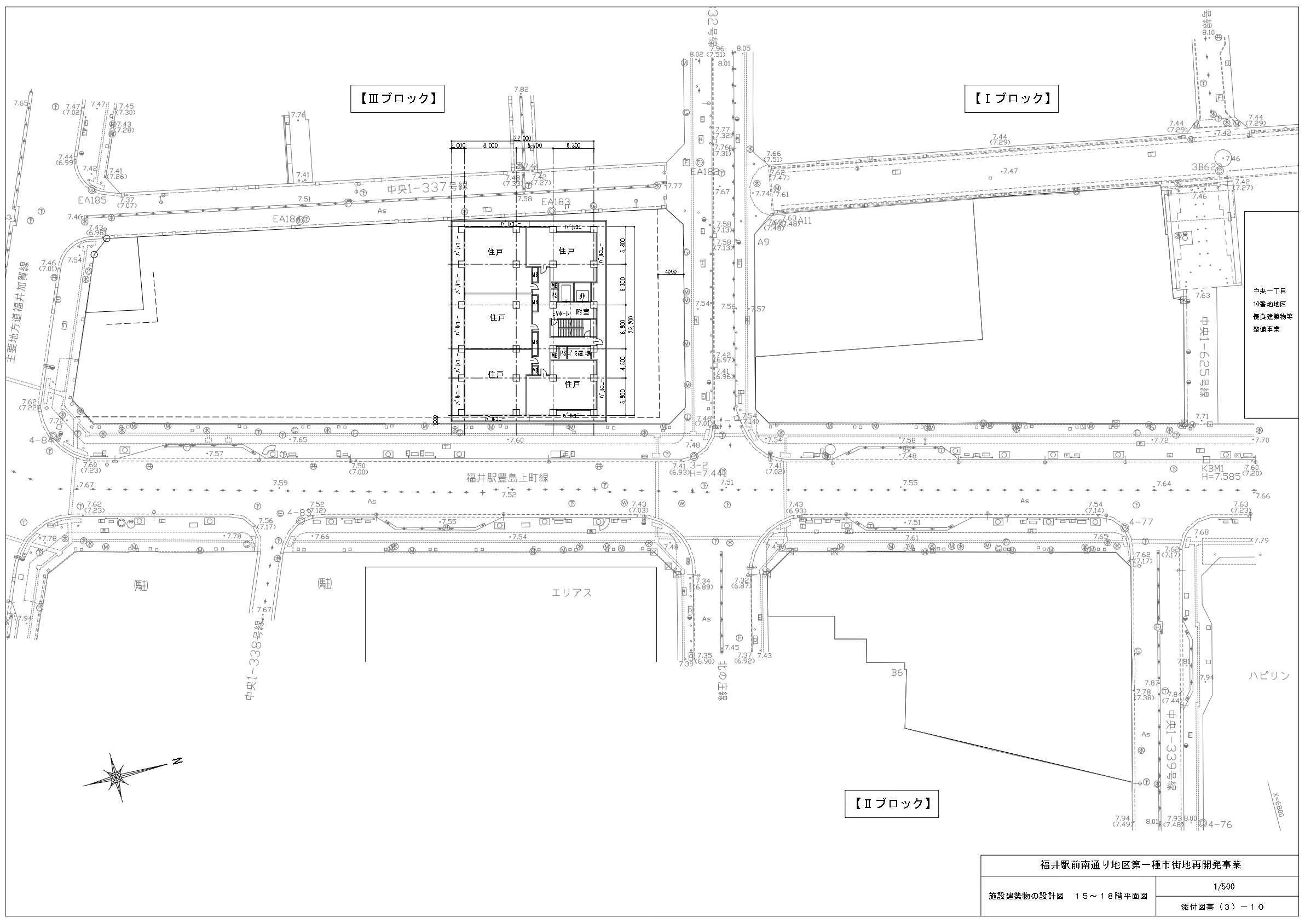
15¡Á18³¬Ê¿ÌÌ¿Þ[½Ðŵ¡§Ê¡°æ»Ô]
¡¡·¥Ö¥í¥Ã¥¯¤Î15³¬¤«¤é¤Ï¤µ¤é¤ËÉô²°¤¬¹¤¯¤Ê¤ê¤Þ¤¹¡£

R³¬Ê¿ÌÌ¿Þ[½Ðŵ¡§Ê¡°æ»Ô]
¡¡·¥Ö¥í¥Ã¥¯¤Î²°¾å¤Ë¤ÏR¥Þ¡¼¥¯¤Î¥Û¥Ð¥ê¥ó¥°¥¹¥Ú¡¼¥¹¤¬Àߤ±¤é¤ì¤Þ¤¹¡£¤³¤ì¤¬H¥Þ¡¼¥¯¤À¤È¥Ø¥ê¥Ý¡¼¥È¤Ç¥Ø¥ê¤¬ÃåΦ¤Ç¤¤Þ¤¹¡£
°ÌÃÖ¿Þ

¶è°è¿Þ[½Ðŵ¡§Ê¡°æ»Ô]
¡¡¡ÖÊ¡°æ±ØÁ°ÆîÄ̤êÃ϶èÂè°ì¼ï»Ô³¹ÃϺƳ«È¯»ö¶È¡×¤Î·×²èÃϤÏJRÊ¡°æ±Ø¤ÎÆîÀ¾Â¦¤Ç¡¢±ØÁ°ÆîÄ̤ê¤ËÌ̤·¤¿¾ì½ê¤È¤Ê¤Ã¤Æ¤¤¤Þ¤¹¡£ËÌÀ¾Â¦¤¬µ¥Ö¥í¥Ã¥¯(¾¦¶È¡¦¶È̳»ÜÀß)¡¢¥Ï¥Ô¥ê¥ó¤Î²¼¤ÎËÌÅ즤¬¶¥Ö¥í¥Ã¥¯(¥Û¥Æ¥ë)¡¢¤½¤·¤ÆÆî¦¤¬·¥Ö¥í¥Ã¥¯(¶¦Æ±½»Âð)¤È¤Ê¤Ã¤Æ¤¤¤Þ¤¹¡£
¸½¶·

¡¡2023ǯ8·î3Æü¤ËËÌÅ즤«¤é»£±Æ¤·¤¿¡ÖÊ¡°æ±ØÁ°ÆîÄ̤êÃ϶èÂè°ì¼ï»Ô³¹ÃϺƳ«È¯»ö¶È¡×¤Îµ¥Ö¥í¥Ã¥¯¤Ç¤¹¡£ÃϾå4³¬¡¢¹â¤µÌó19m¤Î¾¦¶È¡¦¶È̳»ÜÀߤ¬·×²è¤µ¤ì¤Æ¤¤¤Þ¤¹¡£

¡¡ÆîÅ즤«¤é»£¸«¤¿µ¥Ö¥í¥Ã¥¯¤Ç¤¹¡£10»þÁ°¤Î»£±Æ¤Î¤¿¤á¡¢´û¤ËÂàµî¤·¤Æ¤¤¤ë¤Î¤«¤Þ¤À²ÔƯ¤·¤Æ¤ë¤Î¤«¤è¤¯¤ï¤«¤é¤Ê¤¤¾õÂ֤Ǥ·¤¿¡£

¡¡ÆîÀ¾Â¦¤«¤é»£±Æ¡£¼êÁ°¤Î¥³¥¤¥ó¥Ñ¡¼¥¥ó¥°¤ÏƱºÆ³«È¯¤Ë¤Ï´Þ¤Þ¤ì¤Ê¤¤¤è¤¦¤Ç¤¹¡£

¡¡ËÌÅ즤«¤é»£±Æ¤·¤¿¡ÖÊ¡°æ±ØÁ°ÆîÄ̤êÃ϶èÂè°ì¼ï»Ô³¹ÃϺƳ«È¯»ö¶È¡×¤Î¶¥Ö¥í¥Ã¥¯¤Ç¤¹¡£ÃϾå13³¬¡¢¹â¤µÌó45m¤Î¥Û¥Æ¥ë¤¬·×²è¤µ¤ì¤Æ¤¤¤Þ¤¹¡£

¡¡ËÌÀ¾Â¦¤«¤é»£±Æ¡£

¡¡ÆîÀ¾Â¦¤«¤é»£±Æ¡£±¦Â¦¤Î·úʪ¤Ï¡ÖÊ¡°æ¥Þ¥ó¥Æ¥ó¥Û¥Æ¥ë±ØÁ°¡×¤ÇºÆ³«È¯¤ÎÉßÃÏ¤Ë¤Ï´Þ¤Þ¤ì¤Æ¤¤¤Þ¤»¤ó¡£¤Þ¤¿¡¢±ü¤Î͹âÁؤϡ֥ϥԥê¥ó¡×(ÃϾå21³¬¡¢¹â¤µ91.6m)¤Ç¡¢6³¬¡Á21³¬¤Ï¥¿¥ï¡¼¥Þ¥ó¥·¥ç¥ó¤Î¡Ö¥·¥ó¥Õ¥©¥Ë¥¢¥¿¥ï¡¼¥³¡¼¥ÈÊ¡°æ¡×¤È¤Ê¤Ã¤Æ¤¤¤Þ¤¹¡£

¡¡ËÌÅ즤«¤é»£±Æ¤·¤¿¡ÖÊ¡°æ±ØÁ°ÆîÄ̤êÃ϶èÂè°ì¼ï»Ô³¹ÃϺƳ«È¯»ö¶È¡×¤Î·¥Ö¥í¥Ã¥¯¤Ç¤¹¡£ÃϾå18³¬¡¢¹â¤µÌó59m¡¢Áí¸Í¿ô92¸Í¤Î¥Þ¥ó¥·¥ç¥ó¤Ë¤Ê¤ê¤Þ¤¹¡£

¡¡ÆîÅ즤«¤é»£±Æ¡£¤³¤Á¤é¤ÎÆî¦¤Ë¤Ï7³¬·ú¤Æ¤Î¼«Áö¼°Ãó¼Ö¾ì¤¬ÇÛÃÖ¤µ¤ì¤Þ¤¹¡£¤Þ¤¿¡¢±¦±ü¤Ë¸«¤¨¤Æ¤¤¤ë͹âÁؤϿôÆüÁ°¤Î¥Ö¥í¥°¤ËºÜ¤»¤¿·úÀßÃæ¤Î¥Û¥Æ¥ë¡Ö¥³¡¼¥È¥ä¡¼¥É¡¦¥Ð¥¤¡¦¥Þ¥ê¥ª¥Ã¥ÈÊ¡°æ¡×(ÃϾå27³¬¡¢¹â¤µÌó120m)¤Ç¤¹¡£

¡¡ÆîÀ¾Â¦¤«¤é»£±Æ¡£³Ñ¤Î¥Ó¥ë¤ÏƱºÆ³«È¯¤ÎÉßÃÏ¤Ë¤Ï´Þ¤Þ¤ì¤Æ¤¤¤Ê¤¤¤è¤¦¤Ç¤¹¡£

¡¡ËÌÀ¾Â¦¤«¤é»£±Æ¡£Á´ÂÎŪ¤ËÏ·µà²½¤·¤¿·úʪ¤¬Â¿¤¤°õ¾Ý¤Ç¤·¤¿¤¬¡¢¤Þ¤À²òÂι©»ö¤¬»Ï¤Þ¤Ã¤Æ¤¤¤ë¤è¤¦¤Ê¾ì½ê¤Ï¤¢¤ê¤Þ¤»¤ó¤Ç¤·¤¿¡£
ÃÏ¿Þ
ʪ·ï³µÍ×
»ö¶È̾¡§Ê¡°æ±ØÁ°ÆîÄ̤êÃ϶èÂè°ì¼ï»Ô³¹ÃϺƳ«È¯»ö¶È
½êºßÃÏ¡§Ê¡°æ¸©Ê¡°æ»ÔÃæ±û£±ÃúÌÜ
¸òÄÌ¡§JRËÌΦËÜÀþ¡ÖÊ¡°æ¡×±Ø
¡¡¡¡¡¡¤¨¤Á¤¼¤óÅ´Æ» ¾¡»³±ÊÊ¿»ûÀþ¡ÖÊ¡°æ¡×±Ø
¡¡¡¡¡¡Ê¡°æÅ´Æ» Ê¡ÉðÀþ¡ÖÊ¡°æ±Ø¡×Ääα¾ì
ÍÑÅÓ¢
¡¡µ¥Ö¥í¥Ã¥¯¡§¾¦¶È¡¦¶È̳
¡¡¶¥Ö¥í¥Ã¥¯¡§¾¦¶È¡¦¶È̳¡¦¥Û¥Æ¥ë¡ÊÌó170¼¼¡Ë
¡¡·¥Ö¥í¥Ã¥¯¡§¾¦¶È¡¦½»Âð¡ÊÁí¸Í¿ô92¸Í¡Ë¡¦Ãó¼Ö¾ì
³¬¿ô¢
¡¡µ¥Ö¥í¥Ã¥¯¡§ÃϾå4³¬
¡¡¶¥Ö¥í¥Ã¥¯¡§ÃϾå13³¬
¡¡·¥Ö¥í¥Ã¥¯¡§ÃϾå18³¬¡¢Åã²°1³¬
¹â¤µ¢
¡¡µ¥Ö¥í¥Ã¥¯¡§Ìó19m
¡¡¶¥Ö¥í¥Ã¥¯¡§Ìó45m
¡¡·¥Ö¥í¥Ã¥¯¡§Ìó59m
¹½Â¤¢
¡¡µ¥Ö¥í¥Ã¥¯¡§Å´¹ü¤
¡¡¶¥Ö¥í¥Ã¥¯¡§Å´¹ü¤
¡¡·¥Ö¥í¥Ã¥¯¡§Å´¶Ú¥³¥ó¥¯¥ê¡¼¥È¤
ÉßÃÏÌÌÀÑ¢
¡¡µ¥Ö¥í¥Ã¥¯¡§Ìó1,495Ö
¡¡¶¥Ö¥í¥Ã¥¯¡§Ìó1,360Ö
¡¡·¥Ö¥í¥Ã¥¯¡§Ìó2,775Ö
·úÃÛÌÌÀÑ¢
¡¡µ¥Ö¥í¥Ã¥¯¡§Ìó1,130Ö
¡¡¶¥Ö¥í¥Ã¥¯¡§Ìó830Ö
¡¡·¥Ö¥í¥Ã¥¯¡§Ìó1,980Ö
±ä¾²ÌÌÀÑ¢
¡¡µ¥Ö¥í¥Ã¥¯¡§Ìó4,250Ö
¡¡¶¥Ö¥í¥Ã¥¯¡§Ìó7,090Ö
¡¡·¥Ö¥í¥Ã¥¯¡§Ìó28,880Ö
·úÃۼ硧ʡ°æ±ØÁ°ÆîÄ̤êÃ϶è»Ô³¹ÃϺƳ«È¯Áȹç
Àß·×¼Ô¡§¡Ý
»Ü¹©¼Ô¡§¡Ý
¹©´ü¡§2023ǯ10·îÃ幩¡Á2026ǯ3·î½×¹©Í½Äê
½Ðŵ
¢§Ê¡°æ»Ô¡§»Ô³¹ÃϺƳ«È¯»ö¶È
Ê¡°æ±ØÁ°ÆîÄ̤êÃ϶èÂè°ì¼ï»Ô³¹ÃϺƳ«È¯»ö¶È
¢§Æâ³Õ´±Ë¼¡¦Æâ³ÕÉÜ Áí¹ç¥µ¥¤¥È¡¡ÃÏÊýÁÏÀ¸
Ê¡°æ±Ø¼þÊÕÃϰè
- ¥«¥Æ¥´¥ê
- Ê¡°æ¸©







