
¥¤¥á¡¼¥¸¥Ñ¡¼¥¹[½Ðŵ¡§JRË̳¤Æ»]
¡¡»¥ËÚ±ØÁ°¤Ë·úÀߤµ¤ì¤ë¡ÖËÌ5À¾1¡¦À¾2Ã϶èÂè°ì¼ï»Ô³¹ÃϺƳ«È¯»ö¶È¡×(ÃϾå42³¬¡¢¹â¤µ236.20m)¤Î´°À®Í½ÁۿޤǤ¹¡£Ë̳¤Æ»¿·´´Àþ¡Ö»¥ËڡױؤËľ·ë¤¹¤ë¥ª¥Õ¥£¥¹¡¢¥Û¥Æ¥ë¡¢¾¦¶È¡¢Å¸Ë¾»ÜÀߤǹ½À®¤µ¤ì¤ëÊ£¹ç»ÜÀߤǡ¢Åìµþ°ÊË̤ǤϺǤâ¹â¤¤Ä¶¹âÁØ¥Ó¥ë¤Ë¤Ê¤ê¤Þ¤¹¡£·×²èÃÏÆâ¤Ë¤¢¤ë¾¦¶È»ÜÀߤΡֻ¥ËÚ¥¨¥¹¥¿¡×¤Ï2023ǯ8·î31Æü¤ËÊÄŹ¤·¡¢2023ǯ10·îÃ幩¡¢2028ǯ4·î¤Î½×¹©Í½Äê¤È¤Ê¤Ã¤Æ¤¤¤Þ¤¹¡£¤³¤Îµ»ö¤Ç¤ÏƱºÆ³«È¯¤Î³µÍפ丽¶·¡¢ÃÏ¿ÞÅù¤òºÜ¤»¤Æ¤¤¤Þ¤¹¡£
ËÌ5À¾1¡¦À¾2Ã϶è¤Ë¤Ä¤¤¤Æ

¥¤¥á¡¼¥¸¥Ñ¡¼¥¹[½Ðŵ¡§»¥ËÚ»Ô]
¡¡¡ÖËÌ5À¾1¡¦À¾2Ã϶èÂè°ì¼ï»Ô³¹ÃϺƳ«È¯»ö¶È¡×¤ÏË̳¤Æ»¿·´´Àþ¡Ö»¥ËڡױؤËľ·ë¤¹¤ë͹âÁØ¥Ó¥ë¤Ç¡¢µ¬ÌϤÏÃϾå42³¬¡¢Ãϲ¼4³¬¡¢¹â¤µ236.20m¡¢ÉßÃÏÌÌÀÑÌó2Ëü3060Ö¡¢·úÃÛÌÌÀÑÌó2Ëü1500Ö¡¢±ä¾²ÌÌÀÑÌó38Ëü6700֤ȤʤäƤ¤¤Þ¤¹¡£»ö¶È¼çÂΤϻ¥ËڱظòήµòÅÀËÌ5À¾1¡¦À¾2Ã϶è»Ô³¹ÃϺƳ«È¯Áȹ硢Àß·×¤ÏÆüËÜÀ߷ס¦À¶¿å·úÀß Àß·×¶¦Æ±ÂΡ¢ÆÃÄê¶È̳Âå¹Ô¼Ô¤ÏÀ¶¿å¡¦°ËÆ£¡¦´äÅÄÃϺꡦ»¥·ú¡¦Âٿʶ¦Æ±´ë¶ÈÂΡÊÂåɽ´ë¶È¡§À¶¿å·úÀߡˤÇ2023ǯ10·îÃ幩¡¢2028ǯ4·î¤Î½×¹©Í½Äê¤Ç¤¹¡£
¡¡ºÆ³«È¯Áȹç¤Ë¤Ï»²²ÃÁȹç°÷¤È¤·¤ÆË̳¤Æ»Î¹µÒÅ´Æ»¡ÊJRË̳¤Æ»¡Ë¡¢»¥ËÚ±ØÁí¹ç³«È¯¡¢¥¸¥§¥¤¡¦¥¢¡¼¥ëË̳¤Æ»¥Ð¥¹¡¢JRË̳¤Æ»¥Û¥Æ¥ë¥º¡¢»¥ËÚ»Ô¡¢Ä«Æü¿·Ê¹¼Ò¡¢Ä«ÆüÀ¸Ì¿Êݸ±Áê¸ß²ñ¼Ò¡¢»¥ËÚ¥¹¥Æ¡¼¥·¥ç¥ó¥Õ¥í¥ó¥ÈÆÃÄêÌÜŪ²ñ¼Ò¡Ê»°°æ½»Í§¥È¥é¥¹¥ÈÉÔÆ°»ºÅê»ñ¸ÜÌä¡Ë¡¢ÅìÊõ¡¢ÆüËÜÅÔ»Ô¥Õ¥¡¥ó¥É¡ÊKJR¥Þ¥Í¥¸¥á¥ó¥È¡Ë¡¢ÉçÍÖÁí¹ç¥ê¡¼¥¹¡¢¥á¥Ç¥£¥«¥ë¥·¥¹¥Æ¥à¥Í¥Ã¥È¥ï¡¼¥¯¤¬»²²è¤·¤Æ¤¤¤Þ¤¹¡£

ÃÇÌÌ¿Þ[½Ðŵ¡§JRË̳¤Æ»]
¡¡¥Õ¥í¥¢¹½À®¤ÏÃϲ¼1³¬¡Á10³¬¤¬¾¦¶È»ÜÀß(Ìó10Ëü9000Ö)¡¢1³¬¤¬¥Ð¥¹¥¿¡¼¥ß¥Ê¥ë¡¢10³¬¡¢14³¬¡Á17³¬¤¬Ìó300¼¼¤Î½ÉÇñ¼çÂΥۥƥë(Ìó1Ëü4000Ö)¡¢10³¬¡Á12³¬¡¢18³¬¡Á33³¬¤¬¥ª¥Õ¥£¥¹(Ìó8Ëü5500Ö)¡¢35³¬¡Á40³¬¤¬Ìó200¼¼¤Î¹ñºÝ¿å½à¤Î¥Ï¥¤¥°¥ì¡¼¥É¥Û¥Æ¥ë(Ìó2Ëü5500Ö)¡¢¤½¤·¤Æ41³¬¡Á42³¬¤¬Å¸Ë¾»ÜÀß(Ìó4500Ö)¤È¤Ê¤ê¡¢´ðÃÅÉô¤Î²°¾å¤Ë¤Ï¥¹¥«¥¤¥¬¡¼¥Ç¥ó¤¬À°È÷¤µ¤ì¤Þ¤¹¡£
¡¡Æ±¥Ó¥ë¤Ë¤Ï2¤Ä¤Î¥Û¥Æ¥ë¤¬Æþ¤ë¤³¤È¤Ë¤Ê¤ê¡¢¹âÁس¬¤Î¹ñºÝ¿å½à¥Û¥Æ¥ë¤Ï¥Þ¥ê¥ª¥Ã¥È¡¦¥¤¥ó¥¿¡¼¥Ê¥·¥ç¥Ê¥ë¤ÈÄó·È¤¹¤ë¤³¤È¤¬È¯É½¤µ¤ì¤Æ¤¤¤Þ¤¹¡£ÃæÁس¬¤Î¥Û¥Æ¥ë¤Ï¥Ó¥¸¥Í¥¹¤ä¥Õ¥¡¥ß¥ê¡¼¸þ¤±¤Î¥Û¥Æ¥ë¤¬·×²è¤µ¤ì¤Æ¤¤¤Þ¤¹¡£

ÅìÀ¾ÃÇÌÌ¿Þ[½Ðŵ¡§JRË̳¤Æ»]
¡¡º£¤Þ¤Ç¤ÏÃϾå43³¬¡¢¹â¤µÌó245m¤È¤µ¤ì¤Æ¤¤Þ¤·¤¿¤¬¡¢»¥ËÚ»Ô¤ÎHP¤Ë·ÇºÜ¤µ¤ì¤Æ¤¤¤ëÃÇÌ̿ޤξܺ٤ò¸«¤ë¤È¡¢³¬¿ô¤Ï42³¬¡¢¹â¤µ¤Ï236.20m¤ËÊѹ¹¤Ë¤Ê¤Ã¤¿¤³¤È¤¬¤ï¤«¤ê¤Þ¤¹¡£¤³¤Î¹â¤µ236.20m¤ÏË̳¤Æ»¤ÇºÇ¤â¹â¤¤Ä¶¹âÁØ¥Ó¥ë¤È¤Ê¤ê¡¢Åìµþ°ÊË̤ǤâºÇ¤â¹â¤¤Ä¶¹âÁØ¥Ó¥ë¤Ë¤Ê¤ê¤Þ¤¹¡£

ÆîËÌÃÇÌÌ¿Þ[½Ðŵ¡§JRË̳¤Æ»]
¡¡ºÇ¾å³¬¤ËÀßÃÖ¤µ¤ì¤ëŸ˾»ÜÀߤˤϲ°¾å¥Æ¥é¥¹¤âÇÛÃÖ¤µ¤ì¤Þ¤¹¡£¤¿¤À¡¢Àã¹ñ¤Ê¤Î¤ÇÅßµ¨¤ÏÊĺ¿¤µ¤ì¤ë¤³¤È¤Ë¤Ê¤ê¤½¤¦¤Ç¤¹¡£

ÇÛÃÖ¿Þ[½Ðŵ¡§JRË̳¤Æ»]
¡¡ÉßÃϤÏÅìÀ¾2¤Ä¤Î³¹¶è¤Ëʬ¤«¤ì¤Æ¤ª¤ê¡¢±¦¤¬Ä¶¹âÁإӥ뤬·úÀߤµ¤ì¤ëËÌ5À¾1Ã϶è¤Ç¡¢º¸¤¬¾¦¶È»ÜÀߤʤɤ¬·úÀߤµ¤ì¤ëËÌ5À¾2Ã϶è¤È¤Ê¤Ã¤Æ¤¤¤Þ¤¹¡£Î¾Ã϶è¤Î´Ö¤Ë¤¢¤ë´û¸ƻϩ¤Î¾å¶õ¤Ï¡¢Î©ÂÎÆ»Ï©À©ÅÙ¤òÍøÍѤ·¤Æ¥Ó¥ëËÜÂΤȤʤê¤Þ¤¹¡£
¡¡¤Þ¤¿¡¢º¸¤ÎËÌ5À¾2Ã϶è¤Ë¤Ï¡ÖJR¥¿¥ï¡¼¡×¤Ë·Ò¤¬¤ë¥Ç¥Ã¥¤Î¤è¤¦¤Ê¤â¤Î¤¬ÉÁ¤«¤ì¤Æ¤¤¤ë¤Î¤Ç¡¢¡ÖJR¥¿¥ï¡¼¡×¤ÎÄãÁØÉô¤ËÆþ¤ë¾¦¶È»ÜÀߡ֥¹¥Æ¥é¥×¥ì¥¤¥¹¡×¤ËÀܳ¤¹¤ë¤â¤Î¤È»×¤ï¤ì¤Þ¤¹¡£±¦Â¦¤ÎËÌ5À¾1Ã϶è¤ÏË̳¤Æ»¿·´´Àþ¡Ö»¥ËڡױؤËÀܳ¤·¤Þ¤¹¡£

¥Ç¥Ã¥¥ì¥Ù¥ë¡¦Ãϲ¼¥ì¥Ù¥ë¤ÎÊâ¹Ô¼ÔưÀþ¥¤¥á¡¼¥¸[½Ðŵ¡§»¥ËÚ»Ô]
¡¡Àܳ¤¹¤ëË̳¤Æ»¿·´´Àþ¡Ö»¥ËڡױؤˤϺßÍèÀþ¤ÎJR¡Ö»¥Ëڡױؤ˷Ҥ¬¤ë¿·¤·¤¤²þ»¥¤âÊ»Àߤµ¤ì¤ë¤¿¤á¡¢ºßÍèÀþ¤ÎJR¡Ö»¥Ëڡױؤâľ·ë¤È¤Ê¤ê¤Þ¤¹¡£¤Þ¤¿¡¢¿Þ¤Î½Ä¤ËÉÁ¤«¤ì¤¿Îп§Éôʬ¤Ï»¥ËÚ»Ô±ÄÃϲ¼Å´ÆîËÌÀþ¡Ö¤µ¤Ã¤Ý¤í¡×±Ø¤ÈÅìËÀþ¡Ö¤µ¤Ã¤Ý¤í¡×±Ø¤Ç¤³¤Á¤é¤Ë¤âÃϲ¼ÄÌÏ©¤Ë¤è¤Ã¤ÆÀܳ¤·¤Þ¤¹¡£

±ØÁ°¹¾ì¥¢¥È¥ê¥¦¥à[½Ðŵ¡§»¥ËÚ»Ô]
¡¡»¥Ë򱯮î¸ý¤Î±ØÁ°¹¾ì¤È·Ò¤¬¤ë¥¢¥È¥ê¥¦¥à¤Î´°À®Í½ÁۿޤǤ¹¡£±ØÁ°¹¾ì¤«¤é¸«¤¨¤ë¥¬¥é¥¹Ä¥¤ê¤Î¶õ´Ö¤È¤Ê¤ê¤Þ¤¹¡£

ÂԹ祢¥È¥ê¥¦¥à[½Ðŵ¡§»¥ËÚ»Ô]
¡¡¥Ð¥¹¥¿¡¼¥ß¥Ê¥ë¤ÎÍøÍѼԤΤ¿¤á¤ÎÂԹ祹¥Ú¡¼¥¹¤â·úʪÆâ¤ËÀߤ±¤é¤ì¤Þ¤¹¡£

¿·´´Àþ¥¢¥È¥ê¥¦¥à[½Ðŵ¡§»¥ËÚ»Ô]
¡¡Ë̳¤Æ»¿·´´Àþ¡Ö»¥ËڡױؤÈÀܳ¤¹¤ë¥¢¥È¥ê¥¦¥à¶õ´Ö¤«¤é¤Ï¡¢¿·´´Àþ¤Î¼Öξ¤ò¸«¤ë¤³¤È¤¬¤Ç¤¤ë¤è¤¦¤Ë¤Ê¤ê¤Þ¤¹¡£

´ÓÄÌÄÌÏ©[½Ðŵ¡§»¥ËÚ»Ô]
¡¡¾¦¶È»ÜÀßÉô¤Ë¤Ï´ÓÄÌÄÌÏ©¤¬À°È÷¤µ¤ì¤Þ¤¹¡£

¥¹¥«¥¤¥¬¡¼¥Ç¥ó[½Ðŵ¡§»¥ËÚ»Ô]
¡¡´ðÃÅÉô²°¾å¤Ë¤Ï¥¹¥«¥¤¥¬¡¼¥Ç¥ó¤¬À°È÷¤µ¤ì¤Þ¤¹¡£

Ÿ˾¥Ü¥Ã¥¯¥¹¥¤¥á¡¼¥¸[½Ðŵ¡§JRË̳¤Æ»]
¡¡41³¬¡Á42³¬¤ÏÅ¸Ë¾Âæ¤È¤Ê¤ê¥¬¥é¥¹¤Î¥Ü¥Ã¥¯¥¹¤âÇÛÃÖ¤µ¤ì¤ë·×²è¤È¤Ê¤Ã¤Æ¤¤¤Þ¤¹¡£

JR¥¿¥ï¡¼Å¸Ë¾¼¼¤«¤é¤Î·Ê´ÑÊѲ½[½Ðŵ¡§»¥ËÚ»Ô]
¡¡¡ÖJR¥¿¥ï¡¼¡×(ÃϾå38³¬¡¢¹â¤µ173m)¤Î38³¬¤Ë¤¢¤ëŸ˾¼¼¤«¤é¸«¤¿¡ÖËÌ5À¾1¡¦À¾2Ã϶èÂè°ì¼ï»Ô³¹ÃϺƳ«È¯»ö¶È¡×¤Î´°À®Í½ÁۿޤǤ¹¡£¥Æ¥é¥¹¤¬¤¢¤ë¥Õ¥í¥¢¤«¤é¤¬¥Þ¥ê¥ª¥Ã¥È¡¦¥¤¥ó¥¿¡¼¥Ê¥·¥ç¥Ê¥ë¤ÈÄó·È¤¹¤ë¥Û¥Æ¥ëÉô¤Ë¤Ê¤ê¤Þ¤¹¡£
Ê¿ÌÌ¿Þ

Ãϲ¼1³¬Ê¿ÌÌ¿Þ[½Ðŵ¡§»¥ËÚ»Ô]
¡¡Ãϲ¼1³¬Ê¿Ì̿ޤǤ¹¡£Ãϲ¼¤Ç¤âËÌ5À¾1Ã϶è¤ÈËÌ5À¾2Ã϶褬Àܳ¤µ¤ì¤Þ¤¹¡£

1³¬Ê¿ÌÌ¿Þ[½Ðŵ¡§»¥ËÚ»Ô]
¡¡1³¬¤Ë¤Ï¥Ð¥¹¥¿¡¼¥ß¥Ê¥ë¤¬ÇÛÃÖ¤µ¤ì¡¢Î¾Ã϶è¤Ï´û¸¤Îƻϩ¤ÇʬÃǤµ¤ì¤Þ¤¹¡£

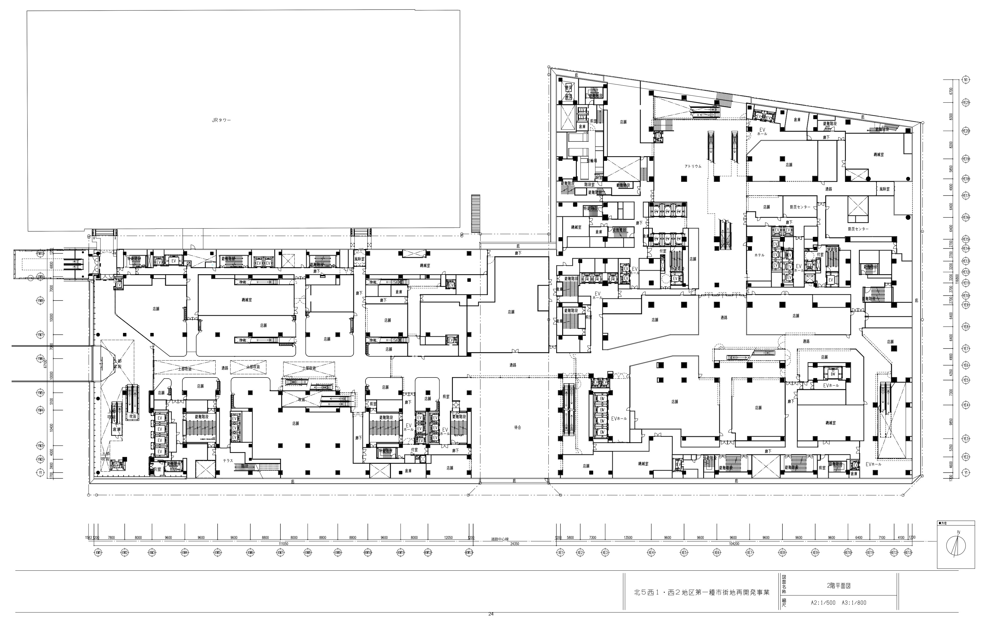
2³¬Ê¿ÌÌ¿Þ[½Ðŵ¡§»¥ËÚ»Ô]
¡¡2³¬¤«¤é10³¬¤Þ¤Ç¤Ï¾¦¶È»ÜÀߤˤʤê¤Þ¤¹¡£

10³¬Ê¿ÌÌ¿Þ[½Ðŵ¡§»¥ËÚ»Ô]
¡¡10³¬¤Ë¤Ï²°¾åÄí±à¤Ê¤É¤¬¤¢¤ë¥¹¥«¥¤¥¬¡¼¥Ç¥ó¤¬ÀßÃÖ¤µ¤ì¤Þ¤¹¡£¤Þ¤¿¡¢ÃæÁس¬¤Î¥Û¥Æ¥ë¥í¥Ó¡¼¤â¤³¤Î³¬¤ËÇÛÃÖ¤µ¤ì¤ë¤è¤¦¤Ç¤¹¡£

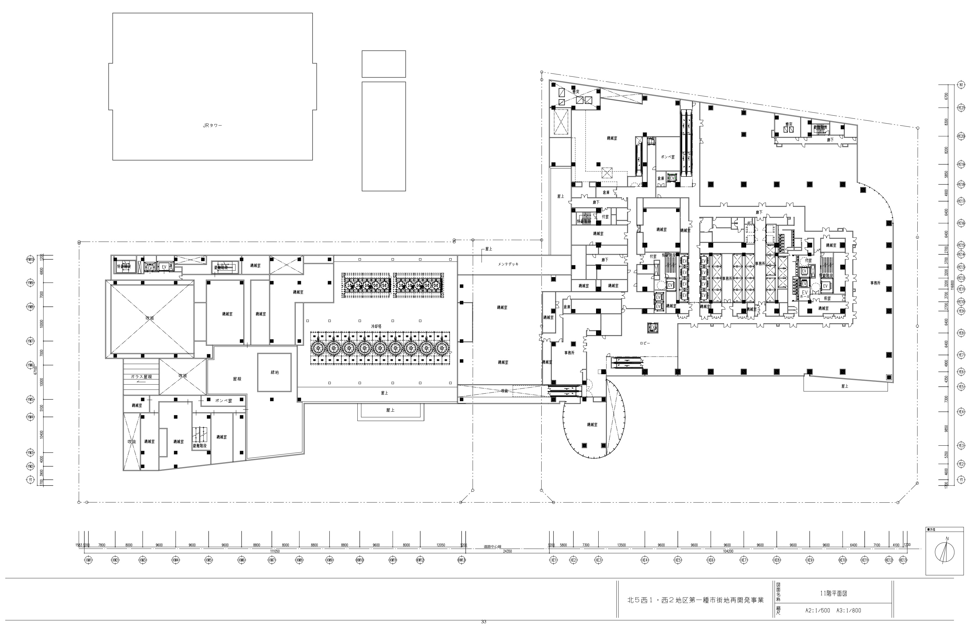
11³¬Ê¿ÌÌ¿Þ[½Ðŵ¡§»¥ËÚ»Ô]
¡¡11³¬¤Ë¤Ï¥ª¥Õ¥£¥¹¥Õ¥í¥¢¤¬ÇÛÃÖ¤µ¤ì¤Þ¤¹¡£

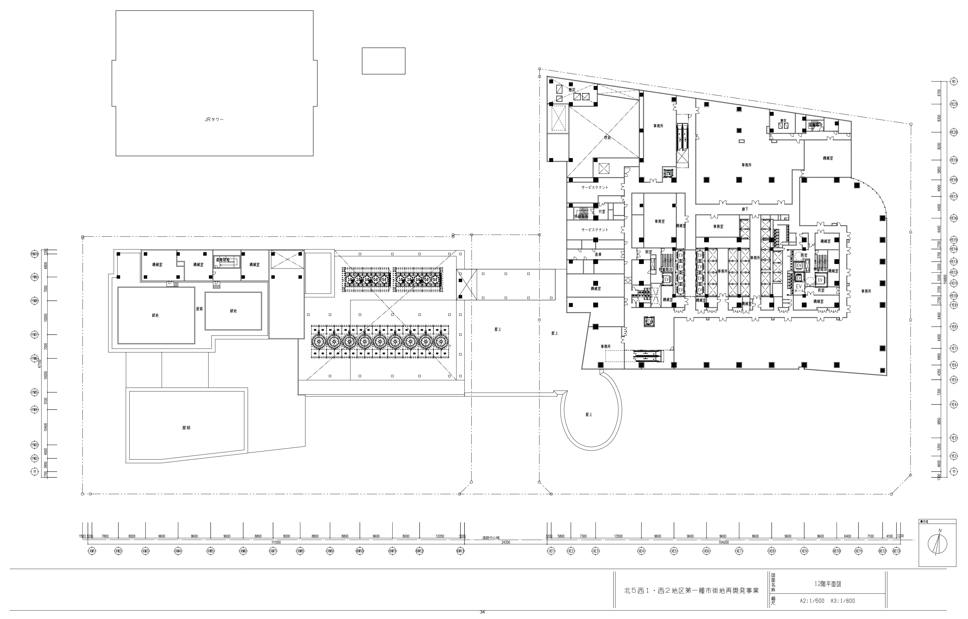
12³¬Ê¿ÌÌ¿Þ[½Ðŵ¡§»¥ËÚ»Ô]
¡¡12³¬¤â¥ª¥Õ¥£¥¹¥Õ¥í¥¢¤Ë¤Ê¤ê¤Þ¤¹¡£

13³¬Ê¿ÌÌ¿Þ[½Ðŵ¡§»¥ËÚ»Ô]
¡¡13³¬¤Ï¼ç¤Ëµ¡³£¼¼¤È¤Ê¤ê¡Ä

14¡¦15³¬Ê¿ÌÌ¿Þ[½Ðŵ¡§»¥ËÚ»Ô]
¡¡14³¬¤«¤é17³¬¤¬¥Û¥Æ¥ë¤Ë¤Ê¤ê¤Þ¤¹¡£

18¡¦19³¬Ê¿ÌÌ¿Þ[½Ðŵ¡§»¥ËÚ»Ô]
¡¡18³¬¤«¤é33³¬¤ÏºÆ¤Ó¥ª¥Õ¥£¥¹¥Õ¥í¥¢¤Ë¤Ê¤ê¤Þ¤¹¡£

34³¬Ê¿ÌÌ¿Þ[½Ðŵ¡§»¥ËÚ»Ô]
¡¡34³¬¤Ï¼ç¤Ëµ¡³£¼¼¤È¤Ê¤ê¡Ä

35³¬Ê¿ÌÌ¿Þ[½Ðŵ¡§»¥ËÚ»Ô]
¡¡35³¬¤«¤é¤Ï¥Þ¥ê¥ª¥Ã¥È¡¦¥¤¥ó¥¿¡¼¥Ê¥·¥ç¥Ê¥ë¤ÈÄó·È¤·¤¿¹ñºÝ¿å½à¤Î¥Ï¥¤¥°¥ì¡¼¥É¥Û¥Æ¥ë¤Ë¤Ê¤ê¤Þ¤¹¡£35³¬¤Ï¥í¥Ó¡¼¤Ê¤É¤Ë¤Ê¤ë¤è¤¦¤Ç¥Æ¥é¥¹¥¹¥Ú¡¼¥¹¤â¤¢¤ê¤Þ¤¹¡£

36³¬Ê¿ÌÌ¿Þ[½Ðŵ¡§»¥ËÚ»Ô]
¡¡36³¬¤«¤é40³¬¤¬µÒ¼¼¤Ë¤Ê¤ê¤Þ¤¹¡£

41³¬Ê¿ÌÌ¿Þ[½Ðŵ¡§»¥ËÚ»Ô]
¡¡¤½¤·¤Æ41³¬¤«¤é¤¬Å¸Ë¾»ÜÀߤˤʤê¤Þ¤¹¡£

42³¬Ê¿ÌÌ¿Þ[½Ðŵ¡§»¥ËÚ»Ô]
¡¡42³¬¤Ë¤Ï¥¬¥é¥¹Ä¥¤ê¤ÎŸ˾¥Ü¥Ã¥¯¥¹¤âÇÛÃÖ¤µ¤ì²°¾å¥Æ¥é¥¹¤Ë¤â¹Ô¤±¤ë¤è¤¦¤Ë¤Ê¤ê¤Þ¤¹¡£

PH1¡¦R³¬Ê¿ÌÌ¿Þ[½Ðŵ¡§»¥ËÚ»Ô]
¡¡ºÇ¾åÉô¤Ë¤Ï¥Ø¥ê¤¬ÃåΦ¤Ç¤¤ë¥Ø¥ê¥Ý¡¼¥È¤¬ÀßÃÖ¤µ¤ì¤Þ¤¹¡£Â¾¤Î¥Õ¥í¥¢¤ÎÊ¿ÌÌ¿Þ¤Ï¥Ö¥í¥°ËöÈø¤ËµºÜ¤·¤Æ¤¢¤ë½Ðŵ¸µ¤«¤é¤´Í÷¤¯¤À¤µ¤¤¡£
°ÌÃÖ¿Þ

°ÌÃÖ¿Þ[½Ðŵ¡§JRË̳¤Æ»]
¡¡·×²èÃϤÏJR¡Ö»¥ËڡױؤÎÌܤÎÁ°¤ÇË̳¤Æ»¿·´´Àþ¡Ö»¥ËڡױؤËľ·ë¤·¤Þ¤¹¡£

°ÌÃÖ¿Þ[½Ðŵ¡§»¥ËÚ»Ô]
¡¡»¥ËÚ»Ô±ÄÃϲ¼Å´ÅìËÀþ¡Ö¤µ¤Ã¤Ý¤í¡×±Ø¤âÌܤÎÁ°¤Ç¡¢ÆîËÌÀþ¡Ö¤µ¤Ã¤Ý¤í¡×±Ø¤äºßÍèÀþ¤ÎJR¡Ö»¥Ëڡױؤˤâ¶á¤¯¡¢¤É¤Î±Ø¤Ë¤âÃϲ¼ÄÌÏ©¤Ê¤ÉÄ̤·¤ÆÀܳ¤·¤Þ¤¹¡£
¸½¶·

¡¡2023ǯ6·î25Æü¤Ë»£±Æ¤·¤¿¡ÖËÌ5À¾1¡¦À¾2Ã϶èÂè°ì¼ï»Ô³¹ÃϺƳ«È¯»ö¶È¡×(ÃϾå42³¬¡¢¹â¤µ236.20m)¤Î·×²èÃÏÊýÌ̤Ǥ¹¡£Çظå¤Î͹âÁØ¥Ó¥ë¤ÏË̳¤Æ»¤ÇºÇ¤â¹â¤¤Ä¶¹âÁØ¥Ó¥ë¤Î¡ÖJR¥¿¥ï¡¼¡×(ÃϾå38³¬¡¢¹â¤µ173m)¤Ç¤¹¡£¤½¤Îº¸Â¦¤ÎÇò¤¤·úʪ¤¬¾¦¶È»ÜÀߤΡֻ¥ËÚ¥¨¥¹¥¿¡×¤Ç¡¢¤½¤³¤âËÌ5À¾2Ã϶è¤È¤·¤ÆÆ±ºÆ³«È¯¤ËÉßÃϤ˴ޤޤì¤Þ¤¹¡£

¡¡¤½¤Î¡Ö»¥ËÚ¥¨¥¹¥¿¡×¤Î2³¬¥Ç¥Ã¥Éôʬ¤«¤é»£±Æ¡£¡Ö»¥ËÚ¥¨¥¹¥¿¡×¤ÏºÆ³«È¯¤Ë¸þ¤±¤Æ8·î31Æü¤ËÊÄŹ¤¹¤ë¤¿¤á¡¢¤³¤Î°ÌÃÖ¤«¤é¤Î»£±Æ¤Ï¤³¤ì¤¬ºÇ¸å¤Ë¤Ê¤ê¤Þ¤¹¡£

¡¡»¥ËÚ±ØÁ°Ä̤ꦤ«¤é»£±Æ¡£¡ÖJR¥¿¥ï¡¼¡×¤¬´°À®¤·¤¿¤È¤¤Ë¤Ï»¥ËڤˤâÀ¨¤¤Ä¶¹âÁإӥ뤬¤Ç¤¤¿¤È»×¤Ã¤¿¤Î¤Ç¤¹¤¬¡¢¤½¤ì¤òÍÚ¤«¤Ëͤ¨¤ë¹â¤µ¤Î͹âÁإӥ뤬¤³¤³¤Ë·úÀߤµ¤ì¤Þ¤¹¡£

¡¡¡Ö»¥ËÚ¥¨¥¹¥¿¡×¤ËÆþ¤Ã¤Æ¤¤¤¿¼çÍץƥʥó¥È¤Î¥Ó¥Ã¥¯¥«¥á¥é¤ä¥æ¥Ë¥¯¥í¡¢¥¸¡¼¥æ¡¼¡¢¥Ð¥ó¥À¥¤¥Ê¥à¥³¥¢¥ß¥å¡¼¥º¥á¥ó¥È¤Ïƻϩ¤ò¶´¤ó¤ÀÀµÌ̤ˤ¢¤ë¡ÖÅìµÞÉ´²ßŹ »¥ËÚŹ¡×¤Ø°Üž¤·¤Þ¤¹¡£

¡¡¡ÖJR¥¿¥ï¡¼¡×¤Î¾¦¶È»ÜÀߡ֥¹¥Æ¥é¥×¥ì¥¤¥¹¡×¤Î²°¾å¤Ë¤¢¤ë¡Ö¤½¤é¤Î¤Ò¤í¤Ð ¥¹¥Æ¥é9¡×¤«¤é»£±Æ¤·¤¿¡Ö»¥ËÚ¥¨¥¹¥¿¡×¤Ç¤¹¡£ÊÄŹ¤Þ¤ÇÌó1¥õ·î¤Ç¤¹¡£

¡¡¡ÖJR¥¿¥ï¡¼¡×(ÃϾå38³¬¡¢¹â¤µ173m)¤Î38³¬¤Ë¤¢¤ëŸ˾¼¼¤«¤é¸«²¼¤í¤·¤¿¡ÖËÌ5À¾1¡¦À¾2Ã϶èÂè°ì¼ï»Ô³¹ÃϺƳ«È¯»ö¶È¡×¤Î·×²èÃϤǤ¹¡£Â礤ÊÃó¼Ö¾ì¤ÈÃóÎØ¾ì¤¬¤¢¤ë¾ì½ê¤¬¡¢¹â¤µ236.20m¤Î͹âÁØ¥Ó¥ë¤Î·úÀßÃϤȤʤëËÌ5À¾1Ã϶è¤Ç¤¹¡£
¡¡¼Ì¿¿¾åÉô¤ÎÃó¼Ö¾ì¤¬¤¢¤ë¾ì½ê¤ÏË̳¤Æ»¿·´´Àþ¡Ö»¥ËÚ¡×±ØÅì²þ»¥¸ýÁ°¤Ë°ÌÃÖ¤·¤Æ¤ª¤ê¡¢¥Õ¥¸¥¿¤¬¤½¤ÎÅÚÃÏÌó5400Ö¤ò¼èÆÀ¤·¤¿¤³¤È¤¬ºÇ¶á¥Ë¥å¡¼¥¹¤Ë¤Ê¤Ã¤Æ¤¤¤Þ¤·¤¿¡£

¡¡JR¤Î¹â²Í¤ËÎÙÀܤ·¤¿Éôʬ¤Î¹©»ö¸½¾ì¤Ï¡ÖË̳¤Æ»¿·´´Àþ»¥ËÚ±Ø(²¾¾Î)¡×¤Î·úÀßÃϤǡÖËÌ5À¾1¡¦À¾2Ã϶èÂè°ì¼ï»Ô³¹ÃϺƳ«È¯»ö¶È¡×¤ËÀܳ¤·¤Þ¤¹¡£¸½ÃϤˤϷúÃ۷ײè¤Î¤ªÃΤ餻¤¬ÀßÃÖ¤µ¤ì¤Æ¤ª¤ê¡¢ÃϾå6³¬¡¢¹â¤µ28.26m¡¢ºÇ¹â¹â¤µ29.91m¡¢±ä¾²ÌÌÀÑ6,516.58Öµ¬ÌϤȤʤäƤ¤¤Þ¤·¤¿¡£¤Þ¤¿¡¢Æ»Ï©¤ò¶´¤ó¤À¤È¤³¤í¤âË̳¤Æ»¿·´´Àþ¡Ö»¥Ëڡױؤˤʤê¤Þ¤¹¡£

¡¡JR¤Î¹â²Í±è¤¤¤Ë¤ÏŤµÌó1.3¥¥í¤È¤Ê¤ëË̳¤Æ»¿·´´Àþ¤Î»¥ËÚ¼Öξ´ðÃϤ¬·úÀߤµ¤ì¤Þ¤¹¡£
ÃÏ¿Þ
ʪ·ï³µÍ×

¹©»ö¹©ÄøÉ½[½Ðŵ¡§»¥ËÚ»Ô]
¡¡¹©´ü¤ÏÌó59¥õ·î¤ÇÃ幩¤«¤éÌó2ǯ¤ÇÃϾåÉô¤Î·úÀߤ¬»Ï¤Þ¤ê¤Þ¤¹¡£
¢£Êª·ï³µÍ×¢£
̾¾Î¡§ËÌ5À¾1¡¦À¾2Ã϶èÂè°ì¼ï»Ô³¹ÃϺƳ«È¯»ö¶È
½êºßÃÏ¡§Ë̳¤Æ»»¥ËÚ»ÔÃæ±û¶èËÌ£µ¾òÀ¾£±ÃúÌÜ¡¢À¾£²ÃúÌÜ¡¢µÚ¤ÓÀ¾3ÃúÌܤΰìÉô
¸òÄÌ¡§JR¡Ö»¥ËÚ¡×±Ø
¡¡¡¡¡¡Ãϲ¼Å´ÅìËÀþ¡¦ÆîËÌÀþ¡Ö¤µ¤Ã¤Ý¤í¡×±Ø
ÍÑÅÓ¡§¶È̳¡¢¾¦¶È¡¢½ÉÇñ¡¢Ãó¼Ö¾ì¡¢¥Ð¥¹¥¿¡¼¥ß¥Ê¥ëÅù
³¬¿ô¡§ÃϾå42³¬¡¢Ãϲ¼4³¬
¹â¤µ¡§236.20m
¹½Â¤¡§Å´¹ü¤¡¢Å´¹üÅ´¶Ú¥³¥ó¥¯¥ê¡¼¥È¤
·úÃÛÌÌÀÑ¡§Ìó23,060Ö
·úÃÛÌÌÀÑ¡§Ìó21,500Ö
±ä¾²ÌÌÀÑ¡§Ìó386,700Ö
·úÃۼ硧»¥ËڱظòήµòÅÀËÌ5À¾1¡¦À¾2Ã϶è»Ô³¹ÃϺƳ«È¯Áȹç
»²²ÃÁȹç°÷¡§Ë̳¤Æ»Î¹µÒÅ´Æ»¡¢»¥ËÚ±ØÁí¹ç³«È¯¡¢¥¸¥§¥¤¡¦¥¢¡¼¥ëË̳¤Æ»¥Ð¥¹¡¢JRË̳¤Æ»¥Û¥Æ¥ë¥º¡¢»¥ËÚ»Ô
¡¡¡¡¡¡¡¡¡¡¡¡Ä«Æü¿·Ê¹¼Ò¡¢Ä«ÆüÀ¸Ì¿Êݸ±Áê¸ß²ñ¼Ò¡¢»¥ËÚ¥¹¥Æ¡¼¥·¥ç¥ó¥Õ¥í¥ó¥ÈÆÃÄêÌÜŪ²ñ¼Ò¡¢ÅìÊõ¡¢ÆüËÜÅÔ»Ô¥Õ¥¡¥ó¥É¡¢ÉçÍÖÁí¹ç¥ê¡¼¥¹¡¢¥á¥Ç¥£¥«¥ë¥·¥¹¥Æ¥à¥Í¥Ã¥È¥ï¡¼¥¯
Àß·×¼Ô¡§ÆüËÜÀ߷ס¦À¶¿å·úÀß Àß·×¶¦Æ±ÂÎ
ÆÃÄê¶È̳Âå¹Ô¼Ô¡§À¶¿å¡¦°ËÆ£¡¦´äÅÄÃϺꡦ»¥·ú¡¦Âٿʶ¦Æ±´ë¶ÈÂΡÊÂåɽ´ë¶È¡§À¶¿å·úÀß¡Ë
¹©´ü¡§2023ǯ10·îÃ幩¡Á2028ǯ4·î½×¹©Í½Äê
½Ðŵ
¢§JRË̳¤Æ»¡§¥Ë¥å¡¼¥¹¥ê¥ê¡¼¥¹¡Ê2023ǯ3·î15Æü¡Ë
¡Ú¼ÒĹ²ñ¸«¡ÛËÌ£µÀ¾£±¡¦À¾£²Ã϶èÂè°ì¼ï»Ô³¹ÃϺƳ«È¯»ö¶È
¡Á»Ô³¹ÃϺƳ«È¯ÁȹçÀßΩ¤Î¤ªÃΤ餻¡Á
¢§JRË̳¤Æ»¡§¥Ë¥å¡¼¥¹¥ê¥ê¡¼¥¹¡Ê2023ǯ3·î15Æü¡Ë
¡Ú¼ÒĹ²ñ¸«¡ÛËÌ£µÀ¾£±¡¦À¾£²Ã϶èÂè°ì¼ï»Ô³¹ÃϺƳ«È¯»ö¶È¤Ëȼ¤¦
¥¨¥¹¥¿¤ÎÊÄŹ¤Ë¤Ä¤¤¤Æ
¢§JRË̳¤Æ»¡§¥Ë¥å¡¼¥¹¥ê¥ê¡¼¥¹¡Ê2022ǯ5·î18Æü¡Ë
¡Ú¼ÒĹ²ñ¸«¡Û»¥ËÚ±ØÄ¾·ë¡Ö¡Ê²¾¾Î¡ËËÌ5À¾1¡¦À¾2Ã϶è»Ô³¹ÃϺƳ«È¯»ö¶È¡×¡ÁÅԻԷײè·èÄê¤Ë¸þ¤±¤¿¼ê³¤¤ò³«»Ï¡Á
¢§»¥ËÚ»Ô¡§ºÆ³«È¯»ö¶È¡Ê2023ǯ4·î14Æü¹¹¿·¡Ë
ËÌ5À¾1¡¦À¾2Ã϶è
¢§»¥ËÚ»Ô¡§»¥ËڱظòήµòÅÀ¤Î¤Þ¤Á¤Å¤¯¤ê¡Ê2022ǯ10·î3Æü¹¹¿·¡Ë
»¥ËڱظòήµòÅÀÆâ¤Î¥×¥í¥¸¥§¥¯¥È¤Ë·¸¤ë´Ä¶±Æ¶Áɾ²Á
¢§»¥ËÚ»Ô¡§ÅԻԷײè¤Î·èÄꡦÊѹ¹¤Î¤ªÃΤ餻¡ÊÎáÏÂ4ǯÅÙ¡Ë¡Ê2022ǯ10·î3Æü¹¹¿·¡Ë
ËÌ5À¾1¡¦À¾2Ã϶è¡ÊÀâÌÀ»ñÎÁ¡Ë
- ¥«¥Æ¥´¥ê
- »¥ËÚ»Ô







