
¡¡JRºëµþÀþ¡Ö½½¾ò¡×±ØÁ°¤Ç·úÀßÃæ¤Î¥¿¥ï¡¼¥Þ¥ó¥·¥ç¥ó¡Ö¥¶¡¦¥¿¥ï¡¼½½¾ò¡ÊTHE TOWER JUJO¡Ë¡×(ÃϾå39³¬¡¢¹â¤µ146.16m)¤Ç¤¹¡£2023ǯ7·î11Æü¤Ë»£±Æ¤·¤Þ¤·¤¿¡£¾¦¶È¡¦¸ø±×»ÜÀߤâÊ»Àߤµ¤ì¤ëÊ£¹çºÆ³«È¯¤Ç¡¢»£±Æ»þ¤Ë¤Ï20³¬Éôʬ¤Î·úÀߤ¬»Ï¤Þ¤Ã¤Æ¤ª¤ê¡¢ÌóȾʬ¤Î¹â¤µ¤Þ¤ÇÅþ㤷¤Æ¤¤¤Þ¤¹¡£¤³¤Îµ»ö¤Ç¤ÏƱ¥¿¥ï¥Þ¥ó¤Î³µÍפä·úÀß¾õ¶·¡¢ÃÏ¿ÞÅù¤òºÜ¤»¤Æ¤¤¤Þ¤¹¡£
¥¶¡¦¥¿¥ï¡¼½½¾ò¤Ë¤Ä¤¤¤Æ

³°´Ñ´°À®Í½ÁÛCG[½Ðŵ¡§¸ø¼°HP]
¡¡¡Ö¥¶¡¦¥¿¥ï¡¼½½¾ò¡ÊTHE TOWER JUJO¡Ë¡×¤ÏJRºëµþÀþ¡Ö½½¾ò¡×±ØÁ°¤Ç·úÀßÃæ¤ÎË̶èºÇ¹âÁØ¥¿¥ï¡¼¥Þ¥ó¥·¥ç¥ó¤Ç¡¢µ¬ÌϤÏÃϾå39³¬¡¢Åã²°2³¬¡¢Ãϲ¼2³¬¡¢¹â¤µ146.16m¡¢ÉßÃÏÌÌÀÑ7,071.32Ö¡¢·úÃÛÌÌÀÑ4,691.78Ö¡¢±ä¾²ÌÌÀÑ8Ëü1067.16Ö¡¢Áí¸Í¿ô578¸Í(»ö¶È¶¨ÎϼԽ»¸Í184¸Í´Þ¤à)¤È¤Ê¤Ã¤Æ¤¤¤Þ¤¹¡£·úÃÛ¼ç¤Ï½½¾ò±ØÀ¾¸ýÃ϶è»Ô³¹ÃϺƳ«È¯Áȹç¡Ê»²²ÃÁȹç°÷¡§ÅìµÞÉÔÆ°»º¡¢ÆüÅ´¶½ÏÂÉÔÆ°»º¡Ë¡¢Çä¼ç¤ÏÅìµÞÉÔÆ°»º¤ÈÆüÅ´¶½ÏÂÉÔÆ°»º¡¢À߷׼ԤȻܹ©¼Ô¤ÏÁ°ÅÄ·úÀß¹©¶È¤Ç2024ǯ9·îËöÆü½×¹©¡¢2025ǯ1·î²¼½ÜÆþµï³«»ÏͽÄê¤È¤Ê¤Ã¤Æ¤¤¤Þ¤¹¡£
¡¡2023ǯ9·î¾å½Ü¤«¤éÂè3´ü¤ÎÈÎÇ䳫»ÏͽÄê¤Ç¡¢Âè3´ü°Ê¹ßÈÎÇ䤵¤ì¤ë¸Í¿ô¤Ï394¸Í¡¢´Ö¼è¤ê¤Ï1LDK¡Á4LDK¡¢ÀìÍÌÌÀѤÏ41.41Ö¡Á126.23Ö¡¢¥Ð¥ë¥³¥Ë¡¼ÌÌÀѤÏ9.56Ö¡Á24.64֤ȤʤäƤ¤¤Þ¤¹¡£

¥Õ¥í¥¢³µÇ°¿Þ[½Ðŵ¡§¸ø¼°HP]
¡¡¥Õ¥í¥¢¹½À®¤Ï1¡¢2³¬¤¬¾¦¶È»ÜÀß(2³¬¤Î°ìÉô¤Ï2024ǯ12·î³«¶ÈͽÄê¤Î¥¹¡¼¥Ñ¡¼¥Þ¡¼¥±¥Ã¥È)¡¢3³¬¤¬¶È̳»ÜÀß¡¢3¡¢4³¬¤¬ËÌ¶è¸ø±×»ÜÀß(¿Þ½ñ´ÛÅù)¡¢¤½¤·¤Æ5¡Á39³¬¤¬¶¦Æ±½»Âð¤Î¡Ö¥¶¡¦¥¿¥ï¡¼½½¾ò¡ÊTHE TOWER JUJO¡Ë¡×¤È¤Ê¤ê¤Þ¤¹¡£5³¬¤Ë¤Ï¶¦ÍÑ»ÜÀߤ¬½¸¤á¤é¤ì¡¢37³¬¤Ë¤Ï¥¹¥«¥¤¥é¥¦¥ó¥¸¤¬ÇÛÃÖ¤µ¤ì¤Þ¤¹¡£
¡¡¾¦¶È¡¦¶È̳¡¦¸ø¶¦»ÜÀßÉô¤Î̾¾Î¤Ï¡ÖJ& MALL¡Ê¥¸¥§¥¤¥È¥â¡¼¥ë¡Ë¡×¤Ç¡¢¥Þ¥ó¥·¥ç¥óÉô¤Î¡Ö¥¶¡¦¥¿¥ï¡¼½½¾ò¡ÊTHE TOWER JUJO¡Ë¡×¤â´Þ¤á¤¿»ÜÀßÁ´ÂΤÎ̾¾Î¤Ï¡ÖJ& TERRACE¡Ê¥¸¥§¥¤¥È¥Æ¥é¥¹¡Ë¡×¤È¤Ê¤ê¤Þ¤¹¡£

ÉßÃÏÇÛÃÖ´°À®Í½ÁÛCG[½Ðŵ¡§¸ø¼°HP]
¡¡Æ±ºÆ³«È¯¤ÎÄãÁØÉô¤Ï¥Ø¤Î»ú·¿¤È¤Ê¤Ã¤Æ¤ª¤ê¥¿¥ï¡¼¥Þ¥ó¥·¥ç¥óËÜÂΤϱØÂ¦¤ËÇÛÃÖ¤µ¤ì¤Þ¤¹¡£¤Þ¤¿¡¢JRºëµþÀþ¡Ö½½¾ò¡×±Ø¤È¤Ï±ØÁ°¹¾ì¤Ç·Ò¤¬¤ê¡¢Æ»Ï©¤òÄ̤餺¤Ë±Ø¤Þ¤Ç¥¢¥¯¥»¥¹¤Ç¤¤ë¤è¤¦¤Ë¤Ê¤ê¤Þ¤¹¡£¡£

5³¬¶¡ÍѶõ´Ö³µÇ°¿Þ[½Ðŵ¡§¸ø¼°HP]
¡¡5³¬¤ËÇÛÃÖ¤µ¤ì¤ë¶¦ÍÑ»ÜÀߤγµÇ°¿Þ¤Ç¤¹¡£¥³¥ó¥·¥§¥ë¥¸¥å¥Ç¥¹¥¯¤â¤¢¤ë¥¦¥§¥ë¥«¥à¥é¥¦¥ó¥¸¡¢¿Í¹©¼Ç¤¬¤¢¤ë¥Õ¥©¥ì¥¹¥È¥Ñ¡¼¥¯¡¢¸Ä¼¼¥Ö¡¼¥¹¤â¤¢¤ë¥ï¡¼¥¯¥é¥¦¥ó¥¸¡¢¤½¤·¤Æ¥²¥¹¥È¥ë¡¼¥à¤¬2Éô²°¤¬ÇÛÃÖ¤µ¤ì¤Þ¤¹¡£

¥¨¥ó¥È¥é¥ó¥¹´°À®Í½ÁÛCG[½Ðŵ¡§¸ø¼°HP]
¡¡¥¨¥ó¥È¥é¥ó¥¹¤Î´°À®Í½ÁۿޤǤ¹¡£

¥ë¡¼¥Õ¥¬¡¼¥Ç¥ó´°À®Í½ÁÛCG[½Ðŵ¡§¸ø¼°HP]
¡¡4³¬¤ËÀßÃÖ¤µ¤ì¤ë¥ë¡¼¥Õ¥¬¡¼¥Ç¥ó¤Î´°À®Í½ÁۿޤǤ¹¡£

¥²¥¹¥È¥ë¡¼¥à¡ÊKirameki¡Ë´°À®Í½ÁÛCG[½Ðŵ¡§¸ø¼°HP]
¡¡5³¬¤ËÇÛÃÖ¤µ¤ì¤ë¥²¥¹¥È¥ë¡¼¥à¤Î´°À®Í½ÁۿޤǤ¹¡£Íî¤ÁÃ夤¤¿¾å¼Á´¶¤¬¥Æ¡¼¥Þ¤Î¡Öyasuragi¡×¤ÈÈóÆü¾ï¤¬¥Æ¡¼¥Þ¤Î¡ÖKirameki¡×¤Î2Éô²°¤¬¤¢¤ê¤Þ¤¹¡£

¥Õ¥©¥ì¥¹¥È¥Ñ¡¼¥¯´°À®Í½ÁÛCG[½Ðŵ¡§¸ø¼°HP]
¡¡5³¬¤ËÇÛÃÖ¤µ¤ì¤ë¥Õ¥©¥ì¥¹¥È¥Ñ¡¼¥¯¤Î´°À®Í½ÁۿޤǤ¹¡£ÎФËÊñ¤Þ¤ì¥Ï¥ó¥â¥Ã¥¯¤ËÍɤé¤ì¤ë¤³¤È¤â¤Ç¤¤ë¶õ´Ö¤Ë¤Ê¤ê¤Þ¤¹¡£

¥¹¥«¥¤¥é¥¦¥ó¥¸´°À®Í½ÁÛCG[½Ðŵ¡§¸ø¼°HP]
¡¡37³¬¤ËÀßÃÖ¤µ¤ì¤ë¥¹¥«¥¤¥é¥¦¥ó¥¸¤Î´°À®Í½ÁۿޤǤ¹¡£¡Ö¥¶¡¦¥¿¥ï¡¼½½¾ò¡ÊTHE TOWER JUJO¡Ë¡×¤Ï¼þÊÕ¥¨¥ê¥¢¤Ç°µÅÝŪ¤Ê¹â¤µ¤Î¤¿¤á¡¢»ë³¦¤ò¼×¤ë·úʪ¤¬°ìÀڤʤ¤·Ê¿§¤¬¹¤¬¤ê¤Þ¤¹¡£¤Þ¤¿¡¢¼¼Æâ¤Ë¤Ï¥¥Ã¥Á¥ó¤âÍѰդµ¤ìÂßÀڥѡ¼¥Æ¥£¤Ê¤É¤Ë¤âÂбþ²Äǽ¤È¤Ê¤Ã¤Æ¤¤¤Þ¤¹¡£
´Ö¼è¤ê¿Þ

28³¬¥Õ¥í¥¢³µÇ°¿Þ[½Ðŵ¡§¸ø¼°HP]
¡¡28³¬¤Î¥Õ¥í¥¢³µÇ°¿Þ¤Ç¤¹¡£Æâϲ¼À߷פdzƳ¬¤ËÂðÇۥܥ寥¹¡¢¿©ÇÛ¥µ¡¼¥Ó¥¹¡¢¤´¤ßÃ־줬ÀßÃÖ¤µ¤ì¤Þ¤¹¡£¤Þ¤¿¡¢³Ñ½»¸Í¤Ï¸µ¤Þ¤Ç³«¸ý¤¹¤ë¥À¥¤¥ì¥¯¥È¥¦¥£¥ó¥É¥¦¤¬ºÎÍѤµ¤ì¤Æ¤¤¤Þ¤¹¡£

S-60A¥¿¥¤¥×[½Ðŵ¡§¸ø¼°HP]
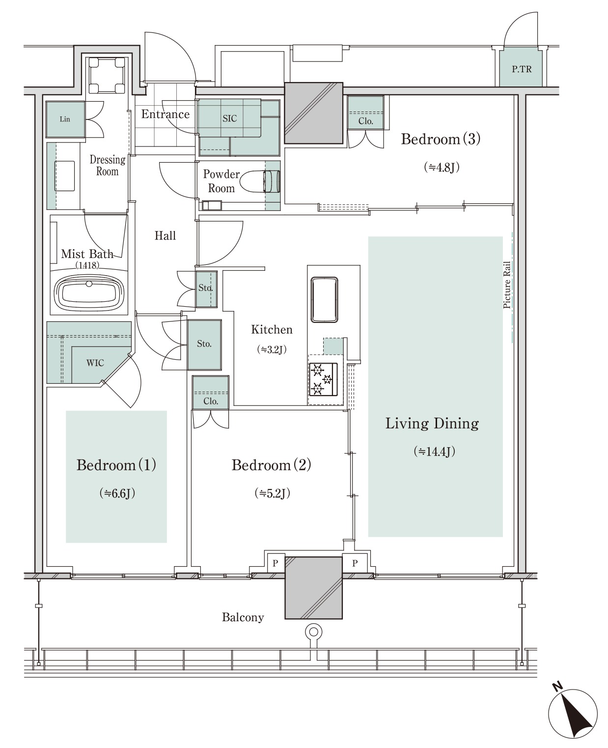
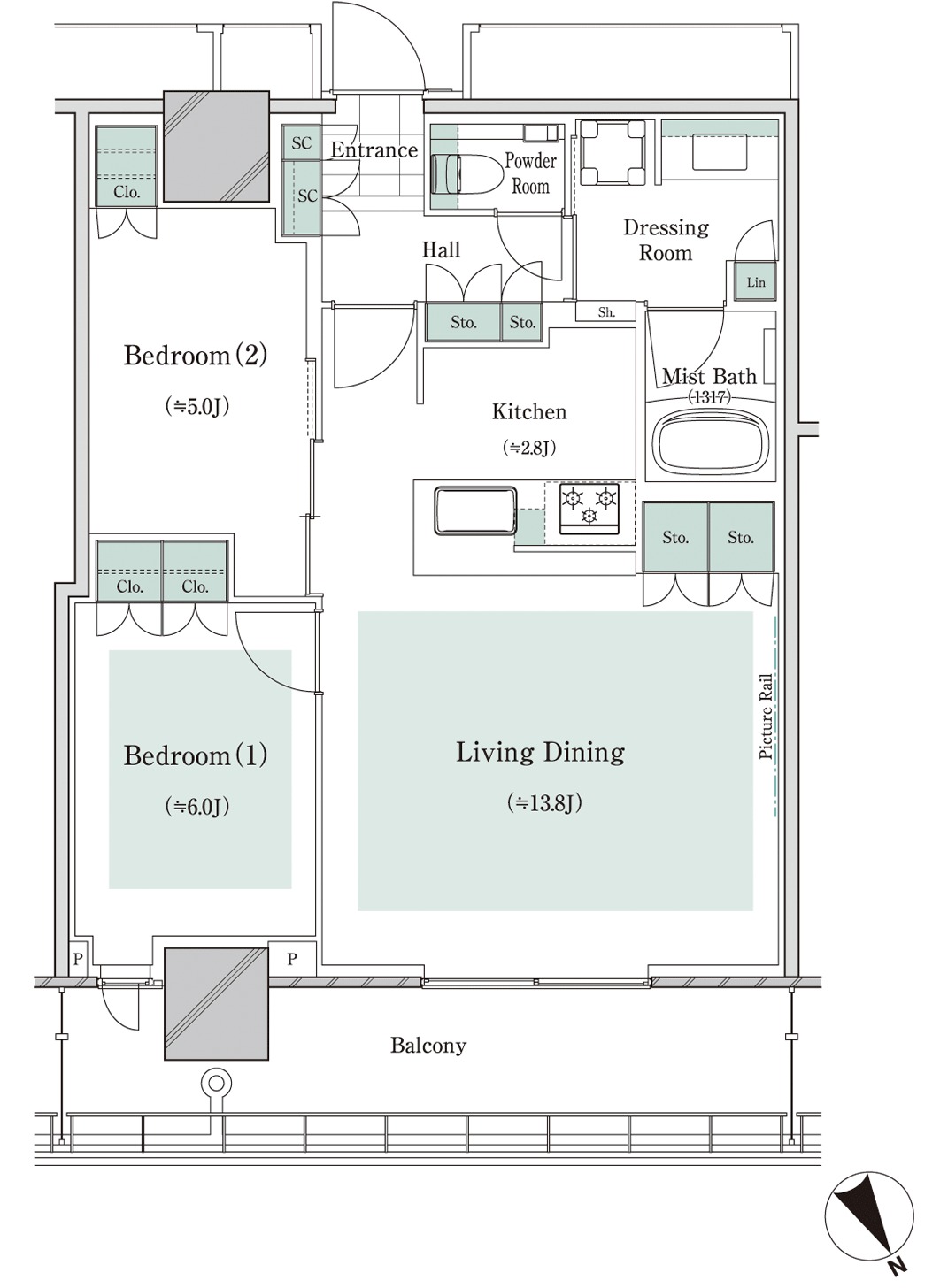
¡¡S-60A¥¿¥¤¥×¤Î´Ö¼è¤ê¿Þ¤Ç¤¹¡£´Ö¼è¤ê¤Ï2LDK¡¢ÀìÍÌÌÀѤÏ62.50Ö¡¢¥Ð¥ë¥³¥Ë¡¼ÌÌÀѤÏ12.50֤ȤʤäƤ¤¤Þ¤¹¡£

S-75E¥¿¥¤¥×[½Ðŵ¡§¸ø¼°HP]
¡¡S-75E¥¿¥¤¥×¤Î´Ö¼è¤ê¿Þ¤Ç¤¹¡£´Ö¼è¤ê¤Ï3LDK+WIC+SIC+TR¡¢ÀìÍÌÌÀѤÏ77.38֡ʥȥé¥ó¥¯¥ë¡¼¥àÌÌÀÑ0.65Ö´Þ¤à¡Ë¡¢¥Ð¥ë¥³¥Ë¡¼ÌÌÀѤÏ14.96֤ȤʤäƤ¤¤Þ¤¹¡£

S-90A¥¿¥¤¥×[½Ðŵ¡§¸ø¼°HP]
¡¡ S-90A¥¿¥¤¥×¤Î´Ö¼è¤ê¿Þ¤Ç¤¹¡£´Ö¼è¤ê¤Ï4LDK+SIC+TR¡¢ÀìÍÌÌÀѤÏ92.90֡ʥȥé¥ó¥¯¥ë¡¼¥àÌÌÀÑ0.57Ö´Þ¤à¡Ë¡¢¥Ð¥ë¥³¥Ë¡¼ÌÌÀѤÏ20.65֤ȤʤäƤ¤¤Þ¤¹¡£
°ÌÃÖ¿Þ

°ÌÃÖ¿Þ[½Ðŵ¡§¸ø¼°HP]
¡¡·úÀßÃϤÏJRºëµþÀþ¡Ö½½¾ò¡×±ØÀ¾¸ý¤ÎÌܤÎÁ°¤Ë°ÌÃÖ¤·¤Æ¤ª¤ê¡¢±ØÁ°¹¾ì¤ò²ð¤·¤ÆÅÌÊâ1ʬ¤È¤Ê¤Ã¤Æ¤¤¤Þ¤¹¡£¤Þ¤¿¡¢Å즤ˤ¢¤ëJRµþÉÍÅìËÌÀþ¡ÖÅì½½¾ò¡×±Ø¤Þ¤Ç¤Ï½½¾òÃæ±û¾¦Å¹³¹¤òÄ̤äÆÅÌÊâ9ʬ¤È¤Ê¤Ã¤Æ¤¤¤Þ¤¹¡£

³°´Ñ´°À®Í½ÁÛCG[½Ðŵ¡§¸ø¼°HP]
¡¡¥Þ¥ó¥·¥ç¥ó¤«¤é½½¾ò±Ø¤Þ¤Ç¤Ï±ØÁ°¹¾ì¤·¤«¤Ê¤¤¤Î¤Ç¡¢²°º¬¤Ê¤·¤Î¥Ú¥Ç¥¹¥È¥ê¥¢¥ó¥Ç¥Ã¥¤Ç±Ø¤Ëľ·ë¤¹¤ë¥¿¥ï¥Þ¥ó¤ÈÊѤï¤é¤Ê¤¤¾õÂ֤ˤʤê¤Þ¤¹¡£
·úÀß¾õ¶·

¡¡2023ǯ7·î11Æü¤ËJRºëµþÀþ¡Ö½½¾ò¡×±ØÁ°¤«¤é»£±Æ¤·¤¿¡Ö¥¶¡¦¥¿¥ï¡¼½½¾ò¡ÊTHE TOWER JUJO¡Ë¡×(ÃϾå39³¬¡¢¹â¤µ146.16m)¤Ç¤¹¡£»£±Æ»þ¤Ë¤Ï20³¬Éôʬ¤Î·úÀߤ¬»Ï¤Þ¤Ã¤Æ¤¤¤Þ¤·¤¿¡£

¡¡Ë̦¤«¤é»£±Æ¡£¼þÊÕ¥¨¥ê¥¢¤Ç¤ÏºÇ¹âÁØ¥¿¥ï¥Þ¥ó¤Ç¡¢Ë̶èÆâ¤Ç¤âºÇ¤â¹â¤¤·úʪ¤È¤Ê¤ê¤Þ¤¹¡£

¡¡ËÌÀ¾Â¦¤«¤é»£±Æ¡£±¦Â¦¤Î¥¿¥ï¡¼¥¯¥ì¡¼¥ó¤¬¤¢¤ë¾ì½ê¤Ë¤Ï¾¦¶È»ÜÀߤ䏸±×»ÜÀߤ¬Æþ¤ëÄãÁØÅ郎·úÀߤµ¤ì¤Þ¤¹¡£

¡¡Â礤ʥ¿¥ï¡¼¥¯¥ì¡¼¥ó¤¬ÀßÃÖ¤µ¤ì¤Æ¤¤¤Þ¤¹¤¬¡¢ÄãÁØÅïÉôʬ¤Ï4³¬·ú¤Æ¤Ë¤Ê¤ê¤Þ¤¹¡£

¡¡À¾Â¦¤«¤é»£±Æ¡£¤³¤³¤ÏT»úÏ©¤Ë¤Ê¤Ã¤Æ¤ª¤ê¡¢¤³¤³¤«¤é±ØÁ°¤Î¸òÄ̹¾ì¤Ë·Ò¤¬¤Ã¤Æ¤¤¤Þ¤¹¡£

¡¡JRºëµþÀþ¤ÎƧÀÚ¤òͤ¨¤¿ÆîÅ즤«¤é»£±Æ¡£¡Ö½½¾ò¡×±Ø¤òÃæ¿´¤È¤·¤ÆÌó1.5km¤Î¶è´Ö¤Ï±Ø¤ÈÀþÏ©¤¬¡ÖJRºëµþÀþ¡Ê½½¾ò±ØÉÕ¶á¡ËϢ³ΩÂθòº¹»ö¶È¡×¤Ë¤è¤ê¹â²Í²½¤µ¤ì¤Þ¤¹¡£

¡¡Æ±¤¸Æü¤Ë¡Ö¥µ¥ó¥·¥ã¥¤¥ó60¡×¤ÎŸ˾¼¼¤«¤é»£±Æ¡£

¡¡ÈͶ±ØÊýÌ̤ˤϥ¿¥ï¡¼¥Þ¥ó¥·¥ç¥ó¤¬¤¢¤ê¤Þ¤¹¤¬¡¢¶á¤¯¤Ë͹âÁؤϤʤ¤¤Î¤ÇÃæÁس¬¤Ç¤â¥¿¥ï¡¼¥Þ¥ó¥·¥ç¥ó¤é¤·¤¤·Ê¿§¤ò³Ú¤·¤à¤³¤È¤¬¤Ç¤¤ë¾ì½ê¤È¤Ê¤Ã¤Æ¤¤¤Þ¤¹¡£
ÃÏ¿Þ
ʪ·ï³µÍ×

¡¡·úÃ۷ײè¤Î¤ªÃΤ餻¤Ç¤¹¡£
¢£Êª·ï³µÍ×¢£
̾¾Î¡§¥¶¡¦¥¿¥ï¡¼½½¾ò¡ÊTHE TOWER JUJO¡Ë
·×²è̾¾Î¡§½½¾ò±ØÀ¾¸ýÃ϶èÂè°ì¼ï»Ô³¹ÃϺƳ«È¯»ö¶È »ÜÀß·úÃÛʪ
½êºßÃÏ¡§ÅìµþÅÔË̶è¾å½½¾òÆóÃúÌÜ25ÈÖ¾
¸òÄÌ¡§JRºëµþÀþ¡Ö½½¾ò¡×±Ø ÅÌÊâ1ʬ
¡¡¡¡¡¡JRµþÉÍÅìËÌÀþ¡ÖÅì½½¾ò¡×±Ø ÅÌÊâ9ʬ
ÍÑÅÓ¡§¶¦Æ±½»Â𡦾¦¶È¡¦¶È̳¡¦¸ø¶¦»ÜÀß¡¢¸òÄ̹¾ì¡¦Ãϲ¼¸ø¶¦ÃóÎØ¾ì
Áí¸Í¿ô¡§578¸Í(»ö¶È¶¨ÎϼԽ»¸Í184¸Í´Þ¤à)
³¬¿ô¡§ÃϾå39³¬¡¢Åã²°2³¬¡¢Ãϲ¼2³¬
¹â¤µ¡§146.16m
¹½Â¤¡§Å´¶Ú¥³¥ó¥¯¥ê¡¼¥È¤¡¢Å´¹ü¤
´ðÁù©Ë¡¡§¹º´ðÁÃ
ÉßÃÏÌÌÀÑ¡§7,071.32Ö
·úÃÛÌÌÀÑ¡§4,691.78Ö
±ä¾²ÌÌÀÑ¡§81,067.16Ö
·úÃۼ硧½½¾ò±ØÀ¾¸ýÃ϶è»Ô³¹ÃϺƳ«È¯Áȹç¡Ê»²²ÃÁȹç°÷¡§ÆüÅ´¶½ÏÂÉÔÆ°»º¡¢ÅìµÞÉÔÆ°»º¡Ë
Çä¼ç¡§ÆüÅ´¶½ÏÂÉÔÆ°»º¡¢ÅìµÞÉÔÆ°»º
Àß·×¼Ô¡§Á°ÅÄ·úÀß¹©¶È
»Ü¹©¼Ô¡§Á°ÅÄ·úÀß¹©¶È
¹©´ü¡§2021ǯ3·î1·îÃ幩¡Á2024ǯ9·îËöÆü½×¹©Í½Äê
Æþµï¡§2025ǯ1·î²¼½ÜͽÄê
½Ðŵ
¢§¸ø¼°HP¡§¥¶¡¦¥¿¥ï¡¼½½¾ò¡ÊTHE TOWER JUJO¡Ë
https://sumai.tokyu-land.co.jp/THETOWER/JUJO/
- ¥«¥Æ¥´¥ê
- Ë̶è







