
´°À®Í½ÁÛ¿Þ[½Ðŵ¡§Àîºê»Ô]
¡¡ÅиͱØÁ°¤Ë·úÀߤµ¤ì¤ë¥¿¥ï¡¼¥Þ¥ó¥·¥ç¥ó¡Ö(²¾¾Î)ÅиͱØÁ°Ã϶è»Ô³¹ÃϺƳ«È¯»ö¶È¡×(ÃϾå38³¬¡¢ºÇ¹â¹â¤µÌó146m)¤Î´°À®Í½ÁۿޤǤ¹¡£ÅìµÞ¤È¾®Åĵޤˤè¤ë±ØÄ¾·ë¥¿¥ï¥Þ¥ó¤ÇÄãÁØÉô¤Ë¤Ï¾¦¶È»ÜÀߤ¬Æþ¤ê¤Þ¤¹¡£¤³¤Îµ»ö¤Ç¤ÏƱ¥¿¥ï¥Þ¥ó¤Î³µÍפ丽¶·¡¢ÃÏ¿ÞÅù¤òºÜ¤»¤Æ¤¤¤Þ¤¹¡£
(²¾¾Î)ÅиͱØÁ°Ã϶è»Ô³¹ÃϺƳ«È¯»ö¶È¤Ë¤Ä¤¤¤Æ

ÅÚÃÏÍøÍѷײè¿Þ[½Ðŵ¡§Àîºê»Ô]
¡¡¡Ö(²¾¾Î)ÅиͱØÁ°Ã϶è»Ô³¹ÃϺƳ«È¯»ö¶È¡×¤Ï¡ÖÅи͡ױؤ˥ڥǥ¹¥È¥ê¥¢¥ó¥Ç¥Ã¥¤Çľ·ë¤¹¤ë¥¿¥ï¡¼¥Þ¥ó¥·¥ç¥ó¤Ç¡¢µ¬ÌϤÏÃϾå38³¬¡¢Åã²°2³¬¡¢Ãϲ¼2³¬¡¢¹â¤µÌó140m¡¢ºÇ¹â¹â¤µÌó146m¡¢ÉßÃÏÌÌÀÑÌó5,950Ö¡¢·úÃÛÌÌÀÑÌó4,160Ö¡¢±ä¾²ÌÌÀÑÌó6Ëü3500Ö¡¢Áí¸Í¿ôÌó450¸Í¡¢·úÃÛ¼ç¤ÏÅиͱØÁ°Ã϶è»Ô³¹ÃϺƳ«È¯½àÈ÷Áȹ硢»ö¶È¶¨ÎϼԤÏÅìµÞ¡¢ÅìµÞÉÔÆ°»º¡¢¾®ÅĵÞÅÅÅ´¡¢¾®ÅĵÞÉÔÆ°»º¡¢Àß·×¼Ô¤ÏÅìµÞÀß·×¥³¥ó¥µ¥ë¥¿¥ó¥È¤Ç°ÊÁ°¤Î¾ðÊó¤Î¤Þ¤Þ¤À¤È2024ǯ11·îÃ幩¡¢2028ǯ1·î½×¹©Í½Äê¤È¤Ê¤Ã¤Æ¤¤¤Þ¤¹¡£

ÃÇÌÌ¿Þ[½Ðŵ¡§Àîºê»Ô]
¡¡¥Õ¥í¥¢¹½À®¤ÏÃϲ¼¤¬Ãó¼Ö¾ì¡¢1³¬¡Á3³¬¤¬¾¦¶È»ÜÀß¡¢4³¬¤¬½»Âð¤ÎÃóÎØ¾ì¡¢5³¬¤¬½»Âð¤Î¶¦ÍÑ¥Õ¥í¥¢¡¢6³¬¡Á37³¬¤¬½»Âð¥Õ¥í¥¢¡¢¤½¤·¤ÆºÇ¾å³¬¤Î38³¬¤¬½»Âð¤Î¶¦ÍÑ»ÜÀߤˤʤê¤Þ¤¹¡£

ÃÇÌÌ¿Þ[½Ðŵ¡§Àîºê»Ô]
¡¡¤É¤¦¤¤¤Ã¤¿¶¦ÍÑ»ÜÀߤˤʤë¤Î¤«¤ÏÉÔÌÀ¤Ç¤¹¤¬¡¢ºÇ¾å³¬¤Ë¤Ï¥¹¥«¥¤¥é¥¦¥ó¥¸¤¬ÀßÃÖ¤µ¤ì¤ë¤³¤È¤Ë¤Ê¤ê¤½¤¦¤Ç¤¹¡£

ΩÌÌ¿Þ[½Ðŵ¡§Àîºê»Ô]
¡¡ºÇ¾å³¬¤È¤Ê¤ë38³¬¤Î¶¦ÍÑ»ÜÀß¤ÏÆîÅ즤ËÇÛÃÖ¤µ¤ì¤Þ¤¹¡£

ΩÌÌ¿Þ[½Ðŵ¡§Àîºê»Ô]
¡¡¥¿¥ï¡¼¥Þ¥ó¥·¥ç¥ó¤Î²°¾å¤ÏH¥Þ¡¼¥¯(Heliport)¤È¤Ê¤Ã¤Æ¤¤¤ë¤¿¤á¡¢¥Ø¥ê¤¬ÃåΦ¤Ç¤¤ë¥Ø¥ê¥Ý¡¼¥È¤¬ÀßÃÖ¤µ¤ì¤ë¤³¤È¤¬¤ï¤«¤ê¤Þ¤¹¡£

ÂåɽŪ¤Êį˾ÃÏÅÀ¤«¤é¤Î·Ê´Ñ¡ÊÅиͱØÁ°¥Ç¥Ã¥¡Ë[½Ðŵ¡§Àîºê»Ô]
¡¡ÅиͱØÁ°¤Î¥Ç¥Ã¥¤«¤é¸«¤¿ÄãÁØÉô¤Î´°À®Í½ÁۿޤǤ¹¡£¤³¤Î¿Þ¤ò¸«¤ë¸Â¤ê¤Ç¤Ï²°º¬ÉÕ¤¤Î¥Ú¥Ç¥¹¥È¥ê¥¢¥ó¥Ç¥Ã¥¤Ë¤Ê¤ê¤½¤¦¤Ç¤¹¡£

ÂåɽŪ¤Êį˾ÃÏÅÀ¤«¤é¤Î·Ê´Ñ¡Ê¿ËàÀî¿åÆ»¶¶¡Ë[½Ðŵ¡§Àîºê»Ô]
¡¡Â¿ËàÀî¤Ë²Í¤«¤ë¡Ö¿ËàÀî¿åÆ»¶¶¡×¤«¤é¸«¤¿´°À®Í½ÁۿޤǤ¹¡£¼þÊÕ¥¨¥ê¥¢¤Ç¤Ï°µÅÝŪ¤Ê¹â¤µ¤Î¥¿¥ï¡¼¥Þ¥ó¥·¥ç¥ó¤Ë¤Ê¤ê¤Þ¤¹¡£
³Æ³¬Ê¿ÌÌ¿Þ

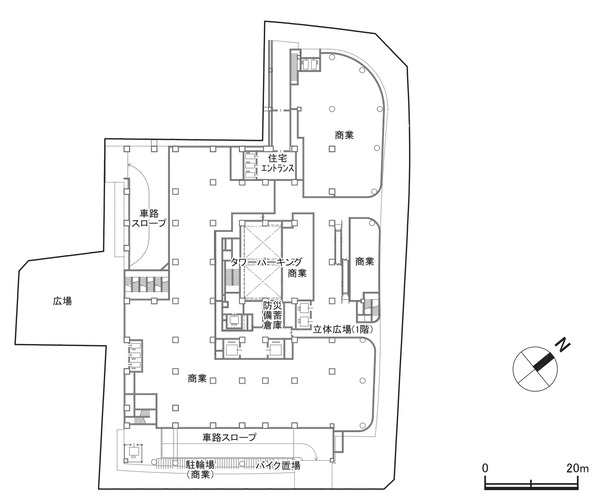
³Æ³¬Ê¿ÌÌ¿Þ(Ãϲ¼1³¬)[½Ðŵ¡§Àîºê»Ô]
¡¡Ãϲ¼1³¬¤ÏÃó¼Ö¾ì¤È¾¦¶È»ÜÀßÍѤÎÃóÎØ¾ì¤¬ÇÛÃÖ¤µ¤ì¤Þ¤¹¡£

³Æ³¬Ê¿ÌÌ¿Þ(1³¬)[½Ðŵ¡§Àîºê»Ô]
¡¡1³¬¤Ï¼ç¤Ë¾¦¶È»ÜÀߤȤʤꡢÀ¾Â¦¤Ë¤Ï¹¾ì¤âÇÛÃÖ¤µ¤ì¤Þ¤¹¡£

³Æ³¬Ê¿ÌÌ¿Þ(2³¬)[½Ðŵ¡§Àîºê»Ô]
¡¡2³¬¤ÏÊâ¹Ô¼Ô¥Ç¥Ã¥¤Ë¤è¤Ã¤ÆÅиͱؤËÀܳ¤¹¤ë¥Õ¥í¥¢¤Ç¾¦¶È»ÜÀߤ¬ÇÛÃÖ¤µ¤ì¤Þ¤¹¡£

³Æ³¬Ê¿ÌÌ¿Þ(3³¬)[½Ðŵ¡§Àîºê»Ô]
¡¡3³¬¤â¾¦¶È»ÜÀߤˤʤê¤Þ¤¹¡£

³Æ³¬Ê¿ÌÌ¿Þ(4³¬)[½Ðŵ¡§Àîºê»Ô]
¡¡4³¬¤Ï½»ÂðÍѤÎÃóÎØ¾ì¤È¤Ê¤ê¡¢°ìÉô¤Ï²°¾å¥Æ¥é¥¹¤ËÌ̤·¤¿¾¦¶È»ÜÀߤˤʤê¤Þ¤¹¡£

³Æ³¬Ê¿ÌÌ¿Þ(5³¬)[½Ðŵ¡§Àîºê»Ô]
¡¡5³¬¤Ï½»Âð¤Î¶¦ÍÑ¥Õ¥í¥¢¤Ë¤Ê¤ê¤Þ¤¹¡£¥í¥Ó¡¼¤ä¥é¥¦¥ó¥¸¡¢¥³¥ó¥·¥§¥ë¥¸¥å¥«¥¦¥ó¥¿¡¼¤¬¤³¤Î³¬¤ËÇÛÃÖ¤µ¤ì¤ë¤â¤Î¤È»×¤ï¤ì¤Þ¤¹¡£

³Æ³¬Ê¿ÌÌ¿Þ(6³¬)[½Ðŵ¡§Àîºê»Ô]
¡¡6³¬¤«¤é¤¬½»Âð¥Õ¥í¥¢¤Ë¤Ê¤ê¤Þ¤¹¡£

³Æ³¬Ê¿ÌÌ¿Þ(7¡Á37³¬)[½Ðŵ¡§Àîºê»Ô]
¡¡37³¬¤Þ¤Ç¤¬½»Âð¥Õ¥í¥¢¤Ç³Æ³¬¤Ë¥´¥ßÃÖ¾ì¤ÈËɺÒÈ÷ÃßÁҸˤ¬ÀßÃÖ¤µ¤ì¤Þ¤¹¡£

³Æ³¬Ê¿ÌÌ¿Þ(38³¬)[½Ðŵ¡§Àîºê»Ô]
¡¡38³¬¤Ï½»Âð¤Î¶¦ÍÑ»ÜÀߤˤʤê¤Þ¤¹¡£ÆîÅ즤ËÇÛÃÖ¤µ¤ì¤Æ¤¤¤ë¤¿¤áÅìµþÅÔ¿´ÊýÌ̤òį¤á¤é¤ì¤ë¥¹¥«¥¤¥é¥¦¥ó¥¸¤Ë¤Ê¤ë¤â¤Î¤È»×¤ï¤ì¤Þ¤¹¡£
°ÌÃÖ¿Þ

·×²èÃϼþÊÕ¿Þ[½Ðŵ¡§Àîºê»Ô]
¡¡·×²èÃϤϾ®Åĵ޾®Åĸ¶Àþ¡¦JRÆîÉðÀþ¡ÖÅÐ¸Í¡×±Ø¤ÎÆîÅ즤ǥڥǥ¹¥È¥ê¥¢¥ó¥Ç¥Ã¥¤Ç±ØÄ¾·ë¤È¤Ê¤ê¤Þ¤¹¡£Ë̦¤Ë¾¯¤·¹Ô¤¯¤È¿ËàÀ¤¢¤ëΩÃϤȤʤäƤ¤¤Þ¤¹¡£
¸½¶·

¡¡2023ǯ5·î30Æü¤ËÅиͱؤΥڥǥ¹¥È¥ê¥¢¥ó¥Ç¥Ã¥¤«¤é»£±Æ¤·¤¿¡Ö(²¾¾Î)ÅиͱØÁ°Ã϶è»Ô³¹ÃϺƳ«È¯»ö¶È¡×(ÃϾå38³¬¡¢ºÇ¹â¹â¤µÌó146m)¤Î·×²èÃϤǤ¹¡£

¡¡´û¸·úʪ¤Ï²òÂΤµ¤ì¹Âç¤Ê¹¹ÃϤˤʤäƤ¤¤Þ¤·¤¿¡£

¡¡ËÌÅ즤«¤é»£±Æ¡£¤¤¤ÄÃ幩¤·¤Æ¤â¤ª¤«¤·¤¯¤Ê¤µ¤½¤¦¤ÊÊ·°Ïµ¤¤Ç¤¹¤¬¡¢·úÃ۷ײè¤Î¤ªÃΤ餻¤ÎÃ幩ͽÄê¤Ï̤Äê¤È¤Ê¤Ã¤Æ¤¤¤Þ¤¹¡£

¡¡ÆîÅ즤«¤é»£±Æ¡£±ü¤Ë¸«¤¨¤Æ¤¤¤ë¤Î¤¬ÅиͱؤΥڥǥ¹¥È¥ê¥¢¥ó¥Ç¥Ã¥¤Ç¤¹¡£

¡¡Æî¦¤«¤é»£±Æ¡£

¡¡ÆîÀ¾Â¦¤«¤é»£±Æ¡£À¾Â¦¤Ïƻϩ¤Î³ÈÉý¹©»ö¤¬¹Ô¤ï¤ì¤Æ¤¤¤ë¤è¤¦¤Ë¸«¤¨¤Þ¤·¤¿¡£

¡¡ÅиͱØÁ°¤Ë¤Ï¤â¤¦°ì¥õ½ê¹¹ÃϤ¬¤Ç¤¤Æ¤¤¤Þ¤·¤¿¤¬¡¢¤³¤³¤ÏƱºÆ³«È¯¤Ë¤Ï´Þ¤Þ¤ì¤Ê¤¤¾ì½ê¤È¤Ê¤Ã¤Æ¤¤¤Þ¤¹¡£
ÃÏ¿Þ
ʪ·ï³µÍ×

¡¡·úÃ۷ײè¤Î¤ªÃΤ餻¤Ç¤¹¡£

¹©»ö¹©ÄøÉ½[½Ðŵ¡§Àîºê»Ô]
¡¡¹©´ü¤ÏÁ´ÂΤÇÌó42¥õ·î¤È¤Ê¤Ã¤Æ¤¤¤Þ¤¹¡£
¢£Êª·ï³µÍ×¢£
»ö¶È̾¡§(²¾¾Î)ÅиͱØÁ°Ã϶è»Ô³¹ÃϺƳ«È¯»ö¶È
½êºßÃÏ¡§¿ÀÆàÀÀîºê»Ô¿Ëà¶èÅиÍ90¡¢93¡¢94³¹¶è¤Î°ìÉô
¸òÄÌ¡§JRÆîÉðÀþ¡ÖÅи͡ױØ
¡¡¡¡¡¡¾®Åĵ޾®Åĸ¶Àþ¡ÖÅи͡ױØ
ÍÑÅÓ¡§¶¦Æ±½»Âð¡¢¾¦¶È»ÜÀß
Áí¸Í¿ô¡§Ìó450¸Í
³¬¿ô¡§ÃϾå38³¬¡¢Åã²°2³¬¡¢Ãϲ¼2³¬
¹â¤µ¡§Ìó140m(ºÇ¹â¹â¤µÌó146m)
¹½Â¤¡§Å´¹ü¡¦Å´¶Ú¥³¥ó¥¯¥ê¡¼¥È¤
ÉßÃÏÌÌÀÑ¡§Ìó5,950Ö
·úÃÛÌÌÀÑ¡§Ìó4,160Ö
±ä¾²ÌÌÀÑ¡§Ìó63,500֡ʽ»Âð¡§Ìó44,000Ö¡¢¾¦¶È¡§Ìó11,000Ö¡¢Ãó¼Ö¾ì¡§Ìó6,500Ö¡¢ÃóÎØ¾ì¡§Ìó2,000Ö¡Ë
·úÃۼ硧ÅиͱØÁ°Ã϶è»Ô³¹ÃϺƳ«È¯½àÈ÷Áȹç
»ö¶È¶¨Îϼԡ§ÅìµÞ¡¢ÅìµÞÉÔÆ°»º¡¢¾®ÅĵÞÅÅÅ´¡¢¾®ÅĵÞÉÔÆ°»º
Àß·×¼Ô¡§ÅìµÞÀß·×¥³¥ó¥µ¥ë¥¿¥ó¥È
»Ü¹©¼Ô¡§¡Ý
¹©´ü¡§2024ǯ11·îÃ幩¡Á2028ǯ1·î½×¹©Í½Äê
½Ðŵ
¢§Àîºê»Ô¡§ ´Ä¶±Æ¶Áɾ²Á¡Ê´Ä¶¥¢¥»¥¹¥á¥ó¥È¡Ë¡Ê2023ǯ3·î6Æü¡Ë
¡Ê²¾¾Î¡ËÅиͱØÁ°Ã϶è»Ô³¹ÃϺƳ«È¯»ö¶È¤Ë·¸¤ë¾òÎã´Ä¶±Æ¶Áɾ²Á½àÈ÷½ñµÚ¤ÓÍ×Ìó½ñ
¢¨ÎáÏÂ5ǯ3·î7Æü(²Ð)¤«¤éÎáÏÂ5ǯ4·î20Æü(ÌÚ)¤Þ¤Ç
- ¥«¥Æ¥´¥ê
- Àîºê»Ô







