
³°´Ñ´°À®Í½ÁÛ¿Þ[½Ðŵ¡§¸ø¼°HP]
¡¡½½»°¤Ç·úÀßÃæ¤Î¥¿¥ï¡¼¥Þ¥ó¥·¥ç¥ó¤Î̾¾Î¤¬¡Ö¥¸¥ª¥¿¥ï¡¼Âçºå½½»°¡×(ÃϾå39³¬¡¢¹â¤µÌó144m)¤Ë·èÄꤷ¡¢¸ø¼°HP¤¬³«Àߤµ¤ì¤¿¤³¤È¤¬Çä¼ç¤Ç¤¢¤ëºåµÞºå¿ÀÉÔÆ°»º¤è¤êȯɽ¤µ¤ì¤Þ¤·¤¿¡£Æ±¥¿¥ï¥Þ¥ó¤Ï¡Ö¤â¤ÈÍäÀî¶èÌò½êÀ×ÃÏÅù³èÍÑ»ö¶È¡×¤ÎÅìÉßÃϤ˰ÌÃÖ¤·¤Æ¤ª¤ê¡¢ÎÙ¤ÎÀ¾ÉßÃϤˤÏÃϾå9³¬¡¢¹â¤µÌó40m¤ÎÀìÌç³Ø¹»¤¬·úÀßÃæ¤Ç¤¹¡£¤³¤Îµ»ö¤Ç¤ÏƱ¥¿¥ï¥Þ¥ó¤Î³µÍפä·úÀß¾õ¶·¡¢ÃÏ¿ÞÅù¤òºÜ¤»¤Æ¤¤¤Þ¤¹¡£
¥¸¥ª¥¿¥ï¡¼Âçºå½½»°¤Ë¤Ä¤¤¤Æ

³°´Ñ´°À®Í½ÁÛ¿Þ[½Ðŵ¡§¸ø¼°HP]
¡¡¡Ö¥¸¥ª¥¿¥ï¡¼Âçºå½½»°¡×¤Ï¡Ö¤â¤ÈÍäÀî¶èÌò½êÀ×Ãϡפä¡Ö¤â¤È¿åÆ»¶É½½»°¥µ¡¼¥Ó¥¹¥¹¥Æ¡¼¥·¥ç¥óÍÑÃÏ¡×À×ÃϤκƳ«È¯¤Ç¡¢¡Ö¤â¤ÈÍäÀî¶èÌò½êÀ×ÃÏÅù³èÍÑ»ö¶È¡×¤È¤·¤ÆÅìÉßÃϤ˥¿¥ï¡¼¥Þ¥ó¥·¥ç¥ó¡¢À¾ÉßÃϤËÀìÌç³Ø¹»¤¬·úÀßÃæ¤Ç¤¹¡£
¡¡ÅìÉßÃϤ˷úÀߤµ¤ì¤ë¡Ö¥¸¥ª¥¿¥ï¡¼Âçºå½½»°¡×¤Îµ¬ÌϤÏÃϾå39³¬¡¢Ãϲ¼1³¬¡¢¹â¤µÌó144m¡¢ÉßÃÏÌÌÀÑ7,274.38Ö¡¢·úÃÛÌÌÀÑ4,472.53Ö¡¢±ä¾²ÌÌÀÑ8Ëü4490.71Ö¡¢Áí¸Í¿ô712¸Í¡¢·úÃۼ硦Çä¼ç¤ÏºåµÞºå¿ÀÉÔÆ°»º¡¢À߷׼Ԥϼ¯Åç·úÀß¡¢ÎàÀß·×¼¼¡¢»Ü¹©¼Ô¤Ï¼¯Å硦¹â¾¾¶¦Æ±´ë¶ÈÂΤÇ2026ǯ1·î½×¹©¡¢2026ǯ4·îÆþµï³«»ÏͽÄê¤È¤Ê¤Ã¤Æ¤¤¤Þ¤¹¡£¤Þ¤¿¡¢Æ±¥¿¥ï¥Þ¥ó¤ÎÉßÃϤÏ2091ǯ9·î30Æü¤Þ¤Ç¤Î°ìÈÌÄê´ü¼ÚÃϸ¢¤È¤Ê¤Ã¤Æ¤ª¤ê¡¢¤½¤ì¤Þ¤Ç¤Ë¹¹ÃϤˤ·¤ÆÊÖ´Ô¤¹¤ëɬÍפ¬¤¢¤ê¤Þ¤¹¡£
¡¡À¾ÉßÃϤ˷úÀߤµ¤ì¤ë³Ø¹»»ÜÀߤϡÖÍúÀµ¼Ò¹ñºÝ°åÎÅ¥¹¥Ý¡¼¥ÄÀìÌç³Ø¹»¡×¤Î¡Ö±ØÁ°¥¥ã¥ó¥Ñ¥¹¡×¤Ç¡¢µ¬ÌϤÏÃϾå9³¬¡¢¹â¤µÌó40m¡¢±ä¾²ÌÌÀÑ6,700Ö¡¢À߷׼ԤȻܹ©¼Ô¤Ï¹â¾¾·úÀߤÇ2024ǯ1·î½×¹©Í½Äê¤È¤Ê¤Ã¤Æ¤¤¤Þ¤¹¡£

1¡Á3³¬¥Õ¥í¥¢¥¤¥á¡¼¥¸¥¤¥é¥¹¥È[½Ðŵ¡§¸ø¼°HP]
¡¡¡Ö¥¸¥ª¥¿¥ï¡¼Âçºå½½»°¡×¤Î1³¬¤Ë¤Ï¥¹¡¼¥Ñ¡¼¥Þ¡¼¥±¥Ã¥È¤¬Æþ¤ëŹÊÞ¥¹¥Ú¡¼¥¹¤¬Àߤ±¤é¤ì¡¢2³¬¤Ë¤Ï¿Þ½ñ´Û¡ÊÂçºå»ÔΩ¿Þ½ñ´Û¤ÈÍúÀµ¼Ò¤¬±¿±Ä¤¹¤ë³Ø¹»¿Þ½ñ´Û¡Ë¤ÈÊݰ顦³ØÆ¸»ÜÀߤ¬ÇÛÃÖ¤µ¤ì¤Þ¤¹¡£3³¬¤Ï¥Þ¥ó¥·¥ç¥ó¶¦ÍÑÉô¤È¤Ê¤ê¡¢4³¬¤«¤é39³¬¤¬½»Âð¥Õ¥í¥¢¤Ë¤Ê¤ê¤Þ¤¹¡£

³°´Ñ´°À®Í½ÁÛ¿Þ[½Ðŵ¡§¸ø¼°HP]
¡¡ÄãÁØÉô¤Î´°À®Í½ÁۿޤǤ¹¡£¼êÁ°¤Ë¤ÏÃϰè¸òή¤Î¾ì¤È¤·¤Æ³èÍѤǤ¤ëÌó2,400֤θø³«¶õÃϤ¬À°È÷¤µ¤ì¤Þ¤¹¡£½»Âð¤Î¥¨¥ó¥È¥é¥ó¥¹¤Ï¿Þ¤Î±¦Â¦¤ÎÊý¤ËÇÛÃÖ¤µ¤ì¤Þ¤¹¡£

¥¨¥ó¥È¥é¥ó¥¹´°À®Í½ÁÛ¿Þ[½Ðŵ¡§¸ø¼°HP]
¡¡¥¨¥ó¥È¥é¥ó¥¹¤Î´°À®Í½ÁۿޤǤ¹¡£

¥¬¡¼¥Ç¥ó´°À®Í½ÁÛ¿Þ[½Ðŵ¡§¸ø¼°HP]
¡¡3³¬¤Ë¤Ï¥ª¡¼¥Ê¡¼¥º¥¬¡¼¥Ç¥ó¤¬ÀßÃÖ¤µ¤ì¤Þ¤¹¡£

¥²¥¹¥È¥ë¡¼¥à´°À®Í½ÁÛ¿Þ[½Ðŵ¡§ºåµÞºå¿ÀÉÔÆ°»º]
¡¡¥²¥¹¥È¥ë¡¼¥à¤ÏºåµÞºå¿À¥Û¥Æ¥ë¥º¤¬´Æ½¤¤·¤Þ¤¹¡£

¥ï¡¼¥¯¥¹¥Ú¡¼¥¹´°À®Í½ÁÛ¿Þ[½Ðŵ¡§ºåµÞºå¿ÀÉÔÆ°»º]
¡¡¥ï¡¼¥¯¥¹¥Ú¡¼¥¹¤ÏºåµÞºå¿ÀÉÔÆ°»º¤Î¥ª¥Õ¥£¥¹»ö¶È¤Î¥Î¥¦¥Ï¥¦¤ò³è¤«¤·¤¿¶õ´Ö¤Ë¤Ê¤ê¤Þ¤¹¡£

³°´Ñ´°À®Í½ÁÛ¿Þ[½Ðŵ¡§¸ø¼°HP]
¡¡¹âÁØÉô¤Î´°À®Í½ÁۿޤǤ¹¡£¤¹¤°¶á¤¯¤Ë¤ÏÍäÀ¤¢¤ë¤¿¤á²Ö²ÐÂç²ñ¤âÆÃÅùÀʤǸ«¤ë¤³¤È¤¬¤Ç¤¤Þ¤¹¡£

¡¡·úÃ۷ײè¤Î¤ªÃΤ餻¤ÎÇÛÃֿޤǤ¹¡£

¡¡·úÃ۷ײè¤Î¤ªÃΤ餻¤ÎΩÌ̿ޤǤ¹¡£
´Ö¼è¤ê¿Þ

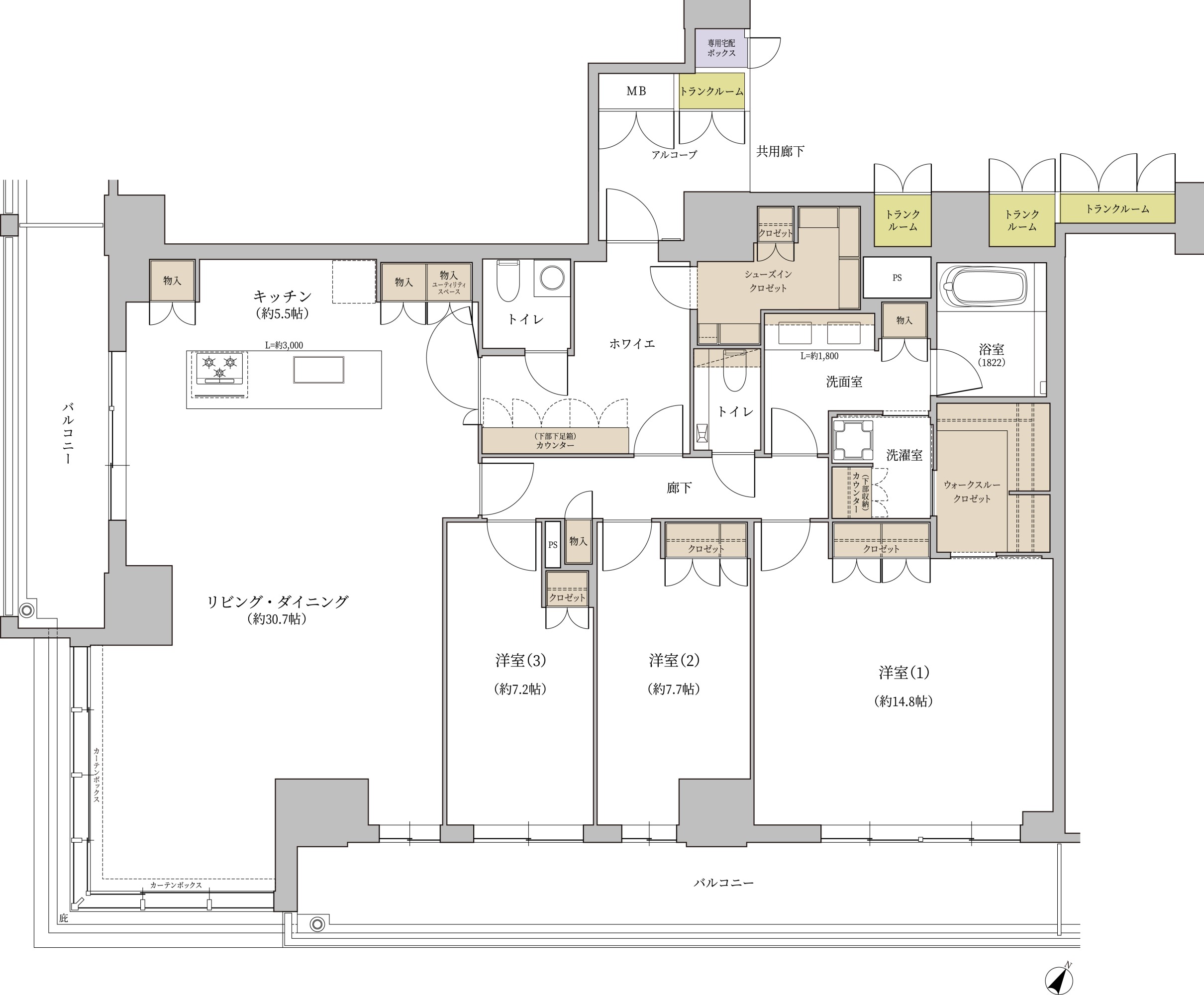
Ê¿ÌÌ¿Þ[½Ðŵ¡§¸ø¼°HP]
¡¡½»Âð¥Õ¥í¥¢¤ÎÊ¿Ì̿ޤǤ¹¡£4¡Á11³¬¤¬¥¢¡¼¥Ð¥ó¥Õ¥í¥¢¡¢12¡Á26³¬¤¬¥¹¡¼¥Ú¥ê¥¢¥Õ¥í¥¢¡¢27¡Á38³¬¤¬¥¨¥°¥¼¥¯¥Æ¥£¥Ö¥Õ¥í¥¢¡¢¤½¤·¤ÆºÇ¾å³¬¤Î39³¬¤¬¥×¥ì¥ß¥¢¥à¥Õ¥í¥¢¤È¤Ê¤Ã¤Æ¤¤¤Þ¤¹¡£
¡¡ÈÎÇ䳫»Ï¤Ï2024ǯ1·îͽÄê¤Ç¡¢´Ö¼è¤ê¤Ï1LDK¡Á3LDK¡¢ÀìÍÌÌÀѤÏ42.87Ö¡Á163.82Ö¡¢¥Ð¥ë¥³¥Ë¡¼ÌÌÀѤÏ7.48Ö¡Á33.23Ö¡¢¥µ¡¼¥Ó¥¹¥¹¥Ú¡¼¥¹ÌÌÀѤÏ2.38Ö¡Á2.61֤Ȥʤê¤Þ¤¹¡£´Ö¼è¤ê¿Þ¤ò¸«¤ë¤ÈÁ´¸Í¤ËÀìÍÑÂðÇۥܥ寥¹¤¬ÀßÃÖ¤µ¤ì¤ë¤è¤¦¤Ç¤¹¡£

SM¥¿¥¤¥×[½Ðŵ¡§¸ø¼°HP]
¡¡°ìÈÖ¶¹¤¤SM¥¿¥¤¥×¤Î´Ö¼è¤ê¿Þ¤Ç¤¹¡£´Ö¼è¤ê¤Ï1LDK¡¢ÀìÍÌÌÀѤÏ42.87Ö¡¢¥Ð¥ë¥³¥Ë¡¼ÌÌÀѤÏ7.61֤ǥ¹¡¼¥Ú¥ê¥¢¥Õ¥í¥¢¤ËÇÛÃÖ¤µ¤ì¤Þ¤¹¡£

SP¥¿¥¤¥×[½Ðŵ¡§¸ø¼°HP]
¡¡SP¥¿¥¤¥×¤Î´Ö¼è¤ê¿Þ¤Ç¤¹¡£´Ö¼è¤ê¤Ï2LDK¡¢ÀìÍÌÌÀѤÏ69.01Ö¡¢¥Ð¥ë¥³¥Ë¡¼ÌÌÀѤÏ12.09֤ǥ¹¡¼¥Ú¥ê¥¢¥Õ¥í¥¢¤ËÇÛÃÖ¤µ¤ì¤Þ¤¹¡£

PA¥¿¥¤¥×[½Ðŵ¡§¸ø¼°HP]
¡¡°ìÈÖ¹¤¤PA¥¿¥¤¥×¤Î´Ö¼è¤ê¿Þ¤Ç¤¹¡£´Ö¼è¤ê¤Ï3LDK¡¢ÀìÍÌÌÀѤÏ163.82Ö¡¢¥Ð¥ë¥³¥Ë¡¼ÌÌÀѤÏ31.71֤ǺǾ峬¤Î¥×¥ì¥ß¥¢¥à¥Õ¥í¥¢¤ËÇÛÃÖ¤µ¤ì¤Þ¤¹¡£
°ÌÃÖ¿Þ

°ÌÃÖ¿Þ[½Ðŵ¡§¸ø¼°HP]
¡¡·úÀßÃϤϺåµÞ¡Ö½½»°¡×±Ø¤ÈÍäÀî¤Î´Ö¤ÇÍäÀîÄ̤ËÌ̤·¤¿¾ì½ê¤È¤Ê¤Ã¤Æ¤¤¤Þ¤¹¡£½½»°±Ø¤Ï¿À¸ÍËÜÀþ¡¢ÊõÄÍËÜÀþ¡¢µþÅÔËÜÀþ¤Î3Ï©Àþ¤Î·ëÀáÅÀ¤È¤Ê¤Ã¤Æ¤ª¤ê¡¢¾ÍèŪ¤Ë¤Ï¡Ö¤Ê¤Ë¤ï¶ÚÏ¢ÍíÀþ¡×¡Ö¿·ÂçºåÏ¢ÍíÀþ¡×¤Î¿·Àþ¤â·×²è¤µ¤ì¤Æ¤¤¤Þ¤¹¡£¤Á¤Ê¤ß¤Ë¡Ö½½»°¡×¤È½ñ¤¤¤Æ¡Ö¤¸¤å¤¦¤½¤¦¡×¤ÈÆÉ¤ß¤Þ¤¹¡£

°ÌÃÖ¿Þ[½Ðŵ¡§¸ø¼°HP]
¡¡½½»°±Ø¤«¤éÂçºåÇßÅĤޤǤÏ2±Ø¤È¤Ê¤Ã¤Æ¤¤¤Þ¤¹¡£

³°´Ñ´°À®Í½ÁÛ¿Þ[½Ðŵ¡§¸ø¼°HP]
¡¡ÂçºåÅÔ¿´ÊýÌ̤ȤÏÍäÀî¤ò¶´¤à¤³¤È¤â¤¢¤ê¡¢¤Û¤ÉÎɤ¤µ÷Î¥´¶¤ÇÇßÅĤʤɤÎ͹âÁإӥ뷲¤ò˾¤à¤³¤È¤¬¤Ç¤¤ëΩÃϤȤʤäƤ¤¤Þ¤¹¡£
·úÀß¾õ¶·

¡¡ºòǯ¤Î2022ǯ12·î8Æü¤ËÍäÀîÄ̤ê±è¤¤¤ÎËÌÀ¾Â¦¤«¤é»£±Æ¤·¤¿¡Ö¥¸¥ª¥¿¥ï¡¼Âçºå½½»°¡×(ÃϾå39³¬¡¢¹â¤µÌó144m)¤Î·úÀßÃϤǤ¹¡£

¡¡ËÌÅ즤«¤é»£±Æ¡£³ÑÃϤÎÃó¼Ö¾ì¤ÏƱºÆ³«È¯¤Ë¤Ï´Þ¤Þ¤ì¤Æ¤¤¤Þ¤»¤ó¡£

¡¡ÆîÅ즤«¤é»£±Æ¡£·úÀßÃϤϡֵìÍäÀî¶èÌò½ê¡×¤ÎÀ×ÃϤǤ¹¡£

¡¡ÆîÀ¾Â¦¤«¤é»£±Æ¡£¤³¤³¤Ï2091ǯ9·î30Æü¤Þ¤Ç¤Î°ìÈÌÄê´ü¼ÚÃϸ¢¤¬ÀßÄꤵ¤ì¤Æ¤¤¤ë¤¿¤á¡¢¤³¤³¤Ë¥¿¥ï¡¼¥Þ¥ó¥·¥ç¥ó¤¬·úÀߤµ¤ì¤Æ¤â¤½¤ì¤Þ¤Ç¤Ë¤Ï¹¹ÃϤËÌá¤ê¤Þ¤¹¡£

¡¡ÆîÅ즤«¤é»£±Æ¤·¤¿ÍúÀµ¼Ò¹ñºÝ°åÎÅ¥¹¥Ý¡¼¥ÄÀìÌç³Ø¹»¤È¤Ê¤ë¡Ö(²¾¾Î)Âçºå»ÔÍäÀî¶è½½»°Åì·×²è À¾ÉßÃÏ¡×(ÃϾå9³¬¡¢¹â¤µÌó40m)¤Î·úÀßÃϤǤ¹¡£
ÃÏ¿Þ
ʪ·ï³µÍסÊÅìÉßÃÏ¡Ë

¡¡·úÃ۷ײè¤Î¤ªÃΤ餻¤Ç¤¹¡£
¢£Êª·ï³µÍ×¢£
̾¾Î¡§¥¸¥ª¥¿¥ï¡¼Âçºå½½»°
»ö¶È̾¡§(²¾¾Î)Âçºå»ÔÍäÀî¶è½½»°Åì·×²è ÅìÉßÃÏ
½êºßÃÏ¡§ÂçºåÉÜÂçºå»ÔÍäÀî¶è½½»°Åì1ÃúÌÜ21ÈÖ3¾¡ÊÃÏÈÖ¡Ë
¸òÄÌ¡§ºåµÞ¿À¸ÍËÜÀþ¡¦ÊõÄÍËÜÀþ¡¦µþÅÔËÜÀþ¡Ö½½»°¡×±Ø ÅÌÊâ3ʬ
ÍÑÅÓ¡§½¸¹ç½»Âð(ʬ¾ù)¡¢Å¹ÊÞ¡¢»ÔΩ¿Þ½ñ´Û¡¢³Ø¹»¿Þ½ñ´Û¡¢Í¹Êضɡ¢Êݰ顦³ØÆ¸»ÜÀß¡¢Ì±±ÄÃóÎØ¾ì¡¢»ö̳½ê
Áí¸Í¿ô¡§712¸Í¡Ê¤¦¤ÁÈóʬ¾ù½»¸Í1¸Í´Þ¤à¡Ë
³¬¿ô¡§ÃϾå39³¬¡¢Ãϲ¼1³¬
¹â¤µ¡§Ìó144m
¹½Â¤¡§Å´¶Ú¥³¥ó¥¯¥ê¡¼¥È¤¡Ê°ìÉôÅ´¹ü¤¡Ë¡¢À©¸æÁØÀ©¿Ì¹½Â¤
ÉßÃÏÌÌÀÑ¡§7,274.38Ö
·úÃÛÌÌÀÑ¡§4,472.53Ö
±ä¾²ÌÌÀÑ¡§84,490.71Ö
·úÃۼ硧ºåµÞºå¿ÀÉÔÆ°»º
Çä¼ç¡§ºåµÞºå¿ÀÉÔÆ°»º
Àß·×¼Ô¡§¼¯Åç·úÀß¡¢ÎàÀß·×¼¼
»Ü¹©¼Ô¡§¼¯Å硦¹â¾¾·úÀß
¹©´ü¡§2022ǯ8¾å½ÜÃ幩¡Á2026ǯ1·î½×¹©Í½Äê
Æþµï¡§2026ǯ4·îͽÄê
¼ÚÃϸ¢¡§°ìÈÌÄê´ü¼ÚÃϸ¢(ž¼ÚÃϸ¢)¡¢°úÅÏÆü¤è¤ê2091ǯ9·î30Æü¤Þ¤Ç(¼ÚÃÏ´ü´Ö¤Ë¤Ï·úʪ²òÂδü´Ö´Þ¤à)
½Ðŵ
¢§¸ø¼°HP¡§¥¸¥ª¥¿¥ï¡¼Âçºå½½»°
https://geo.8984.jp/mansion/osaka13/
¢§ºåµÞºå¿ÀÉÔÆ°»º¡§¥Ë¥å¡¼¥¹¥ê¥ê¡¼¥¹¡Ê2023ǯ6·î6Æü¡Ë
º£¸å¤ÎȯŸ¤¬´üÂÔ¤µ¤ì¤ë½½»°¤Ç¡¢ ½¸¹ç½»Â𡢿޽ñ´Û¡¢Êݰ顦³ØÆ¸¡¢¾¦¶È¡¢³Ø¹»Åù¤ÎÊ£¹ç³«È¯¡£ ͹âÁØ¥¿¥ï¡¼¥ì¥¸¥Ç¥ó¥¹ Áí£·£±£²¸Í¡£ ¡Ö¥¸¥ª¥¿¥ï¡¼Âçºå½½»°¡×»Ïư £²£°£²£³Ç¯£¶·î£¶Æü¡Ê²Ð¡Ë ¥ª¥Õ¥£¥·¥ã¥ë¥µ¥¤¥È³«Àß
- ¥«¥Æ¥´¥ê
- Âçºå»Ô







