
¡¡ÀéÍեѥ륳À×ÃϤǷúÀßÃæ¤Î¥¿¥ï¡¼¥Þ¥ó¥·¥ç¥ó¡Ö¥¨¥¯¥»¥ì¥ó¥È ¥¶ ¥¿¥ï¡¼¡×(ÃϾå31³¬¡¢¹â¤µ107.34m)¤Ç¤¹¡£2023ǯ5·î12Æü¤Ë»£±Æ¤·¤Þ¤·¤¿¡£¿·ÆüËÜ·úÀßÅù¤Ë¤è¤ëʬ¾ù¥¿¥ï¥Þ¥ó¤ÇºÇ¾å³¬¤Þ¤Ç㤷¤Æ¤¤¤Þ¤¹¡£¤³¤Îµ»ö¤Ç¤ÏƱ¥¿¥ï¥Þ¥ó¤Î³µÍפä·úÀß¾õ¶·¡¢ÃÏ¿ÞÅù¤òºÜ¤»¤Æ¤¤¤Þ¤¹¡£
¥¨¥¯¥»¥ì¥ó¥È ¥¶ ¥¿¥ï¡¼¤Ë¤Ä¤¤¤Æ

³°´Ñ´°À®Í½ÁÛCG[½Ðŵ¡§¸ø¼°HP]
¡¡¡Ö¥¨¥¯¥»¥ì¥ó¥È ¥¶ ¥¿¥ï¡¼¡×¤ÏÀéÍեѥ륳À×ÃϤ˷úÀßÃæ¤Îʬ¾ù¤Î¥¿¥ï¡¼¥Þ¥ó¥·¥ç¥ó¤Ç¡¢µ¬ÌϤÏÃϾå31³¬¡¢¹â¤µ107.34m¡¢ÉßÃÏÌÌÀÑ3,877.67Ö¡¢·úÃÛÌÌÀÑ2,645.07Ö¡¢±ä¾²ÌÌÀÑ4Ëü1999.63Ö¡¢Áí¸Í¿ô397¸Í¡¢Çä¼ç¤Ï¿·ÆüËÜ·úÀß¡¢Ãæ±ûÆüËÜÅÚÃÏ·úʪ¡¢¤¢¤Ê¤Ö¤¥Û¡¼¥à¥é¥¤¥Õ¡¢Ä¹Ã«¹©¥³¡¼¥Ý¥ì¡¼¥·¥ç¥ó¡¢ÅìÊýÃϽꡢÀß·×¼Ô¤ÏĹ빩¥³¡¼¥Ý¥ì¡¼¥·¥ç¥ó¡¢»Ü¹©¼Ô¤ÏĹ빩¡¦¿·ÆüËܶ¦Æ±´ë¶ÈÂΤÇ2023ǯ12·îÃæ½Ü½×¹©¡¢2024ǯ2·î²¼½ÜÆþµï³«»ÏͽÄê¤È¤Ê¤Ã¤Æ¤¤¤Þ¤¹¡£
¡¡¸½ºß¤Ï15¸Í¤¬ÀèÃå½çÈÎÇäÃæ¤Ç´Ö¼è¤ê¤Ï1LDK¡Á3LDK¡¢ÀìÍÌÌÀѤÏ32.44Ö¡Á73.52Ö¡¢ÈÎÇä²Á³Ê¤Ï3138Ëü±ß¡Á6698Ëü±ß¤È¤Ê¤Ã¤Æ¤ª¤ê¡¢5·î²¼½Ü¤«¤é¤ÏÂè5´ü2¼¡¤ÎÈÎÇ䳫»ÏͽÄê¤È¤Ê¤Ã¤Æ¤¤¤Þ¤¹¡£

³°´Ñ´°À®Í½ÁÛCG[½Ðŵ¡§¸ø¼°HP]
¡¡±¦¤ÎÄ㤤Åï¤Ï¿·ÆüËÜ·úÀߤˤè¤ëÄÂÂߥޥ󥷥ç¥ó¤Î¡Ö¥¨¥¯¥»¥ì¥ó¥È¥»¥ó¥¿¡¼¥Ó¥ë¡×(ÃϾå13³¬¡¢¹â¤µ48.63m¡¢±ä¾²ÌÌÀÑ3,947.05Ö)¤Ç¡Ö¥¨¥¯¥»¥ì¥ó¥È ¥¶ ¥¿¥ï¡¼¡×¤ÈƱ¤¸¥Ç¥¶¥¤¥ó¤Ë¤Ê¤Ã¤Æ¤¤¤Þ¤¹¡£

³°´Ñ´°À®Í½ÁÛCG[½Ðŵ¡§¸ø¼°HP]
¡¡Ë̦¤Ë¤¢¤ë¡ÖÀéÍÕ»ÔÃæ±û¸ø±à¡×¦¤«¤é¸«¤¿´°À®Í½ÁۿޤǤ¹¡£Î¾Åï¤È¤âÄãÁØÉô¤Ï¾¦¶È»ÜÀߤˤʤê¤Þ¤¹¡£

³µÇ°¿Þ¥¤¥é¥¹¥È[½Ðŵ¡§¸ø¼°HP]
¡¡¥Õ¥í¥¢¹½À®¤Ï1¡¢2³¬¤¬¾¦¶È»ÜÀß¡¢3³¬¤¬¶¦ÍÑ»ÜÀß¥Õ¥í¥¢¡Ê¥Ñ¡¼¥Æ¥£¥ë¡¼¥à¡¢¥é¥¤¥Ö¥é¥ê¡¼¡¢¥Õ¥£¥Ã¥È¥Í¥¹¥ë¡¼¥à¡¢¥¥Ã¥º¥ë¡¼¥à¤Ê¤É¡Ë¡¢4³¬¤Ë¤Ï¥²¥¹¥È¥ë¡¼¥à¤¬2Éô²°ÇÛÃÖ¤µ¤ì¡¢4³¬°Ê¾å¤¬½»Âð¥Õ¥í¥¢¤È¤Ê¤ê¡¢²°¾å¤Ë¤Ï¶¦ÍÑ»ÜÀߤȤ·¤Æ¥¹¥«¥¤¥Æ¥é¥¹¤¬ÀßÃÖ¤µ¤ì¤Þ¤¹¡£
¡¡½»Âð¥Õ¥í¥¢¤Î4³¬¡Á29³¬¤¬¥¨¥°¥¼¥¯¥Æ¥£¥Ö¥Õ¥í¥¢¤ÇÀìÍÌÌÀÑ32.44Ö(1LDK)¡Á73.52Ö(3LDK)¤ÎÉô²°¤¬ÍѰդµ¤ì¡¢ºÇ¾åÉô¤Î30³¬¡¢31³¬¤¬¥×¥ì¥ß¥¢¥à¥Õ¥í¥¢¤ÇÀìÍÌÌÀÑ83.59Ö(3LDK)¡Á101.54Ö(4LDK)¤ÎÉô²°¤¬ÍѰդµ¤ì¤Þ¤¹¡£

¼Ö´ó¤»´°À®Í½ÁÛCG[½Ðŵ¡§¸ø¼°HP]
¡¡Æî¦¤ÎÏ©ÃϤËÌ̤·¤¿¾ì½ê¤Ë¤Ï¡¢¼Ö´ó¤»¤äÃó¼Ö¾ì¤Î½ÐÆþ¸ý¤¬ÀßÃÖ¤µ¤ì¤Þ¤¹¡£

¥¨¥ó¥È¥é¥ó¥¹´°À®Í½ÁÛCG[½Ðŵ¡§¸ø¼°HP]
¡¡·úÀßÃϤÎÀ¾Â¦¤Ë¤ÏÀéÍÕÅÔ»Ô¥â¥Î¥ì¡¼¥ë1¹æÀþ¡ÖèÓÀî¸ø±à¡×±Ø¤¬¤¢¤ê¡¢¤½¤Î±Ø¤Ë¶á¤¤¾ì½ê¤Ë¥¨¥ó¥È¥é¥ó¥¹¤¬ÀßÃÖ¤µ¤ì¤Þ¤¹¡£½ÄŤÎÇò¤¤ÏȤ¬¤¢¤ëÊý¤¬½»Â𥨥ó¥È¥é¥ó¥¹¤Ç¡¢¤½¤Îº¸Â¦¤Ï¾¦¶È»ÜÀߤˤʤê¤Þ¤¹¡£

¥¨¥ó¥È¥é¥ó¥¹¥é¥¦¥ó¥¸´°À®Í½ÁÛCG[½Ðŵ¡§¸ø¼°HP]
¡¡3³¬¤ËÇÛÃÖ¤µ¤ì¤ë¥¨¥ó¥È¥é¥ó¥¹¥é¥¦¥ó¥¸¤Ç¤¹¡£

¥Ñ¡¼¥Æ¥£¥ë¡¼¥à´°À®Í½ÁÛCG[½Ðŵ¡§¸ø¼°HP]
¡¡3³¬¤ËÇÛÃÖ¤µ¤ì¤ë¥Ñ¡¼¥Æ¥£¥ë¡¼¥à¤Ç¤¹¡£¤³¤³¤«¤é¤ÏË̦¤Ë¤¢¤ë¡ÖÀéÍÕ»ÔÃæ±û¸ø±à¡×¤ò˾¤à¤³¤È¤¬¤Ç¤¤Þ¤¹¡£

¥¥Ã¥º¥ë¡¼¥à´°À®Í½ÁÛCG[½Ðŵ¡§¸ø¼°HP]
¡¡Â¾¤Ë¤â¥é¥¤¥Ö¥é¥ê¡¼¡¢¥Õ¥£¥Ã¥È¥Í¥¹¥ë¡¼¥à¡¢¥¥Ã¥º¥ë¡¼¥à¤È¤¤¤Ã¤¿¶¦ÍÑ»ÜÀߤ¬3³¬¤ËÇÛÃÖ¤µ¤ì¤Þ¤¹¡£
´Ö¼è¤ê

I1¥¿¥¤¥×[½Ðŵ¡§¸ø¼°HP]
¡¡¥¨¥°¥¼¥¯¥Æ¥£¥Ö¥Õ¥í¥¢¤ËÇÛÃÖ¤µ¤ì¤ëI1¥¿¥¤¥×¤Î´Ö¼è¤ê¿Þ¤Ç¤¹¡£´Ö¼è¤ê¤Ï1LDK¡¢ÀìÍÌÌÀѤÏ32.44Ö¡¢¥Ð¥ë¥³¥Ë¡¼ÌÌÀÑ6.38֤ȤʤäƤ¤¤Þ¤¹¡£

D¥¿¥¤¥×[½Ðŵ¡§¸ø¼°HP]
¡¡¥¨¥°¥¼¥¯¥Æ¥£¥Ö¥Õ¥í¥¢¤ËÇÛÃÖ¤µ¤ì¤ëD¥¿¥¤¥×¤Î´Ö¼è¤ê¿Þ¤Ç¤¹¡£´Ö¼è¤ê¤Ï2LDK+S+2MC+SIC+N¡¢ÀìÍÌÌÀѤÏ65.20Ö¡¢¥Ð¥ë¥³¥Ë¡¼ÌÌÀÑ11.28֤ȤʤäƤ¤¤Þ¤¹¡£

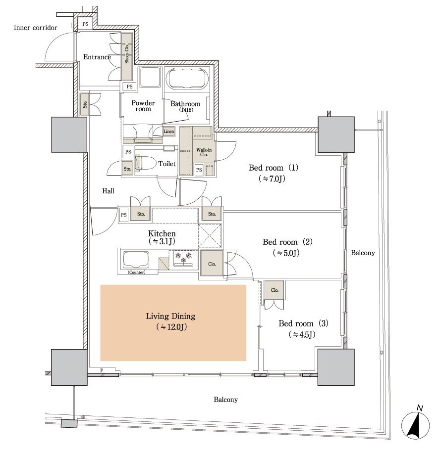
H¥¿¥¤¥×[½Ðŵ¡§¸ø¼°HP]
¡¡¥¨¥°¥¼¥¯¥Æ¥£¥Ö¥Õ¥í¥¢¤ËÇÛÃÖ¤µ¤ì¤ëH¥¿¥¤¥×¤Î´Ö¼è¤ê¿Þ¤Ç¤¹¡£´Ö¼è¤ê¤Ï3LDK+WIC¡¢ÀìÍÌÌÀѤÏ73.52Ö¡¢¥Ð¥ë¥³¥Ë¡¼ÌÌÀÑ25.86֤ȤʤäƤ¤¤Þ¤¹¡£
°ÌÃÖ¿Þ

°ÌÃÖ¿Þ[½Ðŵ¡§¸ø¼°HP]
¡¡¾ì½ê¤ÏÀéÍÕÅÔ»Ô¥â¥Î¥ì¡¼¥ë1¹æÀþ¡ÖèÓÀî¸ø±à¡×±Ø¤ÎÌܤÎÁ°¤ÇÅÌÊâ2ʬ¤È¤Ê¤Ã¤Æ¤¤¤Þ¤¹¡£µþÀ®ÀéÍÕÀþ¡¦À鸶Àþ¡ÖÀéÍÕÃæ±û¡×±Ø¤¬ÅÌÊâ5ʬ¡¢JR¡ÖÀéÍաױؤÏÅÌÊâ9ʬ¤È¤Ê¤Ã¤Æ¤¤¤ë¤¿¤áÊ£¿ô¤Î±Ø¡¦Ï©Àþ¤¬ÍøÍѲÄǽ¤Ç¤¹¡£
·úÀß¾õ¶·

¡¡2023ǯ5·î12Æü¤ËÀéÍÕ±ØÊýÌ̤ȤʤëËÌÀ¾Â¦¤«¤é»£±Æ¤·¤¿¡Ö¥¨¥¯¥»¥ì¥ó¥È ¥¶ ¥¿¥ï¡¼¡×(ÃϾå31³¬¡¢¹â¤µ107.34m)¤Ç¤¹¡£¼êÁ°¤ÏÄÂÂߥޥ󥷥ç¥ó¤Î¡Ö¥¨¥¯¥»¥ì¥ó¥È¥»¥ó¥¿¡¼¥Ó¥ë¡×(ÃϾå13³¬¡¢¹â¤µ48.63m)¤Ç¤¹¡£

¡¡¡Ö¥¨¥¯¥»¥ì¥ó¥È¥»¥ó¥¿¡¼¥Ó¥ë¡×¤Î1¡Á4³¬¤ÏŹÊÞ¥¹¥Ú¡¼¥¹¤Ç1³¬¤Ë¤Ï¥»¥Ö¥ó¥¤¥ì¥Ö¥ó¤¬¥ª¡¼¥×¥ó¤·¤Æ¤¤¤Þ¤¹¡£

¡¡À¾Â¦¤«¤é»£±Æ¤·¤¿¡Ö¥¨¥¯¥»¥ì¥ó¥È ¥¶ ¥¿¥ï¡¼¡×¤Ç¤¹¡£

¡¡ºÇ´ó±Ø¤È¤Ê¤ëÀéÍÕÅÔ»Ô¥â¥Î¥ì¡¼¥ë1¹æÀþ¡ÖèÓÀî¸ø±à¡×±Ø¤Ë°ìÈֶᤤÀ¾Â¦Éôʬ¤Ë¥¨¥ó¥È¥é¥ó¥¹¤¬ÀßÃÖ¤µ¤ì¤Þ¤¹¡£

¡¡Æî¦¤«¤é»£±Æ¡£¤³¤Á¤é¦¤Ë¤ÏÃó¼Ö¾ì¤Î½ÐÆþ¸ý¤ä¼Ö´ó¤»¤¬ÀßÃÖ¤µ¤ì¤Þ¤¹¡£

¡¡ÆîÅ즤«¤é»£±Æ¡£¤³¤Á¤é¤Ë¤Ï¥¿¥ï¡¼¥Ñ¡¼¥¥ó¥°¤¬·úÀߤµ¤ì¤Þ¤¹¡£Ãó¼Ö¾ì¤Ï¥¿¥ï¡¼¥Ñ¡¼¥¥ó¥°124Âæ¡¢ÃϾå3Ãʲ£¹Ô¾º¹ß¼°7Âæ¡¢¿È¾ã¼ÔÍÑÃó¼Ö¾ì1Âæ¤Ç·î³Û»ÈÍÑÎÁ¤Ï18,000±ß¡Á28,000±ß¤È¤Ê¤Ã¤Æ¤¤¤Þ¤¹¡£

¡¡ËÌÅ즤«¤é»£±Æ¡£ÉßÃϤϻÍÊý¤Îƻϩ¤ËÀÜÆ»¤·¤Æ¤¤¤Þ¤¹¤¬¡¢³ÑÃϤϴޤޤʤ¤½½»ú·¿¤ÎÉßÃϤˤʤäƤ¤¤Þ¤¹¡£

¡¡Ë̦¤Ë¤¢¤ë¡ÖÀéÍÕ»ÔÃæ±û¸ø±à¡×Æâ¤«¤é»£±Æ¡£

¡¡¤³¤Î¸ø±à¤Ç¤Ï¥¤¥Ù¥ó¥È¤¬³«ºÅ¤µ¤ì¤ë¤³¤È¤â¤¢¤ê¡¢¥¢¥¤¥É¥ë¤¬¥é¥¤¥Ö¤ò¤·¤Æ¤¤¤ë¤È¤³¤í¤ò¸«¤¿¤³¤È¤â¤¢¤ë¤Î¤Ç¤¦¤ë¤µ¤¤½µËö¤â¤¢¤ê¤½¤¦¤Ç¤¹¡£

¡¡Ë̦¤«¤é»£±Æ¡£±¦±ü¤Ë¸«¤¨¤Æ¤¤¤ë¥¿¥ï¡¼¥Þ¥ó¥·¥ç¥ó¤Ï¡ÖÀéÍÕ¥»¥ó¥È¥é¥ë¥¿¥ï¡¼¡×(ÃϾå43³¬¡¢¹â¤µ151.5m)¤ÇÀéÍձإ¨¥ê¥¢¤Ç¤Ï1Èֹ⤤¥¿¥ï¡¼¥Þ¥ó¥·¥ç¥ó¤Ç¤¹¡£

¡¡ÀéÍձؤ˷Ҥ¬¤ëÀéÍÕ±ØÁ°ÂçÄ̤꤫¤éÀéÍÕÅÔ»Ô¥â¥Î¥ì¡¼¥ë1¹æÀþ¤È°ì½ï¤Ë»£±Æ¤·¤¿¡Ö¥¨¥¯¥»¥ì¥ó¥È ¥¶ ¥¿¥ï¡¼¡×¤Ç¤¹¡£¸Ä¿ÍŪ¤Ë¹¥¤¤Ê1Ëç¤Ç¤¹¡£
ÃÏ¿Þ
ʪ·ï³µÍ×

¡¡·úÃ۷ײè¤Î¤ªÃΤ餻¤Ç¤¹¡£
¢£Êª·ï³µÍ×¢£
̾¾Î¡§¥¨¥¯¥»¥ì¥ó¥È ¥¶ ¥¿¥ï¡¼
²¾¾Î¡§¥¨¥¯¥»¥ì¥ó¥È¥¿¥ï¡¼·×²è
·×²è̾¡§(²¾¾Î)ÀéÍÕ»ÔÃæ±û¶è2ÃúÌܷײ迷ÃÛ¹©»ö
½êºßÃÏ¡§ÀéÍÕ¸©ÀéÍÕ»ÔÃæ±û¶èÃæ±û£²ÃúÌÜ3ÈÖ3¾11É®
¸òÄÌ¡§JRÀþ¡ÖÀéÍÕ¡×±Ø ÅÌÊâ9ʬ
¡¡¡¡¡¡ÀéÍÕÅÔ»Ô¥â¥Î¥ì¡¼¥ë1¹æÀþ¡ÖèÓÀî¸ø±à¡×±Ø ÅÌÊâ2ʬ
¡¡¡¡¡¡µþÀ®ÀéÍÕÀþ¡¦À鸶Àþ¡ÖÀéÍÕÃæ±û¡×±Ø ÅÌÊâ5ʬ
ÍÑÅÓ¡§¶¦Æ±½»Âð¡¢Å¹ÊÞ
Áí¸Í¿ô¡§397¸Í¡ÊÆâ»ö¶È¶¨ÎϼԽ»¸Í6¸Í´Þ¤à¡Ë ¢¨Â¾Ãæ±û´ÉÍý¼¼¡¢¥Ñ¡¼¥Æ¥£¥ë¡¼¥à¡¢¥¥Ã¥º¥ë¡¼¥à¡¢¥é¥¤¥Ö¥é¥ê¡¼¡¢¥Õ¥£¥Ã¥È¥Í¥¹¥ë¡¼¥à¡Ê³Æ1¼¼¡Ë¡¢¥²¥¹¥È¥ë¡¼¥à¡Ê2¸Í¡Ë
³¬¿ô¡§ÃϾå31³¬
¹â¤µ¡§107.34m
¹½Â¤¡§Å´¶Ú¥³¥ó¥¯¥ê¡¼¥È¤¡¢°ìÉôÅ´¹ü¤¡¢À©¿¶¹½Â¤
´ðÁù©Ë¡¡§¹º´ðÁÃ
ÉßÃÏÌÌÀÑ¡§3,877.67Ö
·úÃÛÌÌÀÑ¡§2,645.07Ö
±ä¾²ÌÌÀÑ¡§41,999.63Ö
·úÃۼ硧¿·ÆüËÜ·úÀß¡¢ÆüËÜÅÚÃÏ·úʪ¡¢¤¢¤Ê¤Ö¤¥Û¡¼¥à¥é¥¤¥Õ¡¢Ä¹Ã«¹©¥³¡¼¥Ý¥ì¡¼¥·¥ç¥ó¡¢ÅìÊýÃϽê
Àß·×¼Ô¡§Ä¹Ã«¹©¥³¡¼¥Ý¥ì¡¼¥·¥ç¥ó °ìµé·úÃۻλö̳½ê
»Ü¹©¼Ô¡§Ä¹Ã«¹©¡¦¿·ÆüËÜ ¶¦Æ±´ë¶ÈÂÎ
¹©´ü¡§2020ǯ4·î1ÆüÃ幩¡Á2023ǯ12·îÃæ½Ü½×¹©Í½Äê
Æþµï¡§2024ǯ2·î²¼½ÜͽÄê
½Ðŵ
¢§¸ø¼°HP
https://www.ex-ms.com/ext/
- ¥«¥Æ¥´¥ê
- ÀéÍÕ»Ô







