
¡¡Àî±Û±ØÁ°¤Ç·úÀßÃæ¤Î¥¿¥ï¡¼¥Þ¥ó¥·¥ç¥ó¡Ö¥¶¡¦¥Ñ¡¼¥¯¥Ï¥¦¥¹ Àî±Û¥¿¥ï¡¼¡×(ÃϾå25³¬¡¢¹â¤µ86.16m)¤Ç¤¹¡£2023ǯ4·î5Æü¤Ë»£±Æ¤·¤Þ¤·¤¿¡£Àî±Û»Ô¤ÇºÇ¹âÁØ¥¿¥ï¥Þ¥ó¤Ç´û¤ËÁ´¸Í´°Ç䤷¤Æ¤¤¤Þ¤¹¡£¤³¤Îµ»ö¤Ç¤ÏƱ¥¿¥ï¡¼¥Þ¥ó¥·¥ç¥ó¤Î³µÍפä·úÀß¾õ¶·¡¢ÃÏ¿ÞÅù¤òºÜ¤»¤Æ¤¤¤Þ¤¹¡£
¥¶¡¦¥Ñ¡¼¥¯¥Ï¥¦¥¹ Àî±Û¥¿¥ï¡¼¤Ë¤Ä¤¤¤Æ

³°´Ñ´°À®Í½ÁÛCG[½Ðŵ¡§¸ø¼°HP]
¡¡¡Ö¥¶¡¦¥Ñ¡¼¥¯¥Ï¥¦¥¹ Àî±Û¥¿¥ï¡¼¡×¤ÏRÀî±ÛÀþ¡¦ÅìÉðÅì¾åÀþ¡ÖÀî±Û¡×±ØÁ°¤Ç·úÀßÃæ¤ÎÀî±Û»ÔºÇ¹âÁØ¥¿¥ï¥Þ¥ó¤Ç¡¢µ¬ÌϤÏÃϾå25³¬¡¢Åã²°2³¬¡¢Ãϲ¼1³¬¡¢¹â¤µ86.16m¡ÊÅã²°¤Ï90m°Ê¾å¡Ë¡¢ÉßÃÏÌÌÀÑ2,609.03Ö¡¢·úÃÛÌÌÀÑ1,731.50Ö¡¢±ä¾²ÌÌÀÑ2Ëü1834.05Ö¡¢Áí¸Í¿ô173¸Í¡¢Çä¼ç¤Ï»°É©ÃϽê¥ì¥¸¥Ç¥ó¥¹¤ÈÂç±ÉÉÔÆ°»º¡¢À߷׼Ԥϥե¸¥¿¡¢»Ü¹©¼Ô¤Ï¥Õ¥¸¥¿¡¦ÀîÌÚ·úÀß ·úÀß¶¦Æ±´ë¶ÈÂΡÊÂåɽ¡§¥Õ¥¸¥¿¡Ë¤Ç2023ǯ10·î²¼½Ü½×¹©¡¢2023ǯ12·î¾å½ÜÆþµï³«»ÏͽÄê¤È¤Ê¤Ã¤Æ¤¤¤Þ¤¹¡£´°À®¤Þ¤Ç¤¢¤ÈȾǯ¤Û¤É¤¢¤ê¤Þ¤¹¤¬´û¤ËÁ´¸Í´°Ç䤷¤Æ¤¤¤Þ¤¹¡£

ΩÌ̳µÇ°¿Þ¥¤¥é¥¹¥È[½Ðŵ¡§¸ø¼°HP]
¡¡ÄãÁØÉô¤Î1¡¢2³¬¤Ï¾¦¶È»ÜÀß¡¢3³¬¤ÏÌÈ¿¶¥Ó¥Ã¥È¡¢¤½¤·¤Æ4³¬¡Á25³¬¤¬½»Âð¥Õ¥í¥¢¤È¤Ê¤ê²°¾å¤Ë¤Ï¶¦ÍÑ»ÜÀߤΥ¹¥«¥¤¥Ç¥Ã¥¡ÖTOP OF KAWAGOE¡×¤¬ÀßÃÖ¤µ¤ì¤Þ¤¹¡£

¥¨¥ó¥È¥é¥ó¥¹´°À®Í½ÁÛCG[½Ðŵ¡§¸ø¼°HP]
¡¡¥¨¥ó¥È¥é¥ó¥¹¤Î´°À®Í½ÁۿޤǤ¹¡£

THE HALL´°À®Í½ÁÛCG[½Ðŵ¡§¸ø¼°HP]
¡¡¥¨¥ó¥È¥é¥ó¥¹¥Û¡¼¥ë¤Î¡ÖTHE HALL¡×¤Î´°À®Í½ÁۿޤǤ¹¡£

¥ª¡¼¥Ê¡¼¥º¥é¥¦¥ó¥¸´°À®Í½ÁÛCG[½Ðŵ¡§¸ø¼°HP]
¡¡4³¬¤Ë¤Ï¥ª¡¼¥Ê¡¼¥º¥é¥¦¥ó¥¸¤¬ÀßÃÖ¤µ¤ì¤Þ¤¹¡£¹õ¤È¥·¥ë¥Ð¡¼¤ÎÁȹ礻¤Ë¤è¤ë¾ÈÌÀ¥ª¥Ö¥¸¥§¤äÀî±ÛÅâ»·¤òÁÛµ¯¤µ¤»¤ëÁõ¾þ¤Ê¤ÉÀî±Û¤ÎÉ÷¼ñ¤ò´¶¤¸¤ë¶õ´Ö¤Ë¤Ê¤ê¤Þ¤¹¡£

CLUB LOUNGE´°À®Í½ÁÛCG[½Ðŵ¡§¸ø¼°HP]
¡¡Ãϲ¼1³¬¤Ë¤Ï¥·¥ß¥å¥ì¡¼¥·¥ç¥ó¥´¥ë¥Õ¤ä¥·¥¢¥¿¡¼¤¬¤¢¤ë¡ÖCLUB LOUNGE¡×¤¬ÇÛÃÖ¤µ¤ì¤Þ¤¹¡£

¥¶¡¦¥³¥ê¥É¡¼´°À®Í½ÁÛCG[½Ðŵ¡§¸ø¼°HP]
¡¡¡ÖÀî±Û¡×±Ø¤Ë¶áÀܤ·¤¿¾ì½ê¤Ë¤Ï¥µ¥Ö¥¨¥ó¥È¥é¥ó¥¹¤¬Àߤ±¤é¤ì¡¢¤½¤³¤«¤é4³¬¤ËÅФ俤Ȥ³¤í¤Ë¤¢¤ëÆâϲ¼¤Î¡Ö¥¶¡¦¥³¥ê¥É¡¼¡×¤Ç¤¹¡£

¥¹¥«¥¤¥Ç¥Ã¥´°À®Í½ÁÛCG[½Ðŵ¡§¸ø¼°HP]
¡¡²°¾å¥¹¥«¥¤¥Ç¥Ã¥¤Î´°À®Í½ÁۿޤǤ¹¡£Àî±Û»ÔºÇ¹âÁؤΤ¿¤á¼×¤ë·úʪ¤Î¤Ê¤¤Ä¯Ë¾¤¬¹¤¬¤ê¤Þ¤¹¡£
´Ö¼è¤ê¿Þ

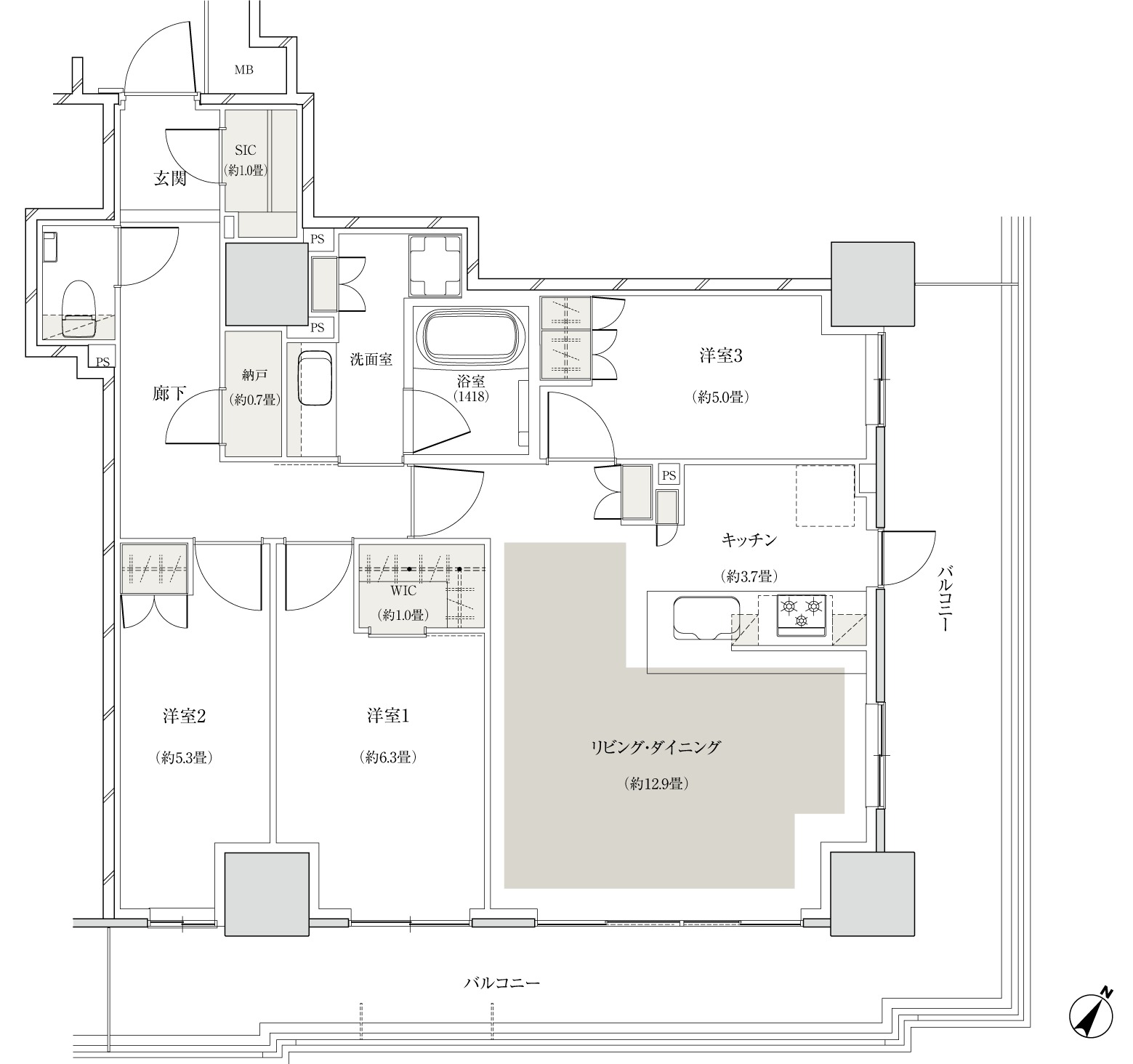
D¥¿¥¤¥×[½Ðŵ¡§¸ø¼°HP]
¡¡D¥¿¥¤¥×¤Î´Ö¼è¤ê¿Þ¤Ç¤¹¡£´Ö¼è¤ê¤Ï2LDK+2WIC+SIC¡¢ÀìÍÌÌÀѤÏ59.99Ö¡¢¥Ð¥ë¥³¥Ë¡¼ÌÌÀÑ10.52֤ȤʤäƤ¤¤Þ¤¹¡£

K¥¿¥¤¥×[½Ðŵ¡§¸ø¼°HP]
¡¡K¥¿¥¤¥×¤Î´Ö¼è¤ê¿Þ¤Ç¤¹¡£´Ö¼è¤ê¤Ï3LDK+WIC+SIC+N¡¢ÀìÍÌÌÀѤÏ81.16Ö¡¢¥Ð¥ë¥³¥Ë¡¼ÌÌÀÑ28.83Ö¡Ê5¡Á7³¬¡Ë¡¢¥Ð¥ë¥³¥Ë¡¼ÌÌÀÑ29.14Ö¡Ê8¡Á24³¬¡Ë¤È¤Ê¤Ã¤Æ¤¤¤Þ¤¹¡£5³¬¤Ï7398Ëü±ß¡¢6³¬¤Ï7588Ëü±ß¡¢15³¬¤Ï8818Ëü±ß¤Ç¤·¤¿¡£
°ÌÃÖ¿Þ

¡ÖÀî±Û¡×±Ø¼þÊÕ´Êά¥¤¥é¥¹¥È[½Ðŵ¡§¸ø¼°HP]
¡¡·úÀßÃϤÏÅìÉðÅì¾åÀþ¡¦JRÀî±ÛÀþ¡ÖÀî±Û¡×±Ø¤ÎÀ¾¸ýÁ°¤Ç¡¢ÅÌÊâ1ʬ¤È¤Ê¤Ã¤Æ¤¤¤ë¾ì½ê¤Ë¤Ï¥µ¥Ö¥¨¥ó¥È¥é¥ó¥¹¤¬¤¢¤ê¤Þ¤¹¡£

°ÌÃÖ¿Þ[½Ðŵ¡§¸ø¼°HP]
¡¡·úÀßÃϤÎÌܤÎÁ°¤Ë¤ÏÅìÉð¤ÈJR¤Î¡ÖÀî±Û¡×±Ø¤¬¤¢¤ê¡¢Ë̦¤Ë¤ÏÀ¾ÉðÃÓÂÞÀþ¡ÖËÜÀî±Û¡×±Ø¤â¤¢¤ê¤Þ¤¹¡£¾®¹¾¸Í¤È¸Æ¤Ð¤ì¤Æ¤¤¤ë¾ì½ê¤Ï¡ÖËÜÀî±Û¡×±Ø¤Î¤µ¤é¤ËË̦¤Î¤¿¤á¡¢¤³¤³¤«¤éÊ⤤¤Æ¤¤¤¯¤Ë¤Ï¤½¤ì¤Ê¤ê¤Îµ÷Î¥¤¬¤¢¤ê¤Þ¤¹¡£
·úÀß¾õ¶·

¡¡2023ǯ4·î5Æü¤Ë¡ÖÀî±Û¡×±ØÁ°¤Î¥Ç¥Ã¥¤«¤é»£±Æ¤·¤¿¡Ö¥¶¡¦¥Ñ¡¼¥¯¥Ï¥¦¥¹ Àî±Û¥¿¥ï¡¼¡×(ÃϾå25³¬¡¢¹â¤µ86.16m)¤Ç¤¹¡£

¡¡±Ø¤Ë¶á¤¤Â¦¤ÎÄãÁØÉô¤âÃ塹¤È¹©»ö¤¬¿Ê¤ó¤Ç¤¤¤Þ¤¹¡£

¡¡ËÌÀ¾Â¦¤«¤é¸«¾å¤²¤¿ÍͻҤǤ¹¡£¥á¥¤¥ó¥¨¥ó¥È¥é¥ó¥¹¤Ï¤³¤Á¤é¦¤ËÇÛÃÖ¤µ¤ì¤Þ¤¹¡£

¡¡ËÌÅ즤«¤é»£±Æ¡£

¡¡¥Þ¥ó¥·¥ç¥óËÜÂΤϺǾ峬¤Þ¤Ç㤷¤Æ¤ª¤ê¥¿¥ï¡¼¥¯¥ì¡¼¥ó¤âűµî¤µ¤ì¤Æ¤¤¤Þ¤¹¡£

¡¡ÆîÅ즤«¤é»£±Æ¡£½×¹©¤Þ¤Ç¤¢¤ÈȾǯ¤Ç¤¹¡£
ÃÏ¿Þ
ʪ·ï³µÍ×

¡¡·úÃ۷ײè¤Î¤ªÃΤ餻¤Ç¤¹¡£
¢£Êª·ï³µÍ×¢£
̾¾Î¡§¥¶¡¦¥Ñ¡¼¥¯¥Ï¥¦¥¹ Àî±Û¥¿¥ï¡¼
½êºßÃÏ¡§ºë¶Ì¸©Àî±Û»ÔÏÆÅÄËÜÄ®16-5,14(ÃÏÈÖ)
¸òÄÌ¡§JRÀî±ÛÀþ¡¦ÅìÉðÅì¾åÀþ¡ÖÀî±Û¡×±Ø ÅÌÊâ1ʬ
ÍÑÅÓ¡§Å¹ÊÞ¡¢»ö̳½ê¡¢¶¦Æ±½»Âð
Áí¸Í¿ô¡§173¸Í¡ÊÊ罸Âоݳ°½»¸Í4¸Í´Þ¤à¡Ë
³¬¿ô¡§ÃϾå25³¬¡¢Åã²°2³¬¡¢Ãϲ¼1³¬
¹â¤µ¡§86.16m¡ÊÅã²°¤Ï90m°Ê¾å¡Ë
¹½Â¤¡§Å´¶Ú¥³¥ó¥¯¥ê¡¼¥È¤¡¦Å´¹ü¤¡¢Ìȿ̹½Â¤
ÉßÃÏÌÌÀÑ¡§2,609.03Ö
·úÃÛÌÌÀÑ¡§1,731.50Ö
±ä¾²ÌÌÀÑ¡§21,834.05Ö
·úÃۼ硧»°É©ÃϽê¥ì¥¸¥Ç¥ó¥¹¡¢Âç±ÉÉÔÆ°»º
Àß·×¼Ô¡§¥Õ¥¸¥¿ °ìµé·úÃۻλö̳½ê
»Ü¹©¼Ô¡§¥Õ¥¸¥¿¡¦ÀîÌÚ·úÀß ·úÀß¶¦Æ±´ë¶ÈÂΡÊÂåɽ¡§¥Õ¥¸¥¿¡Ë
¹©´ü¡§2023ǯ10·î²¼½Ü½×¹©Í½Äê
Æþµï¡§2023ǯ12·î¾å½ÜͽÄê
¸ø¼°HP¡§https://www.mecsumai.com/tph-kawagoe1/
- ¥«¥Æ¥´¥ê
- Àî±Û»Ô







