
¡¡Ìܹõ±Ø¤ÎÆî¦¤Ç·úÀßÃæ¤Î¥¿¥ï¡¼¥Þ¥ó¥·¥ç¥ó¡Ö¥×¥é¥¦¥É¥¿¥ï¡¼ÌܹõMARC¡×(ÃϾå32³¬¡¢ºÇ¹â¹â¤µ128.7m)¤Ç¤¹¡£2023ǯ3·î21Æü¤Ë»£±Æ¤·¤Þ¤·¤¿¡£Ê¬¾ù¥¿¥ï¥Þ¥ó¡¢ÄÂÂߥ¿¥ï¥Þ¥ó¡¢¥ª¥Õ¥£¥¹¥Ó¥ë¤Ç¹½À®¤µ¤ì¤ë¡ÖMEGURO MARC¡Ê¥á¥°¥í¥Þ¡¼¥¯¡Ë¡×Æâ¤Ë¤¢¤ëʬ¾ù¤Î¥¿¥ï¡¼¥Þ¥ó¥·¥ç¥ó¤Ç¤¹¡£¤³¤Îµ»ö¤Ç¤ÏƱ¥¿¥ï¥Þ¥ó¤Î³µÍפä·úÀß¾õ¶·¡¢ÃÏ¿ÞÅù¤òºÜ¤»¤Æ¤¤¤Þ¤¹¡£
¥×¥é¥¦¥É¥¿¥ï¡¼ÌܹõMARC¤Ë¤Ä¤¤¤Æ

¡¡Ìܹõ¤ÎÂ絬ÌÏÊ£¹çºÆ³«È¯¡ÖMEGURO MARC¡Ê¥á¥°¥í¥Þ¡¼¥¯¡Ë¡×¤Ç¤¹¡£±¦¤¬Ê¬¾ù¥¿¥ï¥Þ¥ó¤Î¡Ö¥×¥é¥¦¥É¥¿¥ï¡¼ÌܹõMARC¡×(ÃϾå32³¬¡¢ºÇ¹â¹â¤µ128.7m)¡¢Ãæ±û¤¬ÄÂÂߥ¿¥ï¥Þ¥ó¤Î¡ÖÌܹõMARC¥ì¥¸¥Ç¥ó¥¹¥¿¥ï¡¼¡×(ÃϾå24³¬¡¢¹â¤µ85.23m)¡¢º¸¤¬¥ª¥Õ¥£¥¹¥Ó¥ë¤Î¡ÖJRÌܹõMARC¥Ó¥ë¡×(ÃϾå13³¬¡¢¹â¤µ69.27m)¤Ç¤¹¡£
¡¡¡Ö¥×¥é¥¦¥É¥¿¥ï¡¼ÌܹõMARC¡×¤Îµ¬ÌϤÏÃϾå32³¬¡¢Ãϲ¼1³¬¡¢¹â¤µ126.5m¡¢ºÇ¹â¹â¤µ128.7m¡¢ÉßÃÏÌÌÀÑ7,711.42Ö¡¢·úÃÛÌÌÀÑ1,357.54Ö¡¢±ä¾²ÌÌÀÑ3Ëü6708.76Ö¡¢Áí¸Í¿ô301¸Í¡¢·úÃۼ硦Çä¼ç¤ÏÌî¼ÉÔÆ°»º¤È¥¸¥§¥¤¥¢¡¼¥ëÅìÆüËÜÅÔ»Ô³«È¯¡¢À߷׼ԤȻܹԼԤÏÃÝÃæ¹©Ì³Å¹¤Ç2023ǯ8·îÃæ½Ü½×¹©¡¢2023ǯ10·îÃæ½ÜÆþµï³«»ÏͽÄê¤È¤Ê¤Ã¤Æ¤¤¤Þ¤¹¡£
¡¡¸½ºß¤Ï3LDK¤Î2¸Í¤¬ÀèÃå½çÈÎÇäÃæ¤Ç¡¢ÀìÍÌÌÀѤÏ73.13Ö¡¢75.59Ö¡¢¥Ð¥ë¥³¥Ë¡¼ÌÌÀѤÏ19.50Ö¡¢44.78Ö¡¢ÈÎÇä²Á³Ê¤Ï1²¯4178Ëü±ß¡¢1²¯5298Ëü±ß¤È¤Ê¤Ã¤Æ¤¤¤Þ¤¹¡£¤Þ¤¿¡¢4·îÃæ½Ü¤«¤é¤ÏÂè2´ü4¼¡¤ÎÈÎÇ䳫»ÏͽÄê¤È¤Ê¤Ã¤Æ¤¤¤Þ¤¹¡£

ÉßÃÏÇÛÃÖ¿Þ[½Ðŵ¡§¸ø¼°HP]
¡¡¡ÖMEGURO MARC¡Ê¥á¥°¥í¥Þ¡¼¥¯¡Ë¡×¤ÎÉßÃÏÇÛÃֿޤǤ¹¡£¿Þ¤Î¾å¤¬JR¤ÎÀþÏ©¤¬¤¢¤ë¦¤Ç¡¢º¸¤¬Ìܹõ±ØÊýÌÌ¡¢±¦¤¬¸ÞÈ¿ÅıØÊýÌ̤ȤʤäƤ¤¤Þ¤¹¡£¤³¤ÎÃæ¤Ç¡Ö¥×¥é¥¦¥É¥¿¥ï¡¼ÌܹõMARC¡×¤ÏÆüÅö¤¿¤ê¤ÎÎɤ¤Æî¦¤ËÇÛÃÖ¤µ¤ì¤Þ¤¹¡£

MEGURO MARC¥¬¡¼¥Ç¥ó´°À®Í½ÁÛ¿Þ[½Ðŵ¡§¸ø¼°HP]
¡¡¡ÖMEGURO MARC¡Ê¥á¥°¥í¥Þ¡¼¥¯¡Ë¡×¤ÎÃæ±û¤ËÀ°È÷¤µ¤ì¤ë¹¾ì¡ÖMEGURO MARC ¥¬¡¼¥Ç¥ó¡×¤Î´°À®Í½ÁۿޤǤ¹¡£¥Æ¡¼¥Ö¥ë¤ä¥Ù¥ó¥ÁÅù¤¬¥°¥ê¥Ã¥É¾õ¤ËÇÛÃÖ¤µ¤ì¤ë¹¾ì¤Ë¤Ê¤ê¤Þ¤¹¡£

¥¨¥ó¥È¥é¥ó¥¹´°À®Í½ÁÛ¿Þ[½Ðŵ¡§¸ø¼°HP]
¡¡¥¨¥ó¥È¥é¥ó¥¹¤Î´°À®Í½ÁۿޤǤ¹¡£

¥á¥¤¥ó¥¨¥ó¥È¥é¥ó¥¹¥Û¡¼¥ë´°À®Í½ÁÛ¿Þ[½Ðŵ¡§¸ø¼°HP]
¡¡¥á¥¤¥ó¥¨¥ó¥È¥é¥ó¥¹¥Û¡¼¥ë¤Ï³«ÊüŪ¤Ê¥¬¥é¥¹¥¦¥©¡¼¥ë¤Ë¤Ê¤ê¤Þ¤¹¡£

¥¹¥¿¥¸¥ª´°À®Í½ÁÛ¿Þ[½Ðŵ¡§¸ø¼°HP]
¡¡1³¬¤ËÇÛÃÖ¤µ¤ì¤ë¡Ö¥¹¥¿¥¸¥ª¡×¤Î´°À®Í½ÁۿޤǤ¹¡£¥¥Ã¥Á¥ó¤âÈ÷¤¨¤¿Â¿ÌÜŪ¤Ë»È¤¨¤ëµï½»¼ÔÀìÍѤǤϤʤ¤¥á¥ó¥Ð¡¼À©¤Î¥¹¥¿¥¸¥ª¤Ë¤Ê¤ê¤Þ¤¹¡£

¥Û¡¼¥ë´°À®Í½ÁÛ¿Þ[½Ðŵ¡§¸ø¼°HP]
¡¡1³¬¤ËÇÛÃÖ¤µ¤ì¤ë¡Ö¥Û¡¼¥ë¡×¤âµï½»¼ÔÀìÍѤǤϤʤ¤¥á¥ó¥Ð¡¼À©¤Ë¤Ê¤ê¤Þ¤¹¡£

¥é¥¦¥ó¥¸´°À®Í½ÁÛ¿Þ[½Ðŵ¡§¸ø¼°HP]
¡¡2³¬¤ËÇÛÃÖ¤µ¤ì¤ë¥é¥¦¥ó¥¸¤Ïµï½»¼ÔÀìÍѤζ¦ÍÑ»ÜÀߤǥ«¥Ã¥·¡¼¥Ê´Æ½¤¤Î¥¤¥ó¥Æ¥ê¥¢¤¬ÇÛÃÖ¤µ¤ì¤Þ¤¹¡£

¥¹¥¿¥Ç¥£¥é¥¦¥ó¥¸´°À®Í½ÁÛ¿Þ[½Ðŵ¡§¸ø¼°HP]
¡¡2³¬¤ËÇÛÃÖ¤µ¤ì¤ë¥¹¥¿¥Ç¥£¥é¥¦¥ó¥¸¤Ç¤¹¡£2³¬¤Ë¤Ï¾¤Î¶¦ÍÑ»ÜÀߤȤ·¤Æ¥Õ¥£¥Ã¥È¥Í¥¹¤âÀßÃÖ¤µ¤ì¤Þ¤¹¡£

¥¹¥«¥¤¥é¥¦¥ó¥¸´°À®Í½ÁÛ¿Þ[½Ðŵ¡§¸ø¼°HP]
¡¡20³¬¤Ë¤ÏÂߤ·ÀÚ¤ê¤â²Äǽ¤Ê¥¹¥«¥¤¥é¥¦¥ó¥¸¤¬ÇÛÃÖ¤µ¤ì¤Þ¤¹¡£

¥²¥¹¥È¥ë¡¼¥à´°À®Í½ÁÛ¿Þ[½Ðŵ¡§¸ø¼°HP]
¡¡20³¬¤Ë¤Ï¥²¥¹¥È¥ë¡¼¥à¤âÇÛÃÖ¤µ¤ì¤Þ¤¹¡£
´Ö¼è¤ê

40H¥¿¥¤¥×[½Ðŵ¡§¸ø¼°HP]
¡¡4¡Á20³¬¤ËÇÛÃÖ¤µ¤ì¤ë40H¥¿¥¤¥×¤Î´Ö¼è¤ê¿Þ¤Ç¤¹¡£´Ö¼è¤ê¤Ï1LDK+N¡¢ÀìÍÌÌÀѤÏ41.04Ö¡¢¥Ð¥ë¥³¥Ë¡¼ÌÌÀѤÏ10.92֤ȤʤäƤ¤¤Þ¤¹¡£

60H¥¿¥¤¥×[½Ðŵ¡§¸ø¼°HP]
¡¡21¡Á29³¬¤ËÇÛÃÖ¤µ¤ì¤ë60H¥¿¥¤¥×¤Î´Ö¼è¤ê¿Þ¤Ç¤¹¡£´Ö¼è¤ê¤Ï2LDK+N+WIC¡¢ÀìÍÌÌÀѤÏ61.76Ö¡¢¥Ð¥ë¥³¥Ë¡¼ÌÌÀѤÏ16.38֤ȤʤäƤ¤¤Þ¤¹¡£

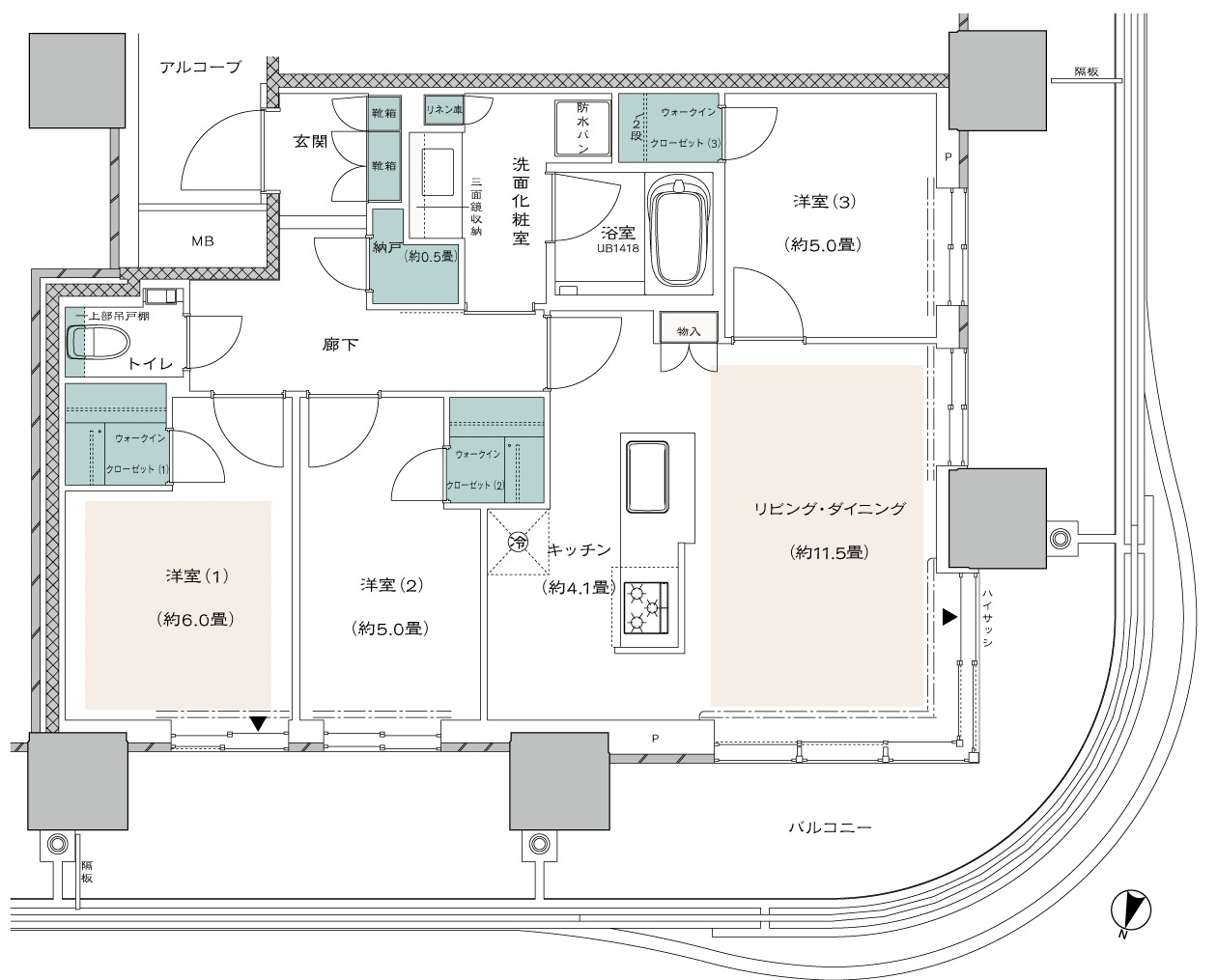
75A1¥¿¥¤¥×[½Ðŵ¡§¸ø¼°HP]
¡¡4¡Á16³¬¤ËÇÛÃÖ¤µ¤ì¤ë75A1¥¿¥¤¥×¤Î´Ö¼è¤ê¿Þ¤Ç¤¹¡£´Ö¼è¤ê¤Ï3LDK+N+3WIC¡¢ÀìÍÌÌÀѤÏ75.59Ö¡¢¥Ð¥ë¥³¥Ë¡¼ÌÌÀѤÏ44.78֤ȤʤäƤ¤¤Þ¤¹¡£
·úÀß¾õ¶·

¡¡2023ǯ3·î21Æü¤ËÌܹõ±ØÊýÌ̤«¤é»£±Æ¤·¤¿¡ÖMEGURO MARC¡Ê¥á¥°¥í¥Þ¡¼¥¯¡Ë¡×¤Ç¤¹¡£±¦¤Î¹õ¤¤¥¿¥ï¡¼¥Þ¥ó¥·¥ç¥ó¤¬¡Ö¥×¥é¥¦¥É¥¿¥ï¡¼ÌܹõMARC¡×(ÃϾå32³¬¡¢ºÇ¹â¹â¤µ128.7m)¤Ç¡¢Ãæ±û¤ÎÇò¤¤¥¿¥ï¡¼¥Þ¥ó¥·¥ç¥ó¤¬¡ÖÌܹõMARC¥ì¥¸¥Ç¥ó¥¹¥¿¥ï¡¼¡×(ÃϾå24³¬¡¢¹â¤µ85.23m)¡¢¤½¤Îº¸¤Î²«ÅÚ¿§¤Î¥ª¥Õ¥£¥¹¥Ó¥ë¤¬¡ÖJRÌܹõMARC¥Ó¥ë¡×(ÃϾå13³¬¡¢¹â¤µ69.27m)¤Ç¤¹¡£

¡¡À¾Â¦¤«¤é»£±Æ¡£ÄãÁØÉô°Ê³°¤Î³°´Ñ¤Ï´û¤Ë´°À®¤·¤Æ¤¤¤Þ¤¹¡£

¡¡À¾Â¦¤Ïºä¤Ë¤Ê¤Ã¤Æ¤ª¤ê¡¢¤½¤Îºä¤ËÌ̤·¤¿Éôʬ¤Ë¥¨¥ó¥È¥é¥ó¥¹¥¢¥×¥í¡¼¥Á¤äÃó¼Ö¾ì¤Î½ÐÆþ¸ý¤¬ÇÛÃÖ¤µ¤ì¤Þ¤¹¡£

¡¡ºä¤ò²¼¤Ã¤¿Æî¦¤«¤é¸«¾å¤²¤¿¡Ö¥×¥é¥¦¥É¥¿¥ï¡¼ÌܹõMARC¡×¤Ç¤¹¡£

¡¡³ÑÉô²°¤Î´Ý¤¤¥Ð¥ë¥³¥Ë¡¼¤¬ÆÃħŪ¤Ç¤¹¡£

¡¡ÆîÅ즤«¤é»£±Æ¡£

¡¡¡ÖMEGURO MARC¡Ê¥á¥°¥í¥Þ¡¼¥¯¡Ë¡×Æâ¤«¤é»£±Æ¡£

¡¡¡Ö¥×¥é¥¦¥É¥¿¥ï¡¼ÌܹõMARC¡×°Ê³°¤Ï´û¤Ë´°À®¤·¤Æ¤¤¤ë¤Î¤Ç¡ÖMEGURO MARC¡Ê¥á¥°¥í¥Þ¡¼¥¯¡Ë¡×Æâ¤Î°ìÉô¤¬Ê⤱¤ë¤è¤¦¤Ë¤Ê¤Ã¤Æ¤¤¤Þ¤¹¡£

¡¡Ìó1ǯÁ°¤Ë´°À®¤·¤¿¥ª¥Õ¥£¥¹¥Ó¥ë¤Î¡ÖJRÌܹõMARC¥Ó¥ë¡×(ÃϾå13³¬¡¢¹â¤µ69.27m)¤Ç¤¹¡£

¡¡ºòǯ10·î¤Ë´°À®¤·¤¿ÄÂÂߥ¿¥ï¥Þ¥ó¤Î¡ÖÌܹõMARC¥ì¥¸¥Ç¥ó¥¹¥¿¥ï¡¼¡×(ÃϾå24³¬¡¢¹â¤µ85.23m)¤Ç¤¹¡£

¡¡Áí¸Í¿ô¤Ï194¸Í¤Ç´Ö¼è¤ê¤Ï1DK¡Á3LDK¡¢ÀìÍÌÌÀѤÏ28.76Ö¡Á133.03Ö¡¢²ÈĤϷî³Û14.7Ëü±ß¡Á105Ëü±ß¤È¤Ê¤Ã¤Æ¤¤¤Þ¤¹¡£

¡¡¡ÖMEGURO MARC¡Ê¥á¥°¥í¥Þ¡¼¥¯¡Ë¡×¤ÎÃæ±û¤«¤é¸«¾å¤²¤¿ÍͻҤǤ¹¡£»°³Ñ·Á¤Ë¤Ê¤ë¤è¤¦¤ËÇÛÃÖ¤µ¤ì¤Æ¤¤¤ë¤³¤È¤¬¤ï¤«¤ê¤Þ¤¹¡£
ÃÏ¿Þ
ʪ·ï³µÍ×

¡¡·úÃ۷ײè¤Î¤ªÃΤ餻¤Ç¤¹¡£
¢£Êª·ï³µÍ×¢£
̾¾Î¡§¥×¥é¥¦¥É¥¿¥ï¡¼ÌܹõMARC
·×²è̾¾Î¡§(²¾¾Î)À¾¸ÞÈ¿ÅÄ3ÃúÌÜ¥×¥í¥¸¥§¥¯¥È CÅï
½êºßÃÏ¡§ÅìµþÅÔÉÊÀî¶èÀ¾¸ÞÈ¿ÅÄ»°ÃúÌÜ247ÈÖ18,249ÈÖ1
¸òÄÌ¡§JR»³¼êÀþ¡¦ÅԱϰÅÄÀþ¡¦Åìµþ¥á¥È¥íÆîËÌÀþ¡¦ÅìµÞÌܹõÀþ¡ÖÌܹõ¡×±Ø
¡¡¡¡¡¡ÅÔ±ÄÀõÁðÀþ¡¦JR»³¼êÀþ¡¦ÅìµÞÃÓ¾åÀþ¡Ö¸ÞÈ¿ÅġױØ
¡¡¡¡¡¡ÅìµÞÌܹõÀþ¡ÖÉÔÆ°Á°¡×±Ø
ÍÑÅÓ¡§¶¦Æ±½»Âð¡¢ÊªÈÎŹÊÞ¡¢»ö̳½ê1
Áí¸Í¿ô¡§301¸Í
³¬¿ô¡§ÃϾå32³¬¡¢Ãϲ¼1³¬
¹â¤µ¡§126.5m¡ÊºÇ¹â¹â¤µ128.7m¡Ë
¹½Â¤¡§RC¤¡¢SRC¤¡¢Ìȿ̹½Â¤
´ðÁù©Ë¡¡§¹º´ðÁá¢Ä¾ÀÜ´ðÁÃ
ÉßÃÏÌÌÀÑ¡§7,711.42Ö
·úÃÛÌÌÀÑ¡§1,357.54Ö
±ä¤ÙÌÌÀÑ¡§36,708.76Ö
·úÃۼ硧Ìî¼ÉÔÆ°»º¡¢¥¸¥§¥¤¥¢¡¼¥ëÅìÆüËÜÅÔ»Ô³«È¯
Àß·×¼Ô¡§ÃÝÃæ¹©Ì³Å¹
»Ü¹Ô¼Ô¡§ÃÝÃæ¹©Ì³Å¹
¹©´ü¡§2020ǯ9·î23ÆüÃ幩¡Á2023ǯ8·îÃæ½Ü½×¹©Í½Äê
Æþµï¡§2023ǯ10·îÃæ½ÜͽÄê
¸ø¼°HP¡§https://www.proud-web.jp/mansion/a115550/
- ¥«¥Æ¥´¥ê
- ÉÊÀî¶è







