
¡¡¸ÞÈ¿ÅĤηúÀßÃæ¤Î¥¿¥ï¡¼¥Þ¥ó¥·¥ç¥ó¡Ö¥¢¥È¥é¥¹¥¿¥ï¡¼¸ÞÈ¿ÅÄ¡×(ÃϾå30³¬¡¢¹â¤µ105.76m)¤Ç¤¹¡£2023ǯ3·î21Æü¤Ë»£±Æ¤·¤Þ¤·¤¿¡£·úÀßÃϤÏÀÑ¿å¥Ï¥¦¥¹ÃÏÌ̻պ¾µ½»ö·ï¤¬¤¢¤Ã¤¿¤³¤È¤Ç¤âÃΤé¤ì¤ëι´Û¤Î¡Ö³¤´î´Û¡×À×ÃϤǤ¹¡£¤³¤Îµ»ö¤Ç¤ÏƱ¥¿¥ï¥Þ¥ó¤Î³µÍפä·úÀß¾õ¶·¡¢ÃÏ¿ÞÅù¤òºÜ¤»¤Æ¤¤¤Þ¤¹¡£
¥¢¥È¥é¥¹¥¿¥ï¡¼¸ÞÈ¿ÅĤˤĤ¤¤Æ

´°À®Í½ÁÛ³°´ÑCG[½Ðŵ¡§¸ø¼°HP]
¡¡¡Ö¥¢¥È¥é¥¹¥¿¥ï¡¼¸ÞÈ¿ÅġפϸÞÈ¿ÅıؤÎÀ¾Â¦¤òή¤ì¤ëÌܹõÀî¤ËÌ̤·¤¿¥¿¥ï¡¼¥Þ¥ó¥·¥ç¥ó¤Ç¡¢µ¬ÌϤÏÃϾå30³¬¡¢Ãϲ¼1³¬¡¢¹â¤µ105.76m¡¢ÉßÃÏÌÌÀÑ2,079.57Ö¡¢·úÃÛÌÌÀÑ1,096.00Ö¡¢±ä¾²ÌÌÀÑ2Ëü1594.95Ö¡¢Áí¸Í¿ô213¸Í¡¢·úÃÛ¼ç(Çä¼ç)¤Ï°°²½À®ÉÔÆ°»º¥ì¥¸¥Ç¥ó¥¹¡¢Àß·×¼Ô¤ÏNEXT ARCHITECT¡õASSOCIATES¡¢»Ü¹©¼Ô¤ÏÀ¾¾¾·úÀߤÇ2024ǯ3·îÃæ½Ü½×¹©¡¢2024ǯ3·î²¼½ÜÆþµï³«»ÏͽÄê¤È¤Ê¤Ã¤Æ¤¤¤Þ¤¹¡£

´°À®Í½ÁÛ³°´ÑCG[½Ðŵ¡§¸ø¼°HP]
¡¡¸½ºß¤Ï21¸Í¤¬ÀèÃå½çÈÎÇäÃæ¤Ç¡¢ÈÎÇä´Ö¼è¤ê¤Ï1LDK¡Á3LDK¡¢ÀìÍÌÌÀѤÏ35.80Ö¡Á126.94Ö¡¢¥Ð¥ë¥³¥Ë¡¼ÌÌÀѤÏ8.46Ö¡Á24.56Ö¡¢ÈÎÇä²Á³Ê¤Ï6938Ëü±ß¡Á3²¯5990Ëü±ß¤È¤Ê¤Ã¤Æ¤¤¤Þ¤¹¡£
¡¡¤Þ¤¿¡¢2023ǯ4·î¾å½Ü¤«¤é¤ÏÂè3´ü¤ÎÈÎÇ䳫»ÏͽÄê¤Ç¡¢ÈÎÇä´Ö¼è¤ê¤Ï1R¡Á3LDK¡¢ÀìÍÌÌÀѤÏ30.12Ö¡Á77.19Ö¡¢¥Ð¥ë¥³¥Ë¡¼ÌÌÀѤÏ6.80Ö¡Á20.86֤ȤʤäƤ¤¤Þ¤¹¡£

ÉßÃÏÇÛÃÖ¿Þ[½Ðŵ¡§¸ø¼°HP]
¡¡ÉßÃϤϸÞÈ¿Åıؤ˶ᤤÅì¦(¿Þ¤Îº¸Â¦)¤¬»°³Ñ·Á¤È¤Ê¤Ã¤Æ¤ª¤ê¡¢¤½¤³¤ËÃÛÃÏʽ¤ÈÌç¤ÈÄí¤Ë°Ï¤Þ¤ì¤¿¥¢¥×¥í¡¼¥Á¤Î¤¢¤ë¥¨¥ó¥È¥é¥ó¥¹¤¬Àߤ±¤é¤ì¤Þ¤¹¡£
¡¡¤Þ¤¿¡¢Ë̦(¿Þ¤Î²¼Â¦)¤Ë¤ÏÌܹõÀ¤¢¤ê¡¢¤½¤ÎÌܹõÀî¤ËÌ̤·¤¿¾ì½ê¤ËÃó¼Ö¾ì(µ¡³£¼°61Âæ¡§·î³Û»ÈÍÑÎÁ4Ëü3000±ß¡Á5Ëü1000±ß)¤Î½ÐÆþ¸ý¤¬ÀßÃÖ¤µ¤ì¤Þ¤¹¡£

¥¨¥ó¥È¥é¥ó¥¹¥²¡¼¥È´°À®Í½ÁÛCG[½Ðŵ¡§¸ø¼°HP]
¡¡¡Ö¥¢¥È¥é¥¹¥¿¥ï¡¼¸ÞÈ¿Åġפϵìι´Û¤Ë¤â¸«¤é¤ì¤¿¶õ´Öʸ²½¤ò¾º²Ú¤·¤¿ÃÛÃÏʽ¤ÈÌç¤ÈÄí¤Ë°Ï¤Þ¤ì¤¿¥¿¥ï¡¼¥Þ¥ó¥·¥ç¥ó¤Ë¤Ê¤ê¤Þ¤¹¡£
¡¡¤½¤Îµìι´Û¤È¤Ï¡Ö³¤´î´Û¡×¤Î¤³¤È¤Ç¡¢ÀÑ¿å¥Ï¥¦¥¹¤¬ÃÏÌ̻ե°¥ë¡¼¥×¤Ë²Í¶õ¼è°ú¤ÇÅÚÃÏ¹ØÆþÂå¶â55²¯5000Ëü±ß¤ò¤À¤Þ¤·¼è¤é¤ì¤ë¤È¤¤¤¦¡¢ÀÑ¿å¥Ï¥¦¥¹ÃÏÌ̻պ¾µ½»ö·ï¤¬¤¢¤Ã¤¿¤³¤È¤Ç¤âÍ̾¤Ç¤¹¡£

¥¨¥ó¥È¥é¥ó¥¹¥¢¥×¥í¡¼¥Á´°À®Í½ÁÛCG[½Ðŵ¡§¸ø¼°HP]
¡¡¥¨¥ó¥È¥é¥ó¥¹¥¢¥×¥í¡¼¥Á¤Ç¤Ï¿å·Ê¤ä¿¢ºÏ¤Ë¤è¤ê»Íµ¨ÀÞ¡¹¤Î·Ê¿§¤ò³Ú¤·¤á¤Þ¤¹¡£

¥¨¥ó¥È¥é¥ó¥¹´°À®Í½ÁÛCG[½Ðŵ¡§¸ø¼°HP]
¡¡¥¨¥ó¥È¥é¥ó¥¹¤ÏÀФÈÌڤζõ´Ö¤È¤Ê¤ê¥¢¡¼¥È¤âÇÛÃÖ¤µ¤ì¤Þ¤¹¡£

¥¨¥ó¥È¥é¥ó¥¹¥Û¡¼¥ë´°À®Í½ÁÛCG[½Ðŵ¡§¸ø¼°HP]
¡¡¥¨¥ó¥È¥é¥ó¥¹¥Û¡¼¥ë¤ÏÌܹõÀËÇÛÃÖ¤µ¤ì¡¢ÁëÀè¤Ë¤ÏÌܹõÀî±è¤¤¤ÎÌÚ¡¹¤â¸«¤¨¤ë¤è¤¦¤Ë¤Ê¤ê¤Þ¤¹¡£

¥é¥¦¥ó¥¸´°À®Í½ÁÛCG[½Ðŵ¡§¸ø¼°HP]
¡¡2³¬¤ÎÌܹõÀˤϥ饦¥ó¥¸¤¬ÇÛÃÖ¤µ¤ì¡¢Á뤫¤é¤ÏÌܹõÀî±è¤¤¤Îºù¤ò³Ú¤·¤à¤³¤È¤â¤Ç¤¤ë¤è¤¦¤Ë¤Ê¤ê¤Þ¤¹¡£

¥²¥¹¥È¥ë¡¼¥à´°À®Í½ÁÛCG[½Ðŵ¡§¸ø¼°HP]
¡¡2³¬¤ËÇÛÃÖ¤µ¤ì¤ë¥²¥¹¥È¥ë¡¼¥à¤Î´°À®Í½ÁۿޤǤ¹¡£

¥Ñ¡¼¥Æ¥£¡¼¥ë¡¼¥à´°À®Í½ÁÛCG[½Ðŵ¡§¸ø¼°HP]
¡¡3³¬¤ËÇÛÃÖ¤µ¤ì¤ë¥Ñ¡¼¥Æ¥£¡¼¥ë¡¼¥à¤Î´°À®Í½ÁۿޤǤ¹¡£

¼Ö´ó¤»´°À®Í½ÁÛCG[½Ðŵ¡§¸ø¼°HP]
¡¡ÉßÃÏËÌÀ¾Â¦¤Ë¤Ï±«¤ÎÆü¤Ç¤âƱ¾è¼Ô¤¬Ç¨¤ì¤º¤Ë¾è¼Ö¤Ç¤¤ëÂ礤ʲ°º¬¤Î¤¢¤ë¼Ö´ó¤»¤¬ÇÛÃÖ¤µ¤ì¤Þ¤¹¡£¥×¥ì¥ß¥¢¥à¥Õ¥í¥¢½»¸Í¤Ë¤ÏÃó¼Ö¾ì1¶è²è¤ÎÍ¥À踢¤¬ÉÕ¤¤¤Æ¤¤¤Þ¤¹¡£
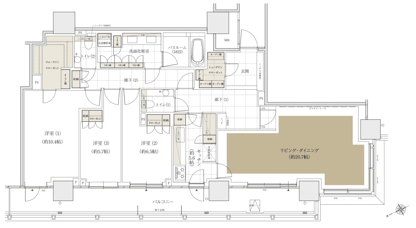
´Ö¼è¤ê

20³¬¥Õ¥í¥¢³µÇ°¿Þ[½Ðŵ¡§¸ø¼°HP]
¡¡¡Ö¥¢¥È¥é¥¹¥¿¥ï¡¼¸ÞÈ¿ÅġפÎ20³¬¥Õ¥í¥¢³µÇ°¿Þ¤Ç¤¹¡£1¥Õ¥í¥¢8¸Í¤Ç³Æ³¬¥´¥ß¥¹¥Æ¡¼¥·¥ç¥ó¤¬2¥õ½ê¤¢¤ê¤Þ¤¹¡£ÀìÍÉô¤ÎÅ·°æ¹â¤Ï2,550mm¤Ç¡¢28¡Á30³¬¤Î¥×¥ì¥ß¥¢¥à¥Õ¥í¥¢¤Ë¤Ê¤ë¤ÈÅ·°æ¹â¤Ï2,700mm¤Ë¤Ê¤ê¤Þ¤¹¡£

I¥¿¥¤¥×[½Ðŵ¡§¸ø¼°HP]
¡¡I¥¿¥¤¥×¤Î´Ö¼è¤ê¿Þ¤Ç¤¹¡£´Ö¼è¤ê¤Ï1LDK+SIC¤ÇÀìÍÌÌÀѤÏ35.80Ö¡¢¥Ð¥ë¥³¥Ë¡¼ÌÌÀѤÏ9.96֤ȤʤäƤ¤¤Þ¤¹¡£

K¥¿¥¤¥×[½Ðŵ¡§¸ø¼°HP]
¡¡I¥¿¥¤¥×¤Î´Ö¼è¤ê¿Þ¤Ç¤¹¡£´Ö¼è¤ê¤Ï2LDK+STC+SIC¤ÇÀìÍÌÌÀѤÏ53.96Ö¡¢¥Ð¥ë¥³¥Ë¡¼ÌÌÀѤÏ8.66Ö(20¡Á25³¬)¡¢8.46Ö(26¡¦27³¬)¤È¤Ê¤Ã¤Æ¤¤¤Þ¤¹¡£

J4¥¿¥¤¥×[½Ðŵ¡§¸ø¼°HP]
¡¡J4¥¿¥¤¥×¤Î´Ö¼è¤ê¿Þ¤Ç¤¹¡£´Ö¼è¤ê¤Ï3LDK+WIC+SIC¤ÇÀìÍÌÌÀѤÏ75.26Ö¡¢¥Ð¥ë¥³¥Ë¡¼ÌÌÀѤÏ19.67Ö(20¡Á25³¬)¡¢20.86Ö(26¡¦27³¬)¤È¤Ê¤Ã¤Æ¤¤¤Þ¤¹¡£

J6¥¿¥¤¥×[½Ðŵ¡§¸ø¼°HP]
¡¡¥×¥ì¥ß¥¢¥à¥Õ¥í¥¢¡Ê28³¬¡Á30³¬¡Ë¤Ë¤¢¤ëJ6¥¿¥¤¥×¤Î´Ö¼è¤ê¿Þ¤Ç¤¹¡£´Ö¼è¤ê¤Ï3LDK+WIC+SIC¤ÇÀìÍÌÌÀѤÏ126.94Ö¡¢¥Ð¥ë¥³¥Ë¡¼ÌÌÀѤÏ24.56֤ȤʤäƤ¤¤Þ¤¹¡£
°ÌÃÖ¿Þ

°ÌÃÖ¿Þ[½Ðŵ¡§¸ø¼°HP]
¡¡·úÀßÃϤϸÞÈ¿Åıؤ«¤éºùÅÄÄ̤ê¤òÆîÀ¾Â¦¤Ë¿Ê¤ß¡¢ÌܹõÀî¤òÅϤäƤ¹¤°¤Î¤È¤³¤í¤Ë°ÌÃÖ¤·¤Æ¤¤¤Þ¤¹¡£¸ÞÈ¿ÅıؤÏJR»³¼êÀþ¡¢ÅÔ±ÄÀõÁðÀþ¡¢ÅìµÞÃÓ¾åÀþ¤Î3Ï©Àþ¤¬¤¢¤ê¡¢JR»³¼êÀþ¤«¤é¤ÏÅÌÊâ5ʬ¡¢ÅÔ±ÄÀõÁðÀþ¤«¤é¤ÏÅÌÊâ3ʬ¡¢ÅìµÞÃÓ¾åÀþ¤«¤é¤ÏÅÌÊâ5ʬ¤È¤Ê¤Ã¤Æ¤¤¤Þ¤¹¡£
·úÀß¾õ¶·

¡¡2023ǯ3·î21Æü¤ËËÌÅ즤«¤é»£±Æ¤·¤¿¡Ö¥¢¥È¥é¥¹¥¿¥ï¡¼¸ÞÈ¿ÅÄ¡×(ÃϾå30³¬¡¢¹â¤µ105.76m)¤Ç¤¹¡£»£±Æ»þ¤Ë¤ÏºÇ¾å³¬¤Î30³¬¤Ë㤷¤Æ¤¤¤Þ¤·¤¿¡£

¡¡Å즤«¤é»£±Æ¡£¤³¤Á¤é¦¤ËÌç¤Î¤¢¤ë¥¨¥ó¥È¥é¥ó¥¹¤¬ÇÛÃÖ¤µ¤ì¤Þ¤¹¡£

¡¡Æî¦¤ÎÏ©ÃϤ«¤é¸«¾å¤²¤¿ÍͻҤǤ¹¡£

¡¡ÆîÀ¾Â¦¤«¤é»£±Æ¡£¤³¤Î¼êÁ°¤Ç¤Ï¥¿¥Þ¥Û¡¼¥à¤Ë¤è¤ëÃϾå14³¬¡¢¹â¤µ40.835m¤Î¥Þ¥ó¥·¥ç¥ó¤¬·úÀßÃæ¤Ç¤¹¡£

¡¡ÌܹõÀî¤ËÌ̤·¤¿ËÌÀ¾Â¦¤ÎÏ©ÃϤ«¤é»£±Æ¡£

¡¡¼Ö´ó¤»¤¬ÀßÃÖ¤µ¤ì¤ë¾ì½ê¤Ç¤ÏÅ´¹ü¤¬ÁÈ¤Þ¤ì¤Æ¤¤¤Þ¤·¤¿¡£¤³¤³¤Î²°¾å¤Ï¼¼³°µ¡¤Ê¤É¤ÎÀßÈ÷¤¬ÇÛÃÖ¤µ¤ì¤ë¾ì½ê¤«¤È»×¤¤¤Þ¤¹j¡£

¡¡À¾Â¦¤ÎÌܹõÀî¤Ë²Í¤«¤ë¶¶¤«¤é»£±Æ¡£

¡¡»£±Æ»þ¤Ïºù¤¬ºé¤¯¤Á¤ç¤Ã¤ÈÁ°¤Ç¤·¤¿¤¬¡¢º£¤Ï¥¥ì¥¤¤Ëºé¤¤¤Æ¤¤¤ë¤«¤È»×¤¤¤Þ¤¹¡£

¡¡Æî¦¤Ë¤¢¤ë¡ÖTOC¥Ó¥ë¡×¤Î²°¾å¤«¤é»£±Æ¡£

¡¡Ë̦¤Î¹âÁس¬½»¸Í¤«¤é¤ÏÅìµþÅÔ¿´¤Î͹âÁإӥ뷲¤ò¸«ÅϤ¹¤³¤È¤¬¤Ç¤¤ë¤è¤¦¤Ë¤Ê¤ê¤Þ¤¹¡£Æî¦¤Ï¤³¤Î¼Ì¿¿¤Î»£±Æ¾ì½ê¤Ç¤¢¤ë¡ÖTOC¥Ó¥ë¡×¤¬ÃϾå30³¬¡¢¹â¤µÌó150m¤ÎµðÂç¤Ê͹âÁØ¥Ó¥ë¤Ë·úÂØ¤¨¤é¤ì¤ë¤¿¤áį˾¤Î¼ÙËâ¤Ë¤Ê¤ë¤«¤â¤·¤ì¤Þ¤»¤ó¡£
ÃÏ¿Þ
ʪ·ï³µÍ×

¡¡·úÃ۷ײè¤Î¤ªÃΤ餻¤Ç¤¹¡£
¢£Êª·ï³µÍ×¢£
̾¾Î¡§¥¢¥È¥é¥¹¥¿¥ï¡¼¸ÞÈ¿ÅÄ
»ö¶È̾¡§(²¾¾Î)ÉÊÀî¥×¥í¥¸¥§¥¯¥È
½êºßÃÏ¡§ÅìµþÅÔÉÊÀî¶èÀ¾¸ÞÈ¿ÅÄÆóÃúÌÜ22ÃúÌÜ1,2,3,5,6(ÃÏÈÖ)
¸òÄÌ¡§JR»³¼êÀþ¡Ö¸ÞÈ¿ÅÄ¡×±Ø ÅÌÊâ5ʬ¡ÊÀ¾¸ý¡Ë
¡¡¡¡¡¡ÅÔ±ÄÀõÁðÀþ¡Ö¸ÞÈ¿ÅÄ¡×±Ø ÅÌÊâ3ʬ¡ÊA2½ÐÆþ¤ê¸ý¡Ë
¡¡¡¡¡¡ÅìµÞÃÓ¾åÀþ¡Ö¸ÞÈ¿ÅÄ¡×±Ø ÅÌÊâ5ʬ¡Ê1³¬½ÐÆþ¤ê¸ý¡Ë
ÍÑÅÓ¡§¶¦Æ±½»Âð
Áí¸Í¿ô¡§213¸Í¡ÊÈóʬ¾ù½»¸Í11¸Í¡¢¹¹ðÂоݳ°½»¸Í8¸Í´Þ¤à¡Ë
³¬¿ô¡§ÃϾå30³¬¡¢Ãϲ¼1³¬
¹â¤µ¡§105.76m¡ÊºÇ¹â¹â¤µ105.76m¡Ë
¹½Â¤¡§Å´¶Ú¥³¥ó¥¯¥ê¡¼¥È¤ °ìÉôÅ´¹ü¤
´ðÁù©Ë¡¡§¾ì½êÂǤÁ¥³¥ó¥¯¥ê¡¼¥È¹º
ÉßÃÏÌÌÀÑ¡§2,079.57Ö
·úÃÛÌÌÀÑ¡§1,096.00Ö
±ä¤ÙÌÌÀÑ¡§21,594.95Ö
·úÃۼ硧°°²½À®ÉÔÆ°»º¥ì¥¸¥Ç¥ó¥¹
Àß·×¼Ô¡§NEXT ARCHITECT¡õASSOCIATES
»Ü¹Ô¼Ô¡§À¾¾¾·úÀß
¹©´ü¡§2021ǯ4·î1ÆüÃ幩¡Á2024ǯ3·îÃæ½Ü½×¹©Í½Äê
Æþµï¡§2024ǯ3·î²¼½ÜͽÄê
¸ø¼°HP¡§https://www.afr-web.co.jp/atlas/mansion/gotanda/
- ¥«¥Æ¥´¥ê
- ÉÊÀî¶è







