
¡¡JR¡ÖÊ¿°æ¡×±ØÁ°¤Î¥¿¥ï¡¼¥Þ¥ó¥·¥ç¥ó¡Ö¥×¥é¥¦¥É¥¿¥ï¡¼Ê¿°æ¡×(ÃϾå29³¬¡¢ºÇ¹â¹â¤µ114.45m)¤Î·úÀßÃϤǤ¹¡£»£±Æ¤·¤¿2023ǯ3·î7Æü¤Ë¤Ï¥¿¥ï¡¼¥¯¥ì¡¼¥ó¤¬1´ðÀßÃÖ¤µ¤ì¤Æ¤¤¤Þ¤·¤¿¡£3·î11Æü¤«¤é3·î18Æü¤ËȯÇ䤵¤ì¤¿Âè1´ü(80¸Í)¤ÎºÇ¹â²Á³Ê¤Ï2²¯6388Ëü±ß¤È¤Ê¤Ã¤Æ¤¤¤Þ¤¹¡£¤³¤Îµ»ö¤Ç¤ÏƱ¥¿¥ï¥Þ¥ó¤Î³µÍפä·úÀß¾õ¶·¡¢ÃÏ¿ÞÅù¤òºÜ¤»¤Æ¤¤¤Þ¤¹¡£
¥×¥é¥¦¥É¥¿¥ï¡¼Ê¿°æ¤Ë¤Ä¤¤¤Æ

³°´Ñ´°À®Í½ÁÛCG[½Ðŵ¡§¸ø¼°HP]
¡¡¡Ö¥×¥é¥¦¥É¥¿¥ï¡¼Ê¿°æ¡×¤ÏJRÁíÉðÀþ¡ÖÊ¿°æ¡×±ØÁ°¤Î¥¿¥ï¡¼¥Þ¥ó¥·¥ç¥ó¤Ç¡¢µ¬ÌϤÏÃϾå29³¬¡¢Ãϲ¼1³¬¡¢¹â¤µ109.49m¡¢ºÇ¹â¹â¤µ114.45m¡¢ÉßÃÏÌÌÀÑ3,725.46Ö¡¢·úÃÛÌÌÀÑ2,205.11Ö¡¢±ä¾²ÌÌÀÑ4Ëü4162.08Ö¡¢Áí¸Í¿ô374¸Í(Èóʬ¾ù½»¸Í106¸Í´Þ¤à)¡¢·úÃÛ¼ç¤ÏÊ¿°æ¸ÞÃúÌܱØÁ°Ã϶è»Ô³¹ÃϺƳ«È¯Áȹç¡Ê»²²ÃÁȹç°÷¡§Ìî¼ÉÔÆ°»º¡¢ºåµÞºå¿ÀÉÔÆ°»º¡Ë¡¢À߷׼ԤϺ´Æ£Áí¹ç·×²è¡¦Á°ÅÄ·úÀß¹©¶È¶¦Æ±´ë¶ÈÂΡ¢»Ü¹©¼Ô¤ÏÁ°ÅÄ·úÀß¹©¶È¤Ç2024ǯ11·î²¼½Ü½×¹©¡¢2025ǯ4·î¾å½ÜÆþµï³«»ÏͽÄê¤È¤Ê¤Ã¤Æ¤¤¤Þ¤¹¡£

³°´Ñ´°À®Í½ÁÛCG[½Ðŵ¡§¸ø¼°HP]
¡¡3·î11Æü¤«¤é3·î18Æü¤Þ¤ÇÂè1´ü¤Î80¸Í¤¬ÈÎÇ䤵¤ì¡¢ÈÎÇä´Ö¼è¤ê¤Ï2LDK¡Á4LDK¡¢ÀìÍÌÌÀѤÏ58.04Ö¡Á120.51֡ʰìÉô¥È¥é¥ó¥¯¥ë¡¼¥àÌÌÀÑ´Þ¤à¡Ë¡¢¥Ð¥ë¥³¥Ë¡¼ÌÌÀÑ11.91Ö¡Á26.89֤ǡ¢ÈÎÇä²Á³Ê¤Ï7418Ëü±ß¡Á2²¯6388Ëü±ß¤Ç¤·¤¿¡£

±ØÁ°¥¨¥ê¥¢³µÇ°¿Þ[½Ðŵ¡§¸ø¼°HP]
¡¡·úÀßÃϤÏJR¡ÖÊ¿°æ¡×±Ø¤ÎË̸ý¦¤Ç»ÍÊý¤¬Æ»Ï©¤Ë°Ï¤Þ¤ì¤¿ÉßÃϤȤʤäƤª¤ê¡¢Æ±¥¿¥ï¥Þ¥ó¤Þ¤Ç¤Î´Ö¤Ë¤Ï¡ÖÊ¿°æ±ØË̸ý¹¾ì¡×¤ò¶´¤à¤¿¤á¡¢¥Þ¥ó¥·¥ç¥ó¤Þ¤Ç¤Ï¿®¹æ¤òÅϤëɬÍפ¬¤¢¤ê¤Þ¤¹¡£

¥Õ¥í¥¢³µÇ°¿Þ[½Ðŵ¡§¸ø¼°HP]
¡¡¥Þ¥ó¥·¥ç¥ó¤Î1¡Á2³¬¤Ë¾¦¶È»ÜÀß¡¢2³¬¤ËÃϰè¹×¸¥»ÜÀß¡¢3³¬¤Ëǧ²ÄÊݰé½ê¤¬Æþ¤ê¤Þ¤¹¡£

¥Õ¥í¥¢³µÇ°¿Þ[½Ðŵ¡§¸ø¼°HP]
¡¡¥Þ¥ó¥·¥ç¥ó¤Î¶¦ÍÑ»ÜÀߤȤ·¤Æ¤Ï¡¢2³¬¤Ë¥¨¥ó¥È¥é¥ó¥¹¤È¥é¥¦¥ó¥¸¡¢3³¬¤Ë¥³¥ß¥å¥Æ¥£¥é¥¦¥ó¥¸¤Î¥Æ¥é¥¹¤ä¥¹¥¿¥Ç¥£¥ë¡¼¥à¡¢¥¥Ã¥º¥ë¡¼¥àÅù¡¢¤½¤·¤Æ25³¬¤Ë¥¹¥«¥¤¥é¥¦¥ó¥¸¤È¥²¥¹¥È¥ë¡¼¥à¤¬ÇÛÃÖ¤µ¤ì¤Þ¤¹¡£

³°´Ñ´°À®Í½ÁÛCG[½Ðŵ¡§¸ø¼°HP]
¡¡ÉßÃϤÎÀ¾Â¦¤Ë¤Ï¥¹¥¥Ã¥×¥Æ¥é¥¹¤¬Àߤ±¤é¤ì¡¢Ãó¼Ö¾ì¤Î½ÐÆþ¸ý¤âÀ¾Â¦¤ËÇÛÃÖ¤µ¤ì¤Þ¤¹¡£

¥¨¥ó¥È¥é¥ó¥¹´°À®Í½ÁÛCG[½Ðŵ¡§¸ø¼°HP]
¡¡2³¬¤ËÇÛÃÖ¤µ¤ì¤ë¥¨¥ó¥È¥é¥ó¥¹¤ÏÆâ¤È³°¤ò°ìľÀþ¤Ë¤Ä¤Ê¤°±ü¹Ô¤¤Î¤¢¤ë¶õ´Ö¤È¤Ê¤ê¤Þ¤¹¡£

¥é¥¦¥ó¥¸´°À®Í½ÁÛCG[½Ðŵ¡§¸ø¼°HP]
¡¡2³¬¤Î¥é¥¦¥ó¥¸¤Ï¥¢¡¼¥È¥Õ¥ì¡¼¥à¤ò»Ü¤·¤¿À޾夲ŷ°æ¤È¡¢Á¡ºÙ¤Ê¥¢¥¤¥¹¥È¥Ã¥×¥¦¥©¡¼¥ë¤Î¤¢¤ë¶õ´Ö¤È¤Ê¤ê¤Þ¤¹¡£

¥³¥ß¥å¥Ë¥Æ¥£¥é¥¦¥ó¥¸´°À®Í½ÁÛCG[½Ðŵ¡§¸ø¼°HP]
¡¡3³¬¤Î¥³¥ß¥å¥Ë¥Æ¥£¥é¥¦¥ó¥¸¤Ï¾®¤µ¤Êµ¡Ç½¤òÅÀºß¤µ¤»¤¿¶¦ÍÑÉô¤È¤Ê¤ê¤Þ¤¹¡£

¥¹¥«¥¤¥é¥¦¥ó¥¸´°À®Í½ÁÛCG[½Ðŵ¡§¸ø¼°HP]
¡¡25³¬¥¹¥«¥¤¥é¥¦¥ó¥¸¤Ï²¼¤Þ¤ÇÁ뤬¤¢¤ë¶õ¤È¤Ä¤Ê¤¬¤Ã¤¿¤è¤¦¤ÊÉâÍ·´¶¤Î¤¢¤ë¶õ´Ö¤È¤Ê¤ê¤Þ¤¹¡£

¥²¥¹¥È¥ë¡¼¥à´°À®Í½ÁÛCG[½Ðŵ¡§¸ø¼°HP]
¡¡¥¹¥«¥¤¥é¥¦¥ó¥¸¤ÎÎ٤ˤϥ²¥¹¥È¥ë¡¼¥à¤âÀßÃÖ¤µ¤ì¤Þ¤¹¡£
´Ö¼è¤ê¿Þ

MC¥¿¥¤¥×[½Ðŵ¡§¸ø¼°HP]
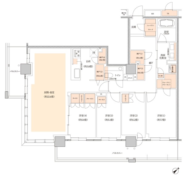
¡¡Âè°ì´ü¤ÇÈÎÇ䤵¤ì¤¿Éô²°¤ÎÃæ¤Ç°ìÈÖ¶¹¤¤MC¥¿¥¤¥×¤Î´Ö¼è¤ê¿Þ¤Ç¤¹¡£´Ö¼è¤ê¤Ï2LDK+WIC+SIC¡¢ÀìÍÌÌÀѤÏ58.04Ö¡¢¥Ð¥ë¥³¥Ë¡¼ÌÌÀѤÏ15.84Ö¤Ç12¡Á14³¬¡¢16¡Á19³¬¡¢22¡Á27³¬¤ËÇÛÃÖ¤µ¤ì¤Þ¤¹¡£¤³¤Î¤¦¤Á12³¬¤ÎÈÎÇä²Á³Ê¤Ï7418Ëü±ß¤Ç¡¢Âè1´ü¤ÎÃæ¤Ç¤Ï°ìÈְ¤¤Éô²°¤È¤Ê¤ê¤Þ¤¹¡£MC¥¿¥¤¥×¤È¤·¤Æ¤ÏºÇ¾å³¬¤Î27³¬¤Ç7738Ëü±ß¤Ç¤¹¡£

MF¥¿¥¤¥×[½Ðŵ¡§¸ø¼°HP]
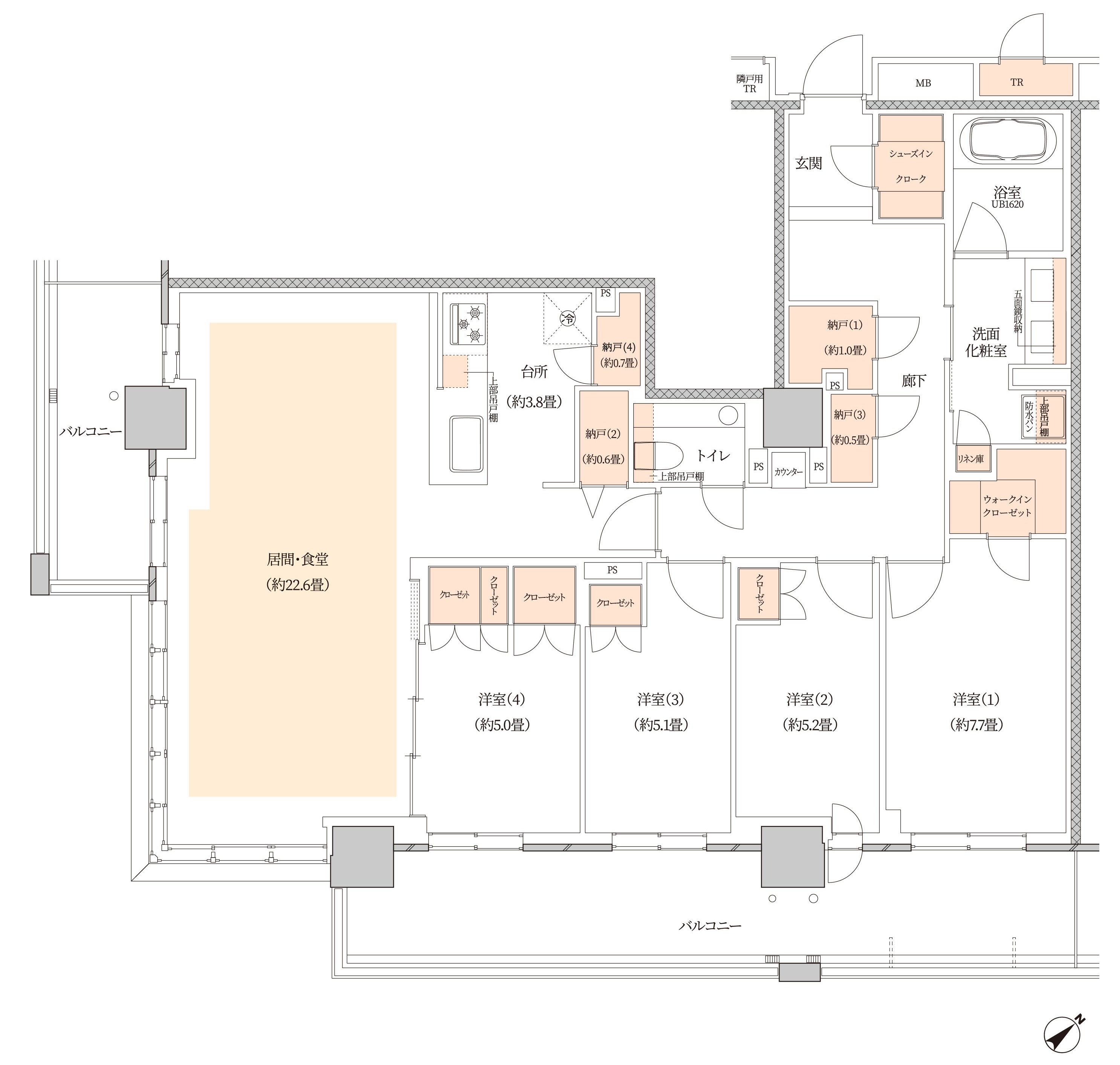
¡¡MF¥¿¥¤¥×¤Î´Ö¼è¤ê¿Þ¤Ç¤¹¡£´Ö¼è¤ê¤Ï3LDK+N+WIC+SIC¡¢ÀìÍÌÌÀѤÏ81.46Ö¡¢¥È¥é¥ó¥¯¥ë¡¼¥àÌÌÀÑ0.52Ö¡¢¥Ð¥ë¥³¥Ë¡¼ÌÌÀѤÏ11.91Ö¤Ç11³¬¡¢13¡Á22³¬¡¢24¡Á27³¬¤ËÇÛÃÖ¤µ¤ì¤Þ¤¹¡£¤³¤Î¤¦¤Á11³¬¤ÎÈÎÇä²Á³Ê¤Ï9208Ëü±ß¤È¤Ê¤Ã¤Æ¤¤¤Þ¤¹¡£MF¥¿¥¤¥×¤È¤·¤Æ¤ÏºÇ¾å³¬¤Î27³¬¤Ç9888Ëü±ß¤Ç¤¹¡£

HE¥¿¥¤¥×[½Ðŵ¡§¸ø¼°HP]
¡¡¥×¥ì¥ß¥¢¥à¥Õ¥í¥¢¤ËÇÛÃÖ¤µ¤ì¤ëHE¥¿¥¤¥×¤Î´Ö¼è¤ê¿Þ¤Ç¤¹¡£´Ö¼è¤ê¤Ï4LDK+4N+WIC+SIC¡¢ÀìÍÌÌÀѤÏ119.57Ö¡¢¥È¥é¥ó¥¯¥ë¡¼¥àÌÌÀÑ0.94Ö¡¢¥Ð¥ë¥³¥Ë¡¼ÌÌÀѤÏ26.89֤ȤʤäƤ¤¤Þ¤¹¡£ºÇ¾å³¬¤È¤Ê¤ë29³¬¤ËÇÛÃÖ¤µ¤ìÈÎÇä²Á³Ê¤ÏÂè1´ü¤ÇºÇ¤â¹â¤¤2²¯6388Ëü±ß¤È¤Ê¤Ã¤Æ¤¤¤Þ¤¹¡£
°ÌÃÖ¿Þ

¸½ÃÏ°ÆÆâ¿Þ[½Ðŵ¡§¸ø¼°HP]
¡¡·úÀßÃϤÏJRÁíÉðÀþ¡ÖÊ¿°æ¡×±Ø¤ÎË̸ý¦¤ÇÅÌÊâ2ʬ¤Ç¡¢Ê¿°æ±ØË̸ý±ØÁ°¸ø±à¤È¢Á°¶¶Ä̤ê¤Ë¶´¤Þ¤ì¤¿»ÍÊý¤¬Æ»Ï©¤ËÌ̤·¤¿ÉßÃϤȤʤäƤ¤¤Þ¤¹¡£
¡¡Ê¿°æ±Ø¤Ïµµ¸Í±Ø¤È¿·¾®´ä±Ø¤Î´Ö¤Ë¤¢¤ë±Ø¤Ç¡¢¹ÓÀî¤òÅÔ¿´Â¦¤ËÅϤ俤Ȥ³¤í¤Ë°ÌÃÖ¤·¤Æ¤¤¤Þ¤¹¡£¹ÓÀî¤ÎÅì¦(ÀéÍÕ¦)¤Ï¹¾¸ÍÀî¶è¤È»×¤ï¤ì¤¬¤Á¤Ç¤¹¤¬¡¢¹ÓÀî¤ÈµìÃæÀî¤Ë°Ï¤Þ¤ì¤¿Ê¿°æ¤â¹¾¸ÍÀî¶è¤È¤Ê¤ê¤Þ¤¹¡£

¡¡2019ǯ1·î¤Ë¥»¥¹¥Ê¤«¤é»£±Æ¤·¤¿¡Ö¥×¥é¥¦¥É¥¿¥ï¡¼Ê¿°æ¡×¤Î·×²èÃϤǤ¹¡£±Ø¤ò¶´¤ó¤ÀÆî¦¤Ë¤¢¤ëÂ礤á¤Î¥Þ¥ó¥·¥ç¥ó¤Ï¡Ö¥Ó¥å¡¼¥Í¥¿¥ï¡¼Ê¿°æ¡×(ÃϾå21³¬¡¢¹â¤µ70.8m)¤Ç¤¹¡£

³°´Ñ´°À®Í½ÁÛCG[½Ðŵ¡§¸ø¼°HP]
¡¡Åìµþ¥¹¥«¥¤¥Ä¥ê¡¼¤Þ¤Ç¼×¤ëÂ礤ʷúʪ¤¬¤Ê¤¤¾ì½ê¤Ç¡¢¶á¤¯¤Ë¤Ï»¶Ê⥳¡¼¥¹¤Ë¤âŬ¤·¤¿¼Ø¹Ô¤¹¤ëµìÃæÀ¤¢¤ê¤Þ¤¹¡£
·úÀß¾õ¶·

¡¡2023ǯ3·î7Æü¤ËÊ¿°æ±ØÁ°¤È¤Ê¤ëÉßÃÏÆîÀ¾Â¦¤«¤é»£±Æ¤·¤¿¡Ö¥×¥é¥¦¥É¥¿¥ï¡¼Ê¿°æ¡×(ÃϾå29³¬¡¢ºÇ¹â¹â¤µ114.45m)¤Î·úÀßÃϤǤ¹¡£

¡¡ÆîÅ즤«¤é»£±Æ¡£¥¿¥ï¡¼¥¯¥ì¡¼¥ó¤¬1´ðÀßÃÖ¤µ¤ì¤Æ¤¤¤Þ¤·¤¿¡£

¡¡Â¢Á°¶¶Ä̤ê±è¤¤¤ÎË̦¤«¤é»£±Æ¡£

¡¡À¾Â¦¤Ï¾¯¤·Àí¤Ã¤¿ÉßÃϤȤʤäƤª¤ê¡¢¤³¤Á¤é¦¤Ë¤Ï¤¤¤³¤¤¤Î¹¾ì¡ÊËɺҹ¾ì¡Ë¤¬À°È÷¤µ¤ì¤Þ¤¹¡£

¡¡µìÃæÀ¤é»£±Æ¡£ÅÌÊâ5Ê¬ÄøÅ٤Ǻù¤Î¤¢¤ë¥¥ì¥¤¤Ê¾ì½ê¤È¤Ê¤Ã¤Æ¤¤¤Þ¤¹¡£°ì±þ¡¢Ì¾Á°¤ÎÄ̤êÀî¤È¤¤¤¦¤³¤È¤Ë¤Ê¤Ã¤Æ¤¤¤Þ¤¹¤¬¡¢Àî¤Îξü¤Ë¤ÏÄù¤áÀڤä¿¿åÌ礬¤¢¤ë¤¿¤áή¤ì¤Ï¤Ê¤¯»°Æü·î¸Ð¤Î¤è¤¦¤Ê¾õÂ֤ˤʤäƤ¤¤Þ¤¹¡£¡¢
ÃÏ¿Þ
ʪ·ï³µÍ×

¡¡·úÃ۷ײè¤Î¤ªÃΤ餻¤Ç¤¹¡£
¢£Êª·ï³µÍ×¢£
̾¾Î¡§¥×¥é¥¦¥É¥¿¥ï¡¼Ê¿°æ
»ö¶È̾¡§Ê¿°æ¸ÞÃúÌܱØÁ°Ã϶èÂè°ì¼ï»Ô³¹ÃϺƳ«È¯»ö¶È
½êºßÃÏ¡§ÅìµþÅÔ¹¾¸ÍÀî¶èÊ¿°æ¸ÞÃúÌÜ65ÈÖ¡ÊÃÏÈÖ¡Ë
¸òÄÌ¡§JRÁíÉðÀþ¡ÖÊ¿°æ¡×±Ø ÅÌÊâ2ʬ
ÍÑÅÓ¡§¶¦Æ±½»Âð¡¢Å¹ÊÞ¡¢Êݰé½ê¡¢»ö̳½ê¡¢Ãó¼Ö¾ì¡¢ÃóÎØ¾ì
Áí¸Í¿ô¡¨374¸Í¡ÊÈóʬ¾ù½»¸Í106¸Í´Þ¤à¡Ë
³¬¿ô¡§ÃϾå29³¬¡¢Ãϲ¼1³¬
¹â¤µ¡§109.49m¡ÊºÇ¹â¹â¤µ114.45m¡Ë
¹½Â¤¡§Å´¶Ú¥³¥ó¥¯¥ê¡¼¥È¤ °ìÉôÅ´¹ü¤¡¢Ìȿ̹½Â¤
´ðÁù©Ë¡¡§¹º´ðÁÃ
ÉßÃÏÌÌÀÑ¡§3,725.46Ö
·úÃÛÌÌÀÑ¡§2,205.11Ö
±ä¾²ÌÌÀÑ¡§44,162.08Ö
·úÃۼ硧ʿ°æ¸ÞÃúÌܱØÁ°Ã϶è»Ô³¹ÃϺƳ«È¯Áȹç
»²²ÃÁȹç°÷¡§Ìî¼ÉÔÆ°»º¡¢ºåµÞºå¿ÀÉÔÆ°»º
Çä¼ç¡§Ìî¼ÉÔÆ°»º¡¢ºåµÞºå¿ÀÉÔÆ°»º
Àß·×¼Ô¡§º´Æ£Áí¹ç·×²è¡¦Á°ÅÄ·úÀß¹©¶È¶¦Æ±´ë¶ÈÂÎ
»Ü¹©¼Ô¡§Á°ÅÄ·úÀß¹©¶È
¹©´ü¡§2021ǯ3·î23ÆüÃ幩¡Á2024ǯ11·î²¼½Ü½×¹©Í½Äê
Æþµï¡§2025ǯ2·î²¼½ÜͽÄê
¸ø¼°HP¡§https://www.proud-web.jp/mansion/b115580/
- ¥«¥Æ¥´¥ê
- ¹¾¸ÍÀî¶è







