
¡¡¿À¸Í¹Á¤Î¿·¹ÁÆÍÄéÀ¾Ã϶è¤Ç·úÀßÃæ¤Î¥¿¥ï¡¼¥Þ¥ó¥·¥ç¥ó¡Ö¥Ù¥¤¥·¥Æ¥£¥¿¥ï¡¼¥º¿À¸Í WEST¡×(ÃϾå27³¬¡¢¹â¤µ99.99m)¤Ç¤¹¡£2022ǯ12·î8Æü¤ËÀ¾Â¦¤«¤é»£±Æ¤·¤Þ¤·¤¿¡£2023ǯ2·î¾å½Ü½×¹©Í½Äê¤Î¤¿¤á¸½ºß¤Ï´°À®¤·¤Æ¤¤¤ë¤È»×¤ï¤ì¤Þ¤¹¡£¸½ºß¤Ï¡Ö¥Ù¥¤¥·¥Æ¥£¥¿¥ï¡¼¥º¿À¸Í EAST¡×(ÃϾå27³¬¡¢¹â¤µ99.99m)¤¬2024ǯ9·î²¼½Ü½×¹©Í½Äê¤Ç·úÀßÃæ¤Ç¥Ä¥¤¥ó¥¿¥ï¥Þ¥ó¤È¤Ê¤ê¤Þ¤¹¡£¤³¤Îµ»ö¤Ç¤ÏƱ¥Ä¥¤¥ó¥¿¥ï¥Þ¥ó¤Î³µÍפä·úÀß¾õ¶·¡¢ÃÏ¿ÞÅù¤òºÜ¤»¤Æ¤¤¤Þ¤¹¡£
¥Ù¥¤¥·¥Æ¥£¥¿¥ï¡¼¥º¿À¸Í¤Ë¤Ä¤¤¤Æ

³°´Ñ´°À®Í½ÁÛ¿Þ[½Ðŵ¡§¸ø¼°HP]
¡¡¡Ö¥Ù¥¤¥·¥Æ¥£¥¿¥ï¡¼¥º¿À¸Í¡×¤Ï¿À¸Í¹Á¤Î¿·¹ÁÆÍÄéÀ¾Ã϶è¤Î¥Ä¥¤¥ó¥¿¥ï¡¼¥Þ¥ó¥·¥ç¥ó¤Ç¥¦¥¨¥¹¥È¤È¥¤¡¼¥¹¥È¤Î2Åï¹½À®¤È¤Ê¤Ã¤Æ¤¤¤Þ¤¹¡£¥¦¥¨¥¹¥È¤Îµ¬ÌϤÏÃϾå27³¬¡¢Åã²°1³¬¡¢Ãϲ¼1³¬¡¢¹â¤µ99.99m¡¢À©¿¶¹½Â¤¡¢ÉßÃÏÌÌÀÑ5,300.07Ö¡¢·úÃÛÌÌÀÑ1,681.98Ö¡¢±ä¾²ÌÌÀÑ3Ëü6959.46Ö¡¢Áí¸Í¿ô346¸Í¡¢·úÃÛ¼ç¡ÊÇä¼ç¡Ë¤Ï½»Í§ÉÔÆ°»º¡¢´ØÅÅÉÔÆ°»º³«È¯¡¢À߷׼ԤȻܹ©¼Ô¤ÏÁ°ÅÄ·úÀß¹©¶È¤Ç2023ǯ2·î¾å½Ü½×¹©Í½Äê¤È¤Ê¤Ã¤Æ¤¤¤Þ¤¹¡£

³°´Ñ´°À®Í½ÁÛ¿Þ[½Ðŵ¡§¸ø¼°HP]
¡¡¥¤¡¼¥¹¥È¤Îµ¬ÌϤÏÃϾå27³¬¡¢Åã²°1³¬¡¢Ãϲ¼1³¬¡¢¹â¤µ99.99m¡¢À©¿¶¹½Â¤¡¢ÉßÃÏÌÌÀÑ5,300.01Ö¡¢·úÃÛÌÌÀÑ1,605.95Ö¡¢±ä¾²ÌÌÀÑ3Ëü6593.83Ö¡¢Áí¸Í¿ô353¸Í¡¢·úÃÛ¼ç¡ÊÇä¼ç¡Ë¤Ï½»Í§ÉÔÆ°»º¡¢´ØÅÅÉÔÆ°»º³«È¯¡¢À߷׼ԤȻܹ©¼Ô¤ÏÁ°ÅÄ·úÀß¹©¶È¡¢2024ǯ9·î²¼½Ü½×¹©Í½Äê¤È¤Ê¤Ã¤Æ¤¤¤Þ¤¹¡£

³°´Ñ´°À®Í½ÁÛ¿Þ[½Ðŵ¡§¸ø¼°HP]
¡¡¥¦¥¨¥¹¥È¤Ï1´ü¡¦2´ü¤¬ÈÎÇ䤵¤ì¸½ºß¤Ï17¸Í¤¬ÀèÃå½ç¼õÉÕÃæ¤Ç¤¹¡£ÈÎÇä´Ö¼è¤ê¤Ï1LDK¡Á3LDK¡¢ÀìÍÌÌÀѤÏ47.83Ö¡Á104.45Ö¡¢¥Ð¥ë¥³¥Ë¡¼ÌÌÀѤÏ12.68Ö¡Á40.62Ö¡¢ÈÎÇä²Á³Ê¤Ï4500Ëü±ß¡Á2²¯5000Ëü±ß¤È¤Ê¤Ã¤Æ¤¤¤Þ¤¹¡£¥¤¡¼¥¹¥È¤Ï2023ǯ7·î²¼½Ü¤«¤éÂè1´ü¤ÎÈÎÇ䳫»ÏͽÄê¤È¤Ê¤Ã¤Æ¤¤¤Þ¤¹¡£

³°´Ñ´°À®Í½ÁÛ¿Þ[½Ðŵ¡§¸ø¼°HP]
¡¡¡Ö¿·¹ÁÆÍÄéÀ¾Ã϶è¡ÊÂè1ÆÍÄé´ðÉô¡ËºÆ³«È¯»ö¶È¡×Á´ÂΤδ°À®Í½ÁۿޤǤ¹¡£¡Ö¥Ù¥¤¥·¥Æ¥£¥¿¥ï¡¼¥º¿À¸Í¡×°Ê³°¤Î»ÜÀߤϴû¤Ë´°À®¤·¤Æ¤¤¤Þ¤¹¡£

ÉßÃÏÇÛÃÖ´°À®Í½ÁÛ¿Þ[½Ðŵ¡§¸ø¼°HP]
¡¡¡Ö¿·¹ÁÆÍÄéÀ¾Ã϶è¡ÊÂè1ÆÍÄé´ðÉô¡ËºÆ³«È¯»ö¶È¡×Á´ÂΤÎÇÛÃֿޤǤ¹¡£EAST°Ê³°¤ÏÎٹ礦³ÆÅ郎¥Ç¥Ã¥¤ÇÀܳ¤µ¤ì¤Þ¤¹¡£

¡¡¸½ÃϤγ«È¯»ö¶È·×²è¤Î¤ªÃΤ餻¤Ë·ÇºÜ¤µ¤ì¤Æ¤¤¤¿ÅÚÃÏÍøÍѷײè¿Þ¤Ç¤¹¡£

¼Ö´ó¤»´°À®Í½ÁÛ¿Þ[½Ðŵ¡§¸ø¼°HP]
¡¡¡Ö¥Ù¥¤¥·¥Æ¥£¥¿¥ï¡¼¥º¿À¸Í WEST¡×¤Ë¤Ï¹âÌÚ¤òÇÛ¤·¤¿¥í¡¼¥¿¥ê¡¼ÉÕ¤¤Î¼Ö´ó¤»¤¬ÇÛÃÖ¤µ¤ì¤Þ¤¹¡£

¥°¥é¥ó¥É¥¨¥ó¥È¥é¥ó¥¹´°À®Í½ÁÛ¿Þ[½Ðŵ¡§¸ø¼°HP]
¡¡¥¦¥¨¥¹¥È¤Î¥°¥é¥ó¥É¥¨¥ó¥È¥é¥ó¥¹¤Î´°À®Í½ÁۿޤǤ¹¡£

¥Ñ¡¼¥Æ¥£¥ë¡¼¥à´°À®Í½ÁÛ¿Þ[½Ðŵ¡§¸ø¼°HP]
¡¡¥¦¥¨¥¹¥È¤Î¶¦ÍÑ»ÜÀߤȤ·¤Æ20³¬¤ËÀßÃÖ¤µ¤ì¤ë¥Ñ¡¼¥Æ¥£¥ë¡¼¥à¤Î´°À®Í½ÁۿޤǤ¹¡£±ü¤Ï¥¹¥«¥¤¥é¥¦¥ó¥¸¤ÇÂßÀÚ»þ¤Ï¥Ñ¡¼¥Æ¡¼¥·¥ç¥ó¤¬ÀßÃÖ¤µ¤ì¤Þ¤¹¡£

¥¹¥«¥¤¥é¥¦¥ó¥¸´°À®Í½ÁÛ¿Þ[½Ðŵ¡§¸ø¼°HP]
¡¡¥¹¥«¥¤¥é¥¦¥ó¥¸Â¦¤Î´°À®Í½ÁۿޤǤ¹¡£¥á¥ê¥±¥ó¥Ñ¡¼¥¯¤ä¥Ï¡¼¥Ð¡¼¥é¥ó¥ÉÊýÌ̤ò°ì˾¤Ç¤¤Þ¤¹¡£
´Ö¼è¤ê¿Þ(¥¦¥¨¥¹¥È)

W-50A(WA)-ɸ½à¥¿¥¤¥×[½Ðŵ¡§¸ø¼°HP]
¡¡3¡Á27³¬¤ËÇÛÃÖ¤µ¤ì¤ëW-50A(WA)-ɸ½à¥¿¥¤¥×¤Î´Ö¼è¤ê¿Þ¤Ç¤¹¡£´Ö¼è¤ê¤Ï1LDK+N+WIC¡¢ÀìÍÌÌÀѤÏ47.83Ö¡¢¥Ð¥ë¥³¥Ë¡¼ÌÌÀѤÏ12.68֤ǻ°µÜÊýÌ̤ò˾¤àÊý³Ñ¤È¤Ê¤ê¤Þ¤¹¡£

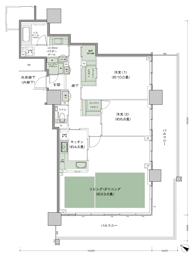
W-105A-LD³ÈÂ祿¥¤¥×[½Ðŵ¡§¸ø¼°HP]
¡¡16¡Á27³¬¤ËÇÛÃÖ¤µ¤ì¤ëW-105A-LD³ÈÂ祿¥¤¥×¤Î´Ö¼è¤ê¿Þ¤Ç¤¹¡£´Ö¼è¤ê¤Ï2LDK+N+2WIC+SIC¡¢ÀìÍÌÌÀѤÏ104.45Ö¡¢¥Ð¥ë¥³¥Ë¡¼ÌÌÀѤÏ40.62֤ǥݡ¼¥È¥¢¥¤¥é¥ó¥É¤ä¿À¸Í¹Á¡¢¥á¥ê¥±¥ó¥Ñ¡¼¥¯¤ò˾¤à³ÑÉô²°¤È¤Ê¤ê¤Þ¤¹¡£

W-70E(WF)-ɸ½à¥¿¥¤¥×[½Ðŵ¡§¸ø¼°HP]
¡¡3¡Á27³¬¤ËÇÛÃÖ¤µ¤ì¤ëW-70E(WF)-ɸ½à¥¿¥¤¥×¤Î´Ö¼è¤ê¿Þ¤Ç¤¹¡£´Ö¼è¤ê¤Ï3LDK+N+WIC+SIC¡¢ÀìÍÌÌÀѤÏ71.39Ö¡¢¥Ð¥ë¥³¥Ë¡¼ÌÌÀѤÏ16.00֤ǥá¥ê¥±¥ó¥Ñ¡¼¥¯¤ä¿À¸Í¹Á¤ò˾¤àÊý³Ñ¤È¤Ê¤ê¤Þ¤¹¡£
°ÌÃÖ¿Þ

¡¡¾ì½ê¤Ï»°µÜ¤ÎÆî¦¤Ç±Ø¤«¤é¤ÏÅÌÊâ15Ê¬ÄøÅ٤ε÷Î¥¤È¤Ê¤Ã¤Æ¤¤¤Þ¤¹¡£¤É¤Î±Ø¤â¾¯¡¹µ÷Î¥¤¬¤¢¤ê¤Þ¤¹¤¬¡¢ÌܤÎÁ°¤Ë¤Ï»°µÜ±ØÁ°¤Ë·Ò¤¬¤ëÏ©Àþ¥Ð¥¹¤â½Ð¤Æ¤¤¤Þ¤¹¡£¤Þ¤¿¡¢ºå¿À¹â®¤Îµþ¶¶½ÐÆþ¸ý¤¬¤¹¤°¶á¤¯¤¢¤ê¤Þ¤¹¡£
·úÀß¾õ¶·(¥¦¥¨¥¹¥È)

¡¡2022ǯ12·î8Æü¤ËÆîÀ¾Â¦¤«¤é»£±Æ¤·¤¿¡Ö¥Ù¥¤¥·¥Æ¥£¥¿¥ï¡¼¥º¿À¸Í WEST¡×(ÃϾå27³¬¡¢¹â¤µ99.99m)¤Ç¤¹¡£»£±Æ»þ¤Ë¤Ï¤Û¤Ü´°À®¤·¤Æ¤¤¤Þ¤·¤¿¡£

¡¡¤¿¤À¡¢³°¹½¼þ¤ê¤Ç¤Ï¹©»öÃæ¤Î¾ì½ê¤¬¤Þ¤À¾¯¤·¤À¤±¤¢¤ê¤Þ¤·¤¿¡£

¡¡2023ǯ2·î¾å½Ü½×¹©Í½Äê¤Î¤¿¤á¸½ºß¤Ï´°À®¤·¤Æ¤¤¤ë¤â¤Î¤È»×¤ï¤ì¤Þ¤¹¡£

¡¡ÆîÅ즤«¤é»£±Æ¡£

¡¡Â¸µ¤Ë¤Ï¼þÊÕ»ÜÀߤ˷Ҥ¬¤ë¥Ç¥Ã¥¤¬¤¢¤ê¤Þ¤¹¡£

¡¡Å즤«¤é»£±Æ¡£¼êÁ°¤Î²¾°Ï¤¤¤Ï¥Ä¥¤¥ó¥¿¥ï¡¼¤Î¤â¤¦ÊÒÊý¤Ç¤¢¤ë¥¤¡¼¥¹¥È¤Î·úÀßÃϤǤ¹¡£

¡¡Ë̦¤«¤é»£±Æ¡£
·úÀß¾õ¶·(¥¤¡¼¥¹¥È)

¡¡2022ǯ12·î8Æü¤ËÆîÀ¾Â¦¤«¤é»£±Æ¤·¤¿¡Ö¥Ù¥¤¥·¥Æ¥£¥¿¥ï¡¼¥º¿À¸Í EAST¡×(ÃϾå27³¬¡¢¹â¤µ99.99m)¤Ç¤¹¡£

¡¡¥¤¡¼¥¹¥È¤Ï2024ǯ9·î²¼½Ü½×¹©Í½Äê¤È¤Ê¤Ã¤Æ¤¤¤Þ¤¹¡£

¡¡ËÌÅ즤«¤é»£±Æ¡£±¦±ü¤Ë¸«¤¨¤Æ¤¤¤ë¤Î¤¬¥Ä¥¤¥ó¥¿¥ï¡¼¤Î¤â¤¦ÊÒÊý¤Ç¤¢¤ë¥¦¥¨¥¹¥È¤Ç¤¹¡£
ÃÏ¿Þ(¥¦¥¨¥¹¥È)
ÃÏ¿Þ(¥¤¡¼¥¹¥È)
ʪ·ï³µÍ×(¥¦¥¨¥¹¥È)

¡¡WEST¤Î·úÃ۷ײè¤Î¤ªÃΤ餻¤Ç¤¹¡£
¢£Êª·ï³µÍ×(¥¦¥¨¥¹¥È)¢£
̾¾Î¡§¥Ù¥¤¥·¥Æ¥£¥¿¥ï¡¼¥º¿À¸Í WEST
½»½ê¡§Ê¼¸Ë¸©¿À¸Í»ÔÃæ±û¶è¿·¹ÁÄ®71ÈÖ3¡ÊÃÏÈÖ¡Ë
¸òÄÌ¡§JRÅ쳤ƻËÜÀþ¡Ö»°¥ÎµÜ¡×±Ø ÅÌÊâ15ʬ
¡¡¡¡¡¡ºåµÞ¿À¸ÍÀþ¡Ö¿À¸Í»°µÜ¡×±Ø ÅÌÊâ15ʬ
¡¡¡¡¡¡¿À¸ÍÃϲ¼Å´À¾¿À»³¼êÀþ¡Ö»°µÜ¡×±Ø ÅÌÊâ16ʬ
¡¡¡¡¡¡ºå¿ÀËÜÀþ¡Ö¿À¸Í»°µÜ¡×±Ø ÅÌÊâ14ʬ
¡¡¡¡¡¡¿À¸Í¿·¸òÄÌ¡¦¥Ý¡¼¥È¥¢¥¤¥é¥ó¥ÉÀþ¡ÖËǰץ»¥ó¥¿¡¼¡×±Ø ÅÌÊâ13ʬ
¡¡¡¡¡¡¿À¸Í¹â®ŴƻÅìÀ¾Àþ¡Ö¸µÄ®¡×±Ø ÅÌÊâ13ʬ
¡¡¡¡¡¡¿À¸ÍÃϲ¼Å´³¤´ßÀþ¡ÖµìµïαÃÏ¡¦Âç´ÝÁ°¡×±Ø ÅÌÊâ10ʬ
ÍÑÅÓ¡§¶¦Æ±½»Âð¡¢°ìÉôŹÊÞ
Áí¸Í¿ô¡§346¸Í
³¬¿ô¡§ÃϾå27³¬¡¢Åã²°1³¬¡¢Ãϲ¼1³¬
¹â¤µ¡§99.99m
¹½Â¤¡§ Å´¶Ú¥³¥ó¥¯¥ê¡¼¥È¤ °ìÉô Å´¹ü¤¡¢À©¿¶¹½Â¤
ÉßÃÏÌÌÀÑ¡§5,300.07Ö
·úÃÛÌÌÀÑ¡§1,681.98Ö
±ä¾²ÌÌÀÑ¡§36,959.46Ö
·úÃۼ硧½»Í§ÉÔÆ°»º¡¢´ØÅÅÉÔÆ°»º³«È¯
Àß·×¼Ô¡§Á°ÅÄ·úÀß¹©¶È
»Ü¹©¼Ô¡§Á°ÅÄ·úÀß¹©¶È
¹©´ü¡§2019ǯ11·îÃæ½Üº¢Ã幩¡Á2023ǯ2·î¾å½Ü½×¹©Í½Äê
Æþµï¡§2023ǯ4·î²¼½ÜͽÄê
ʪ·ï³µÍ×(¥¤¡¼¥¹¥È)

¡¡WEST¤Î·úÃ۷ײè¤Î¤ªÃΤ餻¤Ç¤¹¡£
¢£Êª·ï³µÍ×(¥¤¡¼¥¹¥È)¢£
̾¾Î¡§¥Ù¥¤¥·¥Æ¥£¥¿¥ï¡¼¥º¿À¸Í EAST
½»½ê¡§Ê¼¸Ë¸©¿À¸Í»ÔÃæ±û¶è¿·¹ÁÄ®71ÈÖ1¡ÊÃÏÈÖ¡Ë
¸òÄÌ¡§JRÅ쳤ƻËÜÀþ¡Ö»°¥ÎµÜ¡×±Ø ÅÌÊâ16ʬ
¡¡¡¡¡¡ºåµÞ¿À¸ÍÀþ¡Ö¿À¸Í»°µÜ¡×±Ø ÅÌÊâ17ʬ
¡¡¡¡¡¡¿À¸ÍÃϲ¼Å´À¾¿À»³¼êÀþ¡Ö»°µÜ¡×±Ø ÅÌÊâ17ʬ
¡¡¡¡¡¡ºå¿ÀËÜÀþ¡Ö¿À¸Í»°µÜ¡×±Ø ÅÌÊâ16ʬ
¡¡¡¡¡¡¿À¸Í¿·¸òÄÌ¡¦¥Ý¡¼¥È¥¢¥¤¥é¥ó¥ÉÀþ¡ÖËǰץ»¥ó¥¿¡¼¡×±Ø ÅÌÊâ12ʬ
¡¡¡¡¡¡¿À¸Í¹â®ŴƻÅìÀ¾Àþ¡Ö¸µÄ®¡×±Ø ÅÌÊâ14ʬ
¡¡¡¡¡¡¿À¸ÍÃϲ¼Å´³¤´ßÀþ¡ÖµìµïαÃÏ¡¦Âç´ÝÁ°¡×±Ø ÅÌÊâ12ʬ
ÍÑÅÓ¡§¶¦Æ±½»Âð¡¢°ìÉôŹÊÞ
Áí¸Í¿ô¡§353¸Í
³¬¿ô¡§ÃϾå27³¬¡¢Åã²°1³¬¡¢Ãϲ¼1³¬
¹â¤µ¡§99.99m
¹½Â¤¡§ Å´¶Ú¥³¥ó¥¯¥ê¡¼¥È¤ °ìÉô Å´¹ü¤¡¢À©¿¶¹½Â¤
ÉßÃÏÌÌÀÑ¡§5,300.01Ö
·úÃÛÌÌÀÑ¡§1,605.95Ö
±ä¾²ÌÌÀÑ¡§36,593.83Ö
·úÃۼ硧½»Í§ÉÔÆ°»º¡¢´ØÅÅÉÔÆ°»º³«È¯
Àß·×¼Ô¡§Á°ÅÄ·úÀß¹©¶È
»Ü¹©¼Ô¡§Á°ÅÄ·úÀß¹©¶È
¹©´ü¡§2020ǯ5·îÃæ½Üº¢Ã幩¡Á2024ǯ9·î²¼½Ü½×¹©Í½Äê
Æþµï¡§2025ǯ4·î²¼½ÜͽÄê
- ¥«¥Æ¥´¥ê
- ʼ¸Ë¸© ¿À¸Í»Ô







