
³°´Ñ¥Ç¥¶¥¤¥ó[½Ðŵ¡§Âçºå»Ô]
¡¡ºåµÞ¡Ö½½»°¡×±Ø¶á¤¯¤Ç·úÀßÃæ¤Î¡Ö(²¾¾Î)Âçºå»ÔÍäÀî¶è½½»°Åì·×²è¡Ê¤â¤ÈÍäÀî¶èÌò½êÀ×ÃÏÅù³èÍÑ»ö¶È¡Ë¡×¤Î´°À®Í½ÁۿޤǤ¹¡£ÅìÉßÃϤˤÏÃϾå39³¬¡¢¹â¤µÌó144m¤Î¥¿¥ï¡¼¥Þ¥ó¥·¥ç¥ó¡¢À¾ÉßÃϤˤÏÃϾå9³¬¡¢¹â¤µÌó40m¤ÎÀìÌç³Ø¹»¤¬·úÀߤµ¤ì¤Þ¤¹¡£¤³¤Îµ»ö¤Ç¤ÏƱºÆ³«È¯¤Î³µÍפä·úÀß¾õ¶·¡¢ÃÏ¿ÞÅù¤òºÜ¤»¤Æ¤¤¤Þ¤¹¡£
Âçºå»ÔÍäÀî¶è½½»°Åì·×²è¤Ë¤Ä¤¤¤Æ

ΩÌÌ¿Þ[½Ðŵ¡§Âçºå»Ô]
¡¡¡Ö(²¾¾Î)Âçºå»ÔÍäÀî¶è½½»°Åì·×²è¡Ê(²¾¾Î)Âçºå»ÔÍäÀî¶è½½»°Åì·×²è¡Ë¡×¤Ï¡Ö¤â¤ÈÍäÀî¶èÌò½êÀ×Ãϡפä¡Ö¤â¤È¿åÆ»¶É½½»°¥µ¡¼¥Ó¥¹¥¹¥Æ¡¼¥·¥ç¥óÍÑÃϡפκƳ«È¯¤Ç¡¢¥¿¥ï¡¼¥Þ¥ó¥·¥ç¥ó¤¬·úÀߤµ¤ì¤ëÅìÉßÃϤȡ¢ÀìÌç³Ø¹»¤¬·úÀߤµ¤ì¤ëÀ¾ÉßÃϤËʬ¤«¤ì¤Æ¤¤¤Þ¤¹¡£
¡¡ÅìÉßÃϤ˷úÀߤµ¤ì¤ë¥¿¥ï¡¼¥Þ¥ó¥·¥ç¥ó¤Îµ¬ÌϤÏÃϾå39³¬¡¢¹â¤µÌó144m¡¢ÉßÃÏÌÌÀÑ7,274.38Ö¡¢·úÃÛÌÌÀÑ4,550Ö¡¢±ä¾²ÌÌÀÑ8Ëü4300Ö¡¢Áí¸Í¿ô712¸Í¡¢·úÃÛ¼ç¤ÏºåµÞºå¿ÀÉÔÆ°»º¡¢À߷׼Ԥϼ¯Åç·úÀß¡¢ÎàÀß·×¼¼¡¢»Ü¹©¼Ô¤Ï¼¯Å硦¹â¾¾¶¦Æ±´ë¶ÈÂΤÇ2026ǯ5·îËöÆü½×¹©Í½Äê¤È¤Ê¤Ã¤Æ¤¤¤Þ¤¹¡£
¡¡À¾ÉßÃϤ˷úÀߤµ¤ì¤ë³Ø¹»»ÜÀߤϡÖÍúÀµ¼Ò¹ñºÝ°åÎÅ¥¹¥Ý¡¼¥ÄÀìÌç³Ø¹»¡×¤Î¡Ö±ØÁ°¥¥ã¥ó¥Ñ¥¹¡×¤Ç¡¢µ¬ÌϤÏÃϾå9³¬¡¢¹â¤µÌó40m¡¢±ä¾²ÌÌÀÑ6,700Ö¡¢À߷׼ԤȻܹ©¼Ô¤Ï¹â¾¾·úÀߤÇ2024ǯ3·îËöÆü½×¹©Í½Äê¤È¤Ê¤Ã¤Æ¤¤¤Þ¤¹¡£

ÃÇÌÌ¿Þ[½Ðŵ¡§Âçºå»Ô]
¡¡ÅìÉßÃϤ˷úÀߤµ¤ì¤ë¥¿¥ï¡¼¥Þ¥ó¥·¥ç¥ó¤ÎÄãÁØÉô¤Ë¤ÏŹÊÞ¡¢¿Þ½ñ´Û¡¢³Ø¹»»ÜÀߤʤɤ¬ÇÛÃÖ¤µ¤ì¡¢4³¬¤«¤é¤¬½»¸Í¤È¤Ê¤ê¤Þ¤¹¡£

1³¬Ê¿ÌÌ¿Þ[½Ðŵ¡§Âçºå»Ô]
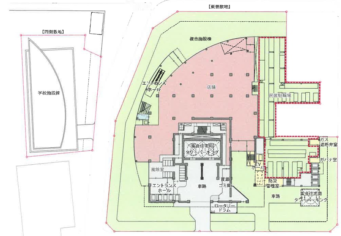
¡¡1³¬¤Ë¤Ï¥¹¡¼¥Ñ¡¼¥Þ¡¼¥±¥Ã¥È¤¬Æþ¤ëŹÊÞ¥¹¥Ú¡¼¥¹¤¬Àߤ±¤é¤ì¤Þ¤¹¡£

¡¡¤³¤Á¤é¤Ï·úÃ۷ײè¤Î¤ªÃΤ餻¤ÎÇÛÃֿޤǤ¹¡£ÅìÉßÃϤÎËÌÅ즤ÈÀ¾ÉßÃϤÎËÌÅ즤¬³ÈÂ礷¤Æ¤¤¤Þ¤¹¡£

2³¬Ê¿ÌÌ¿Þ[½Ðŵ¡§Âçºå»Ô]
¡¡2³¬¤Ë¤Ï»ÔΩ¿Þ½ñ´Û¤È³Ø¹»»ÜÀߤ¬Æþ¤ê¤Þ¤¹¡£³Ø¹»»ÜÀߤϳع»Ë¡¿Í¤¬Ìó500Ö¤ò½êͤ·¡¢¤½¤Î¤¦¤ÁÌó300Ö¤ÏÃϰè¤Ë³«Êü¤·¤¿¥¨¥ê¥¢¤È¤·¤ÆÄ󶡤µ¤ì¤Þ¤¹¡£

3³¬Ê¿ÌÌ¿Þ[½Ðŵ¡§Âçºå»Ô]
¡¡3³¬¤ÏÊݰé»ÜÀߤä¥Þ¥ó¥·¥ç¥óÉô¤Î¥¨¥ó¥È¥é¥ó¥¹¥í¥Ó¡¼¤Ê¤É¤¬ÇÛÃÖ¤µ¤ì¤Þ¤¹¡£

4³¬Ê¿ÌÌ¿Þ[½Ðŵ¡§Âçºå»Ô]
¡¡¤½¤·¤Æ4³¬¤«¤é¤¬½»Âð¥Õ¥í¥¢¤È¤Ê¤ê¡¢4³¬¤Ë¤Ï¥²¥¹¥È¥ë¡¼¥à¤È½¸²ñ¼¼¤¬ÇÛÃÖ¤µ¤ì¤Þ¤¹¡£

³°´Ñ¥Ç¥¶¥¤¥ó[½Ðŵ¡§Âçºå»Ô]
¡¡ÄãÁØÉô¤Î´°À®Í½ÁۿޤǤ¹¡£±¦¤¬À¾ÉßÃϤγع»»ÜÀß¡ÖÍúÀµ¼Ò¹ñºÝ°åÎÅ¥¹¥Ý¡¼¥ÄÀìÌç³Ø¹»¡×¤Ç¡¢°åÎŷϳزÊ(Íý³ØÎÅË¡³Ø²Ê¡¦½ÀÆ»À°Éü³Ø²Ê¡¦ïªµä³Ø²Ê)¤¬°ÜžͽÄê¤È¤Ê¤Ã¤Æ¤¤¤Þ¤¹¡£

³°´Ñ¥Ç¥¶¥¤¥ó[½Ðŵ¡§ÍúÀµ¼Ò¹ñºÝ°åÎÅ¥¹¥Ý¡¼¥ÄÀìÌç³Ø¹»]
¡¡¤³¤Á¤é¤¬ºÇ¿·¤ÎÍúÀµ¼Ò¹ñºÝ°åÎÅ¥¹¥Ý¡¼¥ÄÀìÌç³Ø¹»¤Î´°À®Í½ÁۿޤǤ¹¡£¥Ç¥¶¥¤¥ó¤¬¿ïʬ¤ÈÊѤï¤Ã¤Æ¤¤¤ë¤Î¤ÇÅìÉßÃϤΥ¿¥ï¡¼¥Þ¥ó¥·¥ç¥ó¤Î¥Ç¥¶¥¤¥ó¤âÂ礤¯ÊѤï¤Ã¤Æ¤¤¤ë¤Î¤«¤â¤·¤ì¤Þ¤»¤ó¡£

¡¡¤³¤Á¤é¤Ï·úÃ۷ײè¤Î¤ªÃΤ餻¤ÎΩÌ̿ޤǤ¹¡£
°ÌÃÖ¿Þ

°ÌÃÖ¿Þ[½Ðŵ¡§Âçºå»Ô]
¡¡·úÀßÃϤϺåµÞ¡Ö½½»°¡×±Ø¶á¤¯¤ÎÍäÀîÄ̤ê±è¤¤¤Ç¡¢¾¯¤·Æî¦¤Ë¹Ô¤¯¤ÈÍäÀ¤¢¤ê¤Þ¤¹¡£¤Þ¤¿¡¢½½»°±Ø¤ÏºåµÞÅÅÅ´¤Î±Ø¤Ç¿À¸ÍËÜÀþ¡¢ÊõÄÍËÜÀþ¡¢µþÅÔËÜÀþ¤Î3Ï©Àþ¤¬Ä̤äƤ¤¤Þ¤¹¡£¤Á¤Ê¤ß¤Ë¡Ö½½»°¡×¤È½ñ¤¤¤Æ¡Ö¤¸¤å¤¦¤½¤¦¡×¤ÈÆÉ¤ß¤Þ¤¹¡£
·úÀß¾õ¶·

¡¡2022ǯ12·î8Æü¤ËÍäÀîÄ̤ê±è¤¤¤ÎËÌÀ¾Â¦¤«¤é»£±Æ¤·¤¿¡Ö(²¾¾Î)Âçºå»ÔÍäÀî¶è½½»°Åì·×²è ÅìÉßÃÏ¡×(ÃϾå39³¬¡¢¹â¤µÌó144m)¤Ç¤¹¡£

¡¡ËÌÅ즤«¤é»£±Æ¡£³ÑÃϤÎÃó¼Ö¾ì¤ÏƱºÆ³«È¯¤Ë¤Ï´Þ¤Þ¤ì¤Æ¤¤¤Þ¤»¤ó¡£

¡¡ÆîÅ즤«¤é»£±Æ¡£¤³¤³¤ÏµìÍäÀî¶èÌò½ê¤ÎÀ×ÃϤǤ¹¡£

¡¡ÆîÀ¾Â¦¤«¤é»£±Æ¡£70ǯ¤Î°ìÈÌÄê´ü¼ÚÃϸ¢¤¬ÀßÄꤵ¤ì¤Æ¤¤¤Þ¤¹¡£

¡¡ÆîÅ즤«¤é»£±Æ¤·¤¿ÍúÀµ¼Ò¹ñºÝ°åÎÅ¥¹¥Ý¡¼¥ÄÀìÌç³Ø¹»¤È¤Ê¤ë¡Ö(²¾¾Î)Âçºå»ÔÍäÀî¶è½½»°Åì·×²è À¾ÉßÃÏ¡×(ÃϾå9³¬¡¢¹â¤µÌó40m)¤Ç¤¹¡£
ÃÏ¿Þ
ʪ·ï³µÍסÊÅìÉßÃÏ¡Ë

¡¡·úÃ۷ײè¤Î¤ªÃΤ餻¤Ç¤¹¡£
¢£Êª·ï³µÍ×¢£
»ö¶È̾¡§(²¾¾Î)Âçºå»ÔÍäÀî¶è½½»°Åì·×²è ÅìÉßÃÏ
½êºßÃÏ¡§ÂçºåÉÜÂçºå»ÔÍäÀî¶è½½»°Åì1ÃúÌÜ
¸òÄÌ¡§ºåµÞ¿À¸ÍËÜÀþ¡¦ÊõÄÍËÜÀþ¡¦µþÅÔËÜÀþ¡Ö½½»°¡×±Ø
ÍÑÅÓ¡§½¸¹ç½»Âð(ʬ¾ù)¡¢Å¹ÊÞ¡¢»ÔΩ¿Þ½ñ´Û¡¢³Ø¹»¿Þ½ñ´Û¡¢Í¹Êضɡ¢Êݰ顦³ØÆ¸»ÜÀß¡¢Ì±±ÄÃóÎØ¾ì¡¢»ö̳½ê
Áí¸Í¿ô¡§712¸Í
³¬¿ô¡§ÃϾå39³¬
¹â¤µ¡§Ìó144m
¹½Â¤¡§Å´¶Ú¥³¥ó¥¯¥ê¡¼¥È¤¡Ê°ìÉôÅ´¹ü¤¡Ë
ÉßÃÏÌÌÀÑ¡§7,274.38Ö
·úÃÛÌÌÀÑ¡§4,550Ö
±ä¾²ÌÌÀÑ¡§84,300Ö
·úÃۼ硧ºåµÞºå¿ÀÉÔÆ°»º
Àß·×¼Ô¡§¼¯Åç·úÀß¡¢ÎàÀß·×¼¼¡¢
»Ü¹©¼Ô¡§¼¯Å硦¹â¾¾¶¦Æ±´ë¶ÈÂÎ
¹©´ü¡§2022ǯ8¾å½ÜÃ幩¡Á2026ǯ5·îËöÆü½×¹©Í½Äê
- ¥«¥Æ¥´¥ê
- Âçºå»Ô







