
ÆîÀ¾Â¦¥Ñ¡¼¥¹[½Ðŵ¡§¾®Ê¿»Ô]
¡¡À¾Éð¹ñʬ»ûÀþ¡¦ÇÒÅçÀþ¡Ö¾®Àî¡×±ØÁ°¤ÎºÆ³«È¯¡Ö¾®Àî±ØÀ¾¸ýÃ϶èÂè°ì¼ï»Ô³¹ÃϺƳ«È¯»ö¶È¡×(ÃϾå27³¬¡¢¹â¤µ98.51m)¤Î´°À®Í½ÁۿޤǤ¹¡£°°²½À®ÉÔÆ°»º¥ì¥¸¥Ç¥ó¥¹¤¬»²²ÃÁȹç°÷¤È¤·¤Æ»²²è¤¹¤ë¥¿¥ï¡¼¥Þ¥ó¥·¥ç¥ó¤Ç¡¢2023ǯ1·î20Æü¤ËÅìµþÅÔÃλö¤«¤é¸¢ÍøÊÑ´¹·×²è¤Îǧ²Ä¤ò¼õ¤±¤Þ¤·¤¿¡£º£¸å¤Ï2023ǯ8·î¤ËÃ幩¡¢2026ǯ3·î¤Ë½×¹©Í½Äê¤È¤Ê¤Ã¤Æ¤¤¤Þ¤¹¡£¤³¤Îµ»ö¤Ç¤ÏƱ¥¿¥ï¥Þ¥ó¤Î³µÍפ丽¶·¡¢ÃÏ¿ÞÅù¤òºÜ¤»¤Æ¤¤¤Þ¤¹¡£
¾®Àî±ØÀ¾¸ýÃ϶è¤Ë¤Ä¤¤¤Æ

Á´ÂΥѡ¼¥¹[½Ðŵ¡§¾®Ê¿»Ô]
¡¡¡Ö¾®Àî±ØÀ¾¸ýÃ϶èÂè°ì¼ï»Ô³¹ÃϺƳ«È¯»ö¶È¡×¤ÏÀ¾Éð¹ñʬ»ûÀþ¡¦ÇÒÅçÀþ¡Ö¾®Àî¡×±Ø¤ÎÀ¾¸ý¤ËÎÙÀܤ·¤¿¥¿¥ï¡¼¥Þ¥ó¥·¥ç¥ó¤Ç¡¢µ¬ÌϤÏÃϾå27³¬¡¢Ãϲ¼1³¬¡¢¹â¤µ98.51m¡¢ÉßÃÏÌÌÀÑ5,045.35Ö¡¢·úÃÛÌÌÀÑ3,528.91Ö¡¢±ä¾²ÌÌÀÑ4Ëü385.81Ö¡¢Áí¸Í¿ô219¸Í¡¢·úÃÛ¼ç¤Ï¾®Àî±ØÀ¾¸ýÃ϶è»Ô³¹ÃϺƳ«È¯Áȹç¡Ê»²²ÃÁȹç°÷¡§°°²½À®ÉÔÆ°»º¥ì¥¸¥Ç¥ó¥¹¡Ë¡¢Àß·×¼Ô¤ÏINA¿··úÃÛ¸¦µæ½ê¡¢ÆÃÄê¶È̳Âå¹Ô¼Ô¤Ï¸ÍÅÄ·úÀߤÇ2023ǯ8·î1ÆüÃ幩¡¢2026ǯ3·î31Æü½×¹©Í½Äê¤È¤Ê¤Ã¤Æ¤¤¤Þ¤¹¡£2023ǯ1·î20Æü¤Ë¤ÏÅìµþÅÔÃλö¤«¤é¸¢ÍøÊÑ´¹·×²è¤Îǧ²Ä¤ò¼õ¤±¤Æ¤¤¤Þ¤¹¡£
¢§¾®Ê¿»Ô
¾®Àî±ØÀ¾¸ýÃ϶èÂè°ì¼ï»Ô³¹ÃϺƳ«È¯»ö¶È
¢§¾®Àî±ØÀ¾¸ýÃ϶è»Ô³¹ÃϺƳ«È¯Áȹç
https://ogawawest-renewal.com/

ÃÇÌÌ¿Þ[½Ðŵ¡§¾®Ê¿»Ô]
¡¡¥Õ¥í¥¢¹½À®¤ÏÃϲ¼1³¬¤¬ÃóÎØ¾ì¡¢1¡Á3³¬¤¬Å¹ÊÞ¡¢4¡Á5³¬¤¬¸ø¶¦»ÜÀß¡¢5³¬¤Ë½»Âð¥á¥¤¥ó¥¨¥ó¥È¥é¥ó¥¹¡¢¤½¤·¤Æ6¡Á27³¬¤¬Áí¸Í¿ô219¸Í¤Î½»Âð¥Õ¥í¥¢¤È¤Ê¤ê¤Þ¤¹¡£¸ø¶¦»ÜÀߤȤ·¤Æ¤Ï¿Þ½ñ´Û¤¬·×²è¤µ¤ì¤Æ¤ª¤ê¡¢Å¹ÊÞÉô¤Ë¤Ï¥¹¡¼¥Ñ¡¼¥Þ¡¼¥±¥Ã¥È¤Î½Ðʤ¬Í½Äꤵ¤ì¤Æ¤¤¤Þ¤¹¡£¤Þ¤¿¡¢2³¬¥ì¥Ù¥ë¤Ç¾®Àî±Ø¤Ëľ·ë¤¹¤ë¤³¤È¤â¸¡Æ¤¤µ¤ì¤Æ¤¤¤Þ¤¹¡£

ÇÛÃÖ¿Þ[½Ðŵ¡§¾®Ê¿»Ô]
¡¡Æ±ºÆ³«È¯¤Ç¤Ï27³¬·ú¤Æ¤Î¥¿¥ï¡¼¥Þ¥ó¥·¥ç¥ó¤ÎÎÙ¤ËÃó¼Ö¾ìÅ郎ÇÛÃÖ¤µ¤ì¡¢ËÌÅ즤ˤϡÖ(²¾¾Î)¾®Àî¤Ë¤®¤ï¤¤¹¾ì¡×(Ìó1,000Ö)¡¢Æî¦¤Ë¤Ï±ØÁ°¹¾ì(Ìó3,700Ö)¤âÀ°È÷¤µ¤ì¤Þ¤¹¡£

ÆîÀ¾Â¦ÄãÁØÉô³°´Ñ¥Ñ¡¼¥¹[½Ðŵ¡§¾®Ê¿»Ô]
¡¡ÆîÀ¾Â¦ÄãÁØÉô¤Î´°À®Í½ÁۿޤǤ¹¡£¿Þ¤Î±¦Â¦¤ÎÊý¤Ë¾®Àî±Ø¤¬¤¢¤ê¤Þ¤¹¡£

ËÌÀ¾Â¦ÄãÁØÉô³°´Ñ¥Ñ¡¼¥¹[½Ðŵ¡§¾®Ê¿»Ô]
¡¡¹¾ì¤¬À°È÷¤µ¤ì¤ëËÌÀ¾Â¦ÄãÁØÉô¤Î´°À®Í½ÁۿޤǤ¹¡£ÉßÃϤÎËÌÅ즤ˤÏΩÂÎÃó¼Ö¾ì¤¬À°È÷¤µ¤ì¤Þ¤¹¤¬¡¢¥Þ¥ó¥·¥ç¥óËÜÂΤˤϥ¿¥ï¡¼¥Ñ¡¼¥¥ó¥°¤âÀßÃÖ¤µ¤ì¤Þ¤¹¡£

1³¬´ÓÄÌÄÌÏ©Æâ´Ñ¥Ñ¡¼¥¹[½Ðŵ¡§¾®Ê¿»Ô]
¡¡1³¬¤Ë¤Ï¤Ë¤®¤ï¤¤¹¾ì¤ËÄ̤êÈ´¤±¤é¤ì¤ë´ÓÄÌÄÌÏ©¤¬À°È÷¤µ¤ì¤Þ¤¹¡£

2³¬¶¦ÍÑÄÌÏ©Æâ´Ñ¥Ñ¡¼¥¹[½Ðŵ¡§¾®Ê¿»Ô]
¡¡2³¬¤Î¶¦ÍÑÄÌÏ©¤Î´°À®Í½ÁۿޤǤ¹¡£2³¬¤ÏŹÊÞ¥Õ¥í¥¢¤È¤Ê¤ê¡¢±Ø¤Ëľ·ë¤¹¤ë¤«¤â¤·¤ì¤Þ¤»¤ó¡£
Ê¿ÌÌ¿Þ

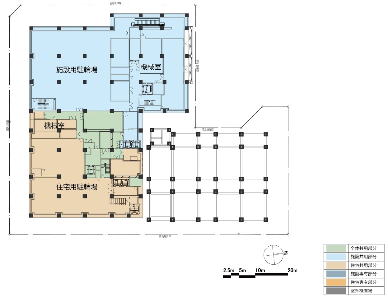
Ãϲ¼1³¬Ê¿ÌÌ¿Þ[½Ðŵ¡§¾®Ê¿»Ô]
¡¡Ãϲ¼1³¬¤Ï½»ÂðÍѤȻÜÀßÍѤÎÃóÎØ¾ì¤È¤Ê¤ê¤Þ¤¹¡£

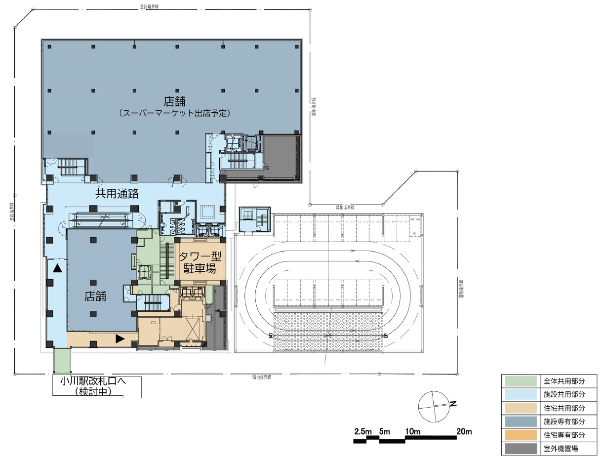
1³¬Ê¿ÌÌ¿Þ[½Ðŵ¡§¾®Ê¿»Ô]
¡¡1³¬¤ÎÆîÀ¾Â¦¤ÈÆîÅì¦¤Ë¤ÏŹÊÞ¤¬ÇÛÃÖ¤µ¤ì¡¢¤½¤Î´Ö¤Ë¤Ï¤Ë¤®¤ï¤¤¹¾ì¤ËÄ̤êÈ´¤±¤é¤ì¤ë´ÓÄÌÄÌÏ©¤¬ÇÛÃÖ¤µ¤ì¤Þ¤¹¡£

2³¬Ê¿ÌÌ¿Þ[½Ðŵ¡§¾®Ê¿»Ô]
¡¡ÆîÀ¾Â¦¤Î1¡¢2³¬¤ÎŹÊÞÉô¤Ë¤Ï¥¹¡¼¥Ñ¡¼¥Þ¡¼¥±¥Ã¥È¤¬½ÐŹͽÄê¤È¤Ê¤Ã¤Æ¤¤¤Þ¤¹¡£¤Þ¤¿¡¢2³¬¤«¤é¤Ï¾®Àî±Ø¤ËÀܳ¤¹¤ë¥Ç¥Ã¥¤¬¸¡Æ¤¤µ¤ì¤Æ¤¤¤Þ¤¹¡£

3³¬Ê¿ÌÌ¿Þ[½Ðŵ¡§¾®Ê¿»Ô]
¡¡3³¬¤âŹÊÞ¥Õ¥í¥¢¤È¤Ê¤ê¤Þ¤¹¡£

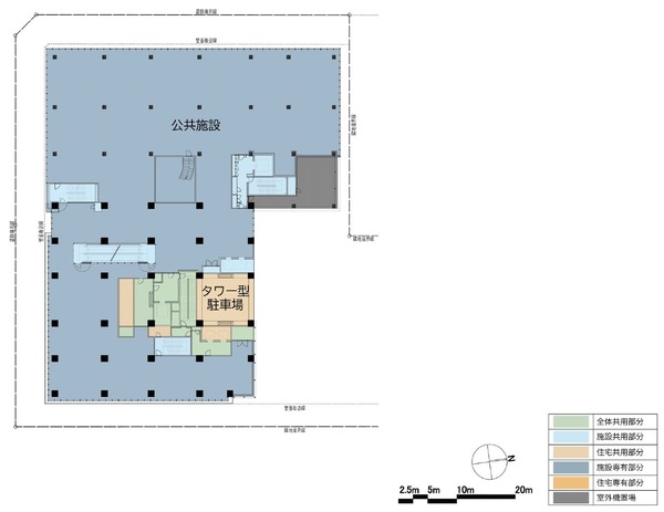
4³¬Ê¿ÌÌ¿Þ[½Ðŵ¡§¾®Ê¿»Ô]
¡¡4³¬¤Ï¸ø¶¦»ÜÀߤȤʤê¤Þ¤¹¡£

5³¬Ê¿ÌÌ¿Þ[½Ðŵ¡§¾®Ê¿»Ô]
¡¡5³¬¤Ï¸ø¶¦»ÜÀߤȽ»Âð¥á¥¤¥ó¥¨¥ó¥È¥é¥ó¥¹¤È¤Ê¤ê¤Þ¤¹¡£¸ø¶¦»ÜÀߤȤ·¤Æ¤Ï¿Þ½ñ´Û¤¬·×²è¤µ¤ì¤Æ¤¤¤Þ¤¹¡£

6¡Á10³¬Ê¿ÌÌ¿Þ[½Ðŵ¡§¾®Ê¿»Ô]
¡¡6³¬¤«¤é½»Âð¥Õ¥í¥¢¤È¤Ê¤ê¤Þ¤¹¡£

11¡Á27³¬Ê¿ÌÌ¿Þ[½Ðŵ¡§¾®Ê¿»Ô]
¡¡27³¬¤Þ¤Ç¤¬½»Âð¥Õ¥í¥¢¤Ç¤¹¡£
°ÌÃÖ¿Þ

°ÌÃÖ¿Þ[½Ðŵ¡§¾®Àî±ØÀ¾¸ýÃ϶è»Ô³¹ÃϺƳ«È¯Áȹç]
¡¡·×²èÃϤÏÀ¾Éð¹ñʬ»ûÀþ¡¦ÇÒÅçÀþ¡Ö¾®Àî¡×±Ø¤ÎÀ¾¸ýÁ°¤Ç2³¬¥ì¥Ù¥ë¤Ç±ØÀܳ¤¹¤ë¤³¤È¤â¸¡Æ¤¤µ¤ì¤Æ¤¤¤Þ¤¹¡£
¡¡¾®Àî±Ø¤ÏÆëÀ÷¤ß¤Î¤Ê¤¤Êý¤¬¤Û¤È¤ó¤É¤À¤È»×¤¤¤Þ¤¹¤¬¡¢¾®Àî±Ø¤Ï¾®Ê¿»ÔÆâ¤Î±Ø¤Ç¹ñʬ»û¤È½êÂô¤ÎÃæ´Ö¤¢¤¿¤ê¤Ë°ÌÃÖ¤·¤Æ¤¤¤Þ¤¹¡£
¸½¶·

¡¡2023ǯ1·î17Æü¤Ë¡Ö¾®Àî¡×±Ø¤«¤é»£±Æ¤·¤¿¡Ö¾®Àî±ØÀ¾¸ýÃ϶èÂè°ì¼ï»Ô³¹ÃϺƳ«È¯»ö¶È¡×(ÃϾå27³¬¡¢¹â¤µ98.51m)¤Î·×²èÃÏÊýÌ̤Ǥ¹¡£

¡¡±ØÁ°¤ÎÃóÎØ¾ì¤¬¤¢¤ë¤¢¤¿¤ê¤Ï¥¿¥ï¡¼¥Þ¥ó¥·¥ç¥ó¤ÎËÜÂΤȤʤꡢÃó¼Ö¾ì¤È¤Ê¤Ã¤Æ¤¤¤ë¤¢¤¿¤ê¤«¤é¤¬Ãó¼Ö¾ìÅï¤È¤Ê¤ê¤Þ¤¹¡£

¡¡¸½ºß¤Î¾®Àî±ØÀ¾¸ýÁ°¤Ç¤¹¡£¥³¥ó¥Ó¥Ë¤¬¤¢¤ë¤¯¤é¤¤¤Ç¤Û¤È¤ó¤É²¿¤â¤Ê¤¤±Ø¤Ç¤·¤¿¡£¡Ö¾®Àî±ØÀ¾¸ýÃ϶èÂè°ì¼ï»Ô³¹ÃϺƳ«È¯»ö¶È¡×¤ÎÄãÁØÉô¤ÏŹÊÞ¥Õ¥í¥¢¤È¤Ê¤ë¤Î¤Ç¡¢ºÆ³«È¯¤¬´°À®¤¹¤ë¤ÈÂ礤¯ÊѤï¤ê¤Þ¤¹¡£

¡¡Æî¦¤«¤é»£±Æ¡£Â¿Ëà¿®ÍѶâ¸Ë¡Ê¤¿¤Þ¤·¤ó¡Ë¤¬¤¢¤ë¤¢¤¿¤ê¤ÏÌó3,700֤αØÁ°¹¾ì¤¬À°È÷¤µ¤ì¤Þ¤¹¡£

¡¡¥¿¥ï¡¼¥Þ¥ó¥·¥ç¥ó·×²èÃÏ¤ÎÆîÀ¾Â¦¤Ç¤¹¡£

¡¡Ìó1,000֤ΡÖ(²¾¾Î)¾®Àî¤Ë¤®¤ï¤¤¹¾ì¡×¤¬À°È÷¤µ¤ì¤ëËÌÀ¾Â¦¤Ç¤¹¡£

¡¡ÆÃÄê¶È̳Âå¹Ô¼Ô¤Ç¤¢¤ë¸ÍÅÄ·úÀߤˤè¤Ã¤Æ¹©»ö¤¬¹Ô¤ï¤ì¤Æ¤ª¤ê¡¢¸½ÃϺî¶ÈͽÄê¤Ç¤Ï¡Ö1¹æ¶è²èƻϩ¡¢A-2¹©¶è¡¢¿ä¿Ê¹©¡×¤È¤Ê¤Ã¤Æ¤¤¤Þ¤·¤¿¡£

¡¡ÉßÃÏË̦¤ÎÃó¼Ö¾ìÅ郎·úÀߤµ¤ì¤ë¤¢¤¿¤ê¤Ç¤¹¡£¤³¤ÎÊդ꤬ÉßÃÏËÌü¤È¤Ê¤ê¤Þ¤¹¡£
ÃÏ¿Þ
ʪ·ï³µÍ×

¡¡·úÃ۷ײè¤Î¤ªÃΤ餻¤Ç¤¹¡£
¢£Êª·ï³µÍ×¢£
»ö¶È̾¡§¾®Àî±ØÀ¾¸ýÃ϶èÂè°ì¼ï»Ô³¹ÃϺƳ«È¯»ö¶È¤Ë·¸¤ë»ÜÀß·úÃÛʪ¿·ÃÛ¹©»ö
½êºßÃÏ¡§ÅìµþÅÔ¾®Ê¿»Ô¾®ÀîÀ¾Ä®£´ÃúÌܵڤӾ®ÀîÅìÄ®£±ÃúÌÜÃÏÆâ
¸òÄÌ¡§À¾Éô¹ñʬ»ûÀþ¡¦ÇÒÅçÀþ¡Ö¾®Àî¡×±Ø
ÍÑÅÓ¡§Å¹ÊÞ¡¢¿Þ½ñ´Û¡¢»ö̳½ê¡¢¶¦Æ±½»Âð¡¢Ãó¼Ö¾ì
Áí¸Í¿ô¡§219¸Í
³¬¿ô¡§ÃϾå27³¬¡¢Ãϲ¼1³¬
¹â¤µ¡§98.51m
¹½Â¤¡§Å´¶Ú¥³¥ó¥¯¥ê¡¼¥È¤ °ìÉô Å´¹ü¤
´ðÁù©Ë¡¡§Ä¾ÀÜ´ðÁáʹâÁØÅï¡Ë¡¢¹º´ðÁáÊÃó¼Ö¾ìÅï¡Ë
ÉßÃÏÌÌÀÑ¡§5,045.35Ö
·úÃÛÌÌÀÑ¡§3,528.91Ö
±ä¾²ÌÌÀÑ¡§40,385.81Ö
·úÃۼ硧¾®Àî±ØÀ¾¸ýÃ϶è»Ô³¹ÃϺƳ«È¯Áȹç
»²²ÃÁȹç°÷¡§°°²½À®ÉÔÆ°»º¥ì¥¸¥Ç¥ó¥¹
Àß·×¼Ô¡§INA¿··úÃÛ¸¦µæ½ê
»Ü¹©¼Ô¡§¡Ý
ÆÃÄê¶È̳Âå¹Ô¼Ô¡§¸ÍÅÄ·úÀß
¹©´ü¡§2023ǯ8·î1ÆüÃ幩¡Á2026ǯ3·î31Æü½×¹©Í½Äê
- ¥«¥Æ¥´¥ê
- ¾®Ê¿»Ô







