
¡¡Âçºå¡¦ÃæÇ·Åç¤Ç·úÀßÃæ¤Î¡Ö(²¾¾Î)ÃæÇ·Å磴ÃúÌṲ̈Íè°åÎŹñºÝµòÅÀ³«È¯¡×(ÃϾå17³¬¡¢¹â¤µ86m)¤Ç¤¹¡£Àèü°åÎŤθ¦µæµòÅÀ¡Ö̤Íè°åÎŹñºÝµòÅÀ¡×¤Ç¡¢ºÇÀèü¤Î¡Ö̤Íè°åΚפλº¶È²½¤Î¿ä¿ÊµÚ¤Ó¤½¤ÎÄ󶡤ˤè¤ë¹ñºÝ¹×¸¥¤Ë´óÍ¿¤¹¤ë¤³¤È¤¬¥³¥ó¥»¥×¥È¤È¤Ê¤Ã¤Æ¤¤¤Þ¤¹¡£¤³¤Îµ»ö¤Ç¤ÏƱ»ÜÀߤγµÍפä·úÀß¾õ¶·¡¢ÃÏ¿ÞÅù¤òºÜ¤»¤Æ¤¤¤Þ¤¹¡£
(²¾¾Î)ÃæÇ·Å磴ÃúÌṲ̈Íè°åÎŹñºÝµòÅÀ³«È¯¤Ë¤Ä¤¤¤Æ

´°À®Í½ÁÛ¿Þ[½Ðŵ¡§¹ñÅÚ¸òÄ̾Ê]
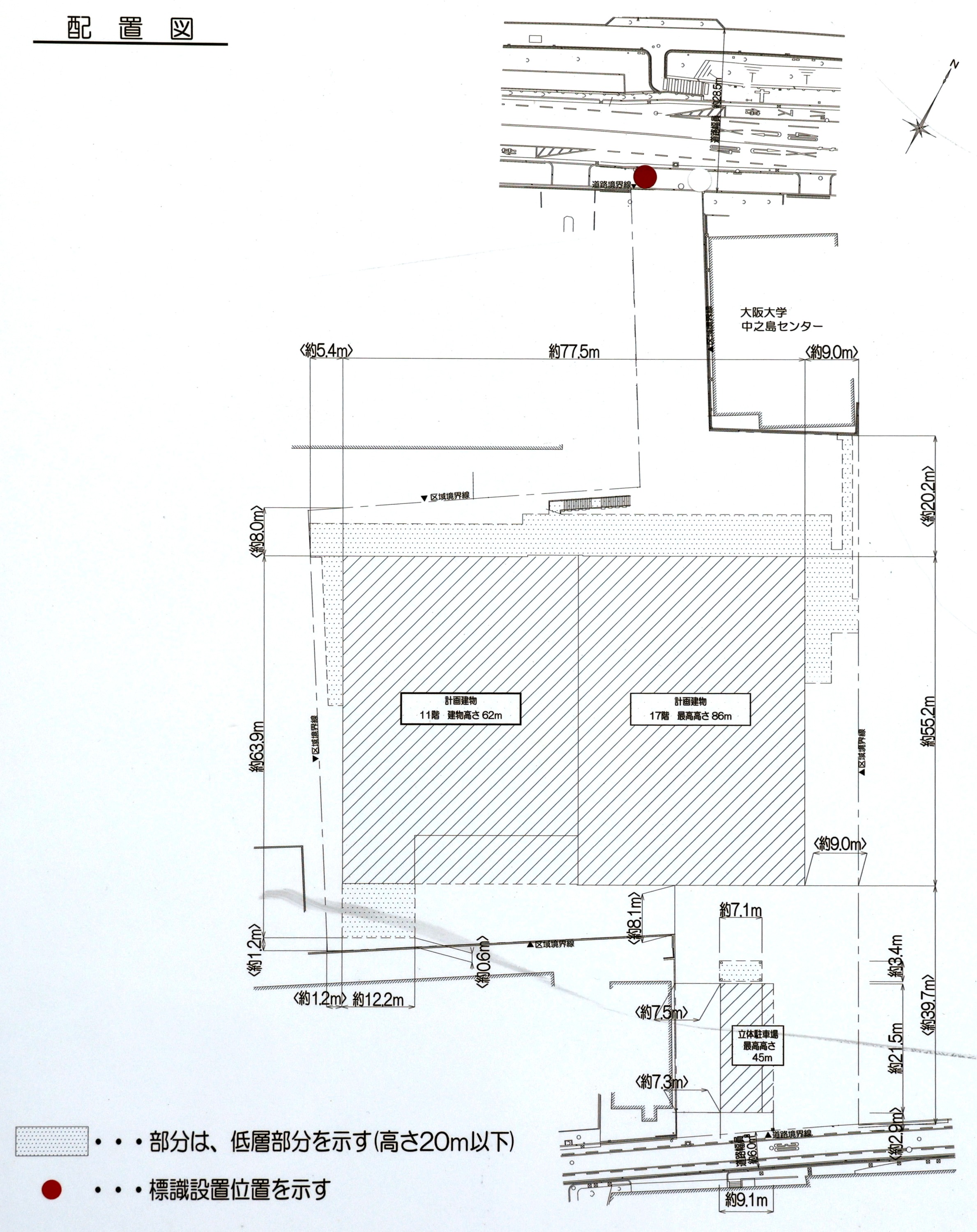
¡¡¡Ö(²¾¾Î)ÃæÇ·Å磴ÃúÌṲ̈Íè°åÎŹñºÝµòÅÀ³«È¯¡×¤ÏÂçºå¡¦ÃæÇ·Åç¤Ç·úÀßÃæ¤ÎÀèü°åÎŤθ¦µæµòÅÀ¤Ç¡¢µ¬ÌϤÏÃϾå17³¬¡¦Åã²°1³¬¡¢¹â¤µ86m¡¢ÉßÃÏÌÌÀÑ8,600Ö¡¢·úÃÛÌÌÀÑ5,472.83Ö¡¢±ä¾²ÌÌÀÑ5Ëü7067.84Ö¡¢·úÃÛ¼ç¤ÏÆüËÜÀ¸Ì¿Êݸ±¡¢µþºå¥Û¡¼¥ë¥Ç¥£¥ó¥°¥¹¡¢´ØÅÅÉÔÆ°»º³«È¯¡¢Àß·×¼Ô¤ÏÂçÎÓÁÈ¡¢»Ü¹©¼Ô¤ÏÂçÎÓÁÈ¡¦¥Õ¥¸¥¿ ·úÀß¶¦Æ±´ë¶ÈÂΤÇ2024ǯ1·îÃæ½Ü½×¹©Í½Äê¤È¤Ê¤Ã¤Æ¤¤¤Þ¤¹¡£

³µÍ׿Þ[½Ðŵ¡§¹ñÅÚ¸òÄ̾Ê]
¡¡Æ±»ÜÀߤÏÂ礤¯Ì¤Íè°åÎÅR&D¥»¥ó¥¿¡¼¡¦Ì¤Íè°åÎÅMED¥»¥ó¥¿¡¼¡¦ÃæÇ·Åç¹ñºÝ¥Õ¥©¡¼¥é¥à¤Ëʬ¤«¤ì¤Æ¤ª¤ê¡¢Ì¤Íè°åÎÅR&D¥»¥ó¥¿¡¼¤Ï¥ê¥¨¥¾¥ó¥ª¥Õ¥£¥¹¤ä»º³Ø°åÎÅÏ¢·È¥¹¥â¡¼¥ë¥ª¥Õ¥£¥¹¡¢¥¤¥ó¥¥å¥Ù¡¼¥·¥ç¥ó¥¹¥Ú¡¼¥¹¡¢¥³¥ï¡¼¥¯¥¹¥Ú¡¼¥¹¤Ê¤É¤¬ÇÛÃÖ¤µ¤ì¡¢ÍÍ¡¹¤Ê´ë¶È¤äµ¡´Ø¤¬½¸ÀѤ·¤Þ¤¹¡£
¡¡¤Þ¤¿¡¢Ì¤Íè°åÎÅMED¥»¥ó¥¿¡¼¤Ï¥²¥Î¥à°åÎŤäAI¿ÇÃǤʤɺÇÀèü°åÎŤòÄ󶡤¹¤ë°åÎŵ¡´Ø¤¬ÇÛÃÖ¤µ¤ì¡¢ÃæÇ·Åç¹ñºÝ¥Õ¥©¡¼¥é¥à¤Ïξ¥»¥ó¥¿¡¼¤ÎÄãÁØÉô¤Ë°ÌÃÖ¤·¡¢¥³¥ß¥å¥Ë¥Æ¥£¥«¥Õ¥§¡¢´ë¶È¥·¥ç¡¼¥ë¡¼¥à¡¢¥«¥ó¥Õ¥¡¥ì¥ó¥¹¥»¥ó¥¿¡¼¡¢CPC¡¦ºÙ˦¥Ð¥ó¥¯¤¬ÇÛÃÖ¤µ¤ì¤Þ¤¹¡£

´°À®Í½ÁÛ¿Þ[½Ðŵ¡§¹ñÅÚ¸òÄ̾Ê]
¡¡¡Ö̤Íè°åÎŹñºÝµòÅÀ¡×¤Ë¤ª¤±¤ë¡Ö»º³Ø°åÏ¢·È¥Ù¥ó¥Á¥ã¡¼¥¨¥³¥·¥¹¥Æ¥à¡×¤Î±¿±Ä»ö¶È¼Ô¤Ï»°°æÉÔÆ°»º¤Ë·èÄꤷ¤Æ¤ª¤ê¡¢Ì¤Íè°åÎÅR&D¥»¥ó¥¿¡¼¤Î3³¬¡Á5³¬¥Õ¥í¥¢¤Î±¿±Ä¤òôÅö¤·¤Þ¤¹¡£

¡¡·úÃ۷ײè¤Î¤ªÃΤ餻¤Ë·ÇºÜ¤µ¤ì¤Æ¤¤¤ëΩÌ̿ޤǤ¹¡£

¡¡ÀÜÆ»Éôʬ¤¬ÆîËÌξü¤Ë¾¯¤·¤¢¤ë¤À¤±¤Ç¡¢Ãæ¤ËÂ礤¯ÌÌÀѤò¼è¤Ã¤¿ÉßÃϤˤʤäƤ¤¤Þ¤¹¡£
°ÌÃÖ¿Þ

°ÌÃÖ¿Þ[½Ðŵ¡§»°°æÉÔÆ°»º]
¡¡¾ì½ê¤ÏƲÅçÀî¤ÈÅÚº´ËÙÀî¤Ë¶´¤Þ¤ì¤¿ÃæÇ·Åç¤Ç¡¢¤³¤Î¿Þ¤Ë¤ÏÆþ¤Ã¤Æ¤¤¤Þ¤»¤ó¤¬µþºåÃæÇ·ÅçÀþ¡ÖÃæÇ·Åç¡×±Ø¤Î¤¹¤°¶á¤¯¤Ç¡¢2031ǯÅÙ³«¶ÈͽÄê¤Î¤Ê¤Ë¤ï¶ÚÀþ¤Î¡ÖÃæÇ·Åç¡×±Ø¤ÎÅìÎÙ¤ê¤Ë°ÌÃÖ¤·¤Æ¤¤¤Þ¤¹¡£
·úÀß¾õ¶·

¡¡2022ǯ12·î7Æü¤ËƲÅçÀî±Û¤·¤Ë»£±Æ¤·¤¿¡Ö(²¾¾Î)ÃæÇ·Å磴ÃúÌṲ̈Íè°åÎŹñºÝµòÅÀ³«È¯¡×(ÃϾå17³¬¡¢¹â¤µ86m)¤Î·úÀßÃϤǤ¹¡£

¡¡¹â¤µ¤Ï86m¤·¤«¤Ê¤¤¤Ç¤¹¤¬¡¢¤½¤³¤½¤³Â礤ʥӥë¤Ë¤Ê¤Ã¤Æ¤¤¤Þ¤¹¡£

¡¡³°Êɤ¬ÀßÃÖ¤µ¤ì¤ëÁ°¤ÎÅ´¹ü¤à¤½Ð¤·¤Îº£¤Î»Ñ¤ÎÊý¤¬Ç÷ÎϤ¬¤¢¤ë¤«¤â¤·¤ì¤Þ¤»¤ó¡£

¡¡ÌܤÎÁ°¤Ë°Üư¤·¤Æ»£±Æ¡£º¸¤Î²¾°Ï¤¤¤¬¤¢¤ë¾ì½ê¤ÏƱ»ÜÀߤÎÉßÃϤΰìÉô¤È¤Ê¤ê¤Þ¤¹¤¬¡¢¼êÁ°¤ÎÃó¼Ö¾ì¤ÏÉßÃÏ¤Ë¤Ï´Þ¤Þ¤ì¤Æ¤¤¤Þ¤»¤ó¡£

¡¡º¸¤Î¹õ¤¤·úʪ¤Ï¡ÖÂçºåÃæÇ·ÅçÈþ½Ñ´Û¡×¤Ç¤¹¡£

¡¡¤½¤Î΢¤Ë¤Ï¡ÖÂçºå»ÔΩ²Ê³Ø´Û¡×¤¬¤¢¤ê¤Þ¤¹¡£

¡¡ÆîÅ즤«¤é¤ÏÄÌÏ©¤ÎÀè¤Ë¡Ö(²¾¾Î)ÃæÇ·Å磴ÃúÌṲ̈Íè°åÎŹñºÝµòÅÀ³«È¯¡×¤¬¸«¤¨¤Þ¤¹¡£

¡¡¡Ö(²¾¾Î)ÃæÇ·Å磴ÃúÌṲ̈Íè°åÎŹñºÝµòÅÀ³«È¯¡×¤ÎÎ٤ˤϡÖN4.TOWER¡×(ÃϾå34³¬¡¢¹â¤µ116.2m)¤¬¤¢¤ê¤Þ¤¹¡£

¡¡À¾Â¦¤«¤é»£±Æ¡£À¾Â¦¤¬Ì¤Íè°åÎÅMED¥»¥ó¥¿¡¼¤È¤Ê¤ê¤Þ¤¹¡£

¡¡¡Ö¥ê¡¼¥¬¥í¥¤¥ä¥ë¥Û¥Æ¥ëÂçºå¡×¤Î19³¬¥«¥Õ¥§¥é¥¦¥ó¥¸¤«¤é»£±Æ¤·¤¿¡Ö(²¾¾Î)ÃæÇ·Å磴ÃúÌṲ̈Íè°åÎŹñºÝµòÅÀ³«È¯¡×¤Ç¤¹¡£Å´¹ü¤à¤½Ð¤·¤ÎÊý¤¬¿ôÃͰʾå¤Î³¬¿ô¤¬¤¢¤ë¤è¤¦¤Ë¸«¤¨¤Þ¤¹¡£

¡¡¾¯¤·¹³Ñ¤Ç»£±Æ¡£ÃæÇ·Åç¤Î͹âÁإӥ뷲¤Î°ìÉô¤È¤Ê¤ê¤Þ¤¹¡£

¡¡½ÉÇñ¤·¤¿16³¬µÒ¼¼¤«¤é»£±Æ¡£

¡¡³¬¿ô¤ÏÈù̯¤«¤È»×¤¤¤Þ¤·¤¿¤¬¤Ê¤«¤Ê¤«Îɤ¤Ìë·Ê¤ò¸«¤ë¤³¤È¤¬¤Ç¤¤Þ¤·¤¿¡£
ÃÏ¿Þ
ʪ·ï³µÍ×

¢£Êª·ï³µÍ×¢£
»ö¶È̾¡§(²¾¾Î)ÃæÇ·Å磴ÃúÌṲ̈Íè°åÎŹñºÝµòÅÀ³«È¯
½êºßÃÏ¡§ÂçºåÉÜÂçºå»ÔË̶èÃæÇ·Å磴ÃúÌÜ32ÈÖ17
¸òÄÌ¡§µþºåÃæÇ·ÅçÀþ¡ÖÃæÇ·Åç¡×±Ø
¡¡¡¡¡¡ºå¿ÀËÜÀþ¡ÖÊ¡Åç¡×±Ø
¡¡¡¡¡¡JRÅìÀ¾Àþ¡Ö¿·Ê¡Åç¡×±Ø
¡¡¡¡¡¡Âçºå¥á¥È¥í»Í¤Ä¶¶Àþ¡ÖÈî¸å¶¶¡×±Ø
ÍÑÅÓ¡§»ö̳½ê¡¦É±¡¡¦¿ÇÎŽꡦ½¸²ñ½ê(ʪÈÎŹÊÞ¡¦Å¸¼¨¾ì¡¦°û¿©Å¹¡¦Ãó¼Ö¾ìÉÕ)
³¬¿ô¡§ÃϾå17³¬¡¦Åã²°1³¬
¹â¤µ¡§86m
¹½Â¤¡§Å´¹ü¤
ÉßÃÏÌÌÀÑ¡§8,600Ö
·úÃÛÌÌÀÑ¡§5,472.83Ö
±ä¾²ÌÌÀÑ¡§57,067.84Ö
·úÃۼ硧ÆüËÜÀ¸Ì¿Êݸ±¡¢µþºå¥Û¡¼¥ë¥Ç¥£¥ó¥°¥¹¡¢´ØÅÅÉÔÆ°»º³«È¯
Àß·×¼Ô¡§ÂçÎÓÁÈ ÂçºåËÜŹ°ìµé·úÃۻλö̳½ê
»Ü¹©¼Ô¡§ÂçÎÓÁÈ¡¦¥Õ¥¸¥¿ ·úÀß¶¦Æ±´ë¶ÈÂÎ
¹©´ü¡§2021ǯ11·î¾å½ÜÃ幩¡Á2024ǯ1·îÃæ½Ü½×¹©Í½Äê
- ¥«¥Æ¥´¥ê
- Âçºå»Ô







