
³°´Ñ´°À®Í½ÁÛCG[½Ðŵ¡§¸ø¼°HP]
¡¡Æ²ÅçÀî¤ËÌ̤·¤¿¥¿¥ï¡¼¥Þ¥ó¥·¥ç¥ó¡Ö¥·¥¨¥ê¥¢¥¿¥ï¡¼ÃæÇ·Åç¡×(ÃϾå46³¬¡¢¹â¤µ168m)¤Î´°À®Í½ÁۿޤǤ¹¡£ÌܤÎÁ°¤ÏÃæÇ·Åç¡¢ÇßÅĤˤâ¶á¤¤Áí¸Í¿ô364¸Í¤Îʬ¾ù¥¿¥ï¥Þ¥ó¤È¤Ê¤ê¤Þ¤¹¡£¤³¤Îµ»ö¤Ç¤ÏƱ¥¿¥ï¥Þ¥ó¤Î³µÍפä·úÀß¾õ¶·¡¢ÃÏ¿ÞÅù¤òºÜ¤»¤Æ¤¤¤Þ¤¹¡£
¥·¥¨¥ê¥¢¥¿¥ï¡¼ÃæÇ·Åç¤Ë¤Ä¤¤¤Æ

³°´Ñ´°À®Í½ÁÛCG[½Ðŵ¡§¸ø¼°HP]
¡¡¡Ö¥·¥¨¥ê¥¢¥¿¥ï¡¼ÃæÇ·Åç¡×¤ÏƲÅçÀî¤ËÌ̤·¤¿¾ì½ê¤Ë·úÀߤµ¤ì¤ë¥¿¥ï¡¼¥Þ¥ó¥·¥ç¥ó¤Ç¡¢ÃϾå46³¬¡¢¹â¤µ168.00m¡¢ÉßÃÏÌÌÀÑ2,972.83Ö¡¢·úÃÛÌÌÀÑ1,462.23Ö¡¢±ä¾²ÌÌÀÑ4Ëü6721.95Ö¡¢Áí¸Í¿ô364¸Í¡¢Çä¼ç¤Ï´ØÅÅÉÔÆ°»º³«È¯¡¢Àß·×¼Ô¤ÏIAOÃÝÅÄÀ߷פÈÂçÎÓÁÈ¡¢»Ü¹©¼Ô¤ÏÂçÎÓÁȤÇ2023ǯ2·î1ÆüÃ幩¡¢2026ǯ2·îËöÆü½×¹©¡¢2026ǯ3·îÆþµï³«»ÏͽÄê¤È¤Ê¤Ã¤Æ¤¤¤Þ¤¹¡£ÈÎÇ䳫»Ï¤Ï2023ǯ8·î¾å½ÜͽÄê¤Ç¤¹¡£

¡¡·úÃ۷ײè¤Î¤ªÃΤ餻¤Ë·ÇºÜ¤µ¤ì¤Æ¤¤¤ëΩÌ̿ޤǤ¹¡£

¡¡ÇÛÃֿޤǤ¹¡£¹â¤µ168m¤Î¥¿¥ï¡¼¥Þ¥ó¥·¥ç¥ó¤È¤·¤Æ¤Ï¶¹¤¤ÉßÃϤȤʤäƤ¤¤Þ¤¹¡£

³°´Ñ´°À®Í½ÁÛCG[½Ðŵ¡§¸ø¼°HP]
¡¡¥¨¥ó¥È¥é¥ó¥¹Éô¤Î´°À®Í½ÁۿޤǤ¹¡£

¥¨¥ó¥È¥é¥ó¥¹´°À®Í½ÁÛCG[½Ðŵ¡§¸ø¼°HP]
¡¡¥¨¥ó¥È¥é¥ó¥¹Æâ¤Ï¿á¤È´¤±¤Î¥¨¥¹¥«¥ì¡¼¥¿¡¼¤â¤¢¤ë¶õ´Ö¤È¤Ê¤ê¤Þ¤¹¡£
´Ö¼è¤ê¿Þ

P¥¿¥¤¥×[½Ðŵ¡§¸ø¼°HP]
¡¡P¥¿¥¤¥×¤Î´Ö¼è¤ê¿Þ¤Ç¤¹¡£´Ö¼è¤ê¤Ï2LDK¡¢ÀìÍÌÌÀѤÏ65.01Ö¡¢¥Ð¥ë¥³¥Ë¡¼ÌÌÀÑ10.67Ö¡¢¥µ¡¼¥Ó¥¹¥Ð¥ë¥³¥Ë¡¼ÌÌÀѤÏ2.92Ö¡¢¥¢¥ë¥³¡¼¥×ÌÌÀѤÏ2.10֤ȤʤäƤ¤¤Þ¤¹¡£

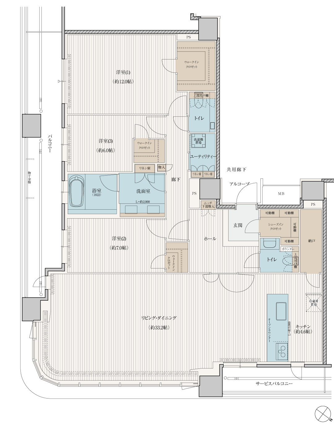
L¥¿¥¤¥×[½Ðŵ¡§¸ø¼°HP]
¡¡L¥¿¥¤¥×¤Î´Ö¼è¤ê¿Þ¤Ç¤¹¡£´Ö¼è¤ê¤Ï4LDK¡¢ÀìÍÌÌÀѤÏ93.40Ö¡¢¥Ð¥ë¥³¥Ë¡¼ÌÌÀÑ5.58Ö¡¢¥µ¡¼¥Ó¥¹¥Ð¥ë¥³¥Ë¡¼ÌÌÀѤÏ5.48Ö¡¢¥¢¥ë¥³¡¼¥×ÌÌÀѤÏ2.29֤ȤʤäƤ¤¤Þ¤¹¡£

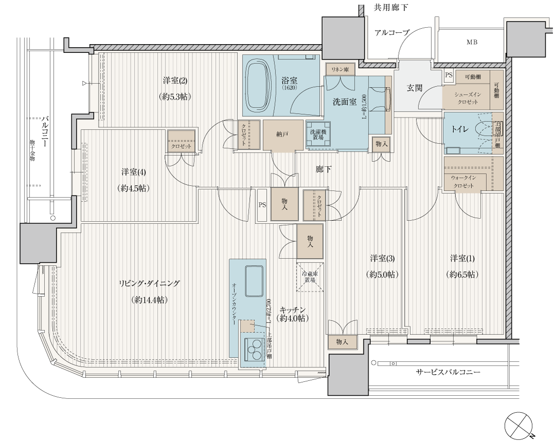
BB¥¿¥¤¥×[½Ðŵ¡§¸ø¼°HP]
¡¡BB¥¿¥¤¥×¤Î´Ö¼è¤ê¿Þ¤Ç¤¹¡£´Ö¼è¤ê¤Ï3LDK¡¢ÀìÍÌÌÀѤÏ152.93Ö¡¢¥Ð¥ë¥³¥Ë¡¼ÌÌÀÑ19.42Ö¡¢¥µ¡¼¥Ó¥¹¥Ð¥ë¥³¥Ë¡¼ÌÌÀѤÏ5.83Ö¡¢¥¢¥ë¥³¡¼¥×ÌÌÀѤÏ2.29֤ȤʤäƤ¤¤Þ¤¹¡£
°ÌÃÖ¿Þ

°ÌÃÖ¿Þ[½Ðŵ¡§¸ø¼°HP]
¡¡·úÀßÃÏ¤ÏÆ²ÅçÀî¤ËÌ̤·¤¿Ê¡Åç¶èÊ¡Åç2ÃúÌܤǡ¢µþºåÅżÖÃæÇ·ÅçÀþ¡ÖÃæÇ·Åç¡×±Ø¤ÎË̦¡¢ºå¿ÀËÜÀþ¡ÖÊ¡Åç¡×±Ø¡¢JRÅìÀ¾Àþ¡Ö¿·Ê¡Åç¡×±Ø¤ÎÆî¦¤Ë°ÌÃÖ¤·¤Æ¤¤¤Þ¤¹¡£¤Þ¤¿¡¢¶á¤¯¤Ë¤Ï·úÀßÃæ¤Î¤Ê¤Ë¤ï¶ÚÀþ¡ÖÃæÇ·Åç¡×±Ø¤¬2031ǯ½Õ¤Ë³«¶ÈͽÄê¤È¤Ê¤Ã¤Æ¤¤¤Þ¤¹¡£
·úÀß¾õ¶·

¡¡2022ǯ12·î7Æü¤ËƲÅçÀî±è¤¤¤ÎÊ¡ÅçÉÍÎÐÆ»¤«¤é»£±Æ¤·¤¿¡Ö¥·¥¨¥ê¥¢¥¿¥ï¡¼ÃæÇ·Åç¡×(ÃϾå46³¬¡¢¹â¤µ168m)¤Î·úÀßÃϤǤ¹¡£

¡¡¤Á¤ç¤¦¤É²¾°Ï¤¤¤¬³«¤¤¤¿¤Î¤Ç»£±Æ¡£¸½ÃϺî¶ÈͽÄê¤ò¸«¤ë¤È´û¸¶íÂβòÂι©»ö¤È¤Ê¤Ã¤Æ¤¤¤Þ¤·¤¿¡£

¡¡Ã幩ͽÄê¤Ï2023ǯ2·î1Æü¤È¤Ê¤Ã¤Æ¤¤¤Þ¤¹¡£

¡¡ÆîÀ¾Â¦¤«¤é»£±Æ¡£º¸ÎÙ(Ë̦)¤Ë¤Ï¡Ö´ØÀ¾ÅÅÎÏɱ¡¡×(ÃϾå18³¬¡¢¹â¤µ81m)¤¬¤¢¤ê¤Þ¤¹¡£

¡¡ËÌÀ¾Â¦¤«¤é»£±Æ¡£

¡¡Æ²ÅçÀî¤Ë²Í¤«¤ë¶¶¤«¤é»£±Æ¡£

¡¡´Ö¤Ë¥Ó¥ë¤ò1Åï¶´¤ß¤Þ¤¹¤¬¡¢Æî¦¤Ë¤Ï¡Ö¥¯¥ì¥ô¥£¥¢¥¿¥ï¡¼ÃæÇ·Åç¡×(ÃϾå36³¬¡¢¹â¤µ127.24m)¤¬¤¢¤ë¤Î¤Ç¡¢¤ª¸«¹ç¤¤Éô²°¤Ë¤Ê¤ë¤È¤½¤³¤½¤³µ¤¤Ë¤Ê¤ê¤½¤¦¤Ç¤¹¡£
ÃÏ¿Þ
ʪ·ï³µÍ×

¢£Êª·ï³µÍ×¢£
̾¾Î¡§¥·¥¨¥ê¥¢¥¿¥ï¡¼ÃæÇ·Åç
»ö¶È̾¡§(²¾¾Î)Âçºå»ÔÊ¡Åç¶èÊ¡Åç2ÃúÌÜ¥×¥í¥¸¥§¥¯¥È
½êºßÃÏ¡§ÂçºåÉÜÂçºå»ÔÊ¡Åç¶èÊ¡ÅçÆóÃúÌÜ3ÈÖ2(ÃÏÈÖ)
¸òÄÌ¡§µþºåÅżÖÃæÇ·ÅçÀþ¡ÖÃæÇ·Åç¡×±Ø ÅÌÊâ5ʬ
¡¡¡¡¡¡ºå¿ÀËÜÀþ¡ÖÊ¡Åç¡×±Ø ÅÌÊâ5ʬ
¡¡¡¡¡¡JRÅìÀ¾Àþ¡Ö¿·Ê¡Åç¡×±Ø ÅÌÊâ4ʬ
¡¡¡¡¡¡JRÂçºå´Ä¾õÀþ¡ÖÊ¡Åç¡×±Ø ÅÌÊâ7ʬ
ÍÑÅÓ¡§¶¦Æ±½»Âð
Áí¸Í¿ô¡§364¸Í
³¬¿ô¡§ÃϾå46³¬
¹â¤µ¡§168.00m
¹½Â¤¡§Å´¶Ú¥³¥ó¥¯¥ê¡¼¥È¤(°ìÉôÅ´¹ü¤)
ÉßÃÏÌÌÀÑ¡§2,972.83Ö
·úÃÛÌÌÀÑ¡§1,462.23Ö
±ä¾²ÌÌÀÑ¡§46,721.95Ö
»ö¶È¼ç¡§´ØÅÅÉÔÆ°»º³«È¯
Àß·×¼Ô¡§IAOÃÝÅÄÀ߷ס¢ÂçÎÓÁÈ ÂçºåËÜŹ°ìµé·úÃۻλö̳½ê
»Ü¹©¼Ô¡§ÂçÎÓÁÈ
¹©´ü¡§2023ǯ2·î1ÆüÃ幩¡Á2026ǯ2·îËöÆü½×¹©Í½Äê
Æþµï¡§2026ǯ3·îͽÄê
¸ø¼°HP¡§https://www.cielia.com/m/nakanoshima364/
- ¥«¥Æ¥´¥ê
- Âçºå»Ô







