
¡¡Âçºå¤ÎËÙ¹¾¤Ç·úÀßÃæ¤Î¥¿¥ï¡¼¥Þ¥ó¥·¥ç¥ó¡Ö¥·¥¨¥ê¥¢¥¿¥ï¡¼ÂçºåËÙ¹¾¡×(ÃϾå46³¬¡¢¹â¤µ164.55m)¤Ç¤¹¡£ËÌÀ¾Â¦¤Ë¤¢¤ëÊâÆ»¶¶¤«¤é2022ǯ12·î6Æü¤Ë»£±Æ¤·¤Þ¤·¤¿¡£´ØÅÅÉÔÆ°»º¡¢½»Í§ÉÔÆ°»º¡¢¥Ñ¥Ê¥½¥Ë¥Ã¥¯¥Û¡¼¥à¥º¤Î3¼Ò¤¬Çä¼ç¤È¤Ê¤ë¥¨¥ê¥¢ºÇÂçµé¤Î¥Õ¥é¥Ã¥°¥·¥Ã¥×¥×¥í¥¸¥§¥¯¥È¤È¤Ê¤Ã¤Æ¤¤¤Þ¤¹¡£¤³¤Îµ»ö¤Ç¤ÏƱ¥¿¥ï¥Þ¥ó¤Î³µÍפä·úÀß¾õ¶·¡¢ÃÏ¿ÞÅù¤òºÜ¤»¤Æ¤¤¤Þ¤¹¡£
¥·¥¨¥ê¥¢¥¿¥ï¡¼ÂçºåËÙ¹¾¤Ë¤Ä¤¤¤Æ

³°´Ñ´°Í½ÁÛ¿Þ[½Ðŵ¡§¸ø¼°HP]
¡¡¡Ö¥·¥¨¥ê¥¢¥¿¥ï¡¼ÂçºåËÙ¹¾¡×¤Ï¡ÖÀ¾Ä¹Ë١ױؤȡֺùÀî¡×±Ø¤ÎÃæ´Ö¤¯¤é¤¤¤Ë°ÌÃÖ¤¹¤ë¥¿¥ï¡¼¥Þ¥ó¥·¥ç¥ó¤Ç¡¢µ¬ÌϤÏÃϾå46³¬¡¢¹â¤µ164.55m¡¢ÉßÃÏÌÌÀÑ3,708.92Ö¡¢·úÃÛÌÌÀÑ1,804.49Ö¡¢±ä¾²ÌÌÀÑ5Ëü3700.82Ö¡¢Áí¸Í¿ô500¸Í¡¢·úÃÛ¼ç(Çä¼ç)¤Ï´ØÅÅÉÔÆ°»º³«È¯¡¢½»Í§ÉÔÆ°»º¡¢¥Ñ¥Ê¥½¥Ë¥Ã¥¯ ¥Û¡¼¥à¥º¡¢Àß·×¼Ô¤ÏÂçÎÓÁȤÈÅÔ»Ô·ú°ìµé·úÃۻλö̳½ê¡¢»Ü¹©¼Ô¤ÏÂçÎÓÁȤÇ2024ǯ8·î²¼½Ü½×¹©¡¢2024ǯ9·îÃæ½ÜÆþµï³«»ÏͽÄê¤È¤Ê¤Ã¤Æ¤¤¤Þ¤¹¡£
¡¡¸½ºß¤Ï64¸Í¤¬ÀèÃå½çÈÎÇäÃæ¤Ç¡¢´Ö¼è¤ê¤Ï1LDK¡Á4LDK¡¢ÀìÍÌÌÀѤÏ45.15Ö¡Á109.39Ö¡¢¥Ð¥ë¥³¥Ë¡¼ÌÌÀѤÏ2.70Ö¡Á24.06Ö¡¢¥µ¡¼¥Ó¥¹¥Ð¥ë¥³¥Ë¡¼ÌÌÀѤÏ1.90Ö¡Á7.36Ö¡¢ÈÎÇä²Á³Ê¤Ï4360Ëü±ß¡Á1²¯7100Ëü±ß¡¢´ÉÍýÈñ¤Ï·î³Û1Ëü1100±ß¡Á2Ëü6700±ß¡¢½¤Á¶ÀÑΩ¶â¤Ï4600±ß¡Á1Ëü1000±ß¤È¤Ê¤Ã¤Æ¤¤¤Þ¤¹¡£

ÉßÃÏÇÛÃÖ¥¤¥á¡¼¥¸¥¤¥é¥¹¥È[½Ðŵ¡§¸ø¼°HP]
¡¡ÉßÃϤÏ3Êý¸þ¤¬ÀÜÆ»¤·¤¿³ÑÃϤÇÀ¾Â¦¤Ï¿·¤Ê¤Ë¤ï¶Ú¤ËÌ̤·¤Æ¤¤¤Þ¤¹¡£³°¹½Éô¤ÎÇò»Í³Ñ¤Î1¤Ï¥×¥í¥à¥Ê¡¼¥É¥¬¡¼¥Ç¥ó¡¢2¤Ï¥×¥ì¥¤¤Ù¡¼¤È¥¬¡¼¥Ç¥ó¡¢3¤Ï¥·¡¼¥º¥ó¥º¥¬¡¼¥Ç¥ó¡¢4¤Ï¥¢¥×¥í¡¼¥Á¥¬¡¼¥Ç¥ó¡¢5¤Ï¥³¥ß¥å¥Ë¥Æ¥£¥¬¡¼¥Ç¥ó¤È¤Ê¤Ã¤Æ¤¤¤Þ¤¹¡£
¡¡¤½¤·¤ÆÎп§¤Î»Í³Ñ¤Î1¤Ï¥ª¡¼¥Ê¡¼¥º¥¬¡¼¥Ç¥ó¡¢2¤Ï¥°¥é¥ó¥É¥¨¥ó¥È¥é¥ó¥¹¡¢3¤ÏEV¥Û¡¼¥ë¡¢4¤Ï¥¿¥ï¡¼¥Ñ¡¼¥¥ó¥°(208Âæ)¡¢5¤ÏÊ⡦¼Ö¡¦¼«Å¾¼ÖʬΥưÀþ¡¢6¤Ï¥µ¥Ö¥¨¥ó¥È¥é¥ó¥¹¡¢7¤Ï¥³¥ó¥·¥§¥ë¥¸¥å¥«¥¦¥ó¥¿¡¼¤È¤Ê¤Ã¤Æ¤¤¤Þ¤¹¡£

³°´Ñ´°Í½ÁÛ¿Þ[½Ðŵ¡§¸ø¼°HP]
¡¡¿·¤Ê¤Ë¤ï¶Ú¦ÄãÁØÉô¤Î´°À®Í½ÁۿޤǤ¹¡£

³°´Ñ´°Í½ÁÛ¿Þ[½Ðŵ¡§¸ø¼°HP]
¡¡ÆîÀ¾Â¦ÄãÁØÉô¤Ç¤¹¡£¼êÁ°¤Ï¥³¥ß¥å¥Ë¥Æ¥£¥¬¡¼¥Ç¥ó¤Ç¡¢Ãϰè¤ÎÊý¤âÍøÍѤǤ¤ë¥Ù¥ó¥Á¤¬ÀßÃÖ¤µ¤ì¤¿Äí¤È¤Ê¤ê¤Þ¤¹¡£

¥«¡¼¥¨¥ó¥È¥é¥ó¥¹´°Í½ÁÛ¿Þ[½Ðŵ¡§¸ø¼°HP]
¡¡½Å¸ü´¶¤Î¤¢¤ë²ÖÖ¾´ä¤ÎÌçÃì¤òÀߤ¨¤¿¥«¡¼¥¨¥ó¥È¥é¥ó¥¹¤ÏËÌÅ즤ËÀßÃÖ¤µ¤ì¡¢¥µ¥Ö¥¨¥ó¥È¥é¥ó¥¹¤âƱ¤¸¤¯ËÌÅ즤ËÀßÃÖ¤µ¤ì¤Þ¤¹¡£

¥¨¥ó¥È¥é¥ó¥¹´°Í½ÁÛ¿Þ[½Ðŵ¡§¸ø¼°HP]
¡¡¥¨¥ó¥È¥é¥ó¥¹Éô¤Î´°À®Í½ÁۿޤǤ¹¡£¡£

¥×¥í¥à¥Ê¡¼¥É¥¬¡¼¥Ç¥ó´°Í½ÁÛ¿Þ[½Ðŵ¡§¸ø¼°HP]
¡¡ÉßÃÏË̦¤Î¥×¥í¥à¥Ê¡¼¥É¥¬¡¼¥Ç¥ó¤Ç¤¹¡£

³°¹½¥²¡¼¥È´°Í½ÁÛ¿Þ[½Ðŵ¡§¸ø¼°HP]
¡¡³°¹½¤Î¿¢ºÏ¤Ë¤è¤ê»Íµ¨¤ò³Ú¤·¤á¤ë¾ì½ê¤È¤Ê¤ê¤Þ¤¹¡£

¥°¥é¥ó¥É¥¨¥ó¥È¥é¥ó¥¹´°Í½ÁÛ¿Þ[½Ðŵ¡§¸ø¼°HP]
¡¡¥°¥é¥ó¥É¥¨¥ó¥È¥é¥ó¥¹¤Ï²ÖÖ¾´ä¤ÎÊɤȥ·¥ã¡¼¥×¤Ê¥¥ã¥Î¥Ô¡¼¤¬Å¡Âð¤È¤·¤Æ¤ÎÉʳʤòɽ¤·¤Þ¤¹¡£

¥ª¡¼¥Ê¡¼¥º¥é¥¦¥ó¥¸´°Í½ÁÛ¿Þ[½Ðŵ¡§¸ø¼°HP]
¡¡¥ª¡¼¥Ê¡¼¥º¥é¥¦¥ó¥¸¤«¤é¤Ï¿·¤Ê¤Ë¤ï¶Ú±è¤¤¤Î¥¬¡¼¥Ç¥ó¤¬Áë°ìÌ̤˹¤¬¤ê¤Þ¤¹¡£

¥¹¥«¥¤¥é¥¦¥ó¥¸´°Í½ÁÛ¿Þ[½Ðŵ¡§¸ø¼°HP]
¡¡¶¦ÍÑ»ÜÀߤȤ·¤Æ30³¬¤Ë¥¹¥«¥¤¥é¥¦¥ó¥¸¤¬ÀßÃÖ¤µ¤ì¤Þ¤¹¡£

¥Ñ¡¼¥Æ¥£¥é¥¦¥ó¥¸´°Í½ÁÛ¿Þ[½Ðŵ¡§¸ø¼°HP]
¡¡¶¦ÍÑ»ÜÀߤȤ·¤Æ¥Ñ¡¼¥Æ¥£¥é¥¦¥ó¥¸¤âÀßÃÖ¤µ¤ì¤Þ¤¹¡£

¥²¥¹¥È¥ë¡¼¥à-²í-´°Í½ÁÛ¿Þ[½Ðŵ¡§¸ø¼°HP]
¡¡ÏÂÉ÷¤Î¥²¥¹¥È¥ë¡¼¥à¤â¤¢¤ê¤Þ¤¹¡£

¥ï¡¼¥¯¡õ¥¹¥¿¥Ç¥£¥ë¡¼¥à´°Í½ÁÛ¿Þ[½Ðŵ¡§¸ø¼°HP]
¡¡¥ï¡¼¥¯¡õ¥¹¥¿¥Ç¥£¥ë¡¼¥à¤â¤¢¤ê¤Þ¤¹¡£

³°´Ñ´°Í½ÁÛ¿Þ[½Ðŵ¡§¸ø¼°HP]
¡¡Ãæ¹âÁØÉô¤Î´°À®Í½ÁۿޤǤ¹¡£Ë̦½»¸Í¤«¤é¤ÏÇßÅÄÊýÌ̤Î͹âÁإӥ뷲¤ò˾¤à¤³¤È¤¬¤Ç¤¤Þ¤¹¡£

³°´Ñ´°Í½ÁÛ¿Þ[½Ðŵ¡§¸ø¼°HP]
¡¡Æî¦¤Ë¤ÏÆ»ÆÜËÙÀ¤¢¤ëΩÃϤǡ¢ÂçÎÓÁȤÎ͹âÁØÀ©¿¶¹½Â¤¥·¥¹¥Æ¥à¡Ö¥Ç¥å¥¢¥ë¡¦¥Õ¥ì¡¼¥à¡¦¥·¥¹¥Æ¥à¡×¤òºÎÍѤ·¤¿¼þÊÕ¥¨¥ê¥¢¤Ç¤ÏºÇ¤â¹â¤¤·úʪ¤È¤Ê¤ê¤Þ¤¹¡£
´Ö¼è¤ê¿Þ

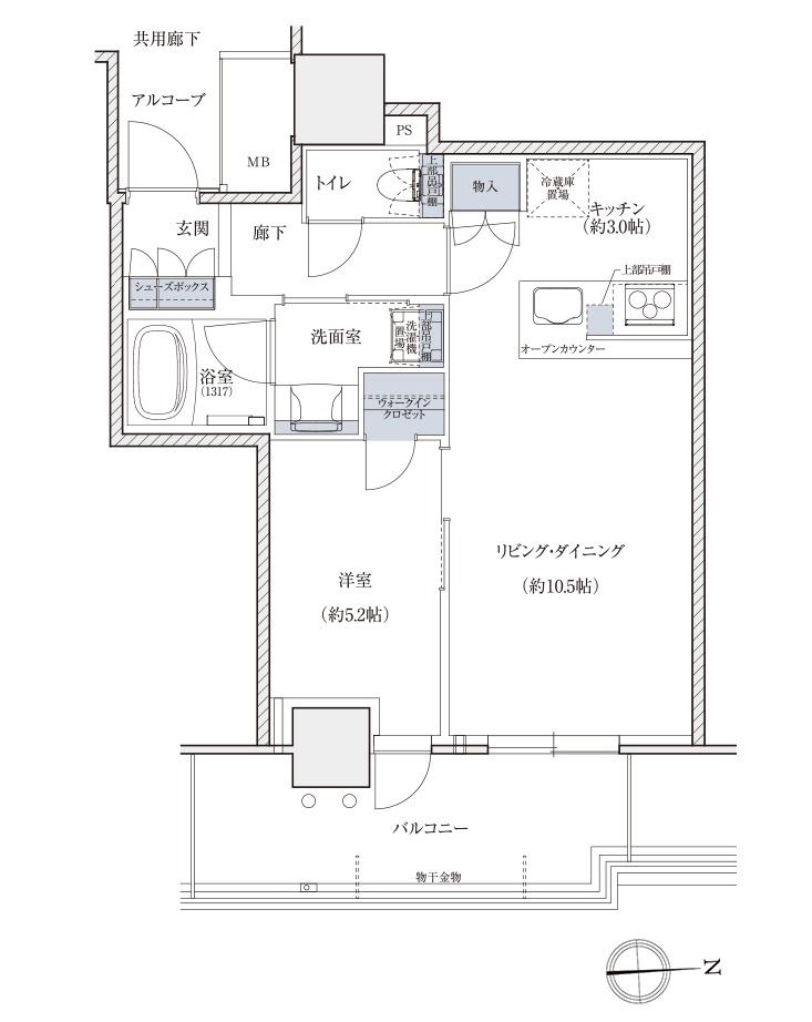
AL¥¿¥¤¥×[½Ðŵ¡§¸ø¼°HP]
¡¡¸ø³«¤µ¤ì¤Æ¤¤¤ëÃæ¤Ç¤ÏºÇ¤â¶¹¤¤AL¥¿¥¤¥×¤Î´Ö¼è¤ê¿Þ¤Ç¤¹¡£´Ö¼è¤ê¤Ï1LDK+WIC¡¢ÀìÍÌÌÀѤÏ45.15Ö¡¢¥Ð¥ë¥³¥Ë¡¼ÌÌÀѤÏ9.77֤ȤʤäƤ¤¤Þ¤¹¡£

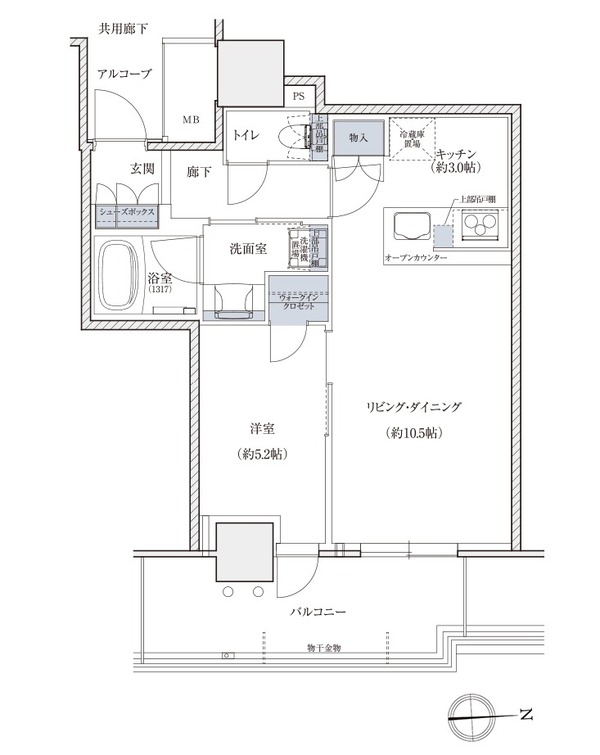
AM¥¿¥¤¥×[½Ðŵ¡§¸ø¼°HP]
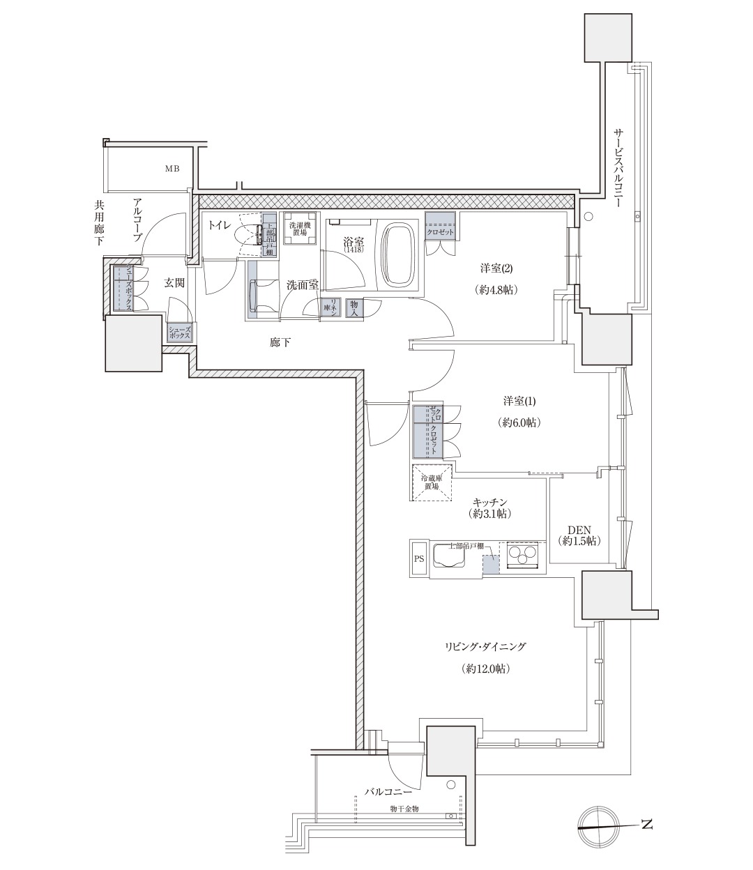
¡¡AM¥¿¥¤¥×¤Î´Ö¼è¤ê¿Þ¤Ç¤¹¡£´Ö¼è¤ê¤Ï2LDK+DEN¡¢ÀìÍÌÌÀѤÏ66.63Ö¡¢¥Ð¥ë¥³¥Ë¡¼ÌÌÀѤÏ4.20Ö¡¢¥µ¡¼¥Ó¥¹¥Ð¥ë¥³¥Ë¡¼ÌÌÀѤÏ5.49֤ȤʤäƤ¤¤Þ¤¹¡£

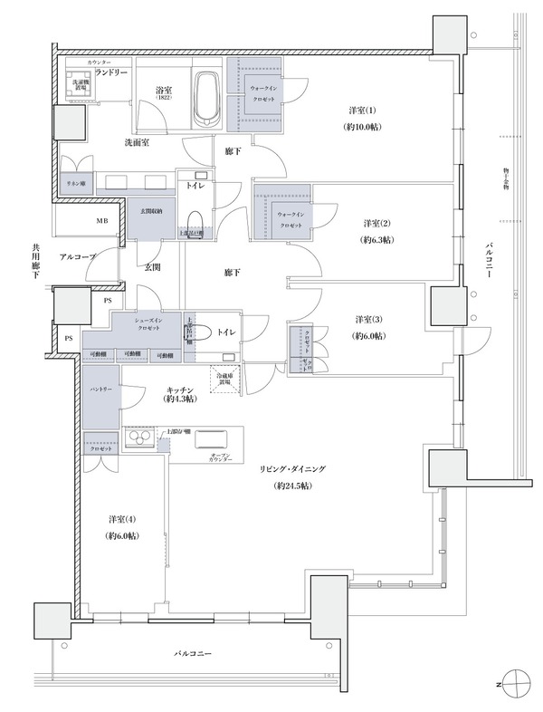
ED¥¿¥¤¥×[½Ðŵ¡§¸ø¼°HP]
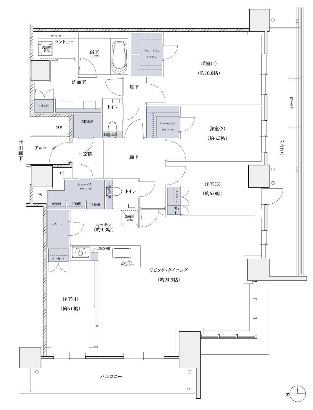
¡¡¸ø³«¤µ¤ì¤Æ¤¤¤ëÃæ¤Ç¤ÏºÇ¤â¹¤¤ED¥¿¥¤¥×¤Î´Ö¼è¤ê¿Þ¤Ç¤¹¡£´Ö¼è¤ê¤Ï4LDK+2WIC+SIC+¸¼´Ø¼ýǼ¡¢ÀìÍÌÌÀѤÏ138.87Ö¡¢¥Ð¥ë¥³¥Ë¡¼ÌÌÀѤÏ28.72֤ȤʤäƤ¤¤Þ¤¹¡£
°ÌÃÖ¿Þ

°ÌÃÖ¿Þ[½Ðŵ¡§¸ø¼°HP]
¡¡·úÀßÃϤϡÖÀ¾Ä¹Ë١ױؤȡֺùÀî¡×±Ø¤ÎÃæ´Ö¤¯¤é¤¤¤Ë°ÌÃÖ¤·¤Æ¤ª¤ê4Ï©Àþ5±Ø¤¬ÅÌÊâ·÷¤Ë¤¢¤ê¤Þ¤¹¡£
·úÀß¾õ¶·

¡¡2022ǯ12·î6Æü¤ËËÌÅ즤«¤é»£±Æ¤·¤¿¡Ö¥·¥¨¥ê¥¢¥¿¥ï¡¼ÂçºåËÙ¹¾¡×(ÃϾå46³¬¡¢¹â¤µ164.55m)¤Ç¤¹¡£

¡¡ËÌÀ¾Â¦¤Î¿·¤Ê¤Ë¤ï¶Ú¤Ë²Í¤«¤ëÊâÆ»¶¶¤«¤é»£±Æ¡£ÌܤÎÁ°¤Î¿·¤Ê¤Ë¤ï¶Ú¤Ë¤Ï²£ÃÇÊâÆ»¤â¤¢¤ê¡¢ÅϤä¿Àè¤Ë¤Ï¡Ö´ØÀ¾¥¹¡¼¥Ñ¡¼ ÆîËÙ¹¾Å¹¡×¤¬¤¢¤ë¤¿¤áÆü¾ï¤ÎÇ㤤ʪ¤Ëº¤¤ë¤³¤È¤Ï¤¢¤ê¤Þ¤»¤ó¡£

¡¡ÆîÀ¾Â¦¤«¤é»£±Æ¡£»£±Æ»þ¤Ï9³¬ÄøÅ٤ޤǷúÀߤ¬¿Ê¤ó¤Ç¤¤¤Þ¤·¤¿¡£46³¬·ú¤Æ¤Ê¤Î¤Ç¤Þ¤À1/5ÄøÅ٤ι⤵¤Ç¤¹¡£

¡¡ÆîÅ즤«¤é»£±Æ¡£¤¹¤°¶á¤¯¤Ë¤ÏÆ»ÆÜËÙÀ¤¢¤ê¤Þ¤¹¡£

¡¡¡Ö¤¢¤Ù¤Î¥Ï¥ë¥«¥¹¡×¤ÎÅ¸Ë¾Âæ¤«¤é»£±Æ¤·¤¿¡Ö¥·¥¨¥ê¥¢¥¿¥ï¡¼ÂçºåËÙ¹¾¡×¤Ç¤¹¡£

¡¡¤³¤³¤«¤é¸«¤ë¤È¤Ê¤ó¤Ð¤Î͹âÁØ¥Ó¥ë¤Îº¸Â¦¤Ë¸«¤¨¤Þ¤¹¡£
ÃÏ¿Þ
ʪ·ï³µÍ×

¡¡·úÃ۷ײè¤Î¤ªÃΤ餻¤Ç¤¹¡£
¢£Êª·ï³µÍ×¢£
̾¾Î¡§¥·¥¨¥ê¥¢¥¿¥ï¡¼ÂçºåËÙ¹¾
»ö¶È̾¡§(²¾¾Î)ÆîËÙ¹¾£³ÃúÌÜ¥×¥í¥¸¥§¥¯¥È
½êºßÃÏ¡§ÂçºåÉÜÂçºå»ÔÀ¾¶èÆîËÙ¹¾»°ÃúÌÜ17ÈÖ8¡¢8ÈÖ1(ÃÏÈÖ)
¸òÄÌ¡§Osaka MetroĹËÙÄḫÎÐÃÏÀþ¡ÖÀ¾Ä¹ËÙ¡×±Ø ÅÌÊâ4ʬ
¡¡¡¡¡¡Osaka MetroÀéÆüÁ°Àþ¡ÖÀ¾Ä¹ËÙ¡×±Ø ÅÌÊâ4ʬ
¡¡¡¡¡¡Osaka MetroÀéÆüÁ°Àþ¡ÖºùÀî¡×±Ø ÅÌÊâ4ʬ
¡¡¡¡¡¡ºå¿À¤Ê¤ó¤ÐÀþ¡ÖºùÀî¡×±Ø ÅÌÊâ3ʬ
¡¡¡¡¡¡Æî³¤¹âÌîÀþ¡Ö¼®¸«¶¶¡×±ØÅÌÊâ4ʬ
ÍÑÅÓ¡§¶¦Æ±½»Âð¡Êʬ¾ù¡Ë
Áí¸Í¿ô¡§500¸Í
³¬¿ô¡§ÃϾå46³¬
¹â¤µ¡§164.55m
¹½Â¤¡§Å´¶Ú¥³¥ó¥¯¥ê¡¼¥È¤¡¢À©¿¶¹½Â¤
ÉßÃÏÌÌÀÑ¡§3,708.92Ö
·úÃÛÌÌÀÑ¡§1,804.49Ö
±ä¾²ÌÌÀÑ¡§53,700.82Ö
·úÃۼ硧´ØÅÅÉÔÆ°»º³«È¯¡¢½»Í§ÉÔÆ°»º¡¢¥Ñ¥Ê¥½¥Ë¥Ã¥¯ ¥Û¡¼¥à¥º
Àß·×¼Ô¡§ÂçÎÓÁÈ ÂçºåËÜŹ°ìµé·úÃۻλö̳½ê¡¢ÅÔ»Ô·ú°ìµé·úÃۻλö̳½ê
»Ü¹©¼Ô¡§ÂçÎÓÁÈ
¹©´ü¡§2021ǯ5·î¾å½Ü½àÈ÷¹©»öÃ幩¡¢8·î¾å½ÜËÜÂι©»öÃ幩¡Á2024ǯ8·î²¼½Ü½×¹©Í½Äê
Æþµï¡§2024ǯ9·îÃæ½ÜÆþµï³«»ÏͽÄê
¸ø¼°HP¡§https://www.cielia.com/m/horie500/
- ¥«¥Æ¥´¥ê
- Âçºå»Ô







