
¡¡´ôÉì¤Ç·úÀßÃæ¤Î¥¿¥ï¡¼¥Þ¥ó¥·¥ç¥ó¡Ö¥é¥¤¥ª¥ó¥º´ôÉì¥×¥ì¥ß¥¹¥È¥¿¥ï¡¼35¡×(ÃϾå35³¬¡¢ºÇ¹â¹â¤µ132.64m)¤Ç¤¹¡£2022ǯ11·î25Æü¤Ë¡Ö´ôÉ쥷¥Æ¥£¡¦¥¿¥ï¡¼43¡×¤Î43³¬¤Ë¤¢¤ë̵ÎÁŸ˾¼¼¤«¤é»£±Æ¤·¤Þ¤·¤¿¡£ÄãÁØÉô¤Ë¾¦¶È»ÜÀߤ䏸±×»ÜÀߤ¬Æþ¤ëʬ¾ù¥¿¥ï¥Þ¥ó¤Ç¤¹¡£¤³¤Îµ»ö¤Ç¤ÏƱ¥¿¥ï¥Þ¥ó¤Î³µÍפä·úÀß¾õ¶·¡¢ÃÏ¿ÞÅù¤òºÜ¤»¤Æ¤¤¤Þ¤¹¡£
¥é¥¤¥ª¥ó¥º´ôÉì¥×¥ì¥ß¥¹¥È¥¿¥ï¡¼35¤Ë¤Ä¤¤¤Æ

³°´Ñ´°À®Í½ÁÛ¿Þ[½Ðŵ¡§¸ø¼°HP]
¡¡¡Ö¥é¥¤¥ª¥ó¥º´ôÉì¥×¥ì¥ß¥¹¥È¥¿¥ï¡¼35¡×¤ÏJR´ôÉì±Ø¤«¤éË̦¤ØÅÌÊâ13ʬ¤Î°ÌÃ֤˷ú¤Ä¥¿¥ï¡¼¥Þ¥ó¥·¥ç¥ó¤Ç¡¢µ¬ÌϤÏÃϾå35³¬¡¢Ãϲ¼1³¬¡¢ÉßÃÏÌÌÀÑ6,467.71m2¡¢·úÃÛÌÌÀÑ5,718.92Ö¡¢±ä¾²ÌÌÀÑ5Ëü7790.65Ö¡¢»ö¶È¼Ô¤Ï¹âÅç²°Æî»Ô³¹ÃϺƳ«È¯Áȹç¡Ê»²²ÃÁȹç°÷¡¦Çä¼ç¡§Âçµþ¡¢ÂçÏ¥ϥ¦¥¹¹©¶È¡Ë¡¢À߷׼ԤȻܹ©¼Ô¤Ï¸ÍÅÄ·úÀߤÇ2023ǯ2·î½×¹©¡¢2023ǯ3·îÆþµï³«»ÏͽÄê¤È¤Ê¤Ã¤Æ¤¤¤Þ¤¹¡£
¡¡¸½ºß¤Ï25¸Í¤¬ÀèÃå½ç¼õÉÕÃæ¤Ç¡¢ÈÎÇä´Ö¼è¤ê¤Ï1LDK¡Á3LDK¡¢ÀìÍÌÌÀѤÏ46.90Ö¡Á91.57Ö¡¢¥Ð¥ë¥³¥Ë¡¼ÌÌÀѤÏ7.61Ö¡Á18.31Ö¡¢ÈÎÇä²Á³Ê¤Ï2470Ëü±ß¡Á5900Ëü±ß¤È¤Ê¤Ã¤Æ¤¤¤Þ¤¹¡£

³µÇ°¿Þ[½Ðŵ¡§¸ø¼°HP]
¡¡»ÜÀßÁ´ÂΤÎ̾¾Î¤Ï¡ÖÌø¥±À¥¥°¥é¥Ã¥¹¥ë35¡×¤Ç¡Ö¥°¥é¥Ã¥¹¥ë¡×¤Ï¡ÖGLASS¡Ê¥¬¥é¥¹¡Ë¡×¡ÖGRASS¡ÊÎСˡסÖCASTLE¡Ê¾ë¡Ë¡×¤ò³Ý¤±¹ç¤ï¤»¤¿Â¤¸ì¤È¤Ê¤Ã¤Æ¤¤¤Þ¤¹¡£
¡¡¥Õ¥í¥¢¹½À®¤Ï1¡Á2³¬¤¬¾¦¶È»ÜÀß¡¢3¡Á4³¬¤¬¸ø±×»ÜÀߡʷò¹¯±¿Æ°»ÜÀß¡¦»Ò°é¤Æ»Ù±ç»ÜÀߡˡ¢¤½¤·¤Æ5¡Á35³¬¤¬½»Âð¥Õ¥í¥¢¤Ç¡Ö¥é¥¤¥ª¥ó¥º´ôÉì¥×¥ì¥ß¥¹¥È¥¿¥ï¡¼35¡×¤È¤Ê¤Ã¤Æ¤¤¤Þ¤¹¡£¶¦ÍÑ»ÜÀߤȤ·¤Æ5³¬¤ËËɲ»¥ë¡¼¥à¡¢6³¬¤Ë¥²¥¹¥È¥ë¡¼¥à¡¢25³¬¤Ë¥¹¥«¥¤¥é¥¦¥ó¥¸¤¬ÇÛÃÖ¤µ¤ì¤Þ¤¹¡£

¥¨¥ó¥È¥é¥ó¥¹¥Û¡¼¥ë´°À®Í½ÁÛ¿Þ[½Ðŵ¡§¸ø¼°HP]
¡¡Å·°æ¹âÌó5m¤È¤Ê¤ë¥¨¥ó¥È¥é¥ó¥¹¥Û¡¼¥ë¤Î´°À®Í½ÁۿޤǤ¹¡£

¥«¡¼¥¨¥ó¥È¥é¥ó¥¹¡õÃó¼Ö¾ì´°À®Í½ÁÛ¿Þ[½Ðŵ¡§¸ø¼°HP]
¡¡Ãó¼Ö¾ì¤Ï303ÂæÊ¬¤Î¼«Áö¼°Î©ÂÎÃó¼Ö¾ì¤Ç¡¢¥Þ¥ó¥·¥ç¥ó5³¬¤È¤Ê¤ëÃó¼Ö¾ì¤Î8³¬Éôʬ¤Ë¤Ï¥¦¥¨¥¤¥Æ¥£¥ó¥°¥¹¥Ú¡¼¥¹¤È¤·¤ÆÍøÍѤǤ¤ë¼Ö´ó¤»¤¬¤¢¤ê¡¢±«Å·»þ¤âǨ¤ì¤ë¤³¤È¤Ê¤¯¾è¹ß¤¬²Äǽ¤È¤Ê¤Ã¤Æ¤¤¤Þ¤¹¡£

¥²¥¹¥È¥ë¡¼¥à´°À®Í½ÁÛ¿Þ[½Ðŵ¡§¸ø¼°HP]
¡¡6³¬¤Ë¤Ï¶¦ÍÑ»ÜÀߤȤ·¤Æ¥²¥¹¥È¥ë¡¼¥à¤¬ÇÛÃÖ¤µ¤ì¤Þ¤¹¡£¤Þ¤¿¡¢1¤Ä²¼¤Î5³¬¤Ë¤Ï³Ú´ï¤Î±éÁÕ¤ä±Ç²è´Õ¾Þ¤Ê¤É¤ËÍøÍѤǤ¤ëËɲ»¥ë¡¼¥à¤âÍѰդµ¤ì¤Þ¤¹¡£

¥¹¥«¥¤¥é¥¦¥ó¥¸(¥é¥¦¥ó¥¸)´°À®Í½ÁÛ¿Þ[½Ðŵ¡§¸ø¼°HP]
¡¡25³¬¤Ë¤Ï¶¦ÍÑ»ÜÀߤȤ·¤Æ¥¹¥«¥¤¥é¥¦¥ó¥¸¤¬ÇÛÃÖ¤µ¤ì¤Þ¤¹¡£Ä¹ÎÉÀîÊýÌ̤òį¤á¤é¤ì¤ë¥é¥¦¥ó¥¸¤È¤Ê¤ê¤Þ¤¹¡£

¥¹¥«¥¤¥é¥¦¥ó¥¸(¥Ñ¡¼¥Æ¥£¡¼¥³¡¼¥Ê¡¼)´°À®Í½ÁÛ¿Þ[½Ðŵ¡§¸ø¼°HP]
¡¡¥¹¥«¥¤¥é¥¦¥ó¥¸¤Ë¤Ï¥Ñ¡¼¥Æ¥£¡¼¥³¡¼¥Ê¡¼¤âÊ»Àߤµ¤ì¤Þ¤¹¡£
´Ö¼è¤ê¿Þ

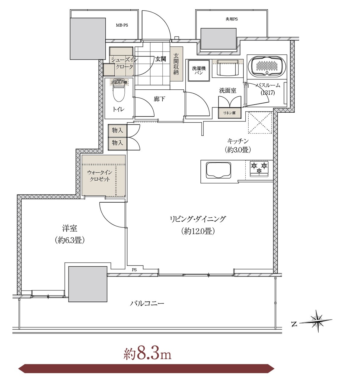
DC¥¿¥¤¥×[½Ðŵ¡§¸ø¼°HP]
¡¡DC¥¿¥¤¥×¤Î´Ö¼è¤ê¿Þ¤Ç¤¹¡£´Ö¼è¤ê¤Ï1LDK+WIC+SIC¡¢ÀìÍÌÌÀѤÏ53.14Ö¡¢¥Ð¥ë¥³¥Ë¡¼ÌÌÀѤÏ13.43Ö¤ÇÌó8.3m¤Î¥ï¥¤¥É¥Ð¥ë¥³¥Ë¡¼¤È¤Ê¤Ã¤Æ¤¤¤Þ¤¹¡£

CJ¥¿¥¤¥×[½Ðŵ¡§¸ø¼°HP]
¡¡CJ¥¿¥¤¥×¤Î´Ö¼è¤ê¿Þ¤Ç¤¹¡£´Ö¼è¤ê¤Ï2LDK+WIC¡¢ÀìÍÌÌÀѤÏ65.75Ö¡¢¥Ð¥ë¥³¥Ë¡¼ÌÌÀѤÏ12.37Ö¤ÇÁ´¼¼Íμ¼¤¬Ìó8.7m¤Î¥ï¥¤¥É¥Ð¥ë¥³¥Ë¡¼¤ËÌ̤·¤Æ¤¤¤Þ¤¹¡£

DI¥¿¥¤¥×[½Ðŵ¡§¸ø¼°HP]
¡¡DI¥¿¥¤¥×¤Î´Ö¼è¤ê¿Þ¤Ç¤¹¡£´Ö¼è¤ê¤Ï3LDK+WIC+SIC¡¢ÀìÍÌÌÀѤÏ91.57Ö¡¢¥Ð¥ë¥³¥Ë¡¼ÌÌÀѤÏ15.26Ö¤Ç2Ì̺θ÷¤Î¥ê¥Ó¥ó¥°¤«¤é¤Ï¥Ð¥ë¥³¥Ë¡¼¤Ë¤â·Ò¤¬¤Ã¤Æ¤¤¤Þ¤¹¡£
°ÌÃÖ¿Þ

¥¨¥ê¥¢³µÇ°¿Þ[½Ðŵ¡§¸ø¼°HP]
¡¡¾ì½ê¤Ï´ôÉì±Ø¤«¤éË̦¤ØÅÌÊâ13ʬ¤Î°ÌÃ֤ǡ¢Ë̦¤Ë¤Ï¡Ö´ôÉì¹âÅç²°¡×¤äÌø¥öÀ¥¾¦Å¹³¹¤¬¤¢¤ê¤Þ¤¹¡£
·úÀß¾õ¶·

¡¡2022ǯ11·î25Æü¤ËÆîÀ¾Â¦¤«¤é»£±Æ¤·¤¿¡Ö¥é¥¤¥ª¥ó¥º´ôÉì¥×¥ì¥ß¥¹¥È¥¿¥ï¡¼35¡×(ÃϾå35³¬¡¢ºÇ¹â¹â¤µ132.64m)¤Ç¤¹¡£

¡¡ÄãÁØÉô¤Î1¡Á2³¬¤¬¾¦¶È»ÜÀß¡¢3¡Á4³¬¤¬¸ø±×»ÜÀߡʷò¹¯±¿Æ°»ÜÀß¡¦»Ò°é¤Æ»Ù±ç»ÜÀߡˤȤʤê¤Þ¤¹¡£

¡¡ÆîÅ즤«¤é»£±Æ¡£2023ǯ2·î½×¹©Í½Äê¤Ç¤¹¤¬¡¢³°´Ñ¤Ï´°À®¤·¤Æ¤¤¤ë¤è¤¦¤Ë¸«¤¨¤Þ¤·¤¿¡£

¡¡ËÌÅ즤«¤é»£±Æ¡£¶á¤¯¤Ë¤Ï¥¢¡¼¥±¡¼¥É³¹¤â¤¢¤ê¤Þ¤¹¡£

¡¡ËÌÀ¾Â¦¤«¤é»£±Æ¡£Çظå¤Ë¤Ï¼«Áö¼°¤ÎΩÂÎÃó¼Ö¾ì¤¬¤¢¤ê¤Þ¤¹¡£Áí¸Í¿ô335¸Í¤ËÂФ·¤ÆÌó9³ä¤Î303ÂæÊ¬¤¬ÍѰդµ¤ì¤Þ¤¹¡£Ãó¼Ö¾ì¤Î·î³Û»ÈÍÑÎÁ¤Ï8000±ß¡Á2Ëü3000±ß¤È¤Ê¤Ã¤Æ¤¤¤Þ¤¹¡£¤Þ¤¿¡¢¥Ð¥¤¥¯ÃÖ¤¾ì¤Ï8Âæ¡¢¼«Å¾¼ÖÃÖ¤¾ì¤Ï388ÂæÍѰդµ¤ì¤Þ¤¹¡£

¡¡JR¡Ö´ôÉì¡×±ØÁ°¤«¤é»£±Æ¡£

¡¡JR¡Ö´ôÉì¡×±ØÁ°¤Ë¤¢¤ëT»úÏ©¤Îº¸³Ñ¤Ë¤ÏÌî¼ÉÔÆ°»º¤é¤Ë¤è¤ë¡Ö´ôÉì±ØËÌÃæ±ûÀ¾Ã϶è»Ô³¹ÃϺƳ«È¯»ö¶È¡×(ÃϾå32³¬¡¢¹â¤µÌó120m)¡¢±¦³Ñ¤Ë¤ÏÀÑ¿å¥Ï¥¦¥¹¤äÌî¼ÉÔÆ°»º¤é¤Ë¤è¤ë¡Ö´ôÉì±ØËÌÃæ±ûÅìÃ϶è»Ô³¹ÃϺƳ«È¯»ö¶È¡×(ÃϾå34³¬¡¢¹â¤µÌó130m)¤È¤¤¤Ã¤¿¥Ä¥¤¥ó¥¿¥ï¡¼¤¬·×²è¤µ¤ì¤Æ¤¤¤Þ¤¹¡£
¡¡¤³¤ì¤é¤ÈÈæ¤Ù¤ë¤È¡Ö¥é¥¤¥ª¥ó¥º´ôÉì¥×¥ì¥ß¥¹¥È¥¿¥ï¡¼35¡×(ÃϾå35³¬¡¢ºÇ¹â¹â¤µ132.64m)¤Ï±Ø¤«¤é±ó¤¤¥¿¥ï¥Þ¥ó¤Ë¤Ê¤Ã¤Æ¤·¤Þ¤¤¤Þ¤¹¤¬¡¢´ôÉì±Ø¼þÊդΥ¿¥ï¥Þ¥ó·²¤ò˾¤à¤Ë¤Ï¤Û¤ÉÎɤ¤µ÷Î¥¤Ç¥¥ì¥¤¤ÊÌë·Ê¤ò¸«¤ë¤³¤È¤¬¤Ç¤¤½¤¦¤Ç¤¹¡£¸Ä¿ÍŪ¤Ë¤ÏÌܤÎÁ°¤Ë¼×¤ë·úʪ¤¬¤Ê¤¯¡¢¤Û¤ÉÎɤ¤µ÷Î¥¤Ë͹âÁإӥ뷲¤ä¥¿¥ï¥Þ¥ó·²¤¬¤¢¤ë·Ê¿§¤¬°ìÈÖ³Ú¤·¤á¤ë¤È»×¤Ã¤Æ¤¤¤Þ¤¹¡£

¡¡¡Ö´ôÉ쥷¥Æ¥£¡¦¥¿¥ï¡¼43¡×(ÃϾå43³¬¡¢¹â¤µ162.82m)¤Î43³¬¤Ë¤¢¤ë̵ÎÁŸ˾¼¼¤«¤é»£±Æ¡£´ôÉ츩¤ÇºÇ¤â¹â¤¤·úʪ¤È¤¤¤¦¤³¤È¤À¤±¤¢¤Ã¤Æ¡¢ºÇ¹â¹â¤µ132.64m¤Î¡Ö¥é¥¤¥ª¥ó¥º´ôÉì¥×¥ì¥ß¥¹¥È¥¿¥ï¡¼35¡×¤ò¾¯¤·¸«²¼¤í¤¹´¶¤¸¤È¤Ê¤ê¤Þ¤¹¡£

¡¡¾¯¤·¹³Ñ¤Ç»£±Æ¡£´ôÉì±Ø¤ÈÈ¿ÂЦ¤Ë¤ÏĹÎÉÀî¤ä»³¡¹¤¬¸«¤¨¤ë¤Î¤Ç¡¢¤³¤ì¤Ï¤³¤ì¤Ç³Ú¤·¤á¤ë·Ê¿§¤È¤Ê¤ê¤½¤¦¤Ç¤¹¡£
ÃÏ¿Þ
ʪ·ï³µÍ×
»ÜÀß̾¡§Ìø¥±À¥¥°¥é¥Ã¥¹¥ë35
¥Þ¥ó¥·¥ç¥ó̾¡§¥é¥¤¥ª¥ó¥º´ôÉì¥×¥ì¥ß¥¹¥È¥¿¥ï¡¼35
·×²è̾¾Î¡§¹âÅç²°ÆîÃ϶èÂè°ì¼ï»Ô³¹ÃϺƳ«È¯»ö¶È
½êºßÃÏ¡§´ôÉ츩´ôÉì»ÔŰÌÀÄÌ£²ÃúÌÜ£±£¸ÈÖÃÏ
¸òÄÌ¡§Ì¾Å´Ì¾¸Å²°ËÜÀþ¡Ö̾Ŵ´ôÉì¡×±Ø²¼¼ÖÅÌÊâ11ʬ¡¢Å쳤ƻËÜÀþ¡Ö´ôÉì¡×±Ø²¼¼ÖÅÌÊâ13ʬ
ÍÑÅÓ¡§¶¦Æ±½»Âð¡¢Å¹ÊÞ¡¢¸ø±×Ū»ÜÀß¡¢Ãó¼Ö¾ì
Áí¸Í¿ô¡§335¸Í¡Ê°ìÈÌʬ¾ùÂоݸͿô299¸Í¡Ë¾¤Ë¥²¥¹¥È¥ë¡¼¥à¡¢Ëɲ»¥ë¡¼¥à¡¢¥¹¥«¥¤¥é¥¦¥ó¥¸³Æ1¸Í
³¬¿ô¡§ÃϾå35³¬¡¢Ãϲ¼1³¬
¹â¤µ¡§128.39m(ºÇ¹â¹â¤µ132.64m)
¹½Â¤¡§Å´¶Ú¥³¥ó¥¯¥ê¡¼¥È¤°ìÉôÅ´¹ü¤
ÉßÃÏÌÌÀÑ¡§6,467.47Ö
·úÃÛÌÌÀÑ¡§5,718.92Ö
±ä¾²ÌÌÀÑ¡§57,790.65Ö
·úÃۼ硧¹âÅç²°Æî»Ô³¹ÃϺƳ«È¯Áȹç
»²²ÃÁȹç°÷¡§Âçµþ¡¢ÂçÏ¥ϥ¦¥¹¹©¶È
Çä¼ç¡§Âçµþ¡¢ÂçÏ¥ϥ¦¥¹¹©¶È
Àß·×¼Ô¡§¸ÍÅÄ·úÀß
»Ü¹©¼Ô¡§¸ÍÅÄ·úÀß
¹©´ü¡§2019ǯ3·î1ÆüÃ幩¡Á2023ǯ2·î½×¹©Í½Äê
Æþµï³«»Ï¡§2023ǯ3·îͽÄê
¸ø¼°HP¡§https://lions-mansion.jp/ME131071/
- ¥«¥Æ¥´¥ê
- ´ôÉ츩







