
¡¡Ì¾¸Å²°±ØÅÌÊâ·÷¤Î¥¿¥ï¡¼¥Þ¥ó¥·¥ç¥ó¡ÖNAGOYA the TOWER¡Ê¥Ê¥´¥ä¡¦¥¶¡¦¥¿¥ï¡¼¡Ë¡×(ÃϾå42³¬¡¢¹â¤µ149.100m)¤Ç¤¹¡£2022ǯ11·î25Æü¤Ë»£±Æ¤·¤Þ¤·¤¿¡£Ì¾¸Å²°¤Ç5ÅïÌܤÎ40³¬Ä¶¤¨¥¿¥ï¥Þ¥ó¤Ç´û¤ËºÇ¾å³¬¤Þ¤Ç㤷¤Æ¤¤¤Þ¤¹¡£¤³¤Îµ»ö¤Ç¤ÏƱ¥¿¥ï¥Þ¥ó¤Î³µÍפä·úÀß¾õ¶·¡¢ÃÏ¿ÞÅù¤òºÜ¤»¤Æ¤¤¤Þ¤¹¡£
NAGOYA the TOWER¤Ë¤Ä¤¤¤Æ

·úʪ³°´Ñ´°À®Í½ÁÛCG[½Ðŵ¡§¸ø¼°HP]
¡¡¡ÖNAGOYA the TOWER¡Ê¥Ê¥´¥ä¡¦¥¶¡¦¥¿¥ï¡¼¡Ë¡×¤ÏJR¡Ö̾¸Å²°¡×±Ø¤«¤éÅÌÊâ14ʬ¤Î¥¿¥ï¡¼¥Þ¥ó¥·¥ç¥ó¤Ç¡¢µ¬ÌϤÏÃϾå42³¬¡¢Åã²°2³¬¡¢Ãϲ¼1³¬¡¢¹â¤µ149.100m¡¢ÉßÃÏÌÌÀÑ5,898.70Ö¡¢·úÃÛÌÌÀÑ1,717.79Ö¡¢±ä¾²ÌÌÀÑ5Ëü3805.34Ö¡¢Áí¸Í¿ô435¸Í¡¢·úÃÛ¼ç(Çä¼ç)¤ÏÁí¹çÃϽꡢ̾ŴÅÔ»Ô³«È¯¡¢µþºåÅÅÅ´ÉÔÆ°»º¡¢ÂçÏ¥ϥ¦¥¹¹©¶È¡¢»°¸òÉÔÆ°»º¡¢½»Í§¾¦»ö¡¢À߷׼ԤȻܹ©¼Ô¤ÏĹ빩¥³¡¼¥Ý¥ì¡¼¥·¥ç¥ó¤Ç2023ǯ4·î½×¹©¡¢2023ǯ6·îËöÆþµï³«»ÏͽÄê¤È¤Ê¤Ã¤Æ¤¤¤Þ¤¹¡£
¡¡¸½ºß¤Ï40¸Í¤¬ÀèÃå½ç¿½¹þ¼õÉÕÃæ¤Ç¡¢´Ö¼è¤ê¤Ï1LDK¡Á3LDK¡¢ÀìÍÌÌÀѤÏ36.17Ö¡Á135.45Ö¡¢¥Ð¥ë¥³¥Ë¡¼ÌÌÀѤÏ4.32Ö¡Á27.93Ö¡¢¥µ¡¼¥Ó¥¹¥Ð¥ë¥³¥Ë¡¼ÌÌÀѤÏ0.94Ö¡Á5.76Ö¡¢ÈÎÇä²Á³Ê¤Ï4,158Ëü±ß¡Á2²¯7888Ëü±ß¤È¤Ê¤Ã¤Æ¤¤¤Þ¤¹¡£

¥é¥ó¥É¥¹¥±¡¼¥×´°À®Í½ÄêCG[½Ðŵ¡§¸ø¼°HP]
¡¡ÉßÃÏÆî¦¤ËÀ°È÷¤µ¤ì¤ëé¬é¯±à¤Ê¤É¤â¤¢¤ë½»Ì±ÀìÍѤΥեé¥ï¡¼¥¬¡¼¥Ç¥ó¤Î´°À®Í½ÁۿޤǤ¹¡£

¼Ö´ó¤»´°À®Í½ÁÛCG[½Ðŵ¡§¸ø¼°HP]
¡¡¥Õ¥é¥ï¡¼¥¬¡¼¥Ç¥ó¤ÎÎ٤ˤϼִ󤻤¬À°È÷¤µ¤ì¤Þ¤¹¡£

¥°¥ê¡¼¥ó¥¢¥×¥í¡¼¥Á´°À®Í½ÁÛCG[½Ðŵ¡§¸ø¼°HP]
¡¡Ë̦¤Ë¤Ï¥¨¥ó¥È¥é¥ó¥¹¤Ë·Ò¤¬¤ë¥°¥ê¡¼¥ó¥¢¥×¥í¡¼¥Á¤¬À°È÷¤µ¤ì¤Þ¤¹¡£

¥á¥¤¥ó¥¨¥ó¥È¥é¥ó¥¹´°À®Í½ÁÛCG[½Ðŵ¡§¸ø¼°HP]
¡¡Ë̦¤Î¥á¥¤¥ó¥¨¥ó¥È¥é¥ó¥¹¤Ç¤¹¡£¼þ¤ê¤Ë¤Ï¿åÈפ⤢¤ê¤Þ¤¹¡£

¥°¥é¥ó¥É¥í¥Ó¡¼´°À®Í½ÁÛCG[½Ðŵ¡§¸ø¼°HP]
¡¡¥¨¥ó¥È¥é¥ó¥¹¤ÎÀè¤Ë¤¢¤ë¥°¥é¥ó¥É¥í¥Ó¡¼¤Î´°À®Í½ÁۿޤǤ¹¡£

¥¢¡¼¥È¥¬¡¼¥Ç¥ó´°À®Í½ÄêCG[½Ðŵ¡§¸ø¼°HP]
¡¡¥°¥é¥ó¥É¥í¥Ó¡¼¤«¤é¤Ï¥¢¡¼¥È¥¬¡¼¥Ç¥ó¤ò˾¤à¤³¤È¤¬¤Ç¤¤Þ¤¹¡£

¥²¥¹¥È¥ë¡¼¥à´°À®Í½ÁÛCG[½Ðŵ¡§¸ø¼°HP]
¡¡3³¬¤Ë¤Ï3¤Ä¤Î¥²¥¹¥È¥ë¡¼¥à¤¬ÇÛÃÖ¤µ¤ì¤Þ¤¹¡£

¥¨¥°¥¼¥¯¥Æ¥£¥Ö¥é¥¦¥ó¥¸´°À®Í½ÁÛCG[½Ðŵ¡§¸ø¼°HP]
¡¡¶¦ÍÑ»ÜÀߤȤ·¤Æ29³¬¤Ë¤Ï̾¸Å²°±ØÊýÌ̤ò˾¤à¥¨¥°¥¼¥¯¥Æ¥£¥Ö¥é¥¦¥ó¥¸¤¬ÇÛÃÖ¤µ¤ì¤Þ¤¹¡£

·úʪ³°´Ñ´°À®Í½ÁÛCG[½Ðŵ¡§¸ø¼°HP]
¡¡ºÇ¾åÉô¤Î38³¬¡Á42³¬¤ÏÆÃÊÌ»ÅÍͤΥ°¥é¥ó¥×¥ì¥ß¥¢¥à¥Õ¥í¥¢¤È¤Ê¤ê¤Þ¤¹¡£¥°¥é¥ó¥×¥ì¥ß¥¢¥à¥Õ¥í¥¢¤Ë¤ÏÀìÍѤÎÃϲ¼Ãó¼Ö¾ì¤¬¤¢¤ê¡¢ÀìÍѤΥץ饤¥Ù¡¼¥È¥¨¥ì¥Ù¡¼¥¿¡¼¤âÀßÃÖ¤µ¤ì¤Þ¤¹¡£

¥×¥é¥¤¥Ù¡¼¥È¥¢¥×¥í¡¼¥Á´°À®Í½ÁÛCG[½Ðŵ¡§¸ø¼°HP]
¡¡ÀìÍѤÎÃϲ¼Ãó¼Ö¾ì¤Ø¤Î¥¢¥×¥í¡¼¥Á¤â¥°¥é¥ó¥×¥ì¥ß¥¢¥à¥Õ¥í¥¢ÀìÍѤȤʤê¤Þ¤¹¡£
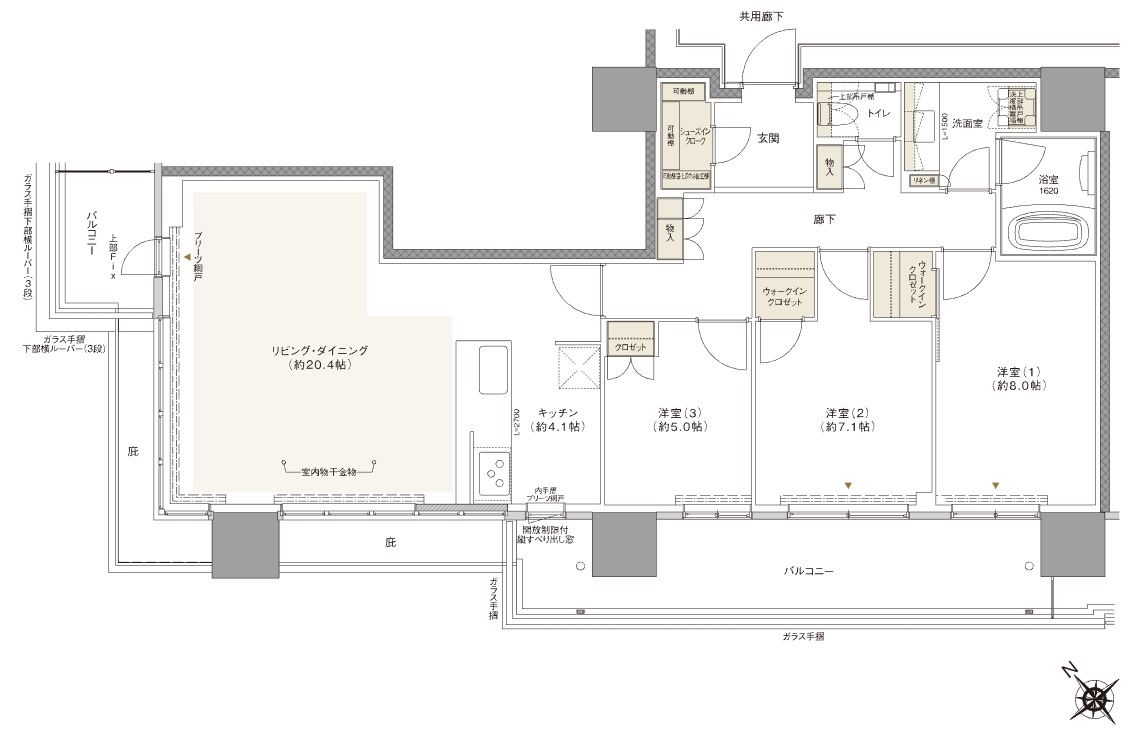
´Ö¼è¤ê¿Þ

C2-13¥¿¥¤¥×[½Ðŵ¡§¸ø¼°HP]
¡¡3¡Á29³¬¤Î¥×¥ì¥ß¥¢¥à¥Õ¥í¥¢¤Ë¤¢¤ëC2-13¥¿¥¤¥×¤Î´Ö¼è¤ê¿Þ¤Ç¤¹¡£´Ö¼è¤ê¤Ï1LDK+SIC¡¢ÀìÍÌÌÀѤÏ36.17Ö¡¢¥Ð¥ë¥³¥Ë¡¼ÌÌÀѤÏ7.00֤ȤʤäƤ¤¤Þ¤¹¡£

H-2¥¿¥¤¥×[½Ðŵ¡§¸ø¼°HP]
¡¡Æ±¤¸¥×¥ì¥ß¥¢¥à¥Õ¥í¥¢¤Ë¤¢¤ëH-2¥¿¥¤¥×¤Î´Ö¼è¤ê¿Þ¤Ç¤¹¡£´Ö¼è¤ê¤Ï2LDK+SIC+WIC¡¢ÀìÍÌÌÀѤÏ68.77Ö¡¢¥Ð¥ë¥³¥Ë¡¼ÌÌÀѤÏ14.40֤ȤʤäƤ¤¤Þ¤¹¡£

P1-4¥¿¥¤¥×[½Ðŵ¡§¸ø¼°HP]
¡¡30¡Á37³¬¤Î¥¹¡¼¥Ñ¡¼¥×¥ì¥ß¥¢¥à¥Õ¥í¥¢¤Ë¤¢¤ëP1-4¥¿¥¤¥×¤Î´Ö¼è¤ê¿Þ¤Ç¤¹¡£´Ö¼è¤ê¤Ï3LDK+SIC+2WIC¡¢ÀìÍÌÌÀѤÏ102.26Ö¡¢¥Ð¥ë¥³¥Ë¡¼ÌÌÀѤÏ21.16֤ȤʤäƤ¤¤Þ¤¹¡£

T2-5¥¿¥¤¥×[½Ðŵ¡§¸ø¼°HP]
¡¡38¡Á42³¬¤Î¥°¥é¥ó¥×¥ì¥ß¥¢¥à¥Õ¥í¥¢¤Ë¤¢¤ëT2-5¥¿¥¤¥×¤Î´Ö¼è¤ê¿Þ¤Ç¤¹¡£´Ö¼è¤ê¤Ï3LDK+SIC+3WIC+N¡¢ÀìÍÌÌÀѤÏ135.45Ö¡¢¥Ð¥ë¥³¥Ë¡¼ÌÌÀѤÏ25.92֤ǡ¢ÀìÍÑÃϲ¼Ãó¼Ö¾ì(Ê¿ÌÌ)Í¥À踢ÉդȤʤäƤ¤¤Þ¤¹¡£
°ÌÃÖ¿Þ

¸½ÃÏ°ÆÆâ¿Þ[½Ðŵ¡§¸ø¼°HP]
¡¡¾ì½ê¤Ï̾¸Å²°±Ø¤ÎÆîÅ즤ÇJR¡Ö̾¸Å²°¡×±Ø¤«¤é¤ÏÅÌÊâ14ʬ¤Îµ÷Î¥¤È¤Ê¤Ã¤Æ¤¤¤Þ¤¹¡£Ì¾¸Å²°±Ø¤ÈÀܳ¤¹¤ë¥ß¥ä¥³Ãϲ¼³¹¤Î4ÈÖ½ÐÆþ¸ý¤«¤é¤ÏÅÌÊâ9ʬ¤È¤Ê¤ê¤Þ¤¹¡£
¡¡¸ø¼°HP¤ËµºÜ¤Ï¤¢¤ê¤Þ¤»¤ó¤¬Ì¾¸Å²°Î׳¤¹â®Ŵƻ¤¢¤ª¤Ê¤ßÀþ¡Ö¤µ¤µ¤·¤Þ¥é¥¤¥Ö¡×±Ø¤ä̾¸Å²°»Ô±ÄÃϲ¼Å´ÄáÉñÀþ¡ÖÂç¿Ü´Ñ²»¡×±Ø¤âÅÌÊâ·÷¤Ë¤¢¤ê¤Þ¤¹¤¬¡¢¤É¤Î±Ø¤«¤é¤â¾¯¡¹±ó¤¤¾ì½ê¤È¤Ê¤Ã¤Æ¤¤¤Þ¤¹¡£
·úÀß¾õ¶·

¡¡2022ǯ11·î25Æü¤ËÆîÀ¾Â¦¤«¤é»£±Æ¤·¤¿¡ÖNAGOYA the TOWER¡Ê¥Ê¥´¥ä¡¦¥¶¡¦¥¿¥ï¡¼¡Ë¡×(ÃϾå42³¬¡¢¹â¤µ149.100m)¤Ç¤¹¡£¼êÁ°¤Î¥Ð¥¹¤¬Ê¤ó¤Ç¤¤¤ë¾ì½ê¤Ï̾Ŵ¥Ð¥¹Ì¾¸Å²°Ãæ±û±Ä¶È½ê¤Ç¡¢¤³¤³¤¬°ÜžÅù¤¬¤Ê¤±¤ì¤ÐÆî¦¤Îį˾¤Ï°ÂÂ٤Ǥ¹¡£

¡¡Æî¦¤Î¿·½§ºê¥¸¥ã¥ó¥¯¥·¥ç¥ó±Û¤·¤Ë»£±Æ¡£

¡¡Å즤ˤ¢¤ë¡Ö¥¨¥Ç¥£¥ª¥ó̾¸Å²°ËÜŹ¡×²£¤ÎÏ©ÃϤ«¤é»£±Æ¡£

¡¡ËÌÅ즤«¤é»£±Æ¡£

¡¡¤â¤¦¾¯¤·Ë̦¤Ë¹Ô¤Ã¤¿¤È¤³¤í¤Ë¤¢¤ë̾±ØÆîÆó¸òº¹ÅÀ¤«¤é»£±Æ¡£

¡¡Ë̦¤«¤é»£±Æ¡£»£±Æ¾ì½ê¤Î±¦Â¦¤Ë¤¢¤Ã¤¿Ãó¼Ö¾ì¤¬Êĺ¿¤µ¤ì¡¢µ¤¤Ë¤Ê¤ëÂ礤ʶõ¤ÃϤ¬¤Ç¤¤Æ¤¤¤Þ¤·¤¿¡£

¡¡À¾Â¦¤Ë¤¢¤ëÊâÆ»¶¶¤«¤é»£±Æ¡£Ìó5¥ö·î¸å¤Î2023ǯ4·î½×¹©Í½Äê¤È¤Ê¤Ã¤Æ¤¤¤Þ¤¹¡£
ÃÏ¿Þ
ʪ·ï³µÍ×

¡¡·úÃ۷ײè¤Î³µÍפǤ¹¡£
¢£Êª·ï³µÍ×¢£
̾¾Î¡§NAGOYA the TOWER¡Ê¥Ê¥´¥ä¡¦¥¶¡¦¥¿¥ï¡¼¡Ë
·×²è̾¾Î¡§(²¾¾Î)̾±ØÆîÆóÃúÌÜ·×²è ¿·ÃÛ¹©»ö
½êºßÃÏ¡§°¦Ãθ©Ì¾¸Å²°»Ô ÃæÂ¼¶è̾±ØÆî£²ÃúÌÜ702-1¡ÊÃÏÈÖ¡Ë
¸òÄÌ¡§JR¡Ö̾¸Å²°¡×±ØÅÌÊâ14ʬ
ÍÑÅÓ¡§¶¦Æ±½»Âð(ʬ¾ù)
Áí¸Í¿ô¡§435¸Í
³¬¿ô¡§ÃϾå42³¬¡¢Åã²°2³¬¡¢Ãϲ¼1³¬
¹â¤µ¡§149.100m
¹½Â¤¡§Å´¶Ú¥³¥ó¥¯¥ê¡¼¥È¤
ÉßÃÏÌÌÀÑ¡§5,898.70Ö
·úÃÛÌÌÀÑ¡§1,717.79Ö
±ä¾²ÌÌÀÑ¡§53,805.34Ö
·úÃÛ¼ç(Çä¼ç)¡§Áí¹çÃϽꡢ̾ŴÅÔ»Ô³«È¯¡¢µþºåÅÅÅ´ÉÔÆ°»º¡¢ÂçÏ¥ϥ¦¥¹¹©¶È¡¢»°¸òÉÔÆ°»º¡¢½»Í§¾¦»ö
Àß·×¼Ô¡§Ä¹Ã«¹©¥³¡¼¥Ý¥ì¡¼¥·¥ç¥ó
»Ü¹©¼Ô¡§Ä¹Ã«¹©¥³¡¼¥Ý¥ì¡¼¥·¥ç¥ó
¹©´ü¡§2020ǯ3·î²¼½ÜÃ幩¡Á2023ǯ4·î½×¹©Í½Äê
Æþµï¡§2023ǯ6·îËöͽÄê
¸ø¼°HP¡§https://www.sgr-sumai.jp/mansion/r-meieki/
- ¥«¥Æ¥´¥ê
- ̾¸Å²°»Ô







