
¡¡¾¡¤É¤¤Ç·úÀßÃæ¤ÎÂ絬ÌÏ¥¿¥ï¡¼¥Þ¥ó¥·¥ç¥ó¡Ö¥Ñ¡¼¥¯¥¿¥ï¡¼¾¡¤É¤¡×¤Ç¤¹¡£2022ǯ10·î12Æü¤Ë¥«¥ì¥Ã¥¿¼®Î±¤Î̵ÎÁŸ˾¥¹¥Ú¡¼¥¹¤«¤é»£±Æ¤·¤Þ¤·¤¿¡£º¸¤ÎÀĤ¤¥Í¥Ã¥È¤¬¤¢¤ëÊý¤¬¡Ö¥Ñ¡¼¥¯¥¿¥ï¡¼¾¡¤É¤¥ß¥Ã¥É¡×(ÃϾå45³¬¡¢ºÇ¹â¹â¤µ164.60m)¤Ç¡¢Ãæ±û¤Î¥¿¥ï¡¼¥¯¥ì¡¼¥ó¤¬¤¢¤ëÊý¤¬¡Ö¥Ñ¡¼¥¯¥¿¥ï¡¼¾¡¤É¤¥µ¥¦¥¹¡×(ÃϾå58³¬¡¢ºÇ¹â¹â¤µ194.53m)¤Ç¤¹¡£¤³¤Îµ»ö¤Ç¤Ï¥µ¥¦¥¹Â¦¤Î³µÍפä·úÀß¾õ¶·¡¢ÃÏ¿ÞÅù¤òºÜ¤»¤Æ¤¤¤Þ¤¹¡£
¥Ñ¡¼¥¯¥¿¥ï¡¼¾¡¤É¤¥µ¥¦¥¹¤Ë¤Ä¤¤¤Æ

³°´Ñ´°À®Í½ÁÛCG[½Ðŵ¡§¸ø¼°HP]
¡¡¡Ö¥Ñ¡¼¥¯¥¿¥ï¡¼¾¡¤É¤¡×¤Î´°À®Í½ÁۿޤǤ¹¡£º¸¤¬¥µ¥¦¥¹(ÃϾå58³¬¡¢ºÇ¹â¹â¤µ194.53m)¡¢±¦¤¬¥ß¥Ã¥É(ÃϾå45³¬¡¢ºÇ¹â¹â¤µ164.60m)¡¢¤½¤·¤Æ±¦Ã¼¤Î·Á¤À¤±ÉÁ¤«¤ì¤Æ¤¤¤ë¤Î¤¬¸å¤«¤é·úÀߤµ¤ì¤ëBÅï(ÃϾå29³¬¡¢¹â¤µÌó106m)¤Ç¤¹¡£
¡¡¥µ¥¦¥¹¤Îµ¬ÌϤÏÃϾå58³¬¡¢Ãϲ¼3³¬¡¢¹â¤µ188.80m¡¢ºÇ¹â¹â¤µ194.53m¡¢ÉßÃÏÌÌÀÑ1Ëü2015.18Ö¡¢·úÃÛÌÌÀÑ4,300.00Ö¡¢±ä¾²ÌÌÀÑ18Ëü827.74Ö¡¢Áí¸Í¿ô1665¸Í¡ÊÈÎÇäÁí¸Í¿ô1145¸Í¡¢»ö¶È¶¨ÎϼԽ»¸Í520¸Í¡Ë¡¢Çä¼ç¤Ï»°°æÉÔÆ°»º¥ì¥¸¥Ç¥ó¥·¥ã¥ë¤È¼¯Åç·úÀß¡¢À߷׼ԤȻܹ©¼Ô¤Ï¼¯Åç·úÀߤǡ¢2023ǯ8·î31Æü½×¹©¡¢2024ǯ4·î²¼½ÜÆþµï³«»ÏͽÄê¤Ç¤¹¡£2022ǯ11·î²¼½Ü¤«¤é¤ÏÂè3´ü2¼¡¤ÎÈÎÇ䳫»ÏͽÄê¤È¤Ê¤Ã¤Æ¤¤¤Þ¤¹¡£

Á´ÂÎÉßÃÏÇÛÃÖ¿Þ[½Ðŵ¡§¸ø¼°HP]
¡¡ÉßÃÏ¤ÎÆîÅ즤ÏīĬ±¿²Ï¡¢ÆîÀ¾Â¦¤Ï¿··îÅçÀî¤È2Êý¸þ¤¬¿åÊÕ¤ËÌ̤·¤Æ¤ª¤ê¡¢Ä«Ä¬±¿²Ï±è¤¤¤Ë¥µ¥¦¥¹¤È¥ß¥Ã¥É¤¬Ê¤Ӥޤ¹¡£¼þ°Ï¤Ë¤Ï¼ÇÀ¸¹¾ì¤äBBG¥¬¡¼¥Ç¥ó¤Ê¤É¤¬ÇÛÃÖ¤µ¤ì¡¢Î¾Åï¤Î´Ö¤Ë¤ÏÊ®¿å¤â¤¢¤ë¥»¥ó¥È¥é¥ë¥é¥°¡¼¥ó¤¬À°È÷¤µ¤ì¤Þ¤¹¡£¤½¤·¤Æ¥ß¥Ã¥É¦¤Ë¤ÏÀ²³¤ÊýÌ̤˷Ҥ¬¤ë¿ÍÆ»¶¶¤âÀ°È÷¤µ¤ì¤Þ¤¹¡£
¡¡¤Þ¤¿¡¢¿Þ¤Î±¦¾å¤Ë¤¢¤ë¥á¥È¥í¥Ñ¥Ó¥ê¥ª¥ó¤Ë¤ÏÅÔ±ÄÂç¹¾¸ÍÀþ¡Ö¾¡¤É¤¡×±Ø¤Ëľ·ë¤¹¤ëÃϲ¼ÄÌÏ©¤Î½ÐÆþ¸ý¤¬À°È÷¤µ¤ì¤Þ¤¹¡£¥ß¥Ã¥É¤Ï±ØÄ¾·ë¤È¤Ê¤ê¡¢¥µ¥¦¥¹¤ÏÉßÃÏÆâ¤Î´ÓÄÌÄÌÏ©¤òÄ̤äƥá¥È¥í¥Ñ¥Ó¥ê¥ª¥ó¤Þ¤Ç¹Ô¤¯¤³¤È¤¬¤Ç¤¤ë¤è¤¦¤Ë¤Ê¤ê¤Þ¤¹¡£

´ÓÄÌÄÌÏ©´°À®Í½ÁÛCG[½Ðŵ¡§¸ø¼°HP]
¡¡¤½¤Î´ÓÄÌÄÌÏ©¤Ï²°º¬ÉÕ¤¤È¤Ê¤Ã¤Æ¤¤¤Þ¤¹¡£

¥»¥ó¥È¥é¥ë¥é¥°¡¼¥ó´°À®Í½ÁÛCG[½Ðŵ¡§¸ø¼°HP]
¡¡¥µ¥¦¥¹¤È¥ß¥Ã¥É¤Î´Ö¤ËÀ°È÷¤µ¤ì¤ë¥»¥ó¥È¥é¥ë¥é¥°¡¼¥ó¤ÏÊ®¿å¤Î¤¢¤ëÃӤȤʤꡢ¿å¤ÎÃæ¤ËÆþ¤Ã¤ÆÍ·¤Ö¤³¤È¤â¤Ç¤¤ë¾ì½ê¤È¤Ê¤ê¤Þ¤¹¡£

¥³¡¼¥Á¥¨¥ó¥È¥é¥ó¥¹´°À®Í½ÁÛCG[½Ðŵ¡§¸ø¼°HP]
¡¡ÇȤΤ褦¤Ê3¼¡¶ÊÀþ¤Î¥Ç¥¶¥¤¥ó¤ò¥¤¥á¡¼¥¸¤·¤¿¥µ¥¦¥¹¤Î¥³¡¼¥Á¥¨¥ó¥È¥é¥ó¥¹¤Ç¤¹¡£

¥¹¥«¥¤¥Ç¥Ã¥´°À®Í½ÁÛCG[½Ðŵ¡§»°°æÉÔÆ°»º¥ì¥¸¥Ç¥ó¥·¥ã¥ë]
¡¡¥µ¥¦¥¹¤Î53³¬¤Ë¤Ï¶¦ÍÑ»ÜÀߤȤ·¤Æ¥¹¥«¥¤¥Ç¥Ã¥¤ä¥ë¡¼¥Õ¥È¥Ã¥×¥é¥¦¥ó¥¸¤¬ÀßÃÖ¤µ¤ì¤Þ¤¹¡£

¥¹¥«¥¤¥Ç¥Ã¥´°À®Í½ÁÛCG[½Ðŵ¡§¸ø¼°HP]
¡¡¥»¥Ã¥È¥Ð¥Ã¥¯¤·¤¿Éôʬ¤¬²°¾å¥¹¥«¥¤¥Ç¥Ã¥¤È¤Ê¤ê¼þ°Ï¤Ë¤Ï¿å¤¬Î®¤ìÍî¤Á¤ë¿åÈפ¬ÀßÃÖ¤µ¤ì¤Þ¤¹¡£

¥ë¡¼¥Õ¥È¥Ã¥×¥é¥¦¥ó¥¸´°À®Í½ÁÛCG[½Ðŵ¡§¸ø¼°HP]
¡¡¥¹¥«¥¤¥Ç¥Ã¥¤Ë·Ò¤¬¤ë53³¬¤Î¥ë¡¼¥Õ¥È¥Ã¥×¥é¥¦¥ó¥¸¤ÏÆóÁØ¿á¤È´¤±¤Î¶õ´Ö¤È¤Ê¤ê¤Þ¤¹¡£
¡¡¥µ¥¦¥¹¤Î¶¦ÍÑ»ÜÀߤȤ·¤Æ¤Ï1¡¢2³¬¤Ë¥²¥¹¥È¥ë¡¼¥à¤ä¥Õ¥£¥Ã¥È¥Í¥¹¡¢¥´¥ë¥Õ¥ì¥ó¥¸¤Ê¤É¤âÇÛÃÖ¤µ¤ì¤Þ¤¹¡£
´Ö¼è¤ê¿Þ

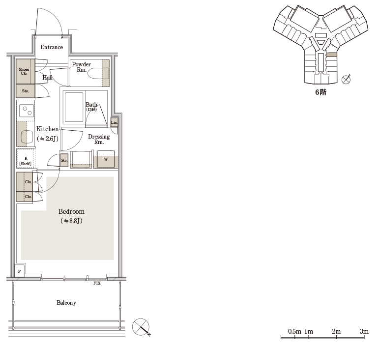
SS-31Ane¥¿¥¤¥×[½Ðŵ¡§¸ø¼°HP]
¡¡¸ø¼°HP¤Ë¸½ºß·ÇºÜ¤µ¤ì¤Æ¤¤¤ë´Ö¼è¤ê¿Þ¤Ç°ìÈÖ¶¹¤¤SS-31Ane¥¿¥¤¥×¤Ç¤¹¡£´Ö¼è¤ê¤Ï1K¡¢ÀìÍÌÌÀѤÏ31.29Ö¡¢¥Ð¥ë¥³¥Ë¡¼ÌÌÀѤÏ7.26֤ȤʤäƤ¤¤Þ¤¹¡£

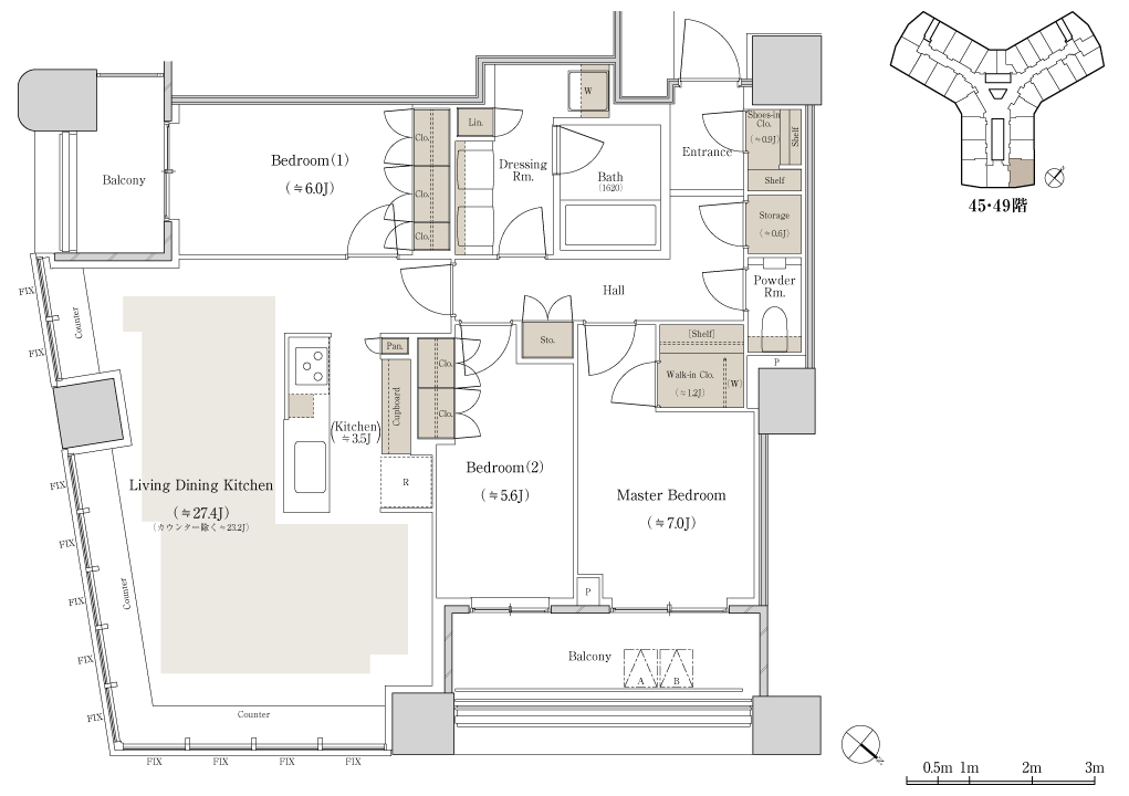
SS-103Ese[½Ðŵ¡§¸ø¼°HP]
¡¡¸ø¼°HP¤Ë¸½ºß·ÇºÜ¤µ¤ì¤Æ¤¤¤ë´Ö¼è¤ê¿Þ¤Ç°ìÈÖ¹¤¤SS-103Ese¥¿¥¤¥×¤Ç¤¹¡£´Ö¼è¤ê¤Ï3LDK+WIC+SIC+S+TR¡¢ÀìÍÌÌÀѤÏ103.78Ö¡¢¥Ð¥ë¥³¥Ë¡¼ÌÌÀѤÏ13.48Ö¡¢¥È¥é¥ó¥¯¥ë¡¼¥àÌÌÀÑ2.98֤ȤʤäƤ¤¤Þ¤¹¡£45¡Á49³¬¤Î¹âÁØÉô¤ËÇÛÃÖ¤µ¤ì¤ë¥¹¡¼¥Ú¥ê¥¢¥×¥é¥ó¤Ç¡¢¥ê¥Ó¥ó¥°¤ÎÅ·°æ¹â¤Ï2.55m¤È¤Ê¤ê¤Þ¤¹¡£

SS-95Ane[½Ðŵ¡§¸ø¼°HP]
¡¡51³¬¤ÎSS-95Ane¥¿¥¤¥×¤Î´Ö¼è¤ê¿Þ¤Ç¤¹¡£´Ö¼è¤ê¤Ï3LDK+WIC+SIC+S+TR¡¢ÀìÍÌÌÀѤÏ95.71Ö¡¢¥Ð¥ë¥³¥Ë¡¼ÌÌÀѤÏ17.95Ö¡¢¥È¥é¥ó¥¯¥ë¡¼¥àÌÌÀѤÏ2.34֤ȤʤäƤ¤¤Þ¤¹¡£¤³¤Á¤é¤â¥¹¡¼¥Ú¥ê¥¢¥×¥é¥ó¤È¤Ê¤ê¤Þ¤¹¤¬¡¢¥ê¥Ó¥ó¥°¤ÎÅ·°æ¹â¤Ï2.7m¤È¾¯¤·¹â¤¯¤Ê¤Ã¤Æ¤¤¤Þ¤¹¡£

SW-74Ds[½Ðŵ¡§¸ø¼°HP]
¡¡55¡Á57³¬¤Î¥¨¥°¥¼¥¯¥Æ¥£¥Ö¥Õ¥í¥¢¤Ë°ÌÃÖ¤¹¤ëSW-74Ds¥¿¥¤¥×¤Î´Ö¼è¤ê¿Þ¤Ç¤¹¡£´Ö¼è¤ê¤Ï2LDK+2WIC+SIC+P+TR¡¢ÀìÍÌÌÀѤÏ74.80Ö¡¢¥Ð¥ë¥³¥Ë¡¼ÌÌÀѤÏ12.84Ö¡¢¥È¥é¥ó¥¯¥ë¡¼¥àÌÌÀѤÏ1.78֤ȤʤäƤ¤¤Þ¤¹¡£¥ê¥Ó¥ó¥°¤ÎÅ·°æ¹â¤Ï2.7m¤Ç¤¹¡£
°ÌÃÖ¿Þ

°ÌÃÖ¿Þ[½Ðŵ¡§¸ø¼°HP]
¡¡¾ì½ê¤ÏÅÔ±ÄÂç¹¾¸ÍÀþ¡Ö¾¡¤É¤¡×±Ø¤ÎÆî¦¤ÇÎ٤ΥߥåɤÏÃϲ¼ÄÌÏ©¤Ç±Ø¤Ëľ·ë¤·¤Þ¤¹¡£¤½¤Î¤¿¤áɽµÅª¤Ë¤Ï±Ø¤Þ¤ÇÅÌÊâ2ʬ¤È¤Ê¤ê¤Þ¤¹¡£
·úÀß¾õ¶·

¡¡2022ǯ10·î11Æü¤ËīĬ±¿²Ï±è¤¤¤«¤é»£±Æ¤·¤¿¡Ö¥Ñ¡¼¥¯¥¿¥ï¡¼¾¡¤É¤¥µ¥¦¥¹¡×(ÃϾå58³¬¡¢ºÇ¹â¹â¤µ194.53m)¤Ç¤¹¡£Y»ú·¿¤Î¥È¥é¥¤¥¹¥¿¡¼·¿¤È¤Ê¤Ã¤Æ¤¤¤Þ¤¹¡£

¡¡Ä«Ä¬±¿²Ï¤Ë²Í¤«¤ëóÕÌÀÂç¶¶¤«¤é»£±Æ¡£

¡¡óÕÌÀÂç¶¶¤Ï´Ä¾õÆó¹æÀþ¤È¤Ê¤Ã¤Æ¤ª¤ê¡¢¤³¤ÎÀè¤Ë¤¢¤ëÃÛÃÏ¡¦¿·¶¶´Ö¤¬2022ǯ12·î18Æü15»þ¤Ë¸òÄ̳«Êü¤µ¤ì¤ë¤³¤È¤¬È¯É½¤µ¤ì¤Æ¤Þ¤¹¡£¤³¤ì¤Ë¤è¤êÅÔ¿´ÊýÌ̤θòÄ̤ÎÊØ¤¬¸þ¾å¤·¤Þ¤¹¡£

¡¡Ä«Ä¬±¿²Ï±è¤¤¤Î¥¿¥ï¡¼¥Þ¥ó¥·¥ç¥ó·²¤Ç¤¹¡£Ä«Ä¬±¿²Ï¤Ï¾¡¤É¤¤ÈÀ²³¤¤ÎµðÂç¤Ê¥¿¥ï¡¼¥Þ¥ó¥·¥ç¥ó·²¤Ë¶´¤Þ¤ì¤ë¤³¤È¤Ë¤Ê¤ê¤Þ¤¹¡£

¡¡ËÌÀ¾Â¦¤Î¿·Åç¶¶(À¶À¡Ä̤ê)¤«¤é»£±Æ¡£Ãæ±û¤¬¥µ¥¦¥¹¤Çº¸¤ÎÀĤ¤¥Í¥Ã¥È¤¬¸«¤¨¤Æ¤¤¤ë¤Î¤¬¥ß¥Ã¥É¤Ç¤¹¡£»Ü¹©¼Ô¤Ï¥µ¥¦¥¹¤Ï¼¯Åç·úÀß¡¢¥ß¥Ã¥É¤ÏÀ¶¿å·úÀߤǤ½¤ì¤¾¤ì°ã¤¦·úÀß²ñ¼Ò¤È¤Ê¤Ã¤Æ¤¤¤Þ¤¹¡£

¡¡ËÌÀ¾Â¦¤ÎÏ©ÃϤ«¤é»£±Æ¡£

¡¡ÌܤÎÁ°¤«¤é¸«¾å¤²¤¿ÍͻҤǤ¹¡£

¡¡Â¸µ¤Ç¤Ï¥³¡¼¥Á¥¨¥ó¥È¥é¥ó¥¹¤ÎÇȤΤ褦¤Ê3¼¡¶ÊÀþÉôʬ¤¬·úÀßÃæ¤Ç¤·¤¿¡£

¡¡´°À®Í½ÁۿޤǤϤ«¤Ê¤êÌܤò°ú¤¯¶õ´Ö¤È¤Ê¤Ã¤Æ¤¤¤Þ¤·¤¿¤¬¡¢¼Âʪ¤â¤½¤¦¤¤¤Ã¤¿¶õ´Ö¤Ë¤Ê¤ë¤Î¤«ÃíÌܤǤ¹¡£

¡¡ÄãÁØÉô¤ËÃíÌܤ·¤¿¤Î¤Ç¥«¥ì¥Ã¥¿¼®Î±¤«¤é¹âÁØÉô¤Ë¥º¡¼¥à¤Ç¤¹¡£ºÇ¾å³¬¤Î58³¬¤Ë¤Ï㤷¤Æ¤ª¤êÅã²°¤Î·úÀߤ¬»Ï¤Þ¤Ã¤Æ¤¤¤Þ¤·¤¿¡£

¡¡Ë̦¤«¤é»£±Æ¡£¥È¥é¥¤¥¹¥¿¡¼·¿¤ÏÉô²°¤ÎÀµÌ̤˸«¤¨¤ë·Ê¿§¤¬Â礤¯9¥Ñ¥¿¡¼¥ó¤¢¤ê¤Þ¤¹¤¬¡¢¤É¤ÎÊý¸þ¤¬¿Íµ¤¤Ê¤ó¤Ç¤·¤ç¤¦¤Í¡©¤â¤·¤³¤³¤Ë½»¤á¤ë¤Ê¤é¤Ð¼Ì¿¿±¦Â¦¤ÎÌ̤ÎË̦¤¬¼«Ê¬¹¥¤ß¤Î·Ê¿§¤Ë¤Ê¤ê¤½¤¦¤Ç¤¹¡£

¡¡ËÌÅ즤ÎóÕÌÀ¶¶¤«¤é»£±Æ¡£

¡¡ºÆ¤ÓīĬ±¿²Ï±è¤¤¤«¤é»£±Æ¡£

¡¡À²³¤¥È¥ê¥È¥ó¥¹¥¯¥¨¥¢Á°¤Ë¤¢¤ëÊâÆ»¶¶¤«¤é»£±Æ¤·¤¿À²³¤¤È¾¡¤É¤¤Î¥¿¥ï¡¼¥Þ¥ó¥·¥ç¥ó·²¤Ç¤¹¡£Ãæ±û¤¬¡Ö¥Ñ¡¼¥¯¥¿¥ï¡¼¾¡¤É¤¥µ¥¦¥¹¡×¤Ç¤¹¡£¹â¤µ150m¤òͤ¹¥¿¥ï¡¼¥Þ¥ó¥·¥ç¥ó¤¬·ú¤ÁʤÖÍͻҤϰµ´¬¤Ç¤¹¡£
ÃÏ¿Þ
ʪ·ï³µÍ×

¡¡¥µ¥¦¥¹¤Î·úÃ۷ײè¤Î¤ªÃΤ餻¤Ç¤¹¡£
¢£Êª·ï³µÍ×¢£
̾¾Î¡§¥Ñ¡¼¥¯¥¿¥ï¡¼¾¡¤É¤¥µ¥¦¥¹
·×²è̾¡§¾¡¤É¤ÅìÃ϶èÂè°ì¼ï»Ô³¹ÃϺƳ«È¯»ö¶È»ÜÀß·úÃÛʪ A1Åï
½êºßÃÏ¡§ÅìµþÅÔÃæ±û¶è¾¡¤É¤»ÍÃúÌÜ1500ÈÖ
¸òÄÌ¡§ÅÔ±ÄÂç¹¾¸ÍÀþ¡Ö¾¡¤É¤¡×±ØÅÌÊâ2ʬ
ÍÑÅÓ¡§¶¦Æ±½»Âð¡¢Å¹ÊÞ
Áí¸Í¿ô¡§1665¸Í¡ÊÈÎÇäÁí¸Í¿ô1145¸Í¡¢»ö¶È¶¨ÎϼԽ»¸Í520¸Í¡Ë
³¬¿ô¡§ÃϾå58³¬¡¢Ãϲ¼3³¬
¹â¤µ¡§188.80m(ºÇ¹â¹â¤µ194.53m)
¹½Â¤¡§Å´¶Ú¥³¥ó¥¯¥ê¡¼¥È¤ °ìÉôÅ´¹ü¤
´ðÁù©Ë¡¡§Ä¾ÀÜ´ðÁÃ
ÉßÃÏÌÌÀÑ¡§12,015.18Ö
·úÃÛÌÌÀÑ¡§4,300.00Ö
±ä¾²ÌÌÀÑ¡§180,827.74Ö
Çä¼ç¡§»°°æÉÔÆ°»º¥ì¥¸¥Ç¥ó¥·¥ã¥ë¡¢¼¯Åç·úÀß
·úÃۼ硧¾¡¤É¤ÅìÃ϶è»Ô³¹ÃϺƳ«È¯Áȹç
»²²ÃÁȹç°÷¡§»°°æÉÔÆ°»º¥ì¥¸¥Ç¥ó¥·¥ã¥ë
Çä¼ç¡§»°°æÉÔÆ°»º¥ì¥¸¥Ç¥ó¥·¥ã¥ë¡¢¼¯Åç·úÀß
Àß·×¼Ô¡§¼¯Åç·úÀß
»Ü¹©¼Ô¡§¼¯Åç·úÀß
¹©´ü¡§2019ǯ3·î1ÆüÃ幩¡Á2023ǯ8·î31Æü½×¹©Í½Äê
Æþµï¡§2024ǯ4·î²¼½ÜͽÄê
¸ø¼°HP¡§https://www.31sumai.com/mfr/X1972/
- ¥«¥Æ¥´¥ê
- Ãæ±û¶è







