
¡¡¸ÞÈ¿ÅĤǷúÀßÃæ¤Î¥¿¥ï¡¼¥Þ¥ó¥·¥ç¥ó¡Ö¥¢¥È¥é¥¹¥¿¥ï¡¼¸ÞÈ¿ÅÄ¡×(ÃϾå30³¬¡¢¹â¤µ105.76m)¤Ç¤¹¡£2022ǯ9·î10Æü¤Ë»£±Æ¤·¤Þ¤·¤¿¡£·úÀßÃϤÏÃÏÌ̻ջö·ï¤ÎÉñÂæ¤È¤Ê¤Ã¤¿¡Ö³¤´î´Û¡×¤ÎÀ×ÃϤǤ¹¡£¤³¤Îµ»ö¤Ç¤ÏƱ¥¿¥ï¥Þ¥ó¤Î³µÍפä·úÀß¾õ¶·¡¢ÃÏ¿ÞÅù¤òºÜ¤»¤Æ¤¤¤Þ¤¹¡£
¥¢¥È¥é¥¹¥¿¥ï¡¼¸ÞÈ¿ÅĤˤĤ¤¤Æ

´°À®Í½ÁÛ³°´ÑCG[½Ðŵ¡§¸ø¼°HP]
¡¡¡Ö¥¢¥È¥é¥¹¥¿¥ï¡¼¸ÞÈ¿ÅġפϸÞÈ¿ÅÄ±Ø¤ÎÆîÀ¾Â¦¤Ë¤¢¤ëÌܹõÀî¤òͤ¨¤¿¾ì½ê¤¬·úÀßÃϤǡ¢µ¬ÌϤÏÃϾå30³¬¡¢Ãϲ¼1³¬¡¢¹â¤µ105.76m¡¢ÉßÃÏÌÌÀÑ2,079.57Ö¡¢·úÃÛÌÌÀÑ1,096.00Ö¡¢±ä¾²ÌÌÀÑ2Ëü1638.35Ö¡¢Áí¸Í¿ô213¸Í¡¢·úÃÛ¼ç(Çä¼ç)¤Ï°°²½À®ÉÔÆ°»º¥ì¥¸¥Ç¥ó¥¹¡¢Àß·×¼Ô¤ÏNEXT ARCHITECT¡õASSOCIATES¡¢»Ü¹©¼Ô¤ÏÀ¾¾¾·úÀߤÇ2024ǯ3·îÃæ½Ü½×¹©¡¢2024ǯ3·î²¼½ÜÆþµï³«»ÏͽÄê¤È¤Ê¤Ã¤Æ¤¤¤Þ¤¹¡£

´°À®Í½ÁÛ³°´ÑCG[½Ðŵ¡§¸ø¼°HP]
¡¡2022ǯ10·î¾å½Ü¤«¤éÂè1´ü¤ÎÈÎÇ䳫»ÏͽÄê¤È¤Ê¤Ã¤Æ¤ª¤ê¡¢ÈÎÇä´Ö¼è¤ê¤Ï1LDK¡Á3LDK¡¢ÀìÍÌÌÀѤÏ53.96Ö¡Á126.94Ö¡¢¥Ð¥ë¥³¥Ë¡¼ÌÌÀѤÏ8.46Ö¡Á34.44֤ȤʤäƤ¤¤Þ¤¹¡£

ÉßÃÏÇÛÃÖ¿Þ[½Ðŵ¡§¸ø¼°HP]
¡¡ÇÛÃÖ¿Þº¸Â¦¤Î»°³Ñ·ÁÉôʬ¤¬¸ÞÈ¿Åıؤ˶ᤤ¦¤Ç¡¢¤½¤Î»°³Ñ·ÁÉôʬ¤Ë¤Ï¥¨¥ó¥È¥é¥ó¥¹¥²¡¼¥È¤È¥¨¥ó¥È¥é¥ó¥¹¥¢¥×¥í¡¼¥Á¤¬Àߤ±¤é¤ì¤Þ¤¹¡£¿Þ¤Î²¼Â¦(Ë̦)¤Ë¤ÏÌܹõÀ¤¢¤êÃó¼Ö¾ì(µ¡³£¼°61Âæ)¤Î½ÐÆþ¸ý¤Ï¤½¤ÎÌܹõÀî¤ËÌ̤·¤¿Æ»Ï©¤È¤Ê¤ê¤Þ¤¹¡£

¥¨¥ó¥È¥é¥ó¥¹¥²¡¼¥È´°À®Í½ÁÛCG[½Ðŵ¡§¸ø¼°HP]
¡¡¥¨¥ó¥È¥é¥ó¥¹¥²¡¼¥È¤Ï·úÀßÃϤˤ«¤Ä¤Æ¤¢¤Ã¤¿Î¹´Û¤ò·Ñ¾µ¤¹¤ëÌç¤È¤Ê¤ê¤Þ¤¹¡£

¥¨¥ó¥È¥é¥ó¥¹¥²¡¼¥È´°À®Í½ÁÛCG[½Ðŵ¡§¸ø¼°HP]
¡¡¤½¤Îι´Û¤È¤Ï¡Ö³¤´î´Û¡×¤Î¤³¤È¤Ç¡¢ÀÑ¿å¥Ï¥¦¥¹¤¬ÃÏÌ̻ե°¥ë¡¼¥×¤Ë²Í¶õ¼è°ú¤ÇÅÚÃÏ¹ØÆþÂå¶â55²¯5000Ëü±ß¤ò¤À¤Þ¤·¼è¤é¤ì¤¿»ö·ï¤ÎÉñÂæ¤È¤·¤Æ¤âÍ̾¤Ç¤¹¡£

¥¨¥ó¥È¥é¥ó¥¹¥¢¥×¥í¡¼¥Á´°À®Í½ÁÛCG[½Ðŵ¡§¸ø¼°HP]
¡¡¥¨¥ó¥È¥é¥ó¥¹¥¢¥×¥í¡¼¥Á¤Ï¿å·Ê¤ä¿¢ºÏ¤¬¤¢¤ê»Íµ¨ÀÞ¡¹¤Î·Ê¿§¤¬³Ú¤·¤á¤Þ¤¹¡£

¥¨¥ó¥È¥é¥ó¥¹´°À®Í½ÁÛCG[½Ðŵ¡§¸ø¼°HP]
¡¡¥¨¥ó¥È¥é¥ó¥¹¤ÏÀФȥ¢¡¼¥È¤Î¶õ´Ö¤È¤Ê¤ê¡¢º¸Ã¼¤Ë¤¢¤ë¥³¥ó¥·¥§¥ë¥¸¥å¥«¥¦¥ó¥¿¡¼¤âÀÐĦ¤Î¥«¥¦¥ó¥¿¡¼¤È¤Ê¤Ã¤Æ¤¤¤Þ¤¹¡£

¥¨¥ó¥È¥é¥ó¥¹¥Û¡¼¥ë´°À®Í½ÁÛCG[½Ðŵ¡§¸ø¼°HP]
¡¡¥¨¥ó¥È¥é¥ó¥¹¥Û¡¼¥ë¤ÏÌܹõÀËÇÛÃÖ¤µ¤ìÁëÀè¤Ë¤ÏÌÚ¡¹¤¬¸«¤¨¤Þ¤¹¡£

¥é¥¦¥ó¥¸´°À®Í½ÁÛCG[½Ðŵ¡§¸ø¼°HP]
¡¡2³¬¤ÎÌܹõÀˤϥ饦¥ó¥¸¤¬ÇÛÃÖ¤µ¤ì¡¢Á뤫¤é¤ÏÌܹõÀî±è¤¤¤Îºù¤ò³Ú¤·¤à¤³¤È¤â¤Ç¤¤Þ¤¹¡£

¼Ö´ó¤»´°À®Í½ÁÛCG[½Ðŵ¡§¸ø¼°HP]
¡¡ÉßÃÏËÌÀ¾Â¦ÇÛÃÖ¤µ¤ì¤ë¼Ö´ó¤»¤Ï¡¢±«¤ÎÆü¤Ç¤âƱ¾è¼Ô¤¬Ç¨¤ì¤º¤Ë¾è¼Ö¤Ç¤¤ëÂ礤ʲ°º¬¤Î¤¢¤ë¶õ´Ö¤È¤Ê¤ê¤Þ¤¹¡£
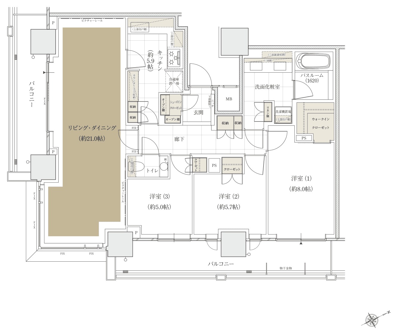
´Ö¼è¤ê

20³¬¥Õ¥í¥¢³µÇ°¿Þ[½Ðŵ¡§¸ø¼°HP]
¡¡¡Ö¥¢¥È¥é¥¹¥¿¥ï¡¼¸ÞÈ¿ÅġפÎ20³¬¥Õ¥í¥¢³µÇ°¿Þ¤Ç¤¹¡£1¥Õ¥í¥¢8¸Í¤Ç¤¹¤¬³Æ³¬¥´¥ß¥¹¥Æ¡¼¥·¥ç¥ó¤¬2¥õ½ê¤¢¤ë¤Î¤Ç¥´¥ß¤ò»ý¤Ã¤ÆÊ⤯µ÷Î¥¤¬Ã»¤¯¤Ê¤ê¤Þ¤¹¡£ÀìÍÉô¤ÎÅ·°æ¹â¤Ï2,550mm¤Ç¡¢28¡Á30³¬¤Î¥×¥ì¥ß¥¢¥à¥Õ¥í¥¢¤ÎÅ·°æ¹â¤Ï2,700mm¤È¤Ê¤ê¤Þ¤¹¡£¤Þ¤¿¡¢¸ø³«¤µ¤ì¤Æ¤¤¤ë´Ö¼è¤ê¤ò¸«¤ë¸Â¤ê¤Ç¤ÏÁ´µï¼¼¤¬¥Ð¥ë¥³¥Ë¡¼¤ËÌ̤·¤Æ¤¤¤Þ¤¹¡£

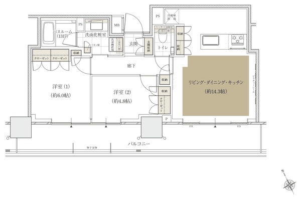
F¥¿¥¤¥×[½Ðŵ¡§¸ø¼°HP]
¡¡F¥¿¥¤¥×¤Î´Ö¼è¤ê¿Þ¤Ç¤¹¡£1LDK¤Î´Ö¼è¤ê¤ÇÀìÍÌÌÀѤÏ36.31Ö¡¢¥Ð¥ë¥³¥Ë¡¼ÌÌÀÑ6.80֤Ǥ¹¡£

I2¥¿¥¤¥×[½Ðŵ¡§¸ø¼°HP]
¡¡I2¥¿¥¤¥×¤Î´Ö¼è¤ê¿Þ¤Ç¤¹¡£2LDK¤Î´Ö¼è¤ê¤ÇÀìÍÌÌÀѤÏ58.89Ö¡¢¥Ð¥ë¥³¥Ë¡¼ÌÌÀÑ18.49֤Ǥ¹¡£

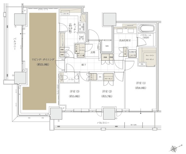
H4¥¿¥¤¥×[½Ðŵ¡§¸ø¼°HP]
¡¡H4¥¿¥¤¥×¤Î´Ö¼è¤ê¿Þ¤Ç¤¹¡£3LDK+WIC+SIC¤Î´Ö¼è¤ê¤ÇÀìÍÌÌÀѤÏ102.60Ö¡¢¥Ð¥ë¥³¥Ë¡¼ÌÌÀÑ23.13֤Ǥ¹¡£

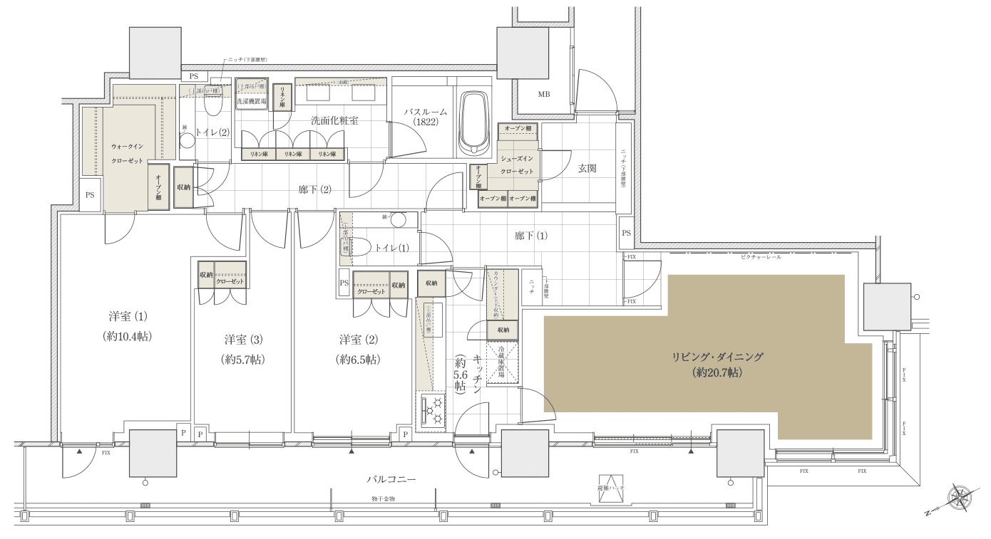
B32¥¿¥¤¥×[½Ðŵ¡§¸ø¼°HP]
¡¡¥×¥ì¥ß¥¢¥à¥Õ¥í¥¢¤È¤Ê¤ëB3¥¿¥¤¥×¤Î´Ö¼è¤ê¿Þ¤Ç¤¹¡£1LDK+WIC+SIC¤Î´Ö¼è¤ê¤ÇÀìÍÌÌÀѤÏ58.24Ö¡¢¥Ð¥ë¥³¥Ë¡¼ÌÌÀÑ16.98֤Ǥ¹¡£

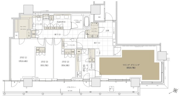
J6¥¿¥¤¥×[½Ðŵ¡§¸ø¼°HP]
¡¡¥×¥ì¥ß¥¢¥à¥Õ¥í¥¢¤È¤Ê¤ëJ6¥¿¥¤¥×¤Î´Ö¼è¤ê¿Þ¤Ç¤¹¡£3LDK+WIC+SIC¤Î´Ö¼è¤ê¤ÇÀìÍÌÌÀѤÏ126.94Ö¡¢¥Ð¥ë¥³¥Ë¡¼ÌÌÀÑ24.56֤Ǥ¹¡£
°ÌÃÖ¿Þ

°ÌÃÖ¿Þ[½Ðŵ¡§¸ø¼°HP]
¡¡·úÀßÃϤϸÞÈ¿Åıؤ«¤éºùÅÄÄ̤ê¤òÆîÀ¾Â¦¤Ë¿Ê¤ß¡¢ÌܹõÀî¤òÅϤ俤Ȥ³¤í¤Ë°ÌÃÖ¤·¤Æ¤¤¤Þ¤¹¡£¸ÞÈ¿ÅıؤÏJR»³¼êÀþ¡¢ÅÔ±ÄÀõÁðÀþ¡¢ÅìµÞÃÓ¾åÀþ¤Î3Ï©Àþ¤¬¤¢¤ê¡¢JR»³¼êÀþ¤«¤é¤ÏÅÌÊâ5ʬ¡¢ÅÔ±ÄÀõÁðÀþ¤«¤é¤ÏÅÌÊâ3ʬ¤È¤Ê¤Ã¤Æ¤¤¤Þ¤¹¡£
·úÀß¾õ¶·

¡¡2022ǯ9·î10Æü¤Ë»£±Æ¤·¤¿¡Ö¥¢¥È¥é¥¹¥¿¥ï¡¼¸ÞÈ¿ÅÄ¡×(ÃϾå30³¬¡¢¹â¤µ105.76m)¤Ç¤¹¡£¥¿¥ï¡¼¥¯¥ì¡¼¥ó1´ð¤ÇÃϾåÉô¤Î·úÀߤ¬»Ï¤Þ¤Ã¤Æ¤¤¤Þ¤¹¡£

¡¡¸ÞÈ¿Åıؤ˰ìÈֶᤤÅ즤«¤é»£±Æ¡£¤³¤³¤Ë¥¨¥ó¥È¥é¥ó¥¹¥²¡¼¥È¤¬ÀßÃÖ¤µ¤ì¤Þ¤¹¡£

¡¡ÆîÀ¾Â¦¤«¤é»£±Æ¡£¼êÁ°¤Î¶õ¤ÃϤˤϥ¿¥Þ¥Û¡¼¥à¤Ë¤è¤ëÃϾå14³¬¡¢¹â¤µ40.835m¤Î¥Þ¥ó¥·¥ç¥ó¤¬·úÀߤµ¤ì¤Þ¤¹¡£

¡¡ËÌÀ¾Â¦¤«¤é»£±Æ¡£Æ»Ï©±è¤¤¤Î¥²¡¼¥È¤¬¤¢¤ë¤¢¤¿¤ê¤ËÃó¼Ö¾ì¤Î½ÐÆþ¸ý¤È¼Ö´ó¤»¤¬ÀßÃÖ¤µ¤ì¤Þ¤¹¡£

¡¡À¾Â¦¤Ë°Üư¤·¤ÆÌܹõÀî¤È°ì½ï¤Ë»£±Æ¡£º£¤Ï¤Þ¤À¤¢¤Þ¤êÌÜΩ¤Á¤Þ¤»¤ó¤¬¡¢ºÇ¾å³¬¤Ë㤹¤ëº¢¤Ë¤Ï¸ºß¤Î¤¢¤ë¥¿¥ï¥Þ¥ó¤Ë¤Ê¤ê¤½¤¦¤Ç¤¹¡£
ÃÏ¿Þ
ʪ·ï³µÍ×

¡¡·úÃ۷ײè¤Î¤ªÃΤ餻¤Ç¤¹¡£
¢£Êª·ï³µÍ×¢£
̾¾Î¡§¥¢¥È¥é¥¹¥¿¥ï¡¼¸ÞÈ¿ÅÄ
»ö¶È̾¡§(²¾¾Î)ÉÊÀî¥×¥í¥¸¥§¥¯¥È
½êºßÃÏ¡§ÅìµþÅÔÉÊÀî¶èÀ¾¸ÞÈ¿ÅÄÆóÃúÌÜ22ÃúÌÜ1,2,3,5,6(ÃÏÈÖ)
¸òÄÌ¡§JR»³¼êÀþ¡¦ÅÔ±ÄÀõÁðÀþ¡¦ÅìµÞÃÓ¾åÀþ¡Ö¸ÞÈ¿ÅÄ¡×±Ø ÅÌÊâ5ʬ
ÍÑÅÓ¡§¶¦Æ±½»Âð
Áí¸Í¿ô¡§213¸Í¡ÊÈóʬ¾ù½»¸Í11¸Í¡¢¹¹ðÂоݳ°½»¸Í8¸Í´Þ¤à¡Ë
³¬¿ô¡§ÃϾå30³¬¡¢Ãϲ¼1³¬
¹â¤µ¡§105.76m¡ÊºÇ¹â¹â¤µ105.76m¡Ë
¹½Â¤¡§Å´¶Ú¥³¥ó¥¯¥ê¡¼¥È¤ °ìÉôÅ´¹ü¤
´ðÁù©Ë¡¡§¾ì½êÂǤÁ¥³¥ó¥¯¥ê¡¼¥È¹º
ÉßÃÏÌÌÀÑ¡§2,079.57Ö
·úÃÛÌÌÀÑ¡§1,096.00Ö
±ä¤ÙÌÌÀÑ¡§21,638.35Ö
·úÃۼ硧°°²½À®ÉÔÆ°»º¥ì¥¸¥Ç¥ó¥¹
Àß·×¼Ô¡§NEXT ARCHITECT¡õASSOCIATES
»Ü¹Ô¼Ô¡§À¾¾¾·úÀß
¹©´ü¡§2021ǯ4·î1ÆüÃ幩¡Á2024ǯ3·îÃæ½Ü½×¹©Í½Äê
Æþµï¡§2024ǯ3·î²¼½ÜͽÄê
¸ø¼°HP¡§https://www.afr-web.co.jp/atlas/mansion/gotanda/index.html/
- ¥«¥Æ¥´¥ê
- ÉÊÀî¶è







