
¡¡Ìܹõ±ØÅÌÊâ·÷¤Ç·úÀßÃæ¤Î¥¿¥ï¡¼¥Þ¥ó¥·¥ç¥ó¡ÖÌܹõMARC¥ì¥¸¥Ç¥ó¥¹¥¿¥ï¡¼¡×(ÃϾå24³¬¡¢¹â¤µ85.23m)¤Ç¤¹¡£2022ǯ7·î9Æü¤Ë»£±Æ¤·¤Þ¤·¤¿¡£¥¸¥§¥¤¥¢¡¼¥ëÅìÆüËÜÅÔ»Ô³«È¯¤Ë¤è¤ë¡ÖMEGURO MARC¡Ê¥á¥°¥í¥Þ¡¼¥¯¡Ë¡×Æâ¤ÎÄÂÂߥ¿¥ï¥Þ¥ó¤ÇÆþµï¼ÔÊ罸¤¬³«»Ï¤µ¤ì¤Þ¤·¤¿¡£¤³¤Îµ»ö¤Ç¤ÏƱ¥¿¥ï¡¼¥Þ¥ó¥·¥ç¥ó¤Î³µÍפä·úÀß¾õ¶·¡¢ÃÏ¿ÞÅù¤òºÜ¤»¤Æ¤¤¤Þ¤¹¡£
ÌܹõMARC¥ì¥¸¥Ç¥ó¥¹¥¿¥ï¡¼¤Ë¤Ä¤¤¤Æ

¡¡¡ÖÌܹõMARC¥ì¥¸¥Ç¥ó¥¹¥¿¥ï¡¼¡×¤ÏÂ絬ÌÏÊ£¹çºÆ³«È¯¡ÖMEGURO MARC¡Ê¥á¥°¥í¥Þ¡¼¥¯¡Ë¡×Æâ¤Ë·ú¤ÄÄÂÂߤΥ¿¥ï¡¼¥Þ¥ó¥·¥ç¥ó¤Ç¡¢µ¬ÌϤÏÃϾå24³¬¡¢Ãϲ¼2³¬¡¢¹â¤µ85.32m¡¢ÉßÃÏÌÌÀÑ3,853.14Ö¡¢·úÃÛÌÌÀÑ1,526.75Ö¡¢±ä¾²ÌÌÀÑ1Ëü8567.57Ö¡¢·úÃۼ硦Âß¼ç¤Ï¥¸¥§¥¤¥¢¡¼¥ëÅìÆüËÜÅÔ»Ô³«È¯¡¢À߷׼ԤȻܹԼԤÏÃÝÃæ¹©Ì³Å¹¡¢2022ǯ10·î½×¹©¡¢2022ǯ10·î²¼½ÜÆþµï³«»ÏͽÄê¤È¤Ê¤Ã¤Æ¤¤¤Þ¤¹¡£
¡¡Áí¸Í¿ô¤Ï194¸Í¤ÇÆþµï¼ÔÊ罸¤¬³«»Ï¤µ¤ì¤Æ¤¤¤Þ¤¹¡£´Ö¼è¤ê¤Ï1DK¡Á3LDK¡¢ÀìÍÌÌÀѤÏ28.76Ö¡Á133.03Ö¡¢²ÈĤϷî³Û14.7Ëü±ß¡Á105Ëü±ß¤È¤Ê¤Ã¤Æ¤¤¤Þ¤¹¡£¤Þ¤¿¡¢¶¦ÍÑ»ÜÀߤȤ·¤Æ2³¬¤ËÌó150֤Υ³¥ï¡¼¥¥ó¥°¥¹¥Ú¡¼¥¹¡¢Í½ÌóÀ©¡¦ÍÎÁ¤Î¥×¥é¥¤¥Ù¡¼¥È¥é¥¦¥ó¥¸¤¬ÇÛÃÖ¤µ¤ì¤Þ¤¹¡£

MEGURO MARC ³°´Ñ´°À®Í½ÁÛ¿Þ[½Ðŵ¡§¸ø¼°HP]
¡¡¡ÖMEGURO MARC¡Ê¥á¥°¥í¥Þ¡¼¥¯¡Ë¡×Æâ¤Ë¤Ïʬ¾ù½»ÂðÅï¤Î¡Ö¥×¥é¥¦¥É¥¿¥ï¡¼ÌܹõMARC¡×(ÃϾå32³¬¡¢¹â¤µ126.65m)¤È¥ª¥Õ¥£¥¹Åï¤Î¡ÖJRÌܹõMARC¥Ó¥ë¡×(ÃϾå13³¬¡¢¹â¤µ69.27m)¤¬¤¢¤ê¡¢¤½¤³¤ËÄÂÂß½»ÂðÅï¤Î¡ÖÌܹõMARC¥ì¥¸¥Ç¥ó¥¹¥¿¥ï¡¼¡×(ÃϾå24³¬¡¢¹â¤µ85.23m)¤â¹ç¤ï¤»¤¿3Åï¹½À®¤Î³¹¶è¤È¤Ê¤Ã¤Æ¤¤¤Þ¤¹¡£

MEGURO MARC ÉßÃÏÇÛÃÖ¿Þ[½Ðŵ¡§¸ø¼°HP]
¡¡Ãæ±û¤Ë»°³Ñ·Á¤òºî¤ë¤è¤¦¤ÊÇÛÃ֤ȤʤäƤª¤ê¡¢¤½¤ÎÃæ±ûÉôʬ¤Ë¤Ï¹¾ì¤âÀ°È÷¤µ¤ì¤Þ¤¹¡£

MEGURO MARC ¥¬¡¼¥Ç¥ó´°À®Í½ÁÛ¿Þ[½Ðŵ¡§¸ø¼°HP]
¡¡¤½¤ÎÃæ±û¤ËÀ°È÷¤µ¤ì¤ë¹¾ì¡ÖMEGURO MARC ¥¬¡¼¥Ç¥ó¡×¤Ë¤Ï¥Æ¡¼¥Ö¥ë¤ä¥Ù¥ó¥ÁÅù¤¬¥°¥ê¥Ã¥É¾õ¤ËÇÛÃÖ¤µ¤ì¤Þ¤¹¡£
°ÌÃÖ¿Þ

°ÌÃÖ¿Þ[½Ðŵ¡§¸ø¼°HP]
¡¡¾ì½ê¤ÏJR»³¼êÀþ¤Î³°Â¦¤ÇÌܹõ±Ø¤È¸ÞÈ¿ÅıؤÎÃæ´Ö¤¢¤¿¤ê¤Ë°ÌÃÖ¤·¤Æ¤¤¤Þ¤¹¡£JR»³¼êÀþ¡ÖÌܹõ¡×±Ø¤ÏÅÌÊâ8ʬ¤ÇJR»³¼êÀþ¡Ö¸ÞÈ¿ÅġױؤÏÅÌÊâ10ʬ¤Îµ÷Î¥¤È¤Ê¤Ã¤Æ¤¤¤Þ¤¹¡£
¡¡Ìܹõ±Ø¤Ë¤ÏÅìµÞÌܹõÀþ¡¦Åìµþ¥á¥È¥íÆîËÌÀþ¡¦ÅԱϰÅÄÀþ¤â¤¢¤ê¡¢¸ÞÈ¿ÅıؤˤÏÅÔ±ÄÀõÁðÀþ¡¢ÅìµÞÃÓ¾åÀþ¤â¤¢¤êÍÍ¡¹¤ÊÏ©Àþ¤¬»ÈÍѲÄǽ¤È¤Ê¤Ã¤Æ¤¤¤Þ¤¹¡£
·úÀß¾õ¶·

¡¡2022ǯ7·î9Æü¤ËJR»³¼êÀþ±Û¤·¤Ë»£±Æ¤·¤¿¡ÖMEGURO MARC¡Ê¥á¥°¥í¥Þ¡¼¥¯¡Ë¡×¤Ç¤¹¡£Ãæ±û¤Î¥¿¥ï¡¼¥Þ¥ó¥·¥ç¥ó¤¬¡ÖÌܹõMARC¥ì¥¸¥Ç¥ó¥¹¥¿¥ï¡¼¡×(ÃϾå24³¬¡¢¹â¤µ85.23m)¤È¤Ê¤Ã¤Æ¤¤¤Þ¤¹¡£

¡¡3¡Á18³¬¤¬¥¹¡¼¥Ú¥ê¥¢¥Õ¥í¥¢(·î³Û14.7Ëü±ß¡Á41Ëü±ß)¡¢19¡Á23³¬¤¬¥¨¥°¥¼¥¯¥Æ¥£¥Ö¥Õ¥í¥¢(·î³Û44Ëü±ß¡Á55Ëü4000±ß)¡¢¤½¤·¤ÆºÇ¾å³¬¤Î24³¬¤¬¥×¥ì¥ß¥¢¥à¥Õ¥í¥¢(·î³Û82Ëü±ß¡Á105Ëü±ß)¤È¤Ê¤Ã¤Æ¤¤¤Þ¤¹¡£¥¨¥°¥¼¥¯¥Æ¥£¥Ö¥Õ¥í¥¢¤Ï1¥Õ¥í¥¢¤Ë6¸Í¡¢¥×¥ì¥ß¥¢¥à¥Õ¥í¥¢¤Ï1¥Õ¥í¥¢¤Ë4¸Í¤È¤Ê¤Ã¤Æ¤¤¤Þ¤¹¡£

¡¡Æî¦¤«¤é¸«¤¿¡ÖMEGURO MARC¡Ê¥á¥°¥í¥Þ¡¼¥¯¡Ë¡×¤Ç¤¹¡£

¡¡Ä̾ï¤Î¥Þ¥ó¥·¥ç¥ó¤ÏÆî¦¤¬¥á¥¤¥ó¤È¤Ê¤ê¤Þ¤¹¤¬¡¢¤³¤³¤Ïʬ¾ù½»ÂðÅï¤Î¡Ö¥×¥é¥¦¥É¥¿¥ï¡¼ÌܹõMARC¡×¤È¥ª¥Õ¥£¥¹Åï¤Î¡ÖJRÌܹõMARC¥Ó¥ë¡×¤¬¤¢¤ë¤Î¤ÇÆî¦¤ÎÉô²°¤Ï¾¯¤Ê¤á¤Ë¤Ê¤Ã¤Æ¤¤¤Þ¤¹¡£

¡¡À¾Â¦¤«¤é»£±Æ¡£¤³¤³¤ÏË̦¤¬°ìÈÖ³«¤±¤¿»ë³¦¤È¤Ê¤Ã¤Æ¤ª¤ê¡¢¤½¤·¤ÆÅÔ¿´ÊýÌ̤ò˾¤à¤³¤È¤¬¤Ç¤¤ë¤Î¤ÇË̦¤¬°ìÈÖ˰¤¤ÎÍè¤Ê¤¤·Ê¿§¤È¤Ê¤ê¤½¤¦¤Ç¤¹¡£
´Ö¼è¤ê

C type 1DK[½Ðŵ¡§¸ø¼°HP]
¡¡°ìÈÖ¶¹¤¤C type 1DK(28.76Ö)¤Î´Ö¼è¤ê¿Þ¤Ç¤¹¡£ÄÂÎÁ¤¬°ìÈְ¤¤´Ö¼è¤ê¤Ç¡¢¥¹¡¼¥Ú¥ê¥¢¥Õ¥í¥¢¤Î°ìÈÖ²¼¤Î¥Õ¥í¥¢¤È¤Ê¤ë3³¬¤Î²ÈĤÏ14.7Ëü±ß¤È¤Ê¤Ã¤Æ¤¤¤Þ¤¹¡£

B type 1LDK[½Ðŵ¡§¸ø¼°HP]
¡¡B type 1LDK(30.31Ö)¤Î´Ö¼è¤ê¿Þ¤Ç¤¹¡£¥¹¡¼¥Ú¥ê¥¢¥Õ¥í¥¢¤Î°ìÈÖ¾å¤Î¥Õ¥í¥¢¤È¤Ê¤ë18³¬¤Ë¤ª¤¤¤Æ¡¢ÄÂÎÁ¤¬°ìÈְ¤¤´Ö¼è¤ê¤Ç²ÈĤÏ16.6Ëü±ß¤È¤Ê¤Ã¤Æ¤¤¤Þ¤¹¡£¤Û¤ÜƱ¤¸´Ö¼è¤ê¤Î30.29Ö¤ÎÉô²°¤âƱ¤¸²ÈĤȤʤäƤ¤¤Þ¤¹¡£

L type 2LDK[½Ðŵ¡§¸ø¼°HP]
¡¡L type 2LDK(75.61Ö)¤Î´Ö¼è¤ê¿Þ¤Ç¤¹¡£¥¹¡¼¥Ú¥ê¥¢¥Õ¥í¥¢¤ÎÃæ¤Ç¤Ï°ìÈÖ¹¤¯¤ÆÄÂÎÁ¤â°ìÈֹ⤤´Ö¼è¤ê¤Ç¡¢Æ±¥¿¥¤¥×¤Î18³¬¤Î²ÈĤÏ41Ëü±ß¤È¤Ê¤Ã¤Æ¤¤¤Þ¤¹¡£

A type 2LDK[½Ðŵ¡§¸ø¼°HP]
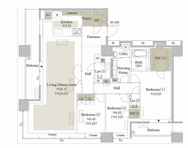
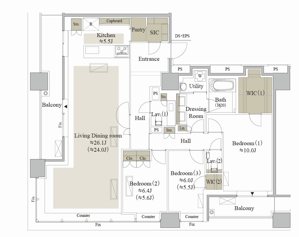
¡¡A type 2LDK(69.02Ö)¤Î´Ö¼è¤ê¿Þ¤Ç¤¹¡£¥¨¥°¥¼¥¯¥Æ¥£¥Ö¥Õ¥í¥¢¤ÎÃæ¤Ç¤ÏÄÂÎÁ¤¬°ìÈְ¤¤´Ö¼è¤ê¤Ç¡¢Æ±¥¿¥¤¥×¤Î19³¬¤Î²ÈĤÏ44Ëü±ß¤È¤Ê¤Ã¤Æ¤¤¤Þ¤¹¡£

N type 3LDK[½Ðŵ¡§¸ø¼°HP]
¡¡N type 3LDK(83.76Ö)¤Î´Ö¼è¤ê¿Þ¤Ç¤¹¡£¥¨¥°¥¼¥¯¥Æ¥£¥Ö¥Õ¥í¥¢¤ÎÃæ¤Ç¤ÏÄÂÎÁ¤¬°ìÈֹ⤤´Ö¼è¤ê¤Ç¡¢23³¬¤Î²ÈĤÏ55Ëü4000±ß¤È¤Ê¤Ã¤Æ¤¤¤Þ¤¹¡£

P type 2LDK[½Ðŵ¡§¸ø¼°HP]
¡¡P type 2LDK(103.43Ö)¤Î´Ö¼è¤ê¿Þ¤Ç¤¹¡£ºÇ¾å³¬¤Î24³¬¤Ë°ÌÃÖ¤¹¤ë¥×¥ì¥ß¥¢¥à¥Õ¥í¥¢¤ÎÃæ¤Ç¤Ï°ìÈְ¤¤´Ö¼è¤ê¤Ç¡¢²ÈĤÏ82Ëü±ß¤È¤Ê¤Ã¤Æ¤¤¤Þ¤¹¡£Â¾¤Ë¤â82Ëü±ß¤ÎÉô²°¤¬¤â¤¦1¸Í¤¢¤ê¤Þ¤¹¡£

Q type 3LDK[½Ðŵ¡§¸ø¼°HP]
¡¡Q type 3LDK(133.03Ö)¤Î´Ö¼è¤ê¿Þ¤Ç¤¹¡£¥×¥ì¥ß¥¢¥à¥Õ¥í¥¢¤Ç°ìÈֹ⤤´Ö¼è¤ê¤Ç²ÈĤÏ105Ëü±ß¤È¤Ê¤Ã¤Æ¤¤¤Þ¤¹¡£
ÃÏ¿Þ
ʪ·ï³µÍ×

¡¡·úÃ۷ײè¤Î¤ªÃΤ餻¤Ç¤¹¡£
¢£Êª·ï³µÍ×¢£
̾¾Î¡§ÌܹõMARC¥ì¥¸¥Ç¥ó¥¹¥¿¥ï¡¼
·×²è̾¾Î¡§(²¾¾Î)À¾¸ÞÈ¿ÅÄ3ÃúÌÜ¥×¥í¥¸¥§¥¯¥È BÅï
½êºßÃÏ¡§ÅìµþÅÔÉÊÀî¶èÀ¾¸ÞÈ¿ÅÄ»°ÃúÌÜ249ÈÖ1,249ÈÖ10
¸òÄÌ¡§JR»³¼êÀþ¡ÖÌܹõ¡×±Ø ÅÌÊâ8ʬ
¡¡¡¡¡¡ÅìµÞÌܹõÀþ¡ÖÉÔÆ°Á°¡×±Ø ÅÌÊâ9ʬ
¡¡¡¡¡¡ÅÔ±ÄÀõÁðÀþ¡Ö¸ÞÈ¿ÅÄ¡×±Ø ÅÌÊâ9ʬ
¡¡¡¡¡¡JR»³¼êÀþ¡Ö¸ÞÈ¿ÅÄ¡×±Ø ÅÌÊâ10ʬ
¡¡¡¡¡¡ÅìµÞÃÓ¾åÀþ¡Ö¸ÞÈ¿ÅÄ¡×±Ø ÅÌÊâ11ʬ
ÍÑÅÓ¡§¶¦Æ±½»Âð¡¢Êݰé½ê
Áí¸Í¿ô¡§194¸Í
³¬¿ô¡§ÃϾå24³¬¡¢Ãϲ¼2³¬
¹â¤µ¡§85.32m
¹½Â¤¡§RC¤¡¢S¤
´ðÁù©Ë¡¡§Ä¾ÀÜ´ðÁᢹº´ðÁÃ
ÉßÃÏÌÌÀÑ¡§3,853.14Ö
·úÃÛÌÌÀÑ¡§1,526.75Ö
±ä¾²ÌÌÀÑ¡§18,567.57Ö
·úÃۼ硧¥¸¥§¥¤¥¢¡¼¥ëÅìÆüËÜÅÔ»Ô³«È¯
Àß·×¼Ô¡§ÃÝÃæ¹©Ì³Å¹
»Ü¹Ô¼Ô¡§ÃÝÃæ¹©Ì³Å¹
¹©´ü¡§2020ǯ7·î31ÆüÃ幩¡Á2022ǯ10·î½×¹©Í½Äê
Æþµï¡§2022ǯ10·î²¼½ÜͽÄê
¸ø¼°HP¡§https://meguromarcapartment.com/
¡¡¡¡¡¡¡¡https://www.jrtk.jp/meguromarc-apartment/
- ¥«¥Æ¥´¥ê
- ÉÊÀî¶è







