
¡¡ÀéÆüÁ°Ä̤ȾåÄ®¶Ú¤¬¸òº¹¤¹¤ë¾åËÜÄ®£¶¸òº¹ÅÀ¤«¤é¸«¤¿¡ÖÂçºå¾åËÜÄ®¡×±ØÁ°¤Î¥¿¥ï¡¼¥Þ¥ó¥·¥ç¥ó·²¤Ç¤¹¡£2021ǯ12·î21Æü¤Ë»£±Æ¤·¤Þ¤·¤¿¡£

¡¡¤½¤³¤«¤éÀéÆüÁ°Ä̤ò¾¯¤·Å즤˰Üư¤·¤¿¾ì½ê¤Ç¤ÏÂçºå»Ô¹â®Åŵ¤µ°Æ»¡ÊÂçºå¥á¥È¥í¡Ë¤È´ØÅÅÉÔÆ°»º³«È¯¤Ë¤è¤ëʬ¾ù¤Î¥¿¥ï¡¼¥Þ¥ó¥·¥ç¥ó¡Ö(²¾¾Î)¾åËÜÄ® ±ØÁ°¥¿¥ï¡¼¡×(ÃϾå29³¬¡¢¹â¤µ99.98m)¤¬·úÀßÃæ¤Ç¤¹¡£Âçºå¥á¥È¥í¤È¤·¤Æ¤Ï½é¤Îʬ¾ù¥Þ¥ó¥·¥ç¥ó¤ÇÈÎÇ䳫»Ï³«»Ï¤Ï̤Äê¤Ç¤¹¡£
¡¡2094ǯ8·î31Æü¤Þ¤Ç¤ÎÄê´ü¼ÚÃϸ¢ÉÕ¤¤Î¥¿¥ï¡¼¥Þ¥ó¥·¥ç¥ó¤È¤Ê¤ê¤Þ¤¹¡£2024ǯ7·î¾å½Ü¤«¤éÆþµï³«»ÏͽÄê¤Ç¡¢¼ÚÃÏ´ü´Ö¤Ï²òÂι©»ö´ü´Ö¤â´Þ¤à¤¿¤á½»¤á¤ë¤Î¤ÏÌó69ǯ¤¯¤é¤¤¤È¤Ê¤ê¤½¤¦¤Ç¤¹¡£

¡¡Çظå¤Î¥¿¥ï¡¼¥Þ¥ó¥·¥ç¥ó¤Ï¡Ö¥Ô¥¢¥Ã¥Ä¥¡¥¿¥ï¡¼¾åËÜÄ®¡×(ÃϾå24³¬¡¢¹â¤µ78.53m)¤Ç¡Ö(²¾¾Î)¾åËÜÄ® ±ØÁ°¥¿¥ï¡¼¡×¤«¤é¸«¤ÆË̦¤Ï¤ª¸«¹ç¤¤Éô²°¤È¤Ê¤ê¤½¤¦¤Ç¤¹¡£

¡¡Æî¦¤Ë¤Ï¡Ö¥·¥§¥é¥È¥óÅԥۥƥëÂçºå¡×(ÃϾå21³¬¡¢¹â¤µ78.548m)¤¬¤¢¤ê¤Þ¤¹¡£

¡¡Å즤ˤÏ24³¬·ú¤Æ¤Î¡Ö¥¢¡¼¥Ð¥ó¥Ò¥ë¾åÄ®¡×¤â¤¢¤êÈ´¤±¤¿Ä¯Ë¾¤ÎÉô²°¤Ï¾¯¤Ê¤½¤¦¤Ç¤¹¤¬¡¢Âçºå¥á¥È¥í¤È¤·¤Æ¤ÏµÇ°¤¹¤Ù¤1¹æÊª·ï¤Î¤¿¤áµ¤¹ç¤ÏÆþ¤Ã¤Æ¤¤¤ë¤È»×¤¤¤Þ¤¹¡£

°ÌÃÖ¿Þ[½Ðŵ¡§¸ø¼°HP]
¡¡·úÀßÃϤ϶áÅ´ÆñÇÈÀþ¡¢ÆàÎÉÀþ¡¢ÂçºåÀþ¡ÖÂçºå¾åËÜÄ®¡×±Ø¤«¤éÅÌÊâ1ʬ¡¢Âçºå¥á¥È¥íëĮÀþ¡¢ÀéÆüÁ°Àþ¡ÖëĮ¶åÃúÌܡױؤ«¤éÅÌÊâ3ʬ¤Î¾ì½ê¤Ë°ÌÃÖ¤·¤Æ¤¤¤Þ¤¹¡£

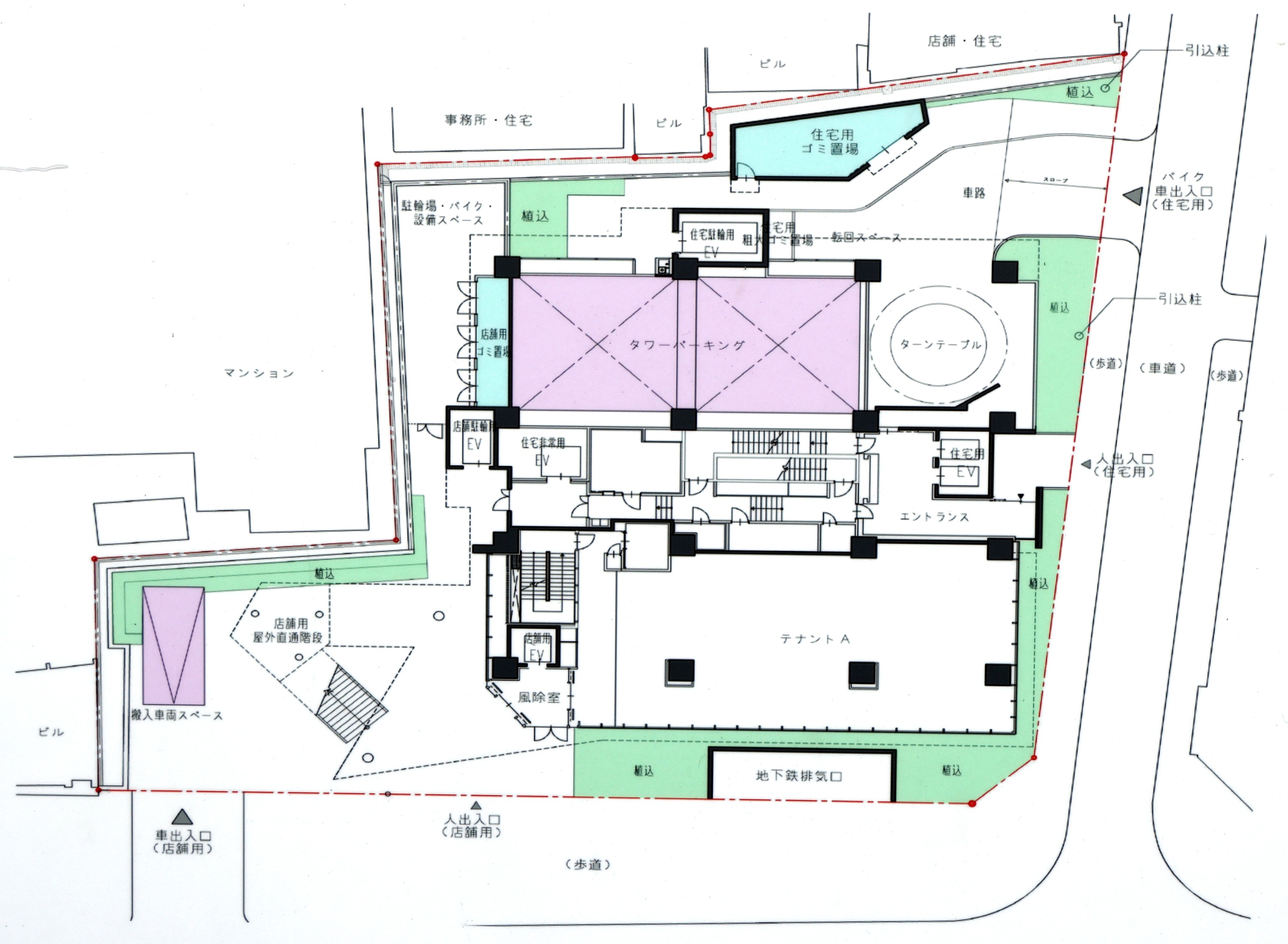
¡¡·úÃ۷ײè¤Î¤ªÃΤ餻¤Ë·ÇºÜ¤µ¤ì¤Æ¤¤¤ëÇÛÃֿޤǤ¹¡£¸½Ãϼ̿¿¤Ç°ìÃÊÄ㤤¾ì½ê¤¬¤¢¤ê¤Þ¤·¤¿¤¬¡¢¤½¤³¤¬¥¿¥ï¡¼¥Ñ¡¼¥¥ó¥°¤Ø¤Î½ÐÆþ¸ý¤È¤Ê¤ê¤Þ¤¹¡£¤Þ¤¿¡¢ÀéÆüÁ°Ä̦¤ÏŹÊޤȤʤê¤Þ¤¹¡£

¡¡Î©Ì̿ޤò¸«¤¿ÍͻҤÀ¤È7³¬¡Á29³¬¤¬½»Âð¥Õ¥í¥¢¤È¤Ê¤ê¤½¤¦¤Ç¤¹¡£

¡¡·úÃ۷ײè¤Î¤ªÃΤ餻¤Ç¤¹¡£¿ôÃÍÅù¤Ï¸ø¼°HP¤ÎÃͤòÍ¥À褷¤Æ·ÇºÜ¤·¤Æ¤¤¤Þ¤¹¡£
¢£Êª·ï³µÍ×¢£
²¾¾Î¡§(²¾¾Î)¾åËÜÄ® ±ØÁ°¥¿¥ï¡¼
·×²è̾¡§(²¾¾Î)OM¥¿¥ï¡¼¾åËÜÄ® ¿·ÃÛ¹©»ö
½êºßÃÏ¡§ÂçºåÉÜÂçºå»ÔÅ·²¦»û¶è¾åËÜĮϻÃúÌÜ3ÈÖ42¾¡ÊÃÏÈÖ¡Ë
ÍÑÅÓ¡§¶¦Æ±½»Â𤪤è¤ÓŹÊÞ
Áí¸Í¿ô¡§135¸Í¡Ê¾ŹÊÞ5¶è²è¡Ë
³¬¿ô¡§ÃϾå29³¬¡¢Ãϲ¼1³¬
¹â¤µ¡§99.98m
¹½Â¤¡§Å´¶Ú¥³¥ó¥¯¥ê¡¼¥È¤
ÉßÃÏÌÌÀÑ¡§1,483.79Ö
·úÃÛÌÌÀÑ¡§890.19Ö
±ä¾²ÌÌÀÑ¡§16,861.07Ö
·úÃۼ硧Âçºå»Ô¹â®Åŵ¤µ°Æ»(Âçºå¥á¥È¥í)¡¢´ØÅÅÉÔÆ°»º³«È¯
Àß·×¼Ô¡§IAOÃÝÅÄÀß·×
»Ü¹©¼Ô¡§¹ãÃÓÁÈ
¼ÚÃÏ´ü´Ö¡§°úÅÏÆü¤è¤ê2094ǯ8·î31Æü¤Þ¤Ç¡Ê²òÂι©»ö´ü´Ö´Þ¤à¡Ë
¹©´ü¡§2021ǯ12·î¾å½ÜÃ幩¡Á2024ǯ4·î²¼½Ü½×¹©Í½Äê
Æþµï¡§2024ǯ7·î¾å½ÜͽÄê
- ¥«¥Æ¥´¥ê
- Âçºå»Ô







