
³°´Ñ´°À®Í½ÁÛCG[½Ðŵ¡§¸ø¼°HP]
¡¡ËÌ»²Æ»±ØÁ°¤Ç·úÀßÃæ¤Î²¯¥·¥ç¥ó¡Ö
¡¡·úÀßÃϤÏÌÀ¼£Ä̤ê¤È¼óÅԹ⿷½ÉÀþ¤¬¸òº¹¤¹¤ëËÌ»²Æ»¸òº¹ÅÀ³ÑÃϤˤ¢¤Ã¤¿¡ÖGSK¥Ó¥ë¡×(ÃϾå19³¬¡¢¹â¤µ85.14m)¤ÎÀ×ÃϤǡ¢Åìµþ¥á¥È¥íÉûÅÔ¿´Àþ¡ÖËÌ»²Æ»¡×±Ø¤«¤éÅÌÊâ1ʬ¤Îµ÷Î¥¤Ç¤¹¡£Çä¼ç¤Ï»°°æÉÔÆ°»º¥ì¥¸¥Ç¥ó¥·¥ã¥ëñÆÈ¤ÇÁí¸Í¿ô¤Ï471¸ÍÀß·×¼Ô¤ÏÀ¶¿å·úÀß¡¢»Ü¹©¼Ô¤ÏÀ¶¿å¡¦¥Õ¥¸¥¿·úÀß¶¦Æ±´ë¶ÈÂΤǡ¢2023ǯ6·î²¼½Ü½×¹©Í½Äê¡¢2023ǯ7·î²¼½ÜÆþµïͽÄê¤È¤Ê¤Ã¤Æ¤¤¤Þ¤¹¡£
¢§¥Ñ¡¼¥¯¥³¡¼¥È¿ÀµÜËÌ»²Æ» ¥¶ ¥¿¥ï¡¼¤Î¸ø¼°HP
https://www.31sumai.com/mfr/X1709/

³°´Ñ´°À®Í½ÁÛCG[½Ðŵ¡§¸ø¼°HP]
¡¡ÌܤÎÁ°¤Ç¤Ï¤¢¤ê¤Þ¤»¤ó¤¬·úÀßÃϤÏÌÀ¼£¿ÀµÜ¡¢Â塹ÌÚ¸ø±à¡¢¿·½É¸æ±ñ¡¢ÌÀ¼£¿ÀµÜ³°±ñ¤ò¼Ú·Ê¤Ç¤¤ëΩÃϤǤ¹¡£

¥Õ¥£¡¼¥ê¥ó¥°¥Ç¥Ã¥´°À®Í½ÁÛCG[½Ðŵ¡§¸ø¼°HP]
¡¡¶¦Í»ÜÀߤȤ·¤Æ²°¾å¥Ç¥Ã¥¡¢¥Ñ¡¼¥Æ¥£¥ë¡¼¥à¡¢¥²¥¹¥È¥ë¡¼¥à¡¢¥Õ¥£¥Ã¥È¥Í¥¹¥ë¡¼¥à¡¢¥·¥¢¥¿¡¼¥é¥¦¥ó¥¸¡¢¥´¥ë¥Õ¥é¥¦¥ó¥¸¤Ê¤É¤¬ÍѰդµ¤ì¤Þ¤¹¡£
¡¡¤³¤ì¤Ï²°¾å¤ËÇÛÃÖ¤µ¤ì¤ë¶¦ÍÑ»ÜÀߤΥե£¡¼¥ê¥ó¥°¥Ç¥Ã¥¤Î´°À®Í½ÁۿޤǤ¹¡£ÌÀ¼£¿ÀµÜ¤ÎÎÐÃϤò˾¤àìÔÂô¤Ê¶õ´Ö¤È¤Ê¤ê¤Þ¤¹¡£

¥¹¥¯¥ê¡¼¥ó¥Ç¥Ã¥´°À®Í½ÁÛCG[½Ðŵ¡§¸ø¼°HP]
¡¡¹ñΩ¶¥µ»¾ì¦¤ò˾¤á¤ë²°¾å¤Ë¤Ï¶¦ÍÑ»ÜÀߤΥ¹¥¯¥ê¡¼¥ó¥Ç¥Ã¥¤¬ÇÛÃÖ¤µ¤ì¤Þ¤¹¡£±ü¤Ë¤ÏÅìµþÅÔ¿´¤Î͹âÁإӥ뷲¤¬¹¤¬¤Ã¤Æ¤¤¤Þ¤¹¤¬Åìµþ¥ß¥Ã¥É¥¿¥¦¥ó¤Ë±£¤ì¤ÆÅìµþ¥¿¥ï¡¼¤Ï¸«¤¨¤Ê¤¤¤è¤¦¤Ç¤¹¡£

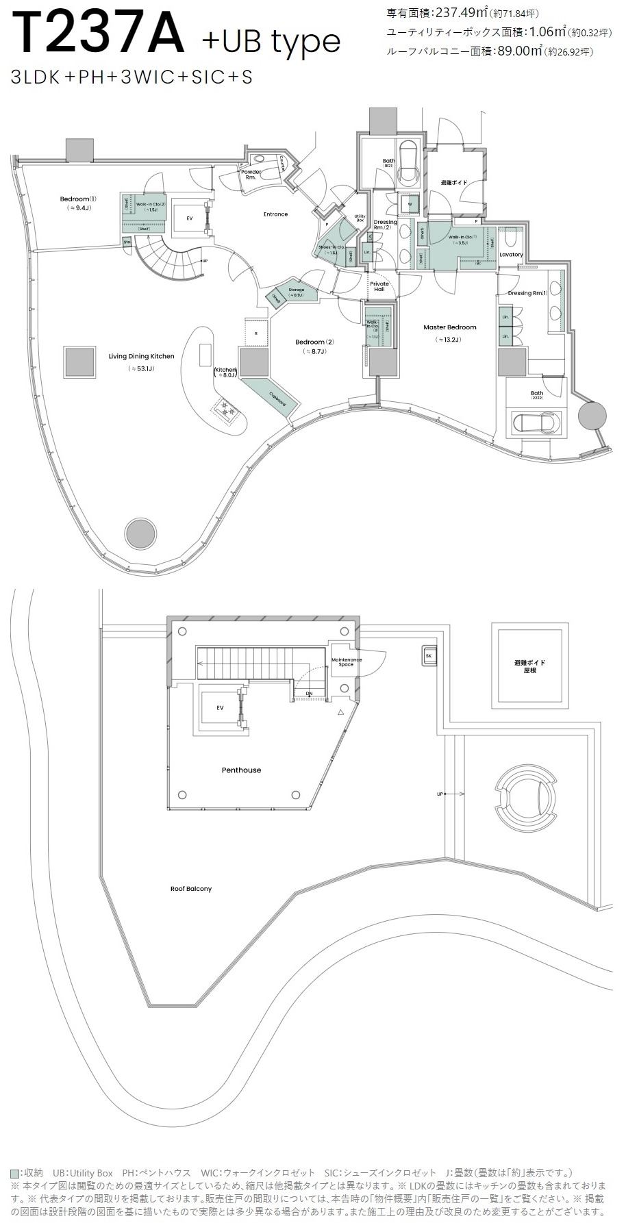
T237A+UB type[½Ðŵ¡§¸ø¼°HP]
¡¡²°¾å¤Ï¶¦ÍÑ»ÜÀߤÀ¤±¤Ç¤Ï¤Ê¤¯27³¬¡¢T237A+UB type¤ÎÉô²°¤À¤È¥×¥é¥¤¥Ù¡¼¥È¤Ê¥ë¡¼¥Õ¥Ð¥ë¥³¥Ë¡¼¤Ë¥¸¥ã¥°¥¸¡¼¤¬ÉÕ¤¤¤¿¹ë²Ú¤ÊÉô²°¤âÍѰդµ¤ì¤Æ¤¤¤Þ¤¹¡£¤³¤ÎÉô²°¤¬º£²óÈÎÇ䤵¤ì¤ë½»¸Í¤ÇºÇ¤â¹â¤¤13²¯7000Ëü±ß¤ÎÉô²°¤È¤Ê¤ê¤Þ¤¹¡£´ÉÍýÈñ¤Ï·î³Û147,900±ß¡¢½¤Á¶ÀÑΩ¶â¤Ï·î³Û40,550±ß¤È¤Ê¤Ã¤Æ¤¤¤Þ¤¹¡£
¡¡¤½¤ì¤Ë¤·¤Æ¤â¥¨¥ó¥È¥é¥ó¥¹¥Û¡¼¥ë¤ä¥ê¥Ó¥ó¥°¤ÏÌÌÇò¤¤·Á¤ò¤·¤Æ¤¤¤Þ¤¹¡£²È¶ñÁª¤Ó¡¢²È¶ñÇÛÃ֤Υ»¥ó¥¹¤âÌä¤ï¤ì¤ë´Ö¼è¤ê¤È¤Ê¤ê¤½¤¦¤Ç¤¹¤¬¡¢¤³¤Î¥ì¥Ù¥ë¤ÎÉô²°¤ò¹ØÆþ¤Ç¤¤ë¿Í¤ÏÀìÌç¤Î¥¤¥ó¥Æ¥ê¥¢¥Ç¥¶¥¤¥Ê¡¼¤ò¸Æ¤ó¤Ç·è¤á¤Æ¤¤¤¤½¤¦¤Ç¤¹¤Í¡£

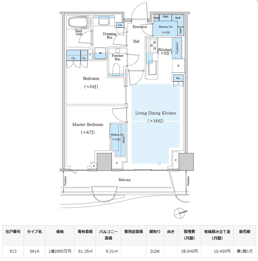
S61A type[½Ðŵ¡§¸ø¼°HP]
¡¡º£²óÈÎÇ䤵¤ì¤ëÉô²°¤Ç°ìÈְ¤¤9³¬¡¢S61A type¤ÎÉô²°¤Ç¤¹¡£ÀìÍÌÌÀѤÏ61.35֤DzÁ³Ê¤Ï1²¯2880Ëü±ß¤È¤Ê¤Ã¤Æ¤¤¤Þ¤¹¡£º¸±¦È¿Å¾¤·¤¿Æ±¤¸9³¬¤ÎS61D type¤ÎÉô²°¤â1²¯2880Ëü±ß¤Ç¤¹¡£

3³¬¡Á14³¬¤Î²Á³Êɽ[½Ðŵ¡§¸ø¼°HP]
¡¡¸ø¼°HP¤Ë·ÇºÜ¤µ¤ì¤¿²Á³Êɽ¤Ç¤¹¡£ÄãÁØ¥Õ¥í¥¢¤Ï1²¯±ßÂæ¤ÎÉô²°¤¬Âç¿¿ô¤òÀê¤á¤Æ¤¤¤Þ¤¹¡£

15³¬¡Á21³¬¤Î²Á³Êɽ[½Ðŵ¡§¸ø¼°HP]
¡¡ÃæÁØ¥Õ¥í¥¢¤Ï2²¯±ßÂæ¡¢3²¯±ßÂæ¤ÎÉô²°¤â¤Á¤é¤Û¤é½Ð¤Æ¤¤Þ¤¹¡£

22³¬¡Á27³¬¤Î²Á³Êɽ[½Ðŵ¡§¸ø¼°HP]
¡¡24³¬°Ê¾å¤Ë¤Ê¤ë¤ÈÁ´¸Í2²¯±ß°Ê¾å¤Ç¥È¥Ã¥×5¤Î²Á³Ê¤Ï13²¯7000Ëü±ß¡¢11²¯3000Ëü±ß¡¢9²¯4000Ëü±ß¡¢7²¯±ß¡¢6²¯3000Ëü±ß¤È¤Ê¤Ã¤Æ¤¤¤Þ¤¹¡£

¡¡6·î26Æü¤Ë¸½ÃϤǻ£±Æ¤·¤¿¡Ö

¡¡ÌܤÎÁ°¤Ë¤ÏÌÀ¼£Ä̤꤬¤¢¤ê¤Þ¤¹¡£

¡¡ËÌ»²Æ»¸òº¹ÅÀ¤«¤é»£±Æ¡£²Á³ÊŪ¤Ë¤â¼«Ê¬¤Ë¤Ï±ï¤Î¤Ê¤¤¥¿¥ï¡¼¥Þ¥ó¥·¥ç¥ó¤È¤Ê¤ê¤Þ¤¹¤¬¡¢¶ÊÀþ¤ò»È¤Ã¤¿ÆÈÆÃ¤Î³°´Ñ¤¬ÌÌÇò¤¤¤Î¤Ç´°À®¤¬³Ú¤·¤ß¤Ç¤¹¡£

¡¡¹ñΩ¶¥µ»¾ì¦¤«¤é»£±Æ¡£

¡¡Ë̦¤òÄ̤ë¼óÅÔ¹â¤òͤ¨¤¿¾ì½ê¤«¤é»£±Æ¡£´°À®»þ¤Ë¤Ï¤³¤ÎÊդ꤫¤é¸«¤¿Êý¤¬¥¥ì¥¤¤Ë¸«¤¨¤½¤¦¤Ç¤¹¡£

¡¡Â塹ÌÚ±ØÊýÌ̤«¤é»£±Æ¡£´°À®»þ¤Ë¤Ï¤³¤ÎÏ©ÃϤÎÀè¤Ë¡Ö

¡¡·úÃ۷ײè¤Î¤ªÃΤ餻¤Ç¤¹¡£
¢£Êª·ï³µÍ×¢£
̾¾Î¡§¥Ñ¡¼¥¯¥³¡¼¥È¿ÀµÜËÌ»²Æ» ¥¶ ¥¿¥ï¡¼
·×²è̾¡§(²¾¾Î)½Âë¶èÀéÂÌ¥öë»ÍÃúÌܷײè
½êºßÃÏ¡§ÅìµþÅÔ½Âë¶èÀéÂÌ¥ö룴ÃúÌÜ6ÈÖ15¹æÂ¾
ÍÑÅÓ¡§¶¦Æ±½»Âð¡¢Å¹ÊÞ¡¢Êݰé½ê
Áí¸Í¿ô¡§471¸Í¡ÊÈÎÇäÁí¸Í¿ô471¸Í¡¢Â¾¤ËŹÊÞ1¸Í¡Ë
³¬¿ô¡§ÃϾå27³¬¡¢Ãϲ¼1³¬
¹â¤µ¡§89.98m¡ÊºÇ¹â¹â¤µ99.01m¡Ë
¹½Â¤¡§RC¤
´ðÁù©Ë¡¡§Ä¾ÀÜ´ðÁÃ
ÉßÃÏÌÌÀÑ¡§4,837.13Ö
·úÃÛÌÌÀÑ¡§2,407.65Ö
±ä¾²ÌÌÀÑ¡§55,655.00Ö
·úÃۼ硧»°°æÉÔÆ°»º¥ì¥¸¥Ç¥ó¥·¥ã¥ë
Àß·×¼Ô¡§À¶¿å·úÀß
»Ü¹©¼Ô¡§À¶¿å¡¦¥Õ¥¸¥¿·úÀß¶¦Æ±´ë¶ÈÂÎ
¹©´ü¡§2020ǯ3·î1ÆüÃ幩¡Á2023ǯ6·î²¼½Ü½×¹©Í½Äê
Æþµï¡§2023ǯ7·î²¼½ÜͽÄê
- ¥«¥Æ¥´¥ê
- ͹âÁØ¥Ó¥ëÆüµ(ÅìµþÊÔ)







