
¥¤¥á¡¼¥¸¥Ñ¡¼¥¹[½Ðŵ¡§¿·½É¶è]
¡¡¾®ÅĵÞÅÅÅ´¤ÈÅìµþÃϲ¼Å´¤Ë¤è¤ëÂ絬ÌϺƳ«È¯¡Ö(²¾¾Î)¿·½É±ØÀ¾¸ýÃ϶賫ȯ·×²è¡×(ÃϾå48³¬¡¢¹â¤µÌó260m)¤Ë¤Ä¤¤¤Æ¡¢Âè70²ó¿·½É¶è·Ê´Ñ¤Þ¤Á¤Å¤¯¤ê¿³µÄ²ñ¤¬³«ºÅ¤µ¤ì¿·¤¿¤Ê»ñÎÁ¤¬¸ø³«¤µ¤ì¤Þ¤·¤¿¡£º£²ó½é¸ø³«¤È»×¤ï¤ì¤ë´°À®Í½ÁÛ¿Þ¤Ê¤É¤âÆ±»ñÎÁ¤Ë·ÇºÜ¤µ¤ì¤Æ¤¤¤Þ¤¹¡£
¡¡µ¬ÌϤϴûÊó¤ÈÊѤï¤ê¤Ê¤¯ÃϾå48³¬¡¢Ãϲ¼5³¬¡¢¹â¤µÌó260m¡¢ÉßÃÏÌÌÀÑÌó15,720Ö¡¢±ä¾²ÌÌÀÑÌó281,700֤Ǿ¦¶È¡¢¶È̳¡¢±Ø»ÜÀßÅù¤Ç¹½À®¤µ¤ì¤Þ¤¹¡£2022ǯÅÙÃ幩¡¢2029ǯÅÙ½×¹©Í½Äê¤È¤Ê¤Ã¤Æ¤¤¤Þ¤¹¡£
¢§¿·½É¶è·Ê´Ñ¤Þ¤Á¤Å¤¯¤ê¿³µÄ²ñ¡§Âè70²ó¿·½É¶è·Ê´Ñ¤Þ¤Á¤Å¤¯¤ê¿³µÄ²ñ¡Ê2020ǯ10·î21Æü¡Ë
¡ÚÊó¹ð2¡Û¡Ê²¾¾Î¡Ë¿·½É±ØÀ¾¸ýÃ϶賫ȯ»ö¶È¤Ë¤Ä¤¤¤Æ [PDF·Á¼°¡§23.9MB]

ÃÇÌÌ¿Þ[½Ðŵ¡§¿·½É¶è]
¡¡¿·¤¿¤Ë¸ø³«¤µ¤ì¤¿¾ÜºÙ¤ÊÃÇÌ̿ޤǤ¹¡£Ä¶¹âÁØÅï¤ÎÄãÁØÉô¤Ï¾¦¶È»ÜÀßÅù¤È¤Ê¤êÃæ¹âÁØÉô¤Ï¥ª¥Õ¥£¥¹¥Õ¥í¥¢¤È¤Ê¤ê¤µ¤é¤Ë¡¢ºÇ¾åÉô¤Îµ¡³£¼¼¤Î¾å¤Ï²°¾å³¬»ÜÀߤȤʤäƤ¤¤Þ¤¹¡£ÍÑÅÓËÞÎã¤Î¿§Ê¬¤±¤Ç¤ÏŹÊޤȤʤäƤ¤¤ë¤Î¤ÇŸ˾¼¼¤¬ÀßÃÖ¤µ¤ì¤ë²ÄǽÀ¤¬¤¢¤ê¤½¤¦¤Ç¤¹¡£¤Þ¤¿¡¢ºÇ¹â¹â¤µ¤Î¤È¤³¤í¤ËT.P.+300¤ÈµºÜ¤µ¤ì¤Æ¤¤¤Þ¤¹¤¬¡¢¤³¤ì¤ÏÅìµþÏѤÎÊ¿¶Ñ³¤Ì̤ò´ð½à¤È¤·¤¿¾ì¹ç¤Ï¹â¤µ¤Î¤³¤È¤Ç¤¹¡£¤Ä¤Þ¤ê³¤È´300m¤È¤¤¤¦¤³¤È¤Ë¤Ê¤ê¤Þ¤¹¡£
¡¡¤È¤³¤í¤Ç8³¬Éôʬ¤Ë±Ø»ÜÀߤȤ¢¤ê¤Þ¤¹¤¬¤³¤ì¤Ï²¿¤Ê¤ó¤Ç¤·¤ç¤¦¤Í¡©Åìµþ¥á¥È¥í´Ý¤ÎÆâÀþ¤Î¿¿¾å¤Î¤è¤¦¤Ê¤Î¤Ç¡¢¤Þ¤µ¤«¤³¤³¤Ë²þ»¥¤¬¤Ç¤¤¿¤ê¤¹¤ë¤Î¤Ç¤·¤ç¤¦¤«¡©Ææ¤Ç¤¹¡£

ĺÉô¤Î¸«¤¨Êý[½Ðŵ¡§¿·½É¶è]
¡¡ÄºÉô¤Î¸«¤¨Êý¤Î¿Þ¤Ë¤âÆîË̤˲°¾å¥Æ¥é¥¹¤¬ÉÁ¤«¤ì¤Æ¤¤¤Þ¤¹¡£Ä¯Ë¾¤ò³Ú¤·¤á¤ë¾ì½ê¤¬½ÐÍè¤ë¤Î¤Ï´Ö°ã¤¤¤Ê¤µ¤½¤¦¤Ç¤¹¤¬¡¢¤³¤ì¤¬°ìÈ̤οͤâ¹Ô¤±¤ë¾ì½ê¤Ê¤Î¤«¡¢Æþµï´ë¶È¤À¤±¤Î¾ì½ê¤Ê¤Î¤«¡¢»ñÎÁ¤Ë¤ÏÆÃ¤ËµºÜ¤¬¤Ê¤¤¤Î¤ÇÉÔÌÀ¤Ç¤¹¡£

À¾Â¦Î©ÌÌ¿Þ[½Ðŵ¡§¿·½É¶è]
¡¡Î©Ì̿ޤò¸«¤Æ¤â49³¬(²°¾å³¬)¤ËŸ˾³¬¤È¤ÎµºÜ¤¬¤¢¤ê¤Þ¤¹¡£°ìÈ̤οͤâ¹Ô¤±¤ëŸ˾¥Õ¥í¥¢¤Ê¤é»ñÎÁ¤Ë½¸µÒ»ÜÀߤȤ·¤Æ¡Ä¤Î¤è¤¦¤ÊµºÜ¤¬¤¢¤ë¤È»×¤¦¤Î¤Ç¤¹¤¬¡¢¸«Åö¤¿¤é¤Ê¤¤¤È¤¤¤¦¤³¤È¤Ï°ìÈ̤οͤϹԤ±¤Ê¤¤¾ì½ê¤È¤¤¤¦¤³¤È¤Ê¤ó¤Ç¤¹¤«¤Í¡£¼ÂºÝ¤Ï¤É¤¦¤Ê¤Î¤«¤ÏÉÔÌÀ¤Ç¤¹¡£

Åì¦ΩÌÌ¿Þ[½Ðŵ¡§¿·½É¶è]

Ë̦¡¦Æî¦ΩÌÌ¿Þ[½Ðŵ¡§¿·½É¶è]

ÉßÃϳµÍ×[½Ðŵ¡§¿·½É¶è]
¡¡·×²èÃϤÏJR¿·½É±Ø¤ÎÀ¾Â¦¤ËÎÙÀܤ·¤¿Éôʬ¤Ç¡¢¾®ÅĵÞÉ´²ßŹ¡¢¥â¥¶¥¤¥¯Ä̤ꡢ¿·½É¥ß¥í¡¼¥É¤äÃϲ¼Å´¥Ó¥ë¤¬¤¢¤ë¾ì½ê¤Ç¾®Åĵ޿·½É±Ø¤â¤¢¤ê¤Þ¤¹¡£¤½¤Î¾®Åĵ޿·½É±Ø¤Îµ¡Ç½¤ò»ß¤á¤ë¤³¤È¤Ê¤¯¹©»ö¤¬¹Ô¤ï¤ì¤ë¤¿¤á¡¢½Âë±Ø¤Î¤è¤¦¤ËưÀþ¤¬¥³¥í¥³¥í¤ÈÊѤï¤ë¤³¤È¤Ë¤Ê¤ë¤«¤â¤·¤ì¤Þ¤»¤ó¡£

ÇÛÃÖ¿Þ[½Ðŵ¡§¿·½É¶è]
¡¡¡Ö(²¾¾Î)¿·½É±ØÀ¾¸ýÃ϶賫ȯ·×²è¡×¤È¤ÏḚ̂·¤¤¤Î¤è¤¦¤Ç¤¹¤¬¡¢¿·½É¥°¥é¥ó¥É¥¿¡¼¥ß¥Ê¥ë¹½Áۤμ¸½¤Ë¸þ¤±¤¿´ðÈ×À°È÷¤ÇÀ¾¸ý±ØÁ°¹¾ì¤â¿·¤·¤¯À°È÷¤µ¤ì¤Þ¤¹¡£

¥¤¥á¡¼¥¸¥Ñ¡¼¥¹[½Ðŵ¡§¿·½É¶è]
¡¡¤½¤ÎÀ¾¸ý±ØÁ°¹¾ì¤«¤é¸«¾å¤²¤¿¡Ö(²¾¾Î)¿·½É±ØÀ¾¸ýÃ϶賫ȯ·×²è¡×¤ÎÄãÁØÉô¤Î´°À®Í½ÁۿޤǤ¹¡£

Ãæ·Ê¿Þ[½Ðŵ¡§¿·½É¶è]
¡¡¤³¤Î¤è¤¦¤ËưÀþ¤¬¸«¤¨¤ë¥Ç¥¶¥¤¥ó¤È¤Ê¤Ã¤Æ¤ª¤ê¡¢ÄãÁØÉô¤Î¾åÉô¤Ë¤Ï¥¹¥«¥¤¥³¥ê¥É¡¼¤¬À°È÷¤µ¤ì¤Þ¤¹¡£¥³¥ê¥É¡¼¤Ë¤Ïϲ¼¡¢²óÏ¡¢ÄÌÏ¡¢Ï©ÃϤȤ¤¤Ã¤¿°ÕÌ£¤¬¤¢¤ê¤Þ¤¹¡£

¥¹¥«¥¤¥³¥ê¥É¡¼Á´ÂÎ¥¤¥á¡¼¥¸[½Ðŵ¡§¿·½É¶è]
¡¡¤½¤Î¥¹¥«¥¤¥³¥ê¥É¡¼¤ÎÁ´ÂÎ¥¤¥á¡¼¥¸¤Ç¤¹¡£9³¬¤È14³¬¤Ë¤Ï¥Æ¥é¥¹¤âÀßÃÖ¤µ¤ì¡¢9³¬¤«¤é¤Ï°ìµ¤¤Ë12³¬¤Þ¤Ç·Ò¤¬¤ë¥í¥ó¥°¥¨¥¹¥«¥ì¡¼¥¿¡¼¤âÀßÃÖ¤µ¤ì¤Þ¤¹¡£

.14³¬¤è¤ê¿áÈ´¤ÎÂÚα¶õ´Ö[½Ðŵ¡§¿·½É¶è]
¡¡¤½¤Î¥¹¥«¥¤¥³¥ê¥É¡¼¤Î14³¬¤«¤é¸«¤¿´°À®Í½ÁۿޤǤ¹¡£¿á¤È´¤±¤ÎÂÚα¶õ´Ö¤¬À°È÷¤µ¤ì¤ë·×²è¤È¤Ê¤Ã¤Æ¤¤¤Þ¤¹¡£

14³¬¿·½É¥Æ¥é¥¹[½Ðŵ¡§¿·½É¶è]
¡¡14³¬¤Î¥Æ¥é¥¹¤Î´°À®Í½ÁۿޤǤ¹¡£Ã¼¤Ë¤Ï¿¢ºÏ¤¬À°È÷¤µ¤ì¤ë¤¿¤á¼þÊդΥӥë¤ò²¼¤«¤é¾å¤Þ¤Ç¸«¤ë¤è¤¦¤Ê¤³¤È¤Ï¤Ç¤¤Ê¤µ¤½¤¦¤Ç¤¹¤¬¡¢¿·½É¤Î͹âÁإӥ뷲¤òį¤á¤ë¤³¤È¤¬¤Ç¤¤ë¾ì½ê¤È¤Ê¤ê¤½¤¦¤Ç¤¹¡£

¥¤¥á¡¼¥¸¥Ñ¡¼¥¹[½Ðŵ¡§¿·½É¶è]
¡¡ÃϾ夫¤é¸«¤¿´°À®Í½ÁۿޤǤ¹¡£¤³¤Î±¦Â¦¤Ë¾®Åĵ޿·½É±Ø¤¬¤¢¤ê¤Þ¤¹¡£

¥¤¥á¡¼¥¸¥Ñ¡¼¥¹[½Ðŵ¡§¿·½É¶è]
¡¡¤³¤ÎÊÕ¤ê¤ÏJR¿·½É±Ø¤Èµþ²¦É´²ßŹ¤Ë¶´¤Þ¤ì¤¿¾ì½ê¤È¤Ê¤ê¤Þ¤¹¡£¿Þ¤Î²¼Â¦¤Î¸½ºß¤Ï¿·½É¤Î±Ø¤Î¥Û¡¼¥à¤¬¤¢¤ë¤À¤±¤Ç¤¹¤¬¡¢¿·½É¥°¥é¥ó¥É¥¿¡¼¥ß¥Ê¥ë¹½ÁۤǤÏJR¿·½É±Ø¤Î¾å¤ËÅìÀ¾¤ò·Ò¤°¥»¥ó¥È¥é¥ë¥×¥é¥¶¤¬À°È÷¤µ¤ì¤ë·×²è¤È¤Ê¤Ã¤Æ¤¤¤Þ¤¹¡£

¥¤¥á¡¼¥¸¥Ñ¡¼¥¹[½Ðŵ¡§¿·½É¶è]
¡¡¥»¥ó¥È¥é¥ë¥×¥é¥¶¤¬À°È÷¤µ¤ì¤ë¤Þ¤Ç¤ÏÊĺ¿¤µ¤ì¤¿¶õ´Ö¤È¤Ê¤ë¤«¤â¤·¤ì¤Þ¤»¤ó¤¬¡¢¿·½É¥°¥é¥ó¥É¥¿¡¼¥ß¥Ê¥ë¹½ÁÛ´°À®»þ¤Ë¤Ïµ¤»ý¤Á¤ÎÎɤ¤¶õ´Ö¤È¤Ê¤Ã¤Æ¤¤¤½¤¦¤Ç¤¹¡£¤¿¤À¡¢¿·½É¥°¥é¥ó¥É¥¿¡¼¥ß¥Ê¥ë¹½Áۤϥ¤¥Þ¥¤¥Á¤è¤¯¤ï¤«¤é¤º¡¢´°À®¤Þ¤Ç¤Ï¤«¤Ê¤ê¤Î´ü´Ö¤¬¤«¤«¤ê¤½¤¦¤Ç¤¹¡£

¥¤¥á¡¼¥¸¥Ñ¡¼¥¹[½Ðŵ¡§¿·½É¶è]
¡¡ÉßÃÏÆîü¦¤«¤é¸«¤¿´°À®Í½ÁۿޤǤ¹¡£¸½ºß¡Ö¿·½É¥ß¥í¡¼¥É¡×¤¬¤¢¤ë¾ì½ê¤Ï¤³¤Î¤è¤¦¤Ë·ú¤ÆÂؤ¨¤é¤ì¤Þ¤¹¡£

·Ê´Ñ¥·¥ß¥å¥ì¡¼¥·¥ç¥ó[½Ðŵ¡§¿·½É¶è]
¡¡»ñÎÁ¤Ë·ÇºÜ¤µ¤ì¤Æ¤¤¤¿·Ê´Ñ¥·¥ß¥å¥ì¡¼¥·¥ç¥ó¤Ç¤¹¡£

·Ê´Ñ¥·¥ß¥å¥ì¡¼¥·¥ç¥ó[½Ðŵ¡§¿·½É¶è]
¡¡Â¾¤Ë¤â¤Þ¤À¤Þ¤À¤¢¤ê¤Þ¤·¤¿¤¬Â礤¯ÉÁ¤«¤ì¤Æ¤¤¤ë¤Î¤Ï¤³¤Î2Ëç¤Ç¤·¤¿¡£

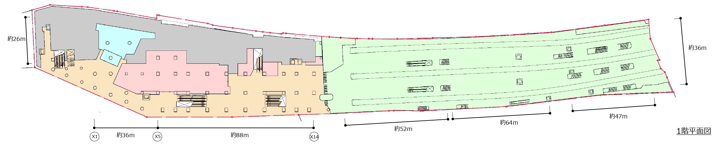
Ãϲ¼1³¬Ê¿ÌÌ¿Þ[½Ðŵ¡§¿·½É¶è]
¡¡ÄãÁØÉô¤ÎÊ¿Ì̿ޤǤ¹¡£¥Ô¥ó¥¯¤¬Å¹ÊÞ¡¢ÀĤ¬»ö̳¼¼¡¢ÎФ¬±ØÄÌÏ©¡¢¥ª¥ì¥ó¥¸¤¬ÄÌÏ©¡¢¥¥â¤ÂÍý¤¬¹×¸¥»ÜÀß¡¢³¥¿§¤¬Á´Âζ¦ÍѤǤ¹¡£

1³¬Ê¿ÌÌ¿Þ[½Ðŵ¡§¿·½É¶è]

2³¬Ê¿ÌÌ¿Þ[½Ðŵ¡§¿·½É¶è]

3³¬Ê¿ÌÌ¿Þ[½Ðŵ¡§¿·½É¶è]

4³¬Ê¿ÌÌ¿Þ[½Ðŵ¡§¿·½É¶è]

9³¬Ê¿ÌÌ¿Þ[½Ðŵ¡§¿·½É¶è]

12³¬Ê¿ÌÌ¿Þ[½Ðŵ¡§¿·½É¶è]

13³¬Ê¿ÌÌ¿Þ[½Ðŵ¡§¿·½É¶è]

14³¬Ê¿ÌÌ¿Þ[½Ðŵ¡§¿·½É¶è]

¡¡2015ǯ1·î¤Ë¥»¥¹¥Ê¤«¤é»£±Æ¤·¤¿¿·½É¤Ç¤¹¡£¡Ö(²¾¾Î)¿·½É±ØÀ¾¸ýÃ϶賫ȯ·×²è¡×¤Î·×²èÃϤËÀÖ¤¤Ìֳݤ±¤ò¤·¤Þ¤·¤¿¡£Á°²óºÜ¤»¤¿¤È¤¤ËÈϰϤ¬´Ö°ã¤Ã¤Æ¤¤¤ë¤È¤Î¥³¥á¥ó¥È¤¬¤¢¤Ã¤¿¤Î¤Ç³Îǧ¤·¤¿¤é¡Ä´Ö°ã¤Ã¤Æ±¦Ã¼¤Î¥Ñ¥ì¥Ã¥È¥Ó¥ë¤âÈÏ°Ï¤ËÆþ¤ì¤Æ¤¤¤Þ¤·¤¿¡£¡£º£²ó¤«¤é½¤Àµ¥Ð¡¼¥¸¥ç¥ó¤ÇºÜ¤»¤Æ¤¤¤Þ¤¹¡£

¡¡Ëè²óƱ¤¸¶õ»£¤ò»È¤Ã¤Æ¤¤¤ë¤Î¤Çº£²ó¤Ï¿·¤¿¤Ê¤â¤¦1Ëç¤òÍѰդ·¤Þ¤·¤¿¡£¤³¤Î¤è¤¦¤Ë¿·½É±Ø¤ËÎÙÀܤ·¤¿¾ì½ê¤Ë¤Ï͹âÁØ¥Ó¥ë¤Ï¾¯¤Ê¤¯¡¢¾¯¤·°Üư¤·¤¿¤È¤³¤í¤Ë͹âÁإӥ뷲¤¬¹¤¬¤Ã¤Æ¤¤¤Þ¤¹¤¬¡¢Æ±ºÆ³«È¯¤Ë¤è¤Ã¤Æ¿·½É¤Î͹âÁإӥ뷲¤Î¥¤¥á¡¼¥¸¤âÊѤï¤ê¤½¤¦¤Ç¤¹¡£

¡¡¡Ö(²¾¾Î)¿·½É±ØÀ¾¸ýÃ϶賫ȯ·×²è¡×¤Î͹âÁØÅ郎·úÀߤµ¤ì¤ë¤¢¤¿¤ê¤Ë¤Ï¤³¤Î¤è¤¦¤Ë¾®ÅĵÞÉ´²ßʤ¬¤¢¤ê¤Þ¤¹¡£2022ǯÅÙÃ幩ͽÄê¤Î¤¿¤á¤³¤Î¸÷·Ê¤¬¸«¤é¤ì¤ë¤Î¤â¤¢¤È¾¯¤·¤Ç¤¹¡£
¢£Êª·ï³µÍ×¢£
·×²è̾¡§(²¾¾Î)¿·½É±ØÀ¾¸ýÃ϶賫ȯ·×²è
½êºßÃÏ¡§ÅìµþÅÔ¿·½É¶èÀ¾¿·½É°ìÃúÌÜ1È֤ΰìÉô
ÍÑÅÓ¡§¾¦¶È¡¦¶È̳¡¦±Ø»ÜÀß Åù
³¬¿ô¡§ÃϾå48³¬¡¢Åã²°1³¬¡¢Ãϲ¼5³¬
¹â¤µ¡§Ìó260m
¹½Â¤¡§Å´¹ü¤¡Ê°ìÉôÅ´¹üÅ´¶Ú¥³¥ó¥¯¥ê¡¼¥È¤¡Ë
ÉßÃÏÌÌÀÑ¡§Ìó15,720Ö
±ä¾²ÌÌÀÑ¡§Ìó281,700Ö
·úÃۼ硧¾®ÅĵÞÅÅÅ´¡¢ÅìµþÃϲ¼Å´
¹©´ü¡§2022ǯÅÙÃ幩¡Á2029ǯÅÙ½×¹©Í½Äê
¶¡Íѳ«»Ï¡§2029ǯÅÙͽÄê
- ¥«¥Æ¥´¥ê
- ͹âÁØ¥Ó¥ëÆüµ(ÅìµþÊÔ)







