
¥¤¥á¡¼¥¸¥Ñ¡¼¥¹[½ÐŸ¡§²£ÉÍ»Ô]
¡¡²£ÉͤߤʤȤߤ餤21¤ÎÃæ±ûÃ϶è37³¹¶è¤Ç·×²è¤µ¤ì¤Æ¤¤¤ë¡Ö(²¾¾Î)¤ß¤Ê¤È¤ß¤é¤¤21Ãæ±ûÃ϶è37³¹¶è³«È¯·×²è¡×(ÃϾå28³¬¡¢¹â¤µ150m)¤Î´°À®Í½ÁۿޤǤ¹¡£
¡¡¾ì½ê¤Ï½»Â🼨¾ì¤¬¤¢¤ë¾ì½ê¤È¸À¤¨¤Ð¤ï¤«¤ë¤Ç¤·¤ç¤¦¤«¡£¸µ¡¹¤Ï»°É©½Å¹©¤¬½êͤ·¤Æ¤¤¤¿ÅÚÃϤǡÖ(²¾¾Î)¤ß¤Ê¤È¤ß¤é¤¤21Ãæ±ûÃ϶è37³¹¶èII´üÅï·×²è¡×¤È¤·¤Æ¹â¤µ160mÄøÅÙ¤Î͹âÁإӥ뤬·×²è¤µ¤ì¤Æ¤¤¤Þ¤·¤¿¤¬¤½¤ÎÅÚÃϤϥ±¥Í¥Ç¥£¥¯¥¹¤ËÇäµÑ¤µ¤ì¤Þ¤·¤¿¡£¤½¤·¤Æ¥Ñ¥Ê¥Û¡¼¥à¡¢¥±¥Í¥Ç¥£¥¯¥¹¡¢¼¯Åç·úÀߤÎ3¼Ò¤¬½Ð»ñ¤¹¤ë¹çƱ²ñ¼ÒKRF48¤Ë¤è¤Ã¤Æº£²ó¤ÎºÆ³«È¯·×²è¤Ë»ê¤Ã¤Æ¤¤¤Þ¤¹¡£

»ÜÀßÃÇÌÌ¿Þ[½ÐŸ¡§²£ÉÍ»Ô]
¡¡¤³¤Î¤è¤¦¤Ë18³¬¤Þ¤Ç¤¬¥ª¥Õ¥£¥¹¥Õ¥í¥¢¡¢19³¬¤¬µ¡³£¼¼¡¢¤½¤·¤Æ20³¬¤«¤é¤¬¥Û¥Æ¥ë¤È¤Ê¤ë·×²è¤È¤Ê¤Ã¤Æ¤¤¤Þ¤¹¡£

»ÜÀßÃÇÌÌ¿Þ[½ÐŸ¡§²£ÉÍ»Ô]
¡¡¥Û¥Æ¥ëÉô¤Ï¥»¥Ã¥È¥Ð¥Ã¥¯¤·¤Æ¤ª¤ê¹â¤µÌó105m°Ê¾å¤¬µÒ¼¼¤È¤Ê¤ê¤Þ¤¹¡£

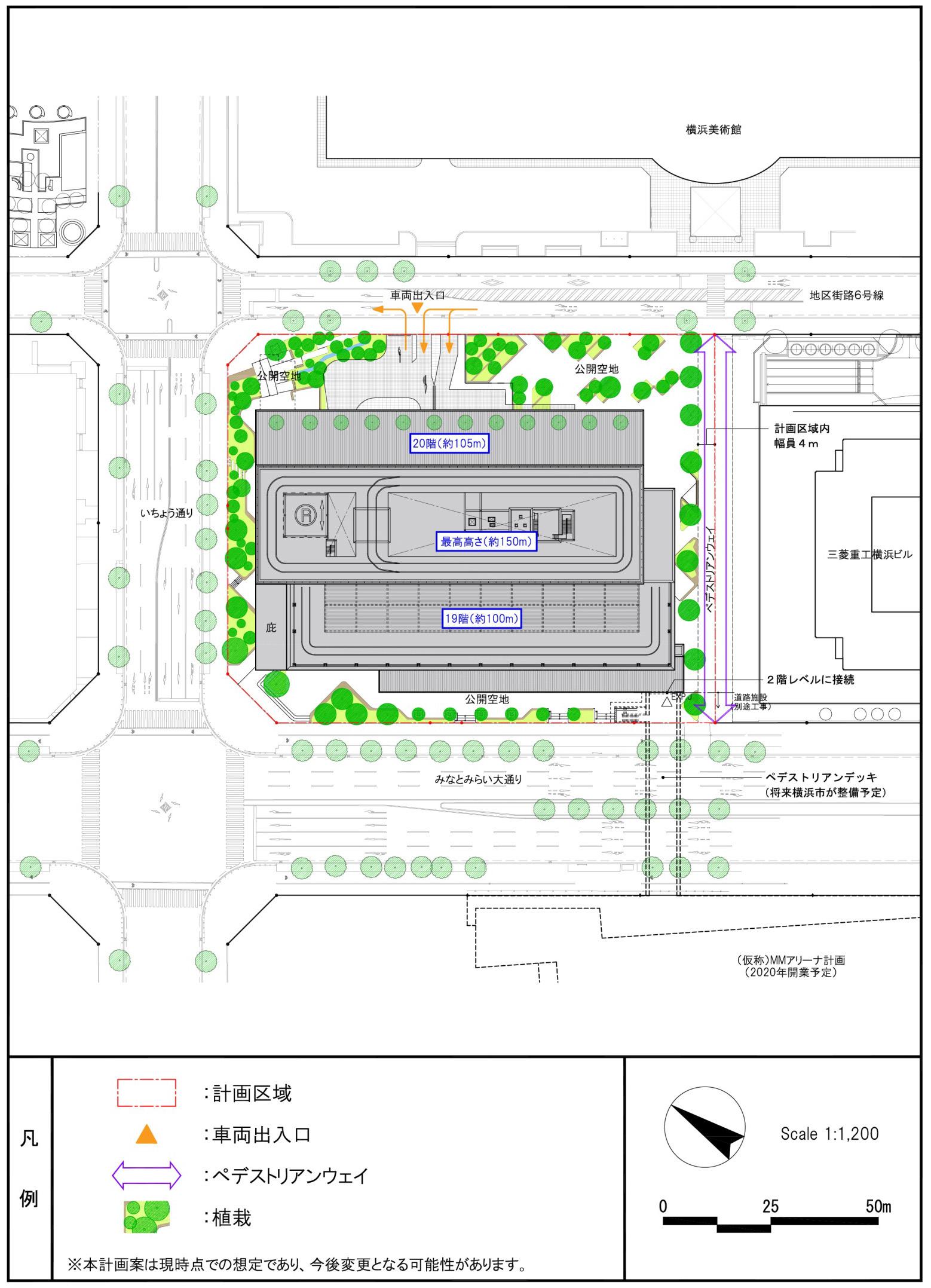
»ÜÀßÇÛÃÖ¿Þ[½ÐŸ¡§²£ÉÍ»Ô]
¡¡ÇÛÃֿ޾妤¬³¤Â¦¤Ç²¼Â¦¤¬Î¦Â¦¤È¤Ê¤ê¤Þ¤¹¡£

¡¡¡Ö(²¾¾Î)¤ß¤Ê¤È¤ß¤é¤¤21Ãæ±ûÃ϶è37³¹¶è³«È¯·×²è¡×(ÃϾå28³¬¡¢¹â¤µ150m)¤Î·úÀßÃϤζõ»£(2019ǯ1·î27Æü»£±Æ)¤Ç¤¹¡£¡Ö»°É©½Å¹©²£ÉÍ¥Ó¥ë¡×(ÃϾå33³¬¡¢¹â¤µ151.9m)¤ÎÎÙ¤ËÆ±¤¸¤¯¤é¤¤¤ÎÂ礤µ¤Î͹âÁإӥ뤬·ú¤Ä¤³¤È¤Ë¤Ê¤ê¤Þ¤¹¡£±¦²¼¤Ç·úÀßÃæ¤Î·úʪ¤Ï¡Ö¤Ô¤¢MM¥¢¥ê¡¼¥Ê(²¾¾Î)¡×¤Ç¤¹¡£

¡¡¡Ö²£ÉÍ¥é¥ó¥É¥Þ¡¼¥¯¥¿¥ï¡¼¡×¤ÎŸ˾¼¼¤«¤é¸«¤¿¡Ö(²¾¾Î)¤ß¤Ê¤È¤ß¤é¤¤21Ãæ±ûÃ϶è37³¹¶è³«È¯·×²è¡×¤Ç¤¹¡£¤³¤Î¤è¤¦¤Ë¾¯¤·¤À¤±ÉßÃϤ¬¸«¤¨¤Þ¤¹¡£

¡¡¤¿¤À¡¢¤³¤Î¤è¤¦¤Ë¡Ö»°É©½Å¹©²£ÉÍ¥Ó¥ë¡×¤¬¼×¤ë¤è¤¦¤Ë·ú¤Ã¤Æ¤¤¤ë¤Î¤Ç´°À®¤·¤Æ¤â¤Û¤È¤ó¤É¸«¤¨¤Ê¤µ¤½¤¦¤Ç¤¹¡£

¡¡ÃϾ夫¤é¸«¤¿¡Ö(²¾¾Î)¤ß¤Ê¤È¤ß¤é¤¤21Ãæ±ûÃ϶è37³¹¶è³«È¯·×²è¡×¤Î·úÀßÃϤǤ¹¡£

¡¡º£¤Ï¤Þ¤À½»Â🼨¾ì¤È¤·¤Æ²ÔƯ¤·¤Æ¤¤¤Þ¤¹¡£

¡¡¸½ÃϤˤϷúÃ۷ײè¤Î¤ªÃΤ餻¤¬ÀßÃÖ¤µ¤ì¡¢¤½¤ì¤Ë¤è¤ë¤È2019ǯ10·î1ÆüÃ幩¤È¤Ê¤Ã¤Æ¤¤¤Þ¤¹¡£

¡¡¤½¤Î¤¿¤á¸Í·ú¤Æ¤È¤ß¤Ê¤È¤ß¤é¤¤¤Î͹âÁإӥ뷲¤È¤¤¤Ã¤¿¸÷·Ê¤¬¸«¤é¤ì¤ë¤Î¤Ï²Æ¤«½©º¢¤Þ¤Ç¤«¤È»×¤¤¤Þ¤¹¡£

¡¡ºÇ¸å¤Ë¤ß¤Ê¤È¤ß¤é¤¤¤Î͹âÁإӥ뷲¤Î¶õ»£¤Ç¤¹¡£°ì»þ´ü¤Ï¶õ¤ÃϤФ«¤ê¤Ç¤·¤¿¤¬¤«¤Ê¤ê¸º¤Ã¤Æ¤¤Þ¤·¤¿¤Í¡£

¡¡·úÃ۷ײè¤Î¤ªÃΤ餻¤Ç¤¹¡£»Ü¹©¼Ô¤Ï̤Äê¤È¤Ê¤Ã¤Æ¤¤¤Þ¤¹¤¬¼¯Åç·úÀߤˤʤ뤫¤È»×¤¤¤Þ¤¹¡£
¢£Êª·ï³µÍ×¢£
̾¾Î¡§(²¾¾Î)¤ß¤Ê¤È¤ß¤é¤¤21Ãæ±ûÃ϶è37³¹¶è³«È¯·×
½êºßÃÏ¡§¿ÀÆàÀ²£ÉÍ»ÔÀ¾¶è¤ß¤Ê¤È¤ß¤é¤¤£³ÃúÌÜ3ÈÖÃÏ
ÍÑÅÓ¡§»ö̳½ê¡¦¥Û¥Æ¥ë¡¦Å¹ÊÞ¡¦Ãó¼Ö¾ì
³¬¿ô¡§ÃϾå28³¬¡¢Ãϲ¼1³¬
¹â¤µ¡§150m
¹½Â¤¡§SRC¤(°ìÉôRC)¡¢S(°ìÉôCFTÃì)¤
ÉßÃÏÌÌÀÑ¡§10,100Ö
·úÃÛÌÌÀÑ¡§6,200Ö
±ä¾²ÌÌÀÑ¡§123,000Ö
·úÃۼ硧¹çƱ²ñ¼ÒKRF48(¥Ñ¥Ê¥Û¡¼¥à¡¢¥±¥Í¥Ç¥£¥¯¥¹¡¢¼¯Åç·úÀß)
Àß·×¼Ô¡§¼¯Åç·úÀß
»Ü¹©¼Ô¡§Ì¤Äê
¹©´ü¡§2019ǯ10·î1ÆüÃ幩¡Á2023ǯ3·î31Æü½×¹©Í½Äê
- ¥«¥Æ¥´¥ê
- ²£ÉÍ»Ô
- ¶õ»£¡¦Í·Í÷Èô¹Ô(Åìµþ¡¦´ØÅì)







